План и выбор материала
Любое строительство начинается с проекта, который определяет планировку будущей постройки, материалы для строительства и затраты на него. Самодельная баня не исключение.
Составление плана
Для начала нужно определиться с площадью и планировкой будущей постройки. Делая расчеты, необходимо учесть, что площадь парилки должна составлять 5 м.кв. на человека, а сама баня должна состоять не только из парилки.
Она должна включать еще, как минимум:
- Предбанник;
- Моечную;
- Комнату отдыха.
Расположение помещений должно быть удобным.
Чтобы в итоге все получилось как надо, потребуется составить несколько таких чертежей и схем:
- Общий план, с указанием площади каждого помещения.
- Отдельный чертеж каждой комнаты бани.
- Схема фундамента.
- Схема кровли.
- План обустройства потолка и пола.
- Схему установки печки.
Все это можно заказать у специалистов, а можно сделать и самостоятельно, поскольку в открытых источниках имеется множество уже готовых проектов, один из которых, наверняка, может оказаться подходящим.
Выбор материала
Кроме того, на начальном этапе очень важно правильно выбрать основной строительный материал. Исходя из финансовых возможностей и условий эксплуатации, построить баню своими руками можно:
Исходя из финансовых возможностей и условий эксплуатации, построить баню своими руками можно:
- из дерева;
- из газобетона;
- из пеноблока;
- из керамзитобетона;
- из шлакоблока;
- из газосиликатных блоков;
- из кирпича.
Дерево
Дерево – считается оптимальным стройматериалом для строительства парных. Баня из дерева имеет особую атмосферу, привлекательный вид, хорошо сохраняет тепло и не требует дополнительной отделки.
Для ее возведения можно использовать:
Брус. Бани из бруса красивые, уютные и теплые, поэтому считаются самым распространенным вариантом. Такую баню не сложно построить своими руками, так как постройка имеет небольшой вес и не требует закладки сложного фундамента.
Бревно. Сделать баню своими руками из бревна сложнее, чем из бруса. А к выбору материала нужно подходить очень ответственно и покупать только качественную древесину. Брус должен быть без изгибов, деформаций и не иметь никаких признаков гниения.
Лафет. Баня из этого материала будет прочной и красивой. Такая древесина не подвержена деформациям и позволит сократить затраты на внешнюю и внутреннюю отделку. Единственная сложность при строительстве бани из лафета своими руками – это замковое соединение, за счет которого обеспечивается высокая прочность конструкции.
Каркас. Баня из каркаса считается бюджетным вариантом, и построить ее своими руками достаточно дешево и быстро. Основным недостатком каркасной бани является низкая влагоустойчивость
Поэтому при обустройстве парилки в такой бане потребуется уделить особое внимание пароизоляции, чтобы обеспечить конструкции дополнительную защиту от влаги.
Газобетон
Баня из газобетона прочная. Газобетон хорошо сохраняет тепло, пожароустойчив и не боится влаги. Строительство газобетонной дачи обойдется дешевле возведения деревянной парной, однако потребует дополнительных затрат на отделку. Поэтому, несмотря на более низкую стоимость стройматериала, сэкономить финансы при постройке бани из газобетона своими руками не получится.
Пеноблок
Пеноблок практически идентичен газобетону по своим характеристикам
Однако он стоит дешевле и имеет одно важное преимущество — более низкую гигроскопичность. Благодаря этому баня из пеноблока будет иметь более высокую прочность
Керамзитобетон
Блоки из керамзитобетона тоже подходят для строительства бани своими руками. Постройка из них будет прочной и надежной, однако, менее морозоустойчивой, чем баня из пеноблока.
Шлакоблок
Шлакоблок – самый дешевый из всех блочных стройматериалов. Построить баню из шлакоблоков обойдется более дешево, но она будет не очень хорошо сохранять тепло. Кроме того, такие блоки вполне могут оказаться неэкологичными, а их непривлекательный внешний вид потребует дополнительных затрат на внешнюю отделку будущей постройки.
Газосиликат
Блоки из газосиликата имеют целый ряд преимуществ. Они хорошо сохраняют тепло, не трескаются, имеют высокую прочность. По большинству своих характеристик они превосходят газобетон, однако имеют более высокий уровень влагопоглощения.
Сделать баню своими руками можно и из кирпича. Однако этот процесс будет достаточно трудным и потребует больших затрат и сил и времени. Кирпичная конструкция получится очень прочной, но только в том случае, если за дело возьмется не новичок в работе с кирпичом.
Выбор помещения и проект
Сначала следует выбрать место, и составить проект сауны в квартире. Можно объединить санузел и маленький коридорчик, ведущий на кухню. В получившемся помещении уже можно раздумывать, как соорудить сауну в ванной комнате своими руками. Для экономии пространства можно установить душевую кабину с сауной для квартиры. Также установить сауну можно в кладовой или на балконе, при использовании инфракрасных обогревателей. Стоит заметить, что баня на балконе позволит избежать сокращения жилой площади в квартире.
При расчете размера сауны в зависимости от количества человек следует помнить, что на одного отдыхающего необходимо как минимум 2 м3 пространства. Высота потолка в сауне должна быть не менее 2 м.
В случае создания в квартире мини сауны своими руками, а не приобретения уже готовой, пол можно оставить прежний – кафельная плитка подойдет. Потребуется помещение размером минимум 1,8х2 м, чтобы можно было разместить лежанку. Такая мини сауна для квартиры – весьма практичное и удобное решение.
Строительство каркасной сауны
Приступайте к строительству сауны. Начните с обустройства фундамента.
Строительство каркасной сауны
Фундамент
Оптимальный вариант основания для каркасной сауны – ленточный фундамент, заглубленный на 80-100 см. Подходящую глубину заложения ленты определяйте индивидуально с учетом особенностей грунта в месте строительства.
Фундамент
Рекомендованная ширина бетонной ленты – 250-300 мм. Надземная часть основания должна иметь высоту не менее 200 мм.
Разрез ленточного фундамента
Выполните разметку площадки в соответствии с рекомендованными параметрами и планом строения. Для разметки используйте штыри и шнур.
Выройте траншеи по разметке. Засыпьте дно углублений песчано-гравийной смесью, уложите армирующую сетку, установите опалубку и залейте бетон.
Опалубка фундамента
Дайте бетону полностью высохнуть. На набор прочности требуется порядка 4-5 недель. Высохший бетон укройте двойным слоем рубероида.
В цоколе основания обустройте небольшие вентиляционные отверстия. Это можно сделать еще до заливки бетона, уложив в требуемых местах трубы нужного сечения. Делать отверстия в застывшем бетоне не рекомендуется, т.к. это может привести к уменьшению прочности конструкции.
Ленточный фундамент для сауны
Каркас из бруса
Выложите первый венец бруса. Используйте материал сечением 15х15 см либо же 20х20 см.
Нижний венец и особенности крепежаКаркас
Лучше, чтобы нижний брус не контактировал с фундаментом. Для исключения такого контакта уложите на фундамент прочные деревянные рейки примерно через каждые 300 мм. Будет достаточно реек толщиной 15 мм. Образовавшиеся пустоты заполняются теплоизоляционным материалом, а еще лучше – монтажной пеной.
Каркас
Брус нижней обвязки скрепляйте удобным способом. Главное, чтобы соединение было максимально надежным. От применения металлических крепежей лучше воздерживаться. Оптимально подходит соединение с применением пазов.
Каркас из бруса
Выложите необходимое количество рядов бруса в соответствии с запланированной высотой строения. Ряды соединяйте при помощи деревянных нагелей. Между рядами прокладывайте джутовый уплотнитель.
Обшивка каркаса
Укройте возведенный каркас прочными досками и рубероидом. Оставьте сауну в таком виде на полгода. За это время древесина даст усадку, и вы сможете продолжить обустройство сауны.
После завершения усадочных процессов, выпилите в стенах проемы для стеклопакетов и дверей и смонтируйте упомянутые элементы.
Если строительство выполняется с применением качественного бруса, прошедшего полноценную камерную сушку, делать такой продолжительный перерыв необязательно.
Односкатная крыша
Односкатная крыша
Приступайте к обустройству кровельной конструкции. Для частной сауны хорошо подойдет односкатная крыша – это простой и бюджетный вариант.
Если расстояние между противоположными стенами постройки не превышает 450 см, установку стропил можно выполнять без применения дополнительных опор. В случае же если расстояние превышает упомянутое значение, в обязательном порядке выполняется монтаж мауэрлата.
Варианты односкатной крыши
Мауэрлат представляет собой опорный брус, зафиксированный по верхнему краю стен строения. В деревянных постройках функции мауэрлата может взять на себя последний уложенный венец бруса.
Для установки стропил в мауэрлате создаются пазы соответствующего размера. Традиционно стропила фиксируются с метровым шагом.
Стропильные ноги должны выходить наружу примерно на 50 см. Благодаря этому будет исключена возможность попадания влаги с кровли на стены строения.
Скат крыши должен иметь определенный уклон (определяется индивидуально, в соответствии с особенностями выбранного финишного материала). Для создания уклона переднюю стену постройки нужно поднять на соответствующую высоту.
Далее обустройство крыши выполняется стандартно: монтируется обрешетка, обустраиваются изоляционные слои (влагозащита, утеплитель, пароизоляция) и крепится финишный отделочный материал.
Все деревянные элементы постройки обязательно обрабатываются антисептическим средством. Также рекомендуется выполнить обработку антипиреном. Пропитки можно использовать как до начала монтажа элементов, так и после их обустройства – решайте сами.
Односкатная крыша
Выбор разновидности сауны
При строительстве сауны своими руками расчёт проекта нужно выполнять с учётом того, что на каждого человека должно приходиться не менее 1 кв. м площади (или 2,5-3 куб. м пространства). Также следует учитывать степень влажности воздуха. Есть несколько видов парилок, различающихся между собой тепловыми и влажностными характеристиками:
- турецкая, в которой держится очень высокая влажность и умеренная температура;
- финская, где пар довольно сухой, а воздух прогревается выше 100 °C;
- русская, оборудованная кирпичной печью, с высокой температурой и влажным паром.
Самой полезной сауной считается финская и именно её рекомендуют для строительства опытные мастера.
Польза ИК-сауны
Некоторые люди, которые со скрипом воспринимают все новое, берутся утверждать, что инфракрасное излучение вредно и дает отрицательный эффект. Но на самом деле, это надуманная теория, не имеющая научного доказательства. Солнечные лучи, под которыми живет все живое, в том числе и человек создают именно такое излучение. Конечно, все должно быть, в меру. Полезные свойства инфракрасной сауны доказаны учеными. Они бесспорны. После регулярного принятия инфракрасной сауны:
- закаляется иммунная система организма;
- укрепляется сердечно-сосудистая система, давление приходит в норму, уменьшается уровень холестерина в крови;
- нормализуется обмен веществ в организме, происходит выведение шлаков и токсинов;
- очищается кожа, ускоряются процессы заживления ран, ожогов, обморожений. Шрамы после хирургических вмешательств буквально рассасываются на глазах;
- мышечные ткани и сухожилия становятся более эластичными и лучше поддаются растяжению;
- увеличивается гибкость и подвижность опорно-двигательного аппарата;
- успокаивается нервная система, уходит нервозность, исчезает раздражительность и бессонница;
- улучшается обмен веществ, что приводит к похудению.
Противопоказаний к применению ИК-сауны не так уж много и они не отличаются от запретов на прием процедур в обычной русской бане или финской сауне. Это простуды и вирусы при наличии высокой температуры, онкологические опухоли и наружное или внутреннее кровотечение, болезни почек и печени, нарушения работы сердца, заболевания крови, суставов и эндокринной системы.
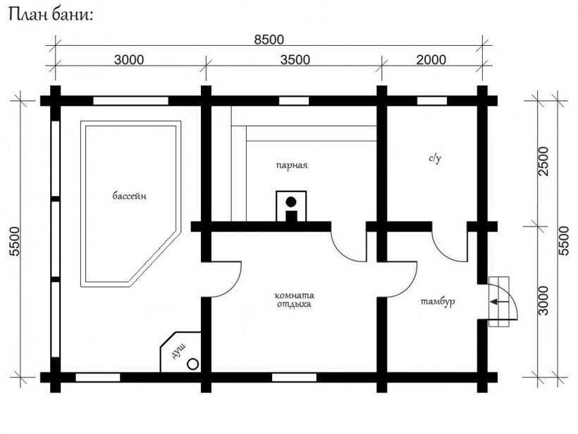
Составление планировки бани
Самый простой, но затратный вариант — выбрать один из множества готовых проектов. Можно также заказать чертеж, но это тоже будет стоить денег. Поэтому многие из умельцев, решившихся на строительство, создают чертежи бани своими руками, опираясь на советы, рекомендации и определенные нормы.







План будущей бани должен быть максимально точным. На нем необходимо прорисовать места расположения окон, дверей, печки и внутренних деревянных конструкций: лавок, полков, ступеней. Также следует определить площадь помещений и обозначить коммуникации.

На дачных участках обычно ставят бани простого типа, вмещающие в себя комнату отдыха, парилку и моечное помещение. Желательно, чтобы был предбанник, который не пропустит холод с улицы и послужит местом хранения дров.

Самый популярный и простой проект — строение 3х3 или 3х4. В этом случае получается компактная постройка с парной, объединенной с моечной и предбанником в роли комнаты отдыха. В такой бане одновременно могут париться два человека. Для постоянного использования она не подойдет, но как дачный вариант будет очень удобна.

В последнее время при возведении бань парную отделяют от моечной, выбирая планировку из трех помещений. В этом случае размеры строения должны быть 4х4 или 6х4.


Но для них лучше приобретать готовые проекты, которые рассчитаны на размеры сооружений 8х8 или 10х10. Эти варианты хороши для частого использования большими компаниями.

Обустройство кровли
Простым и бюджетным вариантом кровельной конструкции является односкатная крыша (детальнее: “Как сделать односкатную крышу на бане – варианты строительства”). В том случае, когда сауна из бруса имеет между противоположно расположенными стенами расстояние не более 4,5 метра, установку стропил разрешается выполнять без крепления дополнительных опор.


Чтобы установить стропила, делают пазы нужного размера. Их фиксируют с шагом около метра. Ноги стропил выводят наружу на 50 сантиметров, благодаря чему исключается попадание влаги с крыши на наружные стены.
Скат кровельной конструкции следует делать с определенным углом уклона. Он зависит от характеристик финишных материалов. Чтобы обеспечить уклон, переднюю стену следует приподнять на нужную высоту.


Сам процесс обустройства кровли выполняют стандартным способом:
- делают обрешетку;
- укладывают послойно влагозащиту, теплоизоляционный материал, пароизоляцию;
- монтируют финишную отделку.
Как построить баню своими руками
Для дачи самыми востребованными видами бани считаются финская сауна или русская баня. В обоих случаях основным элементом служит печь, которая, тоже может быть изготовлена своими руками. Баня от сауны отличается состоянием воздуха, в бане воздух влажный, в сауне – сухой, и его температурой: в бане от 40°С до 60°С, а в сауне от 70°С до 90°С. Конструктивные особенности сауны и бани заключаются в том, что в сауне мыться и париться нужно в отдельных помещениях, а в бане на даче все происходит в одном. Это необходимо учитывать при последующем планировании размеров при строительстве бани своими руками на даче.

Материал для строительства бани на даче, учитывая ее небольшие размеры, можно взять любой. Это может быть и кирпич и шлакоблоки. Но, хочу заметить, что более экономично и относительно легче будет использование дерева. Построить каркасную баню или баню из бруса своими руками сможет каждый, для этого надо желание, инструмент и руки.

Есть два способа как построить баню на даче своими руками:
- Выполнить пристройку к дому;
- Построить отдельное строение.
При строительстве отдельного помещения для бани на даче следует выбирать липу, осину, лиственницу.
Очень важно, привязывая баню к топографии участка исходить из наличия искусственного или естественного водоема. Но и особо расстраиваться от отсутствия водоема не стоит

Выход всегда есть, наши предки рядом с баней строили деревянные купели. Купель представляет собой большую круглую или овальную емкость. Материалом для изготовления служит дуб, лиственница.

В купели обязательно должна быть лестница, устройство перелива и слива воды.
Чем лучше обшить каркас
В русских банях часто ставят именно деревянный каркас.
Обрешетка берет на себя функции вентиляции. Зазоры не дадут влаге скапливаться на поверхности бруса, утеплителе. Вентиляционные зазоры обеспечивают хороший воздухообмен, где нет места для сырости, грибка.
Крепеж проводится вертикально. Для утепления стен бани допускается применять далеко не все виды теплоизоляции.
Запрещено использовать горючий дешевый пенопласт, пенополистирол.
Керамзит, эковата не подходят из-за того, что быстро напитываются влагой и теряют рабочие свойства.
Лучшие варианты утепления:
- базальтовая вата;
- каолиновая вата;
- вермикулит.
Фото: конструкция стены каркасной бани
Снаружи каркасную конструкцию можно отделывать:
- сайдингом;
- декоративной штукатуркой;
- обрезной доской;
- полубрусом;
- вагонкой;
- горбылем;
- плиткой;
- блок-хаусом;
- пластиковыми панелями.
Красиво смотрится обшивка блок-хаусом, имитирующим бревно.
Для внутренних работ универсальным потолочным, стеновым материалом считается вагонка. Ей удобно обшивать парилку, предбанник. Вагонка не нагревается, удобна в монтаже. Для отделки душа выбирают керамическую плитку или древесину влагостойких пород.
Запрещено красить, покрывать лаком отделку в парной, иначе при нагреве она начнет выделять токсичные вещества, которые несут вред для здоровья.
Допускается применять влагостойкий гипсокартон для обшивки стен в раздевалке. Для этих же целей подойдут плиты ОСБ, МДФ.
Подробнее порядок внутренней обшивки бани приведен в разделе ниже.
На цокольном этаже
Немного масштабнее будет строительство крупной сауны в подвале частного дома. Основной алгоритм работы остается тем же, однако появляются различные нюансы. Обшивку стен внутри сауны можно производить не только вагонкой, но и керамической плиткой. Могут быть оборудованы дополнительные помещения с отдельной маленькой комнатой отдыха, бассейном или даже бильярдным столом. Бассейн обкладывается специальной влагостойкой плиткой. Предбанник такой сауны может быть организован в небольшой пристройке, если не хватает подвального помещения.
В зависимости от того, какой материал был использован для укладки фундамента, необходимо правильно выбрать инструмент и крепеж. Для дерева прекрасно подойдут обычные саморезы, для кирпичного фундамента и блоков газобетона нужны более серьезные дюбеля различного вида. Для армированного бетона нужны уже анкерные болты.
В зависимости от размеров подвала можно построить как небольшую финскую сауну с электронагревателем, так и большую русскую баню с серьёзной парилкой и печью. Прокладка коммуникаций осуществляется совместно с домашней, что существенно экономит время и средства. При организации сауны ниже уровня цоколя экономится также место во дворе, которое можно использовать для иных хозяйственных построек.
Материалы для строительства бани
Для строительства бани из бруса понадобится целый набор различных материалов и приспособлений, а именно:
брус. Традиционно используется материал сечением 150х150 мм;
Брус 150х150
доски для пола. Лучший вариант – четырехметровая обрезная доска 15х5 см;
Доска пола, сосна
доски для потолка. Обычно используется вагонка шириной от 10 см и толщиной от 2 см;
Настильный потолок в бане кликните по картинке для увеличения)
материалы для отделки внутренних помещений. Прекрасно подойдет вагонка;
Вагонка для сауны и бани
пароизоляционный материал. Лучший вариант – современные пароизоляционные пленки;
Пароизоляционный материал
гидроизоляционный материал. По возможности используйте пенофол. Также подойдет полиэтиленовая пленка;
Гидроизоляция стен бани
утеплитель для потолка. Хорошо подходят минераловатные материалы;
Утеплитель для потолка
листовой асбест. С его помощью вы изолируете деревянные элементы постройки от высокой температуры. Листы изоляции должны быть закреплены на стены возле банной печи. Также в изоляции нуждаются деревянные элементы, установленные в непосредственной близости к дымоходу;
Асбест листовой
сыпучие материалы для обустройства фундамента. Набор стандартный: цемент, песок и щебенка;
Цемент, песок и щебенка
материал для финишной отделки кровли. Ориентируйтесь на свои предпочтения. Главное, чтобы крыша бани хорошо смотрелась в окружении крыш других построек на участке;
Соломенная крыша – удобно, необычно и дешево
Кровля бани
Для небольшой по размерам баньки подобная крыша из поликарбоната – идеальное решение
утеплитель для межвенцового пространства. Используйте джут. Также подходит пакля и мох.
Льноволокно для конопатки
Цемент покупайте непосредственно перед началом строительства.
Эксплуатация и правила посещения
Перед тем как отправиться в парную, необходимо подготовиться. Лучше воздержаться от приема спиртных напитков, которые могут плохо повлиять на сердце. Нужно снять верхнюю одежду, контактные линзы и украшения. Для нормального потоотделения перед процедурой принимают душ и насухо вытираются полотенцем.
Прежде чем зайти в помещение, необходимо надеть на голову войлочную шапочку, которая защитит от перегрева. Обязательная обувь – это шлепанцы, которые к тому же помогут не поскользнуться на мокром полу. Врачи советуют не одевать даже купальник или плавки, так как они впитывают пот. В результате жидкость, выделяемая организмом, быстро испаряется и перестает защищать тело от ожогов. Поэтому нижнее белье следует надевать только в общественные сауны, вход в которые без одежды запрещен.
В дальнейшем можно проводить в парилке до 20 минут, при этом важно следить за самочувствием. Если появился дискомфорт, необходимо сразу выйти из сауны
Те, кто практикуется регулярно, потеют быстрее. Если человек плохо переносит жару, нужно положить ему на спину смоченный в теплой воде веник. Взрослым посещать сауну можно не чаще, чем раз в три дня. Женщинам при беременности или менструациях заниматься подобными процедурами запрещено. Не следует ходить в парную людям с сердечными заболеваниями, гипертонией, астмой.
Когда посещение сауны подходит к концу, все стенки протирают насухо. Двери и печные заслонки оставляют открытыми на 2 часа, чтобы проветрить. При этом бак с водой закрывают крышкой. При регулярной эксплуатации рекомендовано производить уборку с моющими средствами каждые две недели. Для защиты от поражения грибком, древесину покрывают защитными составами. Если в помещении появился неприятный запах, его можно устранить, поставив в одном из углов бак с горячей водой. В него добавляют несколько капель эфирного масла. Когда вода начнет испаряться, она впитается в дерево, и тяжелый запах уйдет.

























































