Чертежи построек
Дом и баню, расположенные под одной крышей, можно построить двумя способами:
- проект изначально рассчитан на строительство комплекса;
- баня выступает в качестве пристройки к уже отстроенному дому.


Чаще встречается второй вариант: сначала возводят дом – дачный или для постоянного проживания, а уже после этого появляются мысли о бане. Можно воспользоваться готовыми проектами, а можно разработать его самостоятельно.
В настоящее время наблюдается снижение популярности классической планировки частных домов с отдельно стоящими постройками: баней, гаражом, беседкой, летней кухней. Все большее распространение приобретает современные проекы больших домов и коттеджей, под крышей которых объединены разные по назначению помещения: комнаты дома, гараж и баня. Поскольку сейчас на рынке стройматериалов огромный выбор – от кирпича до газобетона, реализовать эти проекты несложно.

У проектов коттеджей со встроенными баней и гаражом есть масса преимуществ.
Вариабельность:
- баню и гараж можно расположить в цокольном этаже (подвале), жилые комнаты – на первом;
- если дом одноэтажный, то, разумеется, все помещения будут размещены на одном этаже;
- можно сделать баню и дом под одной крышей, но с разными входами, соединив их внутри переходом, тогда в банный пристрой можно будет попадать, минуя вход в дом;




- если постройка планируется двухэтажной, вариантов еще больше – 2 этажа позволят как угодно планировать расположение комнат;
- есть еще множество так называемых «полутораэтажных» домов – с мансардой, в которой может быть мастерская, кабинет, зал с бильярдом или детская;
- размер гаража также может быть разным: на одну или две машины, 6х8 м, 6х6 м, также и габариты бани могут варьироваться – 6х8, 6х9 м, она может быть с комнатой отдыха или без нее, совместно с санузлом или отдельно от него.




Одно из основных достоинств объединенного объекта – удобство хозяев. Поставил машину в гараж – и ты уже в домашних тапочках. Также и баня – не нужно идти по морозу через весь участок и обратно. Хозяйке можно сделать маски на лицо и, не боясь, что ее увидят любопытные глаза, спокойно ходить по дому, потом опять вернуться в баню и закончить спа-процедуры.


Совмещенные вместе дом, гараж и баня экономят огромное количество места на территории дачи. На нем можно создать грядки, теплицы, оранжерею или такие интересные дизайнерские решения, как альпийская горка или рокарий. Больше всего места экономится, если домик небольшой, но двухэтажный. Тогда в гараже, например, можно установить бойлер для бани, а комнату отдыха в бане заменить кухней в доме. Можно разместить гриль на террасе возле бани. Банная печь может стать дополнительным источником тепла для всего дома. Кроме того, коммуникации намного проще смонтировать единожды, чем подводить их к каждой постройке отдельно.


Планировка дома буквой «Г» – тоже очень интересный вариант для объединенного проекта. Можно по максимуму использовать всю площадь, обыграв угловые помещения и обустроив их максимально удобно для хозяев. Оптимальная площадь для достаточно комфортного размещения дома с баней (и гаражом) – 10х12 м. В него можно «встроить» все – мансарду, террасу, летнюю кухню с навесом, камин, поставить мангал. Интересны также планировки домов 9 на 15, они являются одними из самых популярных среди владельцев загородных домов. Если места на участке не столь много или же вышеперечисленные варианты не столь бюджетны, есть еще дома 8х8. Это средний размер, который может быть не менее комфортным для семьи при условии удачной планировки. Самый бюджетный вариант – это дом 6х8, но он требует очень тщательного составления проекта, чтобы в нем не было тесно.



Строение домика эконом класса

Что представляет собой бюджетный вариант домика? Высота его обычно 3,2 метра, он утеплен по всему периметру, и крыша тоже. Внутри имеется две комнаты, между ними перегородка. Стены отделаны вагонкой. Снаружи обшивается профнастилом, блок-хаусом или имитацией бруса. Предусмотрены различные варианты планировки и сборки. Существуют разные варианты назначения каркасных домов – как садовые, для хранения инвентаря, как рыбацкие и т. д. Древесина, используемая для изготовления, обрабатывается специальными составами и пропитками, которые обеспечивают ей экологичность, прочность, устойчивость и надежность.
Преимущества использования мягких окон для террасы
Даже в хорошую погоду отдых на террасе может испортить ветер, насекомые и пыль. Устранить эти неприятные моменты помогут мягкие окна, материалом для изготовления которых служит ПВХ.
Для застекления веранд и террас могут использоваться так называемые мягкие окна, которые также известны под названием ПВХ шторы
Эти гибкие конструкции имеют немало преимуществ:
- защита и безопасность;
- отличные декоративные свойства, благодаря которым терраса выглядит эстетично;
- экономичность и длительный срок службы;
- хорошая пропускная способность (до 90% лучей), благодаря чему на террасу попадает достаточное количество естественного света, а также исключается эффект закрытого кокона;
- простая система монтажа.
Мягкие окна отличаются относительно низкой стоимостью и легкостью установки
Поливинилхлорид, который используется для изготовления мягких окон, обладает гибкостью и прочностью. В отличие от стеклянных конструкций, такие изделия невозможно разбить. Благодаря этому преимуществу террасу можно использовать в качестве детской игровой зоны. Стоимость мягких окон вдвое меньше, чем цена металлопластиковых конструкций.
Благодаря обширному предложению строительных компаний каждый владелец земельного участка может подобрать для себя оптимальный типовой проект с террасой, верандой или мансардой в любых комбинациях. Для более требовательных клиентов предусмотрена услуга по разработке, которая учитывает индивидуальные желания заказчика.
К положительным чертам поливинилхлоридной ткани можно отнести ее прочность на разрыв и гибкость
Тщательный подход к процессу проектирования позволяет застройщику получить жилье с любыми параметрами и конфигурацией, а использование таких практичных и удобных приспособлений, как гибкие окна из ПВХ, улучшает эксплуатационные условия террасы и веранды, повышая комфорт этих помещений.
С верандой и террасой
При выборе планировки дачного дома часто стараются найти проект с верандой или террасой. Подобная крытая площадка хороша не только для отдыха или трапез на открытом воздухе. В дождливый или жаркий день под навесом можно провернуть немало дел, которые из-за большого количества мусора в помещениях не сделаешь.
Отдых на даче не менее важен, чем работа. А что может быть приятнее, чем отдых на открытом воздухе
На общем фундаменте
Проекты дачных домов с верандой есть небольшой площади: самые маленькие имеют размеры 6*4 метра, причем веранда занимает 2 метра по длинной стороне, а собственно дом — 4*4 метра или 16 квадратных метров (с учетом толщины стен и того меньше).
Проект дачного дома 6*4 с верандой и санузлом
Представленный выше проект предусматривает зимнее использование дачи. Для сохранения тепла в домике, есть вход через тамбур. Вход через веранду может использоваться в летнее время. Хорош он и тем, что есть в нем санузел — небольшая душевая кабинка, с умывальников и унитазом. Если канализации на даче нет, можно рассмотреть вариант биотуалета.
Еще один вариант — одна комната, в которой отведено место под несколько кухонных шкафчиков и плиту, стоит небольшой обеденный стол и есть спальное место. Такая планировка идеальна для проживания одного человека. Неплохо в ней себя будут чувствовать двое. В данном варианте санузла нет, так что придется строить туалет отдельно.
Проект маленького дачного дома с верандой под общей крышей
Планировка дачного дома маленькой площади (до 40 метров) совсем проста: обычно это две комнаты, первая из которых используется как кухня и столовая одновременно. Чаще всего она является проходной. Вторая комната жилая. Более-менее комфортно разместить тут можно два спальных места. Так что проекты дачных домов с мансардой 6*4 метра рассчитаны на проживание 1-2 человек.
Проект дачного дома с санузлом и открытой террасой под односкатной крышей
Если бюджет строительства сильно ограничен, рассмотреть проекты дачных домов с односкатной крышей. Они непривычны для нашей станы, но стоимость кровли при небольшой площади намного меньше. Только надо выбрать правильный угол уклона кровли (с учетом величины снежного покрова).
Дачный дом с зарытой зимней верандой 8*8 метров, проект с планировкой
Дачный дом средних размеров представлен на фото выше. Проект интересен тем, что веранда тут изначально «зимняя», застекленная. Большинство обладателей открытых веранд приходят к необходимости ее застеклить, а для приятного времяпровождения на воздухе построить беседку. В данном проекте веранда является продолжением гостиной, но тут может быть установлена перегородка. В общем и целом, удобный и комфортный дом с традиционной планировкой, все комнаты отдельные, есть санузел, выгороженный коридор. Все условия для круглогодичного проживания.
На отдельном фундаменте
Обратите внимание, что приведенные выше проекты дачных домов с верандой имеют общий фундамент. Это надежно, так как даже при весеннем пучении почвы подвижек не будет
Но затраты на фундамент получаются значительные. Потому обоснован такой подход на сложных грунтах, склонных к пучению. В на нормальных грунтах можно можно делать веранду на отдельном, несвязной и облегченном (обычно — столбчатом или свайном) фундаменте. Один такой проект представлен ниже.
План дачного дома 4*8 с пристроенной верандой
Вообще, веранду можно пристроить к любой постройке. Ее можно закладывать на этапе проектирования, а можно пристроить после (как бывает очень часто).
Небольшой дачный дом 6*4,5 с верандой на отдельном фундаменте
Веранда может занимать полностью одну из сторон дома, может охватывать два или даже три его стороны. Но есть варианты и с небольшой открытой площадкой (как на фото выше). Фундамент в этом случае может быть отдельный, но большой экономии не будет. Например, в приведенном выше проекте «выиграли» лишь 1,1 метра «основного фундамента.
Одноэтажный дом 7*7,5 с пристроенной террасой
Мы настолько привыкли к комфорту, что даже на даче не желаем иметь «удобства во дворе». Для многих основным критерием выбора является наличие санузла. Даже необходимость оборудования индивидуальной канализации их не пугает. Не все проекты дачных домов маленькой площади могут похвастаться таким «излишеством», но в некоторых санузел (туалет и душ) присутствует.
Дома с верандой: особенности проектирования
В странах с теплым климатом веранда традиционно служит местом отдыха. В наших пенатах возможности их использования расширились; получили распространение несколько разновидностей веранд, которые можно классифицировать:
- По типу постройки. Веранды проектируются пристроенными и отдельностоящими.
- По типу фундамента. Может быть отдельным или являться частью капитального строения.
- По типу использования. Веранду можно полноценно использовать зимой, для чего ее придется застеклить и провести отопление.
К преимуществам проекта с верандой относят:
- Возможность увеличения жилой площади (после утепления стен) без значительного увеличения стоимости.
- Дополнительное помещение защищает дом от потерь тепла в холодное время года.

Фото дачного дома с мансардой и верандой – практичное и уютное место отдыхаИсточник pobudova.in.ua
Особенности проектирования веранды
Заказчики нередко решают строить дом с верандой под одной крышей, проект которого впоследствии корректируется
При проектировании обращают внимание на:
- Расположение. Веранду встраивают в здание или пристраивают к нему. Как и для террасы, для данной конструкции важен вид, открывающийся изнутри. Веранда, выходящая на улицу — не самый удачный вариант.
- Использование. Если дом имеет небольшую площадь, веранда может одновременно исполнять роль прихожей, столовой и места отдыха. В некоторых проектах здесь находится лестница на второй этаж.
- Удобство. Веранда должна примыкать к стене, в которой находится входная дверь, или соединяться с кухней.
- Остекление. Может быть постоянным или сезонным. Оконные элементы чаще всего размещаются по всему периметру. Для панорамного остекления используют обычные оконные блоки и стеклопакеты (как с пластмассовым, так и с деревянным профилем). Веранда с большой площадью остекления обеспечивает отличную внутреннюю инсоляцию (поступление солнечного света). Для защиты от солнечных лучей используют шторы, жалюзи, ставни и экраны.

Панорамное остекление позволяет наслаждаться солнечным денькомИсточник houzz.jp
Варианты обустройства
- На рынке востребованы различные проекты домов с верандой. Популярны как веранды, прилегающие к фасаду, так и опоясывающие здание. Форма может быть прямоугольной, квадратной, с закругленными углами.
- Если проект дома с верандой предусматривает балкон на втором этаже, лучше всего смотрится веранда, повторяющая его форму.

Камин создает ощущение традиции и надежностиИсточник houzz.com
Материалы для строительства веранды
Выбирая материал для веранды, основываются на ее роли: если пристройку рассчитывают использовать круглогодично, ее придется не только остеклить, но и утеплить, и продумать отопление. Материал веранды должен гармонировать с домом; если он деревянный, то и для веранды используют древесину. Встречаются:
- Веранда из кирпича (камня, пеноблока). Самый долговечный вариант. Для тяжелой пристройки необходим прочный фундамент, такой же, как под домом. Это защитит веранду от разрушения.
- Веранда из дерева (из бруса или бревна). Обладает особенным шармом, присущим натуральной древесине, обеспечивает прекрасный микроклимат. Ее украшают резные панели и элементы.
О переделке веранды на видео:
Еще проекты дачных домов с мансардой, верандой и террасой

Пристроенная веранда из поликарбонадаИсточник marketreview.info

Нестандартное решение — гидромассажная ваннаИсточник houzz.com

Классическая «мужская» верандаИсточник bidinvest.ru

Терраса в вечернем освещенииИсточник houzz.com

Элегантный отдых в окружении природыИсточник houzz.com

Функциональная комбинация построекИсточник stolica-srub.ru

Зимний сад создает ощущение лета в любую поруИсточник yandex.ru

Терраса с цветами не может выглядеть скучнойИсточник best.yapapka.com

Таинственная и манящая светодиодная подсветкаИсточник pinterest.co.uk

Вдохновляющее место — уютная мебель и панорамный видИсточник in.pinterest.com

Стильная дачная терраса играет роль открытой гостинойИсточник vivbo.ru
Проекты домов с верандой и террасой — не роскошь, а функциональный способ организовать гармоничный отдых на лоне природы, не жертвуя комфортом современной жизни. Обе пристройки стоят забот, связанных с их возведением и оформлением. Построенная с учетом строительных норм, терраса (или веранда) принесет немало позитивных эмоций как обитателям загородного лома, так и их гостям.
Почему мы предлагаем одноэтажные дома с террасой
Частный дом становится тихой пристанью или местом для творчества и развития бизнеса, уголком для релакса и местом веселого время препровождения. И при этом никто из соседей не станет стучать по батареям, или обрывать звонок с претензиями о шуме. Но почему именно одноэтажный с террасой?

Терраса — уголок для релакса
Такие дома — подходят для загородного отдыха, молодежи, людей старшего возраста. Основным девизом становится единение с природой. Дома замечательно вписываются в любой ландшафт. Их проще возводить на проблемных грунтах: с высоким стоянием грунтовых вод, песчаниках. Не нужно сооружать сложные фундаменты. Обилие света в помещениях гарантировано. Что еще дарит такая входная зона? Возможность организовать:

Отличный вариант для летней кухни
- Летнюю кухню.
- Столовую на свежем воздухе.
- Место для мангала.
- Детскую площадку.
- Сушку белья.
На небольших участках можно без беседки и сэкономить финансы на ее строительстве. Открытая площадка поднимает статус жилья. Она выглядит стильно, чем традиционные веранды.

Открытая площадка выглядит стильно

Двухэтажный дом с гаражом (+180 Фото). Проекты и планировки, ТОП-9 преимуществ
Строительство каркасного дома своими руками
Фундамент
Если он был залит прошлыми хозяевами, то повезло и остается лишь скорректировать необходимый периметр по столбчатой технологии. Прежний фундамент нужно защитить, для этого нужно вокруг него вырыть траншею в глубину на полметра и нанести на стенки фундамента гидроизоляционный состав, а затем обложить его гидростеклоизолом.
Если же фундамент закладывается с нуля, то необходимо участок для строительства очистить от плодородного грунта, переместив его на город, чтобы использовать рациональным образом. Вместо земли нужно засыпать песок, после чего можно копать ров, заливая его необходимым материалом. Застывший фундамент нужно гидроизолировать и покрыть гидростеклоизолом. Для цокольного перекрытия в фундаменте делаются продухи для анкеров со шпильками (9-12 штук). Цоколь нужно делать из кирпича, высота его составляет 1 метр.
После того, как этап с фундаментом будет пройден, необходимо заняться сборкой цокольного перекрытия, лучшего всего это делать по схеме «платформа», что выполняется из брусьев или деревянных балок.
Стены и их вывод
Стены собираются на поверхности готового пола, модули нужно фиксировать к нижней части брусковой обвязки. Каркасные стены достаточно габаритны, поэтому лучше не устанавливать их самостоятельно, а попросить помощи товарищей, чтобы сделать это коллективно. Общее время монтажа всех стен домика – 1 неделя. Здесь главное правильно соединить угловые зоны с поперечными обвязками и надежно их зафиксировать шипами или скобами. После того, как стены были поставлены, необходимо заняться укреплением каркаса с помощью раскосов и подкосов, что играет не малую роль.
Крыша
Конструкция крыши каркасного дома заключается в стропильной системе и кровельной части, в состав второй включают:
- черновое покрытие;
- слои паро- и гидроизоляции;
- декоративное покрытие.
Стропильную систему надо собирать по тщательно разработанному проекту, высота чердака – 1,5 метра. Оптимальная форма кровли – 4-ох скатная, время установки крыши – 5-7 дней.
Обшивка стен
Каркас дома нужно обшить дюймовой доской. Для того, чтобы придать конструкции дополнительной надежности часть обшивки крепиться под углом. Более дорогой вариант – использование вместо досок цементно-стружечных плит. Обшивочные работы следует начинать с фасада, продолжать боковыми стенами и завершать задней частью дома.
После этого следуют завершающие работы по экстерьеру дачного домика, которые включают в себя:
- кровлю;
- вывод труб и дымоходов;
- монтаж конькового аэратора;
- облицовка и декор стен;
- фиксация облицовочных панелей.
Если поставить перед собой цель и стремительно к ней идти, то уже через 3-4 недели можно будет любоваться своей готовой работой в виде собственного дачного домика, построенного своими руками. Теперь же можно заняться внутренними работами и наполнением интерьера на свой вкус. Здесь можно воплотить все свои идеи и желание, наполнив домик оригинальной мебелью, стильными декоративными вещицами и прочими вещами, что покажутся необходимыми.
Проекты жилых домов с баней под одной крышей
Видео описание
О стоимости дома бани 7 на 7 из профилированного бруса, и из чего она складывается – смотрите в следующем видеоролике:
И еще несколько проектов на фото

Дом баня 7х8,2 – первый этажИсточник urallesstroy.ru

Дом баня 7х8,2 – второй этажИсточник my-banya.ru
Полноценный двухэтажный загородный дом из оцилиндрованного бревна с баней. Общая полезная площадь 115 кв.м., которой с избытком хватит для сезонного или постоянного проживания целой семьи.

Дом 6 на 6 с мансардой и пристроенной банейИсточник skalice.ru
Такой проект вполне может заинтересовать владельцев обычных «летних» гостевых домиков. Относительно небольшая модернизация позволит с минимальными вложениями дополнить его баней и превратить в полноценное место для отдыха.
Планировка дома не предусматривает несущих внутренних стен, поэтому ограничена только фантазией дизайнера.

Дом с баней 6 на 5 – планировка первого этажаИсточник makemone.ru

Дом с баней 6 на 5 – планировка второго этажаИсточник postroitbanju.ru
Проект компактного дома с баней под одной крышей. Несмотря на скромные размеры – 6 на 5 метров, в таком доме будет комфортно остановиться семье состоящей из 3-4 человек. На мансардном этаже предусмотрены две спальные комнаты, одну из которых можно обустроить под детскую.
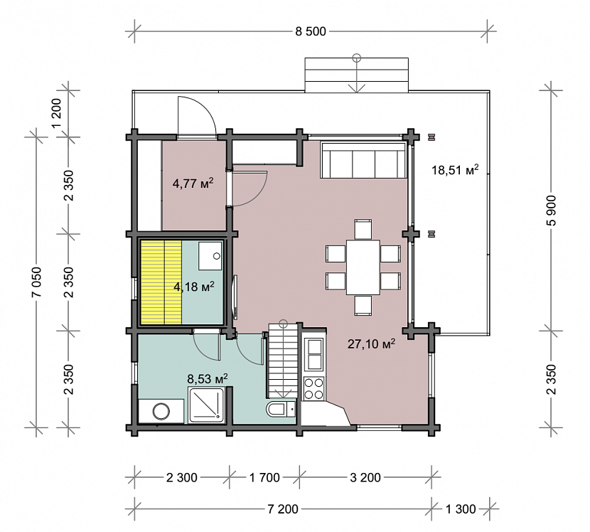
А вот как может меняться планировка первого этажа дома с баней размером 7050х7200 с пристроенной террасой:
Вариант А:

План предполагает размещение бани и помывочной в углу домаИсточник dornhausbau.de
Вариант Б:

Немногим отличается от первого варианта – в основном планировкой гостиной и кухни, плюс, стол на террасеИсточник tumugou.com
Вариант В:

Этот же проект, но на месте бани расположена спальняИсточник uteplovdome.ru
Видео описание
Сколько стоит баня из кедра? Чем канадская рубка отличается от обычной?
И примеры архитектурных проектов на фото:

Двухэтажный дом с баней из оцилиндрованного бревнаИсточник dobrostroy25.ru

Проект дома-бани с мансардой и верандойИсточник pinterest.co.uk

Проект гаража с баней под одной крышей, и мансардным этажом в домеИсточник makemone.ru

Дом с баней под одной крышей и балконом на мансардном этажеИсточник oknakomforta.ru

Одноэтажный гостевой домик с банейИсточник pt.decoratex.biz

Гостевой дом с баней под одной крышей и верандойИсточник banyabest.ru
Заключение
Недостатков дома с баней под одной крышей практически столько же, сколько и преимуществ. Но если положительные стороны для вас значительно существеннее, то остается только воплотить свою идею в жизнь. Любая строительная компания, предоставит на выбор множество проектов. Если вдруг среди них не найдется полностью подходящего, то вам предложат внести необходимые правки или разработать индивидуальный проект. Так что за вами только выбор грамотной строительной компании, специалисты которой построят качественный дом с баней под одной крышей под ключ для комфортного отдыха.
Баня с беседкой под одной крышей: варианты исполнения
По типу постройки прибанные беседки могут быть:
1. Открытые.
2. Закрытые.
Первые – более легкие сооружения, имеющие совмещенный с банным пол и единую кровлю. Крыша ставится на опоры, которые при желании можно объединить бордюрами или соединить перилами. Таким образом удастся обозначить границы территории. Это наиболее выгодный в финансовом аспекте проект, поскольку в нем не предусматривается возведение капитальных перегородок и стен.
Строительство единого комплекса наиболее выгодно
Не будет здесь и остеклительных работ. Открытая беседка – это просто площадка под крышей. От ветра, в такой пристройке, не спастись, зато дождь отдыху помехой не будет. Глядя на вышесказанное становится понятно, что открытые конструкции – сезонная прерогатива.
Баня с открытой беседкой
Вторые – можно с уверенностью отнести к категории капитальных строений, так как они имеют настоящие стены и большие панорамные окна. Баня, помещенная с такой беседкой под одной крышей, будет выглядеть монолитным строением.
Баня с остекленной беседкой
Если же такую пристройку еще и оборудовать камином или мангалом, то, даже не будучи особо утепленной, она получит достаточно комфортную атмосферу. В ней будет приятно находиться даже в лютые морозы, не говоря уже о весенне-зимнем периоде.
Баня с уютной беседкой и камином
Беседка закрытого типа считается полноправной комнатой в планировке банного домика. Можно составить проект застройки таким образом, что пара стен веранды окажутся съемными или раздвижными, что позволит активно ее эксплуатировать и в летний период, легким движением руки преобразовывая ее в практически открытую конструкцию. Весьма практичный и универсальный вариант, о котором стоит задуматься всерьез.
Практичный вариант – беседка с съемными стеклами
Есть еще один компромиссный способ возведения бани с беседкой под одной крышей. В нем пристройка делается по полуоткрытому типу. В этом случае конструкции добавляют лишь две капитальные стены, преимущественно с тех сторон, откуда веют господствующие в этой местности ветра. Такой подход позволит чувствовать себя в беседке более комфортно, потому что сквознякам в ней не будет места. Можно сделать оригинальный шаг и возвести одну из стен вместе с встроенным в нее камином.
Баня с беседкой полуоткрытого типа
Полы в пристроенной веранде правильно собирать на лагах и делать их из натурального дерева, чтобы на ней всегда было тепло и сухо. Укладывая доски настила, нужно оставлять между ними набольшие зазоры. Задача этих зазоров – обеспечить в беседке вентиляцию и позволить беспрепятственно стечь на землю влаге с разгоряченных тел. Естественно, используемая доска должна быть идеально обработана и не ранить ноги занозами и острыми гранями.
Поле беседке рекомендуется делать из натурального дерева
Древесина лиственницы устойчива к гниению
Есть у лиственницы и не менее серьезный недостаток. Дело в том, что это дерево считается «холодным». В качестве альтернативы при строительстве можно использовать в качестве напольного настила террасную доску, сделанную из древесно-полимерного композита.
Террасная доска отличная альтернатива лиственнице
Практичным решением будет использование в обустройстве беседки легких алюминиевых профилей. При желании скрыться от любопытных глаз вместо стекол в них вставляют непрозрачный, однако легко пропускающий дневной свет, цветной сотовый поликарбонат.
Сотовый поликарбонат поможет скрыться от посторонних глаз
Защиту от надоедливо жужжащей мошкары обеспечат москитные сетки. Да, все эти приемы удорожат строительство, но расширят возможности эксплуатации беседки. Наверное, не стоит на них экономить.

























































