Устройство ленточного фундамента своими руками
Устройство ленточного фундамента своими руками начинают с разбивки его осей, которая выполняется при помощи теодолита, после этого под ленточный фундамент выкапывается траншея. Для этого раньше использовали ручной труд. Сегодня же парк строительной техники отличается многообразием. Например, существуют мини-экскаваторы, которые быстро и легко справятся с этой задачей.
Начинаются работы с заполнения траншеи песком, он плотно утрамбовывается, сверху насыпается щебень или гравий. Каждый слой делается толщиной около двадцати сантиметров. На верхний слой выкладывается «под бетонка», то есть, цементный раствор слоем десять сантиметров. После этого в зависимости от погоды фундамент выдерживается на протяжении десяти дней.
Затем приступают к следующему этапу — укладке арматуры вдоль и поперек. Прутья связываются между собой вязальной проволокой
Важно при выборе арматуры обратить внимание, чтобы она имела антикоррозийное покрытие. В зависимости от тяжести возводимых перекрытий и стен приходится иногда сооружать армированный каркас
Следующий этап — установка опалубки для фундамента и бетонирование. Для опалубки можно использовать разные материалы — фанеру, доски, шифер, металлическую опалубку.
Заключительный этап устройства ленточного фундамента — заливка в опалубку бетонной смеси. По окончании данного процесса бетон нужно в нескольких местах проткнуть щупом, чтобы выпустить воздух и постучать снаружи деревянным молотком. Опалубка снимается через три дня, а фундамент выдерживается в течение трех недель, после чего приступают к сооружению здания.
Основные этапы расчета
Пошаговое возведение фундамента
Перед работой необходимо убрать весь мусор с участка, закупить и привезти все необходимые материалы на место стройки.
Разметка участка
Наносим на грунт внешнюю и внутреннюю границы будущего основания. Для этого пригодятся колья, прутья арматуры и веревки.
Далее необходимо выбрать самую низкую точку поверхности грунта и отсчитать от нее глубину траншеи. Чтобы вырыть котлован, можно применить собственные силы или же воспользоваться услугами экскаватора.
Гидроизоляция
В готовую траншею необходимо уложить подушку из песка и гравия. Слои должны быть высотой 12– 15 см. Каждый из них заливают водой для уплотнения.
Далее, на подушку укладывают гидроизоляционную пленку или геотекстиль, который способен увеличить прочность фундамента, благодаря своим армирующим свойствам.
Установка опалубки
Опалубку возводят при помощи досок толщиной 4– 5 см, листов ОСБ, шифера. Необходимо всегда держать под контролем вертикальность. Каркас возводят на высоту 30 см над землей. В опалубке прокладывают трубы из асбестобетона для того, чтобы завести в строение канализацию и водопровод.
Опалубку можно снять спустя неделю и провести обратную засыпку из песка или глины.
Укладка арматуры
Применяются арматурные стержни с сечением 10– 12 мм. Их связывают между собой при помощи вязальной проволоки. Ячейки должны получиться в виде квадратов со сторонами 30– 40 см. Необходимо отступать от краев траншеи на 5 см.
Вентиляция и коммуникации
Следующим действием является обеспечение вентиляции в фундаменте, а также нужно сделать отверстия для коммуникаций. Для этого применяют асбоцементную или пластиковую трубу, привязывая ее к арматуре. Трубы необходимо заполнить песком, чтобы они не залились бетоном.
Заливка бетоном
Заполняется бетоном опалубка поэтапно. Заливая слой на высоту 20 см, необходимо утрамбовывать его деревянной трамбовкой, чтобы избежать пустот в фундаменте.
Утепление ленточного основания
Утеплить основание легко. Самым лучшим методом считается прокладка по наружным сторонам фундамента вспененного пенополистирола. Толщина должна равняться 8– 10 см. Крепят его при помощи пластмассовых дюбелей. Подробнее про утепление фундамента рассказали в статье:
Завершение работы
После заливки бетона, его закрывают пленкой для того, чтобы он не высыхал и в течении 3 недель набирал прочность. При возведении фундамента в зимний период необходимо применять противоморозные смеси, иначе при минусовой температуре бетон не будет набирать прочность, ведь жидкость в растворе превращается в лед. В летний сезон иногда требуется поливать бетон водой, чтобы пре высоком испарении влаги, бетон не превращался в пыль, тем самым, прекращая набирать прочность. Если же в течении 2– 3 лет появились трещины, то прежде чем начать ремонт ленточного фундамента, необходимо понять причину, по которой это произошло и учесть свои ошибки при его замене. Зная эту информацию, можно с легкостью возвести ленточный фундамент и быть уверенным в его качестве, ведь он сооружен вашими руками.
Список необходимых инструментов и материалов
Чтобы изготовить ленточный фундамент для дома своими руками, понадобится не только бетономешалка, но и дополнительный инструментарий:
- элементы для разметки и контроля уровня;
- лопата;
- ведра для замера объема готового бетона;
- молоток, гвозди и ножовка;
- доска, брус и фанера;
- арматура и болгарка для ее резки;
- вязальная проволока;
- щебень, песок, вода, цемент и добавки для бетона;
- вибратор для уплотнения конструкций из бетона;
- все средства защиты для подобных работ.
Чтобы не ломать голову как построить фундамент для дома, то лучше обратиться в строительную компанию, она предоставит экскаватор, бетонный узел, где можно заказать готовый бетон и своих специалистов, которые знают объем работы.
Технология строительства
Технология возведения монолитной ленточной конструкции с двухуровневым армированием бетона считается максимально надежной. Выполнение следующих операций обеспечит опорному основанию высокий эксплуатационный ресурс:
- Натурные оси выносятся в пятно застройки.
- Роется котлован или траншея под ленточный фундамент.
- Обустраивается дренаж.
- Укладывается песчано-гравийная подушка.
- Формируется гидроизоляционный слой.
- Устанавливается опалубка и арматурные каркасы.
- Заливается бетон и уплотняется вибратором.
- После демонтажа опалубки идет устройство гидроизоляции.
- Технология предусматривает утепление отмостки и наружных граней ленточного фундамента.

На заключительном этапе пазухи засыпаются нерудным материалом. Затем идет перекрытие ленточного фундамента по балкам. Обычно для этих целей применяют железобетонные плиты. Если дальнейшее устройство здания переносится на следующий сезон, по технологии бетонная опора нуждается в консервации.
По технологии возведение даже незаглубленного ленточного фундамента требует снятия плодородного слоя. Чтобы перенести чертеж в натуральную величину применяют шнуры или струны, которые натягиваются по обноскам, расположенным за пределами котлована или траншеи. Для каждой несущей стены требуется две обноски, дополнительно они устанавливаются под элементы со сложной конфигурацией (веранда, лестница, эркер и прочее).
Вести разметку ленточного фундамента следует при соблюдении следующих отступов:
 
- от ограждений с соседями – 3м;
- от улиц – 5 м, дорог переулков – 3 м;
- между собственным и соседским строением минимальное расстояние составляет 6 м.
Монолитный ленточный фундамент
Зачастую монолитный фундамент используется для конструкций из бревен и легких домов. Он хорошо подходит для почвы, которая отличается высокой усадкой, размытых и мягких грунтов. Этот тип фундамента можно устанавливать под здания любой формы. Монолитный ленточный фундамент представляет собой бетонную полосу, расположенную по периметру дома. Он характеризуется долговечностью, прочностью, не требует использования для укладки специальной техники. Для устройства монолитного фундамента используют бетонный, пенобетонный и железобетонный материал. Перед кладкой фундамента вначале проводится анализ почвы, и роются соответствующие траншеи, а затем на дно котлована закладывается металлическая или деревянная арматурная опалубка, в которую заливается бетон. После усадки монолитный фундамент не должен возвышаться больше тридцати сантиметров над уровнем земли.
Другие особенности
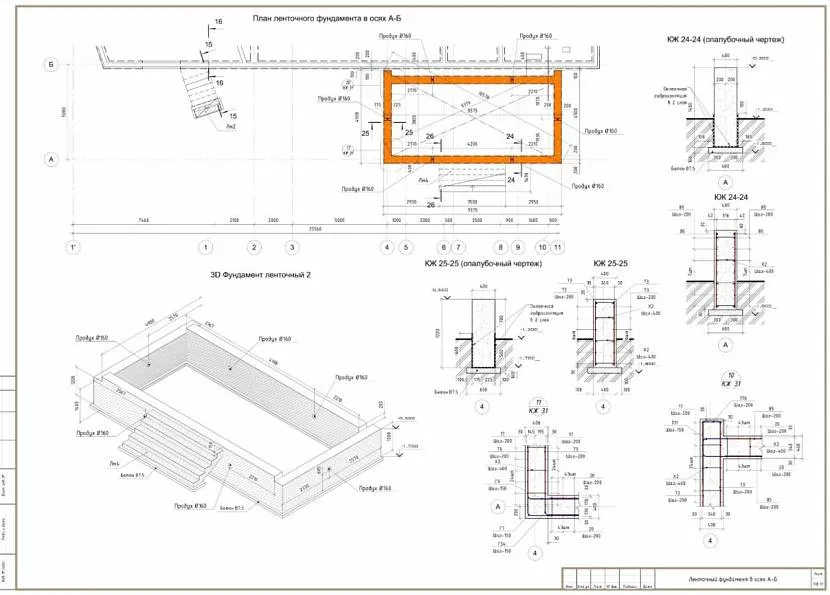
Кроме нюансов, касающихся глубины залегания, вида и ширины подошвы, а также возвышения на плане фундамента ленточного типа, чертёж должен составляться с соблюдением ещё целого ряда правил. К ним относят масштабирование и фрагментное изображение отдельных узлов и элементов.
Масштабирование
Нормативные акты составления чертежа фундамента устанавливаются следующими документами:
- ГОСТ Р 21.1101-2013.
- ГОСТ 2.302-68.
- ГОСТ 21.501-2018.
Применимые к масштабам требования раскрывают основные моменты, затрагивающие изображения всей конструкции и её отдельных элементов. С подробным соотношением можно ознакомиться в приведённой далее таблице.
| Применимость | Значение, масштаб | 
| План фасада, фундамента, кровли, подвала, этажей и перекрытий | 1 к 100 или 1 к 200 | 
| Отдельный план секций, фрагмент фундамента, подвала, фасада | 1 к 50 или 1 к 100 | 
| Подробное схематичное изображение узла, изделия | 1 к 2, 1 к 5, 1 к 10 или 1 к 20 | 
Изображение сложных участков
Любое капитальное сооружение требует создания сложных сборных или монолитных оснований. В большинстве случаев полный план ленточного фундамента не умещается на одном чертеже. Кроме того, наличие вышеупомянутых сложных узлов требует их подробной разработки и дополнительной расшифровки.

 Ленточный фундамент в разрезеИсточник ustanovkasvai.ru
Самым простым способом обозначения является нанесение дополнительных осевых линий и сечения будущих строений. Также рекомендуется начертить сложные элементы на отдельном листе с подходящим, регламентированным масштабом. Причем желательно расположить их в пространстве с максимальной близостью к остальной конструкции.
Виды ленточных фундаментов и их использование
При строительстве ленточного фундамента могут использоваться несколько видов материалов, соответственно меняется название, есть отличия и в технологии. Что остается неизменным: рытье котлована и подготовка основания. Остальные этапы могут меняться. Коротко типы можно описать так:
- При использовании бетонного раствора и арматуры ленточный фундамент называют монолитным. Все работы происходят на строительной площадке. Сначала в вырытом котловане устанавливают опалубку — сборную конструкцию, которая придает форму бетонному раствору. Затем укладывают и связывают арматуру, после заливают бетонным раствором. При соблюдении технологии срок эксплуатации монолитного ленточного фундамента порядка 100-150 лет. Потому их имеет смысл использовать под сооружения из материалов, срок эксплуатации которых сопоставим с названным промежутком. Времени на все работы уходит много: на сборку опалубки, вязку арматуры, заливку и обработку раствора. Это все занимает недели.
 Если бетон заливается прямо на стройплощадке, получаем монолитный фундамент
- Сборный бетонный ленточный фундамент. Он состоит из отливаемых на заводе железобетонных армированных блоков. Они есть двух типов. Трапециевидные (называют еще подушкой) укладываются вниз, на них в один или несколько рядов устанавливаются стеновые фундаментные блоки (ФБС). Между собой они связываются арматурой, промежутки заливаются раствором. Срок службы фундамента из ФБС — порядка 50-70 лет, что сопоставимо со сроком службы каркасных домов. Работы при таком варианте намного меньше (несколько дней), но в большинстве случаев требуется аренда подъемного оборудования — лебедки для небольших строений или крана для более серьезных проектов. При этом нужно помнить, что прочность сборного фундамента на 20-30% ниже, чем у монолитного, из-за чего их не применяют на пучнистых или просадочных грунтах.
Чтобы быстрее шло строительство, при низком уровне подземных вод ленту собирают из готовых бетонных блоков
- Бутовый ленточный фундамент. Его строят из природного бутового камня. Иногда с использованием бетона, иногда без. При использовании бетона говорят о буто-бетонном фундаменте. Возведение требует большого опыта и высокой квалификации рабочих: камни должны быть уложены правильно, ведь они связываются только раствором. Использоваться такие фундаменты могут на стабильных непучнистых основаниях, в противном случае велика вероятность образования трещин или полного разрушения. Срок службы — как у сборных 50-70 лет.
 Бутовые фундаменты требуют высокого мастерства: камень нужно укладывать так, чтобы дом потом не портескался
- Кирпичный ленточный фундамент. Это частный вариант сборного фундамента. В этом случае чаще всего сначала заливают монолитную ленту с армопоясом по периметру фундамента, а сверху складывают стенку из кирпича. Иногда вместо кирпича используют строительные блоки. Стоит усесть, что и кирпич и строительные блоки гигрокоспичны и имеют не самый большой срок службы. По надежности — это самые проблемные и маложивущие фундаменты: срок их службы 30-50 лет, и это при правильном проектировании и исполнении.
Кирпичный фундамент сегодня не очень популярен: высокая трудоемкость и малый срок службы — вот основные причины
Чаще всего встречается монолитный ленточный фундамент. Хоть имеет он наибольшую трудоемкость, является единой конструкцией, которая способна перераспределять нагрузки. Потому часто используется на пучнистых грунтах. Если почвы сухие и надежные, можно ставить железобетонный сборный фундамент
Он часто имеет большую стоимость, но на возведение требуется меньше времени, что иногда тоже важно
Бутовые и бутобетонные фундаменты применяются в основном в регионах с достаточным количеством подходящего материала — в горных или близких к ним. Там, во-первых, основания для них идеальны, во-вторых, имеются и неплохие специалисты, способные грамотно выполнить работы. В равнинных районах доставка камня нерентабельна, да еще и мастера не найдешь.
Кирпичный фундамент в последнее время делают редко. Несмотря на общедоступность материала, он имеет далеко не самые лучшие характеристики и требует значительных затрат на организацию гидроизоляции, а также утепления. В результате стоимость его намного возрастает. При малом сроке эксплуатации это совершенно невыгодно даже на устойчивых грунтах.
Расчёт площади подошвы ленточного фундамента
Расчёт площади основания здания должен быть таким, чтобы под действием суммарной нагрузки дом не продавливал землю и не выталкивался наверх промёрзшей вспученной почвой. В нормативной документации можно найти формулу, как рассчитать площадь основания дома.
S>kF/k(c)R, где
S – площадь подошвы фундамента;
k – коэффициент надёжности равный 1,2, то есть закладывается запас площади в 20%;
F – общая нагрузка на грунт;
k(c) – коэффициент состава грунта (пластичная глина – 1, песок – 1,4 и т.д.);
R – расчётное сопротивление грунта (берётся из таблицы СНиП).
Все элементы формулы имеют справочный характер, кроме суммарной нагрузки F. Суммарную нагрузку рассчитывают, используя справочные таблицы нормативной документации. Для этого применяют показатели среднего удельного веса конструкций кровли, стен и перекрытий.
Также в расчёт принимают такие данные, как снеговая нагрузка. В средней полосе России это составляет – 100 кг/м2, на севере страны – 190 кг/м2, на юге – 50 кг/м2.
Видео «Самостоятельный расчёт опорной площади фундамента»:
Как сделать проект самостоятельно
Раньше чертёж фундамента разрабатывался и чертился вручную, сейчас всё это можно сделать с помощью специальных онлайн-программ. Их использование позволяет справиться с задачей даже человеку, не имеющему опыта и навыков в строительстве. В целом, работа с ними гарантированно даёт такие возможности:
- Экономия денежных средств на оплате услуг специалистов.
- Возможность лично проанализировать тип фундамента, необходимое количество материала и рассчитать его примерную стоимость.
- Бесплатная программа поможет самостоятельно разработать план фундамента, чертёж. Исходя из полученных сведений, внести конструктивные изменения (при необходимости) в последующее строительство.
Необходимо учитывать, что для полноценной достоверности полученной информации понадобится ввести максимально точные технические данные. К ним относятся:
- Результаты геологического исследования местности (глубина залегания грунтовых вод, тип почвы, её подвижность).
- Материал стен, тип кровли и прочие нагрузки.
- «Снежность» региона (среднее количество снега, который будет скапливаться на крыше).
«Фундамент»
Предназначена для выполнения расчёта и разработки плана ленточного фундамента. В неё реализованы основные требования нормативов:
- СП 22.13330.2016.
- СП 24.13330.2011.
- СП 50-101-2004.
- СП 50-102-2003.
- СП 26.13330.2012.
- СП 25.13330.2012.
Своеобразный онлайн-калькулятор, который применяет вышеуказанные Своды Правил в отношении введённых параметров. Интерфейс прост и разработан таким образом, что понятен даже без наличия специализированных знаний.

 Интерфейс программы для онлайн расчёта ленточного фундаментаИсточник planvsem.ru
«Base»
Онлайн-платформа для самостоятельно расчёта ленточного и столбчатого фундамента, а также ростверка для него. Доступ к интерфейсу бесплатный, с возможностью выбора типа стен, эксплуатационных нагрузок и других, не менее значимых элементов.
Список возможностей обширен и может пополняться собственными элементами. Широкий ассортимент позволяет выполнить расчёт и создать чертёж даже для самого конструктивно – сложного основания. Софт прост и интуитивно понятен не только профессионалам, но и новичкам.

 Программа для расчёта фундаментных плит и составления чертежа их расположенияИсточник saucyintruder.org
«Плита»
Программа работает в онлайн-режиме, помогает просчитать ленточный фундамент из плит. Чертёж и количество материала выводится на экран. Расчёт осуществляется с учётом типа почвы, веса строения и других параметров возводимой конструкции. Подсчитывается количество фундаментных плит и их правильная раскладка на местности.

 Максимально полный чертёж для строительства коттеджаИсточник saucyintruder.org
Вычисление нагрузок
Перед тем как рассчитать фундамент под дом, потребуется рассчитать нагрузку. Удобнее выполнять сбор нагрузок на фундамент в табличной форме. Все нагружения делятся на два типа: постоянные и временные. Последние являются временными условно, поскольку включают в себя мебель, оборудование и т.п. Постоянные состоят из массы конструкций здания.
Расчет нагрузки на фундамент можно выполнить полностью самостоятельно с учетом точных характеристик используемых материалов. Но вполне достаточно будет воспользоваться таблицей ниже. В ней приведены средние значения, но нагрузка на фундамент от этого изменится некритично.
| Конструкция | Величина нагрузки, кг/м2 | Коэффициент надежности | 
|---|---|---|
| Стена из кирпича 510 мм | 920 | 1,3 | 
| Стена из кирпича 640 мм | 1150 | |
| Брусовая стена 150 мм | 120 | 1,1 | 
| Брусовая стена 200 мм | 160 | |
| Стена по деревянному каркасу с утеплением 150 мм | 30-50 | |
| Перегородки из гипсокартона 80 мм | 30 | |
| Перекрытие из плит ПК с цементной стяжкой | 625 | 1,2 | 
| Перекрытие деревянное с утеплением | 150 | 1,1 | 
| Фундамент из железобетона в кг/м3 (!) | 2500 | 1,2 — для сборного 1,3 — для монолитного | 
| Крыша с учетом типа покрытия | ||
| Металл | 60 | 1,05 | 
| Керамика | 120 | 1,2 | 
| Битумные материалы | 70 | 1,1 | 
| Временные нагрузки | ||
| От людей и мебели | 150 | 1,2 | 
| Снежный покров | По СП “Нагрузки и воздействия” табл. 10.1 с учетом расположения участка строительства | 1,4 | 
Нагрузку на фундамент каждого типа, чтобы верно посчитать сечение, умножают на коэффициент надежности.
Армирование мелкозаглубленного монолитного фундамента для дома
 Арматурный каркас для армирования мелко заглубленного фундамента частного дома обычно состоит из верхней и нижней арматурных сеток и вертикальных связей между ними.
Арматурный каркас для армирования мелко заглубленного фундамента частного дома обычно состоит из верхней и нижней арматурных сеток и вертикальных связей между ними.
Арматурная сетка, как правило, выполняется из 2-3 продольных рабочих стержней диаметром 10-14 мм. Вертикальные связи между нижней и верхней сетками делают из рабочих стержней и размещают их с шагом 600 мм.
|  | 
| Схема армирования монолитной стены фундамента. а — арматурная сетка с двумя рабочими стержнями арматуры; б — то же, но с тремя стержнями 1 — продольные стержни рабочей арматуры класса A-III, диаметром 10-14 мм; 2 — вспомогательная арматура Вр-I, диаметром 4 мм.; 3 — стержни вертикальных связей между нижней и верхней сетками | 
Расстояние между соседними продольными стержнями рабочей арматуры в сетке не рекомендуется делать больше 400 мм. При необходимости увеличивают количество рабочих стержней.
В сетки монолитной ленты с увеличенной шириной подошвы устанавливают поперек сетки с шагом 600 мм дополнительные стержни рабочей арматуры.
Защитный слой бетона между грунтом и арматурой в фундаментах должен быть не менее 50-70 мм.
  Сопряжение арматурного каркаса в углах и примыканиях ленточного монолитного фундамента
Сопряжение арматурного каркаса в углах и примыканиях ленточного монолитного фундамента
Продольную и поперечную арматуру скрепляют вязальной проволокой. Сварка допускается только для арматуры, в маркировке которой есть буква «С».
Песчаная подушка для мелко заглубленного фундамента
Под лентой фундамента всегда устраивают подушку из не пучинистого песчаного грунта.
На не пучинистых и слабо пучинистых грунтах песчаная подушка служит в качестве выравнивающего слоя. Дно траншеи выравнивают слоем любого не пучинистого грунта, который тщательно трамбуют. Толщину слоя не рекомендуется делать более 20 см. Более толстый слой трудно трамбовать.
Толщина подушки для каменного дома обычно получается в пределах 0,3 — 0,8 м. Для дома с деревянными стенами толшина подушки — 0,2 — 0,5 м. на мелко заглубленном фундаменте, и 0,5 — 0,8 м. в варианте с не заглубленным фундаментом.
Для устройства противопучинистой подушки лучше всего использовать смесь песка (40%) и щебня (60%). Такая смесь обеспечит высокую несущую способность подушки. Менее выносливы подушки из песка крупного или средней крупности.
Материал подушки насыпают слоями толщиной не более 20 см и каждый слой тщательно трамбуют площадочными вибраторами или вручную.
Подушка может быть как врезной, заглубленной в естественный грунт (как на рисунках выше), так и устраиваемой на поверхности грунта:
|  | 
| Ленточный не заглубленный фундамент на песчаной подсыпке, устраиваемой на поверхности грунта 4 — арматурный каркас; 5 — бетонная отмостка; 7 — гидроизоляция; 9 — поверхность грунта на участке; 10 — песчаная подсыпка; 11 — задернение откоса; | 
Ленточный не заглубленный фундамент на песчаной подсыпке устраивают, если на участке высокий уровень грунтовых вод, грунты слабые, в том числе заторфованные, заиленные. В зависимости от размеров фундамента подсыпку делают по всей площади здания или только под лентой фундамента.
Подсыпка не только снижает пучинистость и увеличивает несущую способность основания фундамента, но и поднимает общий уровень придомовой территории. Это, как правило, необходимо для участка на таких грунтах.
Читайте: «Вертикальная планировка участка при строительстве частного дома»
Между песчаной подушкой (подсыпкой) и грунтом рекомендуется укладывать разделительный слой геотекстиля, который предотвращает заиливание песка в подушке частицами грунта. Такое разделение особенно необходимо при высоком уровне грунтовых вод и наличии верховодки на участке.
Пошаговая инструкция по монтажу МЗЛФ
Глубина заложения
Основное правило заложения ленточной конструкции – это правильно рассчитанная глубина. Она определяется уровнем промерзания земли. При этом заложение должно проводиться ниже этого показателя. К примеру, из верхней таблицы регион Москвы, сооружение фундамента на суглинках должно быть в пределах 1,5 — 1,6 м. То есть, ниже уровня на 15 — 30 см. Потому что нижняя часть конструкции не будет подвергаться пучению грунта, которое выдавливает фундамент из земли и сдавливает его со всех сторон. Это достаточно серьезные нагрузки, которые неправильно залитые сооружения могут не выдержать.
Поэтому глубина заложения ленточного фундамента – наиважнейший показатель. Что касается закладки МЗЛФ (мелкозаглубленного типа), то этот показатель неважен. Важнее грамотно продумать систему теплоизоляции, особенно нижней части, расположенной внутри грунта.
Как видите, рассчитать фундамент для дома (ленточный), не так просто даже с позиции глубины его закладки. Небольшое отклонение приведет к потерям прочности и снижению несущей способности, особенно в сезон пучения грунтов.
Какой вид фундамента выбрать?
Ленточный фундамент своими руками
Перед закладкой основания изучите свойства почвы и климат
Проект фундамента с подвалом имеет свои особенности. Перед его устройством нужно правильно рассчитать нагрузки.
Расчетные показатели:
 
- Общая нагрузка дома с учетом всех строительных отделочных материалов, предметов быта и людей, которые будут находиться в здании. Берем в расчет максимальный пласт снега, который может располагаться на кровле, значение определяется по карте в зависимости от климатической зоны.
- Геологические особенности участка.
- Климатическая зона.
Расчет элементов фундамента:
Сопротивления грунтов:
Если не взять в расчет какой-либо из показателей, основание может растрескаться и привести к постепенному разрушению здания.
Подготовительные работы
 
Когда все расчеты готовы, очищаем строительный участок от мусора. Проводим разметку расположения фундамента колышками, между которыми натягиваем веревку.
Согласно плану размечаем периметр здания, отмечаем расположение несущих стен и перегородок. Проверяем, чтобы стены и их диагонали были ровными.
С привлечением техники роем котлован нужной глубины (ниже точки промерзания грунта) и убираем землю из траншеи. Вручную выравниваем стены и трамбуем грунт.
Затем насыпаем песчаную подушку и ее утрамбовываем. Заливаем тонкую бетонную подушку по уровню толщиной 50 мм. Бетон высыхает от 14 до 30 дней.
Гидроизоляция
 
Важно выполнить гидроизоляцию на этапе монтажа фундамента
Горизонтальная изоляция фундамента выполняется только на этапе его строительства. Если пренебречь этим нюансом, устранить недочет будет невозможно.
Влага, проникая по порам бетона, будет подниматься к стенам, вследствие чего в подвале и жилых помещениях создастся нездоровый микроклимат.
После застывания бетонной подушки обмазываем ее мастикой. Раскатываем рубероид на пленочной основе так, чтобы он заворачивался на стены траншеи. Сверху покрываем его мастикой.
Такие мероприятия будут надежной защитой от воздействия влажности на основание и погреб. Гидроизоляция продлит срок службы строительных и отделочных материалов.
 
Опалубка
Для устройства опалубки из досок по периметру траншеи вбиваем колышки, к ним прибиваем доски и брусья. Колышки должны выступать над поверхностью земли, их укрепляем подпорками.
Армирование
Делаем каркас из металлического прута 6-16 мм, он должен быть похож на сетку с ячейками 500 х 500 мм.
Вертикальная обвязка должна выступать на 50-100 см для дальнейшей связки пола и стен постройки.
 
Бетонирование
Бетон необходимо заливать слоями, но непрерывно
Подготавливаем деревянные лотки для подачи бетона в опалубку.
Правила бетонирования при устройстве фундамента:
- заливаем раствор послойно, но без перерыва;
- каждый слой бетона штыкуем или уплотняем вибратором;
- между заливкой слоев не должно быть промежутков времени более 20-30 минут;
- с большой высоты раствор подавать не рекомендуется;
- бетон выравниваем по горизонтальной плоскости.

Бетонный раствор должен высыхать постепенно. Для этого его накрываем полиэтиленовой пленкой, периодически смачиваем. В жаркую погоду на протяжении недели фундамент дома увлажняем и снова накрываем пленкой. Для полного набора прочности понадобится месяц.
Как правильно рассчитать фундамент дома
Подготовка
Любое строительство начинается с подсчетов материалов, необходимых для закладки фундамента, каркаса дома, облицовки, систем отопления и водоснабжения и прочего. Без этого нельзя точно рассчитать нагрузку на основание и правильно выбрать его тип в соответствии с имеющимися геодезическими изысканиями участка под строительство.
Начинать работу и все подсчеты нужно именно с геодезии, чтобы узнать:
- глубину промерзания грунтового слоя;
- высоту нахождения грунтовых вод;
- какой грунт залегает на участке, из таблиц выяснить такие показатели, как плотность, сыпучесть, морозное пучение и прочие.
Имея на руках экспертные данные, можно начинать расчет фундамента.
Внимание! При расчете нагрузок на основание мебель еще не закуплена. Но включить массу предполагаемого оборудования, мебели, сантехники и людей нужно
Расчет нагрузки стен и кровли
Каждый вид конструкции имеет различный удельный вес. В качестве примера можно использовать следующие данные для вычисления нагрузки несущих стен. Масса 1 кв. м:
- каркасного строения вместе с утеплителем — 30−50 кг;
- стены из бревна или бруса — 70−90 кг;
- кирпичная кладка — 200−270 кг;
- конструкция из железобетона — 300−350 кг.
Эти величины соответствуют весу конструкции, у которой несущие стены толщиной в 150 мм, и уже по ним можно рассчитать нагрузку на подошву фундамента.
Теперь нужно вычислить удельный вес 1 кв. м перекрытия, которое может быть:
- деревянным, с утеплительным слоем. Вес прямо пропорционален сечению балки и толщине утеплителя. Его среднее значение — 70−300 кг;
- монолитным, плиточным, железобетонным. Такой вариант перекрытия весит не менее 500 кг на 1 кв. м.
Не стоит забывать о крыше. Здесь разброс нагрузки на 1 кв. м — от 20 до 80 кг. На вес влияет выбор покрытия, гидроизоляционных материалов, балок перекрытия, конструкции самой кровли.
Внимание! При общем расчете необходимо учитывать переменные составляющие нагрузок, такие как масса снега, ветер и другие метеорологические факторы. Эти данные должны быть в проекте дома. Знание используемых материалов в строительстве поможет рассчитать фундамент
Знание используемых материалов в строительстве поможет рассчитать фундамент.
Особенности устройства
При выборе конструкции фундамента необходимо учитывать следующие факторы:
- Глубина промерзания грунтов на участке под застройку. По строительным нормам подошва фундамента должна размещаться ниже линии промерзания, в противном случае могут возникнуть деформации при поочередном цикле замораживания и оттаивания грунтового основания.
- Линия прохождения грунтовых вод. На практике уровень горизонта грунтовых вод определяется с помощью бурения скважин и замером глубину появления воды.
- Рельеф местности. На крутых склонах или болотистой местности для выбора вида фундамента потребуется совет специалистов-проектировщиков.
- Категории грунтов и их состояние, которое оценивается по показателям на прочность, осадку и пучинистость.





































