Удачные примеры и варианты
Сегодня существует множество фирм, которые занимаются изготовлением бань под ключ. Схемы конструкций, расчет материалов таких конструкций можно использовать для создания идеи собственного проекта. Например, баня на участке может быть одноэтажной с небольшим чердаком, можно обустроить мансарду, которая будет выполнять роль комнаты для гостей. Но также есть возможность постройки двухэтажной бани, обустроив на втором этаже полноценную комнату отдыха с бильярдным столом, музыкальным центром и большим телевизором. Дизайн-проект от Архитектурное бюро " Берлога" должен отражать индивидуальность его обитателей.

Всегда есть возможность построить вариант с крытой террасой, на которой разместить столик со стульями для летнего отдыха. Необязательно выбирать вариант площадью 3х4 м, существует множество других разновидностей, таких как:
- баня 4х4 м;
- баня с верандой 4х4 м;
- баня 6х3 м;
- баня с террасой 6х4 м;
- баня с мансардой и террасой 6х9 м;


- баня 6х6 м;
- баня 6х9 м.


В заключение можно отметить, что строительство каркасной бани возможно выполнить своими руками на даче или во дворе частного дома. Все, что для этого необходимо, – это подготовить проект постройки, запастись всеми необходимыми материалами, подготовить нужные инструменты, а также изучить все инструкции и рекомендации по строительству. В этом случае строительство не отнимает много времени, результат порадует даже самых придирчивых хозяев и станет предметом зависти среди соседей.
О том, как построить баню своими руками, смотрите в следующем видео.
Материалы
До начала строительства каркасной бани обязательно определиться с тем, какие материалы при этом будут использоваться. Стены постройки чаще всего изготавливаются из дерева. Уместным будет использование профилированного или проклеенного деревянного бруса. Подходящими для наружных работ можно считать размеры 10 на 15 см и 15 на 15 см. При внутреннем строительстве лучше использовать тот же брус 10 на 15 см.
Для теплоизоляции помещения хорошо подходит использование материалов с фольгированной прослойкой. Они очень хорошо удерживают тепло внутри помещения. Можно выбрать минеральную вату с прослойкой из фольги. Плюсом такого материала считается также отсутствие необходимости оборудования пароизоляции.
Вагонка — самый распространенный материал для внутренней обшивки помещения. Он является:
- экологически чистым;
- долговечным;
- дешевым.
Вся конструкция бани, включая наружные и внутренние части, должна образовывать один общий сруб. Только в этом случае будет обеспечиваться надлежащая надежность помещения. Для такого вида бани хорошо подойдет столбчатый фундамент. Для его возведения понадобятся трубы либо блоки, монтируемые в бетонный ленточный фундамент. Хотя для его постройки можно также использовать шлакоблок или газобетон.
Какому материалу отдать предпочтение
Бани возводят из различных материалов. Итак:
- Деревянный рубленный кругляк, бревно. Самый традиционный и общепринятый в банной культуре материал имеет множество сильных сторон и совсем немного слабых. Применять его для возведения маленькой бани не рационально в первую очередь из-за высокой стоимости материала, во вторых, из-за значительного уменьшения внутреннего объема при значительных размерах наружного периметра. Кроме этого, не стоит забывать, что бревно, достаточно трудоемко в монтаже, требует серьезного объема работ по подготовке сопрягаемых участков и последующей герметизации привалочных стыков. Да, в конце концов, и поднимать материал на высоту укладки непросто, особенно, в условиях ограниченного пространства. Хотя, если вам предлагают кругляк — полумерок по хорошей цене и у вас есть крепкий помощник, то почему бы и нет;
- Деревянный брус. Стильно, удобно в монтаже, но неоправданно дорого. Для маленькой бани, тем более;
- Минеральные строительные материалы: кирпич, блоки и полублоки, пиленный и колотый природный камень. Такой материал обладает завидной прочностью, он долговечен и негорюч. Часто сооружения из таких стройматериалов не требуют дополнительной внешней отделки, особенно, если это качественно положенный облицовочный кирпич на расшитом шве. Но! Готовьтесь к большому объему работ по масштабной теплоизоляции такой бани. Кроме этого, попытка сэкономить на вторичном или второсортном стройматериале — прямой путь к не менее масштабным отделочным работам, которые, безусловно можно объединить с проведением утепления, но все же. В конечном итоге, всегда стоит помнить, что сооружения такого типа требовательны к качеству фундаментной основы и глубокой гидроизоляции;
- Каркасные технологии, или как их называют по текущей моде, канадские бани. Занимают, нечто среднее, своего рода, промежуточное положение между полноценным возведением из сплошного бруса, в его очень бюджетной интерпретации. Вот этот вариант мы и возьмем за основу.
Доступные материалы для возведения бюджетной бани
Прежде чем построить бюджетную баню для дачи, необходимо определиться с материалом для стеновых конструкций. Как правило, для возведения частной парилки используется натуральная древесина – брус, простое или оцилиндрованное бревно, но все чаще в целях экономии владельцы участков отдают предпочтение более простым и дешевым материалам. Самыми востребованными из них являются:
- Кирпич.
- Пеноблоки и газоблоки.
- Деревянный брус.
- Доска обрезная.
- Стальной каркас с деревянной обшивкой.
- Профнастил пластиковый.
У каждого материала есть свои сильные и слабые стороны, которые можно выгодно использовать при возведении компактной парной.
Планировка бани: рекомендации.
В начале строительства крайне желательно сделать проект, который должен, в том числе, определить оптимальную площадь постройки.
Считается, что расчётная площадь на 1 человека должна быть примерно 5 кв.м. Таким образом, если предполагаемое количество посетителей бани будет 4 человека, её общая площадь не должна быть меньше 20 кв.м.
Минимальный состав помещений следующий: парилка, моечная, комната отдыха и предбанник
Важно определить наиболее удобное расположение этих помещений относительно друг друга, а также их геометрические размеры
Сначала нужно выполнить несколько схем и чертежей:
— общий план строения;
 — чертежи каждого помещения в отдельности;
 — схему устройства фундамента;
 — схему устройства кровли;
 — план крепления и выкладки бруса;
 — план устройства пола и потолка бани;
 — схему установки печи с учётом её конструкционных особенностей.
Все необходимые чертежи можно выполнить самостоятельно, а также найти во множестве открытых источников. Как правило, бани из бруса имеют похожие проекты и легко можно выбрать наиболее подходящий. При желании и наличии необходимого бюджета, заказать проектирование можно поручить профессиональному архитектору или строителю.
Предбанник
Предназначение предбанника – вход в баню, хранение дров или другого топлива, раздевалка (гардеробная), отделение холодного помещения от прогреваемых печкой. Предбанник – это своего рода терминатор, по одну сторону которого теплый воздух, по другую – холодный. Из предбанника двери должны вести и в душевую комнату, и в парную, и в комнату для отдыха.
  Большой предбанник в маленькой бане
Большой предбанник в маленькой бане
Этот план бани размером 3 х 5 метров предусматривает большой и просторный (насколько это позволяют планы строительства и площадь постройки) предбанник, в котором можно при помощи перегородок обустроить все остальные помещения – склад для дров, раздевалку, и т.д. В таком предбаннике можно сделать достаточно большое окно, главное, чтобы окна не было в парной. Двери в парной должны быть только одни, и выходить они должны в тот же предбанник. Из самого предбанника можно попасть во все остальные помещения.
  Распространенный проект бани
Распространенный проект бани
Порядок проведения работ
 Бетонная плита вместо фундамента под маленькую баню
Бетонная плита вместо фундамента под маленькую баню
Выбрав место для строительства, площадку необходимо подготовить. Сначала удаляют верхний слой земли, содержащий дерн и корни растений. В противном случае фундамент может быстро начать деформироваться в процессе эксплуатации. Поверхность нужно разровнять.
Если решено строить каркасную баню небольших габаритов, климат в местности не отличается резким наступлением заморозков, а почва – неустойчивостью, можно организовать опорно-столбчатое основание. В ином случае практичнее будут винтовые сваи. Устанавливать их несложно, но еще до начала работ потребуется изучить грунт на предмет глубины промерзания. Сваи должны уходить под землю ниже этой отметки примерно на 0,5 м. Ввинчивать в землю их нужно строго вертикально.
Общая последовательность работ при возведении бани:
- с площадки удаляют дерн, камни, корни растений, выкорчевывают пни, засыпают грунтом углубления (при наличии таковых;
- организуют выбранный тип фундамента;
- возводят стены;
- обустраивают кровлю и затем монтируют на нее финишное покрытие;
- устанавливают дверные коробки и полотна, окна (если они предусмотрены), выполняют отделку здания.
Для обшивки каркасного здания изнутри подойдет брус. Снаружи помещение можно декорировать блок-хаусом. Чтобы предотвратить скапливание конденсата, создающего благоприятную среду для плесени, между обшивкой и утеплителем фиксируют пароизоляционный материал. Лучше всего для этой цели подойдет пергамин. Крыша бани может иметь один или два ската. Для отделки часто используют шифер и рубероид. Потолок здания можно обить досками.
После монтажа окон и дверей организуется канализационная система, подводятся водопровод и электричество (если это предусмотрено проектом). В самых простых дачных банях часто обходятся и без этого.
Затем производится установка печки и крепление полок. Для парной подойдут как дровяные, так и электрические отопительные агрегаты. Часто используется маленькая печь с металлическим корпусом, к которому приварена сетчатая или решетчатая емкость. В последнюю кладутся камни; чтобы поддать пару, их поливают водой.
Красивые примеры
Расположение полок каскадом в парной позволяет сэкономить пространство и очень удобно для больших компаний. При этом париться можно как сидя, так и в горизонтальном положении.
Обивка стен вагонкой – это не только практично, но и эстетично. Расположение досок вертикально и горизонтально делает интерьер парной интереснее.
Современный интерьер сауны из темного дерева. В качестве декора могут быть использованы и камни.
Интерьер в старинном русском стиле. Самовар, много резьбы на мебели, окнах, дверях, а также посуда и аксессуары, характерные для избушки.
Интерьер в стиле шале. Натуральные материалы в оформлении и несколько ярких акцентов – характерные для стиля черты.
Баня в стиле модерн со стеклянной стеной и видом на озеро. Светлые оттенки дерева, живописный вид и простота интерьера создают ощущение полной релаксации и погружения в природу.
О том, как построить баню своими руками, смотрите в следующем видео.
Баня 2 на 2
Миниатюрное здание из бревен необходимо устанавливать на кирпичный ленточный фундамент или сваи. По типовому проекту высота опор должна быть не менее 60 см.

Это оптимальный размер подъема коробки бани. В типовом варианте отмостку фундамента и облицовку цоколя не делают, поэтому первые венцы из бревен просто поднимают повыше над грунтом, чтобы избежать замокания стен бани.
Конструктивно помещение делится на два отсека. Это классический проект бани-вагончика.

В первом отделении находится раздевалка, совмещенная с предбанником, во втором – моечная и парилка. Поверхность стен из бревен обязательно утепляется, закрывается пароизоляцией и оббивается вагонкой.
Баня-пристройка к дому: особенности
Как мы уже упоминали ранее, пристройка бани к готовому сооружению — довольно популярное решение

Пристройка бани к жилому дому.
Виды соединения с домом:
Полноценное соединение в виде общей стены с домом. При таком способе сокращаются затраты на одну из стен бани, но возрастают на пароизоляцию и противопожарную защиту
Стена дома является общей с баней. Пристройка выполнена из бруса.
Использование сруба, который располагается впритык к жилому зданию. То есть, коробка бани как бы приставляется к дому. Вход в баню может быть из дома или с улицы (отдельный). При данном варианте будет меньше мороки с пароизоляцией, но противопожарная защита должна быть качественной.
 Небольшой переход к бане. Фактически, при таком способе баня не является пристройкой, так как располагает от дома на расстоянии 1-1,5 м. Жилое помещение и парную соединяет небольшой тамбур, который может служить небольшой комнатко отдыха или предбанником (с крючками, шкафчиками, лавочками). Вход в баню может быть с дома (через тамбур) или с улицы.

Между основной постройкой и баней есть небольшой проем.
Выбор материала
При выборе материала для пристроенной бани стоит ориентироваться на такие, которые дают минимальную усадку и легко монтируются. В идеале, баня должна быть построена из того же материала, что и дом, иначе в результате разной усадки различных материалов здания могут деформироваться, дать трещины. Если постройка старая, баню можно пристраивать из таких материалов:
- Бревна. Весомыми преимуществами бруса являются эстетичность, экологичность, низкая теплопроводность по сравнению с бетоном и кирпичом. При соблюдении правил заготовки дерева и при правильном уходе за постройкой она будет служить не одному поколению. Для сооружения бани чаще всего выбираются сосна (отличается небольшим количеством сучков и прямизной ствола) и лиственница (более устойчива к гнили, но стоит дороже).
- Брус. Обладает теми же характеристиками, что и бревно, но стоит дешевле. Нельзя сказать, какой из двух материалов лучше, потому выбор между ними зависит от индивидуальных предпочтений и кошелька.
Пожаробезопасный, долговечный, экологичный материал. Однако обладает существенными недостатками: высокой теплопроводностью и гигроскопичностью. Для обогрева кирпичной бани потребуется намного больше времени в сравнении с деревянной постройкой. Также потребуется сделать качественную паро- и теплоизоляцию, иначе стены будут отсыревать и портиться.
 Пеноблок. Недорогой, лёгкий материал с отличными показателями морозостойкости и теплоизоляции. Для него также характерна прочность, простота монтажа, минимальная усадка. Существенным недостатком является низкая влагоизоляция, потому для защиты стен придется использовать качественный гидроизоляционный материал.
Фундамент в идеале должен быть такой же, как и у основного здания. Лучшим решением будет облегчённый ленточный фундамент. Для облицовки здания можно приобрести вагонку, сайдинг, блок-хаус или материалы, имитирующие брус.
Разновидности конструкций дома-бани
Проекты дома с баней обычно выполняют в трех основных вариантах, каждый из которых соответствует основному условию – совмещение двух функциональных строений в одном.
В первом случае парная и моечная являются основными помещениями, которые располагаются на первом этаже строения, и дополняется комнатой отдыха на втором.

 Такому проекту больше подойдет название баня с мансардой или гостевой дом с банейИсточник multilisting.su
При использовании второго варианта, баня пристраиваются к дому в виде дополнительного помещения. Баня может стоять вплотную к дому или между ними делается какое-то подобие тамбура, но в любом случае и дом и баня накрываются одной крышей.

 Баня в таких проектах может быть построена сразу вместе с домом или пристроиться к нему позжеИсточник skalice.ru
 
 Пристройка бани к основному дому с обустройством единой кровельной системыИсточник pinterest.com
Также дом с баней может быть cпроектирован изначально, и в этом случае парная и моечная будут находиться непосредственно внутри периметра коттеджа, заменяя собой один из санузлов.

 Планировка дома с баней и бассейномИсточник tvoya-banya.ru
Функционально всего эти варианты достаточно схожи между собой и существенным отличием между ними будет лишь размер строения, который в полноценном жилом доме с баней будет значительно больше.
Варианты дачных бань
Можно построить небольшую баню для дачи, а если позволяет участок – возвести конструкцию большего размера, но сначала нужно определиться с выбором места:
- Расположить отдельно. Большой популярностью пользуется купленная отдельная баня. Такие сооружения престижны и могут быть, как маленькими для одного человека, так и целыми комплексами с бассейнами. Кроме того, их можно установить возле источника воды.
- Пристроить к дому. Этот вид бани хорош тем, что он позволяет соединить обе части строения, например, достроенной зимней террасой. Это снижает затраты на обогрев.
- Обустроить внутри дома. Это хороший эконом вариант бани на даче, так как можно не тратиться на проведение коммуникаций и на отопление.

3×6, 6×6, 6×4
Рассматривать баню не только как утилитарную постройку, но и как место общения можно, если ее полезная площадь более 16 м2.
Важно! Чем просторней парилка, тем большим числом вентиляционных отверстий (с задвижками) её необходимо снабдить: каждому кубометру объёма — 24 см2. Каркасная баня 6 × 3 метра «может себе позволить» отдать часть полезной площади террасе
Фасадную (короткую) стену можно «сдвинуть» вглубь на полтора метра, тогда закрытая площадь бани — чуть более 13 м2. Получится каркасная баня 3 × 4 с закрытой по бокам зоной отдыха перед входом
Каркасная баня 6 × 3 метра «может себе позволить» отдать часть полезной площади террасе. Фасадную (короткую) стену можно «сдвинуть» вглубь на полтора метра, тогда закрытая площадь бани — чуть более 13 м2. Получится каркасная баня 3 × 4 с закрытой по бокам зоной отдыха перед входом.
Террасой дополняют и маленькую, и большую каркасную баню — вдоль всей стены, или с «захватом» одного угла.
Используя всё пространство под закрытые помещения, площадь 6 × 3 м вместит пятерых посетителей. Поперечный предбанник шириной более 2 метров теперь слабо пострадает, если в парную и моечную из него будут вести отдельные двери.
Видеоролик о пропорциях лёгкой бани — каркасной — 3 × 6 своими руками (пошаговая инструкция возведения наружных стен из бруса 150 × 100 мм и цементно-стружечных плит), удачно отмечено положение фундамента стационарной печи с загрузкой дров из прихлжей:
Печь-каменку можно дополнить камином (отводя дым одним дымоходом), либо второй печкой.
Кроме камина в предбаннике поместятся лежанка, скамейка, стол с табуретками — раздевалка 2 × 3 станет комнатой отдыха.
Моечная вместит душевой поддон, парная — два яруса полков. (Полки удобнее делать напольными — чтобы не нагружать стену).
Нестандартные планировки бань возможны в более просторных постройках
Например, каркасная баня 6 × 4 делится перегородкой или несущей каркасной стеной на две комнаты равной площади: предбанник, парилку-моечную.
Просторные одноразмерные помещения выбирают любители нежаркого пара.
Так же можно поступить с баней 3 × 5 или 3 × 4 — разделить на две одинаковые комнаты. Для дачного участка, позволяющего построить сооружение 4 × 5, но где дорог каждый открытый кусочек земли, есть красивое решение — баня не четырёхугольная, а «буквой Г». Фактически это может быть каркасная баня 2 × 4 и примыкающий торцом к её длинной стороне предбанник 3 × 2.
Информация. Дровяную печь стремятся расположить так, чтобы сократить до минимума длину дымовой трубы внутри помещения, в том числе мансардном.
Двухуровневой легко станет баня 6 × 6. Мансардному перекрытию придётся опереться на наружные и промежуточные несущие стены. Лестница наверх ведёт из наиболее сухой зоны первого этажа — раздевалки.
Планировка бани
Разработка проекта, планировка расположения внутренних помещений подразумевает грамотный подход к проведению коммуникаций (электричество, водоснабжения, канализации, вентиляции).
Рекомендуем ознакомиться со статьями:
- Монтаж электропроводки в бане
- Правильная вентиляция в бане
Особенности планировки банных помещений разберем подробнее.
Парная
Сверху печи укладывают камни. Для увеличения объема выделяемого пара камни поливают водой.
Полки закрепляют в несколько ярусов. Материал ‒ дерево лиственных пород.
Особенности монтажа следующие:
- Нижняя полка делается узкой. Ее используют чаще в качестве подставки под ноги.
- Вторая полка самая ходовая. Ее делают максимально широкой.
- Расстояние между полками составляет 30‒40 см. Планки крепятся не вплотную, а в 3-4 мм друг от друга, чтобы обеспечить хорошую циркуляцию воздуха.
От верхнего яруса до потолка должно оставаться не меньше метра, иначе сидеть придется в полусогнутом виде.
В старых домашних банях не ставили отдельную душевую, поэтому купели с водой были прямо в парной. Это довольно неудобно. Недорого обойдется установить через перегородку душ, и отдых будет комфортнее.
Пол в парной выкладывают плиткой, сверху ставят деревянные решетки, поскольку плитка скользкая и быстро нагревается.
Любители контрастных процедур размещают рядом с парилкой бассейн или купель с холодной водой.
Рекомендации по выбору размеров парилки приведены в разделе выше.
Моечная
Здесь отдыхающие принимают водные процедуры после парилки. В моечной могут быть установлены:
- душевая кабина с бойлером;
- купель с холодной водой в виде большой деревянной бочки;
- зеркало;
- вешалки для полотенец, одежды;
- лавочка;
- подставка с моющими принадлежностями.
Размеры помещения выбираются из расчета 1 кв. м на человека. Для двух человек хватит габаритов ‒ 1,7*1,4 м, для четырех ‒ 2*2,5 м.
Обшивка стен часто выполняется деревянной вагонкой, пропитанной антисептиками. Пол делается из дерева или керамической плитки.
Санузел
Сезонные бани часто делают без санузла. Но для комфортного отдыха он нужен. Делать его лучше раздельным. В одной комнате обустроить туалет с умывальником, в другой – установить душевую кабину.
В банях эконом-класса санузлом выступает биотуалет. Для круглогодичного использования этот вариант не подходит. В помещении должным образом обустраивается вентиляция.
Предбанник (комната отдыха)
Рассчитать размеры предбанника нужно исходя из свободной площади и функций, которые он будет выполнять.
На стене можно закрепить телевизор, ближе к окнам поставить бильярдный стол (если места хватает). Найдется в предбаннике и уголок для хранения дров.
Предбанник должен быть проходной зоной, чтобы из него можно было попасть в парилку, санузел или душевую.
В большом предбаннике получится поставить:
- бассейн;
- стол для массажа;
- скамейки;
- зеркало.
Помещение может гармонично переходить в закрытую террасу (веранду), соединяться с гаражом.
Тамбур
Тамбур — это небольшой коридор на входе в баню. В круглогодичных постройках его наличие обязательно — он не дает холоду и сквозняку проникнуть внутрь помещения. В нем есть подставка для обуви, вешалка для одежды, скамья, зеркало.
Популярные проекты домиков с баней для гостей

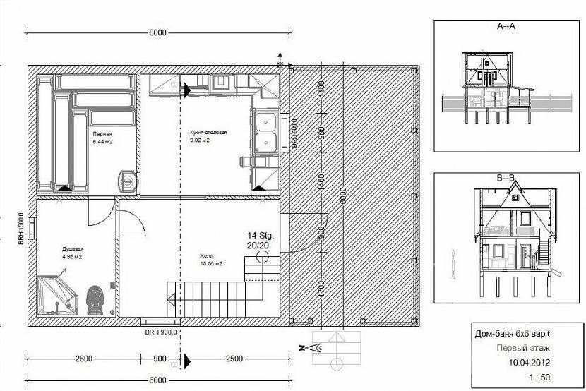
 Проект небольшого гостевого дома 6х6 подойдет для возведения на небольшом дачном участкеИсточник s-sauna.com
Очень компактный, но при этом вместительный гостевой дом с баней и мансардным этажом. Несмотря на скромные размеры, помимо обязательных парной и душевой здесь есть все необходимые помещения для полноценного отдыха: холл, кухня-столовая и спальни. Вместо крыльца на входе расположена большая открытая терраса, на которой можно провести время на свежем воздухе.

 Дом 7,1 на 6,9 м с террасой под крышейИсточник prefer.ru.net
 
 Планировка второго этажа дома баниИсточник anapasunsity.ru
Несмотря на бо́льший периметр постройки, полезная площадь этого гостевого домика ограничена размерами 5,5 на 5,5 метра не считая террасы. Даже таких размеров вполне достаточно для временного или постоянного проживания небольшой семьей или периодическими посещениями дружеской компании.

 Угловой дом с парной – еще одно необычное решение с возможностью сэкономить пространствоИсточник dom-usadba.com.ua
Угловой одноэтажный гостевой домик с баней – это интересное решение для небольшого участка. Здесь есть все необходимое для отдыха, но переночевать, при необходимости, получится, только разместившись на диване в комнате отдыха – отдельных спален в домике не предусмотрено.
Проекты одноэтажных бань: какой материал для строительства выбрать?
После выбора проекта нужно решить, из какого материала будет построена баня. Чаще всего люди останавливаются на проектах деревянных одноэтажных бань. Дерево – это традиционный материал, используемый для возведения бани еще нашими предками. Он экологически чистый, хорошо сохраняет тепло, гармонично вписывается в пейзаж и выглядит эстетично, благодаря чему можно сэкономить на внешней и даже внутренней отделке.
Проекты одноэтажных бань из бревна
Оцилиндрованное бревно – это прочный и надежный материал, обладающий хорошей паропроницаемостью, низкой теплопроводностью. Строить из него баню достаточно просто, поэтому вы можете провести все работы своими руками.
Проекты бань из бревна различаются и тем, из какой породы дерева будет возведена постройка. Самыми востребованными были и остаются хвойные деревья. Сосна, лиственница, кедр имеют прекрасное качество и при этом дают помещениям особый приятный аромат.
Серьезным недостатком бани из оцилиндрованного бревна является большая усадка, которая длится 1-1,5 года. К минусам также можно отнести появление трещин, которые возникают из-за неравномерного высыхания дерева, поэтому при начале эксплуатации бани нужно быть осторожным и поднимать температуру в бане постепенно.
Проекты одноэтажных бань из бруса
Баня из бруса – это, пожалуй, самый популярный вариант. Из бруса получаются прочные и надежные постройки, немаловажным плюсом является то, что баня из бруса выглядит эстетично и не нуждается в дополнительной отделке. Строительство из бруса достаточно простое, поэтому все работы можно провести, не нанимая строительную бригаду. Стоимость бани из бруса будет ниже, чем постройки из оцилиндрованного бревна.
Как и оцилиндрованное бревно брус дает усадку, поэтому перед началом работ по внутренней отделке (если она будет) нужно подождать.
Проекты каркасных одноэтажных бань
Проекты каркасных бань отличаются простотой постройки. С работами можно справиться даже в одиночку. Сборка такой бани занимает в 2-3 раза меньше времени, чем возведение аналогичной постройки из бруса. Вес каркасной бани небольшой, поэтому не нужно делать сложный и дорогостоящий фундамент. Она не дает усадку, поэтому работы по отделке можно проводить сразу.
Данный материал отлично подойдет для возведения небольших построек. Но строить крупные каркасные бани не рекомендуется, для больших и сложных построек лучше выбрать более надежные и прочные материалы.
Каркасная баня отличается низкой влагоустойчивостью, поэтому нужно сделать надежную гидроизоляцию.
Проекты одноэтажных бань из пеноблоков
Баня из пеноблока не так популярна, как деревянная, но при этом она имеет ряд значительных достоинств. Пеноблоки – это также экологичный и натуральный материал, имеющий низкую цену. Баню из пеноблоков построить своими руками достаточно легко, т. к. материал имеет небольшой вес и по размерам значительно превышает кирпич. Пеноблоки имеют хороший уровень теплоизоляции и пожароустойчивости, а также не дают усадку.
Недостатками пеноблоков являются низкая влагоустойчивость, а также неэстетичный внешний вид, что вынуждает делать отделку.
Проекты одноэтажных бань из кирпича
Кирпичная баня – это надежное и прочное строение, которое прослужит вам не один десяток лет. Кирпич – это безопасный материал, не содержащий вредных веществ. Кирпичная баня пожаробезопасна, устойчива к гниению. Такая постройка не дает усадку.
К недостаткам кирпичной бани относится то, что постройка получается тяжелой, поэтому под нее нужно делать надежный фундамент. Строительство из кирпичей – это длительный процесс, который займет много времени. Кроме того, кирпич впитывает воду, поэтому для бани из этого материала нужно делать хорошую тепло- и гидроизоляцию.
Проекты одноэтажных бань являются самыми распространенными. Выбор проектов огромен, они отличаются площадью, количеством помещений и их формой, а также материалом, из которого будет строиться баня. Выбор проектов огромен, поэтому каждый может подобрать оптимальный для себя вариант.
Баня с беседкой под одной крышей: варианты исполнения
По типу постройки прибанные беседки могут быть:
1. Открытые.
2. Закрытые.
Первые – более легкие сооружения, имеющие совмещенный с банным пол и единую кровлю. Крыша ставится на опоры, которые при желании можно объединить бордюрами или соединить перилами. Таким образом удастся обозначить границы территории. Это наиболее выгодный в финансовом аспекте проект, поскольку в нем не предусматривается возведение капитальных перегородок и стен.

Строительство единого комплекса наиболее выгодно
Не будет здесь и остеклительных работ. Открытая беседка – это просто площадка под крышей. От ветра, в такой пристройке, не спастись, зато дождь отдыху помехой не будет. Глядя на вышесказанное становится понятно, что открытые конструкции – сезонная прерогатива.

Баня с открытой беседкой
Вторые – можно с уверенностью отнести к категории капитальных строений, так как они имеют настоящие стены и большие панорамные окна. Баня, помещенная с такой беседкой под одной крышей, будет выглядеть монолитным строением.

Баня с остекленной беседкой
Если же такую пристройку еще и оборудовать камином или мангалом, то, даже не будучи особо утепленной, она получит достаточно комфортную атмосферу. В ней будет приятно находиться даже в лютые морозы, не говоря уже о весенне-зимнем периоде.

Баня с уютной беседкой и камином
Беседка закрытого типа считается полноправной комнатой в планировке банного домика. Можно составить проект застройки таким образом, что пара стен веранды окажутся съемными или раздвижными, что позволит активно ее эксплуатировать и в летний период, легким движением руки преобразовывая ее в практически открытую конструкцию. Весьма практичный и универсальный вариант, о котором стоит задуматься всерьез.

Практичный вариант – беседка с съемными стеклами
Есть еще один компромиссный способ возведения бани с беседкой под одной крышей. В нем пристройка делается по полуоткрытому типу. В этом случае конструкции добавляют лишь две капитальные стены, преимущественно с тех сторон, откуда веют господствующие в этой местности ветра. Такой подход позволит чувствовать себя в беседке более комфортно, потому что сквознякам в ней не будет места. Можно сделать оригинальный шаг и возвести одну из стен вместе с встроенным в нее камином.

Баня с беседкой полуоткрытого типа
Полы в пристроенной веранде правильно собирать на лагах и делать их из натурального дерева, чтобы на ней всегда было тепло и сухо. Укладывая доски настила, нужно оставлять между ними набольшие зазоры. Задача этих зазоров – обеспечить в беседке вентиляцию и позволить беспрепятственно стечь на землю влаге с разгоряченных тел. Естественно, используемая доска должна быть идеально обработана и не ранить ноги занозами и острыми гранями.

Поле беседке рекомендуется делать из натурального дерева

Древесина лиственницы устойчива к гниению
Есть у лиственницы и не менее серьезный недостаток. Дело в том, что это дерево считается «холодным». В качестве альтернативы при строительстве можно использовать в качестве напольного настила террасную доску, сделанную из древесно-полимерного композита.

Террасная доска отличная альтернатива лиственнице
Практичным решением будет использование в обустройстве беседки легких алюминиевых профилей. При желании скрыться от любопытных глаз вместо стекол в них вставляют непрозрачный, однако легко пропускающий дневной свет, цветной сотовый поликарбонат.

Сотовый поликарбонат поможет скрыться от посторонних глаз
Защиту от надоедливо жужжащей мошкары обеспечат москитные сетки. Да, все эти приемы удорожат строительство, но расширят возможности эксплуатации беседки. Наверное, не стоит на них экономить.

Особенности
Баня 4 х 3 метра – это идеальный вариант для семьи из 4 человек и гостей. Прежде чем начинать возведение стен, следует выбрать соответствующий участок, подготовить необходимые коммуникации.
Часто баня строится как дополнительная пристройка к дому, и на это есть ряд веских причин.
- близость узла коммуникаций (вода, канализационный слив);
- фактор теплопроводности, когда одна из стен бани является составной частью дома;
- комфорт, когда из дома, не выходя на улицу, можно попасть сразу в помещение.
Любая баня состоит из нескольких блоков:
- парилка;
- душевая комната;
- санузел;
- предбанник;
- комната отдыха.


Основной материал для строительства бани – это бревна. Необходимо учитывать тот факт, что толщина материала в данном случае будет уменьшать площадь помещений.
Своими руками построить баню 3х4 м не представляет никакой сложности, здесь необязательно иметь опыт, важно только правильно сделать проектную документацию






![Баня 2 на 3 [проект]: из чего строить и как обустроить?](https://nikastroy.ru/wp-content/uploads/4/f/d/4fd1a2405b22b7781825d13765aa392b.png)



















![3 варианта бани для дачи [+11 фото]](https://nikastroy.ru/wp-content/uploads/1/b/6/1b61ce04c005eb2a7388682229c6215f.jpeg)
































