Этап подготовительных работ
Окно из дерева
Как сделать окна своими руками, затратив минимум сил? Процесс изготовления состоит из следующих этапов:
- Выбор подходящего профиля. Приобретение строительных материалов.
- Изготовление коробки и рамы.
- Установка оконных блоков. Остекление.
На подготовительном этапе нужно будет выбрать стекло. Это может быть обычное листовое, которое хорошо подходит для дачных окон. Кроме того, в деревянные рамы можно установить готовые стеклопакеты.
Каждый из выбранных вариантов имеет свои достоинства. Например, в первом случае есть возможность самостоятельно выбрать и купить дешевый материал. А вот использование стеклопакетов в деревянных рамах отличается тем, что такие окна значительно сократят потери тепла.
Изготавливая стеклопакеты, производители закачивают в пространство между листами стекла инертный газ. Такие окна можно использовать для остекления дачи и загородного дома.
Оконные рамы можно сделать из лиственницы. Дуб тоже пользуются популярностью, но обрабатывать его значительно сложнее. Хорошим вариантом станет изготовление конструкций из ангарской сосны. Даже начинающие строители могут работать с клееным брусом, изделия из этого материала прослужат не менее 50 лет.
Следует заранее приобрести чертежи. Самым простым вариантом, который подойдет начинающим строителям, можно назвать изготовление окон с двойной рамой и одинарным остеклением. Для столярных работ потребуются следующие инструменты:
- молоток;
- пила;
- стамеска.
Работа будет выполнена быстрее, если в наличии будут электрорубанок и фреза.
Про различные инструменты для обработки дерева своими руками, вы можете прочитать в нашей статье.
Как сделать окно, да так чтобы оно прослужило долго? Многое зависит от качества материала. Для работы подходит только сухая древесина. Ее следует внимательно осмотреть на строительной базе
Важно, чтобы не было сучков, тогда рама не треснет. Хорошим вариантом станет клееный материал
Для самостоятельного изготовления окна потребуется чертеж, стекло, уголки из металла и столярный клей.
Клееный брус хорош тем, что он практически не поддается деформации. Рама, выполненная из этого материала, не изменит форму даже при высокой влажности. Оконную раму можно сделать из досок 50х150 мм и брусков 50×50 мм. Также все деревянные конструкции обрабатывают антисептиком. Это предотвращает гниение.
Заводской оконный профиль имеет сложное строение, повторить его новичкам очень сложно. Поэтому проще всего использовать самый простой проект. Например, для создания оконного профиля может быть использована фанера. Необходимо скрепить 4 полосы в виде прямоугольника. Для изготовления профиля собирают несколько прямоугольников. Так можно сделать глухую раму или окно с 3 или 2 стеклами.
Для изготовления рамы с 1 стеклом потребуется 8 полос из фанеры, они образуют 2 прямоугольника. Полосы 2 слоя делают меньшей ширины. Для соединения деталей используют саморезы по дереву. Все части конструкции промазывают столярным клеем, тогда рама прослужит много лет.
Заготовки
Деревянные заготовки для деталей окна из дерева нужно делать из древесины, которая лучше всего подходит под это. Часто для окон используются сосновые массивы, поскольку они легки в обработке и достаточно устойчивы перед влагой. Часто также используются дубовые материалы.
Требования к пиломатериалам:
- просушка на высоком уровне (около 22-23 процентов влажности);
- отсутствие сколов, гнилых сучков и других дефектов.
Отдельные детали и заготовки изготовляют согласно чертежу. Это нужно делать с помощью обычных режущих инструментов — лобзиком, пилой. Уже готовые детали лучше отшлифовать.
В отдельных случаях вместо массива дерева можно использовать также клееные брусья. Главная их особенность состоит в том, что благодаря склеенной структуре брусья из многих слоев остаются достаточно устойчивыми и не деформируются длительное время.
Основные ошибки при установке пластиковых окон своими руками
Если установить пластиковые окна неправильно, то это может привести к тому, что в доме будет холодно, через неправильно смонтированные отливы в помещение потечет вода. И сами дорогостоящие конструкции быстро придут в негодность. И уж если профессиональные монтажники допускают при установке окон ПВХ иной раз ошибки, то от них, безусловно, не застрахован и любитель, который устанавливает пластиковые окна своими руками.
Давайте рассмотрим 10 самых распространенных ошибок, которые допускаются при установке пластиковых окон.
Размер окна выбран неправильно
Обычно это следствие неправильного, небрежного замера оконного проема, и, соответственно, изготовления неподходящей оконной конструкции. И в случае, если окно слишком большое по размеру. И в случае, если размер сильно маленький, устанавливать такие конструкции просто нельзя.
Некачественная подготовка оконного проема
Если поверхности плохо очищены, на них остался строительный мусор, пыль, выбоины или, напротив, части стены выступают на поверхности проема, монтажная пена не встанет так плотно и ровно, как это необходимо для качественной установки пластиковых окон своими руками. Кроме того, загрязнения такого рода очень хорошо впитывают в себя влагу, и она вскоре окажется внутри вашей квартиры.
Игнорирование термоизоляции стены
Если пластиковое окно будет установлено без учета термоизоляции стены, то на стыках в квартиру будет проникать холодный воздух. Поэтому обязательно надо учитывать слои стен при монтаже пластиковых окон. Если стена состоит из одного слоя, окно должно быть выставлено точно в середине стены. Если стена двуслойная, окно следует установить на самом краю, как можно ближе к изоляции. А если стена трехслойная, то установить окно ПВХ необходимо прямо в плоскости изоляции стены, во избежание теплопотерь.
Неправильное расстояние между оконной рамой и откосом
Если оконная рама расположена слишком близко к откосу, то уплотнение в этом месте будет некачественным, и в этих местах начнет появляться и скапливаться влага. Если же рама, наоборот, расположена слишком далеко от откоса, то появляется риск деформации, поскольку нагрузка на анкеры либо металлические пластины слишком велика.
Неправильный размер подоконной планки
Подоконная планка должна быть несколько уже самой оконной рамы. Если она другого размера, или ее вообще решили не ставить, то под оконную раму будет проникать вода из-за отсутствия нормального уплотнения в этом месте, и как следствие, стена постоянно будет влажной. Металлические детали могут через определенное время просто подвергнуться коррозии.
Некачественное крепление окна ПВХ к стене
Если вы пожалели дюбелей или анкеров, и их слишком мало для того, чтобы прикрепить оконную конструкцию к стене надлежащим образом, со временем положение окна изменится, рама деформируется, и вам будет сложно отрывать и закрывать окно.
Недостаточно монтажной пены
Монтажная пена – практически единственный материал для изоляции оконной конструкции и непосредственно стены, к которой она крепится. Если пены будет мало, то тепло будет уходить. Поэтому зазор между откосом и оконной рамой нужно заполнять как следует, не жалея монтажной пены.
Отсутствие изоляционной ленты
Если вы решили не использовать положенную по ГОСТу изоляционную ленту на внутренней и внешней стороне оконной конструкции, будьте готовы к тому, что теплоизоляция будет постепенно становиться все хуже и хуже. Соответственно, окна придут в негодность гораздо быстрее, чем вам бы того хотелось.
Поэтому если вы решили установить пластиковое окно своими руками, постарайтесь пройти все необходимые этапы и произвести все необходимые действия качественно, аккуратно и не торопясь. Тогда ваши красивые пластиковые окна, установленные своими руками, будут радовать вас и ваших домочадцев долгие годы.
Изготовление рамы. Второй слой.
Берем оставшиеся заготовки 50 мм толщиной и 65 мм – шириной. Распускаем их по толщине на брусочки 30 и 20 мм, ширина 65 мм остается прежней.

Сначала доводим последний штрих, относящийся к первому слою рамы. Устанавливаем брусок, который будет отгораживать форточку от нижней створки. Делаем ее из планки 30 мм шириной. Крепим ее так же на клей и саморезы, не забывая выдерживать прямые углы всей конструкции.


Прижимаем на несколько секунд, чтобы клей схватился и стягиваем склеиваемые поверхности струпциной или тисочками. Затем, чтобы удержать плотность склейки садим элементы на саморезы.

Если вы помните, одну вертикальную заготовку мы делали чуть шире остальных, 75 мм вместо обычных 65 мм. Мы ее тоже порезали по толщине, нам понадобится часть так же шириной в 30 мм. Вот эта широкая планка «пойдет» на срединный вертикальный брусок. Нам ведь нужно, чтобы она выступала за брусок с двух сторон.

Чтобы не сверлить лишнего, на сверло можно накрутить изоленту. Тогда при сверлении будет видна достаточная глубина отверстия





Теперь можно приступить к покраске. Если Вы покрываете раму без помощников, то сначала лучше выкрасить боковины, а потом лицевую часть. Так лучше удается избежать подтеков.

Когда будете выбирать в магазине расцветку морилки и лака, проследите чтобы продавец показал выкраску именно того производителя, продукцию которого вы собираетесь приобретать. Какой-нибудь «дуб» или скажем «палисандр», у разных производителей по цвету будет очень сильно отличаться.
Чтобы сказать, что рама полностью готова, и можно переходить к изготовлению створок, нам остается проложить резиновый уплотнитель. Берем так называемый «Д»-образный. Называется он так потому, что в сечении напоминает латинскую «D». Этот уплотнитель уже имеет липкий слой, дополнительно наносить клей не нужно.

Изолируем деревянные окна
Правильная технология установки деревянных окон обеспечивает минимальные показатели по теплопроводности и отличную изоляцию, защищая помещение от влажности и попадания воздушных масс
Важно учесть, что высокая степень перечисленных характеристик достигается повышенной стоимостью окна, поскольку для создания качественной теплоизоляционной системы необходимо провести ее по всему периметру корпуса. Предпочтение в этом стоит отдавать полиуретановой пене для монтажа, которую легко купить в большинстве специализированных магазинов
Теплоизоляцию установленного оконного блока из дерева выполняют с помощью пены
Заполняя пространство пеной, необходимо следить за толщиной наносимого слоя, который по краевой части не должен выходить слишком далеко при расширении. Излишки пены будут только марать пространство и приведут к банальному перерасходу. Также необходимо проконтролировать влажность, поскольку попадание воды недопустимо для обеспечения сцепки и надежности работ.
Самостоятельно и качественно вставить деревянные окна будет под силу даже новобранцу. Главное – соблюдать основные правила и двигаться пошагово, не пропуская важных деталей.
Сборка оконной рамы
Подготовка к сборке оконной рамы из дерева
Размер окна определяет его конфигурацию. Решив впервые сделать оконную раму из дерева, следует учитывать, что проще всего изготовить стандартные изделия. Чтобы изделие было качественным и прослужило долго, необходимо купить клееный брус из сосны. Он менее подвержен кручению, что является неоспоримым преимуществом данного материала.
Важно правильно выбрать вид остекления. Оно может быть двойным или одинарным
Первое чаще всего применяется в районах с суровым климатом, такие окна устанавливают в домах. Для летней кухни и балкона достаточно сделать окна с одинарным остеклением. Опытные мастера изготавливают их за 1 день.
Работа начинается с разметки брусков, на них нужно выбрать пазы. Проще всего это сделать фрезой, ее устанавливают на электрическую дрель. Нижние пазы необходимы для того, чтобы установить раму в профиль коробки, а верхние понадобятся для монтажа стекла. Места соединения следует проклеить столярным клеем.
Собирать оконную раму следует в соответствии с чертежом, процесс похож на сборку коробки. Когда работа будет завершена, оконную раму необходимо положить на пол до полного высыхания клея.
Для того, чтобы правильно выполнить монтаж сделанных своими руками окон, потребуется заранее вырезать отверстия в стене
Важно убрать строительный мусор и грязь
В стенах необходимо просверлить отверстия, впоследствии в них будут помещены дюбеля. Шаг между отверстиями не должен превышать 80 мм.
Наиболее качественное крепление достигается за счет использования саморезов. Когда короб будет установлен, все щели следует «задуть» монтажной пеной. Можно использовать другие теплоизолирующие материалы.
При установке окон важно соблюдать геометрию. Углы должны быть строго 90°, отклонение не более 1 мм из расчета на 1 м
Резка стекла.
- Материал укладывают на ровную поверхность без бугорков. Это очень важный момент, ведь на неровной поверхности хрупкий материал может треснуть. Для работы подходит стол.
- Делается разметка. Затем на стекло необходимо положить линейку.
- Стеклорез следует прижать к материалу, а потом провести им по стеклу вдоль линейки. На материале должна остаться сплошная царапина.
- Стекло сдвигают на край стола, размещая так, чтобы линия отреза совпала с краем.
- Часть стекла, которая лежит на столе, следует придерживать одной рукой, а другой нужно слегка надавить на часть, висящую над полом. Нажим следует усиливать до тех пор, пока стекло не разломится по прочерченной стеклорезом линии.
Лучше всего заранее потренироваться на старом куске стекла, а потом уже вырезать новое.
Есть еще 1 вариант остекления. Нужно снять мерки, а потом заказать резку стекла в мастерской. Когда работа будет выполнена, материал следует забрать, привезти на дачный участок и вставить в раму.
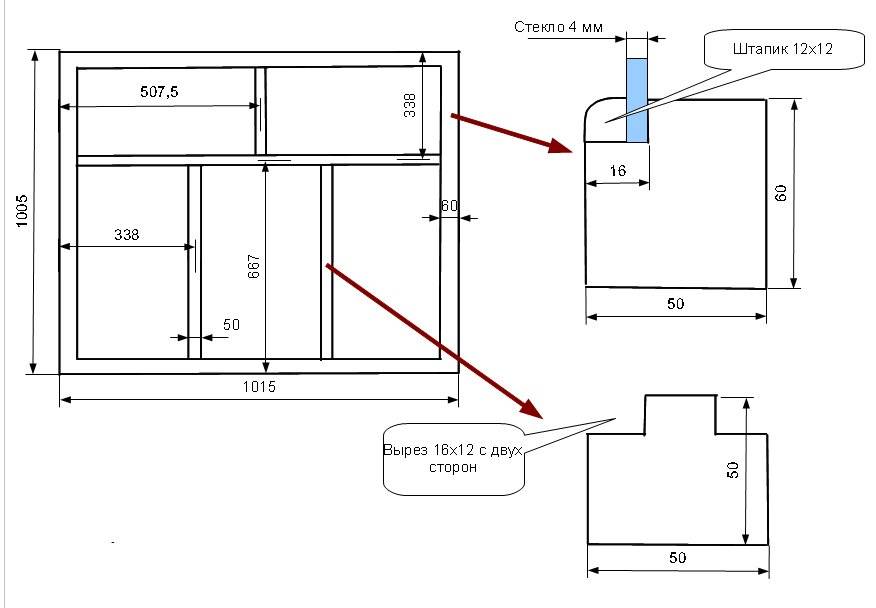
Установка стекла.
- Лист помещается в раму. Потом вынимается, по его краям наносится силиконовый герметик. Стекло устанавливают на место.
- Фиксация штапика. Каждый элемент рамы необходимо замерить. Штапик нарезают а концы выпиливают под углом 45°.
- Силиконовый герметик наносят на стекло в тех местах, где будет установлен штапик, который затем прибивают мелкими гвоздями.
В результате использования силиконового герметика и штапиков стекло будет надежно зафиксировано в раме и не будет щелей
Устанавливая окна, важно следить за тем, чтобы все щели были задуты монтажной пеной. Если их не убрать, то образуются мостики холода
Работая со стеклом и деревом, не следует забывать о защите. Руки закрывают перчатками, а глаза при резке стекла — специальными очками.
Устанавливая готовый стеклопакет в раму, не нужно забывать о монтаже подоконника. Он может быть выполнен из разных материалов. Когда окна будут надежно зафиксированы в проеме, их покрывают грунтовкой, а потом красят. Со стороны комнаты может быть использована любая краска, а вот для окрашивания стороны, выходящей на улицу, стоит использовать краску, устойчивую к перепадам температуры.
Как изготовить?
Деревянные окна можно сделать самостоятельно, однако для этого нужен хотя бы минимальный навык работы с древесиной и набор необходимых инструментов.
Для работы вам понадобятся:
- стеклорез;
- дрель;
- лобзик либо фрезер;
- молоток;
- рулетка;


- стамеска;
- рубанок.
- Естественно, понадобятся и материалы:
- клееный брус;
- клей для древесины;
- саморезы;
- дюбели;
- штапики;
- герметик.


Работы производятся в определенном порядке.
На первом этапе необходимо соорудить деревянный короб. В зависимости от габаритов окна он может быть большим или маленьким.
Чтобы изготовить раму, необходимо использовать доски размером 15х5 см. В заготовке необходимо сделать небольшое Г-образное пазовое отверстие на глубину примерно 1,5 см. Все базовые элементы крепятся друг с другом при помощи столярного клея, а для большей фиксации места стыков усиливаются стержнем длиной до 3 см, именно он будет основным фиксатором остальных элементов конструкции.
Затем идет непосредственно установка короба в подготовленный заранее оконный проем. Для этого нужно просверлить отверстия в стене, закрепить в них дюбели и при помощи саморезов зафиксировать короб, после чего места стыков обрабатываются герметиком.


Второй блок работ связан с изготовлением рамы, для этого используется брус размером 5х7 см, впрочем, толщина его может варьироваться в зависимости от толщины и размеров стекла, которое будет крепиться в ней. Если будет монтироваться одностекольный профиль, то будет достаточно всего лишь двух пазовых отверстий. В случае если профиль толще, количество отверстий должно быть увеличено.
Когда все основные детали изготовлены, необходимо приступить непосредственно к сборке рамы. Для это доски распиливают под углом в 45 градусов, а при помощи профиля формируется шипо-пазовое соединение, его усиливают саморезами.


Изготовление оконной рамы
29-09-2016
Изготовление оконной рамы
Начинаем изготовление оконной рамы
Нечасто в нынешние времена приходится делать окна своими руками, так что, раз появилась такая возможность, то надо бы это дело задокументировать. В наших окнах было решено использовать стеклопакеты, а значит наши оконные рамы будем делать одинарные и большого сечения.Итак, вводные данные (т.е. характеристики оконных рам):
- Сечения рамы и форточки будут у нас одинаковые.
- Толщина коробки и рамы 65 мм.
- Используемый материал – сосна.
- Брус – переклейка из нескольких ламелей.
Делаем профиль оконной рамы
Так как фрезерного станка у нас нет, то профиль рамы и форточки будем резать на циркулярном станке, с обязательным использованием гребенок. Всё делаем строго по чертежам, которые предварительно подготовлены.Обработка всех деталей рамы производится до сборки и склейки. Впоследствии при сборке очень пригодились пружинные зажимы и конечно быстрозажимные струбцины “Piher”, но фотографии таинственным образом испарились (однозначно происки конкурентов). Полная сборка рамы будет чуть ниже.
Форточка оконной рамы
Саму форточку мы будем собирать на соединение “шип-проушина”.Формировать шип и проушину мы будем с помощью шипорезного приспособления на круглопильном станке (кабинетная пила).Для этого предварительно выставляем глубину пропила, для удобства используем электронный глубиномер Trend Depth Gauge / D60После чего устанавливаем наше приспособление, настраиваем отступ от края заготовки и формируем контур нашего шипа двумя пропилами. Выполняем данную операцию со всеми заготовками.Теперь необходимо срезать лишнее и оставить только сам шип. Для этого используем каретку и работаем от упора, просто притянутого струбциной к каретке.Проушину изготавливаем при помощи того же приспособления, но меняем обычный пильный диск, на наборный диск DADO с необходимо нам шириной пропила.Теперь необходимо склеить и обработать раму нашей форточки.Приступим к сборке.Склеиваем на влагостойкий клей Titebond Ultimate III и стягиваем струбцинами Piher Maxi FПосле чего подчищаем грани форточки рубанком , в нашем случае это рубанок – оборотник Veritas Low Angle Jack Plane с малым углом установки ножа.Далее по уже готовой, склеенной раме форточки режем профили внешнего контура на кабинетной пиле от параллельного упора.Готово!
Собираем оконную раму
Пришел черед собирать нашу основную раму. Собирать будем “на ус” применяя закладные шипы, предварительно профрезеровав отверстия с помощью фрезера “домино”.И стягиваем всё это дело, опять же, струбцинами испанского производителя «Piher»После обработки пилой необходимо подчистить профиль нашей рамы, для чего мы используем фальцгобель и зензубель от канадской фирмы Veritas
Установка оконной фурнитуры
Пришел черёд установки замка и петель форточки на нашу раму.Для начала разметим места установки, для чего удобно использовать небольшой плоский угольник.После разметки, высверливаем отверстия для ручки под замок, для достижения точного угла в 90 градусов используем сверлильную стойку KanzawaСледом фрезеруем гнездо и постель под замок. Для этого используем фрезер с упором и установленной пазовой спиральной фрезой LeighПрямые углы у постели формируем с помощью угловой стамескиОсталось совсем немного, снимаем на раме фаску под 45 градусов, для чего используем фрезер с прозрачной базой и кромочную фрезу Fisch под 45 градусов с нижним подшипникомВ местах сочленения формируем прямые углы при помощи стамески с прямой режущей кромкой.
Покраска оконной рамы
На этом изготовление рамы завершено, осталось покрыть ее маслом для защиты от внешних воздействий.Вот и всё, вставляем стекла устанавливаем рамы в проем и любуемся видом из прекрасного окна, изготовленного и собранного своими руками!
Изготовление оконных переплетов
Для оконных переплетов необходимо подобрать бруски с квадратной или прямоугольной формы. На них не должно быть сучков, а также обязательное условие — сухость этого материала.
Для этих оконных элементов понадобится следующие инструменты:
- стамески;
- нож строительный;
- пила;
- бума наждачная;
- рейсмус;
- электродрель и шуруповерт;
- угольники;
- маркер;
- измеритель (линейка или рулетка).
Технологический процесс
Сначала проводится обработка брусков. Необходимо качественно зачистить их наждачной бумагой. Следующий шаг — нанесение с помощью рейсмуса отметок на 1 и 3 стороны бруска. Четвертую сторону выравнивают, процессом строгания. Основное условие при этом — добиться прямых углов у сторон бруса.

На обработанных брусках проделывают фальцы
Обращается внимание на то, чтобы в уже готовой раме они располагались в одной плоскости. Иначе сложно добиться необходимого уплотнения оконного стекла
Если для уплотнения будет использоваться штапик, то фальцы делаются более глубокие, чем для уплотнения замазкой. Необходимо иметь в виду, что мелкие фальцы не смогут сдерживать проникновения ветра.
При сборке обращается особое внимание на углы во время соединения деталей. Перпендикулярность можно проверить прикладыванием угольника
Если створки более 70 см, то в этом случае скрепление проводится при помощи уголков из металла.
В местах примыкания фрамуг к створкам выбираются четверти, препятствующие продуву ветра сквозь притворы. Для закрытия щелей притворов проводят обработку при помощи нащельника.
Процесс сборки
После завершения подготовительного процесса, можно перейти к сборке окна, которая начинается с короба.
Короб

Рама служит основой конструкции окна. Так как заготовки для нее уже готовы, можно приступать к их соединению. Для этого лучше всего использовать проверенный стык «шип-паз». Чтобы его реализовать в торце одной из деталей вырезаются шипы, которые по ширине должны соответствовать ширине доски. В ответной детали на местах шипов предыдущей делаются углубления, в которые они должны зайти. На иллюстрации можно видеть пример такого соединения. После того как детали рамы окна подогнаны, можно зафиксировать их. Для этого на соединение наносится клей ПВА или другой подходящий клей по дереву. Необходимо выждать несколько минут, чтобы он немного впитался. После этого детали рамы окна фиксируются.

Если оставить все в таком виде, то раму легко расшатать, и она деформируется. Чтобы такого не произошло, потребуется дополнительно укрепить стык. Для этого необходимо воспользоваться шкантом. Ровно по центру узла примыкания сверлится отверстие. В него вставляется деревянный цилиндр согласно диаметру отверстия. Предварительно его необходимо также пропитать клеем. Чтобы в процессе высыхания рамы для окон не потеряли свою конфигурацию, их можно зажать струбцинами.
Рама

По готовому коробу окна проще изготавливать раму для него, т. к. замеры уже проводятся по факту. Процесс замера лучше поручить тому, кто имеет опыт изготовления окон, т. к. есть значительное количество нюансов, которые сложно учесть при первом опыте. Минимальный размер бруса, который будет проще всего обрабатывать при изготовлении рамы окна имеет сечение 60 на 40 мм. Под окна, в которые будет вставлен стеклопакет, влажность древесины не должна превышать 12 процентов. Если говорить о породе, то лучше если это будет бук, дуб или граб.

Обратите внимания! Раму для окна лучше собирать из цельного бруса или из того, который был склеен не в длину, а в толщину
Это необходимо для большей жесткости окна, что особенно важно для створок, которые будут открываться

В случае установки стеклопакета потребуется паз как для одностекольной конструкции, но в этом случае он делается более глубоким, а его размер определяется толщиной стеклопакета. Чтобы паз под стеклопакет получился ровным и соответствовал требуемым характеристикам, лучше произвести обработку фрезером, а не стамеской. Стоит также понимать, что стеклопакет будет закреплен штапиком, поэтому под него также стоит предусмотреть зазор. По готовности всех заготовок для рамы можно приступать к их соединению. Но выполняться оно будет не так, как для короба. В этом случае потребуется сделать запил торцов под углом в 45 градусов, изготовив при этом шип и паз. Места стыков проклеиваются и откладываются до полного высыхания.

После высыхания рамы выполняется установка всех элементов фурнитуры. При этом необходимо быть внимательным, т. к. в соответствующих местах потребуется сделать запилы и выбрать необходимые углубления в коробе, в который будет осуществляться установка рамы окна. Видео о сборке доступной конструкции окна есть ниже.
Установка изделия
Следующий этап — установка подоконника. Чтобы это сделать, сначала придется очистить место монтажа, обить его дранкой и войлоком. Это позволит избежать потери тепла. Сам монтаж ведется с использованием раствора из извести и гипса. Для установки применяют деревянные клинья, затем все заливают раствором.

После того как раствор засохнет, можно укладывать доску. Ее монтируют с нижней части проема. 4 см на каждый конец доски будет достаточно. Это необходимо для укладки конструкции в откосы стены. Если стена каменная, то необходимо очистить борозды и затем подогнать доску. При помощи строительного уровня надо выровнять изделие, не допуская перекосов. Как только доска будет установлена, все зазоры нужно залить гипсовым раствором. Все поврежденные участки стены следует аккуратно оштукатурить согласно общей отделке.
Завершающий шаг — покраска изделия. Покрасить окно совсем несложно. Необходимо лишь помнить о следующем:

- Если окно не было покрашено до сборки, то переплет нужно обработать антисептиком. Особенно нужно следить за обработкой торцов, ведь именно оттуда обычно проникает вредитель.
- Поверхность перед покраской лучше прогрунтовать. Во-первых, грунтовка снижает расход краски, во-вторых, она помогает увеличить срок эксплуатации окна, играя роль антисептика.
- Красить рекомендуется в несколько слоев.
- Снаружи окно красят специальной краской для наружных работ, а вот изнутри можно использовать любую.
Деревянное окно своими руками сделать вполне по силам. Качество его будет не как у фабричной модели, но зато оно обойдется намного дешевле.
Читать еще
Деревянное окно своими руками и пошаговая инструкция для чайников
Конечно пластиковые окна давно завоевали наши с вами сердца. Однако для бюджетного способа замены окон подойдет именно деревянная рама. А если вы решили проводить такие ремонтные работы у себя на даче или-же на веранде, то деревянные окна можно сделать своими руками. Когда я пристроил веранду к своему дому, то сразу решил ее застеклить и вариант с пластиковыми окнами мне не подходил. Конечно производственные станки собирают оконные рамы намного лучше и быстрее, но ведь всегда хочется сделать что-то своими руками. А вот если соблюдать все правила обработки деревянного материала и технологию соединения частей, то вполне можно добиться хороших результатов. Сегодня мы рассмотрим пошаговую инструкцию по изготовлению деревянных окон.

Подготовка и вставка стёкол
Размеры стекла должны чётко совпадать с размерами проёма для того чтобы не образовывались микрощели, пропускающие холодный воздух с улицы. Поэтому, этап измерения должен проходить щепетильно, с точностью до 0,5 мм. Резать стекло рекомендуется алмазным саморезом, после чего – качественно отполировать края наждачной бумагой.

Рис. 3. Разрез стены для вставки стекол
Во время резки стекла обязательно помните о правилах техники безопасности:
- Надевайте защитные перчатки, чтобы случайно при работе со стеклом не изувечить кожу.
- Наряду с перчатками не пренебрегайте защитными очками: они оберегают глаза от попадания в слизистую строительных микрочастиц и стеклянных крошек.
- Во время работы со стеклом не рекомендуется дышать ртом или разговаривать, так как стеклянные крошки могут осесть на слизистой горла. Это не смертельно страшно, но приносит большой дискомфорт при напряжении голоса и вызывает болезненный кашель.
При нарезании стекла следует пользоваться измерительным прибором, длина которого превышает длину стекла, например, – металлической метровой линейкой. Зафиксировав точку надлома, стекло слегка придавливается рукой до тех пор, пока не послышится звук треска. Готовое стеклянное полотно нужно примерить, предварительно вставив его в проём.
Если размеры полностью совпадают, стекло сверху закрепляется штапиками и фиксируется тонкими гвоздями. В случае вставки двух и более дополнительных стёкол, посередине рамы монтируется вертикальный брус, имеющий идентичные пазы.
Каждая половина окна изготавливается отдельно друг от друга, а одна из них должна иметь более тонкую раму. Она соединяется с основной, посредством навесных петель, таким образом, создается открывающаяся створка. С помощью саморезов к раме крепится вспомогательная ручка, а в вертикальном брусе делается паз для закрывания створки.
Изготовление оконной рамы из фанеры

Фанера является основным предметом при изготовлении рамы. Можно также использовать фанерные полоски, что позволит избежать неточностей. Более пригодны для достижения этой цели листы, имеющие толщину от 10 до 15 мм.
Чтобы изготовить такую раму, хватит всего четыре полоски, которые скрепят их в своеобразный прямоугольник. Требуется сохранять прямой угол, когда нужно крепить раму
Важно учитывать все измерения, чтобы не получилось искажения из-за веса. Необходимо заранее подготовить детали шип-паз, выпил их может быть не удобен
Фанерная рама подходит для окон, не пропускающих шум, в которых используются до трех стеклопакетов одновременно.
При использовании стекла вполне хватает восьми фанерных досок, соединяющихся в 2 неправильных квадрата. Только потом, с помощью саморезов, детали скрепляют друг с другом.
Изготовление окон
Чтобы от начала и до конца изготовить окно из дерева своими руками,необходимо произвести следующие действия:
- Составление проекта;
- Изготовление и монтаж коробки;
- Изготовление оконной рамы;
- Установка и остекление рамы.
Ниже подробней ознакомимся со всеми этими этапами работы.

Пример схемы деревянного окна
Составление проекта
Прежде всего необходимо выполнить чертежи как сделать деревянное окно своими руками. Для этого надо определиться с размерами будущего изделия и его конструкцией. Соответственно, предварительно следует измерить оконный проем.
Чтобы правильно составить чертежи деревянных окон своими руками, можно ознакомиться с существующими проектами, и подобать из них наиболее оптимальный. В таком случае останется лишь подогнать размеры конструкции под оконные проемы здания.
В итоге выполненные чертежи окон своими руками из дерева должны отображать все детали изделия, а также их размеры, указанные обязательно в миллиметрах. Наличие такого проекта значительно упростит рабочий процесс, так как все нюансы конструкции будут у вас перед глазами. Соответственно, уменьшается вероятность допущения ошибок.
Ниже в качестве примера рассмотрим, как выполнить наиболее простую конструкцию – глухое деревянное окно своими руками.

Схема оконного короба
Изготовление короба
Короб является хоть и самым простым элементам окна, к его изготовлению нужно подходить очень ответственно, так как именно он принимает на себя всю нагрузку от окна. Для изготовления короба можно использовать лишь хорошо просушенные доски, без каких либо дефектов. Отличным вариантом являются сосновые доски, так как достаточно устойчивы к воздействию влаги.
Инструкция по изготовлению короба выглядит так:
- Работа начинается с выполнения заготовок. Для этого от доски толщиной 5 см необходимо отпилить четыре детали – две равные ширине проема, и две равные его высоте.
- Затем в торцах досок, которые будут укладываться по ширине проема, нужно лобзиком выпилить шип. У вертикальных же заготовок с торцов выполняются соответствующие пазы.
- Далее на каждой доске при помощи рубанка выбирается паз глубиной в 4 мм и шириной 50 мм.
- После этого короб собирается. Места стыков обязательно проклеиваются столярным клеем. Дополнительно конструкцию можно упрочнить металлическими уголками.
- В завершение работы короб вставляется в стену. Зафиксировать в проеме его можно разными способами, в зависимости от материала стен. Обычно используют нагели или дюбель-гвозди.

Готовая оконная коробка
Пространство между стеной и коробом задувается монтажной пеной. Кроме того, устанавливаются наличники, которые обеспечивают дополнительную фиксацию короба.

Варианты профиля рамы
Изготовление рамы
Перед тем как сделать окно из дерева своими руками,следует подготовить качественный, хорошо просушенный брус сечением 5х5 см.
Дальнейшая работа по изготовлению рамы выглядит так:
- Первым делом в брусе следует выполнить паз для установки в короб. Ширина паза должна составлять 20 мм, а глубина – 15.
- Затем выполняется паз с противоположной стороны для стекла и штапиков. Его глубина зависит от ширины стекла и размеров штапиков. Если планируется сделать раму двухстекольной, то паз выбирается с двух сторон бруса.
- Затем брус разрезается на четыре детали в соответствии с размерами, указанными в проекте. Углы деталей зарезаются под 45 градусов, в идеале желательно сделать соединение шип паз.
- Если окно достаточно большое, необходимо выполнить перемычку, чтобы разделить стекла.
- Далее места стыков деталей промазываются столярным клеем и собираются. Дополнительно рама укрепляется металлическими уголками, которые следует расположить на всех углах с двух сторон конструкции.

Металлический уголок для укрепления оконной рамы
На этом процесс изготовления рамы завершен.
Монтаж
Установка деревянного окна своими руками выполняется в таком порядке:
- Рама вставляется в короб и фиксируется саморезами, которые можно расположить под штапиками. Единственное, предварительно следует просверлить отверстие, чтобы рама не раскололась.
- Затем вырезаются стекла подходящего размера. Для этого используется стеклорез, которым нужно провести по линии реза, после чего аккуратно ее обстучать. В итоге окно должно отколоться по намеченной линии.
- После этого места прилегания стела к раме промазываются герметиком, после чего устанавливается стекло и закрепляется штапиками.
Теперь, можно считать, простое деревянное окно своими руками выполнено. Конечно, по желанию конструкция может быть усложнена. Но если вы подобной работой занимаетесь впервые, то лучше начать именно с такого окна.

Удаление старой краски

























































