Еще один вариант для дома
Иногда, чтобы начать заниматься, нужно немного полениться. Как? Ну, хотя бы при постоянном выполнении определенных упражнений не выходить на улицу. Маленький тренажерный зал у себя дома – это всегда хорошо. Особенно когда за окном идет дождь или снегопад. Конечно же, лучше оставаться дома! Но теперь в долгие вечера будет чем заняться. Ведь настенный турник, своими руками созданный, поможет разнообразить скудный запас гимнастических и силовых упражнений. Да, домашняя интерпретация уличного турника удобна для домашнего использования. Во-первых, настенный турник (своими руками сделанный) не занимает много места, что актуально в малогабаритных квартирах. Во-вторых, он не сковывает движения. В общем, настенный турник – это замечательный выбор для тех, кто не хочет ради занятий выходить на улицу или платить абонементы в спортзал.
С постройкой не должно возникать никаких вопросов. У него есть огромное преимущество: сухое и закрытое помещение. Нет никаких природных факторов, которые могли бы со временем повредить конструкцию. Итак, с чего начинать? Прежде всего, с основы. На чертеже она обозначена как квадратная рамка. Для простоты дела можно взять деревянный материал. С ним работать легче. Квадратная деревянная рама крепко скрепляется между собой шурупами или гвоздями. Бруски нужно брать толщиной не менее четырех сантиметров. Далее к раме требуется прикрепить подпорки, под углом девяносто и тридцать градусов. Получилось некое подобие двух треугольников, построенных на квадрате. К ним нужно прибить горизонтальную перекладину – и настенный турник, своими руками созданный, готов к использованию.
Турник в дверном проеме
Самый популярный вариант домашних турников. Для тренировок задействуется дверной проем, благодаря чему тренирующийся имеет достаточное пространство и спереди, и сзади. Однако такие турники часто бывают ненадежны.
Хотя турник в дверном проеме способен выдерживать 130 – 150 кг, на них не рекомендуется выполнять сложные упражнения, в частности упражнения в положении вниз головой. Из-за того, что оба конца турника углубляются в дверную коробку, порой бывает сложно оценить реальную надежность турника.
Со временем дерево может деформироваться, а надежность конструкции снизится. Крепление непосредственно к бетонной или кирпичной стене является более надежным, чем в дверную коробку.

Выделяют два вида турников в дверном проеме:
Раздвижной турник
Раздвижной турник монтируется в дверные проемы и отличается простотой установки и быстротой демонтажа. Однако стоит отметить, что самостоятельно такую конструкцию сделать довольно сложно. Кроме того, если она окажется некачественной, есть все шансы сломать либо ее, либо что-нибудь у себя.
Распорный турник
Крепится за счет внутренней распорной пружины. Такие турники обычно делают съемными. Обычно он выдерживает вес взрослого человека, однако из-за неправильного монтажа, раскачки при выполнении упражнений, или чрезмерной нагрузке может оборваться.
Плюсы и минусы самодельных конструкций
Можно сделать конструкцию, подходящую для всей семьи
Если собирать турник на стену своими руками, появляется возможность правильно укомплектовать все приспособления по собственному желанию.
Преимущества самодельной конструкции:
- возможность сделать изделие под габариты помещения, выбрать идеальное место во дворе;
- вероятность подогнать параметры под вес собственного тела, также добавить снаряды для детских занятий.
Минусы заключаются в затратах времени на проектирование конструкции, подбор материалов, порезку, сборку и монтаж. В квартире сложно работать со сваркой, если поблизости нет для этого гаража.
Турник в дверной проем «шип»
Указанная конструкция монтируется посредством распорки в проеме дверей. Надежное крепление обеспечивается без сверления коробки, из инструмента потребуется отвертка или дрель, а также инструкция по установке. Как правило, спортивный снаряд покрывается специальным напылением, противостоящим скольжению рук, подходит для новичков и профессиональных атлетов.
Плюсы тренажера:
- Возможность монтажа без сверления.
- Снаряд выдерживает нагрузку до 150 кг.
- Предусмотрен удобный хват для рук.
Среди недостатков потребители отмечают необходимость регулярного подтягивания фиксирующих гаек, верхний слой краски со временем шелушится и стирается.
Как выбрать, если решено купить турник
Прежде чем приобрести снаряд, необходимо учесть некоторые нюансы. Например, количество свободного места в квартире определяет удобство во время занятий спортом и для спортсмена, и для домочадцев.



В маленьких квартирах часто устанавливают дверной, потолочный и угловой тип конструкции, а в больших комнатах можно установить напольный тип. При выборе также нужно учесть максимальную нагрузку, которую способен выдержать тренажёр. К своему весу нужно прибавить и вес спортивного инвентаря, который будет использоваться при занятиях. Следовательно, к исходной цифре прибавьте 15-20 кг.
Виды турников
Для поддержания спортивной формы желательно иметь дома спортивные снаряды. К самым простой из них относится турник. Это одна или несколько перекладин небольшого размера, которые позволяют тренировать мышцы рук, груди, пресса и спины. Надо только найти подходящий комплекс упражнений.

Один из простых вариантов
Для дома (квартиры)
В доме обычно найти место для турника проще. В квартире обычно это сделать посложнее, поэтому многие ищут варианты, которые занимают немного места, легко снимаются и устанавливаются: чтобы можно было хранить, скажем, в шкафу и вешать только на время занятий. Для использования в помещениях есть такие модели:
- Настенные. Есть разных размеров и конструкций — от простой перекладины на уголках, до более сложных конструкций под разные хваты и разные группы мышц. Имеют общий тип крепления: мощные уголки, которые крепятся непосредственно к стене.
- Угловые. Одна из разновидностей настенных. Разница понятна из названия — крепятся к двум смежным стенам, образующим угол.
- В дверном проеме. Требует минимум времени для изготовления, да еще и может быть съемным. Есть в двух вариантах:
- Устанавливается в дверном проеме. Это обычно просто одна перекладина. Более сложную конструкцию тут все равно не укрепишь.
- Крепится над дверью. Чуть более сложная конструкция, позволяющая разнообразить занятия.
Два небольших настенных турника: один для подтягивания, другой для жима и «уголка»
Модель 3 в 1
В дверном проеме или в узком коридоре
Способы крепления съемного турника в дверном проеме
Потолочное крепление
- Между двух стен в узком коридоре. Это разновидность турника, который устанавливается в дверном проеме. Просто длина у него больше.
- Потолочный. Отличается тип монтажа: крепится конструкция на перекрытие.
Какой тип выбрать — зависит от комплекса упражнений, который вы планируете выполнять. Для обычных подтягиваний достаточно даже обычной палки в дверях. На ней можно регулировать ширину хвата в пределах ширины дверного проема. Для более сложных комплексов потребуется нечто более серьезное.
На улице
Уличный турник, обычно, более сложная конструкция. Минимум — две стойки, вкопанные глубоко в землю, к которым кроме перекладины могут быть приварены еще и брусья и/или перекладина. Еще может быть наклонная скамья. Это минимум для тех, кто серьезно занялся своей формой.
Есть совсем простые уличные турники — две стойки с перекладиной, есть целые комплексы
Универсальный вариант — со шведской стенкой и устройствами для прокачки всех групп мышц
Мини-спортивный комплекс на заднем дворе
А вообще, можно на наружной стене дома повесить настенный турник — вариант для летних тренировок.
Турники в дверной проем
Распространенные конструкции турников для дверей показаны на рис. Для самостоятельного изготовления они мало пригодны: на изогнутые штанги-«рога» приходятся, из-за большого отношения плеч рычага, высокие нагрузки, поэтому делать их нужно из спецстали
И, обратите внимание – сборка только на болтах. Сварочные швы под такими нагрузками ненадежны

Турники в дверные проемы промышленного производства
Еще хуже обстоят дела с нагрузками на узел крепления к стене. Там отношение плеч доходит до (10-15):1 и нагрузки возникают колоссальные, а стена в этом месте, как правило, ослаблена. Если же главный в доме атлет, уходя, забудет снять турник, а слабой половине понадобится закрыть дверь, то недолго и до травмы: в процессе установки/снятия железина под 20 кг весом неизбежно оказывается над головой. В общем, домашние турники такого типа скорее маркетинговый ход.

Неудачные способы крепления турника к стенам и потолку
Полезнее и уж точно надежнее будет самодельный турник, устанавливаемый в дверной проем или коридор в распор или на боковых держателях. Тут есть определенные тонкости. Во-первых, съемная перекладина (гриф), вкладываемая в U-образные карманы (слева на рис.) неизбежно даст люфт. Заниматься, когда планка ходит в руках, неудобно и не весьма полезно, но, что хуже – резкие мгновенные нагрузки передаются строительным конструкциям. Которые на них ну никак не рассчитаны. Жесткое крепление к потолку (в центре) немногим лучше; человек-атлет – не люстра. И уж совсем недопустимо мягкое крепление с сосредоточением нагрузок, справа.

Надежные крепления домашних турников в проемах
Любительская конструкция турника в проеме приведена на поз. 1 рис. Подпятники установочных узлов – стальной лист 5 мм. Возможность съема грифа обеспечена удлиненной прорезью в нем с одного конца; сама перекладина короче ширины проема. Продольные прорези в обоймах установочных узлов обеспечивают плотный зажим грифа при стяжке болтами. Условия надежности такой конструкции таковы:
- От конца удлиненной прорези до края грифа – от 30 мм;
- Прорези в обоймах должны заходить за задние края отверстий под болты, но не более чем на 3-4 мм;
- Цельные края установленного грифа должны выступать за внутренний край прорезей в обоймах не менее чем на 30-40 мм.
Недостаток этой конструкции – «патроны», торчащие из стен прим. на 120 мм. Конструкция с зажимом перекладины гайками (поз. 2) позволяет уменьшить вылет узлов крепления до 50-60 мм, но все равно торчит, и резьбовые штыри травмоопаснее обойм из отрезков труб.
Оптимальная по механике и эргономике конструкция турника в проеме – с креплением грифа на бонках, поз. 3. «Саморез» там показан условно, на самом деле это болт от М12 в анкере, заглубленном в бетон не менее чем на 130 мм. Преимущество такого крепления также в том, что для установки/снятия грифа не нужен инструмент: резьба винтовых распоров в одного конца правая, а с другого – левая. Для установки гриф ставят по месту, распоры вывинчивают, пока те не упрутся слегка в бонки, и поворачивают перекладину руками. Только не переусердствуйте: фиксация «мертвая» и при небольшом провороте; если своими «клешнями» приложится здоровый дядя, то, неровен час, снимать турник придется болгаркой. Недостаток системы на бонках – требуются довольно сложные токарные работы.
И детям!
Вообще, турник для взрослых в проеме это, как говорится, паллиатив. Другое дело – начинающие крепыши. Статические нагрузки от них меньше взрослых соответственно весу, а динамические – на порядок, т.к. здесь действует квадрат мгновенной скорости перемещения частей тела. Поэтому детский турник в дверном проеме допустимо прикреплять непосредственно к раме двери, а его несущую конструкцию выполнять из прочного мелкослойного дерева лиственных пород.

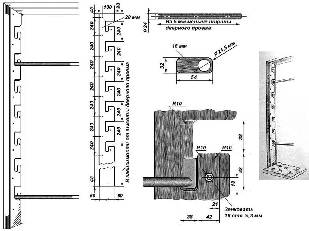
Детский турник – шведская стенка в проеме двери
Схема и чертежи детского турника такого типа, совмещенного со шведской стенкой, приведены на рис. Трубы – сталь 20х1,5; деревянные детали – дубовая доска от 20 мм. Достаточная прочность и надежность обеспечены большим количеством точек крепления. Конструкция и соотношения размеров деталей установочных узлов позволяют выполнять и некоторые гимнастические упражнения.
О рукоятках
Крепко сидящие на местах и ухватистые рукоятки самодельных турников получаются из термоусаживаемых трубок (ТУТ) диаметром на 20-30% больше наружного диаметра трубы. Продаются ТУТ в радио- и электротехнических магазинах; усаживаются прогревом бытовым феном на полной мощности. Один слой усаженной ТУТ имеет толщину ок. 1,5 мм; слоев может быть несколько. Рифленые рукояти можно получить с помощью узких колец из тех же ТУТ. В общем, дешево и сердито.
Особенности турника
Турник – спортивный снаряд, где нагрузкой является собственный вес занимающегося
Снаряд подходит для занятий людей разного уровня подготовки, массы тела, возраста. Размеры профессиональных турников регламентируются правилами Международной федерации гимнастики.
Нормативные габариты:
- планку ставят на уровне 2,78 м от уровня опорной поверхности;
- длина перекладины составляет 2,4 м;
- толщина не больше 2,8 см.
При индивидуальном изготовлении размеры берут с учетом роста конкретного пользователя. На занятиях человек использует вес собственного тела, другие усилители тяжести не применяет. Снаряд активно используют не только для улучшения формы, но и во время реабилитации после операций, травм мышц и костей.
Какую перекладину выбрать из исходных данных
Среди разнообразия турников не редко возникает дилемма, какую же перекладину все-таки установить. Конечно все зависит, как упоминалось, от предпочтения и возможностей, поэтому можно рассмотреть еще ряд нюансов при выборе турника, который поможет определиться.
Снаряд для дверного проема распорного типа имеет дополнительные крепления шурупами. Такой вид турника может выдерживать и до 200 килограмм. Также такая перекладина может иметь дополнительную функцию, предотвращающую скольжение рук. Стоят такие перекладины до 1000 рублей. Еще существуют перекладины распорного типа без дополнительного крепления шурупами. Это осуществляется из-за того, что в конце каждого распорного типа имеются определенные шипы, которые могут врезаться в стену на расстоянии около 1,5 сантиметров. Такие турники устанавливаются очень быстро – в пределах пары минут и выдерживают до 150 килограмм. Также такие снаряды могут иметь эффект предотвращение скольжения рук. Стоимость такого турника – до 1800 рублей.
Еще существуют турники с полимерным покрытием, которые способны защищать руки от скольжения и возможных мозолей. Эти турники могут выдержать до 150 килограмм.
Настенные турники могут иметь прорезные рукояти и выдерживать до 200 килограмм. Также на них можно подвешивать боксерскую грушу. Турники-брусья могут иметь скудную конструкцию, а некоторые их модели и опорную спинку. Такие турники стоит выбирать, если есть цель работать со всеми группами мышц. Однако и стоимость подобного вида турников будет не дешевая: около 10000 рублей. Также такие турники могут дополнительно быть оснащены держателями и разного рода штангами, однако это более серьёзная установка и требует большего пространства, нежели дверной проем.
Во время покупки турника в целях занятий спортом в домашних условиях нужно обращать внимание на площадь вокруг дверного проема. Именно потому прежде всего оптимальным вариантом всегда будет съемная модель, если позволяет рост пользователя
Если же место в квартире может выделить около 1,5 метра свободной площади, то можно присмотреться к варианту с турником-брусьями. Это гораздо расширит возможности выполнения упражнений.
А если же площадь совсем не играет роль и позволяет устанавливать любой турник, то можно присмотреться к напольным турникам, что включают в себя ряд нужных снарядов для разнообразного выполнения работ. Но нужно учитывать, что такие модели будут стоить не дешево.
Как сделать турник для квартиры своими руками — фотоотчет
Даже для самой сложной настенной модели достаточно 2-2,5 метра профильной трубы и около 1,5 метра круглой. Чтобы сделать турник для дома своими руками, предварительно распечатан листок с выбранной моделью и размерами.
Для каркаса использована профилированная металлическая труба 20*30*3 мм, для перекладины и «ручек» — остаток от карниза для штор советских времен. Труба тонкая, но до сих пор выдерживает. Для начала при помощи болгарки профильную трубу распилил на куски нужной длины.
Начало — нарезаем трубы на куски нужной длины, запиливаем угол упоров

На схеме нет угловых упоров, они сделаны «на глаз». Угол — около 50°. Далее дело за малым — сварить. При помощи инверторного сварочного аппарата это не слишком сложно. Тем более что труба имеет толстую стенку: 3 мм варится нормально.
Получились две половины каркаса в виде буквы «Г» — их надо соединить перемычками. Чтобы стойки каркаса были параллельны, используем планки, которые фиксируют детали на одинаковом расстоянии. Заодно из обрезков трубы из нержавейки внизу привариваем ручки, за которые будем держаться при прокачке пресса.
Чтобы расстояние между стойками было одинаковым, используем рейки

Для плотного примыкания круглой трубы и прямоугольной, в стойке болгаркой выпилен полукруг. Пришлось дорабатывать напильником, но прилегание очень хорошее. Осталось обварить.
Оформление примыкания круглой и прямоугольной трубы

Чтобы приварить к круглой трубе рукоятки для узкого хвата, в отрезках трубы тоже формируем выемки. Варить их сложнее — толщина трубы значительно меньше. И вообще, под сварку нержавейки идут другие электроды. Из-за недостатка опыта швы получились некрасивые, но без явного брака.
Дальше надо согнуть трубу по краям. Для этого в трубу вставляем прут меньшего диаметр, берем газовую горелку, разогреваем место сгиба, сгибая понемногу. Согнуть надо на 30°. Для этого на полу мелом нарисовал угол, сгибая сверялся по начерченным линиям.
Добавляем «держалки» для узкого хвата, сгибаем и можно красить

На болгарку надеваем наждачный круг, зачищаем места сварки. Потом, кругом с меньшим зерном снимаем налет со всей конструкции, дополнительно зашлифовывая швы. Готово под покраску. Краска в баллончике, наносилась в три слоя.
Крюки для навешивания турника тоже сделали своими руками

Для крепления на стену, из полосы металла 15*4 мм сделаны крюки. Согнуть было непросто — зажав в щипцах целый кусок, удалось загнуть с двух сторон. Готовые крючки отрезали по нужной длине и просверлили отверстия под дюбели. Использовано сверло диаметром 8 мм, рассверлены на 12 мм под шляпки крепежа. Крюки зачищены и покрашены той же краской.
Перед тем как сделать турник, определитесь с местом где его будете вешать

Почти все готово. Осталось сделать подушки под плечи. Для основания взяты куски фанеры, на них — тонкий мебельный поролон в два слоя, обтянутый экокожей с отверстиями. Для крепления кожзама использованы скобы и строительный степлер, но можно воспользоваться и мебельными гвоздями, если степлера нет.
Делаем подушки под плечи

По опыту эксплуатации: крюки на стену стоит делать длиннее, под три дюбеля как минимум. И еще: конструкция была доработана — ручки для узкого хвата в том варианте, что на картинке, неудобны, поэтому приварена еще одна перекладина.

Добавлена перекладина
Самодельный домашний турник получился тяжеловатым — 19,8 кг, но в таком виде он более удобен.
Источники
- https://SuperBody.click/trenazhery/turnik-svoimi-rukami.html
- https://playboyrussia.com/sport/kak-sdelat-turnik-svoimi-rukami-podrobnaya-instrukciya-129651/
- https://kak-sdelano.ru/raznyie-poleznyie-sovetyi/domashnij-turnik-svoimi-rukami
- https://remboo.ru/uchastok/postrojki/turnik-svoimi-rukami.html
- https://vopros-remont.ru/obshhie-voprosy/turnik/
- http://guru-remonta.ru/obshhie-voprosy/turnik-domoj.html
- https://stroychik.ru/raznoe/turnik-svoimi-rukami
- https://gipsohouse.ru/walls/remont/12174-kak-bystro-i-prosto-povesit-turnik-na-stene-vybor-instrumentov-dlya-raboty-etapy.html
- http://DekorMyHome.ru/remont-i-oformlenie/domashnii-tyrnik-svoimi-rykami-cherteji-shemy-foto.html
- http://lenpas.ru/stati/turnik-svoimi-rukami-chertezhi-kak-sdelat-doma-3-v-1-brusya-press.html
- https://www.forumhouse.ru/journal/articles/8378-shvedskaya-stenka-turnik-i-brusya-svoimi-rukami
Небольшой FAQ
1. Что делать, если высота потолка меньше, чем получается по вышеприведенной формуле?
В любом случае, минимально допустимым расстоянием от перекладины до потолка является 32 см (вне зависимости от роста, возраста и пропорций тела спортсмена, кроме исключения, описанного в п.3).
Если это расстояние сделать меньше, то при особо энергичных подъемах, сила инерции может привести к соприкосновению головы с потолком, что деморализует спортсмена и неприятно само по себе.
Поэтому, если потолки в помещении слишком низкие, то перекладина просто закрепляется на расстоянии 32 сантиметра от потолка, а высота от пола — какая получится. Положение виса при этом будет возможно только с ногами, поджатыми в коленях. Разумеется, этот вариант не слишком удобен, поэтому желательно его избегать.
2. Что делать, если я хочу подтягиваться все выше и выше?
Иногда, в качестве подготовки к упражнению «выход силой», спортсмены осуществляют нестандартное подтягивание, когда подбородок поднимается СУЩЕСТВЕННО выше перекладины.
В таком случае расстояние между потолком и перекладиной необходимо соответственно увеличить, чтобы в самой верхней точке подъема расстояние между макушкой головы и потолком было не менее 2 см.
3. Что делать, если у меня гидроцефальная голова (привет Медведеву)?
Не беда! Необходимо всего-навсего пропорционально увеличить расстояние от перекладины до потолка, чтобы исключить возможность повреждения потолочного покрытия и избежать последующего дорогостоящего ремонта.
Турник на улице
Уличный турник с возможностью гимнастических упражнений представляет собой достаточно сложную систему, занимающую немало места, см. рис. Там же показано, как определяются его базовые размеры. Заглубление под бетонирование указано минимально допустимое; на самом деле оно должно быть более нормативной глубины промерзания не менее чем на 0,2 м. Цепи необходимы для гашения рывков; тросы при интенсивном использовании не выдержат.

Схема установки уличного гимнастического турника с оттяжками

Чертеж уличного турника брусья-пресс 3 в 1
На даче или в небольшом дворе частного дома можно поставить уличный турник 3 в 1. Его устройство и основные размеры даны на рис. справа. Конструкция позволяет выполнять и кое-какие маховые упражнения, особенно если сделать спинной упор съемным, но на свежем воздухе хочется поразмяться основательнее. Возможно ли соорудить на ограниченной площади настоящий гимнастический турник без оттяжек, цепей, талрепов, сложных соединительных узлов, многих скважин? Да, если учесть приведенные в начале сведения по механике и прочности.
Первое – никакой сварки. Микротрещины в проржавевших швах делают внезапное их разрушение под нагрузкой весьма вероятным, а нагружен турник тогда, когда на нем человек. Болтовые соединения разбалтываются, но скрип, лязг и люфт грифа вовремя дадут знать, что нужно осмотреть и поправить. Второе – никаких углов или сгибов. Гриф должен быть консольным, с небольшим вылетом концов. Нагрузка оттечет от мест стыка стоек с грифом в консоли, и конструкция получится достаточно надежной. Для гашения рывков при интенсивных упражнениях на концы консолей можно наварить грузы по 3-5 кг. Третье – стойки (труба от 80х80х3 или от 100х3 круглая) с подпятниками 300х300 мм толщиной от 6 мм.
Как устроен уличный/дворовый гимнастический турник без оттяжек, ясно из рис. Бетонирование – на менее чем на 120 см. Под головки болтов от М12 подкладываются шайбы от 30х2; такие же под гайки, и под них же – пружинные разрезные шайбы (шайбы Гроувера или просто гроверы). Контрить гайки не надо, при характерных для гимнастических упражнений нагрузках это только лишние детали и работа.

Устройство уличного гимнастического турника без оттяжек
Виды турников
В зависимости от конструкции и способа крепления, выделяют следующие разновидности турников:
Настенный турник
Конструкция турника предполагает вертикальное крепление к стене анкерными болтами (в двух, иногда в четырех местах). Надежный вариант для домашнего турника. Крепление к стене придает конструкции устойчивости.
Настенный турник можно монтировать только на надежную стену из бетона или кирпича. На тонкие деревянные или гипсокартонные перегородки такой турник устанавливать нельзя.
Угловой настенный турник
Вариант настенного исполнения, при котором крепление турника осуществляется в углу, между двумя перпендикулярно расположенными стенами. Угловое расположение позволяет создать дополнительное пространство для тренирующегося, задействовав угол.
Наддверный турник

Турник монтируется над дверным проемом. Таким образом, во время выполнения различных упражнений, корпус и ноги тренирующегося могут уходить в дверной проем.
Турник в дверном проеме
Самый популярный вариант домашних турников. Для тренировок задействуется дверной проем, благодаря чему тренирующийся имеет достаточное пространство и спереди, и сзади. Однако такие турники часто бывают ненадежны. Хотя турник в дверном проеме способен выдерживать 130 – 150 кг, на них не рекомендуется выполнять сложные упражнения, в частности упражнения в положении вниз головой. Из-за того, что оба конца турника углубляются в дверную коробку, порой бывает сложно оценить реальную надежность турника. Со временем дерево может деформироваться, а надежность конструкции снизится. Крепление непосредственно к бетонной или кирпичной стене является более надежным, чем в дверную коробку.
Выделяют два вида турников в дверном проеме:

Распорный турник
Крепится за счет внутренней распорной пружины. Такие турники обычно делают съемными. Обычно он выдерживает вес взрослого человека, однако из-за неправильного монтажа, раскачки при выполнении упражнений, или чрезмерной нагрузке может оборваться.
Раздвижной турник
Фиксируется посредством выдвижных телескопических труб. Крепится анкерными болтами, поэтому считается более надежным, чем распорный.
Турник в проеме между двумя стенами
Аналог турника в дверном проеме, но турник крепится не в дверную коробку, а непосредственно к стенам.

Далеко не во всех помещениях есть возможность для такой установки, но если такая возможность имеется, то это отличное место для турника.
Потолочный турник
Турники, крепящиеся к потолку во многом похожи на турники с настенным расположением.
Потолочные турники бывают самой различной конструкции, от самых простых, до более сложных, подразумевающих возможность подтягивания разным хватом.
Турник, комбинированный с брусьями
Эффективный комплексный снаряд, позволяющий существенно расширить возможности для тренировок, добавив к подтягиваниям еще и отжимания на брусьях.
Если есть такая возможность постарайтесь сделать для себя именно турник, комбинированный с брусьями, т.к. брусья задействуют дополнительные группы мышц, и в комбинации с турником дадут более существенный результат.
Для каких упражнений предназначен
С перекладиной, установленной в дверном проеме, можно всегда поддерживать собственное тело в хорошей форме. В список доступных упражнений входят:
- Подтягивания. Позволяют накачать бицепсы и трицепсы, все зависит от хвата, который может быть прямым либо обратным.
- Классический вис. Служит для вытягивания продольных мышц на руках.
- Раскачивание. Помогает проработать мускулатуру спины, рук, брюшной зоны.
- Подъем ног. Желательно поднимать конечности строго под прямым углом, это благотворно отразится на состоянии пресса.
Домашний турник позволяет проводить каждую свободную минуту с пользой для организма. Можно подтянуться несколько раз или просто повисеть для разгрузки мышц спины, улучшения осанки, корректировки сколиоза. Полувисы с упором на ноги тоже благотворно влияют на организм. С их помощью вытягивают и укрепляют позвоночный столб.
Занятия на турнике способствуют укреплению мышечной массы, увеличению рельефа мускулов, корректировке веса. Кроме того, можно привлечь к активному образу жизни всю семью.
Подтягивания
Классический вис
Раскачивания
Подъем ног
Особенности
Турник – одно из спортивных приспособлений, подходящих для дома. Занятия на этом тренажере развивают мышцы рук, спины, брюшного пресса и бедер. Хорошо, когда имеется возможность поставить турник на улице, где его использование дает простор для выполнения различных силовых упражнений. Но если такой возможности нет, турник можно установить в помещении. Для домашнего использования существует несколько видов тренажеров:
- напольный;
- крепящийся на стене;
- подвесной;
- междверный или межпроемный.




Турники для дверного проема по принципу крепления бывают:
- раздвижные;
- распорные;
- навесные;
- съемные.
Распорный снаряд представляет собой перекладину, оборудованную системой пружин, с помощью которых он крепится в дверном проеме либо между двумя стенами. Из-за способа крепления снаряд считается съемной конструкцией, но если для его фиксации использовать шурупы, он станет неотъемлемой частью дверного проема.

Для крепления раздвижного турника используются шурупы, дюбеля или анкерные болты. Конструкция получается постоянной и более надежной. Удобство этого тренажера состоит в том, что его можно подогнать под двери любой ширины, главное, чтобы телескопические трубы не выходили на полный вылет, сохраняя жесткость конструкции. Полная длина раздвижного турника должна превышать ширину проема минимум на 10 см для обеспечения безопасности при занятиях.
Съемные тренажеры имеют самое простое конструктивное решение: стальная перекладина длиной на несколько миллиметров короче ширины дверного проема укладывается в проушины.


Виды турников
Турники различаются по своим свойствам, материалу и виду. В зависимости от того, в какие стены будет монтироваться турник, будет зависеть и то на сколько качественно и безопасно будет такое сооружение
Также стоит обратить внимание на предполагаемый максимальный вес, который будет использован на турнике. Прежде всего нужно очень бдительно рассчитать все варианты, чтобы избежать поломок или травм
Также существуют такие виды турников, которые уже в готовом виде продаются под дверные проемы и их нужно всего лишь приобрести. Однако это не всегда выгодно и практично. Монтируемый турник, в отличии от купленного, не требует много места для хранения и произведения больших затрат.
Итак, турники в дверной проем различаются по таким видам:
Дверной турник. Или традиционный турник в дверной проем. Это самый прозаичный и простой турник для дома, который многим знаком и представляет из себя перекладину, которая крепится в дверном проеме или в любом другом проеме в квартире. Также такие турники могут быть как съемными, так и несъемными. Это самый бюджетный, негромоздкий и распространенный вариант турников. Он не требует изощрённости в установке и каких-то дополнительных затрат. К тому же, такой турник и так встречается в каждом втором доме. Однако у него есть существенный недостаток: он не для всех подойдёт. Нужно помнить цель и предназначение турника. Не для всех людей разрешены любые виды упражнений
Поэтому сначала нужно обратить внимание на здоровье и целесообразность для пользователя такого снаряда. К запрещаемым видам упражнений на таком турнике относятся те упражнения, что выполняются вниз головой
Также на таких турниках существуют весовые ограничения. Может показаться не серьёзным такое предостережение, однако подобного рода турник способен выдержать только до 130-140 килограмм. Стоимость таких турников колеблется от 900 до 1600 рублей.

- Настенный турник. Этот турник является более надежным и самым функциональным из всех видов турников, в отличии от других моделей для дверных проемов. Такие снаряды позволяют выполнять все виды упражнений, также включая и упражнения с выполнением вниз головой. Такой турник нужно прикреплять анкерными болтами в 10 миллиметров в отношении вертикального положения к поверхностям стен. Однако у такого турника существуют ограничения при установке: он способен закрепляться исключительно на бетонную или кирпичную стену. Это ограничение означает, что на перегородку из гипсокартона или в панельные дома подобные турники устанавливать нельзя. Также настенный снаряд может быть съемным и складным. При съемном снаряде на стене будут оставаться его крепления. Цена настенного турника зависит от производителям и варьируется от 800 до 10000 рублей.
- Турник-брусья. Данный вид снаряда можно в некотором роде назвать подвидом настенного турника, поскольку состоит из нескольких поперечных перекладин, которые чаще всего устанавливаются перпендикулярно по отношению к перекладинам рукоядок. Брусья же закрепляются анкерными шурупами. Но это не изменяет того факта, что вся конструкция может оставаться съемной, что позволяет крепиться в нескольких положениях. Также она может быть складной.

- Наддверной турник. Это более удобный, простой и компактный вид турника. Такой спортивный снаряд закрепляется над дверным проемом. Его также условно можно назвать подвидом настенного турника. Это одна перекладина, что находится на расстоянии от стены с небольшим промежутком. В период выполнения такого упражнения все туловище и ноги тренирующегося могут уходить в проем двери. Это конечно может повлечь некоторые ограничения при выполнении из-за небольшого расстояния стены.
- Угловой турник. Это также условно один из подвидов настенного турника, хоть и нетипичный. Данный турник закрепляется параллельно к углу стен.
- Напольный турник. Это не просто спортивный снаряд, а целый комплекс сооружений. Это брусья для выполнения тяжелых и сложных силовых упражнений. В зависимости от разного вида и производства, такие турники могут быть укомплектованы различными держателями, скамейками, боксерской грушей и штангами. В таких турниках можно самостоятельно определить положение и отрегулировать под собственные предпочтения. Цена такого турника может составить от 4000 до 20000 рублей: все зависит от комплектации и производителя.
Выбор высоты и размеров
Для квартиры лучше выбрать съемную модель
Турник, который не надо крепить к стене, выбирают по определенным параметрам.
- Рост пользователя – перекладину ставят так, чтобы занимающийся слегка не дотягивался до нее вытянутыми вверх руками. Нужно помнить, что дети растут быстро, снаряд нужно периодически переставлять.
- Вес модели рассчитан на определенные нагрузки. Максимально допустимый вес пользователя – 200 кг.
- Материал – перекладина изготавливается из стали, ее поверхность должна быть ровной, без сколов и шершавости. Предпочтительнее варианты с полиуретановыми ручками, так как с такого покрытия не соскальзывают потные ладони.
- Место крепления – в проем устанавливают только распорные и телескопические модели. Причем первые не повреждают косяк.

























































