Немного о пеноблоке
Главной особенностью материала заключается в том, что он имеет значительные размеры. С помощью таких блоков можно возвести дом за короткое время. При этом процесс не нуждается в наличии большого количества рабочих. В результате это позволит не только быстро получить дом своей мечты, но и сэкономить на строительстве. Обладая определенными навыками и знаниями, все работы можно выполнить своими руками.

Пеноблоки имеют определенные размеры
На строительство небольшого дома пойдет немного времени. Зачастую достаточно всего несколько месяцев. После сооружения коробки можно сразу приступать к проводке инженерных систем и проведению отделочных работ. Это является несомнительным преимуществом блоков, так как позволяет ускорить заселение в новый дом.
Изготовляются блоки по довольно простой технологии. На первоначальном этапе происходит смешивание основных компонентов: цемент, песок, вода и пенообразователи. Именно последняя составляющая придает материалу пористую структуру. В дальнейшем происходит замес раствора и заливка форм.

Из них сооружают разные строения
Один блок весит близко 25 кг и имеет довольно большие размеры. Зная такие параметры, можно выполнить расчет необходимого количества материала для возведения того или иного строения. В среднем на 1 м2 потребуется чуть больше 8 блоков. Кладка проводится на специальный клей или цемент. Применение клеевого состава отличается повышенной прочностью. В результате получается надежная конструкция, способная выдерживать любые нагрузки.

Материал обладает многими преимуществами
Достоинства материала
Перед тем как проектировать дом и покупать материал, необходимо тщательно рассмотреть все его достоинства и недостатки. Что касается преимуществ, то здесь стоит выделить следующее:
- Невысокая стоимость. Блоки стоят недорого. Специалисты рекомендуют закупать материал с некоторым запасом. Это связано не только с проведением подрезки блоков, но и их хрупкостью. Но даже несмотря на это, материал обойдется довольно дешево.
- Незначительный вес. Блоки имеют большие размеры, но при этом весят немного. Это позволяет несколько упростить кладку. Сооружения из пеноблоков оказывают незначительную нагрузку на основание. Это исключает потребность в возведении прочного монолитного фундамента.

Стены возводятся очень быстро
- Простота в обработке. Благодаря пористой структуре блоки легко поддаются порезке и распилу. В результате можно получить отрезок необходимых размеров.
- Экологичность. Для изготовления материала используют безопасные компоненты, которые не вызывают аллергических реакций. В доме из пеноблоков создается оптимальный микроклимат.
- Высокие тепло- и звукоизоляционные свойства. Такие эксплуатационные характеристики обусловлены наличием пор в структуре блоков.

Строительство можно выполнить своими силами
Если кладка проведена правильно, то в результате получается ровная поверхность, которая легко поддается отделке. Это возможно, благодаря геометрически ровной форме блоков. Снаружи достаточно просто покрасить фасад. Также сооружения из пеноблоков можно отделать вагонкой, сайдингом и другими материалами.
Недостатки
Среди минусов блоков выделяют:
- Хрупкость. Основным недостатком блоков является то, что они довольно легко деформируются. В результате транспортировки и падении они крошатся и ломаются. Зачастую это приводит к увеличению строительных отходов. Именно поэтому рекомендовано покупать материал с запасом, который составляет близко 30%.
- Материал плохо переносит контакт с водой. В результате намокания блоки теряют свою прочность, а их вес значительно повышается, что приводит к некоторым проблемам. Чтобы избежать этого, конструкции защищают гидроизоляционным слоем.
- Ограниченный срок эксплуатации. Производители утверждают, что блоки способны прослужить не меньше 50 лет. По истечении этого времени возможна деформация и разрушение материала. Здесь все зависит от климатических условий в регионе, качества проведения кладки и других факторов.

Такие дома требует наружной отделки
Помимо этого стоит выделить, из-за объемности материала, здания из него выходят несколько грубоватыми и не эстетичны. Поэтому, чтобы придать строению красоты, необходимо выполнить внешнюю отделку стен. Все эти недостатки необходимо учесть еще на этапе планирования домика.

При проектировании учитывают ряд факторов
Проекты домов с мансардой из пеноблоков: выбор проекта
Сегодня построить дом с мансардой можно любой формы и сложности. Существуют самые разнообразные проекты домов из пеноблоков с мансардой. Все зависит от индивидуальных требований и нужд, но при выборе проекта стоит руководствоваться параметрами:
желаемая площадь всего дома. Уже на начальном этапе планирования необходимо определиться с этими показателями, провести необходимые расчеты на участке;





- величина жилой площади. Мансарда призвана существенно увеличить именно жилую площадь, ведь она позволяет более рационально использовать пространство;
- необходимое количество комнат. Этот показатель зависит от индивидуальных желаний, но многие его рассчитывают, исходя из количества жильцов в доме;
формы дома. Сегодня из пеноблоков можно построить дам любой формы. Перед тем как приступить к выбору проекта будущего сооружения, необходимо определиться с формами и дизайном здания.
Красивый дизайнерский проект дома с несколькими мансардными комнатами
Выбирать проект всегда непросто, ведь дом строится на многие годы, и он должен радовать и удовлетворять все потребности. Существует два типа проектов: типовые и индивидуальные. Бесплатный проект дома – это типовой проект. При проектировании учитываются особенности материала, его технологические характеристики. К примеру, в доме из пеноблоков можно внутренние стены возвести монолитными вместо привычных кирпичных. Такой подход позволит сэкономить средства.
При возведении домов по типовым проектам не проводится сложная облицовка. Пеноблок не нуждается в ней, достаточно лишь покрасить дом. При индивидуальном проектировании можно простую покраску заменить более красивыми и современными облицовочными материалами. Как правило, используются для таких целей сайдинг, виниловая плитка, декоративный камень.
Но главным недостатком типового проекта является его обыденность. Такой дом не будет индивидуальным и не сможет соответствовать всем требованиям жильцов. Именно поэтому лучшим вариантом является заказать индивидуальный проект дома 8х8 с мансардой из пеноблоков. Такой подход позволит в полной мере удовлетворить желания хозяина, отражает характер и возможности владельца строительства. Но индивидуальный проект стоит дороже: в этом и заключается его отрицательная сторона.
Мансарда в домах из пеноблока
Дома с мансардой получают всё большее распространение не только в проектах коттеджей из пеноблоков и загородных домов. Многие городские многоэтажные дома строятся с мансардными этажами. Дополнительный этаж под крышей даёт следующие преимущества:
- Дополнительная жилая площадь постройки. Дешевле построить комнату на чердаке, чем расширять площадь здания или строить дополнительный этаж.
- Многофункциональность. Помещение на мансардном этаже можно приспособить для разных целей. Кроме комнат бытового назначения, таких как спальная или кладовка здесь можно оборудовать мастерскую, рабочий кабинет или курительную.
- Простота прокладки коммуникаций. Не требуется дополнительных ответвлений, всё заводится с нижнего этажа.
- Снижение теплопотерь. Утепление мансарды одновременно является теплоизолятором для крыши. Расходы на отопление мансарды невелики, тепло поднимающееся с нижних этажей почти полностью обогревает её.
- Внешняя эстетичность здания. Существует много архитектурных вариантов исполнения разных форм и размеров.

Небольшой загородный домик из пеноблоков с мансардойИсточник 1okunevo.ru
Дома с мансардой хорошо подходят для людей ведущих активный образ жизни, которым не составляет труда несколько раз за день подниматься и опускаться по лестнице. Для многодетных и многосемейных жителей дополнительное помещение будет как нельзя кстати.
Возведение дома из пеноблоков
До недавних пор единственным строительным блоком, используемым в частном строительстве, был кирпич. И это неудивительно, ведь данный материал отличается небольшими размерами, легкостью в работе и рядом высоких технических характеристик. Однако с развитием строительного рынка появилось достаточно большое количество аналогичных материалов, среди которых наиболее популярными являются газоблоки и пеноблоки.
Пеноблок изготавливается из цементно-песчаного раствора, в который добавляется пенообразователь. Вследствие такой несложной технологии изготовления получается крепкий и легкий стройматериал, который относится к разряду ячеистых бетонов.
Рассмотрим несколько его основных преимуществ:
- Приемлемая цена.
- Небольшой вес, что является очень выгодным по двум причинам:
- Благодаря легкости блоков значительно упрощается процесс монтажа.
- Для таких построек не требуется массивный фундамент.
- Структура с закрытыми ячейками обеспечивает высокие водоотталкивающие характеристики материала.
- Пожаробезопасность.
- Неподверженность различным химическим или биологическим воздействиям (порча грызунами, гниение и т. д.).
Пеноблоки.
Выбор типа основания
Для того, чтобы дом 8 на 10 из пеноблоков был прочным и долговечным необходимо подобрать для него надежное основание. Суть в том, что какими бы прочными ни были стены строения, без качественного фундамента они быстро растрескаются и придут в негодность, что может привести и к обрушению здания.
На фото – столбчатое основание из блоков.
В наши дни устойчивой популярностью пользуются несколько видов фундамента. И каждый из них отличается определенными техническими характеристиками, которые следует учитывать при выборе того или иного основания.
Поэтому перед тем как выбрать фундамент, вам необходимо определиться в следующем:
- Произвести анализ грунтов, чтобы определить их качество. Состав и особенности почвы — это один из основных критериев при выборе основания, поскольку некоторые виды (в частности, столбчатый), недопустимо устанавливать на неустойчивых грунтах.
- Определиться с основным стройматериалом (кирпич, дерево, шлакоблок, пеноблок, газоблок и т. д.). В данном случае это шлакоблок, стены из которого не отличаются большой нагрузкой на фундамент, а потому подходят для любых типов оснований.
- Определиться с толщиной стен и размерами здания. Иными словами, у вас на руках должен быть план дома из пеноблоков 8 на 10.
- Этажность дома также влияет на выбор основания.
Теперь рассмотрим виды фундамента, которые используются для возведения частных домов:
- Ленточный. Является наиболее востребованным и универсальным. Способен выдерживать приличные нагрузки. Основным преимуществом данного вида является возможность обустройства подвального помещения. В отличие от монолитных оснований, которые располагаются под всей площадью постройки, бетонная лента устанавливается только под несущими стенами и прочими нагруженными элементами.
Ленточный фундамент.
Такие конструкции оптимальны как для легких каркасно-щитовых построек, так и для кирпичных домов в несколько этажей.
- Столбчатый (свайный) фундамент. Отличается простотой и быстротой возведения, однако имеет невысокую несущую нагрузку и срок службы не более 70 лет.
- Плитный. Как говорилось выше, представляет собой монолитную плиту, которая располагается под всей площадью здания. Наиболее массивный и надежный, но и самый дорогостоящий вид фундамента. Ввиду высокой стоимости, его обустройство рассматривается только в случае крайней необходимости.
Его предполагают только те проекты домов из пеноблоков 8 на 10, где есть необходимость возведения здания в болотистой местности.
Особенности кладки пеноблоков
Кладка пеноблоков.
Многие современные статьи, посвященные кладке пеноблоков, повествуют о сложности в проведении подобных работ ввиду множества особенностей. В действительности все гораздо проще, чем кажется.
Инструкция:
- Очищаем блок от пыли, грязи, снега и т. д.
- Первый ряд укладываем на идеально ровное основание. Швы между блоками (как горизонтальные, так и вертикальные) должны быть около 30 мм. При кладке второго и последующих рядов, толщину швов следует уменьшить до 15 мм.
- После кладки первого ряда, проверяем горизонтальность блока уровнем.
- Каждый третий ряд желательно армировать тонкой металлической сеткой, что придаст конструкции прочности.
- Перемычки между дверьми и окнами можно сделать самостоятельно. Для этого монтируется опалубка из деревянных досок, в которую закладывается армирующий каркас. После этого, заливаем опалубку бетоном.
Дом из пеноблоков.
Строительство двухэтажных особняков
Начинать выбирать проект нужно задолго до начала строительства. Время идет, меняются обстоятельства жизни, приходят в голову новые мысли об особенностях дизайна. За полгода ваш проект дозреет, станет продуманным.
Мы уже говорили о плюсах заказных проектов. При строительстве особняка они также имеют значение. Заказчик моделирует внутренние помещения на свой вкус. Особую роль в проекте двухэтажного строения играет фундамент. Он должен быть основан на знаниях географии местности, анализе почвы, массе всего предполагаемого здания.
Профессионалы выбирают ленточный фундамент.
Такой тип фундамента делают из бетона. Это дорогая конструкция, но она сможет удерживать вес двухэтажного дома. Другая сложность – скрепление монтажных перекрытий. Правильный расчет – залог безопасного проживания.
СоветОбратите внимание, что если в семье есть маленькие дети, необходимо особенное внимание в проекте уделить лестнице. Она должна быть безопасной или иметь защитные боковые барьеры.. Санузлы в двух уровнях – это сложное разветвление коммуникаций
В проектах их «прячут», но с необходимым доступом для возможного исправления ошибок. Требуется прокладка дополнительных водопроводов. Система отопления может представлять сложность, требовать установки особого оборудования (циркуляционный насос) — оно требуется для доступного прохождения теплоносителя по всему контуру
Санузлы в двух уровнях – это сложное разветвление коммуникаций. В проектах их «прячут», но с необходимым доступом для возможного исправления ошибок. Требуется прокладка дополнительных водопроводов. Система отопления может представлять сложность, требовать установки особого оборудования (циркуляционный насос) — оно требуется для доступного прохождения теплоносителя по всему контуру.
Строительство двух этажей требует соблюдения всех технических формальностей. Отклонение от нормы может привести к негативным последствиям. После исправить ошибки бывает невозможно.
Подарок своими руками? Какой Легко и Быстро можно сделать? 12 прекрасных Вариантов на все случаи жизни
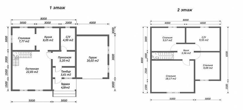
Обзор типовых проектов 8х8
Типовой проект дома с мансардой 8х8 рассматривается как оптимальный вариант для семьи из 3-4 человек. Площадь такого жилья находится в пределах от 90 до 120 квадратов. На ее размер значительное влияние оказывает размер полезной площади мансарды, который, в свою очередь, зависит от конструкции крыши.
Типовые проекты учитывают особенности грунтов данного региона и возможность подключения коммуникаций (газа, электричества). Внутренняя планировка основывается на максимальном использовании полезного пространства. В проекте 8х8 с мансардой допускаются определенные изменения, согласно потребностям будущих жильцов. Так, во время согласования заказчик выбирает удобную для его потребностей планировку, а также материалы для кровли, отделки фасада и внутренних стен.

Типовой проект с мансардойИсточник juliz.pl
Если не удается подобрать подходящий готовый вариант, на помощь придет проект по индивидуальному заказу. Будущий владелец сможет создать дом своей мечты, определив конфигурацию всех элементов проекта: крыши, мансарды, гаража, террасы. При желании добавляются новые элементы, например, эркер на фасаде или балкон на мансардном этаже. Проект размером 100 квадратов смотрится компактно, но вмещает все необходимые комнаты, в число которых входит:
- Прихожая с коридором или небольшой холл с лестницей, санузел.
- Гостиная и кухня. Иногда планируется кухня-столовая (за счет уменьшения гостиной).
- Дополнительная комната. В зависимости от нужд хозяев, это может быть гостевая спальня, кабинет, гардеробная. Потребуется место для котельной и кладовой. Санузел может вмещать как душевую кабину, так и ванну.

Проект с мансардой и террасойИсточник drevolog.ru
- Мансардный этаж. Его возможности скромнее и ограничиваются двумя-тремя спальнями (включая детскую) и санузлом.
- Дополнительные опции. Дом с мансардным этажом становится более практичным, если в проект добавить цоколь. Неплохое дополнение — терраса, ширина которой ограничивается 3-4 м.
- Гараж. Его габариты могут достигать 3х8 м, в случае, если хозяину понадобится место под верстак или иное оборудование. Иногда рядом с гаражом сооружается навес, удобное место для обслуживания автомобиля.
Видео описание
О выборе красивого дома из пеноблоков в следующем видео:

Проект с гаражомИсточник www.master-rus.ru
Идеи планировки и зонирования пространства
Если проект дома 8 на 8 с мансардным этажом сделан профессионально и может похвастаться отличной планировкой, в нем будет уютно всем члена семьи. В дополнение к рациональному распределению жилой площади используются следующие приемы, повышающие комфорт:
Кухня совмещается с гостиной. Объединенное пространство — идеальный вариант для приема гостей, обеспечивающий свободу общения.

Три в одном: гостиная, кухня, столоваяИсточник pic2.me
- Обустраивается терраса. На ней можно устроить удобную летнюю кухню. Популярны застекленные и утепленные террасы; их используют как дополнительную комнату.
- Гостиная со вторым светом. Эффект уменьшает площадь мансарды, но визуально увеличит пространство гостиной (или гостиной-кухни).

Гостиная-кухня со вторым светомИсточник blog.parisattitude.com
- Большое количество окон в проекте. Благодаря такому решению комнаты не только лучше освещаются, но и выглядят просторнее и свежее.
- Организация камина на мансарде гарантирует роскошные зимние вечера.
- Использование пространства под лестницей. Если позволяют размеры, под лестницей устраивают кладовую, а то и гардеробную.

Визуализация 1-го этажа проекта 8х8Источник phpdugbookmarks.info
- В доме с цоколем веранду может заменить крыльцо с защитным козырьком. Оно планируется длиной во всю стену, или на манер угловой веранды.
- Котельная с отдельным входом — практичный вариант, избавляющий от неудобств.
Видео описание
О вариантах жилья 10х10 из пеноблоков в следующем видео:

Бюджетный проект в современном стилеИсточник www.inlevel.lv
Заключение
Проект 8х8 с мансардой, возведенный из пеноблоков, в любом случае выйдет дешевле, чем аналогичная постройка в два этажа. Габариты такого дома предоставляют множество возможностей для удобной планировки. Привлекают и возможности мансарды в плане использования разнообразных интерьерных решений. Оригинально обыграть можно все: наклонные стены и окна, ниши, перекрытия и балки. В интерьер мансардного пространства идеально вписываются встроенные шкафы-купе и стеллажи, а современные строительные и отделочные материалы превращают мансарду в комфортную комнату для жилья.
Советы и рекомендации
Решение сделать из чердака полноценное жилое пространство позволяет найти ответы на многие вопросы, однако требует и более тщательного подбора всех компонентов. Следует отдавать предпочтение облегченным материалам и мебели, которые не провоцируют в дальнейшем появление трещин в стенах и фундаментах.
Площадь здания, а точнее, количество комнат в нем – это очень важный вопрос, который решается на этапе подбора или разработки проекта.
Обязательным элементом в доме станет лестница. Если квадратов в доме не так много, ее можно вынести на улицу, когда же площадь позволяет установить ее в доме, то необходимо максимально продумать ее месторасположение – она не должно скрадывать пространство. Рационально также использовать лестницу как дополнительное место хранения – под ней вполне компактно может разместиться масса самых различных шкафчиков и выдвижных систем.
Если в проекте дома предусмотрен подвал, то можно все технические помещения, будь то санузел или котельная, поместить там. Это освободит пространство жилых этажей.


Если возводимое сооружение имеет значительную площадь (более 100 квадратов), обязательно нужно продумать в планировке дома наличие сантехнических узлов на мансардном этаже.


В домах с постоянным проживанием очень важна система отопления, потому наличие котельной (обычно ее располагают рядом с кухней) крайне желательно.
Очень важный момент в проектировании – это та часть мансардного этажа, которая обладает наибольшей высотой. Ее высота должна составлять не менее половины длины помещения, иначе ощущения тесной каморки не избежать.


Окна на мансардный этаж – это дорогое, но весьма оправданное приобретение. Их цена объясняется особым механизмом крепления, но установка таких окон необходима, так как дополнительный дневной свет никогда не бывает лишним.




Особенности производства материала
Пеноблоки стали активно использоваться для строительства в 90-х годах прошлого столетия. Основа для производства материала – смесь воды, цемента и песка. После приготовления смеси, используют баросмесители, чтобы взбить полученную массу, из которой формируются блоки. Для улучшения свойств в блоки могут быть добавлены полимеры, которые увеличивают прочность материала.

Благодаря простой технологии изготовления, пеноблоки широко применяются для строительства частных и промышленных зданий. Оборудование для производства есть в свободной продаже, поэтому построить дом из пеноблоков можно используя собственноручно изготовленный материал. Однако зачастую расходы на приобретение оборудования и время на производство лишь замедлят строительство.

Этап строительства
После утверждения проекта дома из пеноблоков можно приступать к строительству. Для этого устанавливается ленточный фундамент. На него укладывается гидроизоляция – обычно это пергамин или рубероид – для исключения негативного влияние воды на материал. Необходимо следить за целостностью поверхности гидроизоляции.

После ее установки выкладывают первый слой блоков. В качестве раствора на первом слоя обязательно используют песчано-цементную смесь. С помощью строительного уровня выравнивают пеноблоки в горизонтальной плоскости. Затем производится кладка последующих рядов с использованием одной из двух связующих растворов:
- песчано-цементный раствор;
- специальный клей для блоков.

В первом случае технология укладки блоков ничем не отличается от кладки кирпича. С каждым слоем блок смещается на половину относительно предыдущего. Каждый четвертый или пятый слой необходимо армировать.


Для усиления кладки используют прутья арматуры или проволоки. В случае кладки на клей, толщина арматуры, как правило, больше клеевого слоя. Поэтому в ряду блоков делается специальное углубление, в которое закладывается армирующий элемент. После этого он заливается клеевым раствором и продолжается кладка последующих рядов.
При кладке не следует допускать попадания раствора на поверхности блоков. Если такие загрязнения не удалить сразу, их очистка после высыхания будет довольно проблематична.

Дом из пеноблоков – самый простой и доступный способ построить частный дом или дачу. Специалисты утверждают, что процесс укладки блоков легче, чем кирпича. Поэтому это можно сделать своими силами. Хорошие эксплуатационные характеристики материала позволят стать дому настоящей крепостью для своих хозяев.

№7. Проект «Люкс»
Проект с говорящим названием. Если у вас большая семья, или же вы хотите построить коттедж для отдыха в шумной компании друзей, то этот проект однозначно стоит рассмотреть. Часть первого этажа займет гараж с не малых размеров мастерской. В ней можно хранить все необходимые инструменты для ремонта авто, садовый инвентарь и прочие нужные в хозяйстве вещи. Кто-то захочет переоборудовать мастерскую в кладовку, а кто-то – вообще уберет стенку и сделает гараж на два авто. Гараж соединен с домом: все покупки/вещи/грузы из авто удобно заносить в дом.


В особенности проекта можно отнести наличие эркера, который прямо-таки создан, чтобы там был установлен обеденный стол. Кухня совмещена с гостиной, но при желании без проблем можно будет возвести перегородку. При желании, семейные обеды легко можно будет проводить на террасе. Она крытая и небольшая, а если ее пространства вам покажется мало, то можно задействовать территорию участка. Остальную территорию первого этажа занимают вспомогательные помещения и небольшой кабинет.
Сюрпризы ждут нас и при знакомстве с планировкой второго этажа. Одна из спален получила гардеробную комнату, а ванная комната оснащена дополнительным помещением. Его можно превратить в прачечную или же переоборудовать в сауну. Рядом с сауной неплохо бы иметь бильярдную или спортзал. Пожалуйста! Его можно организовать в помещении над гаражом. Общая площадь – 242 м2.

Проекты дачных домов. Комфортный уик–энд
Строительство дачного дома – дело ответственное. Оно отличается от постройки жилья только масштабом. Функция дачи – стать жильем, пока уставшие от городской суеты хозяева приедут на свою землю отдохнуть.
Проектируется дачная постройка с учетом специфики:
- Планируется ли временное проживание на даче.
- Расчет спальных мест.
- Наличие цоколя и подвала.
- Эксплуатация в теплое время года или предусматривается отопление.
Если решите заказать собственный проект дачного домика – группа проектировщиков сделает необходимые замеры на вашем участке, составит смету расходов, подготовит проект с учетом ваших пожеланий.

Функция дачи – стать жильем для отдыха
Все эти важные моменты надо продумать заранее. При наличии финансов и небольшого участка земли, лучше строить двухэтажное строение. Если ограничений по площади нет – строение в один этаж будет экономичным вариантом.
Самострой – не всегда подразумевает низкие затраты. Чаще получается, что скупой платит дважды. Если строить долго – неизбежна порча пеноблоков.
Они быстро впитывают влагу и могут разрушиться. Спешка может привести к нарушению технологии.
Остается один вариант – доверить строительство мастерам. При наличии проекта шансы на ошибку невелики.

При наличии финансов и небольшого участка земли, лучше строить двухэтажное строение
Если вы сомневаетесь в необходимости проекта – попробуйте посчитать фактическую разницу между самостоятельным строительством и выполненным профессионалами. Учитывайте стоимость материала, доставку, нервы, потраченное время. Возможно, вас разочарует бесконечная карусель из стройматериалов, строительной пыли и собственной усталости.
Это будет Вам интересно:

Салфетки крючком: 130+ Фото Простых и красивых Схем для начинающих. Учимся вязать быстро и красиво







![80 топовых проектов #2019 [дома из пеноблоков с мансардой]](https://nikastroy.ru/wp-content/uploads/0/b/1/0b1cfd492ab11a4ce794763cb6ed59b8.jpeg)







































![80 топовых проектов #2019 [дома из пеноблоков с мансардой]](https://nikastroy.ru/wp-content/uploads/e/d/7/ed7a4b23a9729de7b4cae7af06945663.jpeg)









