Делаем фальшь-камин из гипсокартона
Здесь вы можете пойти двумя путями – собирать портал на деревянном каркасе, как это описывается в предыдущем разделе, либо на раме из стальных оцинкованных профилей. Поскольку будущее сооружение несет минимальные нагрузки, выбор материала для каркаса не играет особой роли.

А вот последовательность монтажа меняется – стойки этого капитального сооружения изначально крепятся к стене. Порядок действий такой:
- Пользуясь чертежом, нанесите на стену карандашом контур будущего декоративного камина.
- С помощью дюбелей прикрепите по линиям, нанесенным на стене, горизонтальные и вертикальные профили (деревянные бруски).
- Соберите каркас из стеновых и потолочных профилей для монтажа ГКЛ, начиная от боковых стенок. В последнюю очередь формируется ниша топливника.
- Обшейте раму гипсокартоном и заделайте все стыки шпатлевкой. Не торопитесь устанавливать каминную топку – она монтируется после финишной отделки.

Технология изготовления
Камин до XXI века – предмет роскоши и достатка, но на данный момент люди возводят эту конструкцию в силу минимальных затрат на стройматериалы.
Технология изготовления конструкции из гипсокартона построена на нескольких этапах проектировки:
Подготовка проекта
На подготовку проекта не уходит много времени. Здесь делают разметку для портала на том месте, где хотят встроить конструкцию. Также его делают выходящим за рамки стены, тогда листов гипсокартона понадобится больше. Далее разрабатывают конструкцию, декорации, определяют основную функцию конструкции. Он может быть просто декоративным предметом или выполнять функцию полки.
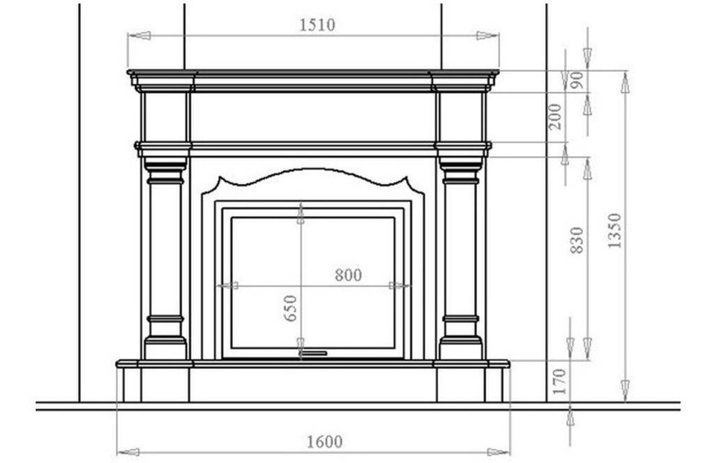
Размеры П-образного камина
Размеры портала для камина
Подбирают сухое место куда влага не поступает, и конденсат собираться не будет. Располагают — в гостиной, спальне, личном кабинете. В небольшой комнате делают угловую установку. В итоге проектирую чертеж.
При монтаже необходимо иметь визуальное представление деталей камина, и его каркаса.
Материалы и инструменты
На данном этапе подбирают необходимый материал и инструменты. Тонкие и средней толщины гипсокартон лучше не приобретать.
Для долгого срока служения подбирают качественный материал и набор инструментов:
- профиль для гипсокартона, направляющие и стоечные;
- листы гипсокартона, жаропрочные или водоотталкивающие, толщина листа 12-14 мм;
- саморезы, дюбель-гвозди;
- дрель, грунтовка;
- уровень, шпаклевка;
- изоляторы тепла;
- эмульсия или матовая краска;
- декорации для готового портала.
Для декорирования использую имитационный камень, дерево, плитку, или оставляют камин без декора.
Необходимые материалы и инструменты
Сборка каркаса
На места расположения конструкции отмечают места крепления каркасных профилей. Каркас крепят дюбелями, это обеспечивает плотное прилегание конструкции к стене. Далее крепят направляющие профиля. Стоечный профиль вставляют в направляющий, и также закрепляют саморезами.
Для увеличения прочности используют ребра жесткости. Их крепят к горизонтальным и вертикальным стоечным профилям, однако конструкция становится громоздкой. Поэтому мастера рекомендуют компенсировать этот недостаток толщиной листов гипсокартона, и близким расположением отверстий для саморезов.
Сборка каркаса
Сначала делают основной каркас, затем для портала. Конструкцию укрепляют перемычками. На перемычки в портале распределяется вес декорированных предметов. Для формирования арки надрезают профиль портала.
Обшивка
На лицевую часть не рекомендуется использовать цельный лист гипсового картона. Листы режут на равномерные куски, затем крепят к каркасу саморезами 25 мм.
Соблюдают крепежный шаг в 15 см.
Внутри каркаса на месте портала крепят изоляторы тепла. Это предохранит материал от деформации. Швы шпаклюют, грунтовкой покрывают готовую обшивку, и красят эмульсионной или водоотталкивающей краской матового цвета.
Камин обшитый гипсокартоном
Декорирование
Декорируют конструкцию плиткой, имитационным камнем. Крашеный — в белом цвете не нуждается в дополнительных декорациях. Иногда обклеивают обоями с имитацией под кирпич или дерево.
Готовый декоративный камин из гипсокартона
Принципы кладки для кирпичных каминов
Кладка каминов может иметь различную порядовку, но некоторые принципы одинаковы для любого варианта:
- первый ряд кирпича принято укладывать, ставя на ребро, а последующие — плашмя;
- первые два ряда называют основанием камина (или печи);
- дно топки должно возвышаться над полом не менее чем на три ряда кирпичной кладки;
- кирпич не должен иметь надломов, сколов или трещин;
- красный полнотелый кирпич перед кладкой рекомендуется замочить в воде, чтобы он напитался влагой (когда, погруженный в воду, он перестанет выпускать воздушные пузырьки, значит, кирпич впитал достаточно влаги);
- шамотный кирпич замачивать в воде не нужно — достаточно будет удалить с его поверхности пыль или грязь влажной тряпкой;
- толщина шва не должна превышать 0.5 см;
- нужно наносить такое количество раствора на кирпич, чтобы раствор не выходил за границы кирпича;
- если где-то между швами появляются излишки раствора, их следует удалять;
- начинать кладку лучше всего с углов, проверяя их по отвесу и по уровню;
- если кирпич был разрезан, то край, оставшийся после отреза, необходимо замуровать в раствор;
- раствор для кладки кирпичных каминов не должен содержать комков, не должен быть текучим или липнуть к рукам, и должен быть однородным;
- лучше всего каминную кладку делать в теплое время года — тогда раствор будет быстрее сохнуть (это особенно актуально для фундамента);
- обмазывать раствором камин изнутри нельзя.
Варианты отделки
После того как собран короб для дымохода, приступаем к отделке камина. Однако с помощью обычных материалов можно сделать фальш-камин, который внешне не будет отличаться от настоящего. Один из красивых вариантов – каменная или кирпичная кладка. Ее имитация доступна в нескольких вариантах:
Картон. Из картона вырезаются прямоугольники, играющие роль кирпичей. Ими оклеивают предварительно окрашенный акриловой краской короб, оставляя небольшое пространство между «кирпичиками». В данной технологии верным решением станет использование контрастных цветов: коричневая основа и белые кирпичи.
Если вы хотите придать «кирпичам» объема, то наклейте на них смоченные в клее ПВА салфетки или туалетную бумагу (техника папье-маше). После высыхания, получаем неровную фактурную поверхность, напоминающую состарившийся кирпич или камень.
Пенопласт. Пенопласт позволяет создать очень красивый декор в виде каменной кладки. На цельном куске этого воздушного материала ножом вырезаются контуры камней разного размера. По ним выдалбливаются углубления, отделяющие камни друг от друга. Эффект старины поможет выполнить жесткая железная щетка, которой обрабатывается поверхность изделия.
Несколько вариантов того, как можно поступить еще:
1. Фальш камин из гофрокартона своими руками
Поскольку сама я мастерица «аховая» в деле построения больших поделок, то делали камин вместе с мужем, который наоборот технарь, и в конструкции каминов разбирается. Фальш-камин отличается от настоящего камина тем, что сделать его можно из любого материала, в том числе из картона.
2. Новогодний камин из гипсокартона
Год назад построили дачный домик, и очень уж нам захотелось воплотить давнюю мечту, сидеть в кресле и любоваться красотой огня. Решили делать фальш камин своими руками из гипсокартона.
3. Сказочный камин из пенопласта своими руками
Если вы накануне праздника сделали ремонт и у вас остались ненужные картонные коробки, упаковочный пенопласт, пара старых навесных полок – не спешите от них избавляться. Они вам сослужат добрую службу в качестве новогоднего камина.
4. Камин в русском стиле. Делаем своими руками
Если лесная красавица уже установлена и наряжена, то вполне можно придумать ещё что-нибудь праздничное для украшения пространства. Например вы можете смастерить новогодний камин. Да да, сделать его совсем просто. А как — смотрите и читайте в нашем мастер-классе.
5. Мастер класс «Новогодний камин из картонных коробок»
В последний предновогодний месяц так хочется праздничного настроения. Новогодние украшения дома или на рабочем месте так приятно напоминают о приближающемся празднике. Существует много декоративных украшений, которые запросто можно выполнить самостоятельно из подручных средств, которые внесут чуточку волшебства в наши будни. Один из таких украшений — рождественский камин. Мне хотелось бы предложить вам мой вариант новогоднего декоративного камина.
6. Фальш-камин из ламината
Один из способов создания фальш-камина из остатков напольного ламината и ДСП.
7. Делаем фальш-камин из коробок
8. Камин из гофрокартона и пенопласта – быстрый и недорогой подарок к Новому году
9. Рождественский камин из коробок и упаковочной бумаги своими руками
Для создания рождественсого камина из коробок своими руками, в «чудесатом» стиле, главное запастись упаковочной бумагой с яркими, броскими рисунками. Дальше – это дело техники и фантазии.
10. Декоративный камин из папье-маше
Подготовка проекта
Необходимо помнить, что процесс создания портала нельзя сравнивать со склеиванием из картона игрушки, похожей на искусственный очаг. Правдоподобность его не должна мешать соблюдению требований пожаробезопасности. Само изделие должно быть крепким и иметь жесткую основу. Определяясь с характеристиками, внешним видом и способом изготовления фальшь-камина, необходимо иметь в виду, что:
- После отделки портал должен будет напоминать внешним видом настоящее изделие. Оформлять его нужно камнем или кирпичом.
- Искусственная коробка прежде всего должна способствовать естественному встраиванию электроприбора в интерьер.
- Размер рамы должен рассчитываться из возможности свободного и надежного размещения нагревателя с допусками вдоль стенок и «потолка».
- Под стационарное изделие хорошо заранее определить не только место, но и возможность подключения обогревателя к сети. При необходимости нужно проложить новую проводку и установить розетку.
- В переносной конструкции лучше сразу сделать несколько выходов под кабель, так как условия подключения к сети могут быть разными. Рама под нее должна быть более жесткой.
- Основные строительные материалы для большей огнестойкости нужно обработать подходящими составами.
- Конструкция в обязательном порядке должна иметь вентиляционные окна.
Смотрите видео, как изготовить портал с карнизом:
Ключевые элементы, из которых состоит камин
Состав камина под дрова
Стандартная схема кладки кирпичного камина включает в себя такие элементы (двигаясь снизу вверх, как идет кладка):
- основание;
- зольник (бункер, расположенный под колосниковой решеткой, предназначение которого — собирать золу);
- топливник — это пространство, в которое закладывается топливо, и где оно горит;
- зеркало — задняя часть стенки топки, наклоненная вперед под углом около 20°, и начинающаяся с высоты 30% от дна топки (назначение зеркала — отражать тепловую энергию, направляя ее из портала в помещение);
- дымовой зуб — это выступ, формируемый окончанием зеркала, который имеет две основных функции — предотвращение попадания сажи из дымохода в топку, а также предотвращение попадания в топку холодных воздушных потоков из дымоходной трубы;
- хайло — это дымосборник, в котором собирается дым и различные газы перед выходом в дымоходную трубу (он обеспечивает тягу в нужном направлении, а также препятствует попаданию в помещение дыма, искр, сажи, благодаря тому, что скопившиеся здесь разогретые газы уходят в наполненный холодным уличным воздухом дымоход);
- задвижка — заслонка, расположенная между камином и дымоходом, которая отделяет хайло от дымоходной трубы (ее функция — регулировать мощность холодных и горячих воздушных потоков).
Вдохновляйтесь: лучшие идеи
Если вы серьезно задумали сделать камин из коробок или листов картона своими руками, то отобранные нами идеи помогут понять, какие вариации возможны, и вдохновиться на создание собственного шедевра.
Камин в виде буквы «П» без основания прост в изготовлении. Имитация под кирпичную кладку из красных бумажных кирпичиков или обоев соответствует новогодней тематике.
Камин из «красного кирпича» и зеленая ель представляют собой классическую цветовую гамму праздника.
Для создания нужного эффекта на внутреннюю стенку очага можно приклеить изображение горящих полен. Такой сказочный вариант можно использовать как реквизит для детского утренника или для домашнего спектакля.
Изображение огня внутри камина может быть и более реалистичным, особенно если найти 3D формат. Если для оклеивания взять не отдельные кирпичики, а обои или специальную заготовку под кирпичную кладку, то получится еще интереснее. Но здесь нужны ровные углы и правильная форма.
Изобразить кирпичи на поверхности можно и краской. Это займет больше времени, но выглядеть будет правдоподобнее. В топку можно положить свернутую рулоном бумагу или тонкий картон.
Использование штукатурки с последующим нанесением фигур каменной кладки превращает легкую картонную конструкцию в основательное каменное сооружение. Белый цвет мрамора отлично впишется в интерьер спальной комнаты с пастельными тонами.
Отличное место для камина — стена между окнами в просторной гостиной частного дома. Вариант с дымоходом в большом помещении смотрится эффектно.
Для камина в аристократическом стиле под белый массивный камень хорошо подойдут декоративные элементы из пенополистирола (узоры, планки) и потолочный багет.
Их приклеивают полимерным клеем на готовую, но не окрашенную конструкцию
Вместо оклеивания коробок белой бумагой можно использовать обмотку тканью определенного цвета. Смело привлекайте к процессу детей: совместные поделки укрепляют отношения и развивают воображение.
Отличный вариант маленького очага. Он более устойчив, поэтому его можно ставить не только у стены. Он прекрасно украсит прихожую. В топку можно положить связку веточек из парка, а для имитации огня вырезать пламя из цветной бумаги или положить короткие светодиодные гирлянды (можно с эффектом мерцания). Присутствие тусклого света от камина наполнит квартиру уютом и теплом.
Если позволяет место, то можно поставить большой фальш-камин высотой с человеческий рост. Каминную полку можно украсить тематическими фигурками и миниатюрной елочкой. На месте топки оставляем шкаф — размеры камина это позволяют. А вазочка со сладостями заменит притяжение мерцающего огня.
Если в квартире нет свободной стены для камина, то можно воспользоваться идеей угловой конструкции
Чтобы создать праздничную атмосферу в уютном уголке зажгите несколько чайных свечей в топке, а на полку положите декор или мандарины.
Интерьерный или электрический?
Теперь давайте разберем: какие решения и конструкции применимы внутри корпусной коробки? Почему бы не поставить электрический камин, а также не применить разнообразные приемы, чтобы придать порталу большую выразительность и оригинальность?
Для этих целей можете подобрать понравившуюся вам керамаплитку, камни, созданные из искусственного материала или же принесённые с речного побережья настоящие небольшие булыжники. Возьмите, к примеру, кирпич или мраморный материал, а также традиционно применяемое в интерьере дерево.


Когда выбираете облицовку для внешнего вида камина, помните, что изделие состоит из гипсокартона, поэтому нагружать его сильно не стоит. Оформляя камин, не забудьте про кузнечные металлические элементы, созданные в технике художественной ковки.
Если изюминку во внешний вид камина вы решили внести при помощи камня или плитки, то здесь вам поможет специальный клей, предназначенный для фиксации керамических плиток или жидкие гвозди, которые также эффективно смогут справиться с этой задачей.






Электрокамин
Давайте разберем, как установить электрический камин в созданный вами из гипсокартона фальшкамин. Ту стенку, где будет находиться электрический камин, необходимо обшить теплостойкими материалами.
На пол установите специальный подиум для имитационного камина и металлический каркас, основа которого должна быть достаточно надежной, чтобы выдержать ту нагрузку, которую ей даст электрический камин. По этой причине профили в основе прикрепляйте через каждые 200 миллиметров.

Проведите электричество внутрь конструкции, чтобы оно могло питать ваш электрический камин. На корпусе гипсокартонной конструкции сделайте несколько дырок, которые станут своеобразной вытяжкой.
Корпус портала покройте гипсокартонными листами и укрепите его специальными строительными уголками. На получившийся предмет нанесите шпаклевку и оформите камин так, как вы считаете нужным. На финальном этапе в готовую конструкцию поместите электрический камин.
Рассчитываем розетку
Питающий провод, тянущийся от камина, способен испортить всю картинку. Но монтировать розетку всё равно нужно за пределами портала, чтобы иметь свободный доступ к штепселю. Расстояние до неё ограничивается длиной шнура искусственного очага без натяга. А вот техническая сторона вопроса требует более серьёзных расчётов.
Розетка должна выдерживать ток, подаваемый на камин. Определить её ампераж несложно: нужно разделить мощность прибора на напряжение в сети (220 В) и добавить 10% запаса. Чисто декоративные модели обычно потребляют не более 500 Вт, то есть максимальная сила тока в розетке составит:
500 ÷ 220 х 1,1 = 2,5 (А) – с такой нагрузкой справится даже старое советское оборудование на 6 А.
У электротопок с функцией обогрева мощность повыше — около 2–2,5 кВт. По той же формуле получаем ампераж 12,5. То есть нужна стандартная современная розетка на 16 А, к которой останется лишь подкинуть провод от распределительной коробки. Используйте медный трёхжильный кабель типа ВВГ с сечением 2,5 мм2 – он выдерживает ток в 19 А и нагрузку около 4 кВт.
Создание внешнего вида камина
Отделка камина – дело тонкое и ответственное. Чаще всего для декоративной отделки выбирают:
- облицовочных кирпич;
- керамическую плитку;
- натуральный камень;
- узорчатые или гладкие изразцы.
Облицовочный кирпич производится, как традиционной формы, так и угловатой или клиновидной, с округленными краями и пр. Цвет изделий можно выбрать, исходя из предпочтений и общей цветовой гаммы помещения, самый разнообразный: белый, желтый, красный, коричневый и даже черный.
Плитка для облицовки выпускается нескольких видов. Можно выбрать майолику (прессованные изделия с рисунком, покрытые глазурью), терракоту (керамический неглазированный материал), клинкерную плитку или керамогранит.
Натуральный камень может помочь создать грубую отделку, отлично сочетающуюся с современным интерьером.
Названные материалы обладают хорошей теплопроводностью, презентабельностью, прочностью, долговечностью, устойчивостью к высоким температурным режимам.
Можно обойтись и без дополнительной облицовки камина, при условии, что кирпич выбран, а кладка выполнена – идеально. В таком случае делается аккуратная затирка швов белым раствором.
Мы подобрали ряд фотографий для демонстрации того, как может выглядеть законченный и правильно отделанный камин.

























































