Чертежи и схемы
Если создается гардеробная комната своими руками, то нужны чертежи и схемы, по которым будут осуществляться основные работы. В этих документах непременно продумываются основные моменты:
- размер помещения;
- расположение всех элементов, содержащихся здесь;
- учитывается необходимость, размеры и иные параметры дверей;
- производится расчет отделочных материалов и креплений;
- предусматривается использование разных выдвигающихся конструкций;
- осуществляется расчет всех затрат, необходимых для получения полноценной и комфортной комнаты;
- продумывается заранее планировка.
Чертеж непременно создается предварительно на бумаге, причем при его изучении схематично будет видно, как будет выглядеть комната после выполненных работ. Если отсутствует опыт работы с чертежами, то можно воспользоваться специальными программами.
Таким образом, гардеробная – это полезная, многофункциональная комната, предназначенная для хранения разных предметов, одежды. Чтобы понять, как сделать гардеробную своими руками, рекомендуется предварительно тщательно изучить обучающее видео, чтобы учесть многочисленные нюансы, особенности этой работы.
Важно пользоваться во время работы заранее сделанными чертежами, а также применять исключительно качественные, надежные материалы. При грамотном подходе гарантируется получение высококачественной, долговечной конструкции, выдерживающей разные нагрузки и воздействия
Нельзя забывать об оптимальной вентиляции, равномерном освещении. От всех вышеуказанных нюансов зависит комфортность использования самостоятельно сделанной гардеробной.



Следующая
ГардеробСистемы хранения обуви в гардеробную
Преимущества
В системы хранения для гардеробных можно складывать разные вещи. Изделия могут представлять отдельный шкаф или целую комнату. Сейчас выпускают несколько видов изделий, у каждого имеются свои плюсы и минусы.
Сетчатая гардеробная система хранения – компактное и универсальное сооружение. Преимущества его в том, что модули не зависимы друг от друга, при необходимости их убирают. Элементы такой конструкции фиксируются к стене направляющими и кронштейнами. Данная система – воздушная, легкая.

Навесная система хранения для гардеробных включает много корзинок и полок. В качестве дополнения прилагаются полки для обуви, штанги, брючницы. Особенностью конструкции является то, что система расширяется благодаря дополнительным аксессуарам. С помощью навесного гардероба вещи получают доступ воздуха. В нем будет очень просто отыскать необходимую вещь. К преимуществам относят простоту установки, низкую стоимость и отличную функциональность.
Корпусные системы являются самыми распространенными в России. В гардероб входят модули, соединенные стяжками. В качестве материала используется МДФ или ДСП. Они отличаются практичностью и доступной ценой, а также вместительностью. Но модули не получится переставить.
Гардеробные различных производителей
Леруа Мерлен
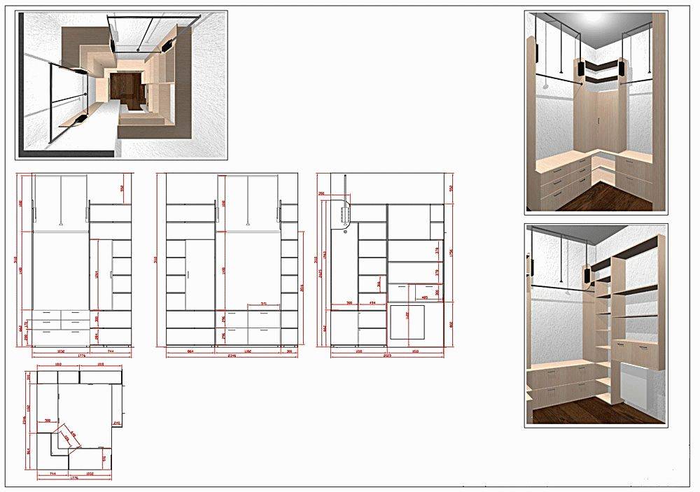
В Леруа Мерлен представлены системы хранения разных производителей. Одна из известных моделей — гардеробная «Канзас». Она состоит из трех секций, каждая из которых имеет глубину 30 см и длину 240 см. Это модель для небольших помещений.
Гардеробная «Канзас» подходит для хранения разных видов вещей. В ней имеются:
- штанги для вешалок и бельевых корзин,
- корзины,
- полки для обуви, белья, головных уборов.

Икеа
В магазине «Икеа» можно найти такие наборы для хранения, как стеллажи разного размера и назначения «Ивар» — здесь есть полки не только для одежды, но и для бутылок, ящиков, а также с закрытыми шкафчиками. Можно купить этажерку и укомплектовать ее по своему желанию пластиковыми ящиками, сетчатыми корзинами, полками, стойками.
«Икеа» выпускает и открытые системы хранения «Альгот» и «Элварли» в виде настенных шин или стеллажей. Можно приобрести различные модули, подходящие для хранения одежды, обуви, документов, коробок, сушки белья и других целей.

Aristo
«Aristo» — это гардеробная стеллажная система с большим количеством полок, среди которых есть также ящики и корзины. Компания делает сетчатые системы хранения на заказ. Можно заказать отдельные полки, а также полки-трансформеры. Металлические стеллажи и ящики «Аристо» выпускаются в цвете «металлик» и белом. На фото — одна из моделей.

Изделия этой компании обладают всеми достоинствами сетчатых моделей: мобильностью, современным внешним видом, легкостью в монтаже. При необходимости можно докупить нужные элементы и переделать гардеробную своими руками.
Larvij
Это английская фирма, специализирующаяся на создании систем хранения вещей. Она предлагает готовые решения для различных помещений (квартир, частных домов, офисов, дач, гаражей), предназначенные не только для одежды, но и для посуды, книг и других вещей. Многие модели Larvij в этом плане универсальны.
Также на сайте компании Larvij можно смоделировать и заказать комплект из нужных вам элементов:
- полок,
- ящиков,
- полок из ДСП и металла,
- корзин,
- кронштейнов,
- рельс,
- стоек и т. д.
Все это можно применять как в шкафах, так и в гардеробных. Элементы можно комбинировать различными способами для наиболее удобного расположения вещей, также их легко менять местами. Монтаж и демонтаж систем «Ларвидж», по отзывам, также прост, поэтому такие системы — хороший вариант, если вы часто переезжаете.

Элементы систем Larvij сделаны из металла и покрыты порошковой краской, которая эффективно защищает от коррозии.
Модульные системы хранения для гостиной
Время, когда практически в каждой квартире одна из стен в гостиной была наглухо заставлена громоздкой и зачастую безвкусной стенкой, прошло. Сегодня существуют гораздо более легкие и привлекательные с точки зрения дизайна конструкции, которые позволят разместить все необходимые вещи. Модульные системы хранения для гостиной помогут создать уникальный интерьер, не лишенный функциональности и комфорта, при этом размеры самой комнаты играют далеко не главную роль.
Какую выбрать систему хранения, будет зависеть от конкретных практических нужд:
- Стеллажи открытого типа помогут разместить книги из домашней библиотеки, предметы коллекционирования или просто декоративные мелочи, например, фото в рамках, статуэтки, подсвечники.
- Закрытые стеллажи с остекленными дверцами подойдут для хранения посуды, фарфора.
- Открытые полки подойдут для размещения телевизора и прочей техники.
Закрытая модульная система хранения вещей, разделяющая гостиную и коридор
Современная модульная система хранения для гостиной
Небольшая модульная система хранения от IKEA с нишей для телевизора
- Модульная система для хранения одежды и других личных вещей в гостиной должна быть закрытого типа. В этом случае дверцы шкафчиков могут быть как сплошными, так и остекленными (матовое стекло) или даже зеркальными, что поможет визуально расширить пространство.
- Если гостиная небольшая, то лучше ограничиться открытыми полками, которые не загромождают пространство
- В однокомнатной квартире или в случае, когда гостиная используется в качестве жилой комнаты одного из членов семьи, систему хранения следует установить комбинированную. На открытых полках будут располагаться книги, предметы декора и техника, а в закрытых ящиках и шкафчиках — личные вещи.
Модульная система хранения для вещей от IKEA
Встроенная закрытая модульная система хранения вещей для современной гостиной
Особенности системы хранения для гостиной
Главное требование, предъявляемое к модульным системам хранения для гостиной, — функциональность и дизайн должны быть наравне. Поэтому следует позаботиться не только о нужном количестве полок, но также подобрать их цвет под весь интерьер.
Стильный интерьер гостиной с комбинированной модульной системой
Модульная система хранения комбинированного типа для гостиной со множеством открытых полок
Модульная система хранения для гостиной может быть оборудована встроенной подсветкой полок, предусмотреть которую следует до начала монтажа всей конструкции. Если в гостиной невысокие потолки и небольшая площадь, то лучше всего использовать модули скромных размеров, которые будут смотреться оригинально, не загромождая пространство.
В современных интерьерах часто используется прием, когда вдоль одной из стен гостиной, например, под ТВ, по всей длине стоят невысокие модули (подвесные ящики, открытые полки). Такое решение придает стильный вид, делает интерьер легким, воздушным, ярким.
Встроенная модульная система хранения вещей комбинированного типа для гостиной
Гостиная в стиле модерн с модульной системой хранения вещей
Кстати, совсем необязательно использовать для установки системы хранения лишь одну стену гостиной. Рационализировать пространство помогут угловые варианты, а также комбинирование элементов различной высоты.
Функциональность и дизайн вполне совместимы, если с умом подойти к организации пространства. Модульные системы хранения вещей для гардеробной или жилой комнаты существенно упростят быт, сохраняя порядок и внешний вид отдельных предметов обихода независимо от площади квартиры.
Обзор лучших производителей гардеробных систем
Гардеробные системы можно сделать на заказ или приобрести готовый вариант в магазине. Любым изготовлением занимаются разные компании. Среди известных иностранных производителей стоит отметить Aristo (Китай), Elfa (Швеция), Ikea (Швеция) и Larvij (Англия). Из отечественных брендов пользуются популярностью: «Гардероб мастер», «Новые мобильные технологии» и «Роникон».
Гардеробные системы «ИКЕА»
Востребованы гарнитуры от «Икеа», благодаря функциональности, широким возможностям компоновки и превосходным эксплуатационным качествам. Такие комплексы можно дополнительно укомплектовать всевозможными корзинками полками. Конструкции можно расположить в любом удобном месте, даже на лоджии или на мансарде. Навесными и развижными моделями дверей комплектуется серия ПАКС. Цветовая палитра насчитывается около 30 видов, что позволяет выбрать лучший вариант для любого интерьера.
Функциональный комплекс от ИКЕА
Серия Стольмен оснащена регулируемыми по высоте стойками, позволяющими подобрать гарнитур под любую высоту комнаты. К достоинствам таких комплексов относится мобильность. Их легко демонтировать и перенести в удобное место.
Стоит ознакомиться и с отзывами. Вот, например:
Система гардеробов IKEA ПАКС
Aristo гардеробные системы
Из стали высокого качества выполняются гардеробные системы «Аристо». Такие гарнитуры подходят не только для одежды, но и для хранения хозяйственного или спортивного инвентаря. Особенностью конструкции является возможность использовать площадь хранения. Система предполагает рациональное расположение частей наполнения. Конструкция не сложна в монтаже. Ее можно легко моделировать, путем перемещения полок.
Эконом – гарнитур состоит из стандартных элементов, которые не имеют выдвижных механизмов. В бюджетных конструкциях стандартные комплектующие дополняются выдвижными механизмами и полками.
Алюминиевый комплекс от «Аристо»
Компания предлагает и эксклюзивные комплексы различными вариантами хранения и выдвижными секциями.
Гардеробные системы Elfa
Функциональностью и практичностью обладает система хранения Elfa. Эта компания является первым основателем сетчатых моделей. На протяжении долгих лет она занимается усовершенствованием корпусных изделий.
Всему миру известны каркасные гардеробные системы «Эльфа». Они отличаются вместительностью, но при этом компактными размерами. Их можно применять в малогабаритных квартирах. Системы оснащены качественной вентиляцией. Собрать гарнитур можно без привлечения профессиональных специалистов.
Мебельные комплексы оснащаются четырьмя вариантами крепления элементов:
- настенный вариант, при котором рейки направляющих монтируются к стене;
- стеллажный – к боковым и вертикальным поверхностям монтируются многоуровневые потолки;
- П-образная опора устанавливается самостоятельно, без дополнительного крепежа к стене.
Эргономичный и удобный комплекс
Гардеробные системы ЛЕРУА МЕРЛЕН
ЛеруаМерлен предлагает клиентам обширный ассортимент функциональных гардеробных конструкций. Можно приобрести достаточно бюджетные варианты от известных производителей. Если есть желание собрать систему самостоятельно, то можно приобрести отдельные комплектующие для сборки комплекса.
Потребителям предлагаются сетчатые системы, в которых можно хранить вещи в несмятом виде. Для белья применяются разнообразные корзинки.
Вариант сборного комплекса
Гардеробные системы Larvij
Данный комплекс включает большой набор элементов: полок, вешалок и направляющих стоек. Компания предлагает оригинальные технические решения. Для мелких предметов подойдут корзины-этажерки. Применяются в системе всевозможные стеллажи, полки и ящики. Направляющие легко монтируются к стене с помощью саморезов. Ширина полок варьируется от 20 до 40 см. Монтировать систему можно по частям или устанавливать в разных комнатах. Со временем гарнитур можно дополнить новыми модулями.
Удобная гардеробная в белом цвете
Гардеробная система «КАНЗАС»
К классическим вариантам гардеробных относится система «Канзас». В конструкции используется штанга, к которой крепятся бельевые корзины. В системе предусмотрено три секции, глубина которых 30 см м ширина 2,4 метра. В гарнитуре предусмотрено все необходимое для размещения вещей. Верхняя полка используется для шапок, перчаток и шляп. Затем располагаются вешалки для верхней одежды. Предусмотрены полки для аксессуаров и разных вещей. В нижнем отсеке хранится обувь. Такой вариант подойдет для небольших помещений.
Разборный вариант
Материалы
ДСП и МДФ

Основные преимущества модулей для корпусной мебели, которые изготовлены из таких материалов, – невысокая цена и практичность изделия:
Ламинированная древесная плита имитирует натуральную древесину благородных пород. Её поверхность имеет специальное покрытие, обладающее высокой устойчивостью к механическим повреждениям и влажности.




Металл
Металлические сплавы используются при изготовлении дополнительных элементов и фурнитуры систем колонного или сетчатого типов. В состав входит сталь, либо алюминий. Изделия имеют лёгкий вес и эстетическую привлекательность. Часто используется и нержавеющая сталь. Она является самым надёжным материалом: не изменяет цвета, имеет долгий срок службы.

С целью декорирования также применяются древесно-стружечные плиты с ламинированием. Не менее популярны стеклянные, акриловые и пластиковые панели. Для классической гардеробной может быть применена отделка из массива дерева ценных пород.


Зеркала
Зеркала и зеркальные фасады необходимы в том случае, если есть повод для визуального увеличения пространства при небольшом размере помещения. Стеклянные элементы прекрасно подойдут для витражей и небольших полочек. Они пропускают свет и открывают обзор хранимых предметов.


Виды конструкций
На современном этапе различают четыре основных варианта, а для того, чтобы иметь представление о том, какой из них стать наиболее оптимальным, стоит подробно остановиться на каждом.
Сетчатые конструкции
Сетчатые (их ещё называют сотовыми) относятся к навесным системам. Их основной принцип заключается в наличии несущей конструкции, состоящей из готовых металлических перекладин, которые крепятся к стене по горизонтали и вертикали.
Сетчатая структура корзин, полок и приспособлений для обуви вначале может показаться довольно непривычной и даже экзотической российскому потребителю, который привык к массивным советским стенкам и платяным шкафам. Однако именно такой дизайн обеспечивает не только практичность, но и удобство в использовании. Вещи получают регулярный доступ воздуха, не приобретают неприятного запаха при длительном хранении, а открытые взгляду полки и ящики сразу позволяют увидеть, где находится нужный предмет.
Несомненный плюс сотовых систем заключается ещё и в их мобильности. Любой модуль можно легко снять и поменять местами с другим, убрать, либо передвинуть. Такой гардероб всегда будет похож на уникальный конструктор, лёгкий в применении и имеющий массу комбинаций.
Одна из замечательных особенностей комплектации – сетчатые тумбы, высоту и размеры которых можно регулировать произвольно, в зависимости от желания потребителя. Их тоже удобно переносить и передвигать по своему усмотрению.
Колонные конструкции
Каркасные (или колонные) отличаются от навесных тем, что их крепёж предназначен для металлических труб, упирающихся одним краем в пол, другим — в потолок, что и создаёт прочный металлический каркас. Колонны снабжены креплениями, предназначенными для полок и ящиков.
Такую систему очень просто разобрать и собрать самостоятельно, поэтому она прекрасно подойдёт людям, которые, по роду своей жизни и деятельности часто переезжают с места на место. Её можно установить, где угодно: в коридоре, либо в комнате. Это позволит сэкономить гораздо больше места, чем при установке платяного шкафа или классического шкафа-купе: встраиваемые гардеробные открытого типа дают как визуальный, так и фактический эффект расширения любого пространства.
Однако отсутствие дверей и стенок, при наличии множества стеллажных полок, может несколько озадачить тех покупателей, которые не привыкли регулярно поддерживать порядок в своих вещах. Прикрыть «творческий хаос», образовавшийся либо по привычке, либо в спешке, будет невозможно. Поэтому наборные системы открытого типа больше всего подходят людям, характер которых отличается щепетильностью, педантичностью и постоянной любовью к порядку.
Корпусные конструкции
Корпусные (или классические) до сих пор являются популярными среди покупателей вследствие привычного облика в виде нескольких элементов, скреплённых стяжками между собой. Невзирая на то, что такой вариант занимает довольно много места в небольших помещениях, он всегда порадует владельца своей практичностью, надёжностью и невысокой ценой.
Гардеробная может быть либо встроенной, либо сборной, сделанной из нескольких модульных секций. Множество полок и отделений всегда является неоспоримым преимуществом для тех, кто ценит возможность с толком и расстановкой расположить внутри оптимальное количество вещей. Хорошая вместительность, а также наличие стенок и дверей, обеспечивают то, что вещи не падают на пол, даже если внутри беспорядок.
Однако корпусная мебель может выглядеть довольно массивно и громоздко, особенно в условиях небольших комнат. Поэтому лучше, чтобы помещение, в которое она устанавливается, было как можно больше, желательно — отдельное.
Панельные конструкции
Панельные (или буазери) представляют собой стильную и ультрасовременную конструкцию бизнес-класса, которая и стоит недёшево, и выглядит внешне очень эффектно. В комплектацию входят особые настенные панели декоративного типа. После прикрепления к стенам они дополняются всем необходимым для функционального использования гардероба: полками, ящиками, штангами.
Варианты размещения
Если представить себе большую гардеробную, где может поместиться всё, начиная от предметов одежды и обуви и заканчивая хозяйственной утварью, на ум сразу приходит мысль о просторном загородном доме, коттедже или даже в хрущевке. В таких случаях оптимальное количество свободного места заранее обозначается в плане постройки дома — обычно, на втором этаже, по соседству со спальней и ванной комнатой.


Однако далеко не всем выпадает счастливая возможность проживания в загородном доме. Для большинства потребителей актуальным является вопрос, как обустроить гардеробную комнату в обычной квартире, где количество квадратных метров бывает ограничено до минимума. К счастью, современные технологии позволяют подстраиваться под разные размеры и конфигурации комнат и иных помещений. При наличии желания и творческого начала можно оборудовать уютный гардероб даже под лестницей.

Если в комнате или прихожей имеется углубление в виде ниши (что часто встречается в таких домах, как «сталинки» и «хрущёвки»), то появляется прекрасная возможность для создания встроенной системы. В домах такого типа часто встречаются различные закутки и длинные узкие коридоры, которые используются не менее успешно.


В спальне площадью 14-15 кв. м. будет вполне достаточно участка стены площадью 3-5 кв. м. Поскольку спальня представляет собой зону личного пространства, можно особенно не заботиться о том, чтобы гардеробная имела закрытые створки. К тому же, одежда при таком оформлении может превратиться в элемент дизайна, что уже само по себе является нестандартным решением.

Иногда в новых планировках квартир делается по два санузла, один из которых часто использоуется с целью перепланировки под гардеробную. Такой вариант нередко нуждается предварительном согласовании с жилищно-коммунальными службами.

Для небольших помещений предлагается использовать весьма интересные альтернативные решения. Одно из них заслуживает отдельного описания и идеально подходит как для творческих личностей, так и для людей, которые не считают принципиальным прятать свою одежду за дверцами шкафа. Нужно выбрать любой угол, поставить там несколько стеллажей с полками, установить лёгкие металлические перекладины для вешалок.

В общий ансамбль идеально впишется передвижная вешалка на колёсиках. Обувь следует хранить либо в ящике, либо просто оставлять её на плотном декоративном коврике.


При размещении немаловажно учитывать такие нюансы, как освещение и вентиляция, особенно, если речь идёт о закрытом помещении. Во избежание появления неприятных запахов и порчи вещей при повышении влажности, целессобразно продумать то, каким образом обеспечить гардеробную вентиляцией
Прежде всего, стоит позаботиться о естественном проветривании в шкафах. Оно обеспечивается оптимальным расстоянием между плечиками в 5 см, в то время, как 2-3 см — уже плотное размещение, которое не годится для закрытых систем.

Света должно быть достаточно для того, чтобы найти в гардеробе нужную вещь и определиться с сочетанием элементов одежды при примерке. Если гардеробная большая, используется равномерное потолочное освещение, а если маленькая — бывает достаточно установить в разных местах два-три точечных светильника.

«Аристо»
Гардеробные системы сделаны из прочной стали. Их используют не только для одежды, но и для хозяйственного инвентаря, инструментов. Из-за эргономичности, стильного внешнего вида конструкцию можно размещать как в отдельной комнате, так и в виде наполнения шкафа-гардеробной.
Особенностью системы считается возможность задействовать все сантиметры пространства. Из-за рационального размещения элементов наполнения обеспечивается хранение большого количества вещей. Система проста в установке, ее моделируют по желанию, изменяя местоположение полок. Комплект легко модернизируется с помощью дополнительного приобретения стеллажей, полок.
Производитель выпускает разные модификации: эконом, бюджет, эксклюзив. Первые варианты состоят из стандартных компонентов, где нет выдвижных механизмов. Применяются на дачах, в гаражах, кладовых. Бюджетные модели имеют простые стандартные элементы с множеством полок.
По причине множества выдвижных секций комплекс «Аристо» стильный и функциональный. Гардеробная этого вида имеет 2 расцветки. Законченный вид системы обеспечивается декорированием элементов из пород ценного дерева.
Выбор
Если принято решение, что шкафом будет система хранения вещей в гардеробной, то следует определить ее тип. Для подбора идеального варианта, который отлично подойдет к интерьеру комнаты и будет соответствовать требованиям хозяев, нужно учитывать главные критерии выбора:
- Тип системы. Обо всех популярных видах рассказано выше. Если во время хранения будет перемещение, то предпочтительнее выбрать систему по типу конструктор.
- Число элементов наполнения. Это определяется от количества проживающих в семье.
- Размер. Следует определить, будет ли система установлена во всю стену, а также какая глубина и число отделений должны быть.
- Материал. Итальянские гардеробные делают из надежного деревянного массива. Каркасные варианты – из металла, а сетчатые – из качественной проволоки.
При выборе системы надо учитывать ее прочность, надежность. Изделия должны отличаться долговечностью и удобством, так как покупаются на много лет. Перед установкой требуется изучить их особенности, характеристики. Самые популярные системы для хранения вещей представлены далее.
Особенности
Гардеробные системы Larvij – это определенный комплект элементов, который дает возможность собрать сетчатые гардеробные системы. В него входят полки различной конфигурации, всевозможные корзины, рельсы, стойки, кронштейны, фурнитура, крепления. Производитель предлагает уже готовые решения для различных помещений, а если они вам не подходят или не нравятся, то вы можете сами спланировать гардеробную в 3D планировщике на официальном сайте Larvij.

Гардеробные системы Larvij дают возможность каждому побыть в роли дизайнера и создать свой неповторимый интерьер. Такая система хранения вещей индивидуальна в каждом конкретном случае – выбор и расположение комплектующих зависит только от вас, и в то же время универсальна – ее можно использовать для хранения одежды в шкафу, посуды на кухне, книг, журналов и милых мелочей в гостиной, обуви, зонтиков, шляп, верхней одежды в прихожей. Благодаря стильному дизайну всех элементов системы, она гармонично вписывается в любой интерьер.

Вы можете оборудовать шкаф-купе, максимально используя пространство внутри, либо создать открытые полки в комнате. Если размер квартиры позволяет, можно обустроить гардеробную комнату с полочками, корзинами, вешалками, брючницами, полками для обуви.

Все комплектующие универсальны, независимы, и их можно комбинировать между собой по вашему желанию. Это дает возможность создавать мебель различной конфигурации, любого назначения, формы и размера. С такими системами хранения ваши вещи всегда будут лежать на местах, а в доме будет уют и порядок.

Конструктор системы хранения вещей для гардеробной
Если вы только планируете приобрести себе гардеробную и хотите смоделировать ее конструкцию, а также рассчитать стоимость, то к вашим услугам многочисленные онлайн конструкторы, которые предоставляют компании производители:
- IKEA — ;
- Elfa — конструктор и видео урок для работы с ним: ;
- Aristo — форма заполнения заявки на онлайн-расчёт: ;
- Larvij — ссылки для скачивания на Apple Store и Google Play, видео урок и пошаговая инструкция: ;
- Kanzas – онлайн-конструктор и подробная пошаговая инструкция: ;
- Универсальная программа проектировщик для гардероба и статья с краткой инструкцией по использованию: .
Где можно приобрести недорого гардеробные системы
Как и большинство других покупок, приобрести гардеробные системы можно, посетив официальные сайты производителей или интернет-магзины по реализации подобной продукции. Покупка через сеть интернет даст возможность изучить модели систем хранения и выбрать вариант, наиболее подходящий применительно к вашему помещению. Удобная система поиска и информация о стоимости позволит быстро найти и заказать недорого гардеробную систему.
Если в вашем доме под гардеробную отводится отдельная вместительная комната, нет необходимости приобретать занимающие часть пространства шкафы-купе. В этом случае вам можно оборудовать помещение сделанной на заказ недорого гардеробной системой. Ее стоимость будет зависеть от размеров, материала и элементов наполнения, входящих в комплект. У заказчика есть возможность выбрать самостоятельно комплектующие системы и цвет ее исполнения.
Небольшая гардеробная комната в нише
Все, что нужно для заказа гардеробной системы – связаться с менеджером компании по телефону, указанному на сайте, или заполнить форму заказа. Вы получите квалифицированную консультацию по всем интересующим вас вопросам и сможете ознакомиться с дизайн-проектами и примерами работ компании. Помимо этого, если у вас уже имеется готовый проект, специалисты компании могут предоставить рекомендации по улучшению конструктива, чтобы на выходе получить эффективный комплекс, где будет максимально продуман каждый компонент.
Заказ гардеробных систем непосредственно на официальных сайтах производителей даст возможность приобрести конструкцию, не переплачивая за услуги посредников. Все компании, имеющие собственное производство, предлагают свою продукцию по минимально возможным ценам с использованием новейших технологий и разнообразного дизайна фурнитуры и комплектующих деталей.
Самодельный стеллаж для гардеробной в эко-стиле
Гардеробные системы хранения являются непременным атрибутом жилища современного человека. Они отлично заменяют многочисленные полки, стеллажи, тумбочки, громоздкие шкафы, объединяя в себе различные виды модульных комплексов для хранения при минимальном использовании пространства. Хранение и поиск нужных вещей становится простым и удобным. А гардеробные системы, сделанные на заказ по индивидуальным размерам, станут примером безграничной универсальности и комфорта.
Критерии правильного выбора системы хранения вещей для гардеробной
Тип системы хранения вещей в гардеробной выбирается исходя из материала стен. Если высверлить в них отверстия для крепежей технически нецелесообразно, то предпочтение отдается опорной конструкции. Если нагрузка на несущие элементы планируется небольшая, то допускается применение подвесной системы. В зависимости от формы опорной пластины консолей может потребоваться дополнительное укрепление несущего основания из гипсокартона, если площадь опоры и не очень большая. Для помещений неправильной формы, имеющих много углов, целесообразно использовать колонный или сетчатый тип. Для помещений прямоугольной или квадратной формы, допускается применение панельной системы. Модульную разновидность со шкафчиками рекомендуется использовать, если гардеробная комната является частично или полностью открытой – на входе вместо дверей открытая арка или расположена в алькове.
Видео обзор сетчатой системы гардеробной и критерии ее выбора:
Watch this video on YouTube

























































