Устройство заземления своими руками: поэтапная инструкция
Если Вы задаетесь вопросом: «как сделать заземление на даче?», то для выполнения данного процесса потребуется следующий инструмент:
- сварочный аппарат или инвертер для сварки металлопроката и вывода контура на фундамент здания;
- угловая шлифмашинка (болгарка) для разрезания металла на заданные куски;
- гаечные глючи для болтов с гайками М12 или М14;
- штыковая и подборная лопаты для рытья и закапывания траншей;
- кувалда для вбивания электродов в землю;
- перфоратор для разбивания камней, которые могут встречаться при рытье траншей.
Чтоб правильно и согласно нормативным требованиям выполнить контур заземления в частном доме нам потребуются следующие материалы:
- Уголок 50х50х5 — 9 м (3 отрезка по 3 метра).
2. Сталь полосовая 40х4 (толщина металла 4 мм и ширина изделия 40 мм) — 12 м в случае вывода одной точки заземлителя на фундамент здания. Если же Вы хотите выполнить контур заземления по всему фундаменту к указанному количеству добавьте общий периметр здания и еще возьмите запас для подрезки.
3. Болт М12 (М14) с 2 шайбами и 2-я гайками.
4. Медный заземлитель. Может быть использована заземляющая жила 3-х жильного кабеля либо провод ПВ-3 с сечением 6–10 мм².
После того как все необходимые материалы и инструменты есть в наличии можно переходить непосредственно к монтажным работам, которые детально расписаны в следующих главах.
Выбор места для монтажа контура заземления
В большинстве случаев рекомендуется монтировать контур заземления на расстоянии в 1 м от фундамента здания в месте где оно будет скрыто от человеческого глаза и к которому будет сложно добраться как людям, так и животным.
Такие меры необходимы для того, что при повреждении изоляции в электропроводке потенциал будет идти на контур заземления и может возникнуть шаговое напряжение, которое может привести к электротравме.
Выполнение земляных работ
После того как было выбрано место, выполнена разметка (под треугольник со сторонами 3 м), определено место вывода полосы с болтами на фундамент здания можно приступать к земляным работам.
Для этого необходимо с помощью штыковой лопаты по периметру размеченного треугольника со сторонами по 3 м снять слой земли в 30–50 см. Это необходимо для того, чтоб в дальнейшем без особых трудностей к заземлителям приварить полосовой металл.
Также стоит дополнительно прокопать траншею такой же глубины для подвода полосы к зданию и выводу ее на фасад.
Забивание заземлителей
После подготовки траншеи можно приступать к монтажу электродов контура заземления. Для этого предварительно с помощью болгарки необходимо заточить края уголка 50х50х5 или круглой стали диаметром 16 (18) мм².
Далее выставить их в вершины полученного треугольника и с помощью кувалды забить в землю на глубину 3 м
Также важно чтоб верхние части заземлителей (электродов) находились на уровне выкопанной траншеи чтоб к ним можно было приварить полосу
Сварные работы
После того как электроды будут забиты на необходимую глубину с помощью стальной полосы 40х4 мм необходимо сварить между собой заземлители и вывести данную полосу на фундамент здания где будет подключен заземляющий проводник дома, дачи или коттеджа.
Там, где полоса будет выходить на фундамент на высоте 0.3–1 мот земли, необходимо приварить болт М12 (М14) к которому в дальнейшем будет подключено заземления дома.
Обратная засыпка
После выполнения всех сварных работ полученную траншею можно засыпать. Однако перед этим рекомендуется залить траншею соляным раствором в пропорции 2–3 пачки соли на ведро воды.
После полученную почву необходимо хорошо утрамбовать.
Проверка контура заземления
После выполнения всех монтажных работ возникает вопрос «как проверить заземление в частном доме?». Для этих целей конечно обычный мультиметр не подойдет, поскольку у него очень большая погрешность.
Для выполнения данного мероприятия подойдут приборы Ф4103-М1, Клещи Fluke 1630, 1620 ER и так далее.
Однако эти приборы очень дорогие, и если Вы выполняете заземление на даче своими руками, то для проверки контура Вам будет достаточно обычной лампочки на 150–200 Вт. Для данной проверки Вам необходимо один вывод патрона с лампочкой подключить к фазному проводу (обычно коричневого цвета) а второй — к контуру заземления.
Если лампочка будет ярко светить — все отлично и контур заземления полноценно функционирует, если же лампочка будет тускло светить или вообще не испускать световой поток — значит контур смонтирован неверно и нужно либо проверять сварные стыки или монтировать дополнительные электроды (что бывает при низкой электропроводимости почвы).
Составление расчета
Неопытные мастера часто создают заземление путем проб и ошибок. Вначале определяются с глубиной грунтовых вод, затем отступают от здания на некоторое расстояние и создают контур в виде треугольника, после чего сваривают электроды друг с другом и делают замер сопротивления в имеющейся конструкции. Если сопротивление превышает нормативы, добавляются новые проводники — до тех пор, пока не удается добиться приемлемых показателей.
Более продвинутый подход предполагает перед тем, как сделать контур заземления, выполнить ряд расчетов. С помощью вычислений определяют число заземлителей, длину соединительных элементов, исходя из уровня сопротивления земли.
В качестве примера рассмотрим установку системы заземления вертикального типа. Вначале устанавливают сопротивление электрода, для чего используют формулу:
Удельное сопротивление грунта по различным составам указано в таблице ниже.
В следующей таблице представлен сезонный климатический коэффициент сопротивления почвы.
Однако если грунт неоднородный, тогда применяют такую формулу:
Формула позволяет определить эквивалентное удельное сопротивление неоднородного грунта.
Если не учитывать сопротивление горизонтального заземлителя, количество электродов можно найти по формуле:
Сопротивление тока горизонтального заземлителя определяют по формуле:
Длина электрода устанавливается так:
Сопротивление вертикальных электродов с учетом горизонтального заземлителя:
Общее число вертикальных электродов определяется по такой формуле:
В таблице ниже представлен коэффициент использования заземлителей.
Параметр «коэффициент использования» указывает на взаимодействие токов в зависимости от местонахождения вертикальных проводников. При параллельном соединении электродов токи оказывают влияние друг на друга. При уменьшении расстояния между проводниками общее сопротивление контура возрастает.
Из чего состоит заземление
В состав заземляющей системы согласно ее определению (смотрите ПУЭ) входят такие обязательные элементы, как:
- Сам ЗК, обустраиваемый на основе металлических уголков площадью поперечного сечения не менее 100 мм квадратных или отдельных штырей диаметром порядка 20 мм.
- Комплект специальных проводников (медных шин), позволяющих в жилых домах заземлять электрические приборы.
В зависимости от своего расположения относительно здания защитные конструкции могут быть внешними и внутренними. Рассмотрим как нужно обустраивать каждый из представленных видов контуров, чтобы добиться наилучших результатов.
Внешний контур
При обустройстве наружного контура заземления необходимо учитывать качество и состав грунта в месте расположения его элементов. Хозяева самостоятельно отстроенного дома обычно знают, на какой почве он стоит, и сразу могут определить, как она влияет на проводимость. В противном случае потребуется помощь специалистов по геодезии.
При самостоятельном проведении работ важно знать, что грунты бывают:
- чисто глинистыми;
- суглинистыми;
- торфяными;
- черноземными;
- гравийными и скалистыми.
В реальных условиях в пределах домашнего участка чаще всего встречаются первые два класса почв или их разновидности (суглинок пластичный, глинистые сланцы и подобные им). Для различных типов грунтов их удельные сопротивления имеют следующие значения:
- Глина пластичная и мягкий торф – 20-30 Ом·/метр.
- Для суглинка с содержанием золы и пепла, а также простой садовой земли этот показатель составляет 30-40 Ом/метр.
- Черноземные земли и глинистые сланцы, а также глина полутвердая имеют сопротивление, близкое к значениям 50-60 Ом/метр.

С точки зрения организации внешнего контура заземления эти почвы – самые подходящие, поскольку в них сопротивление растеканию имеет небольшую величину.
Грунты с большими значениями сопротивлений представлены такими видами, как:
- Полутвердый суглинок, иногда определяемый как смесь глины и песка, а также так называемая «влажная супесь», имеющая средний показатель 100-150 Ом/·метр.
- Содержащий глину гравий и влажный песок – 300-500 Ом/·метр.
А такие «жесткие» грунты, как скала, гравий и сухой песок совершенно неспособны обеспечить надежное заземление. В этих условиях принимаются специальные меры, позволяющие понизить сопротивление заземляющих контуров в месте расположения штырей.
Дополнительная информация: Они чаще всего сводятся к искусственному изменению состава почвы. Как пример – добавление в нее раствора поваренной соли.
Еще один вариант, позволяющий найти выход из сложившейся ситуации – обустройство глубинных заземлителей, достающих до слоев более «легкого» состава. Но этот подход к тому, как обустроить наружное заземление, достаточно трудоемок и обойдется недешево.
Контур заземления внутри объекта
При расчете элементов внутреннего контура заземления необходимо учитывать, что смонтированная внутри здания токопроводящая полоса должна охватывать периметр каждого из имеющихся в нем помещений. К открыто проложенной вдоль стен и вблизи от пола заземляющей шине подсоединяются все установленные в них электроустановки и приборы.
Заземляющая шина в распределительном шите В этих условиях особое внимание уделяется таким составляющим, как заземляющие проводники (соединители, предназначенные для подключения бытовых приборов и ванны непосредственно к заземлению). Отдельный контакт щитка (планка заземления) соединяется либо с обустроенным в пределах строения внутренним контуром, либо посредством длинного медного проводника – с внешней системой заземления (как это изображено на первом фото данной статьи)
Прямо от него медные шины в виде проводников отводятся в сторону различных защищаемых электроустановок и приборов. Нередко вместо полноценного щитка применяется отдельная контактная планка «PE», оборудованная непосредственно на входе в частный дом (рейка ГЗШ приведена на фото ниже)
Отдельный контакт щитка (планка заземления) соединяется либо с обустроенным в пределах строения внутренним контуром, либо посредством длинного медного проводника – с внешней системой заземления (как это изображено на первом фото данной статьи). Прямо от него медные шины в виде проводников отводятся в сторону различных защищаемых электроустановок и приборов. Нередко вместо полноценного щитка применяется отдельная контактная планка «PE», оборудованная непосредственно на входе в частный дом (рейка ГЗШ приведена на фото ниже).

Главная заземляющая шина
Способы создания заземления

Поверхность контакта с грунтом важна когда дело доходит до сопротивления заземления. Чем ниже сопротивление – тем лучше (быстрее электрический потенциал при проблемах будет равен нулю).
В настоящее время существует несколько популярных решений для изготовления земляных электродов, упомянем несколько из них:
- Железный стержень на несколько метровый засунутый в землю, оканчивающийся сверху соединением для подключения заземляющего проводника. Длина стержня зависит от типа почвы. Чем ниже электрическое сопротивление земли, тем короче может быть стержень. Во многих случаях использование такого типа заземляющего электрода может быть недостаточным из-за слишком малой поверхности контакта с землей и, как следствие, высокого электрического сопротивления.
- Использование ленты из стали. Оберните вокруг дома около 80-100 см под землей. В одном месте она соединяется с основным заземляющим проводником, выведенным из электрической системы с помощью разъема.
- Подключение заземляющего проводника к стержню, который выходит от железобетонного основания здания. То есть соединение земли с фундаментом, который имеет большую площадь контакта с землей и, кроме того, не требует дополнительных затрат на установку. Просто нужно подумать об этом на стадии постройки дома.
Бытовое заземление
Правильно обустроенное заземление обеспечивает безопасную и нормальную работу электроприборов. Стоит отметить, что постоянное заземление требуется в промышленности, в быту достаточно заземлить приборы через ноль обычной электророзетки.
Однако некоторые приборы нуждаются в заземлении наглухо. Например, электроемкая стиральная машина-автомат, особенно при повышенной влажности, может пробивать заряд на корпус, в результате чего при прикосновении к ней или мокрому белью можно ощутить легкий удар тока.
Для микроволновок предусмотрена клемма, с помощью которой можно установить дополнительное заземление. Обычно она расположена на задней панели прибора. Она нужна для того, чтобы в случае недостаточного контакта в розетке печь не выдавала волны на опасном на здоровье уровне. Помимо этого, наглухо заземляют варочные поверхности, духовки, индукционные печи, холодильники.
Техника монтажных работ
Грамотный подход к обустройству ЗК состоит в правильности выбора места под него, а также в соблюдении требований действующих нормативов в части проведения основных монтажных работ.
Выбор места под ЗК
Перед устройством контура заземления важно подобрать место для размещения его элементов. Желательно – неподалеку от дома (его обычно рассчитывают устанавливать на удаление не более 2-х метров, что позволит выиграть на длине проводников)
Дополнительная информация: При выборе участка под заземление в первую очередь следует учесть, чтобы эта площадка располагалась на контролируемой хозяином территории.
Для этих целей подойдут такие зоны, как:
- участок огорода (кроме грядок с картофелем);
- палисадник или клумба;
- парковая зона, непосредственно примыкающая к дому.
Если грунт на прилегающей к строению местности имеет высокое удельное сопротивление – допускается установка системы штырей КЗ на более удаленной дистанции.
В любом из рассмотренных случаев при выборе места под ЗК следует предусмотреть все возможные варианты его использования в будущем (пусть даже и в очень отдаленной перспективе). Это позволит избежать ненужных издержек на перенос конструкции в ситуации, когда в данной зоне потребуется разбить детскую площадку, например.
Монтаж контура заземления
В зависимости от выбранной площадки (ее формы и размеров) при монтаже ЗК могут применяться различные схемы. Штыри в нем могут располагаться как в линию, так и в виде треугольника.
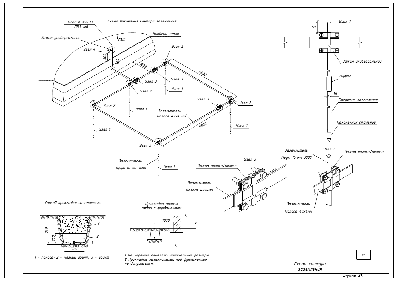
В том случае, когда выбрана треугольная конструкция, порядок обустройства ЗК выглядит следующим образом:
- Сначала на этом месте размечается площадка соответствующей конфигурации со сторонами примерно 2,5-3 метра.
- Затем вырывается котлован с размерами чуть большими, чем это обозначено разметкой.
- Вырытый в земле приямок должен повторять форму равнобедренного треугольника и иметь глубину не менее полуметра (при ширине порядка 50-70 см.).
- После этого по углам треугольного котлована с небольшим отступлением от стенок вбиваются три стальных штыря (отрезка арматуры) на глубину не менее 2-х метров.
- И, в завершении все они соединятся между собой стальными полосами (делается это посредством сварки, которой в данной ситуации следует отдать предпочтение).
В результате должна получиться конструкция, похожая на приведенную ниже.
Контур заземления по схеме треугольник
Сечения проводов заземления от контура не должно быть менее 12-16 мм квадратных.
Для экономии сил и времени вырывать приямок под штыри можно не полностью. Достаточно будет выбрать землю только из канавок, в которые укладываются затем стальные соединительные полосы. На заключительной стадии сварных работ уже готовый заземлитель присыпается составом с низким удельным сопротивлением (золой или пеплом, например). Со временем содержащиеся в добавках соли растворятся в земле, что обеспечивает снижение сопротивления растеканию аварийного тока.
Параметры заземлителей (вертикальное расположение)
При проведении расчетов контуров заземления вертикального типа необходимо руководствоваться следующей формулой:
Приведенные в ней величины расшифровываются, как указано ниже:
R0 – величина расчетного сопротивления одиночного электрода в Омах.
Рэкв – значение удельного сопротивления почвы, уже рассмотренное ранее в главе о наружном ЗК.
L – длина отдельного электрода, входящего в состав системы заземления.
D – диаметр или соответствующий сечению размер штыря.
Т – расчетное расстояние от условного центра каждого из электродов до земной поверхности.
Для того чтобы получить требуемое значение сопротивления R0 (согласно ПУЭ оно не должно превышать 30 Ом) следует подбирать входящие в формулу переменные величины.
Перед тем как рассчитать ЗК следует учитывать, что для монтажа горизонтальной конструкции потребуется намного больше усилий и затрат по времени (а также значительных расходов медного материала). Кроме того, обустроенное таким способом заземление очень чувствительно к погодным условиям.
Именно поэтому считается, что лучше потратиться на обустройство вертикальных стержней, чем пытаться преодолеть недостатки горизонтальных заземляющих систем.
Расчет контуров заземлений для жилых зданий
Назначение
Расчет помогает проанализировать габариты и форму создаваемого контура для обеспечения допустимого электрического сопротивления аварийному току, отводимого от дома на потенциал земли.
Заземление призвано снизить напряжение прикосновения человека до безопасного значения за счет растекания от него недопустимых токов и перераспределения опасных потенциалов.
Для жилых зданий сопротивление контура не должно превышать 8 Ом при эксплуатации однофазной сети 220 вольт и 4 Ома — для трехфазной 380.
Характеристики грунтов
Для учета их влияния на протекание токов используется термин «Удельное сопротивление грунта», единицей которого выбран «Ом∙м». Он обозначается латинской буквой ρ. Этот показатель зависит от многих факторов, включая влажность почвы и ее состав, изменяется в определённых пределах даже с учетом погодных условий.
Величина удельного сопротивления грунта определяется измерением на местности, а его усредненные значения для предварительных ориентировочных расчетов сведены в таблицы. Электроды заземлителей с целью уменьшения климатического воздействия заглубляют в землю на 0,7 метра или больше.
Сравнить влияние состава грунтов, влажности, температуры рабочей среды на величину этого показателя можно на основе предлагаемой таблицы.
Таблица приближенных значений удельного сопротивления для грунтов и воды
| № п/п | Рабочая среда | -20°С | -10°С | -5°С | Талый грунт |
| 1 | Песок | 11500 | 8000 | 5000 | 500 |
| 2 | Песок глинистый с примесями кварца (пылеватый) | 3000 | 1200 | 1100 | 45 |
| 3 | Супесь | 1500 | 1000 | 500 | 800 |
| 4 | Суглинок тяжелый | 3500 | — | 1200 | 50 |
| 5 | Глина с влажностью от 6% до 40% | 3000 | 3000 | 550 | 70 |
| 6 | Глина каменистая (слой 1÷3 м, а далее гравий) | 12000 | — | 1000 | 100 |
| 7 | Известняк | 12600 | 7940 | 3000 | 2000 |
| 8 | Чернозем | — | 1000 | 800 | 500 |
| 9 | Торф | — | 1000 | 500 | 20 |
| 10 | Вода речная | — | — | — | 50-400 |
| 11 | Вода озерная | — | — | — | 50 |
Металл заземлителя
Для изготовления электродов контура обычно выбирают:
Величину их проводимости легко найти в технических справочниках.
Монтаж контура
Установочные работы состоят из нескольких последовательных этапов.
Подготовка материалов и инструментов
Для выполнения работ понадобятся такие инструменты:
- сварочный аппарат;
- болгарка;
- штыковая лопата;
- перфоратор;
- тяжелая кувалда;
- гаечные ключи.
Необходимые материалы:
- Металлический уголок (лучше из нержавейки) размером 50×50 миллиметров и длиной 2 метра. При отсутствии уголка подойдет труба диаметром 32 миллиметра и толщиной стенок 3,5 миллиметра или арматура.
- Металлические полосы 40×4 миллиметра. Предназначены для прокладки от системы к дому.
- Болты М8 или М10.
- Медный проводник толщиной от 6 квадратных миллиметров.
Выбор места
Первый этап работы состоит в том, чтобы определиться, где сделать заземляющий контур. От правильности выбора зависит безопасность системы. Для создания контура нужно подобрать место, где нахождение человека или домашнего животного исключено.
Земляные работы
Необходимо выкопать траншею в виде выбранной геометрической фигуры. Если речь идет о треугольнике, создают фигуру со сторонами 120 сантиметров (проверенная опытом оптимальная дистанция). Рекомендуемая глубина траншеи — 50 – 70 сантиметров. Такая же траншея выкапывается по направлению к электрощиту.
Сборка конструкции
Электроды вбивают в землю на двухметровую глубину. Должны быть видны только верхушки, которые в дальнейшем используют для создания сварочных соединений.
К верхушкам установленных электродов приваривают пластины (полосы). В итоге должен получиться металлический каркас в виде треугольника. Еще одна пластина кладется в траншею, идущую к электрощиту. Эту пластину прихватывают к близлежащей вершине треугольника сваркой или держателем.
Далее присоединяют кабель к пластине. Для этого используют болтовое соединение. Для последующего подключения шины заземления лучше использовать медный проводник. К заземляющей шине присоединяют винт (сваркой) и осуществляют соединение с жилой. К винту подключают медный кабель с помощью пары шайб и гаек.
На этапе изготовления контура следует особое внимание уделять прочности соединений. Сварные швы простукивают молотком, а болтовые соединения подтягивают ключом
Последний этап монтажных работ — засыпка траншеи грунтом.
Монтаж
Итак, перейдем непосредственно к описанию того, как выполнить заземление в частном, загородном доме или на даче своими руками. Для самостоятельной сборки заземляющего контура в загородном доме, садовом участке или на даче нам понадобится стальной уголок, прут или труба, а для стержней – оцинкованные электроды. Иногда вместо них применяют электропроводной бетон.
Забивание стержня.
Как уже было сказано, для забивания стержней модульные системы комплектуются специальными коническими наконечниками, облегчающими прохождение штыря в земле.
Забивать их можно и вручную – с помощью кувалды или молота, а также инструментом – необходим ударный перфоратор или отбойный молоток с силой удара примерно 20 Дж и специальной головкой. В модульных системах соединения электродов и заземляющим проводником выполняются с помощью специальных зажимов. При самостоятельном монтаже можно просто сварить их между собой.
Подсоединение заземления с помощью хомута.
Обратите внимание, что покраска, смазка или какая-либо другая консервация заземлителей запрещена – это снижает их проводимость. Учитывая негативное воздействие коррозии, приводящее к постепенному утончению стержней, необходимо брать прутья с небольшим запасом. Эти размеры указаны в ПУЭ (Правила Устройства Электроустановок) и составляют 6 мм в диаметре — для оцинкованного прута, 10 мм – для прута из черного металла, 48 мм2 (площадь в поперечнике) — для проката с прямоугольным сечением
Стенки труб и полок прямоугольной стали должны иметь толщину не меньше 4 мм
Эти размеры указаны в ПУЭ (Правила Устройства Электроустановок) и составляют 6 мм в диаметре — для оцинкованного прута, 10 мм – для прута из черного металла, 48 мм2 (площадь в поперечнике) — для проката с прямоугольным сечением. Стенки труб и полок прямоугольной стали должны иметь толщину не меньше 4 мм.
Увлажнение грунта.
Для соединения электродов между собой можно также использовать пруты, трубы и уголок. С помощью них заземление прокладывается от контура до распределительного электрощита. Размеры данных материалов также имеют определенные нормативы. Прутья должны быть в толщину не менее 5 мм, площадь сечения прямоугольной стали – от 24 мм2, с толщиной стенок не меньше 2,5 мм.
Безусловно, монтаж заземления потребует прокладывать заземляющие провода непосредственно по частному дому, даче или другому зданию, электробезопасность которого требуется осуществить. К внутренним заземляющим проводам также выдвигают специальные требования – их сечение должно быть равным площади сечения фазной жилы, но больше нормативного минимума (диаметр поперечника):
- 1,5 мм – для изолированного медного;
- 2,5 – для изолированного алюминиевого;
- 4 мм – для медного без изоляции;
- 6 мм – для алюминиевого без изоляции.
Коммутация всех проводников заземления с контуром должна проводиться с помощью специальной PE (Protection Earth) шины из электротехнической бронзы, которая должна быть установлена в электрощитке.
Пример щитка заземления
Одной из самых распространенных ошибок, совершаемых при подключении электроприборов к заземляющему контуру своими руками, является нарушения порядки их подсоединения
Обратите внимание, что оно должно всегда проводиться параллельно – от каждого устройства на щиток должен идти отдельный заземляющий провод
Соединение в одной точке в доме.
Соединение в одной точке у заземления.
Присоединение к шине.
При последовательном подключении или подключении на одну площадку шины, аварийные устройства будут «тянуть», создавая таким образом помехи. Такое нарушение правил подключения электроприборов называется электромагнитной несовместимостью. Из-за нее возникает высокая опасность для жизни во время устранения аварии.
Как сделать монтаж контура самостоятельно
Для самостоятельного изготовления контура заземления сначала потребуется выбрать его тип, после чего на основе данного исполнения провести подготовительные работы. Они включают в себя такие обязательные процедуры как выбор места под ЗК, подбор необходимых заготовок-штырей, перемычек и т. п., а также подготовку приямка под заземляющий контур.
Рассмотрим этапы предстоящих работ более подробно.
Выбираем место для монтажа
При выборе участка на придомовой территории, подходящего для обустройства защитного контура, исходят из следующих соображений:
- он должен располагаться не слишком далеко от дома; это позволит не только сэкономить на соединительной шине за счет ее небольшой длины, но и уменьшить сопротивление цепи стекания тока;
- грунт в месте обустройства ЗК должен быть достаточно мягким, чтобы можно было вбить в него металлические штыри;
- качество почвы на участке также влияет на эффективность действия заземления (минимальным сопротивлением обладают суглинки, пластичная глина и торф).
Монтируем конструкцию
Сначала подготавливается небольшой приямок глубиной около 40-50 см, по форме напоминающий треугольник с размерами чуть больше чем каждая из сторон будущей заземляющей конструкции. Все последующие действия проводятся в следующем порядке:
- Прежде всего, по углам вбиваются вертикальные заземлители.
- Затем их выступающие из грунта концы с отступом примерно на 30 см от поверхности грунта соединяют с заранее подготовленными стальными перемычками с помощью сварки.
- После этого к одной из вершин (которая располагается ближе к дому) приваривается стальная полоса сечением не менее 48 кв. мм и подводится как можно ближе к распределительному щитку.
- На конце полосы приваривается стальной болт, к которому прикручивается медный проводник сечением не менее 16 кв. мм.
- Другой его конец заводится в распределительный щиток и фиксируется в нем на главную заземляющую шину (ГЗШ).

Монтаж контура заземления в форме треугольника
Монтаж линейного контура заземления
На завершающей стадии работ готовая к эксплуатации стальная конструкция засыпается сверху ранее откинутой землей, которая затем хорошо утрамбовывается.
С подробным руководством по монтажу контура заземления Вы можете ознакомиться в статье на нашем сайте.
Проверка устройства
По завершении комплекса монтажных работ, но еще перед тем, как подключить заземление непосредственно к ГЗШ – потребуется проверить его на работоспособность. Существуют хорошо отработанные методики оценки состояния и определение величины сопротивления стеканию тока на землю, учитывающие все составляющие последовательной цепочки (включая переходные контакты).
Под «проверкой» понимается визуальное обследование систем заземления на соответствие следующим требованиям:
- надежность контактов в местах сочленения элементов ЗУ;
- отсутствие следов разрушения на открытых частях конструкций и подводящих медных шин;
- состояние защитной окраски, которую рекомендуется регулярно обновлять, а также наличие маркировки на подводящих проводниках.
Под словом «контроль» понимают периодические испытания заземляющих контуров с целью выявления соответствия их сопротивлений стеканию тока установленным ПУЭ нормам. Согласно требованиям этого документа оно не должно превышать ниже указанных значений.
Согласно требованиям ПУЭ действующие ЗК после их запуска в работу проверяются не реже одного раза в полгода (имеется в виду визуальный осмотр). Обследование, сопровождающееся выборочным вскрытием грунта в подозрительных местах, организуется не реже одного раза за 12 лет.
В заключение отметим, что заземление в частном доме своими руками изготовленное на придомовом участке должно удовлетворять всем требованиям действующих нормативов. Это касается не только правильности выбора и надежности его конструкции, но и таких важных характеристик ЗУ, как сопротивление стеканию тока в землю. Лишь при соблюдении всех этих условий самостоятельно обустроенное заземление в доме с 380 Вольтовой подводкой питающей сети будет выполнять свою защитную функцию. То же самое можно сказать относительно линий питания 220 Вольт.
Материал заземлителей

В качестве электродов заземлителей допускается использование следующих материалов:
- Железных, оцинкованных, медных или стальных труб с диаметром от 2-3 см. и толщиной стенок от 4 мм.
- Стержней или арматур 12-16 мм в диаметре;
- Уголков, квадратных или прямоугольных профилей.
Площадь сечения вертикальных заземлителей должна составлять от 100 мм2 у железа и 50 мм2 у меди. Длина заготовок должна составлять от 2,5 до 3 м.
Материал горизонтальных заземлителей
Для горизонтального наружного заземления используются железные, стальные, медные полосы, или уголки с площадью сечения 50-100 мм2, в зависимости от материала. Заземляющие проводники приваривают внахлёст, а места сварки обрабатываются гудроном в целях защиты от коррозии.





































