Требования, предъявляемые к монтажу котлов Лемакс
Стоит отдать должное, что в целом технические характеристики газовых котлов Лемакс заслуживают одобрения. Компания смогла достичь высоких показателей по производительности, экономичности и сроку эксплуатации котлов, которые могут составить достойную конкуренцию зарубежным аналогам. Однако, не стоит забывать, что основную роль в работе оборудования играет правильный монтаж и должное обслуживание.
Требования, которые предъявляются к установке котлов Лемакс практически ничем не от тех, что предъявляются к любым отопительным приборам
Однако есть ряд особенностей, которые нужно обязательно принимать во внимание:
В устройстве автоматики присутствует датчик наличия тяги — если скорость, с которой отводятся продукты сгорания — слишком маленькая, то горелка отключается
В процессе установки оборудования очень важно создать условия для обеспечения хорошей тяги. Производитель советует осуществлять подсоединение котла к дымоходу, который выполнен из сэндвич-труб.
Принцип функционирования котла нуждается в ряде доработок — очень часто модели напольного исполнения нагревают воду для бытовых нужд недостаточно хорошо, что безусловно — минус
Именно поэтому, если нужно нагреть большой объем воды, то лучше отдать предпочтение одноконтурному агрегату и подсоединить к нему бойлер косвенного нагрева либо приобрести модель настенного исполнения.
Обвязка котла — ее нужно выполнять в точности с рекомендациями производителя. Монтаж циркуляционного насоса нужно осуществлять на обратке системы управления, сразу перед котлом.
Устройство
Котлы Лемакс собираются на собственных производственных мощностях компании в Таганроге, однако используются при этом основные элементы других производителей, как зарубежных, так и отечественных. Предпочтение отдается корпусным элементам и теплообменникам российского производства, а автоматика, горелки и блоки управления подачей газа, воды и терморегуляции от зарубежных партнеров, в основном европейских компаний.
Основные компоненты и производители:
- Газовые горелки – POLIDORO. Итальянский производитель, специализирующийся на разработке и сборке горелок, в том числе для открытых и закрытых камер сгорания газовых котлов.
- Газовый клапан – Sit. Изначально автоматика для газового оборудования с контролем температуры отработанных газов производства итальянских компаний. Сейчас же Sit обозначает больше саму конструкцию узла управления газовым клапаном, производиться может где угодно, в том числе в Китае.
- Плата управления для настенного котла и датчики – NordGas. Австрийский производитель, занимающийся автоматизацией широкого спектра производственных процессов, а также выпуском блоков управления для различного оборудования, в том числе для газовых котлов.
- Циркуляционный насос для настенного котла – Wilo.
- Расширительный бак – CIMM.
Специалисты компании Лемакс занимаются разработкой компоновки, газовых котлов и корпуса, инструкций по эксплуатации. Помимо этого постоянно расширяется список сервисных центров и собственных точек розничной торговли отопительного оборудования. За счет этого Лемакс уже неоднократно лидировал по числу проданных моделей газовых котлов для отопления частных домов и производственных помещений.
Немного о компании
История торговой марки лемакс началась в 1992 году в Таганроге с полуподвального помещения-склада. Сначала компания специализировалась на оптово-розничной продаже металлопроката, строительных материалов и других товаров.

Собрав вокруг компании преданных и самоотверженных людей и заручившись поддержкой иностранных партнеров, в 2004 году компания лемакс открывает собственный завод по производству бытовой отопительной техники. Совместное производство, на котором собираются отечественные котлы с зарубежными комплектующими, выросло в огромный завод, выпускающий такую продукцию:
- газовые котлы отопления;
- проточные водонагреватели;
- твердотопливные аппараты;
- радиаторы отопления;
- запасные детали и сопутствующие товары.
Широкая дилерская сеть позволяет компании лемакс продавать свою продукцию по всей территории России, а сервисные центры – оперативно производить установку и обслуживание оборудования.
Где купить?
Котлы Лемакс по наиболее доступной цене и с гарантированным качеством можно купить либо у производителя, либо у одного из его официальных дилеров. Их список опубликован на сайте , расположенном по адресу www.lemax-kotel.ru.
Также котлы данной марки можно найти практически в любом серьезном магазине, занимающемся реализацией отопительной техники.
Жители столицы могут обратиться в , магазин «Kovea» или .
Приобрели газовый котел Бакси? Инструкция по применению и устройство агрегата изложены в статье.
Разновидности дровяных печей для отопления дачи представлены в этом материале.
Одноконтурные и двухконтурные
Одноконтурные котлы представлены во всех сериях напольных котлов. Отлично справляются с отоплением дома или квартиры при сравнительно низкой стоимости по отношению к зарубежным аналогам. При необходимости подключается внешний бойлер с косвенным нагревом для получения горячей воды. Требуется заранее предусмотреть такую возможность и выбрать модель с производительностью выше, чем требуется для обогрева дома.
Двухконтурные котлы встречаются в сериях «Премиум» и «Премиум» NOVA со стальными раздельными теплообменниками. Это возможность получить неограниченное количество горячей воды без необходимости ждать, пока она нагреется. Использование тепла от сжигания газа делает ГВС от котла значительно дешевле, чем централизованная подача горячей воды или использование электрического бойлера.
Правила обслуживания
Котельные установки несут в себе потенциальную опасность. Любые действия по обслуживанию газового котла и его элементов должны производить специалисты соответствующего сервисного центра.
Основные правила:
- техническое обслуживание осуществляется на регулярной основе и не реже, чем 1 раз в год;
- разбирать и ремонтировать газовый котел имеет право только специалист;
- все манипуляции производятся только на выключенном и обесточенном оборудовании;
- после отключения отопительного прибора перед началом работ требуется подождать некоторое время, чтобы теплоноситель в системе остыл;
- вышедшие из строя детали заменяются только оригинальными запасными частями.
Пользователь может по мере необходимости протирать внешние поверхности отопительной установки влажной салфеткой без использования агрессивных чистящих средств. Проверку и чистку дымохода при необходимости также выполняет владелец.
Техническое обслуживание включает в себя:
- диагностику;
- проверку наличия тяги в дымоходе;
- очистку турбулизатора от сажи;
- проверку герметичности мест соединений;
- промывку теплообменника;
- разбор и очистку горелок;
- проверку автоматики и датчика тяги;
- измерение и регулировку давления газа;
- осмотр деталей на степень износа;
- замену вышедших из строя элементов.

Преимущества
Судя по отзывам, продукция таганрогского завода вызывает у пользователей больше позитивных эмоций, чем негативных. Она действительно заслуживает одобрения в плане конструкции, производительности и экономичности. К ее преимуществам можно отнести:
- Высокий КПД – 90-92%. Это хорошая характеристика для отечественных газовых аппаратов.
- Внешняя привлекательность – нагреватели отличаются эргономичным дизайном, красиво смотрятся в современных интерьерах.
- Безопасная эксплуатация – предусмотрена надежная, многоступенчатая система защиты.
- Простое подключение.
- Большой срок службы – при грамотной эксплуатации и своевременном обслуживании, могут проработать четверть века. Гарантия – 3 года.

Устройство газового котла Лемакс
Основными компонентами отопителя Лемакс являются газогорелочное устройство, теплообменник и блок автоматики.
Газогорелочное устройство
Состоит из основной горелки, запальника (фитиля) и пьезоэлектрического розжига. Сначала пользователь должен нажатием специальной кнопки активировать пьезоэлемент и зажечь с его помощью запальник. Основная горелка будет загораться от запальника каждый раз, когда автоматика будет подавать на нее газ.
Теплообменник

Трубчатая конструкция, патрубки которой подключаются к системе отопления. В теплообменнике осуществляется нагрев теплоносителя.
В 2-контурных котлах теплообменника два – второй служит для нагрева водопроводной воды.
Схема работает так: как только открывается кран для горячей воды, специальный 3-ходовой клапан в котле переключается таким образом, что нагретый в 1-м теплообменнике теплоноситель вместо системы отопления поступает на второй теплообменник.
Таким образом, во время работы агрегата в режиме водонагревателя функционирование системы отопления приостанавливается – это нужно учитывать при выборе 2-контурного котла.
При отсутствии централизованного отопления жителям частных домов приходится топить помещение дровами. Твердотопливный котел своими руками — смотрите инструкцию по изготовлению простейшей конструкции.
Котлы длительного горения очень востребованы. Стоит агрегат дорого, а изготовить его самостоятельно не составит труда. Здесь https://microklimat.pro/otopitelnoe-oborudovanie/kotly/samodelnye-kotly-dlitelnogo-goreniya-na-drovax.html рассмотрим основные варианты изготовления агрегата: железная труба, бочка, буржуйка.
Блок автоматики
Главным элементом автоматики является комбинированный газовый клапан, который может управляться аналоговыми датчиками (в энергонезависимых системах) или электронным контроллером. Последний получает и анализирует данные от электронных датчиков (энергозависимые системы).
Комбинированный клапан состоит из нормально закрытого электромагнитного клапана и клапана обычного, удерживаемого в открытом положении пружиной. При запуске котла пользователь открывает электромагнитный клапан принудительно, что дает ему возможность разжечь запальник. Клапан нужно удерживать в течение еще нескольких секунд, пока запальник прогреет специальный термочувствительный элемент.
После этого данный элемент начнет генерировать электроток, который будет удерживать электромагнитный клапан в открытом состоянии уже без участия пользователя. Если запальник будет задут, термоэлемент остынет и перестанет вырабатывать электроток, а электромагнитный клапан при этом закроется.
Второй клапан – подпружиненный – перекрывается по сигналу от датчиков температуры и тяги. В энергонезависимых системах на него воздействует расширяющаяся при нагреве жидкость (она находится в капиллярной трубке). В энергозависимых – сервопривод, управляемый контроллером.
Регуляторы температуры и давления теплоносителя расположены на передней панели котла.
Технические характеристики
Газовые котлы Лемак охватывают диапазон номинальной тепловой мощности от 6 кВт до 100 кВт. Прочие характеристики, такие как расход газа, требуемое давление в газовой магистрали, расход воды и т.д., отличаются у каждой линейки в отдельности. Информация в кратком виде сведена в таблицу, по которой проще будет ориентироваться при выборе.
| Наименование | Мощность, кВт | Объем тепло-обменника, л | Средний расход газа, м3/час | Тип камеры сгорания и требуемый дымоотвод | Контур ГВС расход при 35 °С, л/мин |
| «Премиум» 7,5-60 | 7,5-60 | 16,5-66 | 0,6-3,25 | Открытый, дымоход 100-150мм с разряжением 4-25 Па | 4-10 |
| «Премиум» 70-100 | 70-98 | 100(118) | 4-5,75 | Открытый, дымоход 200мм с разряжением 4-25 Па | нет |
| «Патриот» | 7,5-24 | — | 0,38-1,2 | Закрытая, коаксиальный дымоход 250-310 | нет |
| «Премиум» NOVA | 7,5-30 | 16,5-40,3 | 0,45-1,75 | Открытый, дымоход 100(130)мм с разряжением 4-25 Па | 4-8 |
| «Лидер»- | 19-55 | — | 0,95-2,75 | Открытый, дымоход 130(140)мм с разряжением 4-25 Па | нет |
| АОГВ «Газовик»— | 6-29 | проточный | 0,3-1,5 | Открытый, дымоход 120(140)мм с разряжением 4-25 Па | нет |
| Настенный Prime-V | 19,5-34,6 | проточный | 1,2-2 | Закрытая, коаксиальный дымоход 60/100 | 8,8-12,7 |
Распространенные неполадки

Рекомендуется покупать одноконтурный котел и подключать бойлер для ГВС При работе с оборудованием могут произойти поломки. К основным видам неисправностей относят:
- Проблемы с подогревом воды. Аппарат не может выдать требуемое количество жидкости. Чтобы такая ситуация не произошла, рекомендуется покупать одноконтурный котел и подключать к нему отдельно бойлер косвенного нагрева.
- Самопроизвольное отключение горелки. Вызвана проблемами с тягой или поломкой регулятора температуры.
- Запах газа. Утечки могут происходить из-за плохих прокладок в соединениях. Требуется их замена.
- Появление длинного красного пламени. Вызвано недостаточной тягой или забиванием горелки.
- Остывания батареи при горячем котле. Мало теплоносителя или неверно выполнен монтаж.
Перечислены основные проблемы, связанные с оборудованием. Их можно исправить самостоятельно. Сложные поломки нужно доверять только специалистам.
Модельный ряд
Предлагаемый компанией Лемакс выбор отопительного оборудования настолько широк, что практически любой покупатель может найти в ее каталогах оптимальную для себя модель котла.
Продукция выпускается в нескольких сериях.
В каждой серии представлены как чисто отопительные котлы (одноконтурные), так и с функцией водонагревателя (двухконтурные).
Серия «Премиум»
Напольные и настенные газовые котлы Лемакс со стальным теплообменником и энергонезависимой автоматикой. Младший представитель линейки развивает мощность до 7,5 кВт, старший – до 60 кВт. С целью повышения коррозионной устойчивости теплообменник снабжен покрытием из эмали и специальных составов-ингибиторов.
Серия «Лидер»
Представленная в данной линейке продукция является наиболее современной и дорогой. Применяются чугунные теплообменники, намного превосходящие стальные по долговечности – срок их службы составляет 25 лет. Котел может быть оборудован как электронной, так и энергонезависимой автоматикой.
Мощность котлов серии «Лидер» варьируется в пределах от 16 до 50 кВт.

Лемакс Лидер
Серия «Премиум Нова»
Эта серия отличается от «Премиум» более «продвинутой « автоматикой, работающей на электричестве. Ее компании Лемакс поставляет известный итальянский концерн SIT Group (автоматика серии EuroSIT).
Эта система позволяет подключать комнатный термостат, а некоторые ее модификации – еще и уличный термодатчик (погодозависимая автоматика).
Газовое оборудование от торговой марки Лемакс
На сегодняшний день торговое предприятие производит и реализует через официальных дилеров такие газовые котлы для отопления частного жилья:
- котлы серии PRIME-V настенного исполнения;
- напольные агрегаты серии Премиум разделены на две группы по мощности: от 7,5 до 60 и от 70 до 100 кВт;
- модернизированное газовое оборудование серии Премиум NOVA;
- стальные аппараты серии Патриот парапетного способа монтажа;
- чугунные напольные агрегаты серии Лидер;
- АОГВ Газовик.
Давайте рассмотрим наиболее популярные серии и модели, а также их особенности и технические характеристики.
Серия Премиум
Как уже отмечалось, эта серия имеет две линии, разделенные по мощности. Котлы Премиум 7,5–60 кВт. В этой серии представлен одноконтурный напольный агрегат из высокотехнологичной стали толщиной в 2 мм. Широкий мощностной ряд позволяет подобрать необходимый аппарат для отопления небольшого дачного домика или загородного дома площадью до 200 м. кв.
Кроме этого, инструкция содержит такие технические характеристики:
- Цилиндрическая форма теплообменника позволяет аппарату работать с давлением в системе отопления до 2 атм.
- Съемная передняя панель облегчает обслуживание котла.
- Наличие современной автоматики безопасности, защищающей агрегат от перегрева, сажеобразования, задувания и возникновению обратной тяги.
- Автоматический розжиг позволяет не беспокоиться об утечке газа.
Аппараты Премиум 70–100 кВт. Эти агрегаты повышенной мощности изготавливаются из стали толщиной в 3 мм. Теплообменник с турбулизаторами повышает КПД и снижает расход газа. Автоматический розжиг и современная автоматика делает эти отопительные агрегаты надежными и экономичными.
Из особенностей конструкции стоит отметить два независимых газовых клапана 820 NOVA SIT, что позволяет избежать аварийных ситуаций. На лицевой части корпуса расположены две удобные ручки для регулирования мощности отопления. Инструкция позволяет комбинировать этот одноконтурный котел с накопительным бойлером для горячего водоснабжения дома.
Серия Премиум NOVA
Эти модернизированные агрегаты от предыдущей серии отличаются повышенным комфортом, экономичностью и безопасностью. Рассмотрим основные технические характеристики, которыми обладает этот напольный котел Лемакс:
- Наличие второго стального теплообменника, внутри которого вмонтирован медный змеевик, позволяющий подогревать проточную воду для бытовых нужд.
- Предусмотрена турбонасадка для принудительного дымоудаления.
- Автоматический розжиг и плавный набор максимальной мощности позволяет избежать гидроударов.
- Возможность подключения комнатного термостата лемакс, что позволяет регулировать мощность отопления дистанционно.
Серия Лидер
Этот одноконтурный котел выполнен из серого чугуна и предназначен для отопления частного дома площадью до 500 кв. м. Вот некоторые технические характеристики, которые содержит инструкция к этому оборудованию:
- КПД до 91%.
- Хороший выбор мощности от 16 до 50 кВт.
- Чугунный теплообменник дополнительно покрыт ингибирующим составом, предотвращающим окисление и образование коррозии.
- Газовый клапан SIT итальянского производства.
- Возможность работы в закрытой системе отопления с давлением до 4 атм.
- Автоматический розжиг и современная система безопасности.
Помимо этого, этот одноконтурный аппарат оснащен турбонасадкой и встроенным термоманометром, позволяющим контролировать температуру и давление в системе отопления.
Турбонасадка Лемакс L (d130, для котлов от 20 до 30 кВт)
KaminDom – торговая организация, которая для удобства покупателей подбирает монтажные бригады. Работы проводятся сотрудниками наших партнёров.
Позвоните для бесплатной консультации
Выгода для покупателя
1. Экономим время
Сегодня важно получать полную цепочку услуг в одном месте. Мы уже потратили время на поиск и проверку бригад для вас
2. Думаем о безопасности
Печи, камины и котлы – источники экстремальных температур до 750 °C. Требуются специальные знания, чтобы безопасно установить подобное оборудование и избежать пожара.
3. Делаем жизнь удобней
Выполнение монтажа специалистами – это быстро, безопасно и освобождает от хлопот. Не придётся самим рассчитывать смету, ехать за недостающими материалами и не останется лишних.
4. Выполняем гарантийные условия
Если возникнут проблемы в эксплуатации печи, котла или камина, смело обращайтесь к производителю. Большинство заводов-изготовителей гарантирует корректное функционирование изделия только при установке профессионалами.
Этапы монтажа
| Выезд инженера на замер |
| Расчёт и утверждение сметы |
| Доставка товаров и материалов на объект |
| Монтаж и сдача объекта в эксплуатацию |
| Гарантийное обслуживание |
Закажите выезд инженера
Преимущества наших партнёров
1. Бесплатно – выезда инженера на замер
При заказе происходит осмотр объекта, в котором будут проводиться работы. Стоимость выезда 2000 руб до 50 км от МКАД, дальше – обговаривается в каждом случае индивидуально. Но эта сумма вычитается из полной стоимости при итоговом расчёте. Если хотите ускорить процесс, сэкономить время и оплатить монтажные услуги полностью после подписания акта приёма-передачи, то возможен осмотр объекта онлайн.
2. Широкий спектр работ
Профессиональные бригады предлагают различный набор услуг: от установки дымохода до декоративной отделки камина. Не придётся искать грузчиков, монтажников, штукатуров, наши партнёры выполнят установку «под ключ».
3. Гибкая цена
Необязательно делать заказ всех возможных услуг, когда сами, например, можете правильно организовать теплоизоляцию. Сэкономьте на этом.
4. Надёжность
Перед монтажом заключается договор, без которого не работает ни одна уважающая себя команда. Он подтверждает, что и как будут выполнено. После выполнения услуг подписывается акт приёма-передачи. Внимательно проверяйте работу при приёме!
5. Гарантия 2 года
На произведённые монтажные работы даётся гарантия 2 года. Если за это время обнаружите дефекты, вызванные действиями монтажников, исправления выполняются за счёт этой бригады.
Закажите выезд инженера
Монтаж своими руками
Для начала нужно знать требования правил пожарной безопасности СП 7.13130.2013. Это основной документ в РФ, применяемый при установке котлов, печей и каминов. Далее необходимо понимать количество нужных материалов, в том числе креплений, элементов дымохода и даже плитки с клеем. Также потребуется знание о физико-химических свойствах этих материалов, чтобы правильно с ними работать и применять. Не забудьте взять хотя бы одного помощника. Одному человеку будет проблематично установить печь и дымоход, отопительное оборудование весит до 400 кг, а сами трубы только на первый взгляд лёгкие. Будем рады, если освоите тонкости в монтаже печей, каминов, котлов. Возможно, в будущем, вы станете нашим партнёром.
Ограничение ответственности
KaminDom – торговая организация, наши сотрудники не производят монтаж. Только люди, занимающиеся этим ежедневно, на протяжении нескольких лет, будут специалистами в этом деле. Поэтому мы рекомендуем наших партнёров, проверенных временем, тщательно отбираем и не сотрудничаем с недобросовестными подрядчиками. Мы не ответственны за деятельность монтажников, но стараемся оперативно помогать в решении возникающих вопросов. За качество, сроки, стоимость и порядок расчётов несут ответственность монтажные бригады. Пожалуйста, читайте договор перед заключением и не подписывайте акт приёма-передачи без осмотра выполненных работ.
kamindom.ru
Возможные неисправности
Пользователи газовых приборов отопления «Лемакс» сталкиваются с некоторыми типичными проблемами в процессе эксплуатации.
Главные неисправности:
- тухнет горелка;
- соединения пропускают газ;
- пламя изменяет форму и цвет;
- отключается котел;
- теплоноситель не циркулирует в отопительной системе;
- устройство не включается.
Причины основных неисправностей и способы их устранения представлены в таблице.

При неправильном использовании котла возможна утечка угарного газа. Необходимо вызвать скорую медицинскую помощь при возникновении симптомов отравления: головокружение, тошнота, нарушение двигательных функций. Печи для дома на дровах читайте у нас на сайте.
Навесные модели
Настенный ассортимент более скромен. Все модели – энергозависимые. Автоматика – итальянского производства. Настройки – заводские. При эксплуатации ничего регулировать не нужно. Главное — обеспечить стабильность напряжения. Автоматику при желании подключают к блоку выносных термостатов. Есть защита от:
- перегревания;
- задувания огня;
- образования сажи;
- обратной тяги.
Минус – нет защиты от замерзания и от заклинивания насоса. Модуляционная горелка, как и автоматика – итальянская. Принцип модуляции позволяет экономно расходовать газ, обеспечивает увеличение КПД устройства. Подключение – классическое. Необходимо присоединение к обычному дымоходу.

Напольные и настенные
В ассортименте Лемакс по состоянию на 2016 год имеется одна линейка настенных газовых котлов и шесть модельных рядов напольных отопительных котлов.
Настенные котлы:
Серия PRIME-V.
Настенный котел «Лемакс» серии PRIME
Напольные котлы:
- «Премиум» 7,5-60
- «Премиум» 70-100
- «Патриот»
- «Лидер»
- «Премиум» NOVA
- АОГВ «Газовик»
Единственная линейка настенных моделей представляет собой двухконтурный котел с закрытой турбированной камерой сгорания. Это допускает установку оборудования при отсутствии встроенной вентиляционной системы для газового оборудования, дымохода в квартирах и домах. Контур ГВС выполнен на независимом теплообменнике, что повышает надежность системы, комфорт пользования, но и стоимость.
В линейке представлены котлы мощностью: 19.5, 25.5, 30.3, 34.6 кВт. Управление электронное микроконтроллерное. Поджиг искровой от разрядника. Оптимальный вариант для отопления квартиры или дома площадью до 300 кв.м. Есть возможность подключить дополнительные выносные датчики температуры внутри помещения для контроля фактического обогрева.
Среди напольных котлов упор сделан на энергонезависимость котлов, не требуют подключения к электричеству. Для управления используется в основном гидротермические узлы. Деление по модельным рядам выполнено по мощности (6-100 кВт), исполнению и материалу теплообменников. Чугунными теплообменниками снабжаются котлы серии «Лидер», остальные сработаны из стали.
Для точной настройки котла опционально используется выносной термостат, контролирующий температуру в помещении. Основной упор делается на простоту конструкции и надежность, что обеспечивает одновременно и доступную стоимость оборудования и ее долговечность.
Цена
Покупка котла Лемакс в зависимости от модели и мощности обойдется примерно в такую сумму:
Напольные стальные
- Лемакс Премиум 10 (10 кВт): 13 750 руб.;
- Лемакс Премиум 12,5Н (12,5 кВт): 15 750 руб.;
- Лемакс Премиум 20В (20 кВт): 21 600 руб.;
- Лемакс Премиум 25В (25 кВт): 22 750 руб.
Напольные чугунные
- Лемакс Лидер 16 (16 кВт): 31 900 руб.;
- Лемакс Лидер 25 (25 кВт): 39 600 руб.;
- Лемакс Лидер 40 (40 кВт): 53 100 руб.;
- Лемакс Лидер 50 (50 кВт): 53 550 руб.
Настенные стальные
- Лемакс K-Start C21 SPV23MEF (2-контурный, 25,9 кВт): 21 400 руб.;
- Лемакс Start BT-C11 SPV 24 ME (2-контурный, 24 кВт): 19 800 руб.;
- Лемакс K-Plus C22 SPV 23MEF (2-контурный, 22,8 кВт): 23 000 руб.
Стоимость самых мощных моделей может достигать 70-ти тыс. руб.
Правила обслуживания газового котла
В процессе эксплуатации могут возникать некоторые неполадки, исправить которые можно самостоятельно:
- Датчик тяги может срабатывать на аварийное включение даже если тяга в дымоходе — хорошая. Ложные сигналы могут появиться в случае, если контакты прибора окислятся. Но после проведения зачистки, все придет в норму. Если датчик ломается, то с его заменой не возникнет сложностей.
- Настройки запальника — могут происходить сбои с зажиганием котла из-за того, что запальная горелка горит недостаточно мощно. Решить эту проблему можно, задав мощность пламени. В инструкции по эксплуатации есть информация, как выполнить эту процедуру самостоятельно, не прибегая к помощи специалистов.
- Ремонтные работы — отопительные котлы Лемакс — это оптимальный вариант, поскольку ремонт и замена неисправных элементов выполняются быстро. Все нужные узлы можно найти в любом специализированном магазине.
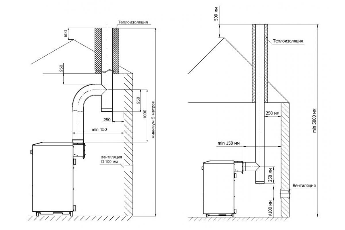
Какие требования должны предъявляться к установке
К монтажу котла газового двухконтурного Лемакс установлены стандартные требования. Необходимо соблюдение обычных положений для отопительных агрегатов, наличие точек подключения к водопроводу, газовой магистрали, а также наличие дымохода.
Обязательным условием является установка всех предусмотренных производителем (и указанных в руководстве) узлов и деталей: расширительного бака, запорных вентилей, клапанов, а также датчиков. Основание для оборудования должно быть устойчивым и твердым, не допускающим просадку, перекосы котла, тем более, его смещение. При выборе места монтажа следует учесть возможность обслуживания агрегата и его частей, чтобы, в случае необходимости, было удобно демонтировать блок горелок или секционный теплообменник.
В отношении дымохода существуют несколько вариантов: капитальный, кирпичный или собираемый из отдельных участков трубы. Последний вариант очень популярен (и рекомендуется компаниями, специализирующимися на производстве газоотводящих систем), а еще его легко и быстро смонтировать.

Настенные модели
Из моделей настенного расположения имеется серия Prime.
Газовые котлы Prime работают на производство горячей воды и обладают КПД=92%. Мощность моделей варьируется от 10 до 32 кВт. Теплообменник изготовлен из стали толщиной 2 мм. Для увеличения теплоизолирующих качеств контур покрыт специальной эмалью, которая снижает тепловые потери и препятствует образованию ржавчины.

Аппараты снабжены автоматикой, которая обеспечивает защиту от прерывания тяги, утечки газа, перегрева и замерзания.
Котлы серии Prime оснащены газовым клапаном итальянского концерна SIT, а также инжекционной горелкой POLIDORO.
СТАЛЬНОЙ ГАЗОВЫЙ КОТЁЛ «ЛЕМАКС» СЕРИИ «ПРЕМИУМ»
Котёл «ЛЕМАКС» изготовлен из высококачественной стали 2 мм повышенной плоскостности Магнитогорского металлургического комбината. Теплообменник имеет цилиндрическую форму, что позволяет котлу работать в закрытых системах с рабочим давлением 2 атм. Благодаря покрытию антикоррозийной термостойкой эмалью «CERTA» (температура воздействия до 750°С) и обработке ингибирующим составом, теплообменник защищён от агрессивных факторов: раствором солей, минеральных масел.
КОТЕЛ СТАЛЬНОЙ ЛЕМАКС ПРЕМИУМ 7,5 С АВТОМАТИКОЙ NOVA 630 SIT
Подробнее
Преимущества:
- Котёл не требует подключения к электрической сети;
- Расширенная линейка мощностей от 7,5 до 60 кВт;
- Наличие системы от перегрева, прерывания тяги, сажеобразования, а также от задувания котла;
- Удобство обслуживания котла за счёт использования съёмных элементов облицовки и профильной оснастки;
- Удобство чистки котла за счёт применения съёмной верхней панели;
- Усовершенствованная система защиты безопасности (установлен датчик перегрева теплообменника);
- Максимальный КПД за счёт увеличения площади теплообмена и изменения конструкции турболизатора для максимальной задержки отходящих газов;
- Возможно подсоединение комнатного термостата, при помощи которого можно регулировать температуру котла относительно температуры внутри помещения;
- Функция горячего водоснабжения;
- Увеличение первичного и вторичного притока воздуха;
- Гарантия 3 года;
Технические характеристики:

О компании
Компания Лемакс, а точнее уже группа компаний, была основана в 1992 году. Изначально это была торговая фирма, занимающаяся оптовыми поставками отопительного оборудования и металла. Уже позже в середине 90-х было принято решение о создании отдельного подразделения по сборке газовых котлов под собственной маркой. Это к тому же является отличительной чертой Лемакс. Основой упор делается на разработку и проектирование газовых котлов с использованием импортных частей. Это с одной стороны избавляет от необходимости организовывать собственное технологическое производств, но с другой делает весь модельный ряд достаточно разношерстным, без устоявшихся особенностей и характеристик.
Многократно компания Лемакс лидировала по продажам на российском рынке. Основные преимущества продукции в привлекательной стоимости, расширенной сети магазинов и сервисных центров, а также принципиальное использование зарубежных деталей, по крайней мере, в последнее время.
Как должен функционировать напольный газовый котел Лемакс
Как уже отмечалось, более широким спросом у потребителей пользуются агрегаты в напольном исполнении. В таком оборудовании применяется итальянская автоматика Sit, делающая работу оборудования более стабильной.

Котел газовый Лемакс Патриот 16
Принцип функционирования котлоагрегата основан на следующих моментах. В корпусе находится газовая горелка, которая осуществляет нагрев теплообменника со встроенным змеевиком ГВС и системы отопления. Движения теплоносителя осуществляется естественным или принудительным способом.
Рассмотрим подробно разновидности оборудования по ряду критериев:
- Количество контуров — стальной одноконтурный газовый котел Лемакс в напольном исполнении функционирует практически без нареканий. Он зависит от электрической энергии и характеризуется высокой производительностью. Применяется для отопления помещений. Потребление газа — очень низкое. Напольный двухконтурный газовый котел Лемакс функционирует в двух режимах: нагреве теплоносителя и воды для горячего водоснабжения. В качестве его плюсов стоит отметить высокую экономичность. А из минусов можно выделить недостаточно качественную работу второго контура. В основном, это связано с ошибками, которые были допущены при обвязке котла. Стальные агрегаты напольного исполнения с двумя контурами — это экономичные приборы, которые хорошо справляются с обогревом больших по площади домов.
- Устройство теплообменника — выделяется две модификации, которые различаются по материалу изготовления. Одноконтурные газовые котлы Лемакс, теплообменник в которых выполнен из чугуна, отличаются более высокими техническими характеристиками среди всех моделей данного производителя. Чугунная топка с толщиной в 4 мм переносит агрессивные вещества и не боится перегрева. Секционный теплообменник производится на заводе чешской компании Viadrus. Он характеризуется устойчивостью к коррозии. Теплообменник, изготовленный из стали, очень чувствителен к качеству теплоносителя. Для работы нужна система водоподготовки. Толщина стального теплообменника составляет 2 мм.
Настенная серия
Компания лемакс также производит и настенные модели отопительного газового оборудования. Серия PRIME-V – двухконтурный настенный котел, имеющий номинальную мощность в 18, 24, 28 или 32 кВт. Подходит для отопления и горячего водоснабжения не только частного дома, но и городской квартиры.
Особенность агрегатов этой серии – простой монтаж, не требующий наличия дымохода и комфортная эксплуатация. Рассмотрим особенности и технические характеристики оборудования этой серии:
- Высокий КПД до 92,5%.
- Латунный теплообменник и гидрогруппа контура ГВС.
- Специальный трансформатор, отвечающий за розжиг котла.
- Закрытая камера сгорания и принудительное удаление угарных газов через коаксиальный дымоход делают это газовое оборудование полностью безопасным.
- Специальная шина, позволяющая подключать различные термостаты или беспроводные датчики управления.
Высокая производительность, экономичность и низкий уровень шума – вот что оценили пользователи, оставив отзывы об этом отопительном аппарате на сайте производителя.
Газовые котлы отечественного производителя лемакс отличаются надежностью и производительностью. Современная автоматика зарубежного производства позволяет производить контролируемый розжиг и плавный выход на максимальную мощность отопления.




































