Как рассчитать среднесуточный расход дизтоплива в котле
Простой расчет потребления топлива, выполняют по формуле, 1 кг топлива = 10 кВт. Получается, что для получения тепловой энергии в 10 кВт (достаточной для отопления жилого здания на 100 м²), надо затратить 1 кг солярки. Среднесуточное количество топлива, потребляемое дизельным котлом, соответственно составит 24 кг.
Удельная норма расхода в профессиональных условиях, высчитывается, в зависимости от мощности горелочного устройства. Формула расчета: 0,1 × производительность горелки. Вычисления затрат выполняют на весь отопительный сезон.
Делают это следующим образом:
- В течение часа, 10 кВт котел тратит 1 кг дизтоплива.
- За сутки расходуется 24 кг.
- Средний отопительный сезон длится 100 дней, при этом, половину времени, котел будет работать на 50% мощности. В результате вычислений, получается фактический расход, равный 5000 литров топлива за год.
Удельная норма расхода, может незначительно меняться, в зависимости от погодных условий. По формуле высчитываются приблизительные затраты, поэтому, небольшие расхождения нормальны.
Вызывает настороженность, когда разница в потреблении топлива увеличивается свыше 20%. Если минимальный расход для 10 кВт агрегата стал 1,25-1,5 л/час, проводят анализ системы отопления, с целью найти причину увеличенных затрат.
Как снизить расход солярки в дизельном котле
Расход дизельного топлива отопительного котла, зависит от многих факторов. Понимание причин энергозатрат и их устранение, это ключ к снижению объема сжигаемого топлива.
Уменьшить расход дизельного топлива в котле, можно следующими способами:
- Отрегулировать горелку – чаще всего, проблемы возникают, когда монтажные работы выполняются самостоятельно, либо с привлечением неквалифицированных специалистов. Для регулировки большинства видов горелок, потребуется специальное программное обеспечение. Работы сокращают топливные затраты на 10%.
- Установка комнатных термодатчиков и погодозависимой автоматики. Контроль над работой котла посредством микропроцессорной автоматики, подключенной к датчикам, устанавливаемым в комнатах жилого дома и на улице, уменьшает объем сжигаемого дизтоплива еще на 10-15%.Контроллер учитывает фактические потребности помещения в тепле и температуру окружающей среды, и подбирает оптимальную мощность работы горелочного устройства. Погодозависимая автоматика, нивелирует влияние температуры на расход топлива.
- Устранить ошибки, допущенные во время монтажа. Емкости с дизтопливом и насос, хорошо утепляют. Монтаж хранилища осуществляют исключительно в отапливаемом помещении.Если принято решение об обустройстве подземных хранилищ, емкости обязательно закапывают ниже уровня промерзания грунта. Топливопровод и трубу системы отопления (если проходит по улице или в грунте), хорошо утепляют.
- Подобрать теплогенератор, равноценный отапливаемой площади здания. Зависимость мощности и энергозатрат, особенно очевидна, если представить следующее соотношение. Для отопления 200 м² площади, потребуется уже 48 кг дизтоплива, но, при обогреве меньшего помещения (100 м²), будет наблюдать существенный перерасход, не менее 15%.
Подбор теплогенератора, его монтаж и настройку, доверяют квалифицированным специалистам. Только так, гарантированно обеспечивается экономичное сжигание дизтоплива.
Топливо и его виды

В настоящее время рынок предлагает богатый выбор различных видов топлива для обогрева дома. Каждому виду присущи как положительные, так и отрицательные моменты. Рассмотрим наиболее востребованные виды топлива:
Дизельное топливо
Считается чуть ли не самым популярным видом топлива для обогрева частного дома. И это не напрасно, оно обладает большим преимуществом — почти самым большим коэффициентом полезного тепла, получаемого при сгорании сырья.
Такое возможно благодаря разработке и проектированию котла таким образом, что расходуется топливо эквивалентно получаемому теплу.
Если до газопровода далеко, то дизельное топливо лучший вариант для отопления индивидуального дома.
Безопасность, заложенная на стадии проектирования котлов, работающих на дизельном топливе, может позволить оставить дом во время работы котла. Посещение котельной понадобится только при дозаправке горючим. Топливо завозится бензовозами в том объеме, который необходим для бесперебойной работы системы отопления. Что является преимуществом по сравнению с привозным газом.
Каменный уголь
Известное и давно применяемое топливо, обладающее большой теплоемкостью. В настоящее время популярность его применения падает. Причина в имеющихся недостатках при его использовании:
- неудобство его хранения (требуется отдельное сухое помещение);
- способность к самовозгоранию;
- проблемы с утилизацией шлака (отработанный материал).
Пеллеты

Это альтернативное топливо становится стремительно популярным. Получают его в результате сбора стружки, опилок и других отходов на лесопилках, путем дальнейшего дробления крупных частиц и последующего прессования. Этот вид топлива, как и дрова, относится к возобновляемым ресурсам.
Пеллеты отлично зарекомендовали себя во многих странах мира благодаря своим качествам:
- имеют один их самых высоких кпд;
- невысокая стоимость;
- обладают высокой пожаробезопасностью.
- удобство в хранении и транспортировке.
Фасуют их в мешки весом в 15 или 20 кг.
Котлы, в которых используют пеллеты, имеют хорошую защиту от непредвиденных возгораний и повреждений.
С каждым годом количество заводов, производящих пеллеты, увеличивается. Отопительное оборудование развивается, становясь все более безопасным и продуктивным.
Хотя этот вид уступает топливу из нефтепродуктов, но, в сравнении с другими видами, это топливо имеет большой шанс стать лидером.
Дрова
Некогда самый популярный вид топлива для отопления частного дома сейчас стремительно сдает свои позиции. На это есть объективные причины, дрова проигрывают в сравнении с другими видами топлива. Потребитель уже не хочет мириться с недостатками, им присущими:
- трудно найти хорошие сухие дрова;
- более высокая цена;
- неудобно хранить;
- трудности перевозки;
- необходимо распиливать и колоть.
Все это доставляет неудобства, что делает использование дров крайне невыгодным и не оправдывающем себя топливом.
Учитывая эти факторы, все больше потребителей делают свой выбор в пользу дизельного или керосина, отказываясь от использования дровяного котла.
Газ

Газ — отличное сырье для отопления помещений. Однако, применение его не всегда самый выгодный вариант. Причины могут быть разными, но основная состоит в том, что газом выгодно обогреваться только при условии подключения к газопроводу. Учитывая, что до полной газификации еще далеко, применение привозного топлива становится менее удобным, так как появляются и другие факторы. К примеру:
- зависимость от газовых служб;
- зависимость от поставщика;
- разброс цен на сжиженный газ;
- неопределенность со сроками или полная невозможность подключения к газопроводу.
Учитывая все это, газ, как топливо для обогрева индивидуального жилья, проигрывает тому же дизелю, которое возможно приобрести самим в необходимом объеме.
Керосин
Как и дизельное, этот вид топлива обладает большим коэффициентом полезного выделяемого тепла.
Котлы, работающие на керосине, отличаются рядом преимуществ:
- Относительно небольшой стоимостью.
- Хорошей безопасностью, заложенной еще на стадии проектирования. Благодаря чему отпадает необходимость постоянного контроля за отоплением. Что позволит оставить дом на какое-то время.
Само топливо отличается следующими плюсами:
- Удобно хранить.
- Не самовоспламеняется (при условии соблюдения правил безопасности).
Большим положительным моментом керосина является его доступность. Что позволяет его, как и дизельное, приобретать по мере необходимости и рассчитать доставку в соответствии с собственными потребностями в необходимом объеме.
Возможность совершать закупки периодически позволяет более рационально планировать семейный бюджет.
Классические котлы.
Если установлен классический котел, твердотопливное отопление будет работать по принципу обычного костра, то есть для образования тепла топливо будет сжигаться пламенем. Специальная колосниковая решетка оптимизирует процесс горения, а настройки шабера и ручная подача отвечают за количество подаваемого в топку воздуха. Теплообменник такого котла может быть изготовлен из чугуна или стали.

Классические котлы имеют следующие преимущества:
- Возможность работы с несколькими видами топлива;
- Возможность монтажа жидкотопливной или газовой горелки;
- Полная независимость от электроэнеркии, благодаря чему твердотопливное отопление становится действительно автономным.
Но есть и недостатки, среди которых:
- Потребность в частой загрузке топлива;
- Необходимость в достаточном количестве места, где можно будет хранить топливо;
- Потребуется выделить специальное помещение для размещения в нем котельной.
Как хранить солярку

Пожалуй, это самый первый вопрос, который встает перед владельцами дизельного котла. И это правда: к хранению жидкого топлива предъявляются особые требования, чтобы обеспечить Вашу безопасность.
Существует 2 вида баков для хранения солярки:
— открытого монтажа – представляют собой пластиковые бочки, изготовленные из полиэтилена или ПВХ. В их комплект обязательно должна входить система для забора топлива из бака, герметичная крышка и поплавок для определения уровня жидкости в баке.
Когда их можно использовать? Для хранения топлива в небольших загородных домах, если планируемый объем солярки не превышает 1000 литров.
Бак для хранения большого объема топлива
— закрытого монтажа – чаще всего изготавливаются из оцинкованного железа, однако, с недавних пор возможно и использование химически устойчивого пластика. Устанавливаются они в заранее вырытый котлован, который должен находиться на расстоянии от фундамента дома не менее 5 метров. В таком случае система должна оборудоваться насосом для подачи топлива с глубины.
Когда их можно использовать? Они незаменимы, если Вы собираетесь хранить большое количество солярки (до 20.000 литров).
Такие системы обязательно должны оснащаться не только датчиками уровня, но и датчиками утечки топлива. Солярка для заполнения бочки доставляется специальной службой по продаже ГСМ.
Примеры конструкций
Буржуйка
Легче всего переделать под солярку печку-буржуйку. Тепловая мощность будет до 5-7 кВт при расходе топлива 300-500 мл/час. Топливная аппаратура той же конструкции практически без изменений может быть использована в более мощных отопительных котлах на дизеле, а также для запуска на отработке и керосине.
Схема доработки буржуйки под дизтопливо дана на рис. ниже. Дефлекторы не дают парам горючего остыть, прежде чем те сгорят. Кстати, дефлекторы увеличивают экономичность печи при запуске на дровах и угле. Высота бортика пламенной чаши – 60-80 мм; емкость ее не должна быть меньше емкости питательного резервуара (см. ниже). Ход печи на жидком топливе, если можно так выразиться, обратный: воздух поступает в настежь открытую дверцу топливника; поддувало закрыто. В противном случае печка становится прожорливой и быстро закоксовывается (обрастает нагаром).

Как переделать буржуйку на жидкое топливо
Питание, запуск и ход
Печь-капельница на солярке будет достаточно безопасной и проявит все свои достоинства только если топливная аппаратура собрана и налажена правильно. Выполняется питание капельной печи обязательно 2-ступенчатым, с буферным питательным резервуаром. Причина – довольно сильная зависимость частоты капели от наружной температуры и напора в подводящем трубопроводе. Напор, в свою очередь, определяется уровнем топлива в баке или степенью его наддува. Закапало реже – испаритель остыл, печка погасла, чаша переполнилась и топливо потекло наружу. Закапало чаще – капли не успевают испаряться, в чаше коптящее пламя, печка зря жрет горючку. Если нет питательного резервуара, может дойти вообще до беды: из печки потечет пылающая струя. Поэтому изготовление и запуск печей на жидком топливе с одноступенчатым питанием – занятие для оголтелых экстремалов или тех, кому терять больше нечего, а спать очень хочется.
Оба капилляра (см. рис.) выполняются из красной меди. Тут дело в смачиваемости металла топливом: по узкой трубке из другого материала оно или вовсе не просочится, или систему питания не удастся наладить. Налаживание начинают с подбора длины предохранительного капилляра диам. 1,5 мм. Объем питательного резервуара необходим 0,25-0,5 л; его высота – 7-12 см. Длину предохранительного капилляра подгоняют так, чтобы при заполненном до верха питательном резервуаре частота капели была 25-30 капель за 10 с.
Далее подгоняют питательный капилляр диам. 0,6 мм; топливо в баке должно быть залито на полный напор H. При полностью открытом игольчатом вентиле и минимально допустимой наружной температуре частота капели из топливопровода в питательный резервуар должна быть на 2-3 капли за 10 с меньше. Эту же частоту капели выставляют игольчатым краном при запуске печи при более высокой наружной температуре.
Для запуска печи в огневую чашу кладут сгорающий фитиль (см. выше). Когда он прогорит, как надо, наливают топливо в питательный резервуар и пускают капель из топливопровода. Печка будет на ходу 4-5 час; если время обогрева требуется меньшее, игольчатый вентиль прикрывают. Только от питательного резервуара ход печи продлится 1-1,5 час.

Чертежи печи с каменкой, пригодной для доработки на солярку
Для гаража
Печь на солярке и отработке для гаража
Печь на солярке для гаража должна запускаться и на отработке. Оптимальная конструкция гаражной чудо-печи показана на рис. справа; пламенная чаша под капель (выдвинута) является одновременно и емкостью для безнапорного сгорания масла. Мощность – до 5 кВт на одну колонну-дожигатель (райзер), но делать печку более чем на 2 райзера недопустимо, может взорваться! Данные конструкции:
- Материалы – квадратная профтруба 180х180х6 для лежака (камеры сгорания) и дожигателя, и 100х100х6 для райзеров.
- Длина лежака 380 мм, дожигателя 1000 мм, высота райзеров 500 мм.
- Отверстия в райзерах диаметром 10 мм на всех 4-х сторонах по 8 равномерно по оси.
- Для запуска печи на отработке питательный резервуар необходимо отсоединить, а патрубок капельницы снаружи заглушить.
- Отдельный дефлектор не нужен, им служит крышка лежака.
Правильная установка котла: пошаговая инструкция
Многие потребители, приобретая твердотопливный котел и ожидая от него эффекта длительного и экономичного прогорания сырья до заявленных до 7 дней, через какое-то время обращают внимание на то, что прибор не обеспечивает заявленной экономичности. И дело здесь вовсе не плохом качестве или браке котла, а в допущенных ошибках при подключении

Установка ТТ котла своими руками
Конечно, учитывая сложность конструкции и ответственность данного мероприятия, многие доверяют установку ТТ котла длительного горения мастерам. Однако, следуя нашей подробной пошаговой инструкции, можно и самостоятельно, без посторонней помощи, установить котел. Хотя без помощника вам в этом деле не обойтись, ведь вес прибора составляет не менее 50 кг.
На этапе подготовительных работ, следует сразу продумать, где будет установлен котел. В идеале, конечно, оборудовать отдельную котельную.

Учитывая, что твердое топливо все-таки создает определенную грязь, такая отопительная система должна быть произведена в отдельном нежилом помещении. Но если мощность котла небольшая (не превышает 30-35 кВт), то можно просто отделить (зонировать) основное помещение от «котельной».

Схема вентиляции в котельной
Чтобы у людей, производящих обслуживание котлов и его розжиг не возникло проблем с дыханием, в котельной должна обязательно быть оборудована система вентиляции. С улицы должен поступать чистый воздух.
Подготовьте следующие инструменты:
- Слесарный набор (разводные, рожковые, накидные ключи).
- Строительный уровень.
- Дисковая пила.
- Отвертка и набор насадок.
- Маркер.
- Пистолет для герметика.

Слесарный набор инструментов
Кроме самого отопительного твердотопливного котла, необходимо будет еще приобрести материалы для подключения котла к отопительной системе.
- Муфта стальная (3 штуки).
- Шаровой кран со сгоном (2 шт) с диаметром 50 мм.
- Металлическая труба для подключения котла.
- Герметик (огнеупорный).
- Сантехническая подмотка.
Этап 1. Подготовка и защита помещения.
К вопросу пожаробезопасности следует подойти со всей ответственностью.
Определяемся с местом, где будет расположен котел. Если в доме производится замена устаревшей модели на более современную и производительную, то место вместе с дымоходом уже подготовлено. Если же система отопления конструируется с нуля, то следует сразу продумать систему отвода газов и расположение котла в помещении. Место под установку котла должно обеспечивать удобную эксплуатацию и прямой доступ. Комната, где устанавливается твердотопливный котел, должна быть нежилой.
- Основание, на котором будет размещаться котел, необходимо перекрыть металлическим щитом. При этом размеры щита должны на 25% быть больше самого прибора. Если мощность прибора превышает 50 кВт, то устанавливать такой агрегат следует на фундамент из бетонной стяжки. Как правило, высота такого фундамента должна составлять от 100-150 мм выше уровня пола. При этом фундамент должен иметь отдельную от пола стяжку.

Установка котла на металлический лист
При монтаже маломощного агрегата, допускается установка котла на черновую стяжку из бетона.
Обязательно проверьте уровень наклона фундамента. Он должен быть идеально ровным. При необходимости (если пол не ровный) следует выложить фундамент из кирпича.
- Нарисуйте маркером или мелом на полу место, где будете устанавливать котел и внимательно перепроверьте все расстояния. Соблюдайте расстояние от стен (регламентировано СНиПом). От топочной двери до стены расстояние должно быть не менее 125 см. Расстояние между боковыми частями и задней стороной котла и стеной должно быть не менее 700 мм.
Стену, которая примыкает к передней части котла (где расположена топка и дверца) наносим слой штукатурки толщиной в 25 мм. Дополнительно устанавливаем металлический лист на уровне выше котла на 25-30 см.
- Освободите новый котел от заводской упаковки.
- Установите котел на подготовленный фундамент и снова проверьте уровнем, насколько ровно стоит прибор. Патрубок выхода газов должен находиться на одном уровне с трубой дымохода. Если линия не будет ровной, то может быть нарушена тяга в процессе эксплуатации.
- Вставьте все необходимые элементы котла, поставляемые отдельно (зольник, дверцы).

Нормы пожаробезопасности
Марки котлов на твердом топливе российского производства
Анализ технических характеристик поможет составить общее представление о твердотопливных котлах длительного горения. Отзывы потребителей на независимых форумах дают объективную оценку отечественных разработок.
Таблица 1. Твердотопливные котлы Zota Mix и Pellet производства завода отопительной техники и автоматики (г. Красноярск):
Таблица 1. Твердотопливные котлы Zota Mix и Pellet производства завода отопительной техники и автоматики (г. Красноярск)
- КПД котлов модельного ряда Zota Mix — 80%, Pellet — 90%;
- комбинированные стальные твердотопливные котлы Zota Mix работают на любом виде топлива (сжиженный или природный газ, электричество, жидкое топливо);
- камера сгорания и зольный ящик расположены внутри водяной рубашки;
- регулируемая заслонка дымохода, механический тягорегулятор и подсос воздуха эжектором, который установлен в топочной дверце, обеспечивают полное сгорание топлива при минимальной тяге;
- внешняя поверхность корпуса покрыта антикоррозийным полимерным составом;
- съемная дверца за передней панелью обеспечивает доступ для чистки газохода;
- возможность ремонта.
Конструкция котла Zota Mix
- нужен запас топлива и место для его хранения;
- затраты по доставке, выгрузке и складированию дров, угля, брикетов;
- снижение производительности котлов Zota Mix при использовании некачественного топлива (бурый уголь на 10÷20%, сырые дрова на 60÷70%);
- для Zota Mix — ручная загрузка топлива, очистка зольника, стенок топки, газоходов и дымового патрубка;
- обязательная подготовка котловой воды (жесткость до 2 мг-экв/л);
- установка в отдельном помещении;
- для котлов линии Zota Mix необходима установка теплоаккумулятора, дымососа, бойлера.
Таблица 2. Аппараты комбинированные твердотопливные с водяным контуром (АКТВ). Производитель ООО «Сибтеплоэнергомаш» (г. Новосибирск):
Таблица 2. Аппараты комбинированные твердотопливные с водяным контуром (АКТВ). Производитель ООО «Сибтеплоэнергомаш» (г. Новосибирск)
- бюджетный вариант твердотопливных котлов с водяным контуром для дома (цена 11000÷25000 рублей);
- компактный размер;
- водяной теплообменник охватывает топку со всех сторон (кроме фронта);
- выдвижной зольный ящик;
- монтажное гнездо для регулятора тяги;
- возможность подключения к дымовой трубе любой конфигурации;
- стальной теплообменник позволяет упрощенное подключение к отопительной обвязке (без подмеса);
- конструкция адаптирована для работы на газу и электричестве.
Котлы «Каракан» от производителя ООО «Сибтеплоэнергомаш»
- устаревшая конструкция, примитивная автоматика низкого качества;
- заявленные производителем технические характеристики (мощность, отапливаемая площадь и КПД) по отзывам потребителей не соответствуют фактическим показателям.
Таблица 3. Твердотопливные пиролизные котлы Буржуй & К от ООО «НПО «ТЭС» (г. Кострома):
Таблица 3. Твердотопливные пиролизные котлы Буржуй & К от ООО «НПО «ТЭС» (г. Кострома)
- обеспечивает стабильное горение топлива любой сортности и степени влажности;
- эффективная работа котла с одной закладки в течение 8 часов;
- экономный расход топлива;
- совместимость генератора с системами естественной или принудительной циркуляции;
- экологичный агрегат, топливо проходит цикл полного сгорания, не образуя вредных выбросов в атмосферу;
- конструкция топки обеспечивает выход на эффективный режим работы за 40 минут.
Твердотопливные пиролизные котлы «Буржуй & К»
- сложный монтаж: подключение должны производить работники специализированных предприятий, имеющих лицензию на данный вид деятельности (в противном случае гарантия от завода-изготовителя на агрегат не распространяется);
- ручная закладка топлива и чистка камеры сгорания;
- большой вес.
Установка и эксплуатация твердотопливных котлов должны производиться в соответствии с правилами пожаробезопасности
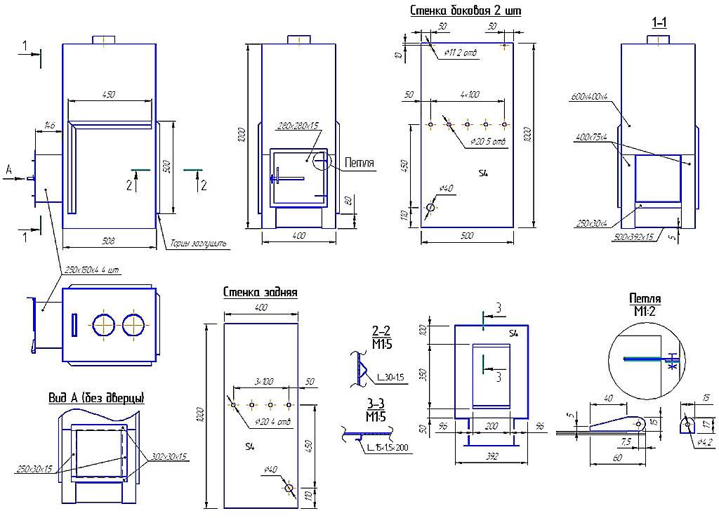
Для обогрева загородной дачи. гаража или теплицы возможно изготовление твердотопливных котлов длительного горения своими руками. Видео с материалами на эту тему можно найти в интернете. Но помните, что главным условием использования отопительного оборудования, является пожаробезопасность. А гарантировать выполнение этого условия может только сертифицированный производитель при должных условиях эксплуатации и монтажа оборудования.
https://youtube.com/watch?v=3sfw2qpCMrY
https://youtube.com/watch?v=1z6OOs3WdH4
Делаем пиролизный котел длительного горения

Котел необходимо будет выставить на ровную поверхность или сделать фундамент.
Для изготовления самодельного котла длительного горения необходимо иметь инструменты:
- сварочный аппарат;
- болгарка.
Материалы:
- металл листовой с толщиной 4 мм;
- труба металлическая, диаметр 300 мм, толщина металла не менее 3 мм;
- трубы металлические, диаметром 60 мм, и 100 мм.
Приступаем к изготовлению котла:
Вырезаем трубу, длиной 80 или 100 сантиметров. Из листового металла вырезаем дно и привариваем. Можно также приварить и ножки из швеллера.
- Далее выполняем распределитель воздуха. Вырезаем из листового металла круг, меньший на 20 мм внутреннего диаметра основной трубы. Просверливаем посередине круга отверстие 20 мм. Затем внизу распределителя горения привариваем крыльчатку с металлическими лопастями. Ширина их не более 50 мм. Далее к верхней части регулятора приваривают трубу 60 мм. Высота ее не должна быть менее высоты котла. Трубу сверху оборудуем заслонкой для регулирования подачи кислорода.
- Внизу котла вырезаем дверцу для удаления золы. К дверце привариваем петли и задвижку.
- В верхней части котла привариваем трубу для дымохода, диаметром 100 мм. На расстоянии 40 см она должна быть почти в горизонтальном положении, а далее переходить в теплообменник.
- Выполняем крышку, в которой делаем отверстие для трубы распределителя. Она должна плотно прилегать к камере сгорания.
В котле данной конструкции кислород должен поступать ограничено. Топливо в котел загружают очень плотно, чтобы не оставалось промежутков. В качестве топлива можно использовать дрова, уголь, торф. Загрузку топлива проводят следующим образом:
- снимаем крышку, затем убираем регулятор для подачи воздуха;
- потом топливом загружаем котел до дымовой трубы и сбрызгиваем верх топлива смесью для розжига;
- затем обратно закрываем крышку и ставим регулятор;
- открываем воздушную заслонку и внутрь бросаем лучинку;
- когда топливо начнет тлеть, заслонку прикрываем.
Следует помнить, что при самостоятельном изготовлении котла длительного горения следует быть очень осторожными и внимательными, чтобы не допустить ошибок.

























































