Как сделать своими руками?
Красивые ворота из профилированного листа для забора частного дома можно без большого труда соорудить самостоятельно. Главное – составить план действий и четко его придерживаться. Сделать это поможет изложенная далее информация.


Подготовка
Первое, что необходимо сделать на данном этапе – это подобрать подходящие плотность, цвет и фактуру профлиста в соответствии со своими потребностями и требованиями. После этого нужно снять мерки, произвести расчет длины, ширины и высоты будущих ворот. Ширину нужно подбирать в зависимости от габаритов автомобилей, которые предположительно будут проезжать сквозь ворота. Высота может совпадать с размерами, которые предлагает изготовитель профлистов (стандарт 2-2,2 метра).
Когда это будет выполнено, для наглядности и понимания последующих действий следует составить на листе бумаги простой схематичный чертеж с указанием на нем размеров конструкции.


Опоры
Наиболее простой и надежный способ установки опор для ворот из профилированного листа – это выкапывание углубления в земле садовым буром или лопатой и последующее бетонирование столбов. Чем глубже будет яма, тем больший объем бетона будет необходимо в нее залить. Оптимальная глубина – это одна треть от длины опорного столба.
Дно углубления нужно посыпать смесью из щебня и крупного песка примерно в 30 сантиметров толщиной. Такая подушка защитит металл от воздействия влаги и минусовых температур. Саму опору перед бетонированием стоит обработать антикоррозионным покрытием – это продлит срок ее службы.
Устанавливать опорную конструкцию необходимо строго в вертикальном положении. Любое отклонение грозит перекосом и нарушением всей конструкции. Во избежание ошибок следует пользоваться строительным уровнем. Только после точного замера можно переходить к заливке цементом.


Каркас
Это один из важнейших этапов изготовления ворот из профилированного листа. От того, насколько правильно он будет выполнен, зависит внешний вид и функциональность будущего изделия.
После того как опоры будут надежно закреплены, можно переходить к изготовлению рамы будущих ворот. Имеет смысл перед этим еще раз перепроверить правильность выполненных расчетов, ведь после того как каркас будет готов, изменить параметры ворот будет уже нельзя.
Заранее подготовленный металл нужно разрезать на элементы рамы. Оптимальный угол, под которым они будут свариваться, должен составлять 45 градусов. Это обеспечит наиболее надежное скрепление деталей.
Полученные заготовки необходимо очистить от ржавчины и прочих загрязнений, а после этого приступать к сварке. Для того чтобы иметь возможность проверить правильность скрепления, можно сначала наживить детали, и только потом уплотнить их сплошным швом.


Укладка профнастила
Выполнение этого этапа не отличается особенной сложностью, но и тут нужно знать несколько правил монтажа профилированных листов. Укладывать покрытие можно как с одной, так и с обеих сторон каркаса. Для фиксации листов используются специальные саморезы или заклепки. Первые наиболее практичные, так как они исключают возможность попадания влаги в отверстия, а значит, продлевают срок службы ворот. Но заклепки практически незаметны на воротах, особенно если они покрашены под цвет покрытия.


Монтаж ворот
Когда все составляющие ворот готовы, можно приступать к их объединению в общую конструкцию. Прикручивается профнастил через нижние волны ко всем перемычкам (как горизонтальным, так и диагональным). Между собой листы соединяются через верхние выпуклые части путем наложения друг на друга.
Не обойтись без дополнительных комплектующих деталей – замков и креплений. Современные производители предлагают широкий ассортимент навесных, накладных или врезных замков. Установка любого вида не отличается особенной сложностью. Их необходимо установить как посередине, так и снизу створок. Это обеспечит равномерную нагрузку на ворота, а также более надежную защиту от взлома.
Следуя несложным правилам, вполне возможно за несколько дней самостоятельно изготовить забор с воротами из профнастила.


Как сделать забор с воротами из профлиста, смотрите в видео ниже.
Фотоотчет об изготовлении и установке ворот
Это один из вариантов того, как можно сделать ворота из профнастила своими руками. Технология не лучшая, но и не худшая: все функционирует без проблем на протяжении уже шести лет.
К установленным столбам 80-80 мм приварены петли, ответные части приварены на требуемом расстоянии на вертикальных частях стоек из трубы 40*40 мм — на правой и левой. Стойки навешиваем на петли на столбе, подкладываем между ними и столбами нужной толщины прослойку и фиксируем струбциной.
Навешиваем стойки на приваренные на столбах петли
Отмеряем требуемую высоту и обрезаем излишки, сверху к стойкам, не к столбам, привариваем поперечину из той же трубы 40*40 мм
Качество сварки на этом этапе неважно. Мы пока прихватываем детали, не заботясь о тщательности наложения шва — его потом доведем до нормы
Главное чтобы все было ровно и держалось вместе. Потому точками прихватываем в нескольких местах.
К стойкам воротин приварена поперечина
Точно также прихватываем трубу по низу.
Привариваем нижнюю трубу
Находим середину поперечных балок. От середины в обе стороны откладываем по 3 мм. Делаем четкие отметки. Замеряем расстояние между верхней и нижней балкой, отрезаем два отрезка, привариваем по отметкам (между двумя вертикальными трубами должен остаться зазор в 6 мм).
По середине с зазором в 6 мм привариваем две вертикальные трубы
Замеряем расстояние между двумя стойками одной половины ворот. Они должны быть одинаковыми, но лучше измерять отдельно. Отрезаете трубы нужной длины и прихватываете их на нужной высоте. Если требуется больше поперечин — устанавливаете и их.
Приваренные поперечины для усиления жесткости
По отмеченному центру болгаркой вверху и внизу делаем сквозные пропилы, разделяя ворота на две половины. Так очень просто мы получили ворота, которые будут открываться и закрываться без особых проблем.
Разделенные половинки ворот
Каркас створок ворот готов. Его снимаем, укладываем на ровную горизонтальную поверхность и хорошо провариваем швы
Вот тут уже качество сварки важно, следим за наполненностью ванны, стараемся не прожечь дыры. Готовые швы зачищаем, грунтуем, красим
Уложив створку на ровную горизонтальную поверхность провариваем все швы
Приступаем к сборке опоры для крепления профильного листа. Для уменьшения парусности его разрезали на две части, так что лист не цельный, а резаный. Для этого используем профилированную трубу 20*20 мм. Ее нарезаем на отрезки нужной длинны, так, чтобы можно было закрепить по внутреннему периметру.
Нарезаем трубу 20*20 мм и прикручиваем по внутреннему периметру
Выставляем их в одной плоскости с наружной частью — прикручиваться лист будет изнутри. Крепим на саморезы, предварительно просверлив отверстия требуемого диаметра.
Как крепить планки для профлиста
Так выглядит готовый каркас створки ворот
Готовый каркас красим — внутри светло-серой краской, снаружи — красно-коричневой, в тон окраске профнастила. Оставляем сохнуть.
Окрашенный каркас
Приступаем к монтажу профлиста на ворота. Его нарезают чуть меньшего размера, чем основная рама — по периметру на 2-3 мм должен быть отступ. Укладывают на подготовленные опоры и крепят изнутри по периметру на саморезы.
Монтаж профлиста на ворота
Можно брать специальные, со шляпками и прокладками, но посадили на обычные.
Для экономии использовали обычные саморезы по металлу
Можно сказать, что ворота готовы.
Практически готовы
Осталось установить запоры. Можно, конечно врезать замок и ручку, но качество недорогих очень низкое, а брать дорогие — на данный момент непозволительная роскошь. Потому из остатков труб и арматуры сварены засовы. Они точно работают при любых условиях.
Самодельные засовы
Один (верхний) посажен на саморезы с ответной частью на створки, два нижних прикреплены к стойкам. В грунте в нужных местах пробурены небольшие лунки, в которых забетонированы отрезки круглых труб, диаметр которых больше диаметра стержня. Калитка сделана по той же методе, только в нее врезан замок.
Готовые ворота из профнастила своими руками
При такой технологии изготовления створки ворот гарантированно открываются и закрываются. Если и были некоторые перекосы при установке столбов, они учитываются. При пошаговом изложении весь процесс не выглядит сложным, да так оно и есть. Если варить все части отдельно, геометрия должна быть идеальной, да еще приходится следить за тем, чтобы трубу при сварке не повело. Несколько разных технологий изготовления ворот из профнастила смотрите в следующем разделе, где собраны видео уроки.
Из профлиста можно сделать откатные ворота и оснастить их автоматикой.
Виды конструкции
Ворота из профнастила бывают разных видов. Выбор конкретного вида связан с пожеланиями хозяина и практической функцией, которая будет возложена на ворота.
Распашные ворота – одна из популярных конструкций. Ее используют владельцы загородных участков и многие садоводы на своих участках.
Сущность конструкции заключается в двух стойках для опоры, на которые помещаются створки, навешанные на цилиндрические петли.
Передвигаются петли благодаря подшипникам, вмонтированным в них. Такие ворота отличаются простотой монтажа.
Раскрытие ворот осуществляется вручную, но уже появились системы, при которых монтируется специальный электропривод для выполнения команд через пульт.
Наличие калитки предполагается у ворот, имеющих большой размер. В последнее время встроенная калитка в заборе из профнастила — не редкость, но для экономного мастера это лишняя трата денег. При таком виде ворот легко рассчитать фундамент и установить его.
Суть фундамента в двух столбах забетонированных в землю
При бетонировании важно помнить. что глубина столбов под землей должна быть ниже, чем уровень промерзания почвы
Еще одно преимущество распашных ворот – возможность установки без помощи специалистов, что существенно экономит денежные средства. Ворота с подобной установкой прочны и при правильном использовании прослужат много лет.
Недостаток такого типа ворот – необходимость пространства под открытие створок. Особенно явно он проявляется в зимнее время, когда во дворе лежат снежные массы.
Видео-инструкция с пошаговым изготовлением дачных распашных ворот от чертежа до готового изделия:
Откатные или как их еще называют, консольные, имеют сложную структуру. Такие ворота актуальны на дачных участках с плотной застройкой.
Они гарантируют наличие свободного пространства. которое иногда необходимо для того, чтобы поставить транспортное средство.
Достоинства такой конструкции в отсутствии необходимости расчищать место под открытие. В составе ворот направляющий рельс и противовес. Рельс при закрывании и открывании ворот передвигается по специальным кареткам.
Роликовые каретки двигаются в направлении ворот, что предотвращает попадание в них снега и грязи. Если длинна ворот небольшая, то направляющие, по которым передвигаются ролики, устанавливают только в нижней части ворот.
Производят их из металлических профилей. Ворота большого размера рекомендуется оснастить верхним металлическим профилем, но такие конструкции большая редкость и используются, в основном, на крупных предприятиях.
Фундамент в такой постройке играет главную роль. Простого залития цементом недостаточно, в него нужно добавить слой арматуры .
Недостатками такой системы установки ворот являются:
Точное расположение и расчет роликовой системы и противовеса. При неверном подсчете произойдут сбои в открывании ворот и внутренние элементы быстрее износятся.
Срок службы такого механизма ниже, чем у распашных ворот.
Сложность в залитии фундамента. Опоры таких ворот изготавливают в виде П-образной конструкции с процедурой армирования. Самостоятельное залитие фундамента практически невозможно без привлечения специалистов.
Это еще один вариант со сложной конструкцией, работающий по принципу откатных ворот. Сложность связана с тем, что у ворот две створки, способные раздвигаться в разные стороны. поэтому их конструкция не обходится без рельса, направляющего движение.
Использование таких ворот в узком проеме не рекомендуется, и применение в жилых домах нецелесообразно.
Кованые ворота набирают популярность из-за своей оригинальности и способности воплотить фантазии хозяина дома. Кованые ворота придадут дому изящество и неподдельную роскошь .
Ворота с элементами ковки, помимо оригинального дизайна. отличаются высокой прочностью .
Изготовить такие ворота самостоятельно нетрудно, главное иметь в наличии аппарат для сварочных работ. Декоративные элементы покупаются отдельно.
При желании использовать дизайнерский проект, любая мастерская подготовит элементы по запросу мастера.
Многие думают. что такой запрос будет стоить больших денег. Это не так, потому что раньше такие элементы делали специальные мастера – знатоки своего дела, а сегодня подобные изделия выпускают ежедневно на предприятиях, специализирующихся на металлических изделиях.
Изготовление
Изготовить въездные ворота на даче по необычному проекту можно и своими руками. Существуют различные чертежи и схемы с размерами под любой приусадебный участок, достаточно лишь запастись материалами и выполнить несложную работу.
Для изготовления понадобятся следующие инструменты:
- сварочный аппарат;
- болгарка;
- дрель;
- шуруповерт или крестовая отвертка;
- рулетка, карандаш, уровень;
- кисть для грунтовки и покраски.

В качестве материалов надо запастись необходимым количеством металлопрофиля, профлиста, саморезами и болтами. Если вокруг участка уже установлен забор из данного материала, то профнастил для ворот выбирается такой же расцветки. Нужно подобрать подходящие петли, способные выдержать вес будущих ворот, замок и засовы. Если конструкция со встроенной калиткой, то засов с петлями подбирается и под нее.
В первую очередь, из металлопрофиля болгаркой отрезаются куски по размерам, потом на ровной поверхности собирается рама для створок. Вначале уголки слегка прихватываются сваркой, затем перепроверяются по высоте, длине и диагонали. Внутри рамы приваривают перемычки для жесткости, потом, если необходимо, петли, замки, запоры. После того, как каркас готов, его покрывают антикоррозийным раствором, грунтуют и красят. После сборки основной части прикрепляют остальные конструкции: крышу, арочные проемы, декоративные элементы.
Хотя профлист и не такой тяжелый материал, но для высоты створок в 2 м надо углубить опоры не менее чем на 0,7 м в грунт. Для каждой вырывается яма размерами 200 на 200 мм, после того, как трубы помещаются в нее, она заливается бетоном. Раствор стоит усилить арматурой.
Для воротных опор из кирпича, бетона или природного камня тоже стоит использовать надежный фундамент глубиной не менее 1,5 м. Особенно внимательным надо быть к соблюдению вертикального уровня всех столбов. Вообще, при монтаже ворот надо надежно перепроверять все размеры и положение, от этого в первую очередь зависит то, как легко они будут открываться.
Последовательность действий
Установка столбов проводится с применением бетонного раствора, на высыхание которого уходит не менее 28 дней. В результате проведение работ по монтажу ворот возможно не ранее, чем через 14 суток, чтобы набор прочности составлял минимум 50%.
Сначала приваривают петли (2 или 3 в зависимости от веса конструкции и нагрузки на ворота). Лучше использовать гаражные петли, так они справляются с высокой механической нагрузкой и долго служат. Расположение выбирается с учетом отступа от горизонтальных направляющих дверцы на 20-30 см. Для одностороннего открывания петли накладывают на опору и раму, для двухстороннего – монтируют встык к столбу.
Далее приступают к фиксации профнастила. Для этого используют кровельные саморезы с уплотнительными герметичными шайбами. Вкручивают их во все элементы каркаса, включая перемычки. Шаг равен ширине двух волн. Нахлест полотен проводится на 1 выступ.

Расположение крепежа Источник images.ru.prom.st
В завершение монтируется дополнительная фурнитура. К ней относятся замки, крючки и шпингалеты с ответными проушинами, ручки и механизмы для автоматизированного управления створками. Подобные детали нуждаются в периодической чистке, смазывании или окрашивании антикоррозионными составами.
Смотрите в видео пошаговую сборку ворот из профнастила:
Коротко о главном
Профилированное полотно стенового типа из тонколистовой стали мало весит, долго служит и справляется с высокими механическими нагрузками со стороны ветра, что актуально для устройства заборов и ворот с калитками.
Ворота и калитка из профнастила строят на каркасе из металлопрофиля. Опираются створки на столбы. Управление может быть ручным или автоматизированным.
Конструктивное исполнение может быть представлено одной или двумя створками распашного или раздвижного типа. Калитку либо отдельно располагают, либо встраивают в ворота.
Порядок работы
Среди фото заборов и ворот из профнастила в нашей фотогалерее вы можете определиться с выбором наиболее подходящей вам конструкции
Если ещё нет необходимого опыта, то обратите внимание на прямоугольные либо квадратные изделия. Они монтируются быстрее и проще
Далее нужно определиться с величиной конструкции и начертите её план. По нему будет проще приобрести материал и сделать разметку.

Монтаж забора и калитки из профнастила начните с возведения опорных стоек:
- Натяните шнур по линии ограждения. Определите месторасположение ям.
- Пробурите отверстия под опоры с помощью бура, пешни или черпака с заостренными краями на глубину 1-1,5 м.
- Вставьте столбы. Проверьте отвесом их вертикальность. Засыпьте ямы щебнём, утрамбуйте его.
- Приготовьте жидкий раствор из цемента и песка в соотношении 1:3. Залейте им основание.
Пока бетон застывает, можно собрать каркас. Трубы для него нарежьте под углом 45 градусов. Разложите заготовки на ровной поверхности. Прихватите конструкцию по углам сваркой и проверьте размеры диагоналей. Они должны быть одинаковыми. При необходимости, подправьте и приварите углы окончательно.
После этого отрежьте трубу для горизонтальной перемычки и прикрепите её тем же способом посередине каркаса, выше или ниже. Прихваты величиной 2-3 см сделайте по всему периметру на расстоянии 20-30 см друг от друга. Последними приварите навесы и прикрутите ручку на высоте примерно 90 см.
Готовый каркас выставьте на твёрдое основание. Прихватите навесы с помощью сварочного аппарата.

Проверьте, насколько свободно открывается калитка. Если есть перекос, поправьте и завершите крепление. Сварочные швы зачистите, нанесите грунтовку на повреждённые места, выполните окраску конструкции.
В аналогичном порядке сможете осуществить и монтаж ворот из профнастила.
Собираем каркас ворот
Каркас ворот или створок будет представлять собой две сварные металлические рамы из профиля, сваренного на местах стыков. Длина профиля в каждом случае индивидуальна, все зависит от формы и размера створок.
Единственное, о чем нужно помнить: высота рамы створки ворот должна быть немного ниже предполагаемой высоты ворот, украшенных элементами холодной ковки. Это делается для того, чтобы под воротами было небольшое расстояние, на случай выпадения снега или неровностей грунта.
Рамы необходимо укрепить дополнительно поперечными перекладинами: минимум двумя, равномерно распределенными по всей длине.
Когда обе рамы готовы, к ним необходимо приварить навесы. Перед этим нужно тщательно вымерять высоту расположения навесов на столбах и на раме створок.
Если будущие ворота получаются достаточно высокими и массивными, то для большей надежности каждую створку нужно навесить на три навеса.
Конструкция ворот из профнастила
Ворота состоят из двух створок. Створки представляют собой каркас из металлопрофиля, заполненный профлистом. Створки состоят из следующих элементов:
- обрамление полотен;
- раскосы;
- поперечная планка;
- петли;
- задвижка или замковые петли;
- нижние стопоры;
- горизонтальный стопор.
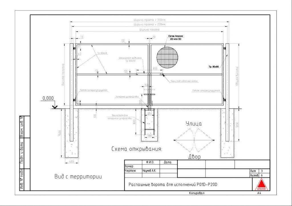
Обрамление полотен Обрамление делают из уголка 40 х 40 мм или профилированной трубы 40 х 40 мм. Размеры могут быть большими – в зависимости от массы ворот. Профиль сваривают в прямоугольные рамы.
Раскосы Раскосы изготавливают из уголка или профилированной трубы 20 х 20 мм. Их устанавливают между внешними углами каркаса и серединой противоположной стойки каркаса.
Поперечная планка Для обеспечения жёсткости каркаса вваривают поперечную планку каркаса створки, посередине её высоты. В створе полотен планка соединяется с верхним и нижним раскосом, а также с вертикальной стойкой. Планку делают из того же уголка, что и весь каркас.
Петли Поворотные узлы (петли) выбирают с диаметром опорных элементов не менее25 мм. Верхние части петель приваривают к каркасу створок, а нижние элементы крепят к опорным столбам или стойкам. При навеске створок штыри верхних частей петель вставляют в отверстия нижних элементов поворотных узлов опорных столбов.
Задвижка и замковые петли Металлическую задвижку приваривают в месте схождения створок ворот. Стандартный засов имеет замковые петли. В зарытом состоянии ворот в петли подевают дужку навесного замка.
Нижние стопоры Нижние стопоры из отрезков металлопрофиля (уголка или трубы) вкапывают в грунт или вбивают в асфальтовое покрытие на глубину 300 – 400 мм. Стопоры удерживают створки в закрытом положении.
Горизонтальный стопор Это необязательный элемент конструкции ворот. Он несёт дополнительную функцию засова. Обычно в створе каркаса просверливают отверстия, в которые продевают Г-образный отрезок арматуры ø 10 мм.
Процесс установки распашных ворот
Прежде чем сделать крепкие ворота из профнастила своими руками, следует подготовить чертеж с указанием точных размеров. При этом необходимо учесть вид автотранспорта, который будет проезжать через возведенную конструкцию, а также наличие калитки.


Кроме тщательного составления чертежа, потребуется заранее закупить и обработать материал для работы, а также приготовить необходимые инструменты:
- профильные трубы разного сечения;
- металлические уголки;
- профиллированные листы;
- саморезы, болты, заклепки;
- цемент;
- грунтовка и краска по металлу;
- электроинструменты;
- сварочный аппарат.
Перед началом работ профильные трубы следует осмотреть на наличие дефектов, зачистить коррозийные места наждачной бумагой и нарезать на части, в соответствии с размерами, указанными в чертеже конструкции.









Установка опоры
В случае, если ворота из профнастила требуется установить на забор с готовыми металлическими столбами, то каркас ограждения можно зафиксировать прямо на них. Чтобы это проделать, к существующим опорам привариваются петли, и собранная стальная конструкция вешается на них.
Если же каркас приходится возводить с самого начала, процесс установки столбов выглядит другим образом:
- Измеряется требуемое расстояние и ставится разметка с учетом расчетов в чертеже.
- Роются 2 округлые ямки под фундамент, ширина которых составляет около полуметра, а глубина – не менее одного метра.
- Дно ямок засыпается песком или мелким щебнем и тщательно утрамбовывается.
- В подготовленные лунки ставятся опорные столбы строго в вертикальном положении, добиться которого можно при помощи строительного уровня. Их можно временно зафиксировать кусками арматуры, чтобы они не отклонялись в стороны.
- Столбы заливаются бетонным раствором.
Для полного затвердевания смеси необходимо выждать несколько недель, после чего приступать к дальнейшему выполнению установочных работ.
Изготовление рамы





Раму для конструкции изготавливают на ровной поверхности, вооружившись сварочным аппаратом для соединения заранее нарезанных заготовок из профильных труб.
Для надежной фиксации частей на внутреннюю стыковку каркаса приваривают металлические уголки, а также дополнительно две поперечные перекладины. Затем следует закрепить на рамную конструкцию навесы и засовы.
После того как рама готова, необходимо тщательно отшлифовать сварочные швы, весь каркас обезжирить с помощью растворителя, загрунтовать и покрыть краской.
Установка обшивки

Дождавшись полного высыхания краски на раме, можно приступать к фиксации на нее обшивки из заранее нарезанных листов профнастила. Они крепятся к каркасу конструкции при помощи саморезов или специальных заклепок. При этом, лучше их устанавливать в местах углубления материала, таким образом, они будут менее заметными.
После того, как обшивка из профиля своими руками установлена на раму, конструкция вешается на петли и производятся завершающие этапы работы, такие как монтаж замков на ворота и крепление украшающих элементов.
Виды конструкции
Существует несколько типов ворот. По тому, как открываются створки, системы делятся:
- на откатные;
- на поворотно-откидные;
- на секционные;
- на распашные.
Например, в ангарах и подземных парковках чаще всего устанавливаются секционные системы. А в частных домах предпочтения отдают распашным двустворчатым.
В зависимости от ширины и длины створки располагают ребра жесткости и другие необходимые перемычки:
- крест-накрест;
- вертикально;
- горизонтально;
- по диагонали.

Распашные
Распашные ворота из профлиста стали классическим решением. Они представляют собой 2 створки, которые подвешены на приваренные к столбам петли. Схема может быть с открыванием внутрь или наружу.
Тонкий профнастил в обшивке позволяет сделать всю конструкцию легче, чем из листового металла или дерева. У распашных конструкций есть и другие преимущества:
- подходят для установки в узких пространствах;
- есть возможность выбрать направление, куда они будут открываться;
- производится много разновидностей автоматических приводов, которые при желании можно использовать.
Главным недостатком ворот из профлиста распашного типа является то, что, если неудачно выбрать конструкцию петель или сделать стойки недостаточно жесткими, есть вероятность провисания створок.
Кроме того, чтобы такими воротами было удобно пользоваться, нужно оставлять место для полного раскрытия.

Откатные или сдвижные
У откатных ворот из профнастила при установке исключены ошибки, которые могут привести к провисанию створок. Поэтому такая конструкция более долговечна и надежна.
К тому же есть еще ряд достоинств:
- нет необходимости оставлять место перед воротами;
- зимой выпавший снег не помешает открыть створки;
- несложно поставить автоматический привод.
К недостаткам можно отнести:
- повышенную на 10-20% стоимость;
- обязательное устройство фундамента для консоли;
- вдоль забора должно оставаться расстояние для полного открывания.

























































