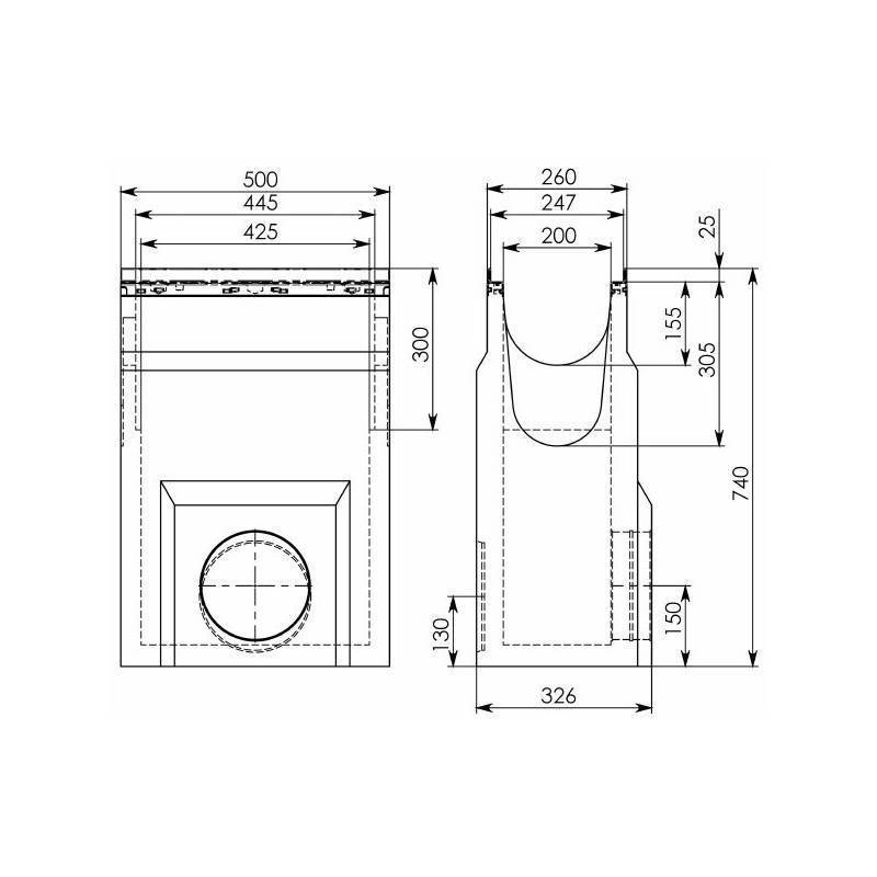
Монтаж пескоуловителей
От того, насколько правильно установлен пескоуловитель, напрямую зависит его производительность. Так что советуем не отклоняться от общей пошаговой схемы монтажа.
Первый шаг – определение места расположения прибора. Пескоуловитель устанавливается на прямом переходе от желобов для стоков к системе канализационных труб.
- Второй шаг – подготовка ямы. Ее габариты должны быть немного больше, нежели размеры пескоуловителя. Дно бетонируется – это необходимо для прочного крепления очистного приспособления, чтобы он не перекашивался в процессе работы. После застывания бетона на основание укладывает песчаная подушка – она будет дополнительно защищать прибор от негативного воздействия грунта.
- Третий шаг – фиксация пескоуловителя к бетону с помощью болтов. На этом же этапе плотно закройте решетки прибора и проверьте прочность их замкового соединения.
Ливневая канализация
- Четвертый шаг – подключение установленного приспособления к входящим и выходящим системам ливневой канализации.
- Пятый шаг – частичное закрытие ямы грунтом.
Как видим, пескоуловитель является обязательным компонентом ливневой канализации. Обдуманно выбрав и грамотно установив приспособление, вы гарантировано получите хорошую защиту сливной системы от тяжелых загрязнений. А дабы устройство эффективно справлялось со своей задачей даже спустя годы после установки, своевременно удаляйте из него отложения и следите за его целостностью.
Расчет основных параметров

Как для бытового, так и для промышленного использования существуют песколовки разного размера и эффективности. Для определения того, какой пескоуловитель нужно приобрести по размерам и производительности, следует провести расчет, имея при этом следующие данные:
- объем сбрасываемых вод;
- параметры загрязненности;
- скорость движения потока;
- суточный объем осадка;
- территориальные условия для установки.
Рассчитаем габариты конструкции горизонтального блока с прямолинейным течением воды, состоящей из двух основных частей: рабочей и осадочной.
Пример.
Исходные данные:
- объем сбрасываемых вод – 130000 м3 или qmax=1,50 м3/с (130000/24/3600);
- допустимая скорость потока – 0,15-0,30 м/с;
- гидравлическая крупность осаждаемого песка – 18-24 мм/с;
- планируемое количество жителей – 415300 чел.
Решение:
- Выбирают три отделения, исходя из расчета 50000 м3/сут.
- Определяют необходимую площадь сечения одного отделения:ω=q_max/vn, где
- v – средняя скорость потока, м/с;
- n- количество отделений;
- ω=1,50/(0,25×3)=2,0 м^2.
- Рассчитывают длину:L=1000KHv/u
K – коэффициент, берется из таблицы;
, где
- u – гидравлическая крупность песка, мм/с, берется из таблицы.
L=(1000⋅1,3 ⋅1⋅0,25)/24,2=13,43 м.
Находят ширину одного отделения, м:B=ω/H.
B=2,0/1=2,0 м.
Исходя из полученных размеров песколовки, выбирают стандартную из таблицы или проектируют индивидуально.
Скорость стока при разных значениях:υ_max=q_max/(BH n).
υ_max=1,50/(2⋅1⋅3)=0,25 м/с.
Время нахождения в рабочей части:T=L/υ_max.
T=13,43/0,25=53,72 с.
Рассчитывают количество осадка за сутки м3/сут:W_сут=(Nq_2)/1000
N – планируемое число жителей;
, где
W_сут=(415300⋅0,02)/1000=8,31 м^3/сут.
Находим объем одного контейнера:W_о=(W_сут T)/n, где T- время между выгрузками песка, должно быть не более 2-х суток.
W_о=(8,31⋅1)/3=2,77 м^3.
Находят глубину контейнера:h=W_о/B^2.
h=2,77/2^2 =0,69 м.
Рассчитывают высоту осадка песка на дне:h_ос=(W_сут k)/BnL, где: k- коэффициент распределения песка по дну, принимается равным 3.
h_ос=(8,31⋅3)/(2⋅3⋅13,43)=0,31 м.
Делают расчет полной строительной высоты:H_стр=H+h_ос+0,5.
H_стр=1+0,31+0,5=1,81 м.
Получен расчет габаритов горизонтальной песколовки, которыми необходимо руководствоваться при проектировании оборудования:
- ширина,
- высота
- и длина.
BхHхL=2 х 1,81 х 13,43 м.
Примерные схемы основных видов современных пескоуловителей можно посмотреть ниже.
Для удаления минеральных взвесей из сточных вод могут быть также использованы другие устройства:
- гидроциклоны
- и центрифуги.
Их конструкции работают благодаря вращательному движению жидкости, оно производит разделение частиц с различным удельным весом. Более тяжелые падают вниз, легкие – уносятся водным потоком.
Как выбрать трубы?
Для ливневой канализации согласно СНиП можно использовать трубы из металла‚ асбеста или пластмассы. Чаще всего для частного дома и дачи выбор останавливают на пластмассовых трубах. Они легкие‚ декоративные‚ не коррозируют‚ их монтаж отличается простотой, но механическая прочность материала‚ по сравнению с металлом‚ небольшая.
Выбрав материал, нужно определиться и с диаметром труб.
Исходная величина — наибольший объем отводимых дождевых и талых вод. Определяют этот параметр по формуле:
Q=q20×F×Ψ
Здесь: Q – искомый объем‚ q20 – коэффициент‚ характеризующий интенсивность осадков в течение 20 сек. (л в сек. на 1 га). F — площадь подворья в га‚ если крыша скатная‚ площадь вычисляют по горизонтальной плоскости. Ψ — коэффициент поглощения.
При правильном подборе диаметра труб ливневая канализация справится с задачей даже в моменты самых обильных осадков. Если в трубу поступают потоки из нескольких желобов‚ все их суммируют. Профессионалы-практики для труб сечением 110 мм и желобов такого же диаметра обычно используют уклон 20 мм/пог. М.
Если трубу подсоединяют к дождеприемнику‚ значение уклона несколько увеличивают во избежание застоя жидкости, а при входе в пескоуловитель уклон уменьшают. Это замедляет движение потока воды, и взвешенные частицы оседают на дно в большем количестве.
Вода в канализационной системе такого типа дренирует самотеком, что происходит благодаря сформированному уклону дренажной трубы. Здесь нет напорных насосов, поэтому на даче или на загородном подворье для устройства ливневой канализации не обязательно искать бригаду профессионалов.
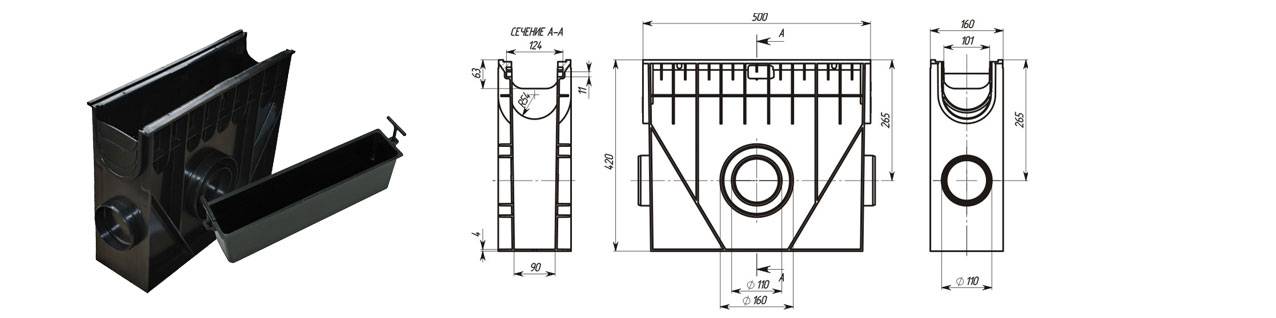
Виды пескоуловителей для ливневой канализации
Данный вид изделия отличается по двум основным признакам:
По типу исполнения:
Горизонтальный — имеет форму параллелепипеда, разделённого на две части. Весь мелкий мусор, поступая вместе с водой через решётку в камеру, оседает на дно, а отфильтрованная жидкость переходит во второй отсек и дальше течёт через патрубки в канализацию. Для удаления песка применяют песковой насос, а сам песок можно использовать для клумб с цветами и т. д.
Есть и круговой представитель этого типа, где ил опускается на дно в самом начале устройства, а очищенные стоки проходят дальше через узкий желоб.
- Тангенциальный — это круглый пескоотделитель, в который стоки идут через трубу по касательной, и попадая внутрь, ударяется о стены резервуара. Благодаря этому, жидкость образует винтовое движение, из-за которого взвеси и тяжёлые комки грязи оседают, а сама струя протекает далее сквозь отверстие в днище.
- Вертикальный — представляет собой цилиндр, конструкция которого сделана таким образом, что позволяет гасить скорость потока воды на выходе из него. Благодаря этому, мусор успевает опускаться на дно, а очищенная и утратившая скорость, жидкость, продолжает свой путь через специальное отверстие.
- Аэрируемый — этот вид имеет удлинённую прямоугольную форму и оборудован фильтрами, сквозь которые движется вода, благодаря потоку воздуха. Из этого можно сделать вывод, что для работы этой песколовки требуется постоянная подача воздуха.
По материалу изготовления:
- Пластиковый — применяются недавно, но уже успели стать популярными из-за морозоустойчивости, герметичности, прочности и лёгкого веса, что облегчает монтаж и даёт возможность беспроблемного перемещения их с места на место, а также, они легко очищаются. Недостаток пескоуловителей пластиковых — низкая ударопрочность.
- Бетонный — не пропускает воду, экономичен, долговечен. Недостаток пескоуловителя бетонного — тяжелый вес, склонность к образованию трещин.
- Полимербетонный — универсальный из-за сочетания в себе прочности бетона и маленького веса пластика. Недостаток — большая цена.




Популярные модели песколовок
Рассмотрим для примера несколько востребованных моделей пескоуловителей для канализации с указанием их основных характеристик:
- Gidrolica Light. Это пластиковая ловушка горизонтального типа, предназначенная для установки в систему пластиковых лотков. Оснащена пластиковой решеткой. Ее длина составляет 50 см, ширина — 11,6 см, высота — 32 см. Класс нагрузки — A15. Ширина сечения — DN100. Цена пескоуловителей такого типа составляет около 1000 р. Выдерживает нагрузку до 1,5 т. Применяется уловитель в системах частных домов, на пешеходных тротуарах, в парках, на велодорожках.
- Gidrolica Filcoten. Изготавливается из композитного бетона и выдерживает нагрузку до 25 т. Длина ловушки — 50 см, ширина — 14 см, высота — 50 см. Класс нагрузки — С250. Ширина сечения — DN100. Применяются подобные устройства на автостоянках, в гаражах, на обочинах дорог, на спортивных объектах. Стоимость ловушки — порядка 5700 р.
- Gidrolica Super. Изготавливается из ударопрочного пластика. Имеет усиленную стальную насадку. Выпускаются 2 разновидности ловушек, отличающихся своими габаритами и шириной проходного сечения. Выдерживает весовую нагрузку до 60 т. Размеры пескоуловителей: длина — 50/54 см, ширина — 16/26 см, высота — 43,8/47,8 см. Класс нагрузки — Е600. Ширина сечения — DN100/DN200. составляет 2100-4200 р.
На что следует обратить внимание при покупке?
Конструкция пескосборника должна обеспечивать равномерное движение сбрасываемой воды в течение суток и состоять из двух и более отделений. Бункер для сбора песка рекомендуется подбирать по объему, рассчитанному на двухсуточную норму песка. Диаметры входящего и выходящего каналов должны соответствовать производительности очистной системы.
Цена на пескоуловители зависит от модели устройства, которая, в свою очередь, имеет разные модификации согласно своей производительности, размеров и материла.
- Самыми дешевыми считаются бытовые модели из пластика. Они могут быть порядка 1500 рублей.
- Чуть дороже — сделанные из полимербетона и металла.
- Самые дорогие – промышленные из бетона, могут иметь цену в несколько сот тысяч рублей.
Например, в Москве и Санкт-Петербурге можно купить песколовку под мойку модели, которая представлена двумя сериями «стандарт» — экономичный вариант и «профи» — со сменными элементами для простоты обслуживания.
Разница в конструкции отражается на цене.
К примеру, модель ПЭ-1,5-100:
- серии «стандарт» стоит 14950 рублей;
- серии «профи» — 19700 рублей.
Модель для промышленных целей ПЭ-36-5000 с пиковым сбросом 5000 л выполнена в трех модификациях:
- вертикальная стоит 149200 рублей;
- горизонтальная – 149200 рублей;
- прямоугольная – 181700 рублей.
Назначение и принцип работы
Принцип работы пескоуловителя
Пескоуловитель – это закрытая емкость, которая состоит из приемника сверху, дна, патрубков по бокам для присоединения труб и решетки. Он является важным узлом ливневой канализации: собирает воду с поверхности и передает после очистки дальше по магистралям.
Принцип работы песколовки основан на силе гравитации.
С самого начала вода передается к приемникам очень быстро и под большим давлением, но резко попадая в широкую емкость, теряет скорость течения. Это приводит к тому, что сила потока уменьшается по сравнению с силой тяжести. В результате крупные примеси задерживаются и оседают в резервуаре. На дно песколовки оседают глинистая взвесь, песчинки и другой мусор. При этом течение воды по трубам канализации не прекращается.
Монтаж пескоуловителя
Правильная установка пескоуловителя обеспечит его эффективную работу, поэтому следует придерживаться общей схемы работы, рекомендованной специалистами. Рассмотрим пошагово, как установить пескоуловитель своими руками.
Работа состоит из следующих этапов:
- Производится разметка территории под ливневку. Место уловителя должно находиться сразу после сточных желобов, до входа в систему сточных трубопроводов;
- Прокапывается траншея для сточных лотков. Ее уклон должен составлять порядка 1-2 см на 1 погонный метр. Глубина траншеи должна быть такой, чтобы верхние кромки лотков находились ниже уровня почвы на 5 см. Учитывается также толщина бетонной заливки ямы и толщина песчаной подушки;
- Дно траншеи бетонируется. Чтобы система была долговечной, рекомендуется также забетонировать и стенки траншей. Бетонный слой предотвращает перекос элементов конструкции в процессе эксплуатации ливневой канализации. Если бетонирование стенок не выполнялось, пустоты траншей засыпаются смесью песка и цемента;
- Монтируются и соединяются между собой все элементы системы. Надежность стыковки обеспечивается благодаря наличию специальных защелок. Если есть желание обеспечить максимальную герметичность стыков, они обрабатываются специальным водостойким герметиком;
- Сверху всех элементов устанавливаются защитные решетки.
Мы обсудили важность такого элемента ливневой канализации как пескоуловитель. Правильно установленная песколовушка обеспечит защиту сливного коллектора от загрязнений, продлит ее эксплуатационный ресурс
А чтобы ливневка успешно справлялась с отводом сточных вод долгие годы, необходимо регулярно очищать уловитель песка от донных отложений.
Обзор видов
В связи с тем что очистные сооружения являются довольно востребованными и широко используемыми, на сегодняшний день можно выделить несколько разновидностей подобных конструкций (например, локальные канализации для очищения сточных вод, промышленное оборудование для гидродинамической очистки проточных жидкостей и многие другие виды). Для удобства пользователей и производителей было принято несколько классификаций, которые подразделяют очистные сооружения на несколько групп в зависимости от различных факторов и параметров.
Например, в зависимости от назначения и сферы использования очистные сооружения бывают:
- промышленные;
- хозяйственно-бытовые;
- для очищения ливневых стоков;
- комбинированные.
Еще одна классификация делит очистные сооружения на группы в зависимости от того, для стоков каких объемов, составов и включений они предназначены. В зависимости от этого критерия можно выделить такие конструкции:
- автономные;
- локальные;
- промышленные.
Например, автономные (или индивидуальные) конструкции подойдут для частного дома, локальные – для группы домов, а промышленные – для стоков больших масштабов (они даже могут быть модифицированы в полноценные очистительные станции).
Помимо перечисленных выше классификаций, также выделяют накопительные и проточные сооружения.
Накопительные конструкции в своем составе содержат особый аккумулирующий резервуар, в котором скапливается основная часть сточных вод. Позже сточные воды транспортируются в особую разделительную камеру, а затем происходит равномерная подача воды в отдельные узлы. В целом процесс переработки сточной воды осуществляется в течение 72 часов.
Для того чтобы очистить сточные воды в проточных сооружениях, необходимо заранее осуществить тщательный просчет характеристик конструкции. При этом обязательно нужно учитывать такой показатель, как максимальная величина потока, возможная на имеющейся территории.
Предварительные расчёты и проектирование
Возведение ливнёвки без проведения расчётов – пустая трата денег.
Ведь если установленная простая ливневая система будет плохо работать, то не надо её вообще устанавливать. В то же время на установку слишком мощной ливнёвки нужно потратить немало денег.
Требующиеся для расчётов сведения
При проектировании ливнёвки применяют такие данные:
- усреднённый объём атмосферных осадков, которое зафиксировали метеорологи в конкретном районе. Такие сведения можно найти в СНиПе 2.04.03–85;
- метеорологические сведения о периодичности выпадения дождевых осадков и мощности снега. Такими данными пользуются и при монтаже ливнёвки для отвода талых вод;
- данные о площади водостока — площади кровли. В подобной ситуации в расчёт берут не полную величину, а значение проекции площади в плоскости.
При возведении линейной ливневой системы площадь водостока равна сумме площадей всех водосточных объектов;
Принцип действия канализации в разрезе
сведения о физических характеристиках грунтов, из которых состоит загородный участок.
Также при проведении расчётов обращают внимание на наличие и местонахождение уже возведённых на участке подземных коммуникационных водосточных систем
Вычисление объёма отводимых водостоков
Объём отводимого водостока считают по такой формуле:
Значения поправочного коэффициента, которые применяют в этой формуле, используют на следующих площадках:
- 0,4 — на площадках, которая покрыты щебнем;
- 0,85 — на площадке из бетона;
- 0,95 — на асфальте;
- 1,0 — на крыше.
После определения значений объёма, по СНиПу вычисляют диаметр трубопроводной водосточной системы.
Определение глубины установки каналов
Установку лотков или трубопроводных каналов делают на той же глубине, на которой их устанавливают в том или ином регионе.
Конкретные значения глубины владельцы дач и частных домовладений узнают в строительной фирме или у соседа, который уже поставил ливнёвку на своём участке.
В центральных регионах РФ ливнёвку ставят на глубине 0,3 м, если диаметр лотка равен 50 см как максимум. Железобетонные, металлические или пластиковые водосточные лотки и трубки с большими размерами устанавливают на глубине, равной 0,7 м.
Из-за высокой стоимости проведения земляных работ многие владельцы загородных домов не делают сильных углублений в землю. Кроме того, при устройстве ливнёвки своими руками, нет необходимости закапывать её под землю слишком глубоко.
Согласно ГОСТам, коллекторы и смотровые колодцы ставят на уровне сезонного промерзания, а не ниже. Также эти элементы ливнёвки можно установить выше подобного уровня — при этом коллекторы и смотровые колодцы утепляют геотекстилем и щебёнкой, который защищает ливнёвку от замерзания.
За счёт небольшого углубления существенно снижается сложность монтажа.
В подобной ситуации к водосборным и очистным устройствам водосточной системы под конкретным углом устанавливают ливневые каналы.
Устройство и расположение труб для сточных вод
Соответственно, уровень монтажа места ввода в коллекторный колодец находится ниже уровня установки водосборника или трубки, который отходит от дождеприёмника. При вычислении глубины их монтажа, заранее составляют план монтажа и с учетом уклонов водосточных каналов производят все необходимые расчёты.
Стандарты и нормы уклонов
Согласно ГОСТу, трубки, диаметр которых равен 150 мм, устанавливают под углом, равным 0,008 (величину наклона измеряют в мм/м). Трубки, которые имеют диаметр, равный 200 мм, кладут под углом, равным 0,007.
В зависимости от особенностей территории укладки ливнёвки монтажники немного изменяют значения трубных уклонов.
Уклон, равный 0,02, делают на стыке водосточных каналов и водосборника, потому что в подобном месте увеличивается скорость водостока.
До пескоуловителя вода течёт медленнее, чем на других участках ливнёвки. В подобной ситуации взвешенные частички оседают. В связи с этим угол наклона в этом месте делают самым маленьким.
Водосборники в ливнёвках, имеющих трап с пескоуловителем (сливную воронку), ставят в тех местах, где трубные уклоны пересекаются между собой.
Что еще нужно учитывать при планировании ливневой канализации
Чтобы ливневые стоки исправно выполняла поставленные задачи по отводу стока воды, следует учесть следующее. Во-первых, для предотвращения засорения и засорения системы необходимо предусмотреть входную защитную решетку. Они могут быть изготовлены из разных материалов и иметь различную форму. Но у них есть цель – задержка крупнозернистого мусора – веток, камней, листьев и т.п.
В этом случае вода будет просто стекать, подчиняясь самотеком. Угол наклона должен учитывать диаметр трубы. В большинстве случаев для частных, менее разветвленных ливневых канализации достаточно уклона в 1-2 см на метр трубы.
Уклон следует немного опустить перед входом в ливневую трубу – чтобы поток воды не перемешивался в ловушке и песок успел осесть в ней. Абсолютно все канализационные элементы должны изготавливаться в герметичном виде. Это не только предотвращает эрозию почвы и повреждения, такие как повреждение дорог, но и предотвращает образование плесени, гниения и т. д.
Категорически не рекомендуется использовать внутренние сифоны для канализации, что может привести приведет к образованию подстилочных засоров, избавиться от которых на первый взгляд далеко не просто.

Стоит отметить, что замеры являются основным параметром при обустройстве ливневой канализации с пескоуловителем. Даже если есть сомнения, лучше покупать трубы с перекрытием. Современные пластиковые трубы можно очень просто и быстро обрезать до нужной длины. Однако будет очень обидно, если выяснится, что 10-20 см трубы на самом деле не хватает.
При обустройстве смотровых колодцев желательно установить их большим диаметром и количестве. Таким образом, можно более эффективно контролировать состояние всей канализационной системы.
Пескоуловитель для ливневой канализации
Практически любая водосточная труба включает в себя следующие элементы:
- установка дождеприёмников для впитывания воды. Обычно вход для дождевой воды располагается под водосточной трубой или на пути стекающей воды;
- поддоны на дверях – выполняет ту же функцию, что и дождеприемник, но устанавливается только перед дверями и воротами. В этом случае не будет наблюдаться скопление луж перед своей дверью после каждого дождя;
- Водосточные желоба или трубы – это разновидность водоотводных магистралей, вытекающих из дождеприемника в коллектор или другую предусмотренную емкость;
- Пескоуловители для водосточных труб – это специальные приспособления для того, чтобы не только песок, но и взвешенные частицы грунта сравнимых размеров оседали в коробе и не попадали в дренажную систему.

Использование пескоуловителей для ливневой канализации
По сути, пескоуловитель в водосточной трубе предназначен не только для того, чтобы не допустить попадания в дренажную систему песка, но и другого мелкозернистого мусора, который не может удержать защитная решетка водосточной ямы. Это также снизит нагрузку на систему очистки и предотвратит преждевременное засорение стоков.





































