Введение в основы
Концепцией программы является создание виртуальной модели здания, которую проектировщик строит с нуля, используя инструменты аналогичные существующим элементам здания: стены, перекрытия, окна, лестницы. В дальнейшем пользователь может получить все необходимые данные для проектной документации. В видеоуроке рассматриваются азы работы с программой. Показано создание нового проекта из шаблона либо с настройками предыдущего с возможностью сохранить или заархивировать с расширением .pla или в любом другом формате. Файл шаблона с расширением .tpl доступен только для чтения и содержит настройки рабочей среды, параметры инструментов по умолчанию, преднастроенные модельные виды. Также можно открыть ранее использовавшийся проект. Существует возможность миграции библиотек из старых версий в новую, когда объекты не имеют аналогов в более поздней версии.
Изучаем интерфейс
Начиная осваивать программу, знакомятся с ее интерфейсом, о чем подробно рассказано в видео. При запуске появляется окно выбора проекта, где можно создать новый либо выбрать уже существующий. Сверху находится командное меню, по центру — команда состояний, ниже — информационное табло, слева — панель инструментов. Основное место занимает рабочее поле. Во вкладке «Файл» собраны операции, которые можно производить с файлом (открыть, сохранить, вывод на печать и др.). Вкладка «Редактор» содержится опции элементов проектирования (порядок отображения, изменения формы, расположение). Во вкладках «Вид» — инструменты отображения проекта, в «Конструирование» — настройка этажей, навесной крыши, редактирование и операции соединения. Настройки перьев, графическая замена, реконструкция, визуализации собраны во вкладке «Документ». Настройку реквизитов элементов и среды проекта можно сделать через «Параметры». Установки навигации по этажам и т.д. находятся во вкладке «Окно».
Все чертежи на одном этаже
Самый распространенный вариант, когда уже вычерченный обмерный план копируется и вставляется рядом на том же этаже. Особенно часто этим страдают люди, работающие в AutoCAD (бесконечно копируют планы в пространстве модели), но и среди архикадчиков встречается нередко.
3. Найдите 10 отличий.
Здесь имеем все то же нежелание работать со слоями, а в результате получаем проект, который не стыкуется по этажам, который трудно редактировать и оформлять для печати.
Часто в таких случаях проектировщик даже и не знает о существовании макетов, и печатает чертежи вместе с рамками прямо с плана этажа. Особо продвинутые используют макеты, и это радует, потому что следующая распространенная порочная практика — это как раз печать с этажа.
Планы по этажам
Сама идеология BIM проектирования предполагает построения виртуальной модели здания в реальных размерах. Как и в реальном здании, здесь есть логическое деление на этажи, чтобы легче было работать с моделью и выводить поэтажные планы.
Пожалуй, самый экзотический метод использования этажей не по назначению — это создание различных планов одной квартиры (план полов, план потолков…) на разных этажах. В результате мы имеем картину вроде следующей: на 1 этаже обмерный план, на втором — монтаж-демонтаж, на третьем — план с мебелью и так далее, сколько требуется чертежей в проекте. Весьма причудливо все это выглядит, если открыть в 3Д окне.
1. Неправильное использование этажей.
Метод серьезно затрудняет работу с несколькими реальными этажами, доводку модели в 3Д, да и редактирование самих чертежей тоже становится нелегким делом. Например, если у вас 30 чертежей, и на всех надо подвинуть пару перегородок, вносить изменения придется довольно долго.
2. Правильное использование этажей.
Трудно сказать, откуда появилась идея использовать этажи не по прямому назначению. Тем, кто уже к этому привык, горячо рекомендую осознать логическую связь этажа реального здания и этажа в архикаде, и начать использовать для разделения планов одного уровня специально предназначенные для этого слои.
Разработка фундамента
При разработке модели дома, в первую очередь, проектируют фундамент. Именно его разработке посвящено видео. Состоит из 4-х частей. В 1 части — закладка фундамента. Приступают к построению с фундамента, выбирая для этого инструмент «Стена», задают материал и высоту во вкладке «Параметры». Размеры расположения элемента задают с учетом, что он будет ниже уровня земли, поэтому значения будут отрицательные. Чтобы увидеть фундамент, переключаются в панели навигации на подземный этаж и выставляют ширину этого элемента. Выстраивают основной фундамент, добавляют подушку. Модель строят в плоском виде, но ее всегда можно посмотреть в трехмерном. 2 часть — проектирование 1-го этажа. 3 —2-го этажа и дверей. Заключительная 4 часть — расстановка оконных проемов.
Архикад – что это такое
Такое программное обеспечение в первую очередь требуется для тех людей, которые хотят заниматься разработкой собственноручно или чтобы облегчить труд для архитекторов. Посредством нее специалист, который научился в ней работать, сможет составлять проект производственного или жилого здания. Но учтите, что при этом ее возможности не ограничиваются. Посредством такой программы можно заниматься остальными разновидностями трехмерного программирования. Она прекрасно подойдет, если вам хочется проектировать самостоятельно домашний интерьер или предметы мебели. Посредством Архикада можно с эффективностью работать над проектами и эскизами в области ландшафтного дизайна. Чтобы эффективно работать в данной системе для автоматизированного проектирования, требуется обязательно пройти обучение по урокам создания каркасных домов в Архикаде, а также тщательно усваивать все фишки по работе с программой.
При этом программное обеспечение дает возможность качественно делать чертежи и сразу же показать рабочий результат в трехмерном виде. При рабочем процессе архитектор сможет с легкостью посмотреть, что у него вышло, и исправить недостатки, если они будут. Такая программа может не просто работать с чертежами, но и заниматься остальной документацией – техническими условиями, ведомостями, сметами и остальными. В программном обеспечении есть много полезных инструментов, которые дадут возможности делать и довольно простые, так и крайне сложные модели. Начинающие пользователи такой программой способны отыскать онлайн много полезной информации, или применять другую их самоучителей для работы с ней.
Отображение фасадов в ARCHICAD
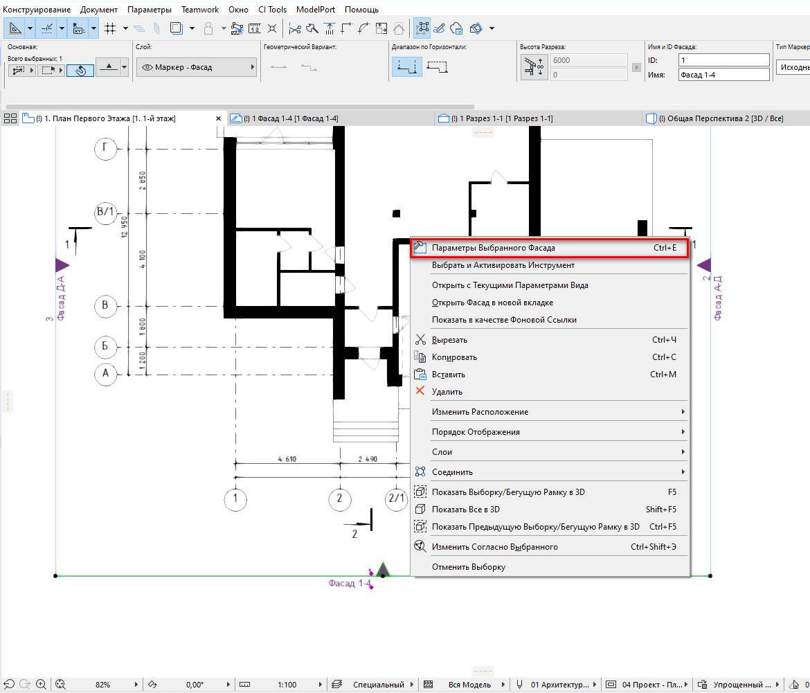
Все настройки отображения элементов на фасаде находятся в параметрах.
Перейти в параметры можно несколькими способами.
Для того чтобы перейти к настройкам с плана, выберите маркер и кликните по нему правой кнопкой мыши. В появившемся меню выберите первый пункт «Параметры Выбранного Фасада».

Перейти в параметры можно из самого фасада.
Давайте откроем фасад. Это тоже можно сделать несколькими способами. Из меню, нажав правой кнопкой мыши на фасад, выбрать пункт «Открыть Фасад в новой вкладке». Или через панель навигатора.

Чтобы перейти в параметры фасада кликните правой кнопкой мыши в любом свободном месте, из меню выберите «Параметры Фасада…».

Первое что нужно настроить в параметрах, это отображение осей. На фасадах показываются только крайние оси и оси на перепадах высот.
Настройки показа осей находятся на вкладке «ПОКАЗ ОСЕЙ». Выбираем значение «Выбранные» в пункте «Показать Оси по Маркировке». Затем кликаем на кнопку «Выбор элементов…». В открывшемся окне отмечаем оси, которые должны остаться на фасаде. Жмем «ОК».

Также лишние оси можно просто удалить, они будут удалены только на фасаде.
Перейдем на вкладку «ПОКАЗ МОДЕЛИ» и посмотрим, как можно настроить отображение элементов.
Тени на фасаде
Для того чтобы включить тени на фасаде найдите вкладку «СОЛНЦЕ И ТЕНИ» и отметьте пункт «Солнечные Тени». Параметры высота и азимут солнца оставляем по умолчанию равным 45 градусов.

Теперь попробуем различные варианты отображения цвета поверхностей. Эти настройки находятся во вкладке «ПОКАЗ МОДЕЛИ» → «ВИДИМЫЕ ЭЛЕМЕНТЫ».
Белый фасад в ARCHICAD
Чтобы сделать заливку всех элементов на фасаде белыми в пункте «Штриховка Видимых Поверхностей» выбираем значение «Единое Перо». Затем выбираем цвет пера в пункте «Перо Видимых Поверхностей».

Если включить параметр «Векторная 3D-штриховка» поверхности будут отображаться со штриховкой, которая назначена материалу.
Фасад в цвете
Чтобы элементы на фасаде стали цветными в пункте «Штриховка Видимых Поверхностей» выбираем значение «Цвета Собственного Покрытия».
Цвет поверхности будет зависеть от цвета покрытия. Покрытия настраиваются через меню «Параметры» → «Реквизиты Элементов» → «Покрытия…».

Фасад с текстурами в ARCHICAD
Используя только инструмент «Фасад» невозможно создать фасад с исходными текстурами, которые отображаются в 3D-виде.
Для фасадов в ARCHICAD используется векторный механизм отображения. Поэтому единственный выход – создать рабочий лист и заменить обычные штриховки на штриховку-рисунок.
Как работать со штриховками, подробно описано в статье – «Штриховки в ARCHICAD».
Чтобы создать рабочий лист перейдите на фасад. Выберите инструмент «Рабочий Лист», он находится в панели инструментов на вкладке «Документирование». Затем задайте область, после этого в навигаторе появится новый рабочий лист.
В рабочем листе все элементы преобразуются в линии и штриховки и с ними можно работать дальше.

В итоге можно получить такой результат:

На этом все, мы немного разобрались в достаточно обширной теме. Теперь вы сможете создавать и настраивать фасады в ARCHICAD.
Кстати, настройки отображения фасадов мало чем отличаются от разверток. У нас есть отдельная статья на эту тему – «Развертки стен в ARCHICAD».
ARCHICAD
Ошибки начинающего пользователя
В лекции представлены часто встречающиеся ошибки, которые допускают изучающие 3D моделирование:
1. Использование параллельного ракурса (аксонометрии) вместо перспективы. В результате чего дом получается перекошенным и выглядит не презентабельно.
2. При создании визуализации земельный участок делают очень маленький, поэтому общая фотография выглядит подвешенной в воздухе.
3. Слишком ровный горизонт. Для более выгодной подачи рисунка, лучше горизонт сделать с холмами либо закрыть деревьями.
4. Отсутствие объектов окружения и территории. Для полноценного восприятия композиции, здание лучше преподносить в максимально приближенном к действительности виде (помещают лавочки, машины, дорожки).
5. Использование стандартных объектов библиотеки Archicad.
6. При неверно заданных настройках фотография получается размытой.
7. Применение базовых фотографий Archicad.
8. Слишком чёткая линия горизонта, отсутствие дымки и атмосферы.
Подробности
Возможности Архикада
Есть разные системы для автоматического проектирования, и некоторые из них обладают универсальным характером. посредством них можно решать задачи во всевозможных сферах деятельности. Но из-за подобной универсальности, их возможности будут меньше в сравнении со специальными средствами. Такое программное обеспечение будет работать на разных языках, в том числе и на русском. Также выпускают большое число справочной литературы для программы и учебников. Архикад – это программа, которая нужна для получения трехмерной модели здания. В такой среде архитекторы не занимаются непосредственным черчением, и ему предоставлена возможность применять огромное количество специальных блоков, из которых сделана конечная продукция. На базе созданного Архикад может подготовить соответствующий чертежный комплект и сопроводительная документация. Но на ней не получится работать с нуля, и для успешного выполнения проектов требуется быть настоящим мастером дела. Работа над проектом протекает в течение определенных этапов, и предлагаем рассмотреть их дальше.
Создание этажного плана
Для каркасного дома в Архикаде потребуется вначале провести работы на отдельных планах этажей в доме. При этом он будет планировать размещение стен, окон, перегородок и дверных коробок. Специалист работает над тем, чтобы создавать перекрытия и определяет места, где будут размещены лестницы
При этом важно думать не просто над деталями архитектуры, но и планировать размещение предметов мебели, оборудования, а также работать над размещением приборов для освещения. Чтобы производить все перечисленные тут операции, архитектору предоставляют специализированные модули и объектные библиотеки
Создание документации (сопроводительной)
После того, как будет создан проект, потребуется произвести подготовку чертежей и остальных сопроводительных документов. Именно это и делают на втором этапе по разработке. При этом речь идет не просто о том, чтобы начертить чертежи в требуемых ракурсах, но и сделать на них определенные пометки, наносить размеры, выставить условные обозначения в соответствии с требованиями всех важных инструкций. Помимо чертежей требуется подготовить требуемые спецификации, а еще предоставить смету. Также есть возможность создавать материалы для того, чтобы презентовать их заказчику. Ощутимая часть работы по проектированию производится в автоматическом режиме. Специалистам достаточно подобрать определенную операцию и указать все важные параметры.
Для выполнения работ можно применять и результаты, которые получены посредством остальных систем для автоматического проектирования
Для того, чтобы сделать этой, важно использовать функцию файлового импортирования. При этом поддерживают рабочую возможность с 15 самыми популярными форматами файлов (графических)
Аналогичным образом есть возможность передавать проекты, которые созданы в Архикаде, для применения в остальных САПР системах. В частности, есть функция передачи подготовленных смет в бухгалтерские программы.
Быстрая разработка планировки
Чтобы быстро сделать планировку, необходимо иметь плоский план дома. Используя его, можно будет легко построить трехмерную модель. В ролике показан вариант построения дома с опорой на бумажный план. Во-первых, загружают картинку в программу, затем выставляют ее реальные размеры. Далее приступают к возведению стен, воспользовавшись соответствующим инструментом и выставив нужные параметры. Наметив их, приступают к расстановке окон и дверей. Расставляют их в нужных местах, откорректировав предварительно размеры и указав сторону открывания. В завершение строят перекрытие, воспользовавшись одноименным инструментом.
Проект своими руками
Урок по проектированию небольшого дома для тех, кто абсолютно не знаком с программой. Проект представляет собой дом с двумя детскими, спальней, подсобными помещениями, кухней, залом, кладовкой. Автор показывает использование различных инструментов. Начинают с построения наружных и внутренних перекрытий, меня их толщину и в зависимости от их расположения, размечая размеры дома и помещений. По ходу размечают двери и сторону их открытия. Далее отмечают расположение окон. Все нюансы конструирования автор комментирует. В конце делается крыша
Так как дом имеет неправильную форму, то на ее построение следует обратить особое внимание.
Способы построения стен в ARCHICAD
Есть несколько геометрических вариантов построения стен:
- прямая;
- криволинейная;
- трапецеидальная;
- многоугольная.
Также есть дополнительные способы построения, которые могут упростить нам жизнь. Поэтому, рассмотрим каждый из них подробно.
Прямая стена
У этого геометрического варианта есть свои дополнительные опции для построения стен.
Изменим геометрический вариант построения стены.
Когда вы выбираете инструмент «Стена», сверху в информационном табло появляются дополнительные пункты меню
Обратите внимание на пункт «Геометрический Вариант». Кликаем на черную стрелку после первой иконки
Из раскрывшегося меню можно выбрать один из четырех способов построения для прямой стены.

Рассмотрим особенности каждого из вариантов.
1. Отдельная стена.
Используется для построения отдельного сегмента стены. Чтобы его создать кликаем в начальную точку. Затем задаем конец, с клавиатуры или кликом мыши.
2. Сегментированная стена.
Используется чаще всего, потому что ей можно обрисовать весь контур здания не прерываясь.
Сегментированная стена может состоять из множества прямолинейных и криволинейных частей. Чтобы ее построить просто кликаем в необходимые точки начала и конца сегментов. Так же как и в предыдущем пункте. Есть лишь одно отличие. Чтобы завершить построение вам нужно замкнуть контур. Или сделать двойной щелчок мыши в конечной точке.
3. Прямоугольник.
С помощью этого способа легко создавать прямоугольники или квадраты. Нужно лишь указать начальную и конечную точку по диагонали.
Также можно ввести точные значения с клавиатуры. Но тут их два. Чтобы переключаться между ними нажимайте клавишу Tab.
4. Повернутый прямоугольник.
Если вам нужно создать повернутый прямоугольник на плане, этот способ будет полезен.
Сначала нужно задать начало и конец отрезка. Затем вытянуть прямоугольник по длине.
Как построить круглую стену в ARCHICAD
Чтобы построить круглую или полукруглую стену нужно кликнуть на вторую иконку в пункте «Геометрический Вариант».
Так же как и с прямолинейной стеной, тут есть несколько дополнительных вариантов построения.
Давайте разберемся со способами построения круглых стен.
1. По центру и радиусу.
Тут все просто. Первым кликом задается точка центра, вторым радиус круглой стены.
2. По трем точкам.
Если вы выберите этот способ построения, то нужно задать три точки для построения окружности. Он не часто используется, но все же бывает полезн.
3. По двум касательным и точке.
Способ полезен, когда окружность нужно куда-то вписать. Например, между двух элементов, как на скриншоте ниже.
Сначала выбираются две касательные. Кликаем по порядку на нужные грани, в моем случае стен, затем указываем точку.
Как видите, круглая стена четко вписалась в угол.

Чтобы разобраться с построением стен в ARCHICAD раз и навсегда посмотрите видео.

Вы узнали как сделать стену в Архикаде.
Но как вводить числа с клавиатуры для построения по заданным размерам? Если вы не разобрались, смотрите видео.

Так же вам будет полезен материал про работу с координатами в ArchiCAD, это позволит избежать построения дополнительных линий.
Мы рассмотрели основные способы построения стен. Осталось ещё два способа, которые используют не так часто. Давайте их рассмотрим.
Трапецеидальные и Многоугольные стены
Эти способы построения используются при нестандартной форме профиля стены на плане.
Давайте попробуем построить эти виды стен.
Построение трапецеидальной стены выполняется таким же способом, как построение прямой отдельной стены. Только у нее есть два параметра толщины. Их можно отредактировать и получить стену в форме трапеции.

Этот вариант построения удобно использовать при создании обмерных планов. Т.к. стены не всегда параллельны и могут иметь отклонения по размерам.
Последний способ это – многоугольная стена.
Многоугольный геометрический вариант используется для построения сложных профилей стен на плане.
Например, можно одним контуром начертить стену с пилястрами или другими элементами. Преимущество в том, что стена будет цельной, а не построенной из отдельных элементов.
Строиться она так же, как сегментированная стена. Только контур должен быть замкнутым.

Мы рассмотрели все способы построения стен в ARCHICAD. Надеемся, что вы сможете ещё раз самостоятельно опробовать все эти варианты. И закрепить материал.
Печать чертежей с плана этажа
Конечно, ни одна религия не запрещает этот способ, но удобным его точно не назовешь. Если нужно внести изменения в оформление чертежей, то придется это делать долго и нудно для всех копий.
4. Можно и так, но лучше с макета.
Специально для того, чтобы сделать нашу жизнь легче, в ArchiCAD существует система макетов и основных макетов. На основном макете располагаются рамки, штампы и прочие радости, которые одинаковы на всех листах, а на макете выкладываются чертежи и надписи для каждого листа в отдельности. Получается, что одна рамка с основной надписью просвечивает через все макеты, и ее не надо вставлять на каждый лист по отдельности. Причем названия и номера макетов выводятся автоматически.
Послесловие
Статья не предназначена для студентов и инженеров, знающих или изучающих компьютерную программу ArchiCad. Вы господа учитесь у своих преподавателей или зайдите в меню в разделе “Помощь”. А моя статья предназначена рабочим строительных профессий и людям, которые начали или думают сделать первый шаг в строительстве собственного домика, коттеджа или бани. Люди, которые мучаются, как им построит дом. Платят деньги архитекторам и конструкторам, а получив от них проект, зачастую бывают недовольны чертежами, которые они купили. Поверьте, я знаю о чём говорю.
Таким людям проще скачать программу и установить на их компьютер. Настроить рабочую среду и дать им возможность самим попробовать “почем фунт лиха”.
Были заказчики, которые промучившись, снова приходили и просили чтобы проектировщик сам разработал. А были, и не один и не два, которым только помог настроить рабочую среду и прочитал азы настройки и черчения элементов. И они сами себе сделали проект и воплотили в жизнь. Флаг им в руку. На этом всё.
Нажми ссылку “Одна Семья”.
Будьте здоровы!

























































