Преимущества каркасного строительства
Недорогие одноэтажные каркасные дома вызывают сомнения у тех, кто привык строить из кирпича и блоков, но у них есть много преимуществ:
- Возможность быстрого строительства. Чтобы построить небольшой каркасный дом, уходит около месяца. А если работу будет делать большая бригада, справиться можно и за три недели.
- Низкая цена. Реализация каркасных проектов значительно дешевле других за счет простоты технологии, быстроты монтажа и доступности материалов. Окончательная цена формируется в зависимости от сложности проекта, выбранных материалов и технологий. Но возведение одноэтажного дома площадью 100 квадратных метров, обойдется в 500-900 тысяч рублей.
- Высокая энергоэффективность. Владельцы каркасных домов, тратят значительно меньше денег на отопление. Это одна их самых теплых технологий, поскольку каркасная стена заменяет по эффективности стену из кирпича толщиной 2 м.
- Не нужно часто обновлять фасад. Если правильно выполнить строительные работы и правильно эксплуатировать дом, внешний вид сохранится 50 лет.
- Нет усадки стен. За счет отсутствия усадки каркаса можно начинать внутреннюю отделку сразу после строительства, не боясь, что потом ее придется переделывать.
- Легкий вес конструкции. А это значит, что фундамент можно сделать облегченным и не таким массивным.
- Относительная пожаробезопасность. Каркасный дом делают из деревянных материалов, прошедших огнезащитную обработку. Также при строительстве используют негорючий утеплитель и безопасные отделочные материалы.
- Благодаря легкости и прочности, каркасный дом можно строить даже на неровных холмистых участках, например, в горах.
- В правильно построенном доме нет щелей и мостиков холода, поскольку стены утеплены и изолированы от ветра.
- Простота возведения. Дом можно построить, не привлекая много рабочих и дорогую технику.
Минусы каркасного домостроения
Выбирая проект одноэтажного дома, стоит остановиться и на минусах каркасного домостроения:
- Не все производители заботятся о качестве результата, а пытаются сэкономить. Поэтому вместо мощного бруса конструкцию собирают из досок, что делает ее менее прочной и сокращает срок эксплуатации до 50 лет.
- Чтобы повесить на стену шкаф, полку или телевизор, нужно еще на этапе строительства предусмотреть усилители.
- Слабая шумоизоляция каркасных стен. Чтобы смягчить этот эффект, необходимо потратиться на шумоизоляционные материалы для внутренних перегородок.
- Необходимость герметизации всех стыков. Классическим утеплителем для таких домов является минеральная вата. Она очень легкая, поэтому при сильном ветре может выдуваться из щелей. Чтобы этого избежать, полностью герметизируют дом снаружи и изнутри.
Особенности планировки одноэтажного здания
Проектировать каркасное сооружение следует так, чтобы проживать в нем в последующем было максимально удобно. В одноэтажных домах этого типа, как и любых других, обычно предусматриваются следующие помещения:
- кухня;
- санузел;
- жилые комнаты;
- прихожая.
План одноэтажного каркасного дома при желании можно разработать самостоятельно. Таким образом чаще всего поступают те владельцы загородных участков, которые решили построить маленькое загородное здание. Если же предполагается возвести своими руками жилое сооружение побольше, планировку его лучше взять из интернета.
В Сети имеется множество проектов каркасных домов с планом. К примеру, здание 8 х 14 м с верандой внутри может выглядеть как на схеме ниже.

В таком доме с комфортом может разместиться семья из 4 человек. Веранда в здании такой планировки выполняет роль прихожей. Во все помещения можно попасть через зал, что достаточно удобно.
Особенности покупки домокомплекта
Преимущества:
- Человеку приобретающему полный домокомплект выдают на руки все необходимые материалы, а так же документы и чертежи.
- Для защиты материала от дождя и снега, их привозят на территорию участка не сразу, а постепенно.
- Все чертежи достаточно понятны и просты.
- Во многих случаях в домокомплекты входят рекомендации, как лучше утеплить помещение.
- Проект для благоустройства кровельного покрытия.
- Схемы и чертежи для установки вентиляции, электричества, канализации и водопровода.
- Полный список дает возможность понять сколько средств уйдет на строительство данного дома.
Комплект чертежей и документов
Изучение данного документа доступно как профессиональным строителям, так и обычным людям без особых навыков и опыта. Так же если во время строительства появляются какие то вопросы, то ответы на них можно с легкостью найти в документах. Описано обеспечение ветро и влагоизоляции. Все условия стройки, принципы выбора окон, дверей и другого.
Комплектация
Покупателям предлагают множество видов строительства каркасного дома, как обыкновенных, стандартных так и на заказ, по индивидуальным предпочтения клиента. Но при всем многообразии существует вариант основной комплектации, в которое так же входит вариант самостоятельной постройки каркасного дома.
В нее входят:
- подробный план,
- предметы для пола, каркасного основания, стен и стоек,
- материал для крыши (стропил и доски),
- материалы для отделки пола, плинтуса и уголков,
- комплект окон и дверей,
- материалы для паро и гидроизолирования,
- утеплители.
Шаг № 2 Подготовительные работы
Участок спланировали , проект готов, теперь надо подготовится к основным работам.
Инструмент для строительства каркасного дома
Базовый набор будет выглядеть так:
- Ручная циркулярная пила;
- Дрель-шуруповерт;
- Углошлифовальная машина (болгарка);
- Электрический рубанок;
- Лобзик;
- Лазерный уровень;
- Молоток;
- Ножовка;
- Топор;
- Струбцина 2-3 шт.;
- Степлер;
- Уголок;
- Рулетка;
- Пачку строительных карандашей;
- Шнур;
Если бюджет позволяет то можно обзавестись торцовочной пилой и пневмо молотком. Последний серьезно снизит затраты времени и сил при сборке каркасного дома.
Место хранения и распиловки материала
Для правильного хранения пиломатериалов и комфортной работы с ним необходимо соорудить временный навес. И установить в нем длинный стол для удобного и точного распила досок.
Место хранения и распила досок
Весь пиломатериал желательно антисептировать или непосредственно уже готовые элементы. Это не обязательно, но СНиП указывает на то,что защитить надо всю древесину, которая располагается ниже полуметра от земли.
Пиломатериал надо уложить на некотором уровне от земли. Для этого хорошо подойдут поддоны. На каждом реду укладывать горизонтальные и желательно вертикальные проставки, чтобы доску не повело и не образовывалась плесень.
Укладка досок
Подготовка участка
Участок следует отчистить от лишних деревьев и травы. Произвести разметку фундамента согласна проекту будущего дома и опираясь на предельные отступы (от дорог и заборов). Проверить размеры и самое главное диагонали прямоугольников.
Разметка фундамента
Распространенные вопросы и ответы на них
В: Какие параметры лучше указывать в поисковике для получения конкретных материалов?
О: Если у вас есть точное представление о том, каким должен быть будущий дом, как и когда вы будете его использовать — вводите в поисковик точные параметры. Наличие гаража и мансарды, цоколя, подвала, нескольких этажей; общее количество комнат, толщина стен — все это может быть указано в поисковой системе.
Если цена не является проблемой и необходимо найти конкретный дизайн для дома — необычную планировку, особенное расположение комнат, etc – лучше выбирать дом по внешнему виду. Необходимо немного сузить список для выбора: убрать ненужные для вас параметры и вручную искать, опираясь на общий дизайн.
В: Как выбрать более дешевый вариант дома для всей семьи?
О: При первом расчете стоимости необходимо знать несколько особенностей строительства каркасных домов:
Площадь должна учитывать личное пространство для каждого из жильцов, квадратуру общих комнат (гостиная) а так же площадь хозяйственных комнат (кухня, санузел, ванная);
Простая квадратная форма здания удешевляет строительство за счет экономии материалов. Наличие второго этажа, колонн, фундамента сложной формы, утяжеленной крыши увеличивает стоимость строительства в разы;
Наличие цокольного этажа и мансарды увеличивает базовую цену строительства на 20-60 %;
Гараж может заметно удешевить строительство, если он пристроен к зданию с одной из сторон;
Для семьи из трех человек предпочтителен проект одноэтажного здания с двускатной крышей, гаражом, двумя спальнями общей квадратурой до 90м2.
Примеры планировок можно найти в соответствующем альбоме на нашем сайте.
В: На что обращать внимание при выборе материалов для строительства?
О: Каждый конкретный проект имеет свои требования к выбору материалов для строительства. Изменение породы дерева, степени просушки древесины, ее габаритов станет серьезным препятствием при процессе сборки. Собственноручно менять тип материалов нельзя — даже при переходе на первый взгляд, лучшие материалы, можно серьезно ошибиться со стоимостью монтажа, доставки, т. д.
Сборочный чертеж — это завершенный документ, изменять который не стоит, если это не разрешит дипломированный архитектор или опытный прораб.
Зачем нужен проект, его составные части
Главная задача любого проекта – дать подробные инструкции строителям по устройству всех конструкций, узлов, элементов в соответствии с нормами и стандартами безопасной и длительной эксплуатации дома. Прописывается весь строительный процесс с исключением из него любой инициативы строителей.

Разделы проекта
Проектированием любого сооружения занимаются архитекторы, совместно с инженерами-конструкторами. Они совместно подготавливают разделы проекта:
- Архитектурный;
- Конструктивный;
- Инженерный;
- Сметный.
Архитектурный раздел
Определяет внешний облик дома, но не в эскизном или дизайнерском варианте, а с точными расчётами с привязкой к нормам стандартов и пожеланиям заказчика. Основой для создания индивидуального проекта считается опрос заказчика.
В раздел входит:
- План застройки в соответствии со строительными нормами и требованиями БТИ.
- Планы этажей с планировкой помещений, размерами и расположением оконных и дверных проёмов, расположением мебели, дымоходов, вентканалов.
- План системы стропил и монтажа кровли.
- План перекрытий.
- Стилистика и точные размеры фасада.
Скачивая в интернете бесплатные проектные архитектурные решения, нужно быть готовым к внутренней неудовлетворённости новым жилищем и скорым его переделкам.

Раздел конструктивный
Конструктор в проектировании отвечает за расчёт нагрузок и разрабатывает конструкции. В раздел включаются:
- Планы фундаментов со спецификациями отдельных элементов и схемами армирования.
- Схемы расположения балок перекрытий, спецификация отдельных элементов и узлов балок.
- Детали примыканий элементов конструкций, их сечения и спецификации.
Раздел инженерный
Включает в себя все планы по системам жизнеобеспечения дома, а все коммуникации должны быть в полном соответствии с дизайн-проектом.
Электрическая часть раздела включает планы установки розеток, выключателей, светильников, распределительных щитов и всего, без чего невозможно рассчитать смету по электрике.
Проектированием газификации занимается специализированная организация, имеющая допуски и разрешения.
Водоснабжение, канализация, вентиляция и отопление обычно учитываются в архитектурном разделе.

Проектировщики
Можно условно разделить разработчиков проектов на три группы:
- Индивидуальные конструкторы, часто предлагающие услуги по проектированию в Интернете, либо выставляющие готовые проектные продукты на продажу или к бесплатному пользованию на различных сайтах. Их познания, опыт и возможности обычно трудно определить заранее, а потому готовый продукт можно поставить под сомнение в плане качества и компетентности.
- Проектные и архитектурные бюро работу выполняют профессионально, но при разработке очень равнодушно относятся к материальным возможностям заказчика, к экономии в ущерб творчеству относятся негативно, в дальнейшем строительство не отслеживают.
- Строительные компании с собственным проектным отделом заинтересованы в привлечении заказчиков, поэтому их проекты более практичны, экономны и привязаны к реальным условиям строительства и запросам застройщиков. Подрядчики часто предоставляют проекты каркасных домов бесплатно, а чертежи уже построенных объектов и фото предлагаемых архитектурных решений можно посмотреть на их сайтах.
Внесение изменений или доработок
Приобретение бесплатного комплекта чертежей не всегда означает избавление от затрат на проектирование.
Скачанные в PDF проекты, при необходимости внесения в них изменений, должны заново исполняться в программе ArchiCad.
Безопасность, достаточность, авторство проекта
Застройщиком движет желание получить комфортный дом с учётом личных запросов и интересов, но главное в проекте:
Правильно рассчитанные нагрузки с привязкой к местным условиям, гарантирующие безопасность проживания.
Соблюдение принципа достаточности, то есть приобретение материалов, должно быть без излишних, добавленных для перестраховки, объёмов стройматериалов и завышения их качественных показателей в сравнении с необходимыми нормативными.
Проект не должен быть безликим, его автор обязан нести ответственность в случае недобросовестных или ошибочных расчётов.
Одноэтажный каркасный дом 6х6
Небольшой дом прекрасно подходит для постоянного проживания небольшой семьи.
Стоимость каркасного дома 6х6
Для возведения на своём земельном участке такого строения необходимо позаботиться о качественном ленточном фундаменте. Для его заливки потребуется всего два куба бетона
Важно не экономить на арматуре и доске для опалубки
Пока основа сохнет, подвозится остальной материал:
- брус сечением 15х15 смв количестве трёх кубов,
- доска толщиной 5 см. Её потребуется 4.5 куба,
- тес или доска толщиной 2.5 см в количестве 1 куба
- металл для кровли 65 квадратных метров,
- сайдинг со всеми комплектующими общей площадью 60 кв.м.
После того как собрана крыша, а стены зашиты снаружи сайдингом, можно заняться утеплением и внутренней отделкой.
Для этого нужны:
- гидроизоляция и пароизоляция по одному рулона,
- утеплителя 96 кв.м.,
- осп 60 кв.м.
В каждом регионе цены несколько отличаются, поэтому цена на материалы располагается в диапазоне 140-190 тыс. рублей.
Планировка дома 6х6
Площадь позволяет разместить удобную кухню для хозяйки, уютную детскую комнату и гостиную. При наличии возможности и желания жильё оборудуется санузлом и котельной.
В каком стиле можно создать фасад одноэтажного коттеджа: фото с комментариями

Декоративную штукатурку можно применять для отделки деревянных, кирпичных и каркасных домов
С помощью этого материала удаляют мелкие дефекты, неровности. Комбинация с плиткой обеспечивает дополнительную защиту здания в сложных местах (цоколь, крыльцо и входная группа, сопряжение трубы с кровлей).

Колонны подчеркивают солидность классического стиля

Элементы отделки «кантри» видны не только на фасаде, но и в других частях проекта

Деревянная облицовка

Хорошо оснащенный современный бассейн создан в виде природного открытого водоема

Кирпич и камень – надежность, долговечность, эксклюзивный внешний вид
Одноэтажный каркасный дом 9х9
Дом одинаково комфортен для небольшой семьи, любящей свободные пространства, и большой дружной семьи, где никому не придётся уступать своим уютом в пользу родственников
При строительстве важно правильно рассчитать где пройдёт внутренняя стена. Иначе есть риск расхода большего количества материала, он просто останется в виде обрезков, остатков
Планировка каркасного дома 9х9

Одни владельцы просто оставляют коридор, проходящий через весь дом от входа, упирающийся в санузел.
Каждый из полученный больших прямоугольников делят пополам, чтобы получить:
- кухню и одновременно столовую
- спальни
- гостиную.
В других случаях планировка намного сложнее. Главная задача при планировании — учесть все потребности семьи.
Стоимость каркасного дома 9х9
Материалы для строительства обойдутся при рациональной планировке в 450-500 тысяч рублей. На воплощение оригинальных идей потребуется дополнительная сумма. Нередко сэкономить бюджет позволяют строительные компании, предлагающие приобрести уже готовый вариант по вполне доступным ценам.
Сборка каркасной постройки
Скачивая проекты каркасных домов бесплатно, чертежи и фото присутствуют, но не всегда можно понять, в какой последовательности необходимо выполнять работы
А также насколько важно выполнять все требования проекта. Остановимся на сборке каркаса подробнее, и поясним, что важно для сооружения прочной несущей конструкции будущего дома
Любые чертежи проектов каркасных домов, бесплатных или заказанных за оплату, содержат схему сооружения каркаса в виде нескольких чертежей. Они описывают один из наиболее ответственных этапов строительства – сборку опор будущего дома. От правильности сборки зависит прочность, надёжность и долговечность всего строения. Для того чтобы сложить каркас правильно, необходимо следующее:
- Строго придерживаться указанных в чертежах и спецификациях размеров. От этого зависит прочность всего строения, его надёжность и безопасность проживания в будущем доме.
- Выполнять рекомендации по способам крепления – соединять соседние элементы каркасных стоек именно так, как указано в проекте. От этого также зависит прочность, а значит надёжность, безопасность и долговечность строения.
Способы крепления.
Для крепления каркасных элементов используют два основных варианта – соединение металлическими скобами и гвоздями, а также врезку двух соседних деревянных балок друг в друга. Врезка соседних деревянных элементов образует более прочное соединение, поэтому её обязательно используют для сырого строевого леса. Крепить такой лес наружными скобами противопоказано – может произойти их деформация и разрыв.
А вот высушенный лес можно крепить снаружи. Он не даёт сильного коробления, которое способно деформировать крепёжный металл. При этом позволяет собирать каркас без наличия профессиональных умений и навыков врезки дерева.
Проекты одноэтажных каркасных домов
В этом разделе вы найдете проекты одноэтажных каркасных домов для строительства своими руками с нуля до чистовой отделки. Наши проекты адаптированы под самостоятельное строительство непрофессионалами, и под размеры материалов из магазина!
Покупая у нас проект каркасного дома, вы получаете не просто набор документов и сложных чертежей, вы получаете подробную пошаговую инструкцию по технологии сборки и строительству, а также устройству инженерных коммуникаций (прокладке и подключению электрики, сантехники и вентиляции).
Чтобы строить по нашим проектам необязательно быть строителем, достаточно уметь держать в руках молоток!
Проекты каркасных домов до 50 кв.м.
Проект КД-14 Одноэтажный каркасный дом 5х6 30м 2 : высота потолков 2,4м. Цена дома 235 тыс.руб. — в цену входит утепление 150мм и отделка. Цена проекта 8 400 руб.

Проект КД-16 Одноэтажный каркасный дом 4х5 20м 2 : высота потолков 2,3м/2,5м. Цена дома 160 тыс.руб. — в цену входит утепление 100мм и отделка. Цена проекта 5 000 руб.

Проект КД-56 Каркасный дом 5х6м, 30м 2 : высота потолков 2,4м. Цена дома 97 тыс.руб. — в цену входит утепление 100мм и отделка. Цена проекта 6 500 руб.

Проект КД-63 Одноэтажный каркасный дом 6х6 24(36)м 2 : высота потолков 2,4-3,4м. Цена дома 226 тыс.руб. — в цену входит утепление 100мм и отделка. Цена проекта 8 300 руб.

Проект КД-31 Одноэтажный каркасный дом 6х6 36м 2 : высота потолков 2,5м/2,7м. Цена дома 252 тыс.руб. — в цену входит утепление 100мм и отделка. Цена проекта 8 700 руб.

Проект КД-32 Одноэтажный каркасный дом 6х7 42м 2 : высота потолков 2,5м/2,7м. Цена дома 305 тыс.руб. — в цену входит утепление 100мм и отделка. Цена проекта 9 700 руб.

Проекты каркасных домов 50-100 кв.м.
Проект КД-3 (у дома 3 варианта планировки помещений) Одноэтажный каркасный дом 7,5х12м 90м 2 : высота потолков 2,7м/2,9м. Цена дома 465 тыс.руб. — в цену входит утепление 150мм и отделка. Цена проекта 8 500 руб.

Проект КД-33 (у дома 3 варианта планировки помещений) Одноэтажный каркасный дом 7,5х12м 75м 2 : высота потолков 2,7м/2,9м. Цена дома 446 тыс.руб. — в цену входит утепление 200мм и отделка. Цена проекта 9 500 руб.

Проект КД-34 Одноэтажный каркасный дом 7,5х10,5м 78м 2 : высота потолков 2,7м/2,9м. Цена дома 548 тыс.руб. — в цену входит утепление 200мм и отделка. Цена проекта 10 900 руб.

Проект КД-35 Одноэтажный каркасный дом 8(9,5)х10,6 91(98)м 2 : высота потолков 2,7м/2,9м. Цена дома 583 тыс.руб. — в цену входит утепление 150мм и отделка. Цена проекта 11 500 руб.

Проект КД-37 Одноэтажный каркасный дом 6(8,5)х10,6 68(90)м 2 : высота потолков 2,5м. Цена дома 458 тыс.руб. — в цену входит утепление 150мм и отделка. Цена проекта 11 700 руб.

Проект КД-38 Одноэтажный каркасный дом 6(7,5)х10 66м 2 : высота потолков 2,44м. Цена дома 469 тыс.руб. — в цену входит утепление 150мм и отделка. Цена проекта 10 600 руб.

Проект КД-42 Одноэтажный каркасный дом 8х9,2 73м 2 : высота потолков 2,74м/2,94м. Цена дома 466 тыс.руб. — в цену входит утепление 200мм и отделка. Цена проекта 9 800 руб.

Проект КД-47 Одноэтажный каркасный дом 8х12 96м 2 : высота потолков 2,7м/2,9м. Цена дома 645 тыс.руб. — в цену входит утепление 200мм и отделка. Цена проекта 14 000 руб.

Проект КД-65 Одноэтажный каркасный дом 6,5х10 65-85м 2 : высота потолков 2,6м-4,8м. Цена дома 507 тыс.руб. — в цену входит утепление 150мм и отделка. Цена проекта 8 900 руб.

Проект КД-68 Одноэтажный каркасный дом 8х9,3м 74м 2 : высота потолков 1,9-3,1м. Цена дома 457 тыс.руб. — в цену входит утепление 150мм и отделка. Цена проекта 14 400 руб.

Проект КД-421 Одноэтажный каркасный дом 8х9,2 73м 2 : высота потолков 2,7 или 2,9м. Цена дома 510 тыс.руб. — в цену входит утепление 200мм и отделка. Цена проекта 11 400 руб.

Проекты каркасных домов 100-150 кв.м.
Проект КД-4 Одноэтажный каркасный дом 10х13м 126м 2 : высота потолков 2,8м/3м. Цена дома 727 тыс.руб. — в цену входит утепление 200мм и отделка. Цена проекта 10 500 руб.

Проект КД-44 Одноэтажный каркасный дом 9х12м 108м 2 : высота потолков 2,8м. Цена дома 736 тыс.руб. — в цену входит утепление 200мм и отделка. Цена проекта 14 200 руб.

Проект КД-45 Одноэтажный каркасный дом 9х12м 108м 2 : высота потолков 2,8м/3м. Цена дома 690 тыс.руб. — в цену входит утепление 200мм и отделка. Цена проекта 14 000 руб.

Проект КД-451 Одноэтажный каркасный дом 9х12м 108+20м 2 : высота потолков 2,8м/3м. Цена дома 712 тыс.руб. — в цену входит утепление 200мм и отделка. Цена проекта 14 300 руб.

Проекты каркасных домов 150-200 кв.м.
Проект КД-43 Одноэтажный каркасный дом 10х16,7 162м 2 : высота потолков 2,6м/2,8м. Цена дома 950 тыс.руб. — в цену входит утепление 200мм и отделка. Цена проекта 14 700 руб.
Особенности каркасной технологии
Каркасное строительство может проводиться разными способами, но самый доступный и распространенный из них — каркасно-рамочный. Особенность данного варианта заключается в том, что каркас будущего здания строится прямо на площадке. Привлечение тяжелой строительной техники не требуется. Метод позволяет воплотить любой дизайн-проект, построить дом любого периметра и этажности, с мансардой, верандой, цоколем и подвалом, тем или иным скатом крыши, а также возвести баню, гараж, беседку.
Среднее время постройки дома по каркасно-рамочной технологии составляет не более 2 месяцев. Если применять продуманную систему изоляции, можно добиться высоких энергосберегающих свойств, хорошей шумо- и гидроизоляции.
Фундамент: как выбрать
Нагрузка от каркасного дома сравнительно небольшая, поэтому подходят различные типы фундаментов:
- свайный или столбчатый;
- ленточный малого или глубокого заложения;
- плита.
Выбор основания зависит от многих факторов, но основной из них — характеристики грунта на участке:
- механический состав;
- уровень грунтовых вод;
- несущая способность.
Помимо этого может предусматриваться цокольный этаж или подвал. Чтобы выбрать какой-либо вариант, должно быть обоснование в виде результата инженерных изысканий и проектной документации.
Свайный (столбчатый)
Это самый недорогой и быстровозводимый фундамент. Он очень часто используется при строительстве каркасных домов. Представляет собой погруженные в землю отдельно стоящие анкеры, соединенные по оголовкам горизонтальной балкой — ростверком.
Сваи монтируются различными способами:
- ввинчиванием;
- забивкой;
- заливкой бетона в скважину;
- кладкой из блоков, кирпича.
Свайные основания используются на любых почвах. На слабых и сильносжимаемых грунтах это практически единственный вариант.
Для определения количества и сечения свай производится расчет с учетом нагрузки и особенностей проекта. Опоры устанавливаются с шагом не более 3 м.
Точки размещения опор:
- по углам здания;
- под пересечениями стен и перегородок;
- в местах расположения тяжелого оборудования и конструкций — печей, каминов, колонн и т.д.;
- между несущими стенами при больших пролетах.
При устройстве свайных фундаментов не требуется рыть котлован или выравнивать площадку. Достаточно удалить верхний плодородный слой почвы.
Монтируются опоры механическими установками или вручную. Винтовые и забивные свайные фундаменты сразу готовы к дальнейшей нагрузке, а вот для буронабивных требуется время для затвердевания бетона и набора прочности.
Ленточный
При устройстве фундамента-ленты под каркасный дом заглублять подошву ниже уровня промерзания нерационально, если это не предусмотрено проектом. Обычно применяются малозаглубленные основания с глубиной заложения 30-50 см. Это позволяет снизить объем земляных работ, трудоемкость и расход материалов, а несущей способности конструкции вполне достаточно для восприятия нагрузки от легкого каркасного строения.
При мелкой закладке фундамента неизбежно возникает морозное пучение, особенно на глинистых и водонасыщенных грунтах. Рекомендуется проложить прифундаментный дренаж, сделать утепленную отмостку и обеспечить водоотведение при дождях. Эти мероприятия предупреждают переувлажнение грунта, снижают его сезонные подвижки.
Технология устройства мелкозаглубленного ленточного основания:
- Выкопать траншею глубиной 50-70 см.
- Засыпать щебень и песок на высоту 20 см, уплотнить. Это дополнительный дренаж.
- Установить опалубку из досок, фанеры.
- Уложить гидроизоляцию для защиты от раннего обезвоживания бетона, а впоследствии от увлажнения поверхностными водами.
- Смонтировать арматурные каркасы.
- Залить бетон марки не ниже М 300.
Хорошими характеристиками обладает свайно-ростверковый фундамент, где между отдельными заглубленными опорами устраивается малозаглубленная ж/б лента. Он объединяет преимущества обеих конструкций, равномерно распределяет нагрузку на грунт и противостоит силам пучения.
Плитный
Этот тип фундаментов применяется чаще всего в каркасном строительстве виде утепленной шведской плиты УШП. Многослойная конструкция достаточно трудоемкая и материалоемкая, но при ее устройстве проделывается большой объем работ.
Фундамент-плита позволяет уже на начальном этапе получить:
- хорошее утепление для снижения теплопотерь;
- готовый под отделку пол первого этажа;
- выполненную разводка всех инженерных коммуникаций.
Плитное основание заглубляют не более чем на 40-50 см. Его называют «плавающим», поскольку при сезонном пучении грунта оно может свободно перемещаться.
Водоотведение из-под подошвы фундамента обеспечивается толстой щебеночно-песчаной подушкой. Ее тщательно уплотняют и выравнивают. На этом этапе проводится закладка трасс для коммуникаций и установка гильз для вывода их наружу. По подушке заливается бетон толщиной 10-20 см. Предварительно конструкция армируется сетками в 2 слоя. Опалубку можно снимать через 72 часа, а к дальнейшему строительству приступать спустя 5-7 дней.
Плитный фундамент обладает высокой тепловой инерцией и долго сохраняет накопленную энергию
Для каркасных домов это важно, поскольку их стены хотя и обладают низкой теплопроводностью, но тепло не аккумулируют
Что делать, если нашли хорошие чертежи?
Даже если вы нашли в интернете бесплатный готовый комплект документации, он является полным, а в нём находятся все инструкции по сборке дома, то всё равно к строительству приступать нельзя. Почему? Да потому что неизвестен разработчик документации, а это как минимум повод обратиться к специалистам для проверки и адаптации найденного комплекта документов к реальным условиям участка, на котором будет проводиться строительство. Необходимо проверить возможность изготовления фундамента по чертежам и его соответствия грунта.
То есть, даже если скачанные документы хороши на вид, без привлечения сторонних специалистов не обойтись. Ведь формально, приступать к строительству можно только после того, как все чертежи будут готовы и проверены несколькими специалистами.
Примеры проектов одноэтажных каркасных домов
Все типовые проекты строений подобной конструкции адаптируются региональными архитектурными конторами под местные условия (свойства и тип грунта, климат, коммуникации рядом с участком). Заказывая индивидуальный проект дома, застройщик обычно имеет возможность изменить габариты здания, планировку помещений и этажей, конструкцию основания и стен, внутренних и межэтажных перекрытий, а также дизайн и экстерьер строения.
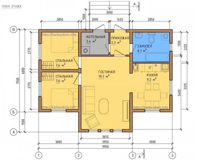
Типовой проект одноэтажного дома для маленькой семьи
на рисунке выше заказывают молодые семьи, обычно без детей или с одним ребенком. Спальни имеют общую стену и соединены дверью, чтобы малыша можно было постоянно контролировать. Также из взрослой спальни есть выход на большую кухню, совмещенную со столовой зоной, и на закрытую террасу.
Это самый простой и не очень функциональный проект, так как он не предусматривает удобства внутри здания – туалет нужно будет строить во дворе. Да и душ вместо ванной – это не очень удобно. Но эти проблемы решаемы простой сменой планировки дома, площадь которого позволяет немного изменить расположение внутренних перегородок в гостиной, отгородив место для совмещенного санузла. В типовом решении этот проект больше подходит для домика сезонного проживания, построенного на даче.
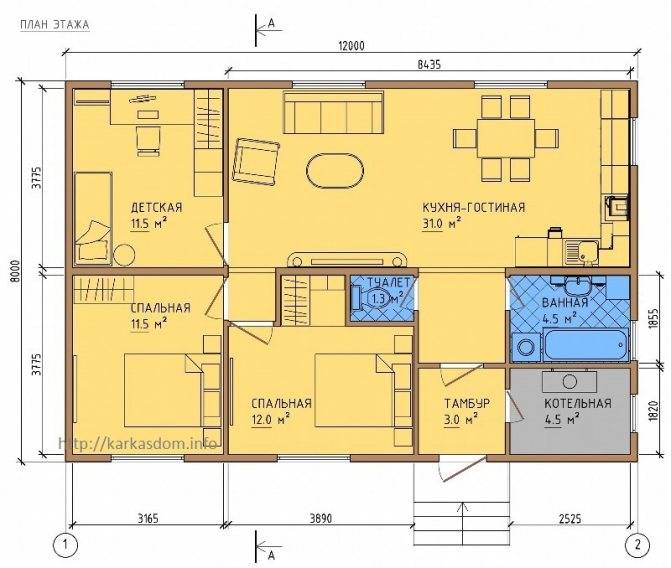
Проект для семьи с разнополыми детьми
Кроме стандартных жилых и бытовых площадей (кухня, которая совмещается с гостиной, несколько раздельных спален, санузел) в проект легко добавляется открытая или закрытая терраса, веранда, внутренний гараж. Одноэтажное здание, проект которого отображен на рисунке, – оптимальное решение для возведения деревянного дома своими руками.
Каркас после строительства фундамента облегченного типа возводится за 2-3 недели, остальное время занимает отделка и обустройство жилья. Этот проект выгоден тем, что при общей площади всего 96 м2 в нем удобно расположены все основные и вспомогательные помещения, включая котельную и рабочий тамбур. Также комфортность проживания повышается разделением туалета и ванной комнаты. В двух небольших коридорчиках-переходах между комнатами можно организовать гардеробные отделения или кладовки. Полностью закрытых комнат нет вообще – в каждой есть одно или два окна.
Проект большого каркасного дома
Все типовые проекты одноэтажных домов должны иметь оптимальный функционал – помещения для приготовления пищи, отдыха, санитарные. В проекте большого дома этот функционал значительно шире – здесь может жить семья с несколькими детьми и престарелыми родителями. Три спальни, равноудаленные и изолированные друг от друга, имеют выходы в большую гостиную, которая служит и комнатой отдыха или встречи друзей.
Два санузла, совмещенных с ванными, делают личную жизнь каждого члена семьи более удобной и не зависимой от количества проживающих в доме. В этой же зоне расположена котельная, пользование которой не доставит неудобств, так как вход в нее только через прихожую и террасу. Закрытая терраса – это отличное место для отдыха всей семьи летом.
Инженерные коммуникации
Проекты каркасных домов бесплатно иногда могут быть без данных о прокладываемых инженерных коммуникациях. Это связано с тем, что водопровод, электроснабжение и газ часто требуют подготовки собственных проектов. Как правило, ими занимаются те организации, которые обеспечивают городское или поселковое электро-, водо- и газоснабжение. Поэтому даже в заказной проектной документации на каркасные дома нет схем прокладывания труб канализации и водопровода, электрических кабелей и расположения электроприборов, а также газовых труб и газового оборудования.
Заказ проекта электроснабжения производят в организации, которая поставляет потребителям электрический ток. Этот проект готовится по месту жительства заказчика. При этом зачастую проект можно заказать только в данной государственной организации и нельзя получить его в другом проектном месте.
Аналогичная ситуация с проектом газоснабжения. Поставщик газа – монополист на выпуск и подписание газовых проектов для жилого дома. Что касается прокладывания водопровода и канализационного слива, то здесь зачастую проектом не пользуются. Просто приобретают и прокладывают трубы заданного диаметра.

























































