Виды
Масштабы помещений, а также уровень загрязнения и нагрева воздуха в них требуют установки вытяжных систем соответствующего размера, мощности и конфигурации. Поэтому и центробежные вентиляторы бывают различных видов.
В зависимости от уровня давления, создаваемого воздушными массами в вытяжном канале, они классифицируются на вентиляторы:
- Низкого давления – до 1кПа. Чаще всего их конструкция предусматривает широкие листовые лопатки, которые загнуты вперед к всасывающему патрубку, с максимальной скоростью вращения до 50м/с. Сфера их применения – преимущественно вентиляционные системы. Они создают меньший уровень шума, вследствие этого их можно использовать в помещениях, где постоянно находятся люди.
- Среднего давления. При этом уровень нагрузки, создаваемой движением воздушных масс в вытяжном канале, может находиться в диапазоне от 1 до 3 кПа. Их лопасти могут иметь разный угол и направление наклона (как вперед, так и назад), выдерживают максимальную скорость до 80м/с. Сфера применения шире, чем у вентиляторов низкого давления: они также могут устанавливаться на технологических установках.
- Высокого давления. Такая техника применяется преимущественно для технологических установок. Полное давление в вытяжном канале составляет от 3кПа. Мощность установки создает окружную скорость всасываемых масс более 80 м/с. Турбинные колеса оснащаются исключительно лопастями загнутыми назад.
Давление является не единственным признаком, по которому различают радиальные вентиляторы. В зависимости от скорости воздушных масс, которая обеспечивается рабочим колесом, они делятся на два класса:
- I класс – говорит о том, что фронтально загнутые лопасти обеспечивают скорость менее 30 м/с, а обратно загнутые – не более 50 м/с;
- II класс включает более мощные установки: они обеспечивают скорость прогоняемым воздушным массам выше, чем вентиляторы I класса.
Возможности поворота улитки относительно входящего потока
Кроме того, устройства производятся с разным направлением вращения относительно всасывающего патрубка:
- ориентированные направо можно устанавливать с поворотом корпуса по ходу часовой стрелки;
- налево – против хода часовой стрелки.
Сфера применения улиток во многом зависит от электродвигателя: его мощности и способа крепления к рабочему колесу:
- оно может набирать обороты непосредственно на валу двигателя;
- его вал соединяется с двигателем при помощи муфты и фиксируется одним или двумя подшипниками;
- при помощи клиноременной передачи, при условии его фиксации одним или двумя подшипниками.
Ограничения в эксплуатации
Несмотря на прочность и надежность промышленных «улиток», существуют некоторые ограничения по их использованию. Итак, центробежные вентиляторы, в быту называющиеся «улитками», не рекомендуется устанавливать если:
- В воздухе имеются взвеси липкой консистенции более 10 мг/куб.м.
- В помещении находятся частички взрывоопасных веществ.
- Температура в помещении выходит за рамки диапазона от -40 до +45°С.
Более того, рационально использовать вентиляцию «улитку» в больших помещениях, в быту такие приборы лучше ставить в шахтах вентиляции, куда поступает весь отработанных воздух из дома.
Устройство и конструкция
Всасывание происходит в направлении оси вращения, а выброс — по касательной к нему, перпендикулярно к всасыванию. При вращении лопатки захватывают частицы воздуха и с усилием выбрасывают их в центробежном направлении. Корпус вентилятора не позволяет потоку рассеиваться, направляя его в выходное отверстие. В районе центральной части рабочего колеса образуется разрежение, тут же пополняемое притоком из входного отверстия, расположенного в центральной части плоской стороны корпуса.
Особенности
Специфика работы центробежных вентиляторов состоит в способности производить реверс воздушной струи при изменении направления вращения рабочего колеса. При этом, разницы в давлении практически не наблюдается, имеются лишь небольшие отличия параметров, обусловленные использованием обратных сторон лопаток. Это позволяет устанавливать вентилятор в разных участках системы воздуховодов и обеспечивать определенные режимы работы системы.
Конструкция вентилятора улитки достаточно проста. На приводном валу установлено рабочее колесо, вращающееся внутри корпуса. Существуют варианты конструкции, где рабочее колесо не имеет собственного вала и установлено прямо на валу электродвигателя. Это свойственно вентиляторам небольших размеров. Величина определяется номером вентилятора, который обозначает диаметр крыльчатки в дм. Например, радиальный вентилятор № 4 имеет рабочее колесо диаметром 40 см.
Крыльчатки, лопасти
Рабочее колесо (крыльчатка) состоит из лопаток, осуществляющих воздействие на определенные участки воздушного потока, и опорной конструкции карусельного типа.
Существует два вида:
- рабочее колесо барабанного типа. Внешне напоминает беличье колесо. Используется в вентиляторах, осуществляющих перемещение газовоздушной среды с обычными требованиями — температура до 80°, отсутствие агрессивных, легковоспламеняющихся, липких или волокнистых включений. Устанавливается в большинстве вентиляторов
- открытая крыльчатка. Используется намного реже, так как конструкция подобного типа менее устойчива к механическим воздействиям. Большинство производителей делают такие рабочие колеса только на заказ. Применяется для работ в качестве пылевых устройств, работающих со сложными материалами с волокнистыми включениями
Перемещение воздушного потока происходит посредством контакта с лопатками рабочего колеса. При вращении плоскости лопаток воздействуют на определенный объем воздуха, с которым находятся в непосредственном контакте, уплотняют его и придают соответствующий импульс.
Лопатки рабочего колеса имеют слегка выгнутую форму в виде ложбинки. Существуют колеса с лопатками, загнутыми вперед и назад. Если имеется наклон в сторону вращения (вперед), появляется более мощный импульс воздушного потока, но, при недостаточном питании установки (например, если входной патрубок не способен обеспечить подачу в достаточном объеме) вентилятор начинает «захлебываться». Лопатки, выгнутые назад, дают несколько меньший импульс, но позволяют получить ровный и стабильный режим работы без появления сбоев или срывов.
Разновидности рабочего колеса
От формы, размеров и материала рабочего колеса будет напрямую зависеть производительность вентилятора. Необходимо также учитывать количество и форму лопастей, отвечающих за нагнетание давления внутри улитки. Основными требованиями, предъявляемыми к материалу рабочего колеса и лопаток, являются защищенность от коррозии и пластичность. Такой рабочий орган выдержит химические воздействия агрессивной среды и повышенные вибрационные нагрузки.
При выборе формы и количества лопастей учитываются аэродинамические нагрузки и скорость вращения. При использовании мощных двигателей металлические лопатки должны быть изогнуты под прямым углом, что позволяет формировать устойчивый воздушный поток. А вот для вентиляторов небольшой мощности предпочтительней использовать прямые лопасти крупных размеров, позволяющие обеспечивать высокое давление в больших по своим габаритам улитках.
Качественно выполненное колесо не должно в процессе работы вибрировать, поскольку это может привести к быстрому выходу из строя агрегата. Вибрация вентилятора увеличивает уровень шума, разрушает основание установки и отрицательно сказывается на общих показателях долговечности оборудования. Минимизировать колебательные движения можно с помощью тщательной балансировки вала или использования специальных амортизационных пружин. Монтируются они под основанием корпуса, позволяя гасить продольные и поперечные паразитные колебания агрегата.
Принцип работы
По принципу действия вытяжные системы вентиляции производства бывают различных видов: поточная(естественная) и принудительная. Первая вытяжная система вентиляции производства используется, если уровень загрязнения помещения не столь велик. В своей основе поточная вытяжка использует перемещение воздушной массы из цеха наружу, за счет разности температуры и давления в помещении и вне его. Это исключает из схемы применение электродвигателей и вентиляторов, что позволяет не использовать электроэнергию при её работе. Но если выбросы вредных веществ в производственных помещениях носят массовый характер, то без принудительной системы местной вытяжной вентиляции не обойтись.
В её конструкцию входят электродвигатели, соединенные с вентиляторами, позволяющими «высасывать» из помещения значительные объемы воздуха, что в свою очередь, приводит к существенному очищению «атмосферы» цеха от загрязнения. Часто в систему принудительной вытяжки устанавливаются фильтры, помогающие решать проблему загрязнения окружающей среды. Воздухообмен вентиляции на производстве включает в себя два трубопровода: всасывающий и отводящий. Между ними установлен блок вентилятора с электродвигателем, создающим принудительную циркуляцию воздуха. Наличие дополнительного элемента газоанализатора позволяет значительно экономить электроэнергию. Его предназначением является контроль за содержанием вредных веществ в цеху. В зависимости от их концентрации, анализатор управляет оборотами работы двигателя. Т. е. при большой загазованности он увеличивает обороты, следовательно, и объем откачиваемого воздушного пространства из помещения. При малом содержании вредных веществ в «атмосфере» цеха, он переводит двигатель на малые обороты, либо вообще его отключает.
Как правило, наряду с вытяжкой из помещения используется и подача свежего воздуха с улицы. Такая система называется циркуляционной. Она, в свою очередь, позволяет лучше очистить помещение и «насытить» его свежим воздухом.
Вентиляторы для вытяжки бывают двух типов: радиальные и центробежные. Скорость движения воздуха в радиальных вентиляторах выше, чем в центробежных. Это связано с тем, что воздушная масса в них перемещается в прямолинейном направлении. В свою очередь, такая схема обеспечивает более быстрое движение воздушных потоков, следовательно, и более «скоростной» воздухообмен.
Принцип действия
Эффективность вытяжных систем с применением улиток основана на их простом принципе действия.
В процессе работы электродвигатель запускает вращение рабочего колеса.
Турбинное колесо с радиальными лопатками, благодаря центростремительному движению, засасывают через патрубок и придают газо-воздушным массам ускорение.
Их движению передается вращательный характер центробежного усилия лопаток. Это обеспечивает разный вектор входящему и выходящему потокам.
Вследствие этого выходящий поток направляется в спиральный кожух. Конфигурация спирали обеспечивает торможение и последующую подачу потока под давлением в вытяжной канал.
Из вытяжного канала газо-воздушные массы выводятся в воздуховоды для дальнейшей очистки и выброса в атмосферу.
Если в воздуховодах предусмотрены перекрывающие клапаны, то радиальный вентилятор может работать как вакуумный насос.
Технические характеристики канальных вентиляторов и правила выбора
Как и все приборы данного типа, канальные имеют одну основную характеристику: мощность (производительность). А точнее, объем воздуха, который проходит через прибор за единицу времени. Обычно для измерения используют кубические метры, проходящие за один час – м³/ч.
Этот показатель зависит от двух параметров:
- скорости вращения электродвигателя (крыльчатки), и чем больше скорость, тем выше производительность;
- габаритных размеров самого вентилятора, чем больше они, тем больше мощность.
Кроме этого надо при выборе обращать внимание и на другие качества прибора. А именно:. Класс безопасности
Здесь имеется в виду защиту от пыли и влаги
Класс безопасности. Здесь имеется в виду защиту от пыли и влаги
Особенно это важно, если выбирается бесшумный вентилятор для вытяжки в ванной.
Функциональность. Здесь подразумевается автоматическая работа прибора или стандартная. Ко второй относится функция, когда аппарат начинает работать при включении освещения
К первой, когда он включается через определенные промежутки времени, запрограммированные в настойках.
Ко второй относится функция, когда аппарат начинает работать при включении освещения. К первой, когда он включается через определенные промежутки времени, запрограммированные в настойках.
На шильдике вентилятора указываются всего его характеристики
Производительность вентилятора
На глаз этот параметр выбирать нельзя. Потому что он будет зависеть от требуемого воздухообмена в помещении. Если разговор идет об общей вентиляции дома, а не о конкретном помещении, то придется сложить значения воздухообмена всех помещения дома. Это и будет производительность вентилятора.
К примеру, дом, в котором общая жилая площадь равна 100 м², высота потолков – 3 м. В них воздухообмен будет равен объему помещения, то есть 300 м³/ч. Сюда надо добавить воздухообмен туалета и ванной – по 25 м/ч и кухни 60÷90 в зависимости от типа варочной плиты и количества конфорок. Получается:
300 + 25 + 25 + 70 = 420 м³/ч.
Это и есть производительность вентилятора.
Чем больше размеры, тем выше производительность
Геометрические размеры
В основе маркировки вентиляторов данного типа лежит диаметр входного и выходного отверстия. Типоразмер по данному параметру: 100 мм, 125, 160, 200, 250 и 315. Канальный вентилятор для вытяжки 100 и 125 мм относятся к разряду бытовых. Канальные вентиляторы 160 и 200 мм чаще устанавливаются в ресторанах, кафе, магазинах большой площади и прочих заведениях. Остальные можно отнести к промышленным моделям, которые монтируются в систему воздухоотведения производственных цехов. Все они работают от сети электричества в 220 В.
Для примера, разберем приборы марки ВКК (вентилятор канальный круглого сечения), на фото и в таблице ниже показаны его размерные параметры.
Размерные габариты канального вентилятора
Общие данные о центробежных (радиальных) вентиляторах
Вентиляторы улитки имеют двойственное обозначение (маркировку): ВР и ВЦ, то есть, радиальный и центробежный. Первое говорит о том, что лопатки рабочего органа оборудования расположены радиально относительно своего ротора. Второе – это обозначение физического принципа работы прибора, то есть, процесс забора и перемещения воздушных масс происходит за счет центробежной силы.
Именно центробежные вентиляторы в системах вентиляции показали себя с положительной стороны за счет высокой эффективности отвода воздуха.
Принцип действия
Как уже было сказано, вентиляторы этой модификации работают на основе действия центробежной силы.
- Лопатки, закрепленные на роторе устройства, вращаются с большой скоростью, создавая завихрения внутри корпуса.
- Давление на входе падает, что становится причиной всасывания близ расположенного воздуха, который устремляется внутрь.
- Под действием лопаток он отбрасывается к периферии пространства, где создается высокое давление.
- Под его действием воздушный поток устремляется к выходному патрубку.
Так работают все центробежные модели, которые устанавливаются не только в системах вентиляции, но и дымоудаления. О последних надо сказать, что изготавливают их корпус из алюминиевого сплава или стали, покрытой жаростойкими материалами, а комплектуют взрывозащищенным электродвигателем.
Особенности конструкции
Как уже было сказано, основная особенность конструкции – улитка. Необходимо обозначить и форму лопаток. В вентиляторах этой марки применяют три их разновидности:
- с прямым наклоном,
- с наклоном назад,
- в виде крыла.
Первая позиция – это небольшие вентиляторы с большой мощностью и производительностью. То есть, они могут создавать условия, при которых другие модели требуют наличия большого корпуса. При этом они работают с низким уровнем шума. Вторая позиция – это экономный вариант, который потребляет на 20% электроэнергии меньше, чем другие позиции. Такие вентиляторы легко переносят нагрузки.
Что касается исполнения, которое относится к электродвигателю, то здесь также три позиции:
- ротор закреплен напрямую с валом двигателя через муфту и подшипники;
- через ременную передачу с помощью шкивов;
- крыльчатка насажена на вал электродвигателя.
И еще одна особенность – это места соединения вентилятора с воздуховодами вентиляционной системы. Входной патрубок имеет прямоугольную форму отверстия, выходной круглую.
Виды центробежных вентиляторов улиток – это три позиции, отличающиеся друг от друга мощностью. Этот параметр зависит от скорости вращения электродвигателя, а соответственно и ротора, а также от количества лопаток в конструкции устройства. Вот три вида:
- Вентиляторы улитки низкого давления, параметр которых не превышает 100 кг/см². Чаще всего их используют в системах вентиляции многоквартирных домов. Устанавливают улитки на крышах.
- Модели среднего давления – 100-300 кг/см². Устанавливаются в системах вентиляции промышленных объектов.
- Разновидность высокого давления – 300-1200 кг/см². Это мощные вентиляторные установки, которые обычно включают в систему воздухоотвода лакокрасочных цехов, в производствах, где установлен пневмотранспорт, на складах с горюче-смазочными материалами и прочих помещениях.
Есть еще одно разделение вентиляторов улиток – по своему назначению. Это в первую очередь приборы общего назначения. Далее еще три позиции: взрывозащищенные, термостойкие и коррозионостойкие.
Конструкционные особенности
Вытяжка улитка – это радиальный вентилятор, встроенный в корпус особой формы, напоминающий панцирь улитки. Воздух в него направляется под действием центробежной силы.
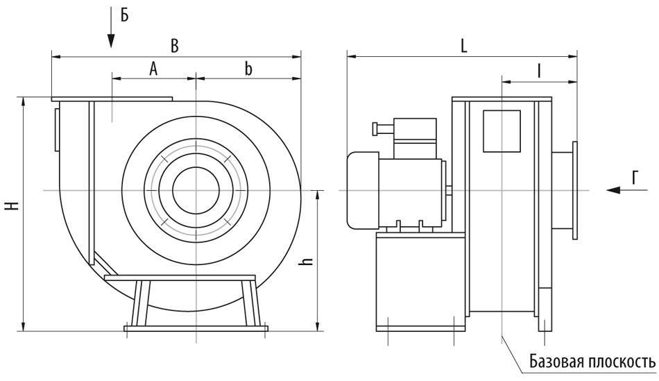
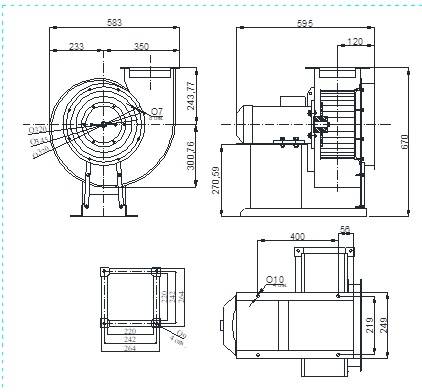
Центробежный вентилятор состоит из следующих частей:
- Корпус спиральной формы.
- Всасывающий патрубок круглой формы, размер диаметра совпадает с размером рабочего колеса.
- Вытяжной канал, оканчивающийся выходным патрубком.
- Выходной патрубок прямоугольной формы, располагается зевом вверх.
- Рабочее колесо с лопастями.
- Электромотор.

Центр корпуса занимает крыльчатка вентилятора. Ее лопасти отличаются от привычно больших, начинающихся от оси вращения. В радиальном вентиляторе лопасти рабочего колеса прямоугольные, прямые или выгнутые определенным образом, располагаются по ободу круга вращения.
Форма лопастей вытяжки улитка в зависимости от назначения:
- прямые – для удаления летучих взвесей (пыли, мелкой стружки);
- с загибом лопасти назад – для увеличения скорости вращения колеса при пониженном шумообразовании;
- с загибом лопасти вперед – для повышения давления и КПД двигателя.
Особенности конструкции радиального вентилятора заключаются в разном способе передачи крутящего момента от двигателя к рабочему колесу:
- Рабочее колесо «посажено» непосредственно на вал двигателя. Такая конструкция отличается простотой и доступностью. Однако в случае поломки вентилятора требуется полный разбор его для ремонтных работ.
- Крутящий момент передается посредством ремня. Распространенный вид взаимодействия двигателя с вращающимися частями механизма, который открывает много возможностей для манипуляции с размерами шкивов и скоростями. Ременная передача делает устройство более громоздким и дорогим.
- Рабочее колесо соединяется с моторным валом через муфту. Такая посадка снимает нагрузку с подшипников двигателя, не увеличивая сложность и металлоемкость конструкции. Этот тип вытяжки улитка можно считать лучшим по ремонтопригодности и цене.
Рекомендуем ознакомиться: Как организовать систему вытяжки отработанного воздуха в деревянном доме
Скорость работы вытяжки типа улитка регулируется не только мощностью мотора, но и количеством лопастей на рабочем колесе. Корпус вентилятора изготавливают из стали, сплавов или алюминия. Для защиты от коррозии стальные детали красят или покрывают специальной защитой.
Как сделать своими руками
Вопрос, поставленный названием этого раздела, можно отнести к категории риторических. То есть, в принципе, сделать улитку своими руками можно, если владеть навыками жестянщика или сварщика. Потому что собирать прибор придется из листового металла. А в зависимости от мощности и производительности устройства металл будет разной толщины.
Плюс ко всему самостоятельно сделать лопатки и качественно прикрепить их к ротору – сложно. Потому что ротор будет вращаться с огромной скоростью, и если балансировка конструкции нарушена, то вентилятор разнесет на части в первые 20 секунд работы. Да и правильно подобрать электродвигатель надо с учетом мощности и скорости вращения, плюс грамотно провести подсоединение его к ротору вентилятора. Так что не пытайтесь ничего делать своими руками – это опасно для вашей же жизни.
Популярные модели
В принципе, по-модельного разделения улиток не существует. Есть определенные марки, которые выпускаются всеми производителями. И делятся они в основном по прямому назначению. К примеру, вентилятор ВРП, где буква «П» обозначает, что это пылевая модель, которую используют в системах вентиляции и аспирации, для удаления воздуха с большой концентрацией пыли. То есть, это специфичная модель, которую надо использовать именно по прямому назначению. Конечно, этот прибор легко справится и с обычным воздухом, но он дороже стандартных ВР или ВЦ, потому что в его конструкции используется толстый металл для изготовления корпуса и лопаток, отсюда и более высокая мощность электродвигателя.
То же самое касается вентиляторов марки ВР ДУ, то есть, для дымоудаления. Изготавливают их из более качественных материалов с установкой взрывозащищенного двигателя. Отсюда и высокая их цена. Что касается других позиций, то ВР разделяется на виды, о которых было уже сказано, и в каждой группе есть свои модели со своими техническими характеристиками.
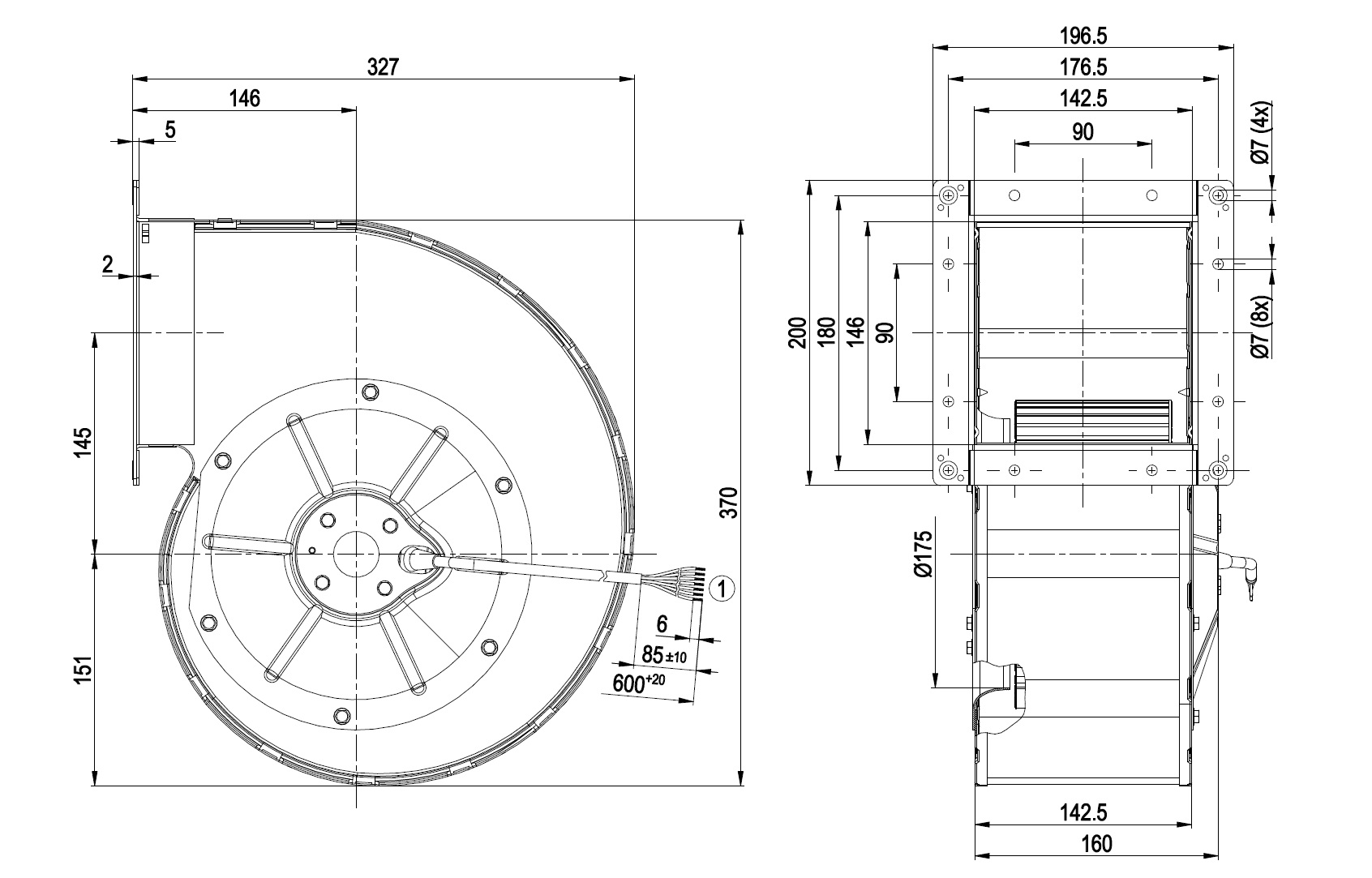
Рабочее колесо радиального вентилятора
Это основной, максимально нагруженный узел вентилятора. именно рабочее колесо осуществляет передачу энергии от привода (электродвигателя) вентилятора, перемещаемому воздуху. Его величина определяет не только габариты, но и основные параметры машины, ее производительность и давление. Диаметр рабочего колеса всегда указывается в обозначении вентилятора.
Состоит из элементов:
- ступица (втулка)
- передний диск
- задний диск
- лопатки
По направлению вращения рабочего колеса радиальные вентиляторы подразделяются на :
— правого вращения — рабочее колесо которого вращается по часовой стрелке при виде со стороны всасывания
— левого вращения — рабочее колесо которого вращается против часовой стрелки при виде со стороны всасывания
В свою очередь, вентиляторы правого и левого вращения изготавливаются с определенными углами разворота корпуса, которые измеряются в градусах :

Таким образом, в наименовании радиальных вентиляторов всегда должна присутствовать информация о направлении вращении колеса и угле разворота корпуса, например :
Вентилятор ВЦ 14-46 №6,3 схема 1 (15кВт*1000об/мин) Пр90 — вентилятор правого вращения, угол разворота 90 градусов
Вентилятор ВР 132-30 №8 схема 5 (15кВт*1500об/мин, Nр.к.=1450об/мин) Лев270 — вентилятор левого вращения, угол разворота 270 градусов
Хотим отметить, что варианты вращения и разворота не влияют ни на стоимость радиальных вентиляторов, ни на их аэродинамические характеристики. При изменении вращений и углов разворота меняются только габаритные размеры вентилятора и пространственное положение нагнетающего патрубка, что облегчает монтаж и упрощает подключение вентиляторов к системам воздуховодов.
Возможно, вам будет интересна информация по другим вентиляторам :
Улитка своими руками
Для бытового использования можно сделать вентиляцию своими руками. Конечно, такая конструкция будет отличаться от промышленной установки, но поможет значительно сэкономить деньги на покупке вентиляции. Стоит отметить, что качественная улитка средней мощности в специализированных магазинах стоит в районе 20 тыс. руб., а потому для многих остается актуальным вопрос, как сделать вентиляцию своими руками
.
Конструкция корпуса самодельной улитки чаще всего включает в себя две части – зону для размещения двигателя и зону с продувными лопастями. Большинство запчастей придется приобретать в специализированных магазинах, но эти затраты будут значительно ниже, чем если покупать готовую вентиляцию. Итак, вам понадобятся:
- Корпус. Его можно купить в строительном магазине. Лучше отдать предпочтение металлическому изделию.
- Двигатель. Продается на рынках и в магазинах электротоваров.
- Рабочее колесо. Можно купить в магазинах запасных частей для электроприборов.
- Вентилятор. Продается в любом магазине бытовой вентиляционной техники.
Создание вентиляционного блока своими руками начинается с расчетов. Чтобы использование вентиляции улитка было эффективным нужно правильно рассчитать мощность и размер двигателя
При монтаже устройства особое внимание нужно уделить надежности креплений вентилятора и рабочего колеса. При сильных потоках воздуха эти составляющие могут разболтаться и соскочить, что неизменно приведет к порче вентиляции
Все детали, в том числе и корпус должны быть выполнены из огнеупорных материалов.
Схема вентиляционной «улитки»
Следует отметить, что самостоятельная сборка такой вытяжки может осуществляться только при наличии определенных знаний. Если вы не уверены, что собранный своими руками прибор является полностью безопасным, лучше посоветоваться с профессионалом, который сможет оценить правильность вашей сборки. Если же навыков сборки электрических конструкций у вас нет, лучше купить готовый прибор.
Одним из важнейших элементов производственного процесса является обеспечение комфортных условий труда. Состояние и состав воздушных масс в любой отрасли промышленности часто требует корректировки из-за пыли, выделения паров и газов, чрезмерной влажности, повышенной температуры или токсичных примесей. В зависимости от особенностей технологического процесса эти факторы влияют не только на здоровье работников, но и на герметичность оборудования.
Приемлемый температурный режим, комфортная влажность и удаление загрязненных примесями отработанных воздушных масс обеспечиваются системой вытяжной вентиляции. Не стоит ее путать с приточной, которая призвана нагнетать свежий воздух в помещения, хотя обе они осуществляют свои функции при помощи специальной техники – вентиляторов или эжекторов.
Широкое применение в промышленности получила вытяжная система с использованием радиальных или центробежных вентиляторов.





































