Поломки и неисправности
Как и любой другой прибор, наружный блок кондиционера может сломаться. При низких температурах зимой применение кондиционера без зимнего комплекта может привести к поломке компрессора. Внешний блок под воздействием внешних природных факторов сильно охлаждается и обмерзает. В таких условиях во внешнем блоке не может закипеть фреон. Жидкий хладагент попадает в компрессор, что и приводит к его поломке.
Чтобы избежать поломок компрессора от обмерзания внешнего блока, следует устанавливать зимний комплект или применять прибор в соответствии с техническими указаниями: обогревать помещение только осенью и весной при положительных температурах на улице.
Ещё один возможный вид механических поломок — выход из строя вентилятора, который нагнетает воздух в агрегат. Причиной преждевременного износа вентилятора может стать попадание внутрь блока грязи и пыли.
Неисправности в электронике связаны с выходом из строя плат управления и регулирования работы. Могут возникнуть проблемы с целостностью электрических сетей.
Габариты
Частные лица – владельцы квартир и дач, к примеру, не гонятся за многокиловаттной мощностью. Если не создавать «осенний холод» в помещении от 17 градусов, то температура в 21-24 градуса летом считается относительно нормальной для большинства людей. В расчёт берётся мощность кондиционера до 2,7 кВт. Тогда средняя высота внешнего блока составит всего полметра. Ширина блока – до 0,7 м, глубина – до 0,4 с учётом выноса устройства на подвесах при отступе от стены до 10 см. Габариты внешнего блока кондиционера с потреблением от 3,5 кВт могут достигать 55×76,5×28,5 см, однако, каждый производитель изменяет эти показатели в меньшую сторону. Вес наружного блока в сборе – 12-25 кг.
Самый маленький кондиционер – Ballu BSWI-09HN1. Модель не лишена основных блоков и узлов, необходимых для качественного охлаждения воздуха внутри дома. Она подойдёт для комнаты размером до 16 м2, потребляет всего 900 Вт при работающем компрессоре, поддерживает летом в жару температуру в 21-23 градуса, даже если за окном 35 градусов. Размеры внешнего блока – 70*28,5*18,8 см. Агрегат компактный, весит немногим больше пылесоса. Сплит-систему меньше и легче вы вряд ли найдёте. Производить внешние блоки сплит-системы размером меньше почтовой посылки смысла нет. Микрокондиционирование воздуха – уже удел самодельщиков-экспериментаторов, хотя технологии отработаны.
Какой мощности достаточно
В характеристиках кондиционера обычно указывается показатель BTU — британская тепловая единица. 1000 BTU — это примерно 0,3 кВт. Цифры после BTU (5, 7, 9, 12 и другие) обозначают, какой объем воздуха способно охладить климатическое оборудование. Если умножить этот показатель на три, можно понять, в помещении с какой площадью рекомендуется ставить данный кондиционер.
Чтобы расчеты были более точными, к площади комнаты стоит прибавить еще 20%, если:
- она находится на солнечной стороне,
- в помещении много компьютерной техники,
- есть окна во всю стену, которые пропускают много солнечного света,
- квартира многокомнатная и заодно будет охлаждаться коридор.
Кроме того, при расчетах производители ориентируются на высоту потолков 2,5 м. Если они выше, полученную площадь нужно умножить на коэффициент (высота потолков делится на 2,5).
К примеру, для комнаты площадью 12 м2, расположенной на солнечной стороне в двухкомнатной квартире, нужно «накинуть» еще 40%, то есть подбирать мощность под площадь 17 м2. Если высота потолков при этом составляет 3 метра, то умножаем эту цифру на коэффициент (3/2,5=1,2) и получаем 20,4 м2.
Почему важно произвести расчет перед покупкой кондиционера и нельзя купить, например, максимально мощную модель, чтобы она за пару секунд охладила всю комнату? Слишком производительные устройства могут запускать много кратковременных циклов, чтобы достичь заданной температуры. Как результат — чрезмерное энергопотребление и быстрый износ механизмов
А если мощности, наоборот, недостаточно, то кондиционеру придется чаще работать на пределе своих сил, что может в конечном итоге пересушить воздух и тоже спровоцировать быстрый износ системы.
Где установить?
Если вы живёте (или работаете) на первом этаже, то высота установки от земли – не менее 2 м. Это поможет избежать повреждения либо кражи блока. Внешний блок обязательно устанавливайте в сварной арматурной клетке с толстыми (от 1,5 см) прутьями. Сама клетка должна запираться на массивный замок с противовзломным механизмом. Её дверца должна обладать усиленными петлями. На втором и последующих этажах запирать блок «за решётку» необязательно.
На последнем этаже, чтобы не вызывать альпинистов или автокран (и те и другие берут почасовую оплату за работу), некоторые фирмы ставят внешние блоки на краю крыши. Предельная длина «трассы» (каждой из труб) для хладагента – 20 м. Больший перепад высоты между наружным и внутренним блоком существенно изнашивает компрессор. Тот тратит дополнительную энергию на преодоление силы тяжести, действующей на высоту столба сжиженного фреона.
В итоге получаемый летом холод (или тепло зимой) окажется недостаточным, не соответствующим заявленному производителем значению. Либо кондиционер после запуска сразу выдаст сигнал аварии. Лучший выход – расположение внешнего и внутреннего блока на одной высоте. В частном доме внешний блок часто ставят на фасаде строения. Это относится к кондиционерам любых разновидностей, включая и настенный внутренний блок.
Рекомендации по подведению шнура питания
Несколько советов:
- Кабель лучше выводить так, чтобы он проходил под внутренним модулем как минимум на 30 см левее и на 10 см ниже центрального блока.
- Большинство современных кондиционеров инверторного типа использует систему питания, вмонтированную непосредственно к внешнему блоку.
- В случае невозможности определиться с моделью кондиционера заранее — хорошим выходом будет провести запасной межблочный провод.
- После финального монтажа необходимо избегать сверления в местах проведения проводки.
- Недопустимо изгибать шнур питания под каким-либо углом, в противном случае риск технической неисправности будет увеличен в несколько раз по фактору перетирания контактов.
Документальное оформление установки сплит системы
По завершении монтажных работ производившая их бригада установщиков рассчитывает получить расчет и удалиться на новый объект — как бы не так, прежде вы или ваш более сведущий представитель должны заполнить все пункты таблицы по пусконаладочным работам, оформляемой в двух экземплярах, с указанием фамилий, адресов, контактных телефонов и, при необходимости, паспортных данных. Обязательно убедитесь, что заносимые в таблицу сведения соответствуют реальной ситуации, проверьте каждый подпункт. Учтите, что простейший способ проверки установки сплита — с помощью ладони, подставленной под поток воздуха, идущий от фена сплита и устного заключения «холодит» или «греет» — не годится, т.к
важно убедиться, что сплит система будет работать долгие годы вперед
Лист сдачи-приема сплит системы в эксплуатацию
В колонке «Результаты» нужно подтвердить проверяемый параметр (указан слева) галочкой или цифрой, если он поддается измерению. При расхождении параметров с данными, приведенными в колонке «Что проверяется», исполнитель должен выявить причину несоответствия и исправить ее.
Помимо описанных монтажных работ рекомендую вам оснастить внешний блок сплита защитным козырьком — мало ли что может упасть на него сверху. Следующая, завершающая часть статьи, будет посвящена вопросам эксплуатации и профилактики сплит систем.
Маленькие мобильные кондиционеры
Обычно мобильные кондиционеры маленькие априори. Однако есть и довольно большие модели с шириной более 60 см. Мы отобрали лучшие компактные мобильные кондиционеры с шириной до 50 см. В рейтинг попали только те модели, о которых положительно отзываются покупатели.
1 место – Electrolux EACM-10DR/N3 (412 долларов)
Отличный мобильный кондиционер, который обойдется покупателю в 412 долларов. Это весьма производительный мобильный блок, рассчитанный на использование в помещении с площадью 24 квадратных метра.
Его размеры следующие: 45×74.7×38.7 см, и одно из главных его преимуществ – это именно небольшие габариты. Стоит отметить, что это довольно серьезная модель. Здесь два раздельных воздушных контура, благодаря которым производительно по холоду сильно повышается. О модели положительные отзывы, поэтому мы поставили ее на первое место.
2 место – Electrolux EACM-12EZ/N3 (447 долларов)
Мобильный блок с производительностью 8.167 м3/мин и мощностью 3500 Вт в режиме охлаждения. По сравнению с предыдущей моделью это более компактный кондиционер с размерами 43.6×74.5×39 см.
Это прекрасная модель с хорошим качеством сборки, пластиком и высокой производительностью. Стоит, впрочем, отметить: некоторые покупатели жалуются на шум и отсутствие возможности регулировать поток воздуха – это его недостатки. Пожалуй, единственные.
3 место – Electrolux EACM-12EW/TOP/N3_W (342 доллара)
Мобильный моноблок стоимостью 342 доллара и следующими размерами: 43.6×79.7×39 см. Его производительность ниже по сравнению с предыдущими и составляет 4.83 м3/мин. Пожалуй, именно поэтому стоимость модели ниже. Тем не менее, кондиционер обеспечит комфортный микроклимат в помещении площадью до 25 квадратных метров.
Качественная сборка и хорошие материалы, низкий шум при работе и полная комплектация – вот его преимущества. Пожалуй, самым компактным эту модель не назовешь, однако она все равно заслуживает внимания как небольшой мобильный кондиционер для дома.
4 место – Zanussi ZACM-09 MP/N1 (370 долларов)
Производитель Zanussi в плане разработки мобильных кондиционеров не отстает и предлагает нам модель Zanussi ZACM-09 MP/N1 стоимостью 370 долларов. Производительность этой модели небольшая (5.4 м3/мин), однако ее вполне достаточно для создания прохлады в помещении площадью 25 квадратных метров.
Размеры следующие: 35x70x32.8 см. Сам же кондиционер собирает положительные отзывы, что не удивляет. Это качественный и надежный девайс от японского производителя, который уже давным-давно зарекомендовал себя с хорошей стороны.
5 место – Zanussi ZACM-07 MP/N1 (335 долларов)
Единственное отличие этой модели от предыдущей – производительность. Этот мобильный кондиционер создает воздушный поток мощностью 4.9 м3/мин и предназначается для использования в помещении площадью 20 квадратных метров. В остальном, отличий нет. Это компактный и хороший мобильный блок, который будет служить долгие годы.
Сегодня для поддержания благоприятного микроклимата в помещениях популярностью пользуются сплит системы. Они состоят из двух частей: внешнего и внутреннего блока. Наружный блок кондиционера имеет ключевое значение для качественной работы оборудования. Разберёмся в его устройстве, принципах работы и особенностях монтажа и обслуживания.
Роль внутреннего блока кондиционера
В общих чертах суть работы внутреннего блока можно описать следующим образом.
Вентилятор устройства забирает теплый воздух из помещения и подает его в холодный змеевик, через который проходит фреон. Хладагент забирает тепло из воздушной смеси и под воздействием этого тепла начинает менять свои свойства — происходит процесс испарения.
Газообразный хладагент поступает в компрессор, где он сжимается, нагревается до 70-90°C и направляется в конденсатор. Здесь газ охлаждается потоком воздуха и переходит в жидкое состояние, выделяя тепловую энергию. Жидкий хладагент проходит через термостатический расширительный клапан, охлаждается и возвращается в испаритель. Цикл повторяется.
При работе в режиме нагрева происходит обратный процесс. Эти два блока условно чередуются, поэтому теплый воздух поступает в помещение из внутреннего блока.
Протяженность фреоновой магистрали
Пользователи климатической техники часто ведут споры о расстоянии от внешнего блока кондиционера до внутреннего, а затем экспериментируют с установкой. Их можно понять – иногда особенности интерьера или расположения комнат требуют увеличения длины трубопровода.
Но профессиональные монтажники точно знают, что самовольно увеличивать или уменьшать длину трубопровода нельзя. И действительно, отступление от требуемых параметров тут же сказывается на производительности кондиционера.
Выясним, какими должны быть нормы установки и почему нельзя их менять.
Нормы расстояния между блоками
Монтажные нормативы устанавливает производитель. Если вы возьмете инструкцию, то в разделе по установке найдете схемы и рабочие параметры, на которые нужно ориентироваться при монтаже.
Как правило, указывают максимальную длину магистрали, о минимальной ничего не говорится. Но в комплекте с блоками вы найдете медные трубки для их соединения – их ни в коем случае нельзя укорачивать.
Длина трубопровода зависит от модели.
Для бытовых сплит-систем с внутренним настенным блоком действуют следующие нормы:
- максимальное расстояние между блоками – 15 м или 20 м (реже – 10 м);
- минимальное расстояние между блоками – 3, 4, 5 м (по длине трубы в комплекте).
Точные данные указаны в технических документах к конкретной модели.
По параметрам, указанным в таблице, понятно, что при удлинении трассы требуется дополнительное заполнение контура фреоном.
Если сплит-система укомплектована 5-метровой трубой, укорачивать ее нельзя. Что делать, если расстояние между блоками всего 3 м, а трубка – 5 м? Нужно просто аккуратно смотать ее крупными кольцами, без сломов и перекручиваний, и оставшиеся 2 м спрятать в одном из блоков.
Слишком короткий трубопровод
Если производителями не указана минимальная длина фреоновой магистрали ни в одном из доступных источников (бумажной или электронной инструкции, видеоролике), ориентируйтесь на общепринятое значение – 3 м. Короче трассу делать нельзя.
Если вспомним, как происходит процесс перехода хладагента из одного состояния в другое, то поймем, что короткой трубы просто не хватит для полного преобразования вещества. Фреон, не успевший превратиться в газ в испарителе, в виде жидкости поступит в компрессор, чего допускать нельзя.
Последствия установки слишком короткого трубопровода бывают различными:
- поломка деталей кондиционера;
- переход вибраций от наружного модуля к настенному;
- нехарактерные для кондиционера шумы – бульканье фреона в трубопроводе.
Перечисленные неприятности можно устранить только увеличением длины трубопровода. Как видите, небольшой монтажный нюанс оказался очень важным.
Расстояние больше стандартного
Как вам уже известно, максимальная длина фреоновой магистрали ограничена 20 метрами. Это значение актуально для домашних моделей со средней производительностью 2,5-3 кВт. Но для полупромышленных агрегатов от 8-9 кВт используются другие границы – длина трубопровода увеличивается до 50 м.
Можно сделать вывод, что параметры расстояния между блоками сплит-систем напрямую связаны с такой технической характеристикой, как производительность.
Самое опасное, что может произойти при слишком длинном трубопроводе – снижение давления. Причем негативные последствия ожидают оба участка – газовый и жидкостный.
Если падает давление газа перед поступлением его в компрессор, то на выходе оно также становится более низким. В результате снижаются параметры температуры, происходит обмерзание.
Специальной функции подогрева магистрали не предусмотрено, поэтому компрессор из-за нагрузки перегревается и ломается. Особенности диагностики компрессора и способ его ремонта вы рассмотрели в статье: Как проложить трассу кондиционера: специфика устройства коммуникаций
Снижение давления на участке трубопровода с жидким фреоном приводит к тому, что растет доля газа. Большое содержание газа увеличивает скорость движения хладагента, что приводит к еще большему падению давления. В таких условиях нормальное функционирование кондиционера просто невозможно.
Но есть один выход: чтобы снизить потери давления в магистрали, увеличивают диаметр медной трубы. Для этого используют формулу:
Профессиональные монтажники советуют увеличивать длину фреоновой магистрали только на горизонтальных участках.
Чтобы не обращаться к сложным вычислениям, рекомендуют увеличить диаметр трубы для газа (она чуть толще) на 1 размер: то есть 3/8 заменить на 1/2, 1/2- на 5/8 и т.д.
И обычный монтаж кондиционера, и замену труб не рекомендуем выполнять самостоятельно. Опытные специалисты лучше знают, как поступить в сложных случаях и избежать возникновения неполадок.
Кондиционеры 9 модели (до 25 м2): обзор моделей
Люди, которые хотят приобрести кондиционер, часто делают это впервые, а потому не знают, от чего отталкиваться, выбирая климатическую технику . Между тем, чёткий ответ на этот вопрос необходим, ведь стоит подобное оборудование немалые деньги, и совершить ошибку при его приобретении не хочет никто.
Некоторые покупатели основываются на сравнении характеристик — где они выше, то оборудование и лучше. Такой подход может быть уместен при выборе, например, флеш-карты, где объём имеет значение. Но в случае кондиционеров всё намного сложнее, и часто те или иные высокие характеристики не гарантируют желаемую прохладу в вашем помещении
«На что же тогда обращать внимание?», — спросит уже потерявший всякие надежды читатель. Например, на то, что перед вами — кондиционер 9, 12 или 24 модели. Конечно, пока эти цифры ни о чём не говорят, но данная статья приоткроет завесу тайны
Конечно, пока эти цифры ни о чём не говорят, но данная статья приоткроет завесу тайны.
Дренажный слив
Операция по укладке сливной трубки дренажа может быть выполнена как до начала работ по построению холодильного контура (сразу после установки внутреннего блока), так и после них. Для создания дренажа подходит только особая пластиковая трубка с армированием — легко гнется, в согнутом положении просвет внутри нее не уменьшается, внутренние стенки гарантировано не содержат раковин и шероховатостей, т.е. полностью гладкие.
В попытках упростить задачу или немного удешевить установку, монтажники могут использовать пластиковый шланг без армирования или резиновую трубку — оба варианта не подходят, поскольку просвет в месте сгиба уменьшается, а на шероховатых внутренних стенках поселятся различные микроорганизмы, привлеченные влажной атмосферой. В итоге некачественный дренажный шланг будет забиваться и из внутреннего блока сплит системы потечет вода, при приближении к фену домочадцы почувствуют неприятные запахи.
Слив из дренажной трубки наиболее правильным будет выводить в канализацию, причин этому две:
- в благоустроенных жилых районах вывод слива на улицу воспримут в штыки как соседи, как и ТСЖ;
- с падением температуры на улице ниже 0 °С пропускной канал сливной трубки уменьшится в размере из-за промерзания, конденсированная вода будет сочиться из блока-фена на стену и пол комнаты.
Выбор места для установки блока
Обычно при выборе оптимальной точки для монтажа кондиционеров снаружи пользователи сталкиваются с проблемами совмещения удобства эксплуатации и защиты модуля. Например, расположение блока на высоте является наилучшим вариантом с точки зрения его безопасности, но в таком случае усложняется и доступ к кондиционеру с целью ухода. Неплохим решением может стать размещение модуля на стене возле оконного проема или лоджии. При этом надо учитывать и другие нюансы, среди которых отсутствие прямых лучей солнца и разрешение на установку со стороны соседей, поскольку шумный агрегат может доставить неудобства людям, проживающим на этом же уровне здания.
Кроме того, вырабатывает конденсат, который будет каплями стекать вниз. Соответственно, придется договариваться и с соседями на нижних этажах. В случае удачного согласования места установки блока с другими жильцами можно приступать к непосредственным монтажным операциям. Кстати, еще одним условием для инсталляции наружного блока является возможность прокладки коммуникаций в стене.
Зачем нужно знать размеры кондиционера
Для людей, заботящихся о своем здоровье и благополучии, не имеет значения, сколько электроэнергии потребляет кондиционер.
Чтобы система работала эффективно и поддерживала температуру на нужном уровне, важно выбирать систему кондиционирования с учетом ее размера и мощности. Размер кондиционера для небольших помещений имеет особое значение
Такие системы в небольших помещениях будут выглядеть громоздко и портить внешний вид. Кроме того, при их установке могут возникнуть серьезные трудности: купленный прибор может не поместиться в отведенное для него место
Размер кондиционера для небольших помещений имеет особое значение. Такие системы в небольших помещениях будут выглядеть громоздко и портить внешний вид. Кроме того, при их установке могут возникнуть серьезные трудности: купленный прибор может не поместиться в отведенное для него место.
Важно правильно расположить кондиционер. Необходимо соблюдать рекомендованное производителем расстояние от потолка
Как правило, этот показатель составляет от 60 до 150 мм. Оптимальное расстояние от перпендикулярной стены до системы составляет 400 мм.
Если игнорировать эти требования, производительность оборудования будет низкой.
В последнее время появляются новые подходы к размещению кондиционеров. Теперь доступны внутренние блоки в вертикальной сплит-системе. Такие агрегаты оснащены боковым выходом для охлажденного воздуха.
Важно выбрать форму и размер кондиционера так, чтобы он идеально вписался в предназначенное для него место и органично смотрелся в интерьере помещения. Кроме того, устройство не должно быть слишком шумным
Примеры размеров кондиционеров от разных производителей
Рассмотрим средние габариты бытовых устройств на примере нескольких производителей:
Gree
Средние показатели компактных, бытовых кондиционеров по критериям ширина/высота/глубина от этого производителя составляют 65x25x18 сантиметров для внутреннего модуля и 70x40x31 см для наружного блока.
Mitsubishi
Усреднённые показатели 75x25x21 см для внутреннего и 65x55x27 см для внешнего блока.
Ballu
Ballu производит кондиционеры средней мощности для эксплуатации в бытовых и промышленных масштабах. Усреднённые габариты внутренних и внешних модулей сводятся к показаниям 60x25x17 и 65x35x20 см соответственно с незначительным разбросом.
Supra
Supra известна производством компактных, но мощных кондиционеров, средние значения которых составляют 62x25x18 см.
Для чего нужен наружный блок кондиционера
Внешний блок кондиционера – это одна из составляющих частей современной сплит-системы. В нем размещен компрессорно-конденсаторный блок системы кондиционирования. Этот элемент климатического оборудования предназначен для охлаждения или нагревания помещения с помощью хладагента.
Внутри блока стоят:
- компрессор;
- четырехходовой клапан;
- теплообменник;
- капиллярные трубки;
- катушки расширения;
- ресивер;
- вентилятор.
Для поддержания работоспособности агрегата зимой иногда устанавливают специальный «зимний комплект».
Устройство наружного модуля
Если все уже надоело и не знаете во что, еще поиграть, то можно попробовать скачать игровые автоматы 1xBet и насладиться новыми впечатлениями с популярной БК.
Это ящик прямоугольной конфигурации, внутри которого установлены следующие элементы:
- Вентилятор нужен для обдува конденсатора. Благодаря оному воздушные массы активно перемещаются во внешнем блоке.
- Конденсатор – это специальное устройство, предназначенное для охлаждения фреона с целью его последующей конденсации.
- Компрессор сжимает хладагент для его циркуляции по фреоновой магистрали во внутренний блок.
- Четырехходовой клапан установлен в кондиционерах, которые могут работать не только на обогрев помещения, но и на его охлаждение. Он нужен для смены направления движения хладагента при разных режимах работы климатического оборудования.
- Плата управления стоит во внешних модулях агрегатов инверторного типа. Такие приборы имеют плавную регулировку скорости вращения лопастей вентилятора и более устойчивы к перепаду температур и атмосферным воздействиям.
- Штуцерные крепления нужны для подключения медных трубопроводов, которые соединяют два блока и предназначены для циркуляции теплоносителя.
- Защитная решетка предохраняет внешний модуль от попадания различных насекомых, всевозможных загрязняющих частиц и предметов, которые могут застопорить лопасти вентилятора.
- Для отведения конденсирующейся влаги установлена дренажная трубка.
В блоке стоит стабилизатор напряжения, который защищает от пиковых нагрузок и нормализует параметры тока. Некоторые модели укомплектовывают специальными кожухами, которые оберегают блок от негативного воздействия снега, ветра и обмерзания. Для защиты от падающего льда, сосулек и частей фасадной отделки над наружным модулем устанавливают козырек.
Параметры и принцип работы наружного блока
Принцип работы любого климатического оборудования основан на перемещении тепловой энергии из одной среды в другую. Если агрегат работает на охлаждение, то он переносит тепло из помещения за его пределы. При обогреве воздуха в доме или квартире прибор выполняет обратное действие, то есть забирает тепло у внешней среды и передает его комнатному воздуху.
Когда фреон испаряется во внутреннем блоке, он поглощает тепло воздуха в комнате. А после попадания в наружный блок конденсируется там. В обратном направлении из внешнего блока во внутренний модуль идет жидкий фреон, который снова охлажден за счет того, что отдал тепловую энергию внешней среде. Комнатный воздух опять проходит через кондиционер и охлаждается, отдавая тепло.
Принцип работы наружного модуля следующий:
- из специальной емкости в компрессор попадает газообразный фреон;
- здесь под высоким давлением он поступает в конденсатор, где переходит в жидкое состояние и отдает тепло;
- после потери части тепловой энергии хладагент идет в фреоновую магистраль;
- из нее фреон переходит в дросселирующее устройство (здесь давление падает и вещество остывает);
- охлажденная жидкая среда попадает в трубки испарителя, где начинает активно циркулировать;
- через испаритель также проходят потоки теплого воздуха из помещения, они отдают тепло фреону и охлаждаются;
- охлажденные воздушные массы кондиционер подает в помещение;
- во время получения тепла от комнатного воздуха хладагент в теплообменнике внутреннего блока переходит в газообразное состояние;
- из теплообменника хладагент в газообразном состоянии идет обратно в компрессор, процесс снова повторяется.
Важные параметры внешних блоков, которые нужно учитывать при выборе климатического оборудования, – это мощность агрегата, уровень шума, издаваемый техникой во время работы, протяженность магистрали и габариты. Размеры внешнего блока напрямую связаны с его мощностью. Средние параметры находятся в пределах 80х80х30 см.
Мощности стандартного бытового кондиционера достаточно для охлаждения площади 100 м². Допустимый уровень шума не должен превышать 32 дБ, чтобы не вызывать дискомфорт у жильцов квартиры и соседей.
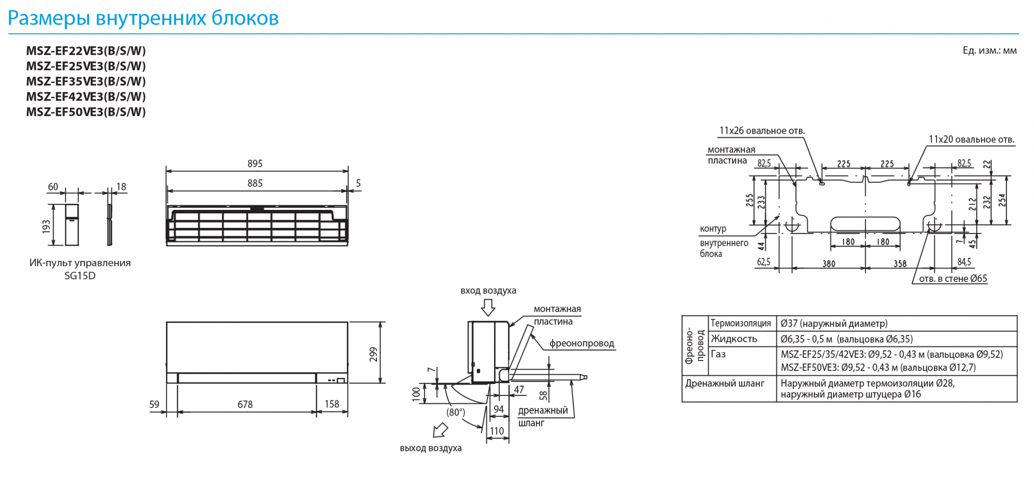
Конструкция внутреннего модуля кондиционера и его особенности
Рассмотрим подробно устройство внутреннего блока кондиционера, который относится к сложным техническим устройствам. Состав комнатного модуля включает:
- корпус, в котором смонтированы все узлы;
- передняя пластиковая съемная решетка для доступа воздуха;
- испаритель, являющийся радиатором в котором осуществляется испарение фреона при его нагреве и через который происходит теплообмен;
- пластиковую сетку фильтра грубой очистки, отсекающего крупные примеси воздуха и нуждающуюся в очистке не реже чем раз за две недели;
- панель индикации со светодиодами, сигнализирующими о работе устройства, расположенная в передней части блока;
- жалюзи горизонтальные с приводом электрическим, которые определяют направление потока воздуха в вертикальном направлении;
- вентилятор со ступенчатой или плавной регулировкой скорости;
- фильтр, осуществляющий тонкую очистку воздушного потока;
- жалюзи вертикальные, регулирующие поток воздуха в горизонтальном направлении;
- электронная плата управления;
- панель штуцеров подсоединения медных трубок, связывающих внутренний и внешний модули;
- поддон сбора конденсата, образующегося на холодной поверхности испарителя;
- пульт ДУ в большинстве современных моделей.
Для многих моделей конструкция внутреннего блока кондиционера включает дополнительные возможности, прежде всего в плане электроники с различными функциями.

- управления со смартфона;
- самодиагностика;
- наличие автоматических режимов;
- жидкокристаллический информативный дисплей.
Наиболее распространенные настенные модели обычно выпускаются со стандартными, уменьшенными и крупногабаритными размерами. При этом размеры связаны с уровнем мощности и показателем максимальной площади, на которой осуществляется контроль климата.
Для внутренних бытовых блоков настенного монтажа типичный диапазон конструкционных параметров находится в пределах:
- ширина 0,7…1,2 м;
- высота 0,24…0,32 м;
- глубина 0,18…0,3 м.
Серия от компании Gree кондиционеры с маленьким внутренним блоком глубиной 0,18 м обладают расширенными возможностями по монтажу в небольших помещениях. Есть компактные модели и у других производителей.





































