Печь на солярке для гаража
Печь капельница актуальна для подвалов, маленьких помещений, дачного домика, гаража, теплицы, где отсутствует отопление и электричество.
Построить печь своими руками – достаточно доступное и не затратное занятие. О том, как сделать печь капельницу на солярке самостоятельно, пойдёт речь в нашей статье.
Отличительные особенности
У печки, собранной своими руками, имеется ряд преимуществ:
- она экономит топливо;
- по желанию можно сконструировать печь любого размера, которая будет наиболее подходящим вариантом для данного помещения;
- легко транспортируется;
- простота в использовании;
- печь капельницу можно использовать для приготовления еды. Для этого при конструировании печки трубу размещают сбоку.

Схема печи капельницы на солярке. Это очень экономичная конструкция. В печной камере происходит полное сгорание соединений
При изготовлении печи капельницы своими руками, нужно соблюдать технику пожарной безопасности:
- аппарат должен располагаться в помещении без сквозняков;
- легковоспламеняющиеся предметы должны отсутствовать вблизи печки, желательно наличие свободного пространства рядом с ней (около полуметра);
- нельзя применять воду для тушения или охлаждения печки.
Материалы, которые понадобятся для строительства печи:
Основные инструменты, которые пригодятся для работы – это сварочный аппарат, дрель и струбцина.

Популярный аппарат, сделанный своими руками – это капельная печка из газового баллона
Принцип работы устройства
В нижнем резервуаре топливо закипает спустя пять минут работы. Пары масла поступают в следующий отсек, который называется горелка. Там, для лучшего сгорания, пар обогащается кислородом.

Принцип капельной подачи отработки в чашу (для увеличения нажмите на картинку)
Затем, продукты сгорания поступают в верхний отсек, а оттуда в дымоход. Наиболее высокая температура в верхнем модуле капельной печи.
Самостоятельное изготовление
Для этого понадобится бак не менее объемом 2 л. Дыма и сажи не будет во время эксплуатации печки. В процессе розжига печки – будет, поэтому этот процесс рекомендуют проводить на улице.

В фитильную чашку поступает солярка из топливного бака. С помощью дозатора можно регулировать количество поступающего топлива. В чашке сгорания топливо нагревается до образования газообразной смеси, которая далее поступает в камеру сгорания. Спираль, которая находится вверху камеры, нагревается до температуры 800 °С. Дым улетучивается через дымоход.
Можно самостоятельно смастерить аппарат массой шесть килограмм. Солярка является топливом с достаточно высокой плотностью, поэтому ее расходование минимально. В целом, такая печь – это эффективная и легко транспортируемая конструкция.
Печка капельница на отработанном масле
Одним из видов дешевого топлива является отработанное масло. Печка может нагреться до 800-900 °С. На выходном отверстии температура будет 90 °С.
Залить порцию масла и добавить 50-100 г вещества для разжигания (спецжидкость, печное топливо, керосин или дизельное топливо). Это нужно для быстрого розжига печи. Подождать пока процесс горения стабилизируется. Затем можно залить следующую порцию.
Если есть пролитое масло, его нужно сразу же удалить. Горение происходит внутри трубы. Это безопасный процесс. Расход топлива от 0,5 до 1,5 литра в час. Когда печка разгорится, можно подогревать воду.

Печка капельница на отработанном масле
Рекомендованные к использованию: соляровое масло, мазут, отработанное масло, печное топливо. Нельзя применять – бензин, ацетон или другие растворители. Следует избегать попадания воды в топливо.
В специальной литературе есть большое количество подробных инструкций о том, как сделать печь капельницу своими руками. Каждая из таких конструкций уникальна, имеет свои преимущества и недостатки. Можно воспользоваться и магазинным вариантом печки, но доработать его по своему усмотрению.
Виды калориферных печей
Калорифер, или калориферная печь — это устройство, предназначенное для обогрева помещения большого объема одним источником тепла. Воздух, нагретый печью, по специально устроенным каналам распределяется по помещению, обогревая его.
Печи бывают на твердом или жидком топливе. Некоторые умельцы своими руками изготовляют комбинированные печи с использованием твердого и жидкого топлива.
Принцип действия таких котлов основан на пиролизе органического топлива. В процессе горения топлива при недостатке кислорода (тление) образуются горючие газы, которые догорают в отдельной камере. Именно этот процесс позволяет увеличить КПД печи до 85-90%. Другое название таких печей — газогенераторные.
Воздухонагреватель, установленный на стенках калориферной печи и разделенный металлическими направляющими на каналы, обеспечивает конвекцию. Воздух, перемещаясь внутри направляющих каналов, нагревается, тем самым охлаждая поверхность стенок, не допуская их перегрева.
Калорифер на дровах

Ярким представителем таких устройств является печь-калорифер «Чудо» (КН-50) на фото ниже. Это цельнометаллическая сварная конструкция горизонтального типа. Сечение корпуса представляет собой 2 трапеции, соединенные основаниями. На бока печи приварены воздухонагреватели, одновременно являющиеся защитными экранами. Верх печи плоский и уже днища. На нем установлен патрубок дымовой трубы с вмонтированным регулятором-газификатором, выполненным в виде заслонки, с рычажным ручным управлением. Печь установлена на ножки, что обеспечивает необходимо допустимый зазор в 150 мм. Дымовая труба изготавливается своими руками из трубы диаметром 110 мм.

Топочная полость разделена горизонтальной перегородкой. На передней стенке установлена круглая дверца с замком. Там же смонтирован регулятор мощности с заслонкой. Печь не имеет колосниковой решетки и поддувала в отличии от конвекционной печи булерьян Бренеран что на первой картинке. Подача и регулирование объема подаваемого воздуха проводится регулятором мощности. Топливом являются сухие крупноколотые дрова, отходы обработки древесины, торф. В редких случаях используется бурый уголь.
Общие принципы работы печи для гаража или дачи на отработке
Суть процесса проста: поскольку само по себе масло не столько горит, сколько чадит, его нужно нагреть до температуры кипения и поджечь выделяющиеся пары. Соответственно, нужна емкость для подогрева масла, точки подачи воздуха и камера дожигания. Ну и, разумеется, дымоход.
На схеме ниже показан принцип устройства самой простой печи с квадратным топливным баком.
Итак:
- в топливный бак, он же топка, заливают отработку примерно на ½…2/3 объема. Больше нельзя – либо в процессе закипания масло выплеснется, либо просто не образуется достаточного количества горючих паров;
- после того, как топливо немного отстоится в баке и даст определенное количество испарений, поджигают содержимое. Это делают с помощью «факела» – горящей лучины, ветоши (лучше тоже промасленной), бумаги. Далее отверстие для заливки закрывают и не открывают больше до момента догорания топлива;
- при нагреве масло начинает выдавать все больше и больше паров, они поднимаются в зону дожига, смешиваясь по пути с вторичным воздухом. Поскольку нагретые пары гораздо выше по температуре, чем окружающий трубу воздух, кислород втягивается в отверстия очень активно, способствуя повышению температуры горения. Тягу можно регулировать с помощью заслонок, тем самым увеличивая или уменьшая интенсивность горения паров;
- нагрев окружающего помещения происходит благодаря теплообмену между раскаленной камерой топки, трубы, камеры дожига и воздухом. Чтобы устройство дольше отдавало тепло, ставят заслонку между камерой дожига и дымоходом, уменьшая скорость удаления нагретых и горящих паров.
Для равномерности процесса камеру дожига и топку делают примерно одинакового размера (объема).
Если печь выполнена правильно, пламя имеет бело-голубой цвет. Соответственно, температура горения составляет 1000 градусов Цельсия и выше. Если пламя имеет золотисто-оранжевые, красноватые тона, температура горения явно недостаточна – слабая тяга, малый нагрев отработки, проблемы конструкции в целом. При бело-голубом пламени образующаяся в процессе горения сажа частично сгорает, не доходя до дымохода, что заметно уменьшает необходимую частоту чистки дымовых каналов.
Вне зависимости от того, насколько правильно сконструирована и выполнена конструкция, сажа и копоть в ней будут образовываться обязательно, а на дне емкости для топлива будет скапливаться негорючий осадок. Поэтому необходимо делать печь по максимуму разборной – это заметно облегчит ее чистку.
Особенности устройства дымохода
Длина дымохода в данных печах принимается не менее 4 м. Это необходимо и для создания должной тяги, и для качественного удаления отходов горения
Важно также устройство качественной вентиляции в отапливаемом помещении, поскольку часть продуктов сгорания так или иначе оказываются не в дымоходе, а внутри комнаты
Диаметр дымовой трубы принимается не менее 100 мм, причем наличие колен, поворотов, сложной формы крайне нежелательно – чистка дымохода необходима гораздо чаще, чем у обычных печей, поскольку топливо дает большое количество сажи.
Оптимальный вариант установки буржуйки – строго под лазом в крыше, через который будет выведена дымовая труба. В этом случае вертикальное положение дымохода обеспечит стабильную тягу и легкую прочистку. Наружную часть трубы обязательно утепляют. Если этого не сделать, на внутренних стенках будет осаживаться конденсат, смешанный с недогоревшей сажей, быстро сужая проход для дыма.
Меры безопасности
Обратите внимание, что при установке дизельной печки следует учитывать правила техники безопасности и рекомендации специалистов:
- длина дымовой трубы должна составлять не менее 4 м;
- вместо дизельного топлива допускается использование отработанного масла;
- печь нуждается в периодической очистке – каждые две недели при регулярном использовании;
- для растопки требуется пропитанная соляркой ветошь или кусок газеты – ее нужно поджечь и поместить в камеру сгорания, остальное топливо воспламенится по достижении необходимой температуры;
- отапливаемое помещение нужно защитить от сквозняков, но при этом обеспечить качественное проветривание;
- токсичные продукты горения образуются только в процессе розжига – для них можно соорудить специальный отвод;
- устанавливать печь нужно на расстоянии от легковоспламеняющихся объектов, во избежание пожара;
- вокруг печи со всех сторон нужно ставить не менее 50 см свободного пространства.
Правила безопасной эксплуатации печи
Чтобы не спровоцировать пожар, необходимо выбрать место установки печи.
Следует руководствоваться такими правилами:
- Конструкцию ставят там, где нет сквозняков и подальше от легких горючих предметов, которые может случайно забросить в печь порывом ветра.
- Вокруг печки должно быть свободное пространство – 0.5 м со всех сторон.
- В идеале конструкцию следует поставить на лист асбеста, металла или другого негорючего материала.
- Топливо, фитили и т.п. нужно хранить как можно дальше от источников огня.
В гараже обязательно нужен огнетушитель, и экономить на нем опасно для жизни. Стоит купить надежную энергонезависимую автоматическую модель.
Объем огнетушителя для гаража подбирают с запасом, чтобы газа было в полтора раза больше, чем нужно для тушения пожара в помещении такой кубатуры.
На нашем сайте есть подборка статей с описанием технологий сборки разных печей для гаража, советуем ознакомиться:
- Печь на отработке для гаража своими руками: пошаговое руководство по конструированию
- Как сделать печь булерьян своими руками: пошаговый инструктаж по изготовлению
- Буржуйка из газового баллона своими руками: схемы, чертежи + пошаговое руководство
Виды самодельных печек на отработке
Машинное масло, загрязненное примесями, само не воспламеняется. Поэтому принцип работы любой масляной буржуйки основан на термическом разложении топлива – пиролизе. Проще говоря, для получения теплоты отработку нужно нагреть, испарить и сжечь в топке печи, подавая воздух с избытком. Существует 3 вида устройств, где данный принцип реализован различными способами:
- Простая и самая популярная конструкция прямого горения с дожиганием масляных паров в перфорированной трубе открытого типа (так называемая чудо-печка).
- Капельная печь на отработанном масле с закрытым дожигателем;
- Горелка Бабингтона. О том, как она работает и как ее сделать самостоятельно, подробно описывается в другой нашей публикации.
Эффективность отопительных буржуек невысока и составляет максимум 70%. Заметим, что указанные в начале статьи затраты на обогрев рассчитаны по показателям заводских теплогенераторов с КПД 85% (для ознакомления с полной картиной и сравнения масла с дровами вы можете перейти сюда). Соответственно, расход горючего в самодельных отопителях значительно выше – от 0.8 до 1.5 литра в час против 0.7 л у дизельных котлов на 100 м² площади. Учитывайте данный факт, принимаясь за изготовление печи на отработке.
Устройство и недостатки буржуйки открытого типа
Изображенная на фото пиролизная печка представляет собой цилиндрическую или квадратную емкость, на четверть заполняемую отработавшим маслом либо соляркой и снабженную воздушной заслонкой. Сверху приварена труба с отверстиями, сквозь которые за счет дымоходной тяги всасывается вторичный воздух. Еще выше стоит камера дожигания с перегородкой для отбора теплоты продуктов горения.
Принцип действия таков: топливо нужно разжечь с применением легковоспламеняющейся жидкости, после чего начнется испарение отработки и ее первичное горение, вызывающее пиролиз. Горючие газы, попадая в перфорированную трубу, вспыхивают от контакта с кислородным потоком и сжигаются окончательно. Интенсивность пламени в топливнике регулируется воздушной заслонкой.
Данная печка на отработке имеет лишь два преимущества: простота с дешевизной да независимость от электричества. В остальном – сплошные минусы:
- для работы необходима стабильная естественная тяга, без нее агрегат начинает дымить в помещение и затухать;
- вода либо антифриз, попавшие в масло, вызывают мини-взрывы в топливнике, отчего из дожигателя во все стороны брызгают огненные капли и хозяину приходится тушить пожар;
- высокий расход горючего – до 2 л/час при слабой теплоотдаче (львиная доля энергии улетает в трубу);
- неразъемный корпус тяжело чистить от сажи.
Хотя внешне буржуйки отличаются, но действуют по одному принципу, на правом фото пары топлива догорают внутри дровяной печки
Часть этих недостатков можно нивелировать с помощью удачных технических решений, о чем будет сказано далее. В процессе эксплуатации следует придерживаться правил противопожарной безопасности и подготавливать отработанное масло – отстаивать и фильтровать.
Плюсы и минусы капельницы
Кардинальное отличие этой печи заключается в следующем:
- перфорированная труба помещена внутрь стального корпуса из газового баллона или трубы;
- топливо поступает в зону сжигания в виде капель, падающих на дно чаши, размещенной под дожигателем;
- для повышения эффективности агрегат оснащается наддувом воздуха с помощью вентилятора, как показано на схеме.
Схема капельницы с нижней подачей горючего из топливного бака самотеком
Реальный недостаток капельной печки – сложность исполнения для новичка. Дело в том, что целиком полагаться на чужие чертежи и расчеты нельзя, отопитель нужно изготовить и настроить под свои условия эксплуатации и правильно организовать топливоподачу. То есть, потребуются неоднократные доработки.
Пламя накаляет корпус отопительного агрегата в одной зоне вокруг горелки
Второй негативный момент характерен для печек с наддувом. В них струя пламени постоянно бьет в одно место корпуса, отчего последний довольно быстро прогорит, если не сделать его из толстого металла или нержавейки. Зато перечисленные минусы с лихвой перекрываются достоинствами:
- Агрегат безопасен в эксплуатации, поскольку зона горения полностью закрыта железным корпусом.
- Приемлемый расход отработанного масла. На практике хорошо настроенная буржуйка с водяным контуром сжигает до 1.5 литра за 1 час для отопления 100 м² площади.
- Есть возможность обернуть корпус водяной рубашкой и переделать печь на отработке в котел.
- Топливоподача и мощность агрегата поддается регулировке.
- Нетребовательность к высоте дымохода и удобство очистки.
Котел с наддувом воздуха, сжигающий отработавшее машинное масло и солярку
Положительные и отрицательные стороны
Важная причина, обеспечивающая применение печей на отработке, когда предлагается множество различных нагревательных устройств, заключается в характере используемого топлива. Отработанные горюче-смазочные материалы доставляют много хлопот — проблемы с утилизацией, риск экологического загрязнения, повышенная опасность возгорания. Сжигание таких отходов в печи избавляет от этих проблем и обеспечивает теплом.
Выделяются также и дополнительные преимущества печей на отработке:
- конструкционная простота, дающая возможность изготовления установки в домашней мастерской своими руками из недорогих или подручных материалов;
- высокий КПД установки, обеспечивающийся практически полным сгоранием топлива с выделением большого количества тепла;
- возможность применения любой тяжелой углеводородной жидкости;
- мобильность аппарата, позволяющая его использовать в любом необорудованном помещении.
Решение об использовании рассматриваемых печей должно приниматься с учетом наличия и определенных сложностей и недостатков в их конструкции и работе
Важно понимать, что используемое топливо способно сильно загрязнять помещение при нарушении условий хранения и заливки в рабочую камеру. Для исключения этого требуется тщательный подход в обустройстве места для хранения горючего вещества
Кроме того, для устранения вредного воздействия хранящейся отработки помещение должно оборудоваться надежной вытяжной, принудительной вентиляцией.
Определенные неудобства вызывают такие факторы:
- наличие дымохода, который необходимо вывести из помещения на высоту более 3 м;
- потребность в частой чистке испарительной камеры, причем частота существенно увеличивается при сильном загрязнении топлива;
- гудение при интенсивной работе, усиливающееся в холодную погоду, что повышает уровень шума.
Если печь собрана правильно, а эксплуатация ее и хранение топлива осуществляется с соблюдением простейших требований, то установку можно смело причислить к пожаробезопасным, высокоэффективным агрегатам. Она по достоинству оценена автолюбителями, согревающимися с ее помощью в холодном гараже, а также дорожными бригадами, прокладывающими трассу вдали от населенных пунктов.
Примеры конструкций
Буржуйка
Легче всего переделать под солярку печку-буржуйку. Тепловая мощность будет до 5-7 кВт при расходе топлива 300-500 мл/час. Топливная аппаратура той же конструкции практически без изменений может быть использована в более мощных отопительных котлах на дизеле, а также для запуска на отработке и керосине.
Схема доработки буржуйки под дизтопливо дана на рис. ниже. Дефлекторы не дают парам горючего остыть, прежде чем те сгорят. Кстати, дефлекторы увеличивают экономичность печи при запуске на дровах и угле. Высота бортика пламенной чаши – 60-80 мм; емкость ее не должна быть меньше емкости питательного резервуара (см. ниже). Ход печи на жидком топливе, если можно так выразиться, обратный: воздух поступает в настежь открытую дверцу топливника; поддувало закрыто. В противном случае печка становится прожорливой и быстро закоксовывается (обрастает нагаром).

Как переделать буржуйку на жидкое топливо
Питание, запуск и ход
Печь-капельница на солярке будет достаточно безопасной и проявит все свои достоинства только если топливная аппаратура собрана и налажена правильно. Выполняется питание капельной печи обязательно 2-ступенчатым, с буферным питательным резервуаром. Причина – довольно сильная зависимость частоты капели от наружной температуры и напора в подводящем трубопроводе. Напор, в свою очередь, определяется уровнем топлива в баке или степенью его наддува. Закапало реже – испаритель остыл, печка погасла, чаша переполнилась и топливо потекло наружу. Закапало чаще – капли не успевают испаряться, в чаше коптящее пламя, печка зря жрет горючку. Если нет питательного резервуара, может дойти вообще до беды: из печки потечет пылающая струя. Поэтому изготовление и запуск печей на жидком топливе с одноступенчатым питанием – занятие для оголтелых экстремалов или тех, кому терять больше нечего, а спать очень хочется.
Оба капилляра (см. рис.) выполняются из красной меди. Тут дело в смачиваемости металла топливом: по узкой трубке из другого материала оно или вовсе не просочится, или систему питания не удастся наладить. Налаживание начинают с подбора длины предохранительного капилляра диам. 1,5 мм. Объем питательного резервуара необходим 0,25-0,5 л; его высота – 7-12 см. Длину предохранительного капилляра подгоняют так, чтобы при заполненном до верха питательном резервуаре частота капели была 25-30 капель за 10 с.
Далее подгоняют питательный капилляр диам. 0,6 мм; топливо в баке должно быть залито на полный напор H. При полностью открытом игольчатом вентиле и минимально допустимой наружной температуре частота капели из топливопровода в питательный резервуар должна быть на 2-3 капли за 10 с меньше. Эту же частоту капели выставляют игольчатым краном при запуске печи при более высокой наружной температуре.
Для запуска печи в огневую чашу кладут сгорающий фитиль (см. выше). Когда он прогорит, как надо, наливают топливо в питательный резервуар и пускают капель из топливопровода. Печка будет на ходу 4-5 час; если время обогрева требуется меньшее, игольчатый вентиль прикрывают. Только от питательного резервуара ход печи продлится 1-1,5 час.

Чертежи печи с каменкой, пригодной для доработки на солярку
Для гаража
Печь на солярке и отработке для гаража
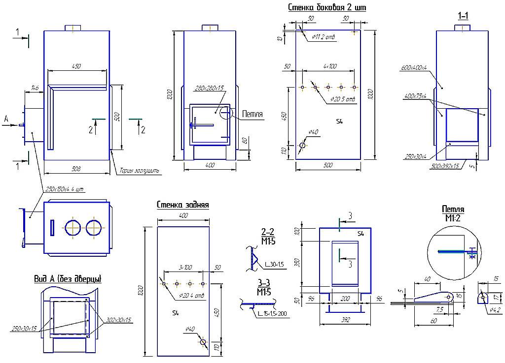
Печь на солярке для гаража должна запускаться и на отработке. Оптимальная конструкция гаражной чудо-печи показана на рис. справа; пламенная чаша под капель (выдвинута) является одновременно и емкостью для безнапорного сгорания масла. Мощность – до 5 кВт на одну колонну-дожигатель (райзер), но делать печку более чем на 2 райзера недопустимо, может взорваться! Данные конструкции:
- Материалы – квадратная профтруба 180х180х6 для лежака (камеры сгорания) и дожигателя, и 100х100х6 для райзеров.
- Длина лежака 380 мм, дожигателя 1000 мм, высота райзеров 500 мм.
- Отверстия в райзерах диаметром 10 мм на всех 4-х сторонах по 8 равномерно по оси.
- Для запуска печи на отработке питательный резервуар необходимо отсоединить, а патрубок капельницы снаружи заглушить.
- Отдельный дефлектор не нужен, им служит крышка лежака.
Печь на солярке своими руками
Оборудование для отопления нежилых помещений, работающее на дизельном топливе либо отработанном масле, можно изготовить своими силами из подручных материалов. Самодельная конструкция имеет простейшее устройство, рассчитанная на производство в кустарных условиях. Для работы потребуются доступные материалы и электрические и ручные инструменты, которые есть практически в каждой мастерской.
Печь собственного изготовления состоит из следующих деталей:
- корпус сварной из листовой стали или бочки объемом в 200 литров;
- горелка безнапорная;
- емкость для топлива;
- трубопровод, подающий с запорной арматурой
- дымоход с шибером (заслонкой для изменения тяги);
- патрубок для соединения печи с дымовым каналом.
Общий вид на схеме:

Все перечисленные узлы и детали изготавливаются самостоятельно из стального листа или труб разного диаметра. Печь на солярке своими руками собирается на заранее подготовленном основании и тщательно на нем закрепляется стальными анкерами. Надежный железобетонный фундамент гарантирует защиту от смещений корпуса и возникновения напряжений в дымовом канале, выведенном через стену.
Необходимые материалы и инструменты
Для изготовления отопительного оборудования своими силами понадобится:
- стальной лист толщиной не менее 3 мм для корпуса или бочка объемом 200 литров со стенками достаточной толщины, исключающей деформацию при нагревании;
- уголок или труба профильная прямоугольного сечения;
- трубы металлические разного диаметра для изготовления дымовых каналов и горелки безнапорной.
Выделка деталей и узлов производится неспециализированным электрическим инструментом согласно перечню:
- дрель электрическая с набором сверл;
- машинка шлифовальная угловая с набором отрезных дисков для работы по металлу;
- аппарат сварочный инверторный с набором электродов, потребного диаметра;
- ручной слесарный инструмент: молотки, пассатижи, кусачки, щипцы, ключи гаечные и тому подобное.
Автономная печь и детали для нее производятся в мастерской или под навесом, что позволит выполнять все операции вне зависимости от погодных условий.
Изготовление корпуса и безнапорной горелки
Весь технологический процесс выделки деталей и сборки их в готовое изделие занимает всего несколько дней. На первом этапе производим разметку и раскрой стального листа для корпуса. В случае если в качестве основы используется бочка, то необходимо в нижней ее части сделать технологическое отверстие, которое будет плотно закрываться стальной дверцей. Для обеспечения устойчивого горения потребно обеспечить ее герметичность.
Чертеж нижней части печи:

Чертеж верхней части:

Из подготовленных деталей при помощи электросварки собираем корпус. Контроль качества швов осуществляется при помощи керосина и мела. Этот способ позволяет обнаружить даже самые микроскопические зазоры. Контроль производится следующим образом: с наружной стороны стыки прочерчиваются мелом. Изнутри на шов наливается небольшое количество керосина, который способен проникать через трещины. Потемнение мела покажет место дефекта.
Горелка безнапорная имеет корпус из стальной трубы с внутренним диаметром 216 мм, состоящий из двух частей одетых друг на друга. В верхней части их привариваются крышки с вырезом по центру. По боковым поверхностям корпуса высверливаются пять рядов отверстий. В нижней части врезан подающий трубопровод и узел, через который происходит подача воздуха необходимого для сжигания воздуха.
Он представляет собой отрезок трубы, заглушенный сверху стальной пластиной, в которой по двум окружностям просверлены отверстия. Узел подачи воздуха приваривается к днищу печки вокруг выреза. Выполнение основных технологических операций: сварочные работы, резка и высверливание отверстий не требуют специфических навыков и большого опыта металлообработки.
Принцип действия безнапорной горелки
Подача дизельного топлива в испарительный резервуар происходит через трубопровод и регулируется запорной арматурой. Соляра поджигается через отверстие, предназначенное для подачи воздуха. Устойчивая тяга возникает после достижения определенной температуры, когда испарение дизтоплива станет постоянным. Смешивание паров топлива с воздухом происходит над пластиной воздушного узла, где он и горит.
Дизельное топливо и отработанное масло имеет достаточно резкий запах и лучше всего такие печи использовать в гараже или ином нежилом помещении. Установка обогревателя должна производиться в соответствии с требованиями пожарной безопасности. По отзывам владельцев жидкостных печей такой конструкции, составляет величину в 0,2-0,4 литра в час.
Плюсы использования котлов на солярке

Доступная стоимость — одно из главных преимуществ аппаратов, работающих на солярке. Цена приборов для частного дома составляет 30–100 тысяч рублей. В продаже есть десятки моделей устройств.
К плюсам также относят:
- автономность аппарата;
- безопасность использования;
- высокий КПД;
- доступность топлива.
Автономность аппарата
Для работы устройства необходима электроэнергия. Если подключение к сети отсутствует, автоматику безопасности и управления питают от электрогенератора, поэтому котел считается автономным отопителем.
Все котлы данного типа имеют автоматическое регулирование режимов работы. Вода в теплообменниках нагревается до заданной температуры, включение и выключение горелки происходит автоматически.
Безопасность использования

Устройство не опасно при эксплуатации. Автоматика прекращает горение топлива, если произошло отключение электроэнергии или короткое замыкание электроприборов.
Солярка относится к относительно безопасным видам топлива (по сравнению с природным газом или бензином).
При правильной эксплуатации исключается взрыв или возгорание прибора.
На установку котла не требуется разрешения от надзорных органов. Домовладелец должен соблюдать лишь требования к помещению, в котором устанавливается котел, и к дымоходу.
Высокий КПД
При сгорании солярки выделяется большое количество тепла. КПД бытовых котлов на солярке составляет 75–92%.
Благодаря теплоизолирующему слою под корпусом, почти все тепло передается теплообменникам и расходуется на нагрев воды. КПД котлов этого типа ненамного меньше, чем у газовых котлов.
Доступность солярового масла

Солярку продают обычно на автозаправочных станциях, ее заливают в канистры или передвижную емкость на прицепе.
В больших количествах соляровое топливо покупают у оптовых поставщиков.
Условия доставки или самовывоза оговариваются отдельно.

























































