Измерение окна
Чтобы рулонные шторы имели эстетичный вид и высокую практичность, нужно понять, как правильно замерять. Рулонные шторы делятся на несколько видов, и для каждого существуют свои особенности снятия мерки.

Классический вариант
Чтобы правильно измерить шторы, которые впоследствии будут использоваться для пластиковых окон, сначала нужно выяснить, куда именно рулонные шторы будут монтироваться. Они могут быть прикреплены к самой оконной раме или на оконном проеме.
Какие мерки нужно снять:
- Ширина штор – «B». Минимальная ширина – 50 см, максимальная – 300 см.
- Высота – «Н». Минимальная высота шторы – 50 см, максимальная – 300 см.
- Длина рулонных штор обозначена «L». Минимальная длина – 27 см и до бесконечности.

Крепление непосредственно на оконный проем:
- «Н» идет в зависимости от длины выступающих частей подоконника. Если подоконник идет вровень, тогда размеры – по усмотрению.
- Если установка осуществляется на стене, нужно соблюдать границы. Расстояние между рулонной шторой и потолком должна быть не меньше 7 см, необходимо его тщательно измерить.


Кассетные
Рулонные шторы кассетного типа Uni -1 замеряют следующим образом:
- «В» вымеряется по ширине стеклопакета, по вертикали окна. Мерка снимается очень точно.
- «Н» замеры осуществляются так же, как и «В», только по горизонтали. С какой стороны будет находиться управление, определяется индивидуально – по желанию заказчика.
- Уровень «Н» зависит от расчетов и составляет 2/3 длины изделия.
Uni 2 замерять необходимо очень тщательно. Большое значение при замерах имеет расположение фурнитуры на пластиковом окне:
- «В» равняется ширине стеклопакета + 6,8 см. Нужно не забывать о том, что ширина изделия – на 2 см меньше, то есть минимум – 25 см и максимум – 120 см.
- «Н» равняется расстоянию он верхней части верхней заглушки и до нижней части нижней заглушки системы направления. Минимальное – 20 см и максимальное – 150 см.


Определение размеров рулонной шторы по типу Mini:
- Установка крепления осуществляется на оконную раму. Для этого осуществляются промеры «В» (непосредственно самого стеклопакета), потом нужно приплюсовать ширину штапика, она равна примерно 0,4 см. Остальные размеры высчитываются таким же способом. Затем стоит выбрать удобную сторону для управления механизмом шторы. Приблизительная длина шнурка – 2/3 от «Н».
- В том случае, если металлопластиковое окно открывается на проветривание, на его нижней части крепятся фиксирующие фишки для штор. Фиксаторы нужны для того, чтобы во время проветривания рулонная штора или жалюзи не сметали все на подоконнике.


Существуют следующие варианты фиксатора:
- магнитные фиксаторы;
- леска.
Прикрепить карниз шторы можно несколькими способами:
с помощью шурупов;
на специальный двухсторонний скотч;
подвесная конструкция.

Римские
Для начала стоит определиться с тем, где именно будет находиться данная штора. Такая штора также может быть установлена на металлопластиковое окно или же на сам оконный проем. Очень внимательно нужно отнестись к снятию мерок при внутренней установке.
Для определения размеров римской модели нужно снять мерки «Н» и «В». С помощью снятых мерок осуществите нужные расчеты:
к «В» прибавляем 15 см;
к «Н» добавляем 20 см;
в конце установки «В» и «Н» меньше примерно на 0,8 см.

«День-Ночь»
Данный вид штор также может быть установлен на металлопластиковую раму или же на оконный проем. Если дело касается штор «День-Ночь», нужно вычислить следующее: к «В» прибавляем 1,5 см, к «Н» – 15см.
Если штора крепится прямо на металлопластиковую раму, замеры осуществляются в трех местах «В» и трех местах «Н». За высоту проема принимаем наименьшие показатели. Если есть угловые откосы, замеры снимаются с того места, где в будущем будет висеть штора. «В» равно «В» оконного проема минус 5 мм. «Н» равняется «Н» оконного проема.
О том, как правильно замерить рулонные шторы на пластиковые окна, смотрите в следующем видео.
Плотность ткани для рулонных штор для кухни
При выборе текстиля, следует обратить внимание на цвет, качество и плотность ткани. Если кухня находится на солнечной стороне, лучше выбрать плотные, темные шторы, они хуже пропускают свет

Плотность штор зависит от количества прямого дневного света на кухнеИсточник design-homes.ru
Классификация в зависимости от светопроницаемости полотна:
Блекаут ‒ высокий уровень плотности, полная защита от солнечных лучей. Пожароустойчивые, износостойкие, звукоизоляционные. Для изготовления полотна часто используют: фиберглас, полиэстер, нейлон, хлопок.

Рулонная штора с рисунком хорошо выглядит рядом с однотонными обоямиИсточник city-jaluzi.ru
Димаут ‒ среднее затемнение (50-70%). Свет частично рассеивается днем и полностью перекрывается в ночное время. Шторы делают из полиэстера с добавлением сатина, вискозы, хлопка. Занавески повышают теплоизоляцию.

Оптимальный вариант для кухни ‒ рулонные шторы средней проницаемостиИсточник design-homes.ru
- Прозрачные ‒ декоративные, хорошо рассевают свет. Находясь дома, через шторы можно увидеть, что происходит за окном. Со стороны улицы, при включенном свете, картина на кухне будет похожа на театр теней. Изготавливаются из стекловолокна или полиэстера.
- Полупрозрачные ‒ зебра или день-ночь. Полоски из плотного материала чередуются с прозрачными. Модель отличается функциональностью и оригинальным видом.

Шторы день-ночь позволяют максимально комфортно, регулировать уровень освещения на кухнеИсточник dekoriko.ru
Перед покупкой подумайте, какого эффекта вы хотите добиться.
Дизайнерские вопросы
Технические характеристики конструкции влияют на дизайнерскую сторону, поэтому выбирать рулонные следует именно с них. Как только тип конструкции, тип крепежа и полотна будет выбран, можно начинать подбирать цвет. Ошибаться с выбором цвета не стоит, так как неправильная цветовая гамма способна обнажать недостатки помещения.

Яркий и дерзкий цвет в интерьере
Важным аспектом является ориентация помещения в отношении сторон света. Когда окна выходят на юг, то тогда лучше остановиться на холодных оттенках. Холодные цвета смогут компенсировать слишком большое количество солнечного света, что сделает помещение более прохладным визуально.
Нейтральные цвета
У каждого цветового оттенка есть свой эффект воздействия на психику, который напрямую затрагивает и восприятие помещения. Если рассматривать универсальные цвета, то это белый и бежевый. Белые будут смотреться органично в любом помещений, безотносительно того, просторное ли помещение или нет. Но все же белый цвет обладает эффектом расширения пространства, нужно это учесть
Внимание на себя белые не перетянут

Бежевый, нейтральный цвет — для небольшого помещения
Бежевый цвет является практически полной копией белого по своим свойствам. Бежевый цвет рулонных штор выбирают часто. Для компактных комнат также подойдет желтый цвет, особенно, если это комната небольшая, но в ней проводиться много времени. Цвет добавляет красок в темные помещения, соответственно, улучшается настроение и появляется желание работать.
Яркие оттенки
Из ярких оттенков:

Яркий акцент в вашей комнате
Перетягивает на себя внимание оранжевый цвет, поэтому если есть желание сделать акцент на рулонных, то оранжевый является неплохим вариантом. Нужно использовать такие жалюзи в помещениях, где отделка нейтральная
Таким помещением является спальня.
В спальне можно использовать и розовый цвет полотна, как цвет романтики и мечтательного настроения. В комнате с отделкой светлых пастельных тонов, такой цвет будет смотреться вполне уместно.
В комнатах, где планируется проводить свой отдых, можно использовать голубой цвет, так как он способен успокаивать находящихся в ней людей. Он принесет обстановку легкости. Под эти критерии, кроме спальни, подходит также и детская комната.
Что касается не менее популярного зеленого цвета, то тут нужно понимать свойства этого цвета. Они заключаются в способности давать приток энергии, заряжать на выполнение дел. Под это описание подходят рабочие зоны, как например кухня или рабочий кабинет.
Универсальным цветом, как и белый, является коричневый цвет. Цвет дает тон умиротворенности и стабильности. Наименее редким цветом является черный, хотя этот вариант также не стоит отбрасывать, ведь он может привнести в обстановку интимность и загадочность.

Легкий и отдыхающий цвет
Не рекомендуется сочетать теплые и холодные оттенки. Есть негласное правило, в соответствии с которым сочетаться органично в интерьере могут оттенки только одной категории. Следует посмотреть на цветовой круг, и увидеть, какие из цветов находятся рядом.

Зеленый придает интерьеру ощущение на природе
Сочетать можно зеленый и фиолетовый, или синий и голубой. Нельзя упускать способность цветового оттенка маскировать минусы помещения.
Если помещение является компактным, то его нужно визуально раздвинуть. Для этого нужно установить рулонные белого или бежевого цвета. Если же проблема в низких потолках, то ее можно частично решить с помощью с вертикальной полоской.
Выбор орнамента
Орнамент полотна всегда подбирается. Орнамент следует подбирать в тон мебели и обоев. Наличие в помещении однотонных обоев обязует использовать рулонные с орнаментом. Это сделает обстановку в комнате более интересной. Также правило работает в обратную сторону – если на обоях есть какой-то рисунок, то полотно жалюзи должно быть однотонным.

Орнамент сделает интерьер интересней
Существует классический прием, когда материал штор совпадает с материалом скатерти или покрывала. Это позволит выдерживать помещение в едином дизайнерском стиле. Если же никаких конкретных идей в голове нет, то тогда можно выбрать что-то универсальное, например, сочетание бежевых оттенков.
Существует негласное правило, на основе которого они должны отличаться по насыщенности цвета от стен – они должны быть или темнее или светлее.
Современные Люстры и светильники: Какие подходят для зала/кухни/спальни? 205+ Фото Вариантов с натяжными потолками
Выбор цвета
Учеными доказано, что окружающие пространство влияет на психику человека. Правильная цветовая гамма на кухне ‒ залог хорошего самочувствия и здорового аппетита. Благодаря шторам на кухонном окне можно скорректировать недочеты планировки. Окно может стать ярким акцентом в комнате или быть гармоничным ее продолжением. Акцентный прием в основном используется в однотонном интерьере, когда на фоне одного цвета комнаты используются яркие краски для штор. Цвет ткани можно выбрать, отталкиваясь от оттенка мебели, кафеля или обоев. Рассмотрим поближе цвета штор для кухни:
Белый ‒ универсальный цвет, который подойдет под любой дизайн комнаты. Белый добавит пространства, сделает кухню свободной и воздушной. Шторы создадут ощущение чистоты и порядка, но их придется чаще подвергать стирке. Цвет благоприятно влияет на развитие силы и воли человека, добавляет честности, искренности.

Белый ‒ благородный цвет, шторы наилучшим образом дополнят классический интерьерИсточник mydizajn.ru
Черный ‒ строгий, классический цвет. Только большая кухня может позволить себе черные шторы
Цвет добавит загадочности и таинственности, повысит внимание, позволит быстрее сосредоточиться. Черные шторы, как и черная одежда подойдет любой цветовой гамме

Черные шторы подойдут кухне в стиле минимализм и модернИсточник remontbp.com
Серый ‒ придает сдержанности, помогает трезво смотреть на вещи. Цвет подчеркнет другие оттенки комнаты, отлично впишется в современный интерьер.

Темно серые шторы гармонично сочетаются с красно-черным гарнитуромИсточник buildup.ru
Красный ‒ цвет страсти, сексуальности. Красный повысит аппетит, придаст энергии. Слишком много красного на кухне приведет к переизбытку эмоций, поэтому использовать его следует аккуратно. Терракотовые, винные, бордовые оттенки оказывают меньшее возбуждение на психику. Также снизит эффект воздействия находящийся рядом белый цвет.

Красный с белым выигрышно создает контрасты в кухонном пространствеИсточник mydizajn.ru
Розовый ‒ символизирует женственность, наивность. Цвет менее агрессивен, чем красный, способен снять усталость и перенапряжение. Находясь в комнате с розовыми нотками, человек становится более мягким, уравновешенным.

Нежный, розовый цвет штор и тканевая отделка стульев придает кухне романтизмаИсточник mydizajn.ru
Желтый, оранжевый ‒ солнечные оттенки способны повысить настроение, вызвать улыбку. Шторы придадут тепла комнате. Желтый хорошо сочетается с красным, белым, черным, коричневым и серым. На кухне с такими шторами дружеские встречи будут искренними и душевными.

Желтый цвет наполняет кухню солнцем, нормализует пищеварительные процессыИсточник loveshtory.com
Синий, голубой ‒ цвета успокаивают и расслабляют, вызывают умиротворение, гармонию. Шторы небесного оттенка хорошо будут смотреться с желтым, зеленым, белым, серым кухонным гарнитуром или мебелью.

Синий фартук и шторы с интересным узором служат ярким акцентом на кухне, комната сразу наполняется жизньюИсточник mydizajn.ru
Коричневый, зеленый ‒ создадут ощущение защищенности, комфорта, придадут комнате выразительности. Коричневый и зеленый гармонично сочетаются между собой, также хорошо выглядят рядом с белым, голубым, желтым.

Если на кухне несколько окон можно украсить их разными интерпретациями штор, легко сочетаются шторы в пол и римские моделиИсточник mydizajn.ru
Фиолетовый ‒ повышает творческие способности, развивает интуицию. Цвет хорошо смотрится на коричневом, белом, черном фоне. Фиолетовые шторы сделают кухню уникальной.

Фиолетовые шторы являются гармоничным продолжением цвета отделки кухонного гарнитура, способствуют расслаблению и умиротворениюИсточник mydizajn.ru
Можно использовать сразу несколько оттенков для изготовления изделия. Комбинированные шторы оживляют монотонный интерьер, выглядят очень стильно. Повторяющийся узор и оттенок штор на кухонном фартуке, скатерти, чехлах для стульев, небольших подушечках на диване ‒ придаст гармонии комнате.

Черно-белый узор на римских шторах преображает комнату, занавески становятся изюминкой в интерьере, дополняют комнату яркие подушки на диване Источник buildup.ru
Какие рулонные шторы лучше выбрать на кухню
Самым простым вариантом оформления окна станет штора, закрывающая его целиком. Она смотрится красиво, особенно если подоконники и откосы на кухне узкие. Но такое решение может причинить неудобства, если оконные створки открываются внутрь помещения — полотно будет мешать и его придется каждый раз поднимать вверх
Советуем обратить внимание на рулонные шторы в интерьере кухни, которые показаны на фото в этой статьей: эти виды станут наиболее универсальными для комнаты





Простые варианты
Рольшторы можно устанавливать на все окно, либо на каждую створку отдельно (второй вариант является отличной альтернативой жалюзи)
Для оформления пластикового окна хорошо подойдут оттенки белого и, что важно, они впишутся в любой стиль интерьера. Не стоит бояться, что полотна быстро испачкаются: их делают из специальных материалов и тканей, которые просты в уходе и легко моются




С узором
Когда душа поет и хочется ярких красок, то прекрасным вариантом станут рольшторы из ткани с каким-нибудь диковинным рисунком, например, с крупными цветами, замысловатыми узорами, геометрическим орнаментом. И конечно, не стоит забывать о ярких расцветках, которые добавят вашей кухне жизнерадостности и придадут современный вид
Обратите внимание на рулонные шторы на кухню, фото которых представлены ниже





Прозрачные или для затемнения
Рольшторы имеют разные степени затемнения: легкую (прозрачные), среднюю (полупрозрачные), сильную (димаут и блэкаут). Если вы думали выбрать для кухни занавески из тюля, то идеальной заменой им станут полотна, пропускающие свет. Для такой цели могут использоваться разные материалы: синтетические, натуральные, и даже бамбук. Современные рулонные шторы на кухню способны преобразить пространство, что подтверждают фото, поэтому в 2019 году такие модели будут часто использовать в оформлении окна.




Если окна выходят на восток или юго-восток, то в первой половине дня солнце будет постоянным гостем в квартире. В этом случае можно использовать полупрозрачную ткань со светопроницаемостью 50%, которая будет рассеивать свет. А если любите темноту, то выбирайте димаут (70% затемнения) или блэкаут (100% затемнения). Последний вариант представляет собой конструкцию из трех тканей: наружные слои из обычной (цветной), а внутренний — из полностью непроницаемой.



Полосатые
Этот вариант получил свое название неслучайно: в нем используется «полосатая» ткань, в которой чередуются прозрачные и непрозрачные полоски. Иногда ее еще называют «зеброй». Полотна в таких моделях состоят из двух слоев, где чередуются полосы прозрачного и плотного материалов. Механизм устроен таким образом, что элементы можно смещать относительно друг друга так, чтобы шторы пропускали свет либо не пропускали совсем.



Двойные
Модели двойных рулонных штор «дуэт» представляют собой конструкцию, на которой закреплены два полотна — одно с прозрачной, другое с непрозрачной тканью. Управляются они независимо друг от друга. Удобство заключается в том, что можно использовать не только ткани с различной степенью затемнения, но даже тюль!
фото7







С перфорацией
Несколько лет назад дизайнер Ида Тонсгаард для одного из своих проектов придумала черные занавески с перфорацией, которые закрывали стеклянный фасад размером 7 x 3.5 м. Так она реализовала задумку рисунка, «оживающего» только днем. Идею подхватили производители рольштор, и теперь такую же игру света можно устроить в любом доме. Особенно интересно эти модели смотрятся на окнах с балконной дверью. Иногда вместо перфорации на полотно наносят фотоизображение — эффект получается тот же.


С электроприводом
Да, рулонными шторами можно управлять! Это особенно актуально, если окна расположены слишком высоко или они очень большие. Функция дистанционного управления востребована для широких и длинных полотен, которые имеют довольно тяжелый вес. Опускание или поднимание производится с пульта, которым можно пользоваться из любой точки кухни.


Подбираем рулонные шторы под размер окон
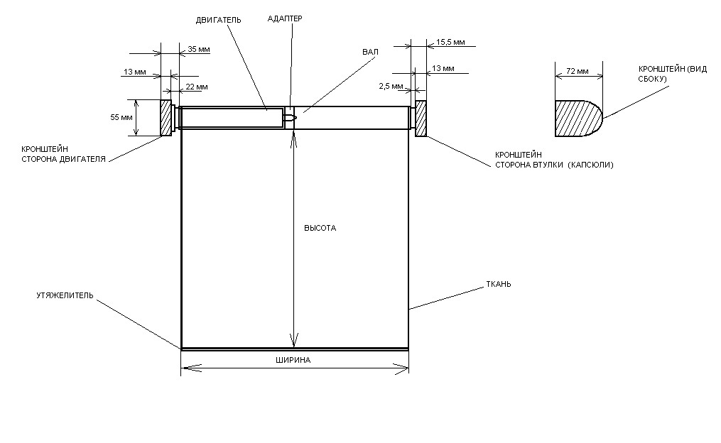
Чтобы определить, как безошибочно выбрать рулонные шторы 1 к 1, потребуется принять в расчет габариты стеклопакета, тип изделия, а также то, где именно вы будете его размещать. Вот приблизительная схема того, как подобрать рулонные шторы на пластиковые окна:
Определитесь с местом крепления. Есть два возможных варианта
Либо вы установите вал на оконный проем, либо разместите на раме.
Важно правильно замерять ширину стеклопакета. Учтите, что в разных местах она может немного меняться
Поэтому сделайте сразу несколько замеров в разных точках. Проведите рулеткой от стыка к стыку и выведите показатель. Используйте минимальное значение из тех, что получите в итоге.
Определитесь с высотой. В большинстве случаев рулонные жалюзи на пластиковое окно будут иметь стандартные габариты – 180 см. Этого достаточно для полного покрытия. Однако иногда производители могут менять типовое изделие. Поэтому обязательно нужно учитывать высоту именно вашего стеклопакета.
Если вы заказываете декоративный элемент, и самостоятельно проводите замер, то нужно снять некоторые обязательные мерки:
- ширина стеклопакета;
- высота оконного проема;
- ширина, высота створок;
- толщина штапиков (конструктивные элементы, удерживающие пакет в раме);
- ширина и высота для каждого стекла высчитываются отдельно, поскольку они часто не совпадают;
- расстояние от стекла до ручки.
Отдельно стоит остановиться на глубине штапика. Обязательно нужно измерить ее с точностью до миллиметра. От этого показателя обычно зависит, какой тип изделия окажется предпочтительнее в конкретном случае. Когда глубина меньше 1.5 см, рекомендуют устанавливать открытый тип. Если же она больше этого числа, то подойдет закрытый тип креплений вала.
Важным при замере будет и то, планируете ли вы закреплять обычную или двойную рулонную штору, используя шурупы и дрель. Ее можно разместить на стене (широкие занавески), чтобы полностью закрывалась рама. Этот тип подходит для глухого окна, но одновременно будет закрыт и подоконник, а доступа к стеклопакету при опущенной ткани не будет. Чтобы измерить расстояние, проведите рулеткой от края до края проема и прибавьте дополнительно несколько сантиметров (4 – 5) с каждой стороны.

Но к такому типу крепления прибегают редко. Чаще используют стандартное размещение на раме. В этом случае ткань будет прилегать вплотную к створке, за счет чего не перекроет доступ к окну и подоконнику. Жалюзи крепятся отдельно для каждого стекла, поэтому можно открывать и закрывать не все створки сразу, а по отдельности. Сверлить при этой разновидности установки также ничего не нужно. В комплекте идет все необходимое для того, чтобы закрепить вал. Не повреждается оконная рама.
При закрытом типе важно безошибочно высчитать ширину стеклопакета. Ткань будет прилегать вплотную, поэтому обязательно указывайте точные значения
Если же речь идет об открытом типе, то нужно замерить ширину проема, а затем прибавить по 2 – 3 см с каждой стороны. В этом случае ткань будет выступать за пределы стеклопакета, что позволит уменьшить проницаемость солнечных лучей. Однако учитывайте то, что жалюзи могут задевать петли или ручки. Рассчитывайте ширину в соответствии с этими данными.
Преимущества и недостатки
Чтобы решить, подходят ли рулонные шторы для применения в вашей кухне, необходимо изучить их достоинства и недостатки. Итак, начнем.

Система для рулонных штор закрытого типа
- Возможность установки конструкции несколькими способами позволяет использовать их для оформления самых сложных и нестандартных оконных проемов.
К тому же ими оборудуют окна не только в жилых помещениях, но также на балконах, лоджиях и даже дверных проемах.
- Регулируемая длинна. Такие занавески можно зафиксировать на любой высоте, что позволяет защитить комнату от попадания интенсивного солнечного света, но в то же время оставить подоконник свободным. Его, как правило, используют в качестве полки для цветов и других элементов декора.
- Превосходный внешний вид. Рольшторы выглядят стильно и современно. Кроме того, они отлично гармонируют с традиционными портьерами и тюлем. В классическом стиле можно применять их вместе с ламбрекеном. Днём вы всегда сможете спрятать роллшторы за роскошную драпировку, а вечером распустить полотно, полностью скрыв помещение от любопытных взглядов прохожих. Согласитесь, это не только красиво, но и весьма удобно.

Ухаживать за рулонными занавесками довольно просто
- Широкий ассортимент. Благодаря наличию огромнейшего количества разнообразных вариаций орнаментов, расцветок и принтов, каждый сможет найти идеальное изделие для своего интерьера. К тому же даже недорогие модели выглядят эстетично и модно. Убедитесь в этом сами, просмотрев фото рулонных штор в интерьере кухни.
- Улучшенные ткани. Шелк, хлопок, полиэстер, бамбук – это далеко не полный перечень материалов, из которых могут изготавливаться роллеры. Какую бы ткань вы не выбрали, обязательно уточните у продавца, была ли она обработана специальными составами. Например, «зеркальная» пропитка обеспечивает полное отражение солнечных лучей от поверхности. Также существуют пропитки, которые предотвращают скапливание пыли, выгорание, а также защищают ткань от воздействия влаги и высоких температур.

Чертёж рулонных штор с электроприводом
- Практичность. Ухаживать за рулонными занавесками довольно просто. Сухую чистку можно выполнить при помощи пылесоса с небольшой насадкой или обыкновенной мягкой щеткой для мебели. Если изделие сильно загрязнилось, снимите его с карниза, уберите утяжелитель и постирайте вручную. Некоторые ткани можно очистить в стиральной машинке, но температура не должна превышать 30-40°С. За сохранность дополнительных элементов механизма вы можете быть спокойны, так как все они защищены специальными крышками, благодаря которым пыль и грязь не попадают на них.
- Множество вариантов управления. Использовать электропривод, шнур или пружинную систему – решать только вам. Выбирайте для себя наиболее удобный способ регулировки, учитывая особенности размещения оконного проема.
- Защита мебели. Плотный материал, обработанный пропитками, предотвращает попадание прямых солнечных лучей на предметы декора и мебель, поэтому они не выгорают. Один раз потратившись на качественные занавески, вы значительно сэкономите на реставрации и замене потерявшей цвет мебели.
Естественно, нельзя забывать и о недостатках, которые, без сомнений, имеет каждое изделие.
- Если в вашей квартире установлены старые деревянные окна, открывать форточку будет не очень удобно. Рольшторы лучше всего подходят для оформления пластиковых окон.

Не рекомендуем экономить на роллерных шторах, ведь качественное изделие имеет длительный срок эксплуатации, а значит прослужит вам долгие годы
- Некоторые модели могут иметь ненадежный механизм скручивания, поэтому он будет часто ломаться. Не рекомендуем вам экономить на роллерных шторах, ведь качественное изделие имеет длительный срок эксплуатации, а значит прослужит вам долгие годы.
- Для некоторых стилей интерьера применение рулонных штор будет неуместно. Хотя, если вы обратитесь к услугам профессиональных дизайнеров, они смогут выполнить эксклюзивные изделия, которые превосходно впишутся даже в такие стили как барокко и ренессанс.
Как видите, список достоинств намного больше.

Для северных кухонь уместной будет тёплая гамма, поэтому отдайте предпочтение золотым, оранжевым или кремовым занавескам
Да и недостатки легко нивелировать, обратившись за помощью к специалистам.
Нюансы выбора типа крепления и размера конструкции
1Еще до выбора цвета полотна или ее конфигурации, нужно рассчитать размер, который зависит от места крепления. Если в помещении окно установлено в углублении, то ширина должна превышать ширину проема на 5 сантиметров с каждой стороны. Это же касается и высоты, так как она должна быть с запасом в несколько сантиметров.

Полная защита от света
2Нужно отталкиваться от того, что при поднятой окно должно легко открываться во все стороны. Наличие в помещении окна, расположенного в одной плоскости со стеной, обязывает делать зазор межу конструкцией и стеной. Ширина должна превышать 20 см, то есть, по 10 см на сторону. Что касается высоты, то тут можно придерживаться правила для окон в углублении. Есть правило, что ширина была чуть шире прозрачной части, примерно на 3 см.
Сразу же нужно указать тип крепления. Всего есть два варианта – конструкция будет устанавливаться со сверлением или без.

Для приглушенного света
3Если говорить именно пластиковые окна, то вариант со сверлением лучше отбросить. Для крепления конструкции будут использоваться саморезы. Именно на них будет держаться кронштейн. К раме окна его редко фиксируют, чаще всего выбирают потолок и стены. Целостность стены будет нарушена, но зато само крепление будет более надежным.
4Для пластиковых окон сверление не подходит. Малый вес позволяет обойтись без крепления на створку. Работа включает в себя закрепление кронштейнов с помощью двустороннего скотча.

Коричневый идеально подойдет под бежевый интерьер

Как сделать Украшения на окна из бумаги своими руками? (150+ Фото). Встречаем Новый 2018 Год Собаки красиво
Разновидности и особенности конструкций
Перед тем как повесить рулонные шторы на оконную раму, необходимо ознакомиться:
- с существующими конструкциями;
- с принципом их работы;
- с особенностями крепежных систем.
Солнцезащита в виде штор на пластиковые окна бывает нескольких типов. Только узнав особенности каждой конструкции, можно будет определиться с выбором одного из следующих вариантов:
- Мини (Mini) — открытая система рулонного типа с барабаном, на который накручивается полотно;
- «UNI» и «UNI2» — закрытые системы с полотном, находящимся в кассете.
Рулонные шторы на окна «Mini» относятся к бюджетному варианту, их крепление осуществляется без перфорации рамы. Простая конструкция состоит из подвижного вала держателя, на котором закреплено специальное полотно. Благодаря надежной фиксации с одной стороны материал можно расправлять, сворачивать и хранить в собранном положении.


Единственным недостатком такой легкой конструкции является провисание шторы под собственным весом при открытой створке и колыхание от поступающего воздуха, но это вполне разрешимая проблема. С помощью магнитов можно фиксировать натянутую рулонную штору в нижней части рамы.
Закрытая солнцезащитная система на окна без сверления предусматривает наличие компактного короба. Такая конструкция создает надежную защиту полотна от негативного воздействия внешней среды — не выгорает, не пылится, не теряет своего первоначального вида:
- Кассетные шторы «UNI» (Уни) состоят из ламинированного короба, который представлен в большом разнообразии цветовых решений и в имитации под натуральное дерево. Это позволяет подбирать солнцезащиту под любой цвет стеклопакета. С обеих сторон системы установлены ограничители, выполняющие функцию направляющих и предупреждающие перекосы полотна во время открывания и закрывания. Свернутая в кассету рулонная штора не препятствует открытию окна. В движение полотно приводится посредством цепочки.
- Модель «UNI2» (Уни2) — двойной вариант конструкции с пружинным механизмом. Монтируются рулонные шторы на пластиковые окна без сверления. Система крепится в верхней и нижней части стеклопакета, что позволяет открывать снизу-вверх верхнее полотно или вверх-вниз нижнее. Шторы для системы UNI2 могут быть однотонными, состоять из узоров и рисунков, а также имеют разную степень светопроницаемости, благодаря чему обеспечивается нужный уровень освещенности в помещении.
Повышенной функциональностью обладают кассетные рулонные шторы «Зебра», состоящие из чередующихся полос — штор блэкаут (из особо плотной ткани) и димаута (из полупрозрачной ткани). Оба вида полотен смещаются, в результате сего меняется интенсивность светового потока и можно сделать окно «глухим». Достаточно закрепить штору, и солнцезащитная система готова к эксплуатации. Полотна смещаются в сторону без полного поднятия, а благодаря плотному прилеганию к окну обеспечивается надежная защита от выгорания портьерам, занавескам, обоям и обивке мебели.


Применяя рулонные шторы без сверления, не потребуется использование саморезов, которые нарушают целостность рамы, и при снятии солнцезащиты образовавшиеся отверстия придется заделывать.

























































