Правила проектирования
Начертить план дома не каждому под силу, для многих это становится проблемой. Если человек никогда такой проблемой не занимался, он может столкнуться с массой трудностей. Чтобы правильно начертить проект дома, требуется соблюдение определенных положений.
- Сначала нужно определить размеры будущего строения. Чтобы начертить качественный план, нужно рулеткой провести точные измерения. Чтобы нарисовать будущее здание, можно пофантазировать и придумать архитектурные дополнения.
Черчение начинается с проведения осей, показывающих центр капитальных стен.
Чтобы начертить план небольшого дома, имеющего прямоугольную форму, необходимо проводить оси посередине внешних стен.
- Вертикальные оси должны иметь буквенное обозначение, а горизонтальные маркируют цифрами. По обозначенным осям выполняется рисунок стены. Затем показываются перегородки внутри дома. Там, где необходимо, нужно начертить будущие двери и расположение окон. Перегородки показываются штрих-пунктирной линией.
- Следующим шагом начертания плана дома будет показ местонахождения используемого оборудования. Отмечается расположение санузла в доме, указывается ванная комната.
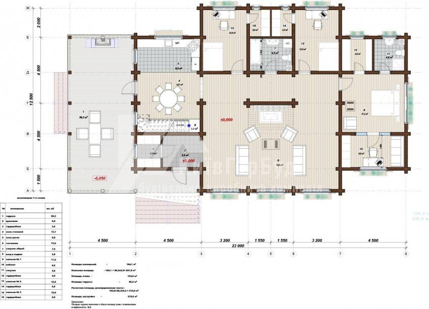
Каждая комната должна иметь экспликационный номер, представляющий собой обычный круг, в котором посередине пишется цифра. Все эти данные заносятся в таблицу, где за каждым числится определенная комната.
На плане дома показываются:
- Лестничные проемы;
- Система вентиляции;
- Дверные номера;
- Высота пола;
- Номера окон.
На начерченном плане показываются сделанные ранее замеры. В обязательном порядке указываются общие габариты здания. Кроме этого, должна быть прорисована привязка:
- Перегородок;
- Оконных проемов;
- Дверных ниш.
План чертится в определенном масштабе, обычно 1:100, иначе говоря, одному метру соответствует 10 мм линия. В принципе масштаб чертежа подбирается в зависимости от габаритов здания. Он может быть: 1:50; 1:200. Получившемуся рисунку присваивается название «План первого этажа».
Затем выполняется экспликация помещений, сведенная в таблицу, состоящую из нескольких столбцов:

- Первый — экспликационный номер;
- Второй — название помещения;
- Третий — площадь здания.
Таблицу чертят на листе, обрамленном рамкой, с нарисованным штампом.
Конструктивный раздел: как нарисовать чертежи и схемы отдельных элементов
Конструктивный раздел – это уже детализированная часть проекта, в которой приведены как общие, так и отдельные данные, различные схемы расположения элементов постройки: фундамента, лестничных конструкций, перекрытий, стропильного сооружения. Также в эту часть внесены подробные чертежи всех узлов, где указывается специфика изделий и материалов.
Чертеж сечения фундамента расшифровывает размеры ленточных укреплений дома, глубину их залегания и материалы, которые необходимы для их сооружения.
Изображение фундамента представлено в виде таких планов-чертежей:
- общего плана фундамента;
- схемы продольного сечения;
- чертежа поперечных разрезов.
Определенные виды чертежей предусматривают сечение плит перекрытия, их продольные и поперечные разрезы в разных отметках:
- план перекрытия в точке +0,00;
- на отметке + 3,00;
- на высоте +6,00.
На конструктивном этапе делаются схемы расположения фундамента, перекрытий, стропильного сооружения.
Узлы конструкционных деталей – это объекты особого строения, включающие лестницы и пролеты как снаружи, так и внутри помещения. Здесь же приведены точные расчеты на прочность и статичность.
В этом разделе проекта в отдельных таблицах содержатся характеристики и последовательность использования материалов, в частности:
- стальной арматуры;
- железобетонных элементов;
- деревянных перекладин.
Ответы на часто встречающиеся вопросы
Безусловно, сколько людей, столько и мнений. Однако, существуют ещё целый пул программ для создания проектов зданий, которые помогут облегчить этапы работы над проектом, о некоторых из них расскажем в завершение нашей статьи.
Какая программа лучше для проектирования каркасных домов?
Отвечая на этот вопрос, большинство профессионалов в один голос скажут, что одна из самых удобных для решения этой цели программ – WoodEngine. Это приложение оснащено всеми необходимыми наборами инструментов, которые пригодятся для возвещения такого строения.
Удобная и простая в работе программа, которая просто создана для работы с деревянными конструкциями
Удобный и простой интерфейс позволит без проблем произвести все расчёты, прикинуть расход материалов. Программа может визуализировать проект как в двухмерном, так и в трехмерном вариантах.
Какая программа лучше для расчёта материалов для строительства дома?
Существуют специальные ресурсы, которые помогут рассчитать расход материалов на возведение дома. Чаще всего такие услуги предлагают магазины по продаже стройматериалов. Всё, что от вас потребуется, это указать метраж помещения, высоту и длину, количество дверных и оконных проёмов. Подобные проекты существуют и в виде приложений и программ.
Огромной популярностью пользуется строительный калькулятор Builder
Многие мастера рекомендуют пользоваться именно этой утилитой. Существуют аналогичные сервисы, такие как «Строительный калькулятор», все они отличаются простотой и удобным интерфейсом.
Какая программа лучше для проектирования электропроводки в доме?
Существует не меньшее количество сервисов, которые позволяют рассчитать размер кабеля для электропроводки. Многие позволяют произвести не только расчёты метража кабеля, но и прикинуть как будет распределяться мощность и нагрузка в сети.
Например, Электрик 6.7. Эта программа, исходя из заданных параметров, может подсчитать: величину тока, пиковые значения, потери напряжения. Кроме того, утилита подскажет где и как в вашем помещении лучше продолжить кабель. ПО имеет достаточно понятный и простой интерфейс, понятный без особых знаний и навыков.
А если вы до сих по не решились самостоятельно создать проект собственного дома или квартиры, то посмотрите, как справляются с этой задачей профессионалы.
Watch this video on YouTube
Объемный кран на колесах
В рамках этой статьи будут разобраны уроки разной сложности, мы решили начать со сложного и продемонстрируем как нарисовать строительный кран в объеме. Под объемностью мы подразумеваем, что в одном рисунке мы увидим разные стороны этой техники.
Обязательно возьмите карандаш. В примере мы работаем красным цветом, но вы должны пользоваться обычным. Сначала нам нужно сделать простой набросок, от которого мы будем отталкиваться при рисовании.
Следующий этап не менее важный, здесь мы должны изобразить кабину и длинную стрелу, на которой поднимают какие-то вещи.
На третем этапе у нас начинается детализация крана. Здесь мы должны подрисовать колеса (пока что только их наброски), доработать мелкие механизмы в стреле и черным маркером изобразить лобовое стекло.
Продолжаем работать с черным фломастером и прорисовываем все мелкие детали как на картинке ниже.
Дорисовываем колеса и делаем их объемными.
С помощью ластика стираем все вспомогательные линии, они нам больше не понадобятся.
Раскрашиваем рисунок!
Рекомендации по составлению планировки здания
Чтобы правильно нарисовать план строения, нужно придерживать нескольких советов и учитывать:
- свои реальные возможности, чтобы строительство дома не закончилось на середине;
- необходимое количество этажей для комфортного проживания каждого члена семьи;
- наличие оконных и дверных проемов. Оно не должно быть большим, иначе о функциональности многих помещений в доме можно забыть;
- количество комнат, которое зависит от размеров дом;
- форму и параметры крыши.
Необходимо начертить поэтажный план строения. Это поможет определить полезную площадь, которая разделяется на жилую и хозяйственную.
Загородный дом должен обладать оптимальной этажностью. Эти параметры основываются на размере свободной площади участка. Количество этажей может быть:
Большую этажность специалисты не рекомендуют выстраивать. В этом нет необходимости. Будут только лишние затраты на обустройство домов.
Планировка такого помещения немного отличается от стандартной, по причине непрямолинейной кровельной конструкции.
Также должны быть учтены и строительные материалы, которые будут непосредственно оказывать влияние на планировку. Из них возводятся несущие стены и межкомнатные перегородки.

Варианты перепланировки
Изменение расположения комнат и стен дает возможности для творчества, новых идей и вселяет новую жизнь в привычное пространство. Основной принцип, которого нужно придерживаться – они должны менять дом в лучшую сторону и учитывать потребности всех его жителей.
Существует несколько вариантов перепланировки, отвечающих современным тенденциям интерьерного дизайна.
Прихожая
Основная проблема прихожих заключается в том, что они, в основном, выглядят как темная и узкая коморка.
Чтобы сделать прихожую просторной и светлой, можно объединить ее с соседней комнатой или установить вместо стены перегородку с выемками под полки. Прилегающими к прихожей должны быть либо гостиная, либо столовая.
Кухня
В наше время кухня должна быть не только местом для приготовления еды, но и красивым украшением дома. Установка готового кухонного комплекта со столешницами и встроенной бытовой техникой превратит комнату в настоящее произведение искусства.
Объединять ли кухню с гостиной? Это дело вкуса и личных пожеланий. Некоторые не хотят, чтобы запах готовящейся еды попадал в общие комнаты, а другие монтируют хорошую вытяжку и наслаждаются общением с друзьями, не разделяя это время с приготовлением закусок.
Ванная
Санузлы — это специфические помещения закрытого типа. Их должно быть достаточное количество. Современные тенденции в жилом строительстве — каждая спальня = один санузел. Однако на практике, не всегда есть такая возможность, ввиду ограничения по площади и расположения коммуникаций.
Какой счетчик воды лучше выбрать для своего дома?
В таком случае один из возможных вариантов решения – разделение одного с/у на 2 части и соединение дверьми с ближайшими спальнями.
Но это возможно если санузел просторный по площади. В обратном случае, если нужно расширить площадь с/у, и ванная и туалет разделены перегородкой, объединение небольших комнат создаст дополнительное пространство для размещения нужной бытовой техники и более длительного пребывания в комфортных условиях.
Перепланировка дома
Как правило, некоторые планы строений со временем могут изменяться. Все зависит от того, насколько нужно увеличить количество полезной площади. Под изменение чаще всего попадает кровельная конструкция, особенно если загородный дом обладает высокой и широкой крышей. За счёт неё и будет происходить увеличение жилой площади строения.
Также необходимо сделать поэтажный проект, в котором все необходимые комнаты расширяются, а спальни или рабочий кабинет переносятся на мансарду. В этом случае не учитываются материалы для сооружения несущих стен
Во внимание берутся средства только для облагораживания площади и укрепления конструкции

Если мансардная крыша не была учтена при планировании строения, то необходимо провести усиление основания и несущих конструкций: стен, потолочных перекрытий, оконных и дверных проёмов.
Самостоятельно сделать это не всегда получится. Лучше обратиться за помощью к специалистам, так как все документы утверждаются в соответствующих инстанциях. Иначе можно получить штраф за незаконную перепланировку постройки.
ENVISIONEER EXPRESS v.9.1
Программа для разработки 3D дома
Среди графических редакторов для 3D-дизайна свое почетное место занимает Envisioneer Express
.Envisioneer Express представляет собой набор 3D CAD (Computer Assisted Design) инструментов. Если нужно простое приложение для трехмерного моделирования, не требующее специального образования или обучения, то это – самый подходящий вариант. Она подойдет людям, не имеющим навыков проектирования, или имеющим маленький опыт работы в этой сфере. С одной стороны, программа настолько проста, что не имеет многих дополнительных функций, которыми обладают новые приложения для 3D-моделирования. Однако это совсем не плохо, когда нужно выполнить конкретные простые задачи.Envisioneer Express отлично подходит для домашнего дизайна – создания набросков проекта собственного дома.
Что необходимо учитывать при составлении схемы дома
Уже на этапе составления эскиза нужно четко определиться с количеством этажей, типом кровли, внешним видом фасада и фронтальных частей дома, вплоть до количества окон, балконов, наличия террасы или мансарды. Эскизный проект также предполагает наброски вида здания в продольном и поперечном разрезах, где указываются особенности конструкции и материалы, из которых предполагается возводить дом.
Пример чертежа одноэтажного дома из кирпича с мансардным этажом.На заметку! Опытные проектировщики не советуют делать очень просторными спальные комнаты, так как большие помещения могут способствовать формированию чувства тревоги у их обитателей. Поэтому спальни должны быть компактными и уютными.
Перед тем как нарисовать план дома, необходимо определиться с расположением участка и изучить ориентацию относительно сторон света. Исходя из этих данных, определяется месторасположение комнат. Их количество зависит от того, сколько людей будет жить в здании и как часто будут приезжать гости на длительное время. Размещение помещений и функциональное предназначение каждого из них также является важным элементом.
Проекты дачных домов: описание конструктивных особенностей (прочитать подробнее)
Далее требуется определить, какие конкретно комнаты будут отведены членам семьи, а какие – гостям и работникам, если предполагается формирование определенного штата. Не следует забывать о планировке помещений, в которых будет собираться вся семья, – это столовая, зал или гостиная.
Важно учесть предпочтения и увлечения обитателей дома, чтобы выяснить необходимость включения в планировку тренажерного зала, бассейна или сауны, зимнего сада либо оранжереи, библиотеки с кабинетом или просторной мастерской. При составление эскизного проекта дома нужно учитывать все пожелания будущих жильцов
При составление эскизного проекта дома нужно учитывать все пожелания будущих жильцов.
Инженерно-технический раздел: чертежи комнат и коммуникаций
Инженерный раздел содержит схемы и чертежи электрообеспечения, систем водопровода, канализации, вентиляции и отопления. Таблицы-расшифровки включают данные о спецификации оборудования и общие расчеты. Это отдельные составляющие здания, размещенные внутри будущего дома.
Проект дачного дома 6х8 с мансардой: (прочитать подробнее)
Раздел по водопроводу содержит план расположения коммуникаций в подвале и на каждом этаже. Схема системы канализации выполняется в аналогичном порядке. Иногда эти два плана изображают в одном чертеже. Здесь также находится аксонометрическая схема монтажа холодного и горячего водоснабжения.
В разделе монтажа отопления представлены поэтажные чертежи, начиная с подвала, и общая схема теплоснабжения всего дома. Системы газового оборудования и электрообеспечения изображены отдельными чертежами с индивидуальными схемами расположения газовой и электрической установок.
С целью предотвращения громовой опасности в моделирование домов необходимо включить монтаж громоотводного устройства, так как отсутствие подобной защиты может не только привести к разрушениям, но и создать угрозу жизни и здоровью обитателей дома. Установку громоотвода производят по отдельной схеме с привлечением квалифицированных специалистов.
Как выбрать программу для проектирования – рекомендации нашей редакции
Не забывайте, что 3D-проект дома – одна из самых необходимый вещей, о которой необходимо задуматься ещё на этапе первых мыслей о собственном доме или перепланировке квартиры. Всегда намного удобнее увидеть проект заранее, чем потом получить не то, чего ты ждёшь.
Чтобы избежать ошибок в выборе программы для работы, необходимо следовать некоторым рекомендациям.
На что стоит обращать внимание при выборе программы, по мнению редакции HouseChief.ru:
- Если вы новичок в теме дизайна помещений, а тем более домов, выбирайте русифицированную версию программы. Это сэкономит вам нервные клетки и позволит более точно создать проект.
- Выбирайте интерфейс, который будет максимально удобен для работы. Некоторые архитекторы предпочитают работать с помощью специальных планшетов, другие используют двухмерные чертежи. Здесь кому как удобнее. И проще.
- Не используйте заведомо сложные для понимания и работы программы. Поймите, идеального конструктора не существует, также как идеального дома. Всё решается методом проб и ошибок. И чем проще будет программа, тем меньше ошибок вы сможете привнести в ваш дизайнерский проект.
- Определитесь с основными функциональными зонами вашего жилища. Пока нет единого взгляда семьи на проект, садиться за работу не стоит.
- Изучайте инструкцию к программам и не поленитесь просмотреть обучающее видео до покупки утилиты.
Если вы прислушайтесь к этим простым советам, то работа над проектом принесёт вам только положительные эмоции.
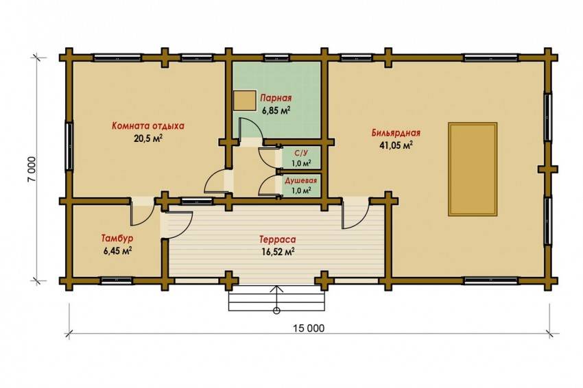
Как сделать проект дома из бруса
Наиболее часто задаваемый вопрос, так как данный материал, является экологически чистым, легким в обработке, практичным и самым распространенным в строительстве. Данные достоинства древесины, как нельзя лучше подходят для строительства дачного домика или бани.

Особенностью данного материала является и то, что он может быть профилированным и клееным, что в свою очередь необходимо также учитывать при строительстве своего здания.

Проектируя свой маленький домик, желательно учесть такие нюансы:
Окна комнаты для гостей и кухни должны выходить на светлую сторону дома, как правило, это южная сторона;
Канализацию и места отбора воды рекомендуется делать максимально приближенными друг к другу, это снизит затраты на обслуживание технических коммуникаций;
Делая проект собственного дома собственными руками, необходимо предельно серьезно подойти к этому, иначе это грозит не состыковкой в узлах и деталях дома из бруса, что в конечном итоге повлечет увеличение стоимости всего строительства в целом. Худшее что может произойти, это разрушение постройки, которое может навредить жизни и здоровью человека.

Закажите дизайн-проект у опытного профессионала
Это полноценный комплект чертежей и планировочных решений в исполнении опытного дизайнера.
- Базовый набор предметов мебели и сантехники
- Авторасчет всех основных размеров и расстояний
- Учет только внутренних размеров помещений
- Отсутствие сечений и прорисовки доп. элементов
- Расшифровка основных элементов при печати
- Исчерпывающая библиотека мебели и сантехники
- Расчет абсолютно всех размеров, расстояний и высот
- Учет материала, толщины и геометрии всех стен
- Детализация сечений и разрезов сложных элементов
- Подробные инструкции и сноски для рабочей бригады
Воспользуйтесь входом в личный кабинет, чтобы загрузить его в программу.
Современный мир пользуется огромным количеством компьютерных технологий, с которыми нарисовать план частного дома очень просто. Специально для проектирования было разработано большое количество многофункциональных программ.

Так выглядит планировка и интерьер дома
Однако эти программы имеют сложный интерфейс. Для работы они используют большое количество самых разных инструментов, причем понять, как ими пользоваться, могут только проектировщики. Поэтому можно воспользоваться другим способом для создания плана дома. Простейшим вариантом считается Word со своим набором инструментов.
Фундамент под будущее строение
Фундамент под будущий дом
Для того чтобы определиться с тем, какой фундамент вы станете использовать, вам необходимо не только произвести массу расчетов, но и изучить имеющийся на вашем участке грунт, а также глубину протекания подземных вод. После того, как вы изучите все характеристики вашего участка, вам необходимо будет выбрать то, какой именно фундамент вы станете использовать. После чего произвести все расчеты, которые необходимы.
Как только вы закончите с основными расчетами, вам стоит подготовить поэтапную смету используемых для строительства материалов, а это:
- несущие конструкции и внутренние перегородки;
- перекрытие, которое просто необходимо при конструировании многоэтажного строения;
- расчет кровли и используемые для нее материалы.
Эскиз фасада
Далее вам необходимо будет подготовить несколько эскизов фасадной части строения со всех сторон. Это необходимо не только для специальных служб, в которые вы понесете проект, но и для вас, так как с их помощью вы сможете полноценно представить всю конструкцию.
По окончанию основного проекта вам также нужно будет подготовить несколько дополнительных планов, которые включают в себя:
- схему проводки электрических систем,
- канализационное оборудование и его подводку к основному строению,
- систему водоснабжения,
- установку отопительных приборов из расчета площади вашего жилого помещения.
Стоит отметить, что и тут кроме рисунков вам понадобятся сметы на используемые материалы. Только после того как все расчеты будут завершены, вам необходимо будет согласовать проект, после чего вы с уверенностью можете приступать к строительству.
Как спроектировать жилище: определяемся с макетом
Перед тем как сделать план жилья на компьютере, нужно определиться с тем, каким вы представляете себе его:
- сколько этажей в строении;
- будет ли подвал;
- какой должна быть крыша;
- какое количество комнат;
- нужен ли санузел на втором и последующих этажах дома;
- будет ли комната или мансарда под крышей;
- предусмотрен ли гараж в здании.
Важно: по современным домостроительным нормам на одного человека должно быть выделено не менее 12 квадратных метров жилой площади (можно и больше, главное, чтоб не меньше). Только в этом случае в доме будет комфортно и уютно каждому члену семьи
Проектируйте и стройте дом так, чтобы в нем нашлось место для каждого члена семьи. Исходите из требования – 12 квадратных метров на одного человека
Также необходимо провести георазведку местности: от характера почвы до уровня грунтовых вод. Это можно уточнить в администрации города или поселка, где вы намерены построить собственное жилище. Зачем нужны такие данные? Чтобы правильно заложить фундамент. Он, в зависимости от земли, может быть:
- ленточным;
- монолитным;
- плиточным (щелевым);
- столбчатым;
- свайным;
- ступенчатым.
Подвал в доме – решение не всегда обоснованное. Если уровень грунтовых вод слишком высок, то обустройство подвала влетит в копеечку – слишком много средств уйдет на гидроизоляцию. Если подвал нужен для хранения хозяйственной утвари, закаток и прочего, просто создайте в доме одну комнату без окон и сделайте ее неотапливаемой.

При проектировании дома учтите, что подвал – это удобно и практично, но дорого. Дешевле вместо подвала обустроить для подобных целей одну из комнат здания
Что из себя представляет проект дома
Человек, который никогда не принимал участие в процессе строительства дома, при виде стопки бумажек с замысловатыми чертежами, скорее всего, растеряется. Ведь он ничего не смыслит в этом! Безусловно, новичку не просто разобраться в проектной документации. Но, согласитесь, начиная строительство собственного дома или коттеджа, не лишним будет иметь хотя бы общее представление о том, какая информация скрывается в толстой папке проектировщика.
В рабочей документации должен быть представлен графический эскиз дома, а также комплект чертежей, которые помогут при строительстве здания. Данный эскиз и согласовывается с будущим хозяином дома.
После согласования с заказчиком специалист начинает работу над основной частью. План дома, разработанный в соответствии со всеми нормами и правилами, содержит три основных раздела: архитектурный, конструкторский и инженерный.
В первом разделе отображается проект фасадов, кровли, расположения оконных и дверных проёмов, помещений, их площадь. Конструкторский раздел содержит информацию о фундаменте для данного здания, креплениях балок, перекрытий, наличии лестниц, крыльца и т.п. Все расчёты относительно возможных нагрузок на элементы конструкции также включены в эту часть.
Так выглядит план дома с фасадом
Кроме того план дома должен содержать инженерный раздел, в котором приведены данные о расположении вентиляционной, отопительной, электрической, канализационной систем, а также системы водоснабжения.
Обзор программ для дизайна интерьеров
Рассмотрим профессиональные программы для проектирования помещений и квартир.
Дизайн Интерьера 3D – программа, которая сделает из вас настоящего дизайнера
С помощью этой утилиты вы сможете самостоятельно создать дизайнерский проект квартиры, практически без особых усилий. Программа позволяет расставлять мебель, выбирать расцветку и дизайн помещений, изучить нюансы расположения всех элементов. Программа очень проста в использовании и подойдет человеку, который не знает ничего о работе графического редактора.
Всё, что от вас требуется, это посидеть пару вечеров в интерфейсе и освоить функционал.
В программе уже созданы типовые и самые распространенные варианты планировок помещений всех известных модификаций. Пользователю лишь необходимо выбрать нужный проект. Кроме того, в процессе работы всплывают специальные подсказки, которые направят начинающего дизайнера в нужное русло. Программа выделяется большим количеством текстур и достаточно хорошо прорисованным миром 3D-графики.



Программа существует в нескольких версиях, для профессиональной работы и домашнего пользования.
VisiCon – программа для проектирования помещений разного назначения
VisiCon – простая программа, работая в которой вы сможете в заданном периметре не только спроектировать оконные проемы, балконы, лоджии, но и полностью весь интерьер.
Проектирование может вестись как в 2D, так и в 3D- варианте.
С помощью этой программы пользователь буквально с нуля сможет создать эксклюзивные скетчи разных дизайнерских решений. Программа позволяет создавать как проекты небольших помещений, так и огромных домов, офисных помещений, магазинов и других объектов.


Программа Arcon – профессиональное проектирований помещений
Одна из немногих полностью платных программ для проектирования. Достойная разработка для профессионального использования. Одинаково хорошо справляется с проектировкой промышленных и бытовых помещений и сооружений.
В программе предусмотрена функция импорта готовых проектов и моделей.
Является профессиональным инструментом, требует навыков в проектировании. Однако, после нескольких вечеров, проведенных за просмотром роликов на ютубе можно освоить и такую серьезную программу.
Как самостоятельно нарисовать план дома
Очень многие собираются построить собственный коттедж, кто-то красивый дачный дом 4х6 метров. Чтобы такая постройка стала реальностью, нужно обязательно иметь план, на котором должно быть изображено месторасположение:
- Санузла;
- Всех комнат;
- Кухни;
- Перегородок.

Пример плана коттеджа нарисованного самостоятельно
Чтобы начертить своими руками такой план, требуется выполнить следующие технологические операции:
- Определить все необходимые размеры;
- Показать середину осей капитальных стен;
- Нарисовать перегородки внутри комнаты;
- Наметить месторасположения окон, а также дверных проемов;
- Обозначить местонахождение функционального оборудования:
- Ванной 4 метра;
- Туалета;
- Газовой плиты;
- Водопровода;
- Вентиляции;
- Лестничных клеток.
Каждому объекту присваивается номер. Все данные сводятся в таблицу. Однако необходимо всегда помнить, что можно начертить только планировку коттеджа, а для составления проекта понадобится помощь профессионалов.
- Несущие стены;
- Другие, не столь важные, стены отмечаются пунктирной линией;
- Двери;
- Оконные проемы;
- Подвод воды;
- Систему канализации;
- Вентиляцию;
- Дымоходы.
Для планирования пространства пунктирными линиями показываются границы нежилых территорий. Отдельно отмечаются все требуемые высоты.
Фото проекта дома своими руками






























Также рекомендуем просмотреть:
- Монтаж сайдинга своими руками
- Теплый пол своими руками
- Баня своими руками
- Наливной пол своими руками
- Декоративная шпаклевка своими руками
- Установка унитаза своими руками
- Столбы для забора своими руками
- Натяжной потолок своими руками
- Подсветка потолка своими руками
- Утепление лоджии своими руками
- Перегородка своими руками
- Проводка своими руками
- Деревянный пол своими руками
- Откосы своими руками
- Как сделать краску своими руками
- Кладка кирпича своими руками
- Декоративная штукатурка своими руками
- Забор из профнастила своими руками
- Камин своими руками
- Утепление дома своими руками и основные способы теплоизоляции
- Забор из сетки
- Установка пластиковых окон своими руками
- Внутренняя отделка своими руками
- Забор своими руками
- Как сделать балкон своими руками
- Печь своими руками
- Дверь своими руками
- Беседка своими руками
- Залить бетон своими руками
- Опалубка своими руками
- Жидкие обои своими руками
- Стяжка пола своими руками
- Фундамент своими руками
- Каркасный дом своими руками
- Прихожая своими руками
- Вентиляция своими руками
- Поклейка обоев своими руками
- Бетонное кольцо своими руками
- Крыша своими руками
- Укладка ламината своими руками
- Лестница на второй этаж своими руками
- Отмостка своими руками
- Ремонт ванной комнаты своими руками
- Поликарбонат своими руками
- Установка дверей своими руками
- Гипсокартон своими руками
- Арка своими руками
- Обшить вагонкой своими руками
- Ворота своими руками
- Душевая кабина своими руками
- Укладка плитки своими руками
КАДЕТ-ВЕНТФАСАД
С помощью этой программы вы сможете проектировать навесные вентилируемые фасады с с использованием плит из различных материалов.
Программа функционирует в среде системы AutoCAD (кроме версий LT).
Основные возможности программы:
- автоматическая раскладка различных фасадных плит и кассет на фасаде любой конфигурации с учётом проёмов и других ограничивающих объектов
- автоматическая раскладка элементов подсистемы с применением различных схем: вертикальной, горизонтально-вертикальной, с креплением в межэтажные перекрытия, с видимым и скрытым креплением плит облицовки
- использование ограничивающих знаков для управления раскладкой
- учёт заданных минимальных размеров плит на фасаде и у проёмов
- доработка раскладки: добавление и замена элементов, смещение рядов, выравнивание кронштейнов
- редактирование плит и кассет: разделение, оформление угловых кассет, подрезка
- оформление раскладки: штриховка и заливка плит, образмеривание
- создание и подсчёт различных протяжённых элементов (противопожарные отсечки, элементы парапетов, цоколей, декоративные элементы)
- учёт противопожарных требований: дополнительные кляммеры над проёмами, подсчёт стальных заклёпок над проёмами для систем из алюминия
- подсчёт элементов и составление таблиц спецификации материалов, спецификации направляющих, таблиц раскроя направляющих и расчёта стоимости устройства вентфасада
- подсчёт, маркировка и составление спецификации кассет, панелей и сайдинга
- возможность экспорта данных из спецификаций во внешний текстовый или табличный редактор (Microsoft Office, LibreOffice)
- формирование чертежей развёрток кассет из композитного материала
- разделение создаваемых элементов по слоям, быстрое переключение видимых слоёв и элементов, возможность получения чертежей разных видов фасадов на основе одной модели
- поддержка систем различных производителей
- дополнительные возможности по оформлению чертежей: оси, отметки, выноски, форматы, основные надписи

Как сделать проект – подготовительные этапы создания чертежа
Первым делом учитывается предназначение будущей постройки: станет она местом для загородного отдыха или же постоянным жильем. До того как начать составление проекта следует учесть количество и потребности всех людей, для проживания которых предназначается здание. Личные предпочтения оговариваются предварительно. Рекомендуется выбирать тихое место вдали от проезжей части. Постройку жилья разделяют на этапы, с соответствующей фиксацией в разделах проекта.
Сначала создается эскизная часть. Потом архитектурный и конструктивный разделы. Следом за ними готовятся инженерно-технические ведомости и далее наступает очередь создания чертежей для отделочного/дизайнерского раздела насчет соответствующего этапа работ. Перед созданием основного эскиза следует делать наброски. Потом же на базе главного чертежа дома рисуются более подробные. Они и станут основой для отображения еще более детальной планировки.

Как спроектировать жилище: определяемся с макетом
Перед тем как сделать план жилья на компьютере, нужно определиться с тем, каким вы представляете себе его:
- сколько этажей в строении;
- будет ли подвал;
- какой должна быть крыша;
- какое количество комнат;
- нужен ли санузел на втором и последующих этажах дома;
- будет ли комната или мансарда под крышей;
- предусмотрен ли гараж в здании.
Важно: по современным домостроительным нормам на одного человека должно быть выделено не менее 12 квадратных метров жилой площади (можно и больше, главное, чтоб не меньше). Только в этом случае в доме будет комфортно и уютно каждому члену семьи

Проектируйте и стройте дом так, чтобы в нем нашлось место для каждого члена семьи. Исходите из требования – 12 квадратных метров на одного человека
Также необходимо провести георазведку местности: от характера почвы до уровня грунтовых вод. Это можно уточнить в администрации города или поселка, где вы намерены построить собственное жилище. Зачем нужны такие данные? Чтобы правильно заложить фундамент. Он, в зависимости от земли, может быть:
- ленточным;
- монолитным;
- плиточным (щелевым);
- столбчатым;
- свайным;
- ступенчатым.
Подвал в доме – решение не всегда обоснованное. Если уровень грунтовых вод слишком высок, то обустройство подвала влетит в копеечку – слишком много средств уйдет на гидроизоляцию. Если подвал нужен для хранения хозяйственной утвари, закаток и прочего, просто создайте в доме одну комнату без окон и сделайте ее неотапливаемой.

При проектировании дома учтите, что подвал – это удобно и практично, но дорого. Дешевле вместо подвала обустроить для подобных целей одну из комнат здания
























































