Садовые дорожки на основе фигурных форм: мастер-класс
Результат будет выглядеть примерно такФорма для садовой дорожки. Фото с сайта telemagazin24.ruкак минимум 4 одинаковые формыПосмотреть подборку форм для тротуарной плитки
Порядок работы:
1. Для начала определите местоположение и ширину садовых дорожек, используя для этого колышки и верёвку. Здесь хочу отметить: подобные формы, как пазлы, легко примыкают друг к другу, а размер имеют, как правило, 60х60 см, чего вполне хватает для узкой садовой дорожки. Если же вы желаете соорудить дорожку пошире — 1,2 м, то сложите две формы не вдоль, а поперёк ложа.
2. Теперь вооружитесь лопатой и проройте по намеченному ложу траншею глубиной 8-10 см. Хорошенько утрамбуйте землю. Для этого лучше использовать электровибратор; можно утрамбовать землю и вручную, но это потребует массы усилий. В хорошо утрамбованную траншею засыпьте слой щебня или гальки (3-4 см), а сверху насыпьте речной песок (5-6 см). Перед тем, как уложить форму, песок обильно пролейте водой из шланга с распылителем. Затем смажьте формы машинным маслом (за неимением, можно воспользоваться обычным растительным) и установите их на мокрый песок. Форма в траншее. Фото с сайта sameto.com.ua
3. Приготовьте раствор: цемент — 1 часть, песок — 3 части и щебень — 4 части. Добавьте специальную связывающую смесь для фундамента и, подливая воды, начинайте перемешивать раствор, доводя его до консистенции густой сметаны. А чтобы ваша садовая дорожка своими руками засияла разноцветными красками, добавьте в раствор краситель нужного цвета.Готовим раствор. Фото с сайта sameto.com.ua
4. Затем мастерком заполните формы до краёв, не допуская воздушных пузырьков, а после снимите излишки раствора заранее приготовленной пластиковой рейкой (для этих целей можно изготовить и железную). Заливаем раствор. Фото с сайта sameto.com.ua
Раствор «схватится» через 30-40 минут, формы можно будет аккуратно снять, переложить их далее по пути следования будущей дорожки и повторить процедуру. Снимаются формы с полусырого цемента довольно легко (если вы, конечно, не забыли их смазать))Снимаем форму. Фото с сайта sameto.com.ua
5. Пока раствор не полностью высох, можно украсить дорожку кусочками цветного кафеля, керамогранитом, красивыми камушками или иным материалом. Нужно всего лишь немного вдавить украшения в цемент, и они после полного высыхания раствора будут держаться очень крепко.
Теперь осталась самая сложная фаза работы)) — защитить ваш вновь созданный шедевр от посягательств домашних животных или баловства детей, потому как цементный раствор полностью высохнет только через 2-3 дня, да и то — при условии солнечной погоды. Поэтому продумайте «оборонительные мероприятия», таблички с надписью поставьте или временные ограждения.
Как видите, построить красивую садовую дорожку своими руками совсем не сложно. Правда, потрудиться придётся на славу)) Но ведь вы творите удобство и красоту для себя, и не на один год, поэтому стОит проявить старание и фантазию, чтобы в итоге наслаждаться плодами своей работы. Удачи вам!
Вам также могут пригодиться следующие публикации:
№7. Садовый паркет
Садовый паркет, часто именуемы декингом и антислипом, — это покрытие, которое обладает всеми преимуществами дерева, но за счет специальной обработки оно более устойчиво к негативным атмосферным воздействиям. Для производства материала используют древесину твердых пород, которая может дополнительно проходить термообработку. Готовый материал представляет собой квадратные (реже прямоугольные) планки, разделенные на секции. Секции могут образовывать определенный рисунок.
На планках садового паркета обязательно присутствуют вентиляционные щели, размер которых колеблется от 1,5 до 8 мм: чем выше будет уровень влажности во время эксплуатации, тем больше должны быть зазоры. Поверхность материала имеет противоскользящий профиль, поэтому декинг можно использовать для обустройства дорожек около бассейна. Монтаж предполагает использование специальных опор, высота которых регулируется, что позволяет сглаживать перепады уровня высот на участке. От подложки садового пакета зависит тип крепления. Жесткий паркет имеет полностью деревянную подложку, изготовленную из той же породы, что и лицевая часть. Мягкий паркет отличается наличием мягкой решетчатой пластиковой подложки со специальными креплениями, благодаря которым такой материал монтируется очень быстро и просто.
Преимущества:
- долговечность. За счет использования прочных пород древесины и обработки их специальными веществами (иногда применяется термообработка) достигается высокий срок службы материала (до 50 лет);
- высокая прочность;
- экологичность;
- красивый внешний вид, ведь цвет и текстура дерева сохраняются;
- наличие противоскользящего профиля;
- устойчивость к гниению и влаге;
- простота монтажа и ухода;
- теплая поверхность и быстрое высыхание.
Минусов у материала не так уж много. Для более длительного сохранения внешнего вида и эксплуатационных характеристик садовый паркет лучше два раза в год обрабатывать специальным маслом. Если выбор пал на декинг из термообработанной древесины, то материал обойдется в разы дороже, но и прослужит дольше.
Для организации садовых дорожек может также использоваться декинг из древесно-полимерного композита. Он производится из смеси опилок или древесной муки с полимерным связующим, в которую добавляют краситель и формируют материал нужной формы и размеры. Это менее экологичный, но более устойчивый к внешним факторам материал, не нуждающийся в дополнительном уходе.
№3. Бетон
Достойная альтернатива асфальтированию – бетонирование, тем более, что с обустройством небольшой территории можно даже справиться самостоятельно. Бетонная площадка может иметь как самую простую серую поверхность, так и быть декорирована галькой, кусочками керамической плитки, стекла и прочими элементами. Бетон можно окрасить в необходимый цвет, сделать на его поверхности имитацию швов плитки или даже собственноручно изготовить из него плитку необходимой формы и размера.
Главные преимущества бетонного покрытия:
- относительная дешевизна;
- высокая прочность;
- устойчивость к повышенной влажности;
- возможность провести работы своими руками;
- возможность залить площадку любой формы и как угодно ее декорировать, превратив скучную бетонную поверхность в украшение всей территории.
К недостаткам относят высокую трудоемкость всех работ, ведь придется иметь дело с подготовкой основания, обустройством опалубки и приготовлением большого количества бетона, – это не столько сложно, сколько требует времени и физической силы. На монолитных бетонированных площадках относительно быстро появляются трещины.

№2. Тротуарная плитка и брусчатка
Одним из самых распространенных вариантов организации садовой дорожки по-прежнему остается тротуарная плитка и брусчатка. Эти два материала аналогичны по составу, а отличие заключается только в геометрических размерах: при аналогичной длине и ширине брусчатка будет более толстой.
Для садового участка подойдет плитка с толщиной 50-60 мм, так как особенных нагрузок на дорожки нет. Тротуарная плитка может изготавливаться из разных материалов, а для организации садовой дорожки лучше всего подойдут такие виды:
бетонная плитка. Может производиться методом вибропрессования и вибролитья. Первая получается более прочной, но имеет самые простые формы, может использоваться для обустройства дорожек, по которым будут передвигаться автомобили. Вибролитая бетонная плитка отличается большим разнообразием форм и совсем немного уступает вибропрессованному аналогу по прочности;
клинкерная брусчатка производится из пластичной глины, кварца и полевого шпата, поэтому по прочности она не уступает натуральному камню. Для получения шероховатой нескользкой поверхности в смесь добавляют песок. Дорожки из клинкерной брусчатки будут прочными и очень красивыми;
плитка из натурального камня – самый дорогой и шикарный вариант, станет дополнением просторного загородного участка. Это фактически тот же природный камень, но расколотый на куски нужного размера, отполированный и отшлифованный;
полимерпесчаная плитка производится из песка и красителей с добавлением полимеров. В итоге получается превосходный по эксплуатационным качествам материал, но его внешний вид все же выдает присутствие в составе полимеров, поэтому для обустройства участка в классическом стиле такая плитка вряд ли подойдет, но во всех остальных случаях позволит получить долговечное и прочное покрытие тропинок.
Среди главных преимуществ тротуарной плитки долговечность, морозостойкость, прочность, устойчивость к негативным атмосферным факторам, разнообразие форм, размеров и цветов. Укладывать плитку можно массой разных способов. Этим и объясняется широкая популярность материала.
Аллеи под ландшафтный дизайн
Специализированные резиновые дорожки для создания садовых тропинок могут быть самой разной формы и цвета. Часто они копируют фактуру других материалов. Такие особенности дают возможность выбрать именно тот вариант, который лучше всего подойдет под ландшафт или понравится покупателю. Характеристики и качество материала гарантирует его долгий срок службы и быстрый монтаж на любых участках. На отечественном рынке представлено несколько типов дорожек из резины.
Брусчатка из резины для сада
Брусчатка из резины позволяет обустроить в саду и по всей территории удобные, эластичные и прочные дорожки. Она делается в виде небольших блоков, толщина которых составляет 2-4 см. Она быстро укладывается, поэтому на все работы уходит минимум времени. На поверхности не накапливается влага, за ней легко ухаживать и можно не переживать о сильных морозах. Хороший специалист сможет уложить брусчатку за один рабочий день. Материал представлен в большом ассортименте форм, фактур и цветов, поэтому ее можно подобрать непосредственно под особенности ландшафтного дизайна.
Дорожку можно сделать из отдельных элементовИсточник zen.yandex.ru
Бесшовное покрытие
Такой материал хорошо подойдет тем, кто ценит комфорт и простоту. Его можно использовать в качестве дорожек в саду и на территории частного дома, а также стелить на крыльцо или ступени дома. Одним из важных преимуществ бесшовного покрытия является возможность его укладки вокруг бассейна
Покрытие позволяет выравнивать рельеф и качественно скрывать небольшие изъяны, отличается повышенной травмобезопасностью, что немаловажно для маленьких детей или стариков, характеризуется амортизацией. Легко и быстро укладывается или ремонтируется, может переноситься на новое место, не требуется демонтаж
А может быть одним цельным полотномИсточник gran-nt.ru
№1. Натуральный камень
Природный камень можно назвать наиболее универсальным материалом. Он гармонично вписывается в любой садовый участок и сможет долгие годы служить его украшением.
Главные преимущества:
- внешний вид. Разные породы натурального камня отличаются по цвету, размеру, форме и текстуре, поэтому можно подобрать подходящий вариант для обустройства территории в любом стиле;
- долговечность. Камень сможет прослужить десятки лет, ведь это прочный натуральный материал, он не гниет, не боится влаги и солнечных лучей, не выцветает;
экологичность.
Недостатки:
- тяжелый вес, что усложняет транспортировку и монтаж;
- высокая цена.
Кроме того, на некоторых породах камня (гранит, мрамор) в холодное время образуется ледяная корка, затрудняющая передвижение по садовой дорожке. Единственный выход из такой ситуации – обустройство системы обогрева прямо под дорожкой, но на это решится далеко не каждый дачник.
Тип поверхности и цвет камня зависят от породы. Материал может быть шероховатым или гладким до блеска. Цветовая гамма широкая: от светлых пород до темно-красных и практически черных. Любой природный камень – дорогостоящий материал, но стоимость разных пород сильно отличается. К наиболее дешевым материалам относится песчаник и известняк. Мрамор, гранит, базальт, порфир – это уже более дорогие материалы.
Для обустройства садовых дорожек камень может использоваться в природном необработанном виде (кварцит, сланец, песчаник, гранит, гнейс) или же поддаваться дополнительной обработке для достижения лучших эксплуатационных и декоративных качеств (базальт, габбро, диабаз). В необработанном виде также часто используется речная и морская галька.
Красивый природный рельеф и шероховатость поверхности камня будут украшать участок, но важно помнить о том, что по дорожке должно быть удобно передвигаться, поэтому лучше выбирать камень, у которого хотя бы одна из сторон более-менее ровная. Пористые породы, к которым относятся туф и известняк, могут накапливать влагу, поэтому раз в 2-3 года их поверхность лучше обрабатывать водоотталкивающими растворами
Рулонное покрытие
Используется в качестве альтернативы плиточному покрытию, часто применяется в виде временного варианта. Состоит из смеси полимеров, реализуется в виде рулонов разных цветов.
Рулонный искусственный газонИсточник www.indiamart.com
Рулоны легко раскатать, уложить на любом участке, независимо от наличия неровностей. Поэтому это удобный и недорогой способ создать дорожку на один сезон. Желательно уложить рулонную ленту на подложку из щебня или гравия, особенно для долговременного использования, так как после дождя она может погрузиться в грязь.
По окончании летнего сезона рулон скатывают, отправляют в сарай до начала следующего лета.
Противоскользящее покрытиеИсточник mo.tiu.ru
Стандартные размеры тротуарных плит
Если раньше существовал четкий ГОСТ практически на всю выпускаемую промышленностью продукцию, сегодня все гораздо сложнее. Производители вольны поступать как им удобно, габариты подгоняются не под общие категории, а под собственные нужды. Кто-то экономит сырье, у другого импортная линия со своими единицами измерения, третьему важнее форма. Сейчас с помощью тротуарной плитки можно создавать любые рисунки. В результате нынешняя тротуарная плитка может иметь самые разные размеры.
Варианты укладки плитки “Старый город” найдете тут.

Производят современный продукт методом вибропрессования или вибролитья. Плитку, рассчитанную на усиленный износ, армируют металлической сеткой. От способа производства во многом зависят эксплуатационные характеристики.
Вас также может заинтересовать текстура брусчатки.
Толщина и ширина
От длины и ширины плитки в большей степени зависит визуальная составляющая покрытия и как удачно целый материал ляжет на место. Толщина же определяет конкретную сферу применения и является главным рабочим показателем, определяющим выбор. Из всего ассортимента продающих организаций можно выделить несколько востребованных категорий плитки:
Пешеходная для садовых
Толщина пешеходной – 30 мм, самый бюджетный вариант, предназначенный для мощения тротуаров, садовых дорожек, придомовой отмостки, зон вокруг крыльца, ступеней, под навесами, в беседках. Она не подходит для укладки подъездных аллей, так как просто не выдержит такой нагрузки. А вот с передвижением по ней пешеходов или детворы, на велосипедах, вполне справится. Если такой плиткой выложить пол вокруг уличного мангала или барбекю, получится и по деньгам приемлемо и технически оправдано. Технология укладки брусчатки описана здесь.
Универсальная
Толщина универсальной – 50 – 60 мм, стоит дороже, но и сфера использования шире. Она прекрасно выполнит функции пешеходной, если ею выложить двор, дорожки, парковые и другие зоны отдыха. Также ею смело можно застелить подъездную аллею, пол гаража, если предполагается въезд легкового автотранспорта или микроавтобусов и схожих с ними транспортных средств.

Монолитная для уличных дорожек
Толщина монолитной – 70 – 80 мм и более, сама дорого стоит и за работу с ней берут солидно. Предназначена для парковок, подъездных аллей для грузового транспорта, для тех зон, где постоянно высокая нагрузка. Зато ей не страшны никакие эксплуатационные условия, любой аврал она вынесет в рабочем режиме. Как класть тротуарную плитку рассказано по этой ссылке.
Для применения на личных участках и в садах, обычно используют плитку толщиной 30 – 60 мм.
Она доступна в плане стоимости и обладает всеми необходимыми параметрами. При соблюдении технологии укладки, она полностью выработает свой ресурс. Единственно, не стоит ее укладывать на подъездах и в других зонах, с высокими нагрузками.
Размеры поверхности
Длина и ширина плитки необходима для подсчета ее расхода, а зная расход, проще посчитать и все остальные материалы. При обилии производителей, точные размеры описать сложно, но реально примерно систематизировать данные исходя из формы плитки. Все размеры стандартные.
Квадратная
Квадратная. Максимальной популярностью пользуется квадрат 300 × 300 мм, за ней следует 350 × 350 мм и 400 × 400 мм. Массивные плиты 500 × 500 мм в частном хозяйстве применяются редко.
Прямоугольная
Прямоугольная. Всем известные «кирпичики» или «брусчатка», такую форму использовали еще на заре географии, но и сегодня она довольно актуальна. Выпускают такую плитку с обычно размерами 200 × 100 мм и 250 × 125 мм с незначительными отклонениями, зависящими от конкретного производителя. К этому советуем ознакомиться с вариантами укладки брусчатки.
Фигурная
Фигурная. Тут полет фантазии неограничен никакими рамками, но можно выделить следующий основные размеры: 295 × 295 мм, 200 × 168 мм, 120 × 180 мм, 120 × 190 мм.

Для подъезда автотранспорта не рекомендуется использовать не только тонкую, но и большую плитку. При наезде колесом край постоянно будет выдергивать из кладки, а вот фрагментарное покрытие дольше останется целым.
Что собой представляет пластиковая плитка для дорожек на даче изложено в данном материале.
Качественный материал от проверенных производителей
Исходя из отзывов покупателей в интернете, рекомендуем познакомиться с четырьмя лучшими изготовителями пластиковой плитки.
Zager-Group Gmbh
Всемирно известный концерн, занимающийся разработкой и выпуском продукции из безвредного пластмассового сырья. Центральный офис находится в Швейцарии, а заводы в Европе, Южной Корее.
Одно из направлений работы – изготовление садового паркета или террасной доски из ДПК (древесно-полимерного композита). Все продукция компании экологична и сертифицирована.
Декинг от Zager-Group Gmbh:
- долговечен;
- не выгорает на солнце;
- износостойкий;
- ударопрочный;
- не боится влаги.
С изделиями удобно и легко работать. Единственный их недостаток – высокая цена.
ПластДор
Российский завод, который специализируется на продукции из полимеров. Популярная плитка для садового покрытия:
- полимерпесчаная;
- перфорированная;
- резиновая.
В их основе прочный поликомпозит со слоем защиты от ультрафиолета. Материал морозоустойчив, способен выдерживать большие механические нагрузки, не боится воздействия внешней среды. Имеет неограниченный срок службы.
Структура ее ребристая, поэтому не скользит зимой. Плиты легко разбираются. Эта продукция гораздо дешевле импортного аналога.
ЛигнаТэк
Российское производственное предприятие, основанное в 2008 году. Стало первым изготовителем садового паркета в стране. Выпускает декинг серий Стандарт, Престиж и других.
Это полнотелая доска имеет практически монолитную поверхность, влагоустойчива, со швом для компенсации температурного расширения. Проветриваемая. Цена доступна.
Продукция компании неоднократно использовалась как эталон во многих телевизионных передачах. Была отмечена золотыми медалями на выставках «СтройСиб», «Газификация Алтая, строительство и ремонт, энергосбережение, ЖКХ».
Darel
Российский производитель, более известный под торговой маркой ERFOLG. Специализируется на изготовлении модульных покрытий. Все товары сертифицированы, постоянно тестируются на прочность и качество материала.
Модельный ряд для кладки садовой дорожки: ERFOLG Home&Garden, ERFOLG Green Parking.
Оптимальные размеры отмостки
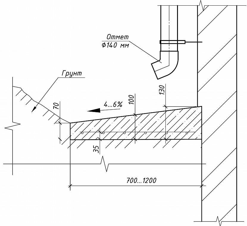
В СНиПах нет определённых габаритных размеров отмостки. Но строители чётко знают, какой ширины этот элемент дома должен быть. Его ширина зависит от длины свеса крыши здания. К примеру, если свес кровли, а это расстояние от стены дома до краёв кровельного материала, составляет 40 см, то ширина отмостки должна быть не менее 60 см. То есть на 20 см больше, как минимум.

Ширина отмостки вокруг домаИсточник cf.ppt-online.org
Суть этого соотношения заключается в том, чтобы атмосферные осадки с крыши падали на отмостку. И это в независимости от того, установлена ли водосточная система. Потому что установленная вровень с карнизом крыши или ближе к стене дорожка не сможет эффективно отводить воду от фундамента. К тому же чем дальше от последнего падает вода, тем лучше. Именно поэтому чаще всего ширину отмостки выбирают в пределах 1 м. Размер такой дорожки удобнее и в плане перемещения по ней.
Хотя есть и другие требования относительно этого размера:
- на прочных грунтах ширину отмостки можно закладывать в пределах 80 см;
- на слабых, которые обычно склонны к морозному пучению, не менее 90 см.
Что касается толщины этого строительного элемента, то здесь есть определённые требования. Во-первых, надо отметить, что дорожка, закладываемая вокруг дома, элемент многослойный. И чаще он состоит из трёх слоёв:
- песок толщиною 30 см минимум;
- щебень такого же размера;
- бетонный раствор, как внешний слой.

Схема слоёв отмостки вокруг домаИсточник vodakanazer.ru
Сегодня многие частные застройщики используют утеплённые отмостки вокруг собственного дома. Делается это с одной единственной целью – утеплить фундамент дома. Для этого используют следующие материалы: керамзит, перлит или пенополистирольные плиты. Толщина теплоизоляционного слоя зависит от выбранного материала, но чаще не превышает 10 см.
Если отмостку решено декорировать, к примеру, камнем или тротуарной плиткой, то при формировании траншеи придётся учитывать и толщину этого материала. Его можно укладывать на подготовленную песчано-щебёночную подушку с применением бетонной смеси, или, сначала залив бетонное основание, провести укладку на него. В любом случае к такому оформлению требование одно – герметично залить швы между элементами декора, чтобы через них вода не проникла в грунт, а соответственно и к фундаменту.
И ещё один момент, касающийся толщины слоя песка. Во-первых, этот размер должен выдерживаться с учётом трамбовки строительного материала. Во-вторых, именно 30 см создают преграду вертикального капиллярного подъёма влаги. То есть влага от грунта вверх может подняться только на 30 см, не выше. А значит, все остальные слоя будут хорошо защищены снизу.

Уклон отмостки от стеныИсточник cokr54.ru
И последний размер дорожки – уклон. Понятно, что падающая на отмостку вода должна отводиться от дома. Поэтому этот строительный элемент формируют с уклоном от стены. Этот параметр зависит от того, из какого материала дорожка будет сооружаться.
- Если в качестве покрытия будет использован бетон или асфальт, то угол наклона варьируется в диапазоне 3-5°.
- Если дорожку решено отделать тротуарной плиткой, камнем или другим строительным материалом, то наклон должен быть не менее 5°.
Это минимальные значения. Большие допускать можно.
Красивые примеры и варианты
Одним из примеров облицовки пешеходной зоны на садовом участке является стиль stepping stones. Вы как будто переходите через лужу или мелкую речушку и перепрыгиваете с одной подставки на другую. В переводе это означает «камень для перехода». Однако это не означает, что для данной техники исполнения не может быть использован другой материал. В качестве элементов исполнения можно использовать не только традиционный материал типа каменных или деревянных плит, но и совершенно неожиданные предметы – например, бутылки, уложенные донышками вверх, пластмассовые крышки и т. д.
Плиты для степа можно также отлить из бетона прямо у себя на участке. Главное, чтобы возникала иллюзия, что все предметы появляются прямо из травы или из земли. Для завершения картины можно пересыпать пространство между плитами гравием или керамзитом. Можно сыграть на контрасте и на фоне сочной зеленой травы выложить ярко желтые или красные плиты. Это будет смотреться неординарно.


Садовый паркет. Его второе название – «декинг», переводится как «палуба». Дорожка из декинга может быть продолжением террасы или зоны барбекю. Из садового паркета можно соорудить нечто интересное – способов его укладки много. Например, можно уложить плиты со смещением, а между ними насыпать мелкую гальку, окрашенную в какой-нибудь яркий цвет.


Круглая речная галька дает возможность реализовать огромное количество самых разнообразных идей. Из нее можно выкладывать не только отдельные орнаменты, но и целые картины. Или можно подобрать камни в одной цветовой гамме и выложить по нарастания цвета. Однако для работы с этим материалом требуется наличие некоторых навыков, а также огромное количество терпения – он очень непростой в обработке.


Весьма необычно и креативно можно использовать остатки старой керамической плитки, которая осталась, например, от разбора старинной печки в доме. Из осколков и целых плиток, различающихся по цвету и форме, можно выкладывать мозаику, создавая эксклюзивный рисунок на своем участке. Такую дорожку можно выложить прямо на земле, и тогда разноцветная радуга из плитки будет перемешиваться с молодой зеленью. Если же вы не хотите тратить много времени на уход за дорожкой, уложите плитку на предварительно подготовленную поверхность из специальной пленки.


Гравий – не самый оригинальный материал, но зато самый бюджетный, а при наличии художественного вкуса и фантазии из него тоже может получиться весьма интересное покрытие. Выкрасите камни при помощи уличной краски и выложите из них фамильную монограмму на дорожке, имя близкого человека или нарисуйте ромашку – в конце концов, где же им быть, если не на даче? Только не забудьте поставить бордюры, иначе все ваши усилия смоет первый же хороший дождь.
О том, как сделать садовые дорожки, смотрите в следующем видео.
Разновидности тротуарной плитки
Виды тротуарной плитки не отличаются большим разнообразием. Существует 2 технологии изготовления плит для мощения тропинок из цементной смеси с добавлением гранитной крошки:
- Вибролитье. Процесс напоминает изготовление любых бетонных изделий: залитую в формы смесь уплотняют на вибростоле, а затем дают ей застыть. В состав смеси можно добавить любые пигменты, а полужидкая консистенция раствора позволяет придать изделиям любую форму.
- Вибропрессование. При этом способе прессуют полусухую смесь цемента и наполнителя. Плиты, изготовленные методом прессования, более толстые, но разновидности их ограничены простыми геометрическими формами, т. к. плотная масса не способна заполнить тонкие выемки в форме даже под давлением.

Расширить выбор материалов для устройства дорожек в саду позволяют другие варианты, которые применяют для оформления пола и входных групп:
- клинкерная плитка;
- керамогранит;
- резиновые изделия;
- плитка из ПВХ;
- бетонные изделия, изготовленные самостоятельно при помощи пластиковой формы.
Стоимость мощения плиткой дорожек может отличаться в зависимости от материала. Самая дешевая облицовка — это самодельная и вибролитая, но способ производства отражается на качестве продукции. Выбирая среди других видов покрытий, желательно заранее оценить свои потребности и возможности.

























































