Кассетный кондиционер
Название «кассетные кондиционеры» было присвоено данным сплит-системам полупромышленого типа отнюдь не случайно. В названии этого типа коммерческих кондиционеров отражена их основная особенность. Кассетный кондиционер – это сплит-система скрытого типа, фактически вся видимая часть внутреннего блока скрыта за подвесным потолком. Видимой глазу остается только декоративная панель с вентиляционной решеткой, откуда и выходит обработанный воздух. Таким образом, в смонтированном положении эта сплит-система напоминает кассету или блок.
Нижняя видимая часть внутреннего блока кассетного кондиционера обычно соответствует по размерам стандартной потолочной плитке — 600 × 600 мм, доходя до вдвое больших параметров — 1200 × 600 мм у самых мощных по производительности моделей. Так как видна только декоративная решетка с распределительными жалюзи, кассетные кондиционеры можно назвать самыми компактными и незаметными в интерьере среди всех типов сплит-систем.
Отсюда же вытекает и основное требование к монтажу кассетных кондиционеров — наличие подвесного потолка (например, армстронг). Поскольку кассетная сплит-система крепится к капитальному потолку, необходимо минимальное межпотолочное пространство в 35-45 см. Также, мы рекомендуем устанавливать подобные системы кондиционирования только в помещения с высотой потолков не менее 3х метров.
В отличие от канальных сплит-систем, также устанавливающихся за подвесным потолком, кассетные кондиционеры распределяют охлажденный воздух через нижнюю часть блока. С этим связан целый ряд преимуществ!
Идущая в комплекте к кондиционеру декоративная панель снабжена 2-х или 4-х сторонними жалюзи подачи воздуха, что позволяет управлять потоками воздуха разных направлениях. Охлаждение помещения происходит равномерно.
Мощный воздушный поток в нескольких направлениях способен охватывать весь периметр помещения, благодаря чему достаточно всего одного кондиционера для охлаждения большого помещения.
Распределение чистого воздуха направлено не вниз, а вдоль, что позволяет вообще не ощущать работу сплит-системы.
Отсутствуют воздушные вихри в любой точке помещения при включенном устройстве. Можно смело располагаться для работы или отдыха прямо под кондиционером, не боясь, что надует.
Кроме того, в кассетные кондиционеры благодаря их уникальной конструкции можно опционально установить помпу для подмеса свежего воздуха снаружи. Это существенно расширяет ваши возможности, ведь подмешивание свежего воздуха выходит за рамки функций обычной системы кондиционирования – охлаждение и перераспределение воздуха в помещении. Кассетный кондиционер способен добавлять до 30% свежего воздуха с улицы в воздух, подающийся в помещение. В некоторых случаях это позволит сэкономить на установке приточной вентиляции.
Разумеется, как и сплит-системы любого другого типа, кассетные кондиционеры обязательно снабжаются фильтрами с различными функциями (очистка, ионизация). К другим плюсам кассетных кондиционеров относится малошумная работа. На климатическом рынке сегодня можно встретить модели на любой вкус, по функциональности не уступающие бытовым сплит-системам.
Управление кассетами (кассетными кондиционерами) не вызывает никаких трудностей. Производители обычно предусматривают два пульта для одного устройства: настенный и дистанционный.
Сплит-системы кассетного типа бывают как небольшими, так и мощными, рассчитанными на промышленные помещения крупных размеров. Традиционно кассетные кондиционеры способны обеспечить поддержание нужных температур в помещениях от 30 до 180 м2.
Классическое применение рассматриваемых устройств — это магазины (залы супермаркетов, шоу-румы, торговые секции), банки, крупные офисные помещения, залы различного назначения. По нашему опыту, кассетные кондиционеры являются одними из приоритетов при установке в офисах, холлах гостиниц, спортивных залах, конференц-залах и ресторанах — по той причине, что они практически бесшумны, органично вписываются и не портят дизайн помещения.
Добавим, что кассетные кондиционеры можно устанавливать, когда уже сделан ремонт, и монтаж кассетного кондиционера не разрушит внутреннее оформление. Что было бы невозможно при установке канального кондиционера. При монтаже на руку сыграет и заведомо длинные трубопроводы хладагентов: максимальная длина – 70 м (1) и максимальный перепад высот до 30м (2).
Наша компания осуществляет поставку, профессиональное проектирование и установку кассетных кондиционеров.
голоса
Рейтинг статьи
Монтаж климатического оборудования
Чтобы оптимизировать работу кондиционера, внутренний блок устанавливают по центру помещения, а подведенные коммуникации скрывает конструкция подвесного потолка. Монтаж кассетного кондиционера проводится только профессионалами и включает этапы:
- Установка наружного блока на внешней стене здания и прокладка коммуникационных компонентов.
- Установка внутреннего блока на потолке помещения.
- Прокладка воздуховодных путей.
- Подсоединение кабелей.
- Закрепление устройства подмеса воздуха (при наличии).
- Крепление лицевой панели внутреннего блока.
- Проведение пуско-наладочных работ.
Высота межпотолочного пространства должна быть 25-40 см
Установка внутреннего блока кассетных кондиционеров начинается с частичного разбора потолка:
- убирают одну или 2-3 плиты;
- устанавливают крепеж для кассеты, закрепляя на перекрытии подвесами на анкерных болтах, идущих в комплекте;
- сняв решетку кассеты, внутри закрепляют на подвесах внутренний блок кондиционера;
- выполняют подключение трассы хладагента и соединение оборудования с линией электропередач;
- подключают систему отвода конденсата.
Рекомендации к монтажу
Внутренний блок кассетного типа устанавливается так, чтобы лицевая панель расположилась на одном уровне с поверхностью потолка. Если кондиционер включает систему подмеса воздуха наружного обращения, воздуховод выносят наружу, после чего крепят очистительный фильтр и воздушную заслонку. При работе оборудования воздух будет охлаждаться и разбавляться свежим, предварительно очищенным потоком с улицы.
Лицевая декоративная решетка комнатного блока подлежит установке после завершения монтажа компонентов климатического оборудования и косметической отделки. На последнем этапе подключают питание и включают оборудование. При отсутствии ошибок монтажа и корректной работе системы, остается провести индивидуальную настройку параметров работы кондиционера.
Установка кондиционеров PANASONIC
схема установки сплит-системы настенного типа
Бесперебойную работу климатического оборудования обеспечит профессиональный монтаж. Самый правильный вариант – покупка кондиционера PANASONIC с его установкой бригадой квалифицированных специалистов, которые в дальнейшем будут производить регулярное обслуживание техники и в случае необходимости ее ремонт.
Только опытные монтажники смогут аккуратно закрепить приборы на месте их расположения, правильно воспользоваться электрическими схемами, инструкцией по монтажу кондиционера PANASONIC, запустить систему в работу и соблюсти технику безопасности. Взаимодействие с профессионалами – это гарантии того, что деньги потрачены не зря.
Помимо этого, есть еще несколько существенных преимуществ, говорящих в пользу покупки кондиционера с установкой, а конкретно:
- скидки на 10-15% от общей стоимости;
- экономия времени покупателя;
- гарантии на проводимые работы.
Обычно цена на кондиционер PANASONIC с установкой зависит от технических параметров самого прибора и места его размещения. От этого будет рассчитываться количество расходников и сложность проводимых работ, а, следовательно, и определяться итоговая сумма.
Виды сплит-систем, их преимущества и недостатки
Системы кондиционирования всех видов состоят из двух блоков – наружного и внутреннего. Различаются они в зависимости от внутреннего устройства.
Настенные системы кондиционирования очень часто применяют в частных квартирах и домах, хотя они отлично будут работать и в офисе небольшой площади. У таких кондиционеров много преимуществ:
- Большой ассортимент в магазинах бытовой и климатической техники, что позволяет сделать оптимальный выбор любому покупателю;
- Сравнительно невысокая стоимость, в зависимости от бренда можно подобрать устройство на запланированную сумму;
- Низкий уровень шума, такой кондиционер не доставит неудобств домочадцам;
- Красивый и современный дизайн, который позволит органично вписать такой кондиционер в любой интерьер;
- Возможность работать в энергосберегающем ночном режиме.
Из недостатков можно назвать трудность монтажа, для которого чаще всего требуется привлечение специалистов.
Канальные сплит-системы устанавливают в офисах и крупногабаритных квартирах. Эта система может одновременно охлаждать до пяти жилых комнат. Монтаж происходит за подвесным потолком, который хорошо прячет внутренний блок кондиционера. Холодный воздух распространяется по комнатам с помощью системы трубок, которые тоже спрятаны в потолочном пространстве. Часто в обычных квартирах внутренний блок устанавливают в тех помещениях, где можно пожертвовать высотой комнаты – это санузел, кладовка, коридор.
Канальная сплит-система
- Легко спрятать за подвесным потолком;
- Может охлаждать несколько комнат одновременно;
- Возможен подмес свежего воздуха с улицы.
Недостатком является то, что для каждой комнаты невозможно выбрать свой температурный режим. Температура выставляется только в той комнате, где смонтирован внутренний блок устройства.
Кассетные сплит-системы устанавливают в тех местах, где систематически собирается много народа. Это концертные залы, конференц-залы, торговые и развлекательные центры. С помощью такой системы очень быстро охлаждается помещение любых габаритов. Для установки кассетной системы требуется подвесной потолок, за который прячутся все коммуникации. Достоинства таких кондиционеров очевидны:
- Все коммуникации скрыты за подвесным потолком, что не портит интерьер;
- Кондиционер красиво декорируется решеткой, которая по размеру как потолочная плитка;
- Охлажденный воздух одновременно расходится в четырех направлениях.
Кассетная система кондиционирования воздуха
Из недостатков можно назвать большую стоимость и небольшие трудности с монтажом системы.
Напольные и потолочные сплит-системы устанавливают в просторных помещениях, где нет подвесных потолков и по какой-либо причине нельзя установить другие кондиционеры. Часто это огромные помещения с солидной долей остекления. У таких устройств маленькая глубина, до 25 см и их устанавливают внизу стены или на потолке. Если система монтируется около пола, то охлажденный воздух поднимается вверх, если на потолке, то распределяется вдоль поверхности потолка. Достоинствами такой системы являются:
- Силу каждого из четырех потоков можно регулировать;
- Холодный воздух распределяется равномерно и не попадает на людей, которые есть в комнате;
- Возможность монтажа без наличия подвесных потолков;
- Возможность охлаждения комнат замысловатой формы.
К отрицательным характеристикам можно отнести только большую стоимость данной системы охлаждения.
Сплит-системы колонного типа с успехом используют в больших зданиях, где невозможно выполнить монтаж других видов кондиционеров – это театры, музеи, гостиницы. Такое устройство дает большой поток холодного воздуха. Достоинства колонного типа такие:
- Быстрое охлаждение даже очень больших помещений;
- Удобство регулировки температуры воздушного потока.
У колонной системы есть такой недостаток – необходимость достаточно большой площади для установки, такой кондиционер внешне выглядит как холодильник.
Перед покупкой необходимо внимательно изучить технические характеристики сплит-систем и выбрать именно ту, что подходит по всем параметрам. Нужно чтобы система кондиционирования соответствовала площади помещения, иначе охлаждение комнат может быть плохим.
Материалы и инструменты для установки
Чтобы самостоятельно установить сплит систему, потребуется приобрести следующие материалы.
- Электрические кабели. Какое требуется сечение кабелей, указывается в инструкции по монтажу. Чаще всего используется 4-х жильный кабель, имеющий сечение от 2 до 2,5 квадрата. При расчете длины учитываются все изгибы и добавляется небольшой запас, около 30 см.
- Кронштейны. Имеют Г-образную форму и подбираются по размеру выбранного вами агрегата. На них производится монтаж наружного, самого тяжелого блока кондиционера.
- Медные трубки. Они должны быть толстостенными и бесшовными, и специально предназначенными для систем кондиционирования. Концы трубок обязательно закрываются заглушками, не дающими попасть внутрь различному мусору. Длина трубы должна быть равна длине трассы. Обязательно следует учитывать изгибы, и к полученному значению еще добавить 20-30 см. Диаметр трубок зависит от производителя оборудования. Прилагаемая инструкция по установке кондиционера может дать ответы на вопросы по поводу диаметров медных трубок.
- Теплоизоляция. Для этих целей обычно используют каучуковый “рукав”. Он может быть любого цвета. Длина должна равняться длине всей трассы с запасом, умноженной на 2.
- Армированный скотч.
- Анкера.
Без специального инструмента также не обойтись:
- трубогиб (как пользоваться, показано на видео);
- риммер-зачистка;
- труборез (как им пользоваться, можно узнать из видео);
- вальцовка (см. видео);
- манометрический коллектор;
- вакуумный насос.
Принцип работы и особенности

Как и обычные сплит-системы, кассетный кондиционер включает в себя наружный и внутренний блок. Наружный располагается с внешней стороны помещения, а внутренний устанавливается в межпотолочном пространстве и маскируется за подвесным потолком. При этом передняя панель соответствует размеру плиты подвесного потолка, поэтому она органично встраивается в помещение. Такие установки могут использоваться для офисов, конференц-залов, кинотеатров, ресторанов и других просторных помещений любого назначения.
Если у вас есть большое помещение с тёплыми или прохладными зонами, кассетный кондиционер может с лёгкостью это исправить. Некоторые модели предлагают возможность закрытия одного или двух вентиляционных отверстий, что удобно, если по какому-то из направлений воздушный поток не нужен. Например, это очень удобно для коридора, где вы можете направлять поток воздуха лишь в двух направлениях. Ну а если вы установите его возле стены, и захотите направить воздух только в трех направлениях, что логично, вы сможете закрыть одно вентиляционное отверстие, чтобы он не дул прямо на эту стену.
Кондиционеры кассетного типа обладают следующими преимуществами:
- Потолочный монтаж для равномерного охлаждения пространства. Однако его установка должна планироваться заранее, так как ему требуется большое расстояние между базовым и подвесным потолком.
- Большая площадь охлаждения в сочетании с невысоким уровнем шума во время работы. Это позволяет использовать данную разновидность климатической техники для промышленных и коммерческих помещений.
- Высокая производительность. В отличие от классических бытовых сплит-систем, кассетные модели подходят для помещений большой площади. Их устанавливают в залах, где постоянно бывает много посетителей.
Устройство бытового кассетного кондиционера
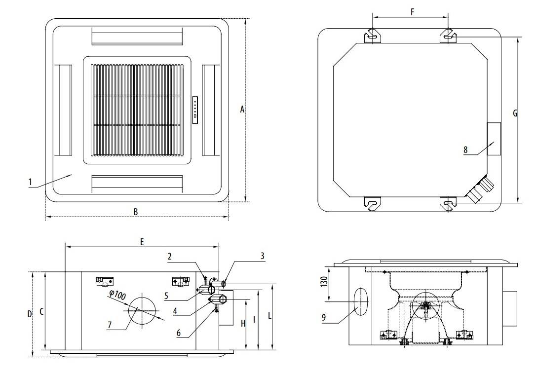
Охлаждающая техника кассетного типа представляет собой двухмодульную систему, благодаря которой осуществляется функция охлаждения воздуха до заданной температуры.
Комплект кассетной сплит-системы составляют модули:
- Внешний (уличный).
- Внутренний (квартирный, офисный).
Оба модуля комплекта являются индивидуальным блоками, которые при монтаже системы в рабочее состояние объединяются технологическими трубопроводами и электрическими соединениями.
Нужно отметить: сплит-системы кассетного типа чаще используются в качестве офисного оборудования, устанавливаются на объектах малого бизнеса и внутри административных зданий.
Применение в квартирах или домах – явление достаточно редкое. Основная причина такого расклада – необходимость устройства на объекте фальш-потолка, потому как внутренний модуль имеет назначение монтажа под потолком.
Строение внешнего модуля
Эта часть конструкции кассетного кондиционера полностью соответствует классическому исполнению бытовых систем кондиционирования воздуха.
Блочный уличный модуль содержит внутри следующие компоненты:
- компрессор;
- конденсатор;
- вентилятор;
- элементы автоматики;
- электрические детали.
Компрессор и конденсатор объединяет холодильный контур, заправляемый фреоном, от которого через пару линейных запорных кранов сделаны контактные точки для соединения с внутренним блоком.
Электрические соединения под автоматическое управление и питание компрессора внешнего модуля также выводятся на контактную панель внутреннего модуля, где коммутируются соответствующим образом (по схеме) и выводятся на общее питание.
Особенности внутреннего блока
Эта часть кондиционера выполнена в виде рабочей блочной кассеты с панелью, предназначенной для встраивания в потолочную конструкцию. Причём потолочная конструкция должна иметь так называемый фальш-потолок.
Рабочий (системный) блок «прячется» под фальш-покрытие, а распределительная панель остаётся на одной плоскости с фальш-покрытием.
Распределительная панель внутреннего кассетного блока в целом содержит несколько элементов:
- Воздухозаборную решетку.
- Фильтр грубой очистки.
- Фильтр ионизатор.
- Жесткую раму.
- Лицевую накладку.
- Распределительные жалюзи.
Воздухозаборная решетка с фильтрами ионизации, грубой очистки и жесткой рамой располагается в центральной области распределительной панели.
По периметру – на боковых сторонах той же распределительной панели – размещаются каналы выхода охлажденного воздуха, дополненные жалюзи с автоматической цикличной регуляцией потока.
Лицевая накладка распределительной панели кассеты, кроме всего прочего, содержит плату световой индикации и дистанционного управления. Есть модельное исполнение, укомплектованное проводным пультом управления.
Рабочий блок кассеты, «спрятанный» под фальш-потолком, является частью холодильной конструкции, включающей: испаритель, вентилятор, устройство отвода конденсата, узлы подключения линий от наружного модуля, плату электрических соединений.
Выбор места
Наличие двух и более блоков у климатического оборудования предусматривает выбор места для каждого из них. Перед началом монтажных работ понадобится сопроводительная документация.
Нужно ли разрешение на установку кондиционера
Конструктивно кондиционер представляет систему с внутренним и наружным блоком, который крепится на фасаде.
Многоэтажный дом, на основании ст. 246 ГК является общим имуществом с правом распоряжения у всех собственников. Монтаж оборудования без согласования является нарушением:
- устройство издает шум, гудит, нарушая спокойствие соседей;
- конденсат может испортить фасад здания или попасть на балкон снизу;
- габаритный блок перекрывает обзор или вид и окна;
- существуют риски растрескивания стен, замыкания проводки и возгорания.
На основании п. 1 ст. 25 ЖК монтаж сплит-системы рассматривается как реконструкция или переоборудование помещения. П. 3.5.8 Постановления № 170 сообщает о недопущении установки кондиционера без разрешения от управляющей компании и соседей. Согласие или отказ можно получить только после собрания жильцов дома.
Важно! Жители частных домов могут приступать к установке сразу после покупки устройства. Разрешение требуется в обязательном порядке, если:. Разрешение требуется в обязательном порядке, если:
Разрешение требуется в обязательном порядке, если:
- монтажные работы проводятся на лицевой части многоэтажки;
- пользователь живет в доме, представляющем ценность, с точки зрения истории и культуры;
- сплит-система расположена над пешеходными дорожками;
- на оконном проеме, где находится блок, нет специальных ограждений.
Важно! Управляющая компания не имеет права снимать кондиционеры. Ст. 330 УК рассматривает такие действия, как самоуправство. Демонтаж устройств проводится только по решению суда
Демонтаж устройств проводится только по решению суда.
Выбираем место для внутреннего блока
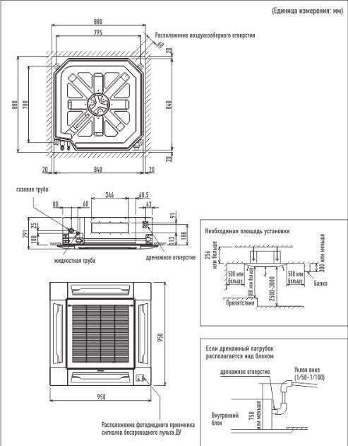
Монтаж внутреннего модуля кондиционера проводится своими руками так, чтобы потоки холодного воздуха не доставляли дискомфорт. Его допускается располагать над изголовьем дивана, сбоку и сзади от рабочего места. Строительными нормативами определен порядок расположения внутреннего блока:
- от конструкции до потолка — не меньше 15 см;
- от модуля до правой или левой стены — не меньше 30 см;
- от блока до пола — 280 см, но для квартир на первом этаже наружный блок монтируется на одном уровне или ниже внутреннего;
- от препятствия по движению воздухопотоков — не меньше 150 см;
Совет! В комнате с диваном и телевизором кондиционер лучше поставить над диваном.
Куда определить наружный блок?
Наружный модуль располагают около оконного проема или на открытой лоджии. Если балкон застеклен, блок размещают на ограждении с хорошей несущей способностью или на фасаде. Жителям 1-2 этажа нужно определить место для наружного модуля как можно дальше от прохожих. На 3 и более этаже допускается ставить устройство под окном или сбоку.
В частном доме наружный блок ставится на стене с высокой несущей способностью. На вентилируемых фасадах организовывают специальное крепление или помещают блок на цоколь.
Определение расстояния между блоками
Максимальная длина межмодульной трассы — 6 м, при превышении понадобится дополнительная закачка фреона. Если наружный и внутренний модуль размещены на расстоянии 1 м, трасса не должна превышать 5 м. Излишки системы формируют в кольцо и располагают за блоком.
Интересно знать! Производители указывают различную максимальную дистанцию между блоками. Для техники Daikin оно составляет 1,5-2,5 м, для Panasonic — 3 м.
Достоинства и недостатки оборудования
Климатическая техника игры на кассете, помимо классической, имеет свои плюсы и минусы. О чем мы поговорим более подробно позже.
Основные преимущества кассетных моделей
Явным преимуществом сплит-кассетных систем является равномерность распределения воздушного потока по площади помещения.
Кроме того, этот преобладающий фактор напрямую связан с потребностями монтажа, согласно которым установка подвесного потолка предусмотрена исключительно в центральной части помещения.
Благодаря оптимальному расположению кассеты и такому же оптимальному распределению воздуха можно более эффективно охлаждать помещения до необходимой температуры.
Еще одно преимущество – архитектурная составляющая. В то время как классические сплит-системы с внутренними настенными модулями создают реальные проблемы с точки зрения организации дизайна, кассетные модули здесь проще.
Один из вариантов дизайна комнаты, где по проекту предполагается установка кассеты на потолке. Довольно привлекательное решение, исключающее видимую разводку силовых каналов и кабелей
Кроме того, кассеты, часто встраиваемые в потолок, становятся элементами дизайна, повышающими его общую привлекательность. Особенно это отмечается в дизайне офисов и административных помещений.
Очевидные недостатки техники
Кассетные сплит-системы также имеют довольно серьезные недостатки. Ограничения на установку рассматриваются как один из этих очевидных недостатков. В частности, возможность установки оборудования только в местах с подвесным потолком.
В то же время не все потолочные конструкции могут соответствовать требованиям к установке, поскольку требуется некоторое пространство между реальным потолком и подвесным потолком.
Результат неплотного уплотнения: 1 – корпус модуля; 2 – решетка; 3 – крыло ревности; 4 – корпус распределительного щита; 5 – уплотнение; 6 – охлаждаемый воздух; 7 – потеря охлажденного воздуха из-за негерметичности
Недостатком таких систем может быть плохая изоляция между нижней частью корпуса кассеты и распределительной панелью (изображение выше). В этом случае охлажденный воздух попадает в пространство под потолком и конденсируется.
В результате отмечается эффект протечек, а как следствие – разрушение части конструкции подвесного потолка. Однако этот недостаток можно устранить технически, при помощи качественного утеплителя.
Трубопровод
Чтобы фреон имел возможность свободно циркулировать, а на компрессор не выяснялась громадная нагрузка, принципиально важно выполнять пара несложных условий
- Выполняйте максимально допустимую протяженность фреонной магистрали.
- На всем участке не должно быть более 15 изгибов.
- Не делайте угол изгиба больше 90?.
- Радиус изгиба не должен быть меньше 100 мм.
- Для некоторых моделей имеется такое условие, что в случае если протяженность трубопровода не превышает 8 м, то хватит того хладогента, который находится во внешнем блоке и не требуется будет дополнительно наполнять его.
- По окончании монтажа раструбов, нужно произвести вакуумную обработку контура. Для этого к клапану на внешнем контуре подключается насос. Его нужно включить на 15–20 мин.. Он уберет целый остатки и воздух жидкости.
- На протяжении откачки возможно проверить систему на целостность, пройдясь по всей протяженности трубы.
- В то время, когда вакуум был создан, возможно открыть запорный клапан, дабы фреон заполнил систему. Затем возможно еще раз проверить целостность системы при помощи мыльного раствора, нанесенного кисточкой на места соединения.

Это интересно: Рекуперация тепла в системах вентиляции: что это, принцип действия + схемы
Монтаж внутренней части
Установка простых кассетных кондиционеров начинается с монтажа внутреннего блока. Лучшее место для кондиционера — в центре комнаты. Устройство будет наиболее эффективно и полезно, сможет создать правильный воздушный поток.
Перед монтажом блока создается картонный образец, совпадающий по размерам с устройством (если такого образца нет в комплекте с устройством).
Образец прикладывается к месту на стене или потолке, чтобы определить фронт работ. Если есть такая необходимость, проводится обрезка профиля потолка (алюминиевого), но только после его тщательного укрепления. Для снижения вибрации внутреннего блока перед монтажом потолок дополнительно оснащается пенопластовыми вставками. Для шпилек, на которых будет держаться кондиционер, проделываются отверстия с помощью дрели.
Монтаж дополнительных труб
С помощью уровня проверяется положение блока (иначе в будущем будет собираться жидкость). После этого измеряется расстояние для будущей магистрали с фреоном. Трубы, которые идут в комплекте с устройством, аккуратно подрезаются под сделанные замеры
Важно вычистить всю металлическую стружку, которая может оставаться в обрезках. Для обработки краев труб используются специальные инструменты
Для установки труб проводится изоляции с помощью скотча или липкой ленты
Затем труба утепляется и вешается на подготовленные крючки. С помощью стяжек трубы фиксируются, чтобы избежать их расшатывания во время прохождения воздуха. Изогнутые трубы нуждаются в дополнительном креплении – вручную труба не сгибается, это может повредить или сломать ее. Если длины трубы не хватает, можно нарастить через увеличение диаметра. Заключительная подгонка труб — сварка отдельных частей.
Для установки труб проводится изоляции с помощью скотча или липкой ленты. Затем труба утепляется и вешается на подготовленные крючки. С помощью стяжек трубы фиксируются, чтобы избежать их расшатывания во время прохождения воздуха. Изогнутые трубы нуждаются в дополнительном креплении – вручную труба не сгибается, это может повредить или сломать ее. Если длины трубы не хватает, можно нарастить через увеличение диаметра. Заключительная подгонка труб — сварка отдельных частей.
Подсоединение внутренней части системы
Закрепленные трубы следует подключить к блоку. Для этого проводятся последовательные действия:
- трубы подводятся к соплам внутренней части устройства;
- гайка надевается на патрубок;
- к трубе крепится конус;
- конус надежно фиксируется;
- между блоком и трубой крепится утеплитель.
После окончательной фиксации соединительных частей устанавливается планка, которая прикрывает трубы. С помощью уровня устанавливается облицовка – внутренний блок полностью прикрывается и подстраивается под декор.
Выводы и полезное видео по теме
Опыт установки внутреннего блока «кассетника» в этих двух видео-роликах:
Вторая часть руководства:
Как подключить трубопроводы и электропитание к кассетному кондиционеру, узнаете из этого видео материала:
Монтаж кассетных кондиционеров, как правило, выполняют мастера из сервисной службы. Это объясняется как сложностью крепления, организации воздушных коммуникаций, так и необходимостью наладочных работ. Последние требуют определенного опыта, поскольку в конструкции оборудования присутствует множество узлов, в т.ч. электроника и автоматика.
Расскажите о том, как устанавливали кассетный кондиционер в вашем офисе или загородном доме. Не исключено, что ваши рекомендации очень пригодятся посетителям сайта. Пишите комментарии, пожалуйста, в находящейся ниже блок форме, задавайте вопросы и публикуйте фото по теме статьи.





































