Как построить туалетный домик
Чтобы построить дачный туалет, придется заранее определиться с его габаритами. Размеры для домика обычно подбираются индивидуально, но есть и рекомендуемые значения. Оптимальное сочетание длины и ширины – 1 х 1,5 м, а высота – около 2-2,5 м. Делать туалет меньше указанных значений нежелательно – он будет недостаточно просторным, особенно если им будут пользоваться люди с крупным телосложением.

Перед тем, как установить дачный туалет, нужно тщательно все подготовить. Чтобы устанавливаемый своими руками деревенский туалет был достаточно устойчивым, его нужно устанавливать на легкий фундамент. В пространстве между фундаментом и основой укладывается пара слоев рубероида, который будет выполнять функцию гидроизоляции. Если речь идет о легком деревянном домике, то в качестве фундамента можно использовать бетонные блоки или опорные столбы.
Установить каркас на четырех опорах несложно. Участки, где будут расположены углы будущего туалета, нужно углубить на глубину около 0,6-1 м (чем мягче почва, тем глубже должны быть ямы). Внутрь опускаются трубы из асбеста. Ямы на треть заливаются бетонным раствором, после чего в трубу заводится опорная балка. Остается лишь полностью заполнить оставшееся в углублениях пространство.

Следующий этап работы – сборка каркаса, которая проводится следующим образом:
- В первую очередь нужно подготовить материалы. Для некапитальных дачных построек вполне подходят брусы с квадратным сечением и стороной от 50 до 80 мм. Использовать более массивные изделия бессмысленно – таких нагрузок временный туалет на даче испытывать не будет.
- Сначала нужно собрать прямоугольную опору с перемычкой, вдоль которой будет располагаться передняя сторона стульчака. Опора прикручивается к основанию, а поверх нее настилаются доски. Для формирования пола можно использовать доски толщиной от 30 мм.
- Следующий шаг, который подразумевает строительство туалета на даче своими руками – формирование каркаса для всех стен туалета. Переднюю стенку делают немного выше задней – это позволяет создать достаточный наклон крыши, благодаря которому с нее будут самостоятельно отводиться все атмосферные осадки. На всех стенках, кроме передней, желательно установить диагональные укосины, повышающие жесткость конструкции.
- В переднюю стенку будет встраиваться дверь, а это значит, что нужно смонтировать крепления для нее. Все размеры должны соответствовать проекту. Кроме двери, в верхней части передней стены устанавливается еще и окно, для которого тоже нужно сделать подходящее отверстие.
- Собранный каркас соединяется с основой железными уголками. Над стульчаком и на его уровне нужно обязательно сделать качественную обвязку. Последнее действие на данном этапе – обустройство стульчака или альтернативного варианта (например, обычного унитаза).

Когда каркас смонтирован и укреплен, можно заняться его обшивкой. В качестве материала для обшивки чаще всего используют деревянные доски, но можно использовать и альтернативу (вполне подойдет металлопрофиль, шифер или иной листовой материал). Располагать их можно как вертикально, так и горизонтально – в первом случае получается неплохая экономия, а во втором – красивый туалет на даче, который будет не только функциональным, но и весьма эстетичным.
Доски подводятся друг к другу с минимально возможными зазорами и фиксируются на основе постройки. Перед тем, как строить туалет на даче, желательно пропитать деревянные детали специальными составами, которые обеспечат защиту материала от бактерий и влаги. Когда пропитка полностью высохнет, доски стоит покрыть краской или лаком, чтобы защитить их еще и от физических повреждений. Кроме того, покрытие положительно влияет на декоративные свойства домика.
Организация выгребной ямы
При необходимости возвести такую конструкцию как туалет на даче своими руками инструкция, чертеж с размерами, поможет вам организовать эту работу. Часто канализационный сток для такого строения является накопительной емкостью. Сконструировать такую систему довольно легко. Но предварительно необходимо правильно подобрать размер и местонахождения. Если ошибиться, нечистоты будут травить не только почву, но и саму жизнь владельца участка.
Во время начала работы часто возникает масса вопросов по теме как сделать туалет на даче своими руками, чертеж и чем лучше выкопать яму? Для этого можно воспользоваться лопатой или нанять услуги экскаватора
Но важно не это, а последующая отделка стока. Для конструирования ям применяются множество материалов
Срок эксплуатации готового строения зависит от правильности выбора технологии изготовления.
Нужно знать, что канализационные ямы могут быть накопительными и фильтрующими. Накопительные нуждаются в частой выкачке, а фильтрующие загрязняют почву. В принципе ямы с недостаточным показателем герметичности запрещают, но на дачных территориях все же их конструируют.
Ямы для туалета на даче своими руками конструируются из:
- кирпича;
- пластикового бака;
Для конструирования такой системы из выбранного материала необходимо выкопать яму, лучше это делать с помощью лопаты. Объем данной конструкции не большой, но с помощью лопаты она будет ровной. Таким образом облегчается процесс кладки кирпича. Во время данной процедуры, стоит учитывать параметры кирпича, и слой гидроизоляции. Лучше копать на 20 см шире и глубже чем вам необходимо.
Когда яма для туалета на даче своими руками выкопана, ее необходимо обустроить. Дно необходимо утрамбовать, засыпать слой песка в 15 см и также плотно утрамбовать. Затем на площадь дна укладывают битый кирпич и армирующую сетку. И заливают бетоном, также слоем в 15 см. Если дно будет фильтрующего типа, то на песочный слой насыпают щебневый слой.
Для кладки кирпича, необходимо по периметру залить фундамент. Отделка стен канализационного стока для туалета на даче своими руками проводится на половину кирпича. Для этого вида отделки рекомендуется использовать кирпич силикатного типа, красный более подходящий вариант. Более долго прослужит сделанная яма для туалета на даче своими руками из шлакоблока. После завершения кладки, если решили, что яма будет герметичной, то необходимо промежутки и швы залить раствором или мастикой, а затем накрыть ее.
Если имеются размеры и чертеж туалета на даче своими руками можно перекрытие организовать таким образом:
- Для конструирования плиты перекрытия, нужно предварительно заполнить грунтом пустоты между кладкой и землей. Во время такой манипуляции желательно оставит расстояние в 20 см до верха конструкции, в этот промежуток, необходимо залить бетон, который выступит в роли укрепления под перекрытие.
- Чтобы бетон не попал в яму, ее надо накрыть листами металла или жести, но для уверенности что лист не прогнется в яме устанавливаются опоры. Сам раствор изготавливают из цемента и песка. Цемент желательно брать марки 400. Замес делается по соотношению 1 к 3, а именно 1 цемент и 3 песка. Если имеется щебень, то лучше добавить и его, так улучшается качество раствора и он становится более надежным. Плита заливается монолитно.
Чтобы плита получилась более надежной, делается армирование участка и только потом заливается. Чтобы сделать туалет на даче своими руками чертежи вам помогут.
При конструировании сливной ямы в туалет на даче своими руками инструкция, чертеж с размерами должны быть обязательно, особенно, если используется пластик
Важно учесть, что выкопать такую яму необходимо немного большего размера, примерно на двадцать сантиметров с каждой стороны. Заливка дна проводится по тому же принципу, что и в ямах с кирпича
Но еще во время армирования под плиту перекрытия, необходимо изготовить 2 петли. К ним в дальнейшем будет привязан бак.
После полного застывания бетона в яму опускается емкость, и привязывается к петлям, которые не дадут легкому материалу, под воздействием грунтовых вод всплыть на поверхность. Теперь необходимо заполнить землей пустоты между котлованом и самой емкостью. Идеально будет если пустоты заполнить смесью песка с цементом.
Рекомендуется, во время засыпки пустот емкость наполнить водой. Таким образом она под давлением не помнется.
Виды устройства туалетов в загородных условиях
Существуют различные методики устройства туалетов на загородном участке, которые применяются в местах, где отсутствует канализация. Все они полностью автономны и не требуют наличия водопровода и сложных канализационных сооружений. Некоторые из них достаточно просто купить в магазине. Другие нужно соорудить на участке по установленным правилам.
Туалет на даче обшитый сайдингом смотрится весьма неплохо
Туалеты бывают следующих видов:
обычный туалет, имеющий яму для экскрементов, выглядит как кабинка, установленная над ямой, глубиной не менее 1,5 м. Кабинка изготавливается из любого материала от досок до пластика. Поверхность стен и дна септика укрепляется во избежание обвала. По мере необходимости нечистоты удаляются. Место для сидения устраивается в виде стула или просто делается отверстие в полу;
Туалет на даче может выглядеть очень оригинально
пудр-клозет. Этот тип отличается от предыдущего отсутствием каких-либо углублений в земле. Вместо этого под место для сидения устанавливается любая подходящая емкость. По окончании каждого пользования, экскременты обильно посыпаются торфом или обычной золой. Процесс похож на припудривание. Отсюда и такое название. Емкость имеет вентиляцию, выходящую наружу. По мере наполнения содержимое выносят в яму для компоста, где, благодаря торфяной смеси, оно перерабатывается в прекрасное органическое удобрение;

Аккуратный туалет из строганной доски
туалет типа люфт-клозет можно устроить прямо в доме, около внешней стены. Яма должна частично заходить под дом в этом месте и иметь уклон наружу. Все внутренние поверхности септика должны быть полностью герметичными. Унитаз непосредственно соединяется с ямой при помощи канализационной трубы небольшой длины. Снаружи имеется люк для откачки содержимого. Такой вариант можно устроить в местах, где возможно организовать вывоз отходов на ассенизаторской машине;

Туалет в виде огромного пня
биотуалет – это устройство, изготовленное промышленным способом, оборудованное герметичным ведром с сиденьем сверху. Экскременты в нем нейтрализуются при помощи биореагентов, которые засыпаются внутрь;
Туалет из деревянной дранки
в химическом туалете, в отличии от предыдущего, применяются химические вещества для разложения отходов, что не позволяет использовать их как удобрения в дальнейшем на своем земельном участке;
Туалет на улице в японском стиле
торфяной туалет объединяет в себе особенности биотуалета и пудр-клозета. Имеет вид унитаза, оборудованного емкостью с торфом. Каждый раз вместо воды из емкости сыпется торф. Отходы скапливаются в ведре и могут быть применены как удобрение.
Деревянный туалет на даче с односкатной крышей
туалет на даче своими руками
Полезный совет! Экскременты, переработанные с помощью естественных биокомпонентов, являются прекрасным удобрением. Их необходимо утилизировать в яму для компоста, в целях дальнейшего использования на своем дачном участке.
Цвет деревянного туалета может гармонировать с окружающим ландшафтом
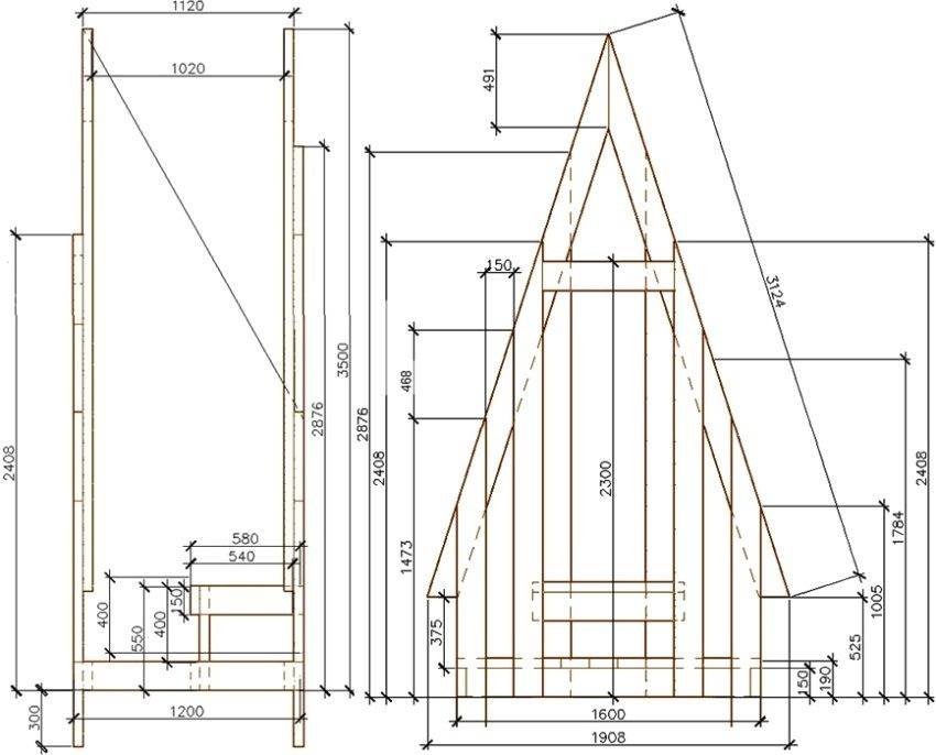
На основании чертежей строим туалет на даче своими руками по типу «Шалаш»
Надземная конструкция «Шалаш» имеет более сложное строение, чем у «Скворечника». Но все труды, потраченные на ее строительство, оправдывают себя, ведь в конечном итоге вы получаете эффектный внешний вид туалета.
Многие дачники выполняют стилизацию такой конструкции под сказочный домик. Благодаря этому на участках можно встретить очень интересные варианты оформления. Для вдохновения можно использовать фото туалетов для дачи своими руками, которых немало в сети интернет.
Строительство такого объекта как «Шалаш» начинается с формирования выгребной ямы. Размерные параметры могут быть взяты из предыдущего типового проекта. В зоне размещения углов ямы следует сделать углубления. В них будут помещены бетонные блоки
Очень важно при этом соблюсти точную геометрию. Чтобы конструкция получилась прямоугольной, необходимо измерять расстояние между бетонными блоками
Не забывайте проверять основание по диагоналям. Они также требуют измерения и должны в конечном итоге получиться одинаковыми.

Туалет «Шалаш», рисунок 1: чертеж с размерами, вид сбоку и спереди
Согласно этой простой инструкции можно без проблем выполнить монтаж туалета на основании подготовленных чертежей.
Поэтапное строительство:
монтаж фундаментного основания на изолирующий от влаги материал. Достаточно воспользоваться рубероидом, который предназначен как раз для этих целей. Укладка материала осуществляется в несколько слоев. 2-3 прослоек будет достаточно;

Туалет «Шалаш», рисунок 2: передняя стенка
- сборка нижней части каркаса. Для этого используется брус с сечением 50х50 мм. Размер основания составляет 1х1 м. Заколачивание делается с помощью обрезных досок. Эта своеобразная опалубка покрывается настилом из половых досок;
- изготовление технологического отверстия. В днище выполняется прорезь любой понравившейся формы. Здесь действуют такие же размерные ограничения, как и в случае со «Скворечником»;
- обработка деревянного основания антисептическими средствами. Нужно со всех сторон нанести на поверхность основания антисептическое средство. При выполнении туалета своими руками руководствуйтесь инструкцией, чтобы удостовериться в том, что все выполняемые вами действия верны;
- сборка задней и передней частей каркаса. Для выполнения этого этапа используйте чертежи, которые у вас имеются, или эскизы. Подойдут даже фото, взятые из сети, если вы достаточно хорошо разбираетесь в размерах и обладаете навыками в обращении с древесиной.

Туалет «Шалаш», рисунок 3: задняя стенка
Заключительные этапы строительства «Шалаша»
На заключительных этапах строительства выполняется установка всех деталей и доработка каркаса. Дальнейшая работа выглядит следующим образом:
- отделка деталей «Шалаша». Задняя и передняя стенки с внутренней части отделываются вагонкой;
- монтаж передней и задней стенок. Эти детали устанавливаются на пол и скрепляются с помощью обрезков, оставшихся от работы с досками;
- монтаж деревянной обрешетки из досок. После изготовления этого элемента выполняется его обшивка;
- организация крыши. С помощью досок, длина которых должна быть не меньше 1,8 м выполняется кровля для «Шалаша». Для этого материал следует упереть на заднюю и переднюю части конструкции и зафиксировать его крепежными элементами на деревянных рейках. В результате получится крыша;
- укладка кровельного материала;

Туалет «Шалаш», рисунок 4: каркас, обшивка пола и помоста
- монтаж конька (элемент крыши). Коньковую часть кровли можно украсить фигуркой, выполненной из древесины. Она позволит создать единый стиль оформления;
- установка дверной конструкции. Перед монтажом двери следует заранее закрепить на ней ручку и крючок. С наружной стороны можно прибить ветряную вертушку, имеющую произвольную форму;
- нанесение заключительной отделки. Древесину следует покрыть лакирующим или красящим составом на масляной основе.
Этот вариант туалета на приусадебном участке позволяет разгуляться фантазии и не налагает существенных ограничений в отношении дизайна. Используйте многочисленные фото и видео материалы для того, чтобы найти интересные идеи для своего сказочного домика.

Туалет «Шалаш», рисунок 5: внешняя обшивка
Пудр-клозет
Иногда на дачном участке слишком высоко расположенные грунтовые воды не позволяют соорудить большую и глубокую выгребную яму. В таком случае предлагается строительство своими руками пудр-клозета. Другое название, торфяной туалет (самый простой вариант), он получил из-за применения торфа в качестве наполнителя
Важно также знать, как его сделать правильно, чтобы во дворе не было проблем с запахом

Это одна из разновидностей туалета, главная отличительная особенность которой – отсутствие выгребной ямы. Вместо нее для сбора отходов используют специальный накопитель, расположенный под стульчиком. Его максимальный объем – 20 литров.

Устройство конструкции во многом похоже на обычный туалет, хотя некоторые отличия все-таки имеются
На них стоит обратить внимание при строительстве:
- При составлении схемы следует учесть, что кабина такого туалета устанавливается не на яму, а на бетонные блоки, закрепленные на земле.
- Конструкцию туалета можно собирать и устанавливать в любом месте дачного участка. Внутри настилают пол, чтобы ставить ведро не на землю, а на деревянный настил. В процессе планирования строения следует помнить, что размеры кабины клозета должны быть шире, чем у стандартного туалета, так как рядом с пьедесталом будет стоять ведро с торфом.
- Высоту пьедестала необходимо рассчитывать в зависимости от размера емкости для нечистот. Это следует учитывать до начала работ и правильно сделать замеры, чтобы после сборки ведро свободно могло помещаться под сиденье.
Заранее также необходимо продумать, каким образом ведро или другая емкость будет извлекаться из-под сиденья. Конструкция может быть выполнена в виде откидного стульчика. Можно сделать специальные дверки на обратной стороне постройки. Тогда ведро будет выниматься с улицы. Каждый делает выбор, какой вариант будет для него удобнее.

Принцип действия пудр-клозета заключается в том, что массы в накопительном резервуаре пересыпаются опилочными и торфяными смесями. Это предупреждает развитие гнилостных процессов и неприятного запаха.


Все отходы затем поступают в компостную яму, где и перерабатываются. Такой самый простой вариант туалета удобен тем, что нет необходимости производить выкачивание нечистот.
Если подключить немного творческой фантазии, то можно превратить обычную уборную на даче в эффектное украшение участка. Главное, хорошо изучить, как сделать туалет своими руками, и продумать детали.
Post Views: Статистика просмотров
1 839
Нормы расположения
Нормы, по которым необходимо располагать септик от различных объектов и строений, различается в зависимости от:
- назначения участка:
- санитарных норм;
- пожарных норм.
Порядок действий при строительстве септика:
- Определение места расположения объектов на участке.
- Получения разрешения Роспотребнадзора на установку септика.
- Проверка соответствия норм расположения всех объектов, включая источник питьевой воды, на участке.
- Застройка участка.
Важно! Закон запрещает установку септика без получения разрешения уполномоченного органа. А застройку участка нужно согласовать с отделом архитектуры и строительства
Теплый туалет на даче своими руками
Строительство любого жилого объекта начинается с сооружения туалета, и дачный участок не является исключением. Возведение дачного туалета доступно для реализации своими руками
Необходимо учесть основные требования, предъявляемые к этому типу сооружений, и принять во внимание рекомендации специалистов
Выбор места размещения дачного туалета
При организации уличного туалета на даче следует придерживаться правил, регламентирующих строительство. Более жесткие требования предъявляются к конструкциям с выгребной ямой. По санитарным нормам место, отведенное для туалета, должно отвечать условиям, описанным ниже.
Место его расположения удаляют на расстояние более 25 м от любого источника воды.
Важно выбрать место для туалета правильно
При наличии уклона рельефа на участке, место установки туалета должно находиться ниже, чем источник забора воды. Так исключено проникновение стоков в источник.
Близкое расположение строения к соседскому огороду может стать причиной дискомфорта, поэтому его нужно установить на расстоянии минимум одного метра от границы участков, причем дверь не должна открываться в направлении соседей.
Туалет располагают в удаленном месте от всех объектов, расположенных на участке. Это касается не только жилых строений, но и сарая, летнего душа, погреба, а также деревьев и построек, где содержатся домашние животные.
На выбор типа конструкции туалета решающее влияние оказывает глубина, на которой залегают грунтовые воды. Ограничения отсутствуют, если они располагаются на горизонте, глубина которого превышает 2,5 м. В противном случае не допускается установка туалета, оборудованного выгребной ямой.
Если предполагается монтаж конструкции, предусматривающей изоляцию грунта от стоков, то часть ограничений снимается.
Правила выбор места расположения дачного туалета
В каждой стране существуют санитарные нормы и строительные правила, распространяющиеся на возведение дачных туалетов. И такие требования нужно обязательно учитывать, в противном случае впереди такого безалаберного хозяина ожидают суды и перестройка «интересного заведения».
Нет смысла перечислять конкретные правила для каждой страны (хотя бы в пределах бывшего СССР), достаточно сделать общий обзор:
- Дачный туалет должен быть расположен от колодца на расстоянии не меньше 25 метров (в некоторых нормах это расстояние значительно больше) – только в этом случае можно не беспокоиться о качестве воды. Причем, это расстояние нужно выдержать и по отношению и к собственному колодцу, и к соседскому.
- Вряд ли будет разумно поставить дачный туалет из дерева посередине участка – это будет явным нарушением «личного пространства», сделает неудобным посещение строения по прямому назначению. Как правило, дачные туалеты строятся за домом, в углах участка, недалеко от забора. Но сразу же уточняем: рассматриваемое заведение должно располагаться на расстоянии 1 м от разделительного ограждения между двумя участками. Конечно, соседи «поймут и простят», но если попадется особенно въедливый, то судебных разбирательств и отодвигания «домика» не избежать.
- В случае расположения участка под наклоном при сложном ландшафте туалет должен располагаться в самой низкой точке.

Если уж следовать абсолютно всем требованиям, то нужно до строительных работ изучить розу ветров конкретно в вашей местности – это избавит от попадания неприятных запахов из туалета в дом или к соседям. Но в реальности этим никто не занимается, потому что правильный уход за дачным туалетом исключает возможность проникновения неприятных ароматов.
Наиболее популярным вариантом обустройства дачного туалета своими руками считается выгребная яма – значит, придется заранее позаботиться об удобном подъезде ассенизаторской машины.
Какие бывают дачные туалеты без выгребной ямы
Большой ассортимент дачных туалетов затрудняет выбор владельцев. Если вы ещё не знаете, какой вид купить для дачи, предлагаем вместе с нами выяснить все плюсы и минусы каждой модели.
Что это такое: дачный торфяной или сухой туалет
Дачный сухой туалет – это название уличного отхожего места, в котором размещён стульчак с крышкой. Отходы жизнедеятельности собираются в легко извлекаемую ёмкость. Рядом, в удобном доступе, обычно ставят контейнер с торфом для присыпки нечистот.
Из плюсов дачного торфяного биотуалета можно выделить следующее:
- полное уничтожение запаха;
- предотвращение размножения насекомых;
- многие впоследствии используют отходы, перемешанные с сухим материалом, как удобрение;
- это один из наиболее бюджетных вариантов;
- такую модель можно установить в любом месте участка, поскольку он никак не влияет на подземные воды.
Контейнер нужно очищать не реже двух-трёх раз в неделю. Содержимое можно просто вылить в яму с компостом или бак, в котором содержимое следует ещё раз пересыпать смесью торфа и земли.
Сухой материал в целях экономии и для увеличения объёма можно перемешивать с землейФОТО: commons.m.wikimedia.org
Для удобной выемки ёмкости, в задней стенке туалета обычно делают небольшую дверцу ФОТО: sad24.ru
Какие ещё бывают туалеты для дачи без запаха и откачки
Ещё один неплохой вариант для дачи – химический клозет, состоящий из двух модулей. В верхнем установлено сиденье, ёмкость с водой и устройство для смыва. Нижний оборудован абсолютно герметичным контейнером для отходов, поэтому неприятные запахи полностью исключены.
Когда резервуар будет полностью заполнен, его обязательно нужно очистить. Для этого придётся вылить отходы в специально отведённое место и заново наполнить водой, добавив новую порцию реагентов.
Отметим следующие преимущества биотуалетов:
- компактность;
- простота установки;
- гигиеничность;
- высокая износостойкость.
По отзывам потребителей, существенный недостаток у биотуалета для дачи только один: постоянные траты на реагенты. Стоимость модели напрямую зависит от объёма резервуаров и наличия дополнительных опций, например, индикатора заполнения контейнера, электропомпы для смыва жидкости.
Современные биотуалеты выглядят довольно симпатично ФОТО: biotualeto.ru
Для туалетов лучше выбирать биологические экологически чистые реагенты ФОТО: youla.ru
Не многие дачники знают о существовании электрических туалетов для приусадебного участка. Современные модели состоят из двух независимых контейнеров для приёма твёрдых и жидких отходов жизнедеятельности. Жидкие выводятся в землю или испаряются. Также возможно подключение к канализации. Твёрдые высушиваются до порошкообразного состояния компрессором.
Выделим несколько основных преимуществ электрических моделей:
- главным плюсом моделей является их редкая очистка, опорожнять резервуар нужно не чаще, чем два раза в год;
- ёмкости не требуют применения химических или биологических реагентов.
Из негативных особенностей следует выделить высокую стоимость и необходимость подводки электричества для работы резервуаров. Кроме того, потребуется монтировать вентиляцию для каждого контейнера.
Устройство электрического туалета для дачи ФОТО: greendom74.ru
Остатки твёрдых отходов после высушивания компрессором ФОТО: lewisgray.com
Статья по теме:
Устройство выгребной ямы
Подземная часть сортира для продуктов жизнедеятельности бывает двух типов:
- Выгреб – герметичная емкость, периодически очищаемая с помощью ассенизаторской машины;
- Септик – котлован с фильтрующей подушкой, пропускающей жидкие отходы в грунт.

Люфт-клозет с надземным резервуаром
Если вы готовы 1 раз в 3—5 лет вызывать спецмашину, чтобы очистить выгребную яму, то принимайте на вооружение первый тип подземной части. Устроить ее довольно просто: нужно вкопать в землю одну или несколько бочек, желательно пластиковых, так как металл быстро проржавеет. Другой вариант – поставить готовый пластмассовый резервуар с отдельным люком. Как в туалете для дачи обустроить выгребную яму с вентиляцией, отражено на схеме:

Вентиляционная труба служит для прямого удаления излишней влаги и запахов наружу, чтобы они не проникали внутрь уборной. Благодаря вытяжке помещение будет сухим, а деревянные стены прослужат дольше.

Теперь о том, как правильно построить сливной септик дачного туалета. Для изготовления используйте старые покрышки от грузовиков одинакового размера, это наиболее дешевый и проверенный вариант. Стройка ведется по такому плану:
- Выкопайте круглую яму глубиной 1,5—2 м, чей диаметр на 5 см больше размерности шин.
- Без трамбовки засыпьте ее дно поочередно песком, мелким гравием и крупным щебнем, толщина каждого слоя – 10 см. Вы получите фильтровальную подушку.
- Чтобы внутри шин не скапливались жидкие отходы, распространяющие запах, сделайте в боковинах по 3—4 сквозных отверстия.
- Уложите скаты в яму один на другой, одновременно подсыпая и уплотняя грунт по краям. Септик готов.
Более подробно и наглядно процесс обустройства показан в следующем видеосюжете:
Расстояние до туалета с выгребной ямой на 2019 год
Для дачных поселков санитарные нормы были подкорректированы с учетом постоянных жалоб и споров соседей по поводу дискомфорта от соседских туалетов. Согласно СНиП 30-02-97 с изменениями 2018 года и СП 53.13330.2011, на территории дачных поселков, сельских и городских поселений следует ставить туалеты с ямами выгребного типа на расстоянии 12 м вместо 8–10 м.
На их строительство для дачного поселка требуется разрешение СЭС на стадии проектирования. Вместо традиционных домиков над ямой рекомендуют строительство септиков и установку биотуалетов с переработкой специальными составами фекалий в неорганические вещества без запаха, а также пудр-туалета с переработкой фекалий в сухое вещество. Предусмотрены нормы на установку пудр-клозетов со сбором отходов в ящики с порошком, высушиванием содержимого и переработкой в неорганическое удобрение.

При наличии домашней канализации и рекомендованных СНиП типов ям, можно ставить туалет ближе. Размежевание с соседским домом биотуалета и септика допускается 6 м, для пудр-клозета – 8 м.
Расстояние от туалета до соседского жилого дома должны отмерять 12 м, как и до своего. Согласно изменениям в СНиП, допустимое расстояние до детской площадки и погреба остается от 8 метров.

На основании СанПиН 42-128-4690-88, для мест, где размеры участков не позволяют выдерживать расстояние до дворовых туалетов и ям для утилизации отходов, нормы устанавливаются комиссией, включающей в себя представителей:
- Квартального комитета.
- Районной архитектуры.
- СЭС – Санэпидемстанции.
- Жилищно-эксплуатационного отдела.
Комиссия по результатам осмотра участков составляет акт с рекомендациями по планировке наделов и изменениям минимальных расстояний между жилыми домами и туалетами. Документы сдаются в исполком или сельский совет для утверждения.

В сельской местности или в деревне, в городах и поселках уличный общественный туалет должен располагаться от общественных зданий, школ и магазинов на расстоянии от 20 до 100 м.
Какой туалет выбрать для дачи садовый сухой пудр-клозет


Сухой туалет (пудр-клозет) представляет собой небольшую конструкцию, в которой находится обычный деревянный стульчак с крышкой, а под ним расположена легко извлекаемая емкость. Рядом со стульчаком устанавливают емкость с торфом, опилками или другим сухим материалом для присыпки (припудривания) нечистот после каждого посещения туалета. Для такого припудривания отходов можно также использовать золу, сухой торф или торфяную крошку. При недостатке этих компонентов в данном виде туалетов для дачи разрешено использовать смесь этих материалов с сухой садовой землей. Из-за такого процесса припудривания и появилось название этого типа туалета.


С помощью присыпки можно избавиться от неприятного запаха, предотвратить размножение мух и получить полноценное удобрение.
Правильно оборудованный сухой туалет при правильном его использовании станет наиболее подходящим дешевым в эксплуатации вариантом. Принцип действия канализации такого туалета заключается в действии земного притяжения при наличии естественного уклона.
Каждые 3-4 дня заполненную емкость необходимо аккуратно вынимать через заднюю боковую дверцу и опорожнять в компостную яму или в специальный бак, где содержимое следует засыпать торфом или опилками.
Если туалетом пользуются 4-5 человек и более, то рекомендуется опорожнение емкости проводить чаще. Желательно удалять содержимое ежедневно, чтобы легче было поднимать емкость. Впоследствии из него можно получить компост, пригодный для удобрения огорода.
Решая, какой туалет сделать на даче, учитывайте, что возведение пудр-клозета вместе с затратами на оцинкованное или эмалированное ведро считается самым дешевым вариантом. Кроме того, существует и еще одно преимущество такого типа туалета: для его строительства не требуется никаких согласований
Важной особенностью пудр-клозета является отсутствие выгребной ямы, поэтому только такой тип туалета разрешено сооружать даже при высоком уровне грунтовых вод
Пудр-клозет на даче является идеальным дачным вариантом, особенно если на участке выращивается большое количество растений, для которых предполагается использование удобрений, потому что содержимое накопительной емкости такого туалета легко можно переместить в компостную кучу.
Сухой туалет для дачи может находиться в любом месте участка, его разрешено совмещать с баней или другими хозяйственными постройками. Кроме того, он может располагаться вблизи жилого дома или в пристройке под одной крышей с ним при наличии соответствующей вентиляции.
Дачный сухой туалет очень удобен в том случае, если на участке отсутствует водопроводная сеть. При использовании торфа или торфяной крошки для припудривания отходов получается подобие самодельного торфяного биологического туалета, у которого есть свои существенные преимущества перед туалетом с традиционной выгребной ямой.
При этом не нужно затрачивать лишние средства на покупку пластикового торфяного биотуалета.
Необходимо наличие компостной ямы на дачном участке, так как практически все биологические туалеты, встречающиеся в продаже, нуждаются в доступе к канализации или к компостной яме.

























































