Эксплуатация буржуйки: плюсы и минусы
Рассматривая отопительные агрегаты для гаража, важно оценить достоинства и недостатки каждого варианта, сравнить технические параметры и удобство эксплуатации. Самодельная буржуйка имеет ряд преимуществ перед теплогенераторами иного типа, но нельзя забывать и о некоторых недостатках
Самодельная буржуйка имеет ряд преимуществ перед теплогенераторами иного типа, но нельзя забывать и о некоторых недостатках
Самодельная буржуйка имеет ряд преимуществ перед теплогенераторами иного типа, но нельзя забывать и о некоторых недостатках.
Самодельная буржуйка для отопления гаража
Достоинства
Среди характеристик, которые обеспечивают конкурентоспособность буржуйки среди других отопителей для гаража, можно выделить:
- Быстрый розжиг. Если правильно смонтировать дымоход и обеспечить хорошую тягу, топливо в печке быстро разгорается и агрегат спустя 10-15 минут после розжига выходит на полную мощность работы. Кирпичной печке даже небольшого формата для этого требуется не менее часа.
- Высокий КПД. Даже без специальных доработок самодельная печка способна качественно прогреть гараж. Эффективность агрегата можно повысить, приварив металлические ребра или трубы к корпусу, чтобы обеспечить конвекцию, или смонтировав кирпичный экран либо кожух для аккумуляции тепла. Также буржуйку можно превратить в котел для радиаторного отопления.
- Универсальность. Можно использовать разнообразное твердое топливо, в том числе отходы деревообработки, растениеводства, бытовой бумажный и деревянный мусор.
- Равномерность обогрева. Независимо от того, в какой части помещения находится печка-буржуйка, прогревать воздух она будет равномерно.
- Многофункциональность. Буржуйка практически любой конструкции может оборудоваться варочной поверхностью. Такой агрегат используется не только для отопления, но и для приготовления пищи, нагрева воды.
- Невысокая стоимость. Для изготовления теплового агрегата используются бывшие в употреблении трубы, газовые баллоны, колесные диски, черный листовой металл. Сделанная своими руками печка требует минимальных денежных затрат.
- Экономичность. Правильно изготовленная буржуйка топливо расходует эффективно, за счет использования в качестве топлива различного рода отходов, стоимость отопления гаража в несколько раз ниже чем при использовании электрического оборудования.
Буржуйка собственного изготовления
Недостатки
К числу недостатков отопительного агрегата относят:
- Отсутствие аккумуляции тепла. Металлическая печка быстро нагревается, но и так же быстро остывает. Нагрев воздуха в помещении обеспечивается только в процессе сгорания топлива. Компенсировать этот недостаток поможет короб из кирпича, возведенный вокруг печки.
- Жесткие требования к дымоходу. Чтобы сила тяги позволяла эффективно сжигать топливо, высота дымохода должна составлять не менее 4 м, при этом следует соблюдать ограничения на угол наклона звеньев трубы, если дымоходный канал монтируется не строго вертикально.
- Потребность в регулярном обслуживании. Дымоходную трубу буржуйки необходимо регулярно очищать от сажи. При ежедневном пользовании печкой трубу небольшого диаметра (10-12 см) очищают раз в неделю, большого — один раз в полтора-два месяца. Скопившаяся сажа не только ухудшает тягу, но и способна загореться.
Ступенчатое расположение дымоотвода печи
Факторы влияющие на показатели
В отношении параметров дымоотводной трубы невозможно заявить, что чем она выше, тем предпочтительнее. Чрезвычайно длинный либо широкий газоход увеличивает затраты на строительство дымоотводов. Котел или печь с подобным дымоходом станет действовать на износ при избытке тяги, топливо будет сжигаться быстро, а значительная часть его будет бесполезно уходить в атмосферу, понижая эффективность системы теплоснабжения.
Размер сечения только частично влияет на длину трубы дымоходов. Иначе говоря, пользователю не удастся увеличить ее диаметр, для повышения эффективности. В связи с чем специалисты не советуют экспериментировать с размерами сечений труб печки, подгоняя их к определенным показателям высоты, например, делая ниже 5 м или выше 7 м. Тяга будет одинаковой во всей конструкции, напротив, очень большой диаметр трубы способен снизить тягу, из-за завихрений, отрывая факел от газовой форсунки.
Вычисление длины трубы больше зависит от значения высоты объекта, на котором она размещается, и разновидности кровельного покрытия. Показатель над уровнем кровли более важный показатель для расчета оптимального сечения трубы.

Рассчет диаметра дымохода для печи
Протяженность дымоходной трубы от колосников до точки выхода обязана быть не меньше 5 м. В случае, если крыша выполнена в виде плоской конструкции, то возвышенность трубы должна быть на уровне не менее 50.0 см. На скатных конструкциях, при месторасположении ее на дистанции от конька до 1.5 м, она должна возвышаться не менее 50.0 см по отношению к крайнему или отгораживающему парапету. В случае если она находится в границах 1.5–3.0 м от конька, то ее вершина не должна быть ниже его либо парапета.
В отдельных случаях труба располагается далее 3 м от линии конька, тогда ее наименьшая высота высчитывается под углом 10 градусов сравнительно к горизонту. На случай, если вблизи расположены большие высотные объекты, а котел или камин работает на дровах, то высота дымоотвода выбирается выше кровли рядом расположенных домов.
Рекомендации по размещению труб и возведению:
- Не нужно обустраивать дымоходы вблизи с мансардных окон, чтобы случайный ветер не задувал продукты сгорания внутрь мансарды.
- Равным образом не рекомендовано воздвигать вытяжные трубы и вентканалыв ендовых, для того чтобы не создавались снеговые карманы.
- При выходе внешнего участка дымохода не нужно жестко укреплять его с конструкцией кровли и стропилами, так как при обрушении трубы ураганом пострадает вся крыша.
Грамотный расчет всех характеристик будущей схемы дымоотвода — это гарантом ее работоспособности и эффективной работы всего котельного оборудования. Недостаток в расчетах, какой может быть сделан на этапе проектирования, приведет к аварийному режиму с последующим разрушением системы. Простые расчеты, базирующие на долголетнем опыте специалистов, дают возможность пользователю выполнить их качественно для определения технических параметров дымоотводящей трубы.
Приступаем к монтажу
Для удобства установки дымоотвод делят на внутреннюю и наружную части, которые стыкуются в месте перекрытия. Это позволит в дальнейшем легко производить демонтаж прогоревшего отрезка трубы.
Процесс создания дымохода начинается с фиксации первого участка трубы на выходном патрубке печи. Остальные элементы наращиваются один за другим до достижения намеченной точки крепления к кровле. Далее необходимо вырезать отверстие в потолке, которое должно быть немногим больше диаметра прокладываемой трубы. Между наружной стенкой дымохода и материалом кровли устанавливается теплоизоляция и проходной стакан, который будет защищать помещение от проникновения влаги извне.
Далее внутренняя часть конструкции состыкуется с наружной
На данном этапе важно уделить внимание герметичности соединений: внешний дымоход обмазывается смолой и оборачивается листом теплоизоляции. Чтобы закрыть просвет трубы от попадания влаги и мусора с улицы, на верхушку конструкции надевается грибок. В заключение работ производится тщательная заделка и затирка швов
В заключение работ производится тщательная заделка и затирка швов
В заключение работ производится тщательная заделка и затирка швов.
Требования, предъявляемые боковому дымоходу
По статистике, предоставляемой ежегодно МЧС, возгорания бани происходят в основном по вине дымохода. Поэтому к нему предъявляются повышенные требования:
- места соединения различных элементов дымохода герметизируются жаростойким герметиком;
- проход в стене выполняется только сэндвич-трубой. При этом делается дополнительная защита от возгорания с помощью минеральной ваты или специального короба из оцинкованного металла (см. фото);
Сэндвич-труба в стене.
Прохождение стены с помощью металлического короба.
Изоляция базальтовой ватой.
- разрешается выполнять отвод труб под углом до 30 градусов с уходом оголовка дымохода от вертикали не более чем на 1 м;
- подсоединение к патрубку печки проводится с помощью трубы из нержавейки (подсоединять сэндвич-трубу к печке категорически запрещается). Обычная или оцинкованная сталь активно образуют сажу (оседает на стенках), что может привести к самовоспламенению сажевого налета. Это, в лучшем случае, прогорание трубы, в худшем — пожар;
- длина простой трубы, как и всего дымохода, внутри помещения не должна превышать 1,5 м (оптимальное расстояние от печки до стены — 1 м). Связано это с сажей (оседает и на нержавейку, но не так активно) и потерей тяги (при увеличении горизонтального расстояния она падает);
- дымоход не должен проходить над полком — можно случайно сильно обжечься;
Смотрится красиво. Но не соблюдены сразу два требования СП: длина внутренней части дымохода превышает 1,5 м, к тому же проходит над полком.
- окно в стене для вывода дымохода должно располагаться на высоте 1,2-1,5 м (можно выше, если соблюдены другие расстояния) над землей и на расстоянии не менее 500 мм от свеса крыши бани;
- внутренняя часть дымохода изолируется вначале базальтовой ватой (можно использовать и огнеупор из шлаковаты), а поверх оцинкованным металлическим листом;
- строительные правила (СП) категорически запрещают прохождение трубы дымохода через коридор, балкон, лоджию (требование относится к баням внутри частного дома или в подвале);
- не допускается вывод дымохода рядом с окнами, при наличии второго этажа у бани;
- труба в бане через стену может резко повернуть не более трех раз (оптимально 2 — около печки и на улице). В противном случае тяга в ветреный день может вообще отсутствовать;
У дымохода должно быть не более трех поворотов.
- вертикальный участок трубы монтируется от стены на удалении не менее 15 см;
- рядом стоящее здание должно отстоять от дымохода на 1,5 м и более;
- общая высота дымохода не менее 5 м — так обеспечивается нормальная тяга;
- оголовок дымохода должен быть выше коньков крыш рядом стоящих зданий на 15 см и более.
Результат несоблюдения противопожарных правил.
Виды исполнения дымохода
Существует три основных принципиальных вида построения дымохода для буржуйки:
- Первый вариант, который считается наиболее эффективным в плане обогрева выглядит следующим образом: труба, выходящая из буржуйки поднимается к потолку, не достигая его, поворачивает к стене и через нее выходит наружу. Часть трубы, проходящая внутри помещения, исполняет роль активного нагревательного элемента — батареи. Это в большой степени повышает теплообмен внутри гаража при экономичном расходе топлива в буржуйке.
- Второй вариант представляет собой конструкцию в целом схожую с первым вариантом, только выход дымохода осуществляется не через стену гаража, а через его крышу. Он так же эффективен в плане обогрева, но требует проведения дополнительных работ для обеспечения герметичности крыши, заделывания всех щелей после проделывания отверстия под трубу и обработку его специальным жаростойким герметиком. А так же обеспечения пожарной безопасности крыши, использование специального короба наполненного жаростойким веществом в месте прохода крыши дымоходом.
- Третьим вариантом осуществления дымохода для буржуйки, является ее вывод за пределы гаража через стену, сразу же, как только он вышел из обогревателя. Этот метод считается наиболее пожаробезопасным, но в плане эффективности отопления помещения, значительно уступает двум предыдущим способам.
Наиболее востребованным вариантом исполнения в помещениях гаражного типа признан первый вариант, бывают случаи, когда реализуется третий способ изготовления дымохода, а вот второй метод применим крайне редко.
Какая должна быть высота трубы дымохода для печи?
Расчет этого параметра позволяет избежать возникновения обратной тяги и других возможных неприятностей. Этот вопрос регламентируется правилами СНиП и других документов.
Зачем нужен этот параметр?
Для того чтобы понять важность этого фактора разберем подробнее несколько физических законов и последствия неправильно сделанных дымоходов. При прохождении нагретых газов, температура понижается, но теплый воздух или газы всегда поднимаются вверх. На выходе из трубы температура еще больше снижается
Отработанные газы, находящиеся в трубопроводе с надежным слоем теплоизоляции имеют высокую температуру и столб нагретого дыма, поднимаясь вверх увеличивает тягу в топке
На выходе из трубы температура еще больше снижается. Отработанные газы, находящиеся в трубопроводе с надежным слоем теплоизоляции имеют высокую температуру и столб нагретого дыма, поднимаясь вверх увеличивает тягу в топке.
Разберем ситуацию – уменьшаем внутреннее сечение трубы и увеличиваем высоту трубы над коньком крыши. Если вы думаете, что увеличивается объем нагретого газа, увеличивается время остывания дыма и увеличивается тяга – такое утверждение верно только наполовину. Тяга будет отличной, даже с большим излишком. Дрова будут быстро сгорать и расходы на покупку топлива возрастут.
Чрезмерное увеличение высоты дымохода может вызвать возрастание аэродинамических завихрений и понижения уровня тяги. Это чревато возникновением обратной тяги и выхода дыма в жилые помещения.
Требования СНиП
Длина трубопроводов вытяжки отработанных газов регламентируется требованиями СНиП 2.04.05. правила предписывают соблюдать несколько основных правил монтажа:
- минимальное расстояние от колосниковой решетки в топке, до защитного козырька на крыше – 5000 мм. Высота над уровнем покрытия плоской крыши 500 мм;
- высота трубы над скатом крыши или коньком должна соответствовать рекомендованной. Об этом расскажем в отдельной главе;
- если на плоской крыше находятся постройки, труба должна быть выше. В этом случае, при большой высоте трубы, ее раскрепляют растяжками из проволоки или троса;
- если здание обустроено системой вентиляции, их высота не должна превышать колпак трубопровода вывода отработанных газов.
Методика самостоятельного расчета
Как самостоятельно вычислить высоту дымового канала, для этого потребуется выполнить расчет по формуле:
, где:
- «А» — климатические и погодные условия в данном регионе. Для севера этот коэффициент равен 160. Значение в других районах вы сможете найти в интернете;
- «Мi» — масса газов, проходящих сквозь дымоход за определенное время. Эту величину можно найти в документации вашего отопительного прибора;
- «F» — время оседания золы и других отходов на стенках дымохода. Для дровяных печей коэффициент – 25, для электрических агрегатов – 1;
- «Спдкi», «Сфi» — уровень концентрации веществ в отработанном газе;
- «V» — уровень объема отработанных газов;
- «Т» — разность температур поступающего из атмосферы воздуха и отработанных газов.
Важно! Самостоятельный расчет потребует найти большое число величин и выполнить сложные расчеты. Поэтому рекомендуем обратиться к профессионалам.
Приводить пробный расчет не имеет смысла – коэффициенты и другие величины не подойдут для вашего агрегата, а извлечение квадратных корней потребует скачать инженерный калькулятор
Приводить пробный расчет не имеет смысла – коэффициенты и другие величины не подойдут для вашего агрегата, а извлечение квадратных корней потребует скачать инженерный калькулятор.
Таблица «Высота печной трубы над коньком»
Определится с размерами труб без проведения сложных расчетов поможет таблица высоты печной трубы над крышной конструкции. Сначала разберем подбор длины трубы для плоских крыш.
| Подбор длины трубы для плоских крыш. | Мин. высота трубы в мм |
| На крыше отсутствуют парапеты и другие строения и устройства. | 1200. |
| На крыше построен защитный бордюр или другие конструкции и расстояние до них до 300 мм. | 1300. |
| Превышение над другими вентиляционными трубопроводами | 500. Минимальное расстояние до вентиляционной шахты – 5000. |
| Для скатных видов крышных конструкций. | Мин. высота трубы в мм |
| Дымоход выходит на крышу на расстоянии 1500 мм от конька. | 500. |
| Труба находится на расстоянии от конька 1500-3000 мм. | Труба выводится до уровня конька крыши. |
| Расстояние от конька до места прохода трубопровода вытяжки свыше 3000 мм. | Откладываем от полости конька 100. Верх трубы должен находиться на уровне этой линии. |
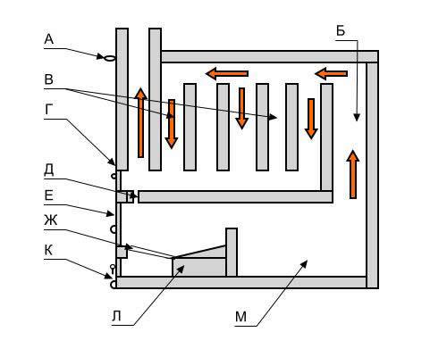
Виды дымоходов
Выделяют три типа конструкции дымоходов для буржуек:
Максимально эффективный для обогрева. Это труба, которая выходит из печи, поднимается к потолку, но не доходит до него, поворачивая к стене. Через стену канал выходит наружу. Труба внутри гаража играет роль активного нагревателя – батареи. Это улучшает теплообмен в гараже при сокращении расхода топлива.

С выходом около потолка
Конструкция схожа с первым вариантом. Отличие только в том, что дымоход будет выходить через крышу. Способ тоже эффективный, но понадобится организация дополнительных работ для создания герметичности. Для этого заделываются все щели жаростойким составом герметика.

Через потолок
Вывод наружу через стену сразу, когда труба выходит из печи. Данный метод максимально пожаробезопасный, но не так эффективен в отличие от первого.

Через стену на уровне печи Реже всего реализуется способ выведения дымохода через крышу. А самый популярный – первый метод.

Примерная схема
Особенности ухода за дымоходом
В первую очередь, хороший уход за трубой вывода дыма от буржуйки обеспечивает безопасность людей и имущества в помещении
Дает он и не менее важное свойство – хорошую теплоотдачу от дымохода и тягу. А для того, чтобы дымоход верой и правдой прослужил весь отведенный ему срок, не реже одного раза в полгода нужно проводить визуальный осмотр дымоотводной трубы
На металле не должно быть следов горения, коррозии, он не должен прогорать, трескаться или ржаветь
На металле не должно быть следов горения, коррозии, он не должен прогорать, трескаться или ржаветь.
Наличие одного из этих дефектов – сигнал о необходимости срочно заменить поврежденный участок: сквозь щели в помещение будет поступать дым, что, как минимум, негативно скажется на состоянии здоровья находящихся в нем людей. Кроме того, прогорая и трескаясь в определенных местах, металл дымохода может дать слабину, и вся труба вскоре просто рухнет.
Способы ухода за дымоходом
Как и любой другой дымоход, дымоход для печи буржуйки накапливает на внутренней поверхности пепел и сажу. Толстый слой такого налета ухудшает тягу, утяжеляет всю конструкцию и мешает нормальному отводу дыма. Не реже одного раз в год трубу дымохода нужно очищать от скопившейся в ней сажи, но с одним условием: мобильная конструкция не имеет той прочности, которая свойственна дымоотводам каминов или стационарных печей, а значит, механические методы очистки не подойдут. Действительно, про чистку металлической щеткой, ершом, а уж тем более про ядро лучше забыть.
Народные методы очистки тут как раз пригодятся – можно воспользоваться методом очистки дымоотвода картофельной шкуркой. Оригинальный, но опасный способ повышения температуры до предельной, чтобы сажа сгорела и вылетела наружу, использовать категорически запрещается: высокие температуры не только способствуют скорому износу тонкого металла, но и могут легко спровоцировать возникновение пожара. Лучшим способом ухода за трубой станет применение химических препаратов, которые нужно наносить на горящие дрова. Состав таких препаратов безопасен для человека, но представляет собой настоящую угрозу для сажи.

Буржуйка – оптимальный вариант для тех, кому нужна переносная и удобная печь
А единственная проблема – сооружение дымохода – проблемой уже не является! Оказывается, что сделать качественный и эффективный дымоход для буржуйки совсем легко, важно лишь следовать технологии. Готовый дымоотвод не требует к себе повышенного внимания, лишь регулярной, но редкой заботы, за которую отплатит годами хорошей работы!
Расчёт основных параметров (с чертежами и размерами)
Высокий КПД печки-буржуйки можно получить только в том случае, если правильно произведён расчет всех основных параметров конструкции.
Труба
В данном случае очень важен диаметр этого элемента. Пропускная способность дымохода должна быть меньше производительности топки печи, в чем и заключается основная отличительная черта буржуйки. Это позволит теплому воздуху не сразу уходить из печки, а задерживаться в ней и нагревать окружающий воздух.
При этом диаметр определяется в миллиметрах, а объём топки в литрах. Например, объём топочной части составляет 40 л, значит, диаметр дымохода должен быть около 106 мм.
Если в буржуйке предусмотрена установка колосников, то высота топки считается без учета объёма этой детали, то есть от верха колосниковой решетки.
Экран
Достичь подобного эффекта поможет металлический экран, который располагается с трех сторон печки. Ставить его нужно на расстоянии 50–70 мм стен печки, благодаря чему большинство тепла будет возвращаться к печке. Такое движение воздуха даст необходимую высокую температуру, и убережет от пожара.
Экран буржуйки из красного кирпича способен аккумулировать тепло
Подстилка
Она обязательно должна быть. На это есть две причины:
- часть тепла излучается вниз;
- пол, на котором стоит печка, нагревается, а значит, есть риск возгорания.
Подстилка решает сразу две эти проблемы. В ее качестве можно использовать металлический лист с выносом 350 мм (в идеале 600 мм) за контур самой печи. Есть и более современные материалы, которые отлично справляются с данной задачей, например, лист асбеста или каолинового картона, толщиной не менее 6 мм.
Для подстилки под буржуйку можно использовать асбестовый лист
Дымоход
Несмотря на все расчёта, в дымоход газы иногда уходят не полностью догоревшими. Поэтому делать его нужно особенным образом. Дымоход состоит из:
- вертикальной части (1–1,2 м), которую рекомендуется укутать теплоизоляционным материалом;
- боров (слегка наклоненная часть или полностью горизонтальная), длиной 2,5–4,5 м, который должен отстоять от потолка, который не обезопасен жаропрочными материалами, на 1,2 м (от деревянной поверхности на 1,5 м), от пола — на 2,2 м.
Сооружение дымохода для печи-буржуйки в гараже
Отопление гаража чаще всего производят при помощи печки-буржуйки. Она имеет переносную компактную конструкцию. Поэтому кирпичный дымоход выкладывать нецелесообразно. Из каких материалов его можно изготовить? Его можно выполнить из асбестоцементных или металлических труб. Легче устанавливать металлические трубы.
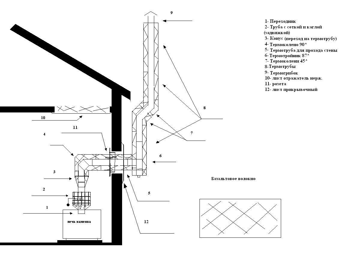
Монтаж дымохода из металлических труб
Рисунок 2. Схема установки дымохода буржуйки.
Для того чтобы конструкция печи-буржуйки получилась надежной и пожаробезопасной, нужно при сооружении дымохода соблюдать определенные правила. При монтаже печи в гараже сооружение дымохода требует определенного времени. Наиболее простая конструкция включает в себя две части: внутреннюю и наружную. Две эти детали соединяются друг с другом на межкровельном уровне. Трубы можно купить или сделать, согнув железный лист. Если труба будет изготавливаться своими руками, то можно выполнить ее любого необходимого диаметра. Для строительства конструкции стандартных размеров нужно приобрести предназначенные для работы материалы.
Материалы и инструменты:
- металлические трубы или лист металла;
- металлическое стыковое колено размерами 1200х100 мм;
- два металлических стыковых колена размерами 1200х160 мм;
- тройник с заглушкой 160 мм;
- специальный грибок 200 мм;
- материал для теплоизоляции;
- металлический проходной стакан;
- козырек от дождя;
- прочный герметик.
Сначала надо закрепить одну деталь трубы на отверстии дымохода. При этом длина ее должна доходить до перекрытия. В нем нужно вырезать отверстие диаметром 160 мм. Для соблюдения пожаробезопасности, в том месте, где труба будет проходить через перекрытие, нужно удалить утеплитель, чтобы избежать ее возгорания. Затем в проделанное отверстие устанавливают проходной стакан и сквозь него проводят трубу. После этого дымоходную трубу соединяют с наружным дымоходом.
Схема правильной стыковки дымовых труб.
Наружная часть трубы утепляется минеральной ватой или другим утеплителем. Предварительно на трубу наносят битумный слой, а после этого оборачивают слоем утеплителя.
Чтобы избежать попадания в трубу различных предметов, мусора, дождя, нужно наверху трубы сделать грибок. На этом устройство дымохода буржуйки заканчивается. После этого конструкцию можно использовать.
Если при монтаже дымохода были соблюдены все необходимые правила и печь выполнена грамотно, то конструкция прослужит длительное время. Качественная работа системы отопления зависит не только от правильной установки, но и от регулярного ухода.
Схема установки дымохода буржуйки показана на рис. 2, где указаны все детали дымохода, способ вывода трубы наружу, все необходимые размеры. Показаны печь, дымоход, зонтик, теплоизоляция, метод вывода трубы через крышу.
Рекомендации по выбору труб

Комбинированный дымоход из гофрированной трубы и нержавейки
Правильный дымоход для буржуйки должен эффективно выводить продукты сгорания топлива. Кирпичный вариант в этом помещении не приветствуется. Такая конструкция тяжелая и громоздкая. Для ее обустройства нужна сноровка, а также усиление фундамента.
Асбестовые трубы сложны в монтаже. Они не выдерживают высокой температуры и уже при 300 градусах растрескиваются. Изделия такого типа имеют большой вес. Они поглощают конденсат, поэтому их чистка затрудняется.
Лучшим материалом для изготовления является нержавеющая сталь или гофра. Гофрированные элементы подходят для создания конструкции внутри гаража. Она с легкостью прокладывается до тройника у стены или крыши. Нержавейка – универсальное изделие, которое прокладывается не только внутри гаража, но и на улице.
Дымообороты (дымоходы)
Достоинства
Горизонтальный канал имеет площадь поверхности в несколько раз больше, чем прямой вертикальный. Газы стремятся вверх, благодаря естественной тяге, но для этого им приходится преодолевать длинный путь: постоянно поворачивать влево, вправо, проходить горизонтальные участки. Именно поэтому данная конструкция называется многооборотной. Устраивается она лишь в кирпичных дымоходах печей и каминов.
Работу должен выполнять опытный печник, так как следует правильно расположить повороты, закругления, подвертки. Именно эти элементы конструкции создают участки большого сопротивления из-за того, что газы меняют направление
Следует помнить, что данные места резко снижают тягу, поэтому превращать углы кирпича в закругления очень важно. Для этого их скалывают на этапе кладки, а зачищать до гладкой овальной поверхности лучше шлифовальной машинкой

]]
Рекомендации по монтажу
Перед заготовкой материалов сделайте чертеж дымохода и проставьте размеры всех участков – так легче подобрать трубы нужной длины. Не забудьте о крепеже – кронштейнах и хомутах, а также купите уплотнительные средства для стыков – печной герметик и асбестовый шнур.
Как правильно делаются приставные дымоходы буржуек:
- Начните с пробивки (прорезки) сквозного отверстия. В кирпичной стене его диаметр равен наружному размеру утепленной трубы. В деревянной вырезается квадратный проем, чьи габариты на 760 мм больше живого сечения канала (38 см в каждую сторону).
- Смонтируйте вертикальный участок, установив тройник и сборник конденсата напротив готового отверстия. Стеновые кронштейны и хомуты крепления ставятся с шагом 1,5—2 м, стыки обрабатываются герметиком.
- Установите печь на расстоянии не менее 50 см от горючих конструкций и подключите горизонтальный участок из одностенной трубы. Ее тоже отодвиньте от сгораемых поверхностей на 500 мм или защитите дерево листом железа, плитой минерита и так далее.
- Соедините внутренний участок с наружным. В стене из кирпича труба пропускается через стальную гильзу с уплотнением, в деревянной обрамляется кровельным железом с каменной ватой внутри. Не допускайте, чтобы стык оказался в толще стены.
Прокладка внутреннего дымохода через перекрытие выполняется аналогичным образом. Разница в том, что конденсатосборник располагается внутри помещения, а проход через крышу герметизируется с помощью специальной дымоходной накладки (мастер – флеш).
Специфика работы буржуек с низким КПД позволяет уменьшить до 3,5—4 м общую высоту трубы, выводимой над плоской кровлей одноэтажного гаража. Зона ветрового подпора отсутствует, поскольку нет конька и скатов, а нагрев отходящих газов до высокой температуры создает достаточную естественную тягу. Как это реализовано в гараже, смотрите на видео:
Что такое сэндвич труба и какие они могут быть
Сэндвич трубу назвали так за ее многослойность: существует два металлического слоя, между которыми находится теплоизолятор. Подобное строение решает очень много проблем, которые были характерны обычному дымоотводу из трубы из металла. Самое первое, слой утепления не дает возможность наружному металическому кожуху прогреваться до критических температур, от трубы не идет жёсткое излучение. В помещении делаются более хорошие условия. Второе, тот же теплоизолятор существенно уменьшает кол-во конденсата, который возникает при выводе трубы на улицу. Третье, так как внешний кожух имеет уже не такую большую температуру, легче делать проход дымовой трубы через крышу или стенку.

Сэндвич-труба — это два железных цилиндра, пространство между которыми заполнено теплоизолятором
Из какого материала выполняют
Сэндвич трубы производят из оцинкованной или нержавейки. Цинковые сэндвич трубы для дымоотводов используются нечасто. Разве что для отвода продуктов згорания маломощного навесного газового котла или газовой водогрейной колонки. Могут применяться для теплоизолированной вентиляции. Для более значительных радиаторов они негодны — при больших температурах цинк выцветает, сталь быстро ржавеет, дымотвод приходит в непригодность.
Сэндвич трубы для высокотемпературных газов дыма делают из нержавейки. Причем нержавеющая сталь применяется различных марок — от сплавов с малым содержанием легирующих металлов, до высоколегированной огнеупорной. Различной может быть и толщина металла — от 0,5 до 1 мм, и также толщина теплоизолятора — 30 мм, 50 мм и 100 мм. Ясно, что различной будет область использования, да и цена тоже.
Ключевые марки стали, которые используются при изготовлении сэндвич труб для дымоотводов, их назначение и ключевые характеристики сведены в таблицу.
Как ясно из таблицы, разнообразные марки нержавейки имеют различное предназначение. Довольно не дорогие сплавы применяются для наружного кожуха, более термоустойчивые и не дешёвые — для внутреннего. Это нужно с целью удешевления продукции, да и не требуется большая устойчивость к температурам с наружной стороны дымоотвода. Есть еще довольно недорогие варианты — наружный кожух производят из стали оцинкованной. Снаружи данные изделия проигруют нержавеющим, но служат хорошо (при нормальном утеплитель и его толщине).
Теплоизолятор и его толщина
Между 2-мя слоями металла находится теплоизолятор. Практически всегда это базальтовая вата. Толщина теплоизолятора бывает от 30 до 100 мм:
- При утеплении в 30 мм толщиной температура газов дыма не должна быть больше 250°C. Такие температуры предоставляют только котлы газовые маленькой и средней мощности.
- Теплоизоляционный слой в 50 мм дает возможность держать температуры до 400°C. Область использования — любые газовые и котлы на жидком топливе, дровяные, при условиях вывода дымоотвода на улицу (через стенку).
- Слой базальтовой ваты в 100 мм дает возможность держать нагрев до 850°C. Такой металлический утепленный дымоход можно установить на котел на твердом топливе разного типа, в каминах и очагах.
Помимо толщины теплоизолятора, нужно смотреть и на его марку, а точнее — на диапазон температуры, в котором он будет работать. Далеко не каждая базальтовая вата может выдерживать нагрев до 850°C, а лишь немногие специализированные марки. Если вам необходим дымотвод для котла на твердом топливе, придется так же и термическая устойчивость теплоизолятора предусматривать.

Комплект компонентов, из которых собирают сэндвич-дымоход любой комбинации
Соединительные типы
Соединяться между собой детали сэндвич дымоотвода могут двумя вариантами: раструбами и волнистыми краями. Раструбное соединение подразумевает наличие с одной стороны немного более широкой фаски. При подобном выполнении достигается большая степень герметичности дымоотвода. Этот вид сэндвич труб прекрасно подойдет для газовых водогреев, где главное не позволить утечки. Есть и минус: процесс установки просит большой точности.
Волнистый край сэндвича позволяет собирать дымотвод без проблем. Минус подобного решения — для оснащения герметичности требуется большое количество высокотемпературного герметика, а стоит он немало.

Специфики сэндвич-труб для дымоотводов
Еще необходимо обращать свое внимание на продольный шов. Он может быть сварным или фальцевым
Если шов сварной, он обязан быть выполнен в аргоновой защитной обстановке (чтобы не выгорали легированные металлы). Конкретно такой соединительный тип нужен для котлов работающих на твёрдом топливе, банных каминов и печей. Для абсолютно всех других можно применять и фальцевое соединение.
Существует ли универсальный дымоотвод
Как рассчитать дымоход для камина и других отопительных систем? Возможно ли установить такой канал, который бы соответствовал любому виду топлива, если его материал всегда подбирается именно в соответствии с видом определенного топлива? В данный момент такого универсального механизма не изобрели. Есть некоторые системы, довольно неплохо работающие с некоторыми видами топлива. Однако до качества им далеко.
Внутреннее сечение
Расчет сечения дымохода является обязательным требованием к качеству выводящей системы.
Цилиндрическая форма. Нагревание газовой отопительной системы происходит неравномерно, из-за этого движение дыма по трубе осуществляется по спирали. Поэтому оптимальной формой трубы будет цилиндрическая. Именно она обеспечит идеальную тягу.
Если вы сконструируете дымоотвод квадратной формы, завихрения не смогут образоваться из-за отсутствия тяги, и дым будет собираться в углах. А от скорости вытяжного усилия зависит качество вытяжной системы и ваше здоровье.
Также цилиндрическая форма дымоотводного канала подойдет котлам нового поколения (стоп-страт).
Смотрим видео, расчет квадратного дымоотвода:
Принцип работы таких обогревательных приборов создан с учетом скоростного прогрева отопительной системы.




































