Каркасные дома 6 на 6 с мансардой
Основным преимуществом каркасного дома 6х6 с мансардой является увеличение полезной площади практически при одинаковых затратах с одноэтажным жильем. Мансарда не является полноценным этажом, а ее ограждающие конструкции объединены с кровлей. Большая часть расходов уйдет лишь на увеличение площади кровли и на отделку внутренних стен.

Пример планировки каркасного дома 6х6 с мансардойИсточник karkasnik-stroy.ru
Как эффективно составить планировку каркасного дома 6х6 с мансардой
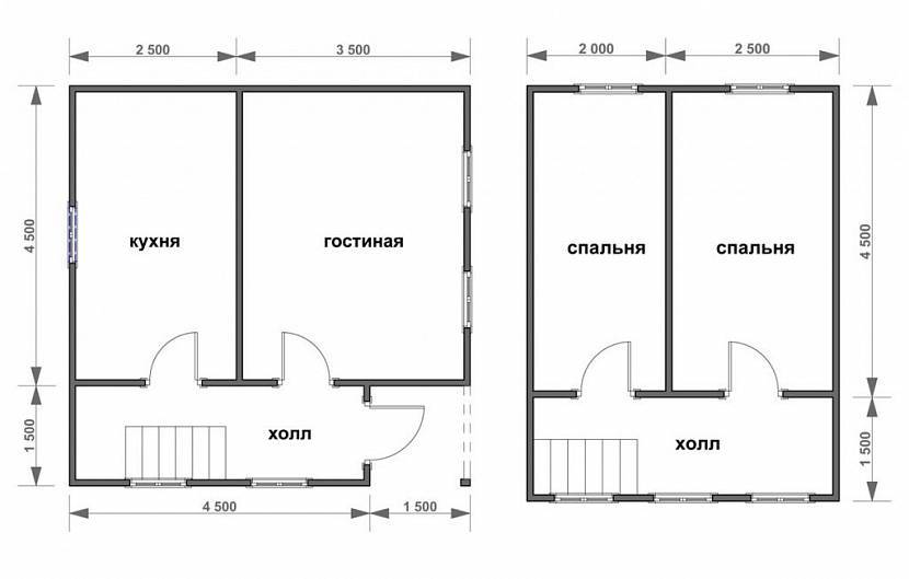
Зачастую дом 6 на 6 с мансардой, также как и двухэтажный, предусматривает, что все помещения общего пользования будут располагаются на первом этаже, включая санузел, а комнаты для отдыха – на втором. Недостатком является высота потолков в помещениях, расположенных на мансардном этаже, она будет ниже, чем в основной части дома.
Видео описание
Обзор каркасного дома с мансардой смотрите на видео:
Высота потолков на всей площади мансарды будет непостоянной – больше в центре этажа и меньше к краю. Это может привести к возникновению некоторых трудностей при выполнении отделочных работ, а также в последующем при выборе мебели для помещений. В этом случае комнаты придется заполнять мебелью по индивидуальным размерам.

Пример расположения лестницы в каркасном доме 6х6 с мансардойИсточник himcomp.ru

Еще один пример расположения лестницы в каркасном доме 6х6 с мансардойИсточник pilomaterialy-sz.ru
Проект каркасного дома 6х6 с мансардой, также как и двухэтажного, должен предусматривать наличие лестницы. Поэтому при создании внутренней планировки не нужно забывать о том, что лестница должна располагаться в наиболее удобном для использования месте.

Пример планировки каркасного дома 6х6 с мансардойИсточник pinterest.com

Мансарда в каркасном доме 6х6: вид изнутриИсточник bg.aviarydecor.com
Фото примеры каркасных домов 6на6
Дом 6 на 6 хоть и небольшой, но это необязательно простая коробка, он может иметь довольно интересный проект:

Одноэтажный каркасный дом 6х6Источник dom-nayuge.ru

Одноэтажный каркасный дом 6х6 с маленькой открытой террасойИсточник sruby-iz-kostromy.ru

Каркасный дом 6х6 с открытой террасойИсточник tiu.ru

Двухэтажный каркасный дом 6х6Источник dekoriko.ru

Каркасный дом 6х6 с мансардным этажомИсточник stroidom-shop.ru
Плюсы каркасных построек
- Кратчайшие сроки возведения — даже без опыта срок строительства может достигать 1-2 месяца;
- Достаточно простая технология возведения каркасного дома — обучающие видео-уроки и фото домов из каркаса можно найти в интернете;
- Плюсы каркасных домов в том, что можно обойтись минимальными затратами в сравнении с покупкой готового жилья;
- Легкость возводимой конструкции обеспечит экономию средств на материалах фундамента и стойках опоры;
- Неплохим подспорьем будет покупка готового комплекта каркасного дома или самостоятельная закупка материалов.
Каркасное строительство в проекции.
Четвертый этап строительства: полы
На первом этаже чаще всего устраивают полы по грунту. Что это значит? Технология заключается в следующем. Убираем первоначально плодородный слой грунта, и на его место засыпаем слой гравия. Он необходим для дренажа, так как влага будет просачиваться внутрь и меньше контактировать с цементной стяжкой. По грунту делаем слой песка в 30-50 см в зависимости от высоты вашего фундамента. Проводить утрамбовку своими руками или с помощью техники. В результате слой песка должен располагаться на 5 см ниже уровня фундамента, чтобы избежать мостика холода и промерзания по углам.
Схема черновой стяжки по грунту в каркасном доме
Далее мы выполняем черновую стяжку, используя жидкий цемент. Если вы берете цемент чуть более жидкий, чем для устройства фундамента, вам не придется ровнять его инструментами, так как под действием силы тяжести цемент сам равномерно распределиться по земле. Самое главное – чтобы земля была ровной, иначе жидкий цемент стечет в одно место.
Когда черновая стяжка высохнет, можно продолжать устройство пола. Для этого выполняем гидроизоляцию пленкой, поверх которой раскладываем утеплитель для пола. Поверх утеплителя используя сетку можно закрепить трубы теплого пола (жидкого или электрического). И залить чистовую стяжку.
Если вы не хотите использовать цемент в устройстве пола (к примеру, если стройка проходит зимой), вам поможет технология устройства деревянных каркасных полов на основе лаг. Как устроить такой пол, смотрите на схеме:
Устройство пола с помощью лаг
Для его обустройства необходимо:
- доска 25х100
- брус 200х200
- брус 70х195
- доска 50х150
- ветрозащита
- утеплитель
- осб
- подложка и ламинат или плитка
Больше информации об устройстве пола в каркасном доме вы найдете здесь.
Что проще: купить или построить
Многие строительные фирмы предлагают создание каркасных домов под ключ, включая внутреннюю отделку. Вам не нужно самому изучать материалы, заниматься строительством и тратить время на проектирование. Фирма, чьими услугами вы решите воспользоваться, сама подготовит проект, подберет для него подходящие стройматериалы и за короткие сроки возведет дом.
Но если вы все-таки хотите построить жилище своими руками, в этом тоже есть несколько преимуществ:
- стоимость дома будет значительно ниже, так как фирмы требуют за свои услуги большие суммы денег;
- весь процесс создания дома будет находиться под вашим контролем, и, соответственно, сроки также будут назначаться только вами;
- можно будет самому покупать материалы и продумывать дизайн интерьера.


Выбирая способ самостоятельной постройки дома, можно обратиться к Интернету и специализированным сайтам, где можно найти уже готовые проекты домов. Также в сети можно получить советы специалистов и изучить отзывы опытных строителей.
При разработке самостоятельного проекта стоит учитывать особенности местности, нагрузки на несущие конструкции, расположение подводов канализации, воды и отопления. Также стоит заранее согласовать все с коммунальными службами. Важным шагом перед началом строительства является получение специального разрешения в муниципальных органах и регистрация жилья в общей базе. Если же вы строите дачу, то все эти разрешения вам не нужны.


Ошибки самостоятельного монтажа
Стоит обратить внимание на следующие пункты, перечисляющие распространённые ошибки самостоятельного непрофессионального строительства
- Использование непросушенной древесины бруса.
- Излишне плотная или редкая обрешётка.
- Ошибка в расчёте нагрузки на фундамент и кровлю.
- Недостаточно укреплённые оконные и дверные проёмы.
В Москве с помощью технологий каркасного строительства возводятся малоэтажные строения по любому дизайн-проекту: с крыльцом, террасами, мансардами.
Соблюдая все пункты инструкции строительства каркасного дома размером 6х6, вы сможете построить своими руками надёжное жилище. Если же вы не обладаете практическими навыками и не уверены в своих силах, обращайтесь за помощью к профессионалам.
Как говорится, мой дом — моя крепость! Он должен быть крепким, чтобы его можно было передать детям и внукам, как семейное достояние.

Каркасный дом
Схемы и расчеты
Обязательным пунктом перед началом строительства является составление сметы. Грамотный подход к этому шагу позволит вам заранее определит примерную величину расходов и минимизировать дополнительные траты. К основным статьям сметы относят:
- заливку фундамента;
- сооружение пола;
- возведение каркаса дома:
- устройство крыши;
- утепление стен;
- внешнюю и внутреннюю отделку.
Минимальная сумма строительных материалов будет вычисляться в зависимости от многих показателей. Изучение тонкостей этого процесса значительно сократит дополнительные расходы или вообще исключит некоторые статьи затрат из сметы. Например, теплый климат позволит вам сэкономить на утеплении стен и пола. Поэтому стоит тщательно проанализировать все моменты, связанные со строительством.
Этапы строительных работ
Постройка фундамента. Каркасные дома имеют малый вес конструкции, потому могут использоваться простые основания.
Сборка каркаса. Как писалось выше, его обустроить можно из деревянного либо металлического материала. Вариант с использованием металла предпочтительнее из-за своей надежности, но является более дорогим. Помимо этого, для каркаса из металла нужен более прочный фундамент. С внешней стороны на каркас закрепляется доска или вагонка.

Устройство полов. Для этого делается своеобразный «пирог». Первым слоем выступает рубероид, укладываемый на фундамент. Иногда может понадобится обустройство дополнительного строительного уровня. Между лаг монтируется теплоизоляция. В последнюю очередь производится укладка черновой или чистовой отделки. Ее роль может выполнить доска, линолеум, паркет.

Постройка стен. Разумно будет их устанавливать на черновых полах. При монтаже требуется учитывать, где будут располагаться окна. Они могут занимать до 20% площади стен. При выборе окон лучше отдать предпочтение двойным стеклопакетам. Они повысят тепловую и звуковую изоляцию строения.

Монтаж крыши. Крышу возводят сразу же после постройки стен. Иначе их поверхность может быть повреждена атмосферными осадками. Кровлю выбирают исходя из пожелания заказчика.

Теплоизоляция
Когда вы не планируете пользоваться домом круглогодично, то теплоизоляция не столь важна. Но в ином случае ее обустройство обязательно. Каркасный дом строится из вертикального бруса, между которым располагаются горизонтальные рейки. В полости имеются ячейки, в которые устанавливают утеплитель.
Теплоизоляцию стен можно производить как снаружи, так и внутри. Последнее не самый лучший вариант. Каркасный дом 6 на 4 и так не располагает большими габаритами. Слой теплоизоляции будет скрадывать внутреннее пространство. А вот обустройство изоляции снаружи позволяет не только утеплить дом, но и декорировать его. Для утепления стен и полов может использоваться пенопласт либо сайдинг.

Слой теплоизоляции закрепляют на каркас из обрешетки. Предварительно на нее монтируют слой гидроизоляции, оставляют вентиляционный зазор. После укладывается изоляция от пара. В конце выполняется отделка.
Профессиональный проект
- Схема фундамента;
- Разворот перекрытий и стен каркасного дома;
- План установки стоек и стропил;
- Схема местоположения оконных и дверных проемов;
- Мансарда или план второго этажа;
- Схема разводки электричества, систем водоснабжения, канализации, вентиляции и отопления во всем доме.
Планировка каркасника 6×6 с террасой. Планировка дома 6 на 6 метров может быть как свободной с дополнительными стойками укрепления, так и покомнатной. Оптимальным считается создание на первом этаже дома помещений гаража в дополнительной пристройке или полуподвальном помещении, большой кухни-столовой и гостиной зоны.
Можно предусмотреть санузлы на первом или мансардном этажах, скрытые системы хранения — кладовые, гостевые комнаты. Второй этаж или мансарда дома 6 на 6 зачастую используется как спальная зона из одной или двух комнат.
Чертежи каркасных домов
Чертеж каркасного дома – не просто официальная бумага для получения разрешения на выполнение строительных работ. Это важный документ, который является залогом того, что построенный дом в полной мере будет соответствовать нормам и адаптирован под климатические условия.
Что включает чертеж
Все документы, в которых подробно описан процесс сборки и монтажа дома, необходимо оформлять еще на стадии строительства. Кроме того, стоимость будущего каркасного дома подробно описывается в смете. Там же прописывается перечень всех строительных материалов, которые будут использоваться для строительства. Как правило, каждый такой комплект сопровождается изображениями и фотографиями.

Особенности домокомплектов
Некоторые компании предлагают приобрести полный домокомплект для строительства. Такой комплект включает не только основные элементы и чертеж, но и все необходимые пиломатериалы и утеплители (сип-панели). Это дает возможность возвести одноэтажное или двухэтажное строение своими руками в короткий срок.
Преимущества приобретения домокомплекта:
- заказчик получает на руки полный комплект чертежей и материалов;
- все чертежи обычно просты и понятны;
- для того чтобы защитить материалы от осадков, их привозят на участок постепенно;
- в комплекте можно получить рекомендации по дополнительному утеплению дома;
- есть проект по устройству крыши;
- прилагаются схемы и инструкции по созданию вентиляции, электрики, канализации и водоотведения;
- полная смета предоставляет заказчику возможность определить весь объем затрат на строительство.

Комплект чертежей и документации для строительства каркасного дома
Любой готовый чертеж каркасного дома представляет собой объемный документ, размер которого может достигать 100 страниц. В каждом документе детально прописан план, присутствуют схемы, а также подробные инструкции по сборке и установке каркаса.
Условно вся инструкция подразделяется на основные части, которые делают весь процесс строительства предельно простым и понятным. Изучить такую инструкцию смогут как профессионалы, так и те, кто не имеет серьезного опыта в строительной сфере.
В инструкции присутствуют ответы на все важные вопросы, которые могут возникнуть в процессе возведения каркасного дома. В этом документе есть ответы на вопросы, как обеспечить ветро-, влаго- и парозащиту новому строению. Описаны условия строительства, а также принципы по которым выбирают оконные, дверные и другие конструкции. Кроме того, в документе можно найти рекомендации, касающиеся возведения каркасного дома с мансардой или без.
Скачать смету Каркасного дома 6х10-105м, Проект КД-1 (стандарт)
Полная смета, Проект КД-1 Скачать смету >>> 230Кб PDF Полная смета, Проект КД-2 Скачать смету >>> 234Кб PDF Полная смета, Проект КД-3 Скачать смету >>>219Кб PDF Полная смета, Проект КД-4 Скачать смету >>>219Кб PDF Полная смета, Проект КД-6 Скачать смету >>>220Кб Pdf Полная смета, Проект КД-7 Скачать смету >>>197Кб Pdf Полная смета, Проект КД-8 Скачать смету >>>225Кб PDF Полная смета, Проект КД-9 Скачать смету >>>223Кб PDF Полная смета, Проект КД-11 Скачать смету >>> 230Кб PDF Полная смета, Проект КД-12 Скачать смету >>>219Кб PDF Полная смета, Проект КД-14 Скачать смету >>>219Кб PDF Полная смета, Проект КД-14 Скачать смету >>>197Кб Pdf Полная смета, Проект КД-15 Скачать смету >>>213Кб PDF Полная смета, Проект КД-16 Скачать смету >>>196Кб Pdf Полная смета, Проект КД-17 Скачать смету >>>213Кб PDF Полная смета, Проект КД-18 Скачать смету >>>211Кб PDF Полная смета, Проект КД-21 Скачать смету >>> 225Кб PDF Полная смета, Проект КД-22 Скачать смету >>> 234Кб PDF Полная смета, Проект КД-23 Скачать смету >>> 230Кб PDF Полная смета, Проект КД-24 Скачать смету >>> 230Кб PDF Полная смета, Проект КД-25 Скачать смету >>> 243Кб PDF Полная смета, Проект КД-26 Скачать смету >>> 218Кб PDF Полная смета, Проект КД-27 Скачать смету >>> 223Кб PDF Полная смета, Проект КД-28 Скачать смету >>> 212Кб PDF Полная смета, Проект КД-29 Скачать смету >>> 223Кб PDF Полная смета, Проект КД-31 Скачать смету >>>201Кб PDF Полная смета, Проект КД-32 Скачать смету >>>200Кб PDF Полная смета, Проект КД-33 Скачать смету >>>211Кб PDF Полная смета, Проект КД-34 Скачать смету >>>205Кб PDF Полная смета, Проект КД-35 Скачать смету >>>205Кб PDF Полная смета, Проект КД-37 Скачать смету >>>201Кб PDF Полная смета, Проект КД-38 Скачать смету >>>204Кб PDF Полная смета, Проект КД-43 Скачать смету >>>214Кб PDF Полная смета, Проект КД-42 Скачать смету >>>205Кб PDF Полная смета, Проект КД-44 Скачать смету >>>204Кб PDF Полная смета, Проект КД-45 Скачать смету >>>208Кб PDF Полная смета, Проект КД-47 Скачать смету >>>208Кб PDF Полная смета, Проект КД-51 Скачать смету >>>153Кб PDF Полная смета, Проект КД-52 Скачать смету >>>153Кб PDF Полная смета, Проект КД-53 Скачать смету >>>157Кб PDF Полная смета, Проект КД-55 Скачать смету >>>181Кб PDF Полная смета, Проект КД-56 Скачать смету >>>183Кб PDF Полная смета, Проект КД-58 Скачать смету >>>544Кб PDF Полная смета, Проект КД-63 Скачать смету >>>196Кб PDF Полная смета, Проект КД-65 Скачать смету >>>207Кб PDF Полная смета, Проект КД-68 Скачать смету >>>194Кб PDF Полная смета, Проект КД-71 Скачать смету >>>201Кб PDF Полная смета, Проект КД-73 Скачать смету >>>213Кб PDF Полная смета, Проект КД-75 Скачать смету >>>202Кб PDF Полная смета, Проект КД-81 Скачать смету >>>214Кб PDF Полная смета, Проект КД-92 Скачать смету >>>211Кб PDF Полная смета, Проект КД-93 Скачать смету >>>643Кб PDF Полная смета, Проект КД-96 Скачать смету >>>226Кб PDF Полная смета, Проект КД-151 Скачать смету >>>213Кб PDF Полная смета, Проект КД-171 Скачать смету >>>213Кб PDF Полная смета, Проект КД-172 Скачать смету >>>213Кб PDF Полная смета, Проект КД-211 Скачать смету >>>213Кб PDF Полная смета, Проект КД-212 Скачать смету >>>213Кб PDF Полная смета, Проект КД-219 Скачать смету >>> 215Кб PDF Полная смета, Проект КД-231 Скачать смету >>>221Кб PDF Полная смета, Проект КД-237 Скачать смету >>>221Кб PDF Полная смета, Проект КД-252 Скачать смету >>>215Кб PDF Полная смета, Проект КД-271 Скачать смету >>> 228Кб PDF Полная смета, Проект КД-292 Скачать смету >>> 210Кб PDF Полная смета, Проект КД-421 Скачать смету >>> 203Кб PDF Полная смета, Проект КД-432 Скачать смету >>>218Кб PDF Полная смета, Проект КД-451 Скачать смету >>>208Кб PDF Полная смета, Проект КД-901 Скачать смету >>>231Кб PDF Ниже (как пример) смета в виде таблицы по проекту КД-1 6х10 с жилой мансардой и верандой на материалы для постройки по каркасной технологии, общий площадью 105 м/кв
Планирование проекта и этапы возведения каркасного дома
Преимуществ строительного процесса дома на каркасной основе много:
- небольшой вес элементов и узлов из дерева, что позволяет обойтись без аренды спецтехники;
- недорогой строительный процесс;
- высокая скорость возведения деревянного дома;
- малый вес дома позволяет построить его на фундаменте облегченного типа, что удешевляет проект и облегчает строительство жилья.
Выбирая тип фундамента, принимают во внимание полный вес дома с мебелью и коммуникациями и состав почвы. На глинистых грунтах рекомендуется обустраивать монолитное основание. При песчаной почве подойдет мелкозаглубленный ленточный или столбчатый фундамент
При этом любой тип фундамента необходимо гидроизолировать и обеспечить хороший дренаж по периметру дома, чтобы подпочвенные воды не проникали в деревянные конструкции дома
При песчаной почве подойдет мелкозаглубленный ленточный или столбчатый фундамент. При этом любой тип фундамента необходимо гидроизолировать и обеспечить хороший дренаж по периметру дома, чтобы подпочвенные воды не проникали в деревянные конструкции дома.
Фундамент каркасного дома
Строится каркасный дом на основе двух распространенных технологий:
- Строительство из заводских блоков;
- Самостоятельное строительство из закупленных стройматериалов.
Проект, эскиз или план каркасного здания, смета и учет непредвиденных расходов – обязательное условие успешного строительства. Проектирование учитывает параметры дома и фундамента, почвы и участка, кровли и перекрытий, свойства стройматериалов и требования к ним по влагозащищенности, теплоотдаче и шумоподавлению.
Застройщики часто выбирают типовой проект каркасного дома, который изначально предусматривает строительные, технологические и архитектурные нюансы.
При разработке индивидуального проекта лучше обратиться к профессионалам – слишком много можно допустить ошибок и оставить неучтенными «мелочи», влияющие на проживание в доме каркасного типа, на его качество и долговечность конструкции.
Очевидные преимущества каркасного дома таковы:
- Низкая себестоимость строительства.
- Ускоренный процесс возведения каркаса и его обшивки;
- Экономичность строительства, не влияющая на качество и долговечность здания;
- Деревянный каркас — это прокладывание коммуникаций между обшивкой, а значит – экономия внутреннего пространства;
- Облегченный и недорогой фундамент;
- Всесезонность строительства;
- Возведение каркасного дома без использования спецтехники и дорогостоящего оборудования;
- Высокая сейсмоустойчивость за счет упругости древесины;
- Длительный срок службы – больше 80 лет.
Возведение стен
Каркас дома 6х6 собирается из брусьев, и от того, насколько прочно ли они скреплены, будет зависеть долговечность строения. Самыми надёжными считаются крепления типа шип-паз или вырубки. Для уверенности производят дополнительную фиксацию с помощью стальных уголков, держателей, пластин.
Сборка каркаса 6х6 начинается с возведения вертикальных стоек фасада и внутренних перегородок с шагом 40-60 см. Кроме качества соединения, важны и характеристики бруса. Рекомендуется использовать материал заводского производства, а не самостоятельно обработанный. Ведь чем лучше качество обработки, тем точнее будет подгонка элементов будущего дома 6х6.

Теплоизоляция стен
Теплоизоляция начинается с подбора утеплителя. Обычно в этом качестве используют: пенопласт, полистирол, минеральная вата.
Теплоизоляция стен производиться по следующим этапам выполнения работ:
- Подготовка поверхности. Стены очищают от пыли и грязи, торчащих гвоздей и пр.;Все щели необходимо заделать монтажной пеной;Установка обрешетки и закрепление на ней утеплителя;Если в качестве утеплителя использовался полистирол или пенопласт, то щели между листами необходимо заполнить герметиком;Каркас дома, по периметру, оббивают специальной пароизоляционной пленкой. Вместо гвоздей используют скобы и строительный степлер;Обшивают листами гипсокартона или ОСБ.
Каркасный дом 6×6 с мансардой
Каркасная мансарда на дом 6 на 6 метров — оптимальное решение для тех, кто не хочет тратиться на строительство второго этажа:
- Дополнительная площадь позволит организовать дополнительные комнаты;
- Предусмотренный оригинальный скат крыши сделает внутреннюю отделку более оригинальной — можно убедиться по фото каркасных домов 6 на 6.

Каркасник с мансардой 6 на 6. Мансарда может послужить как дополнительной спальней, так и комнатой отдыха или санузлом. Потребуются дополнительные расходы на стропила и окна, но расходы эти не сопоставимы со стоимостью возведения второго этажа.
Существует множество компьютерных программ, которые используя проект каркасного дома 6х6 могут воссоздать 3D-макет дома для большей наглядности. Это позволит своевременно внести изменения в проект будущего дома.

Двухэтажная каркасная постройка в разрезе.
План-проект
Первое, с чего должна начаться подготовка и строительство вашего дома – это план-проект. Чертеж можно нарисовать самостоятельно, а можно заказать в специальных фирмах, которых сегодня достаточно много. В целях экономии можно купить готовый проект, или воспользоваться бесплатными типовыми проектами, которые можно скачать в интернете.
Проект каркасного дома
Если вы решили проект рисовать самостоятельно, подумайте, хватит ли вам знаний и умений. Как правило, после наброска эскиза и плана комнат начинаются проблемы. Если вы знаете, что сможете нарисовать в проекте разводку труб, электричества, указать места розеток и пр. , то вы справитесь с самостоятельными чертежами. Если обо всем этом вы имеете смутные представления, лучше с зарисовками, которые вы набросаете дома, обратиться к специалистам. Они также помогут вам подобрать материалы и даже рассчитают примерную стоимость будущей постройки.
Проект с эскизом
Схема дома предлагается в интернете бесплатно, используйте ее для вдохновения.
Самостоятельные проекты можно рисовать для дачных домиков, которые не имеют сложные коммуникации и системы проводки электричества.
Еще один проект с эскизом
Стоимость проекта составляет от 500 рублей до 150 000рублей. Средний проект обойдется вам в районе 5 000 рублей.
Дом с чистовой отделкой под (обои, покраску и т.д.), всё включено (фундамент, крыша, окна, двери, утепление 150мм, сантехника, электрика и тд.)
Наименование работцены зима 2017-2018гФундамент Отдельная смета на фундамент(лента 40ш х 50в см, мелко-заглублённая )79 970,00 Пол 1-ый этаж(включая утеплитель 150мм и чистовой пол)32 158,15Стены 1-ый этаж(включая утеплитель 150мм, внутреннюю и наружную обшивку) Балки обвязки917,50Стена S117 361,73Стена S224 415,76Стена S310 327,76Стена S418 294,24Стена S57 845,51Стена S64 519,95Стена S74 733,03Стена S86 046,79Стена S91 780,43Потолок 1 этаж3 948,00Второй этажВсе стены включают утеплитель 150мм, внутреннюю и наружную обшивку Каркас пола и пол(включая утеплитель 100мм и чистовой пол)27 409,50Фронтоны(включая утеплитель 150мм и стеклопакеты)35 131,56Каркас стен S22,2416 183,27Стена S259 163,85Стена S271 287,05Стена S283 972,10Стена S292 452,59Потолок 2 эт.2 907,12Крыша(включая утеплитель 150мм, внутреннюю обшивку, паро- и ветрозащиту и покрытие Ондулин)56 073,04 Веранда Каркас пола и пол11 046,25Стены41 981,44Крыша(включая внутреннюю обшивку, паро- и ветрозащиту и покрытие Ондулин)22 120,58 ЭлектрикаЩиток, счётчик, автоматы, провода дом/улица, розетки, выключатели и т.
д.19 440,00СантехникаДушевая, бойлер, трубы, сантехника и т. д.42 766,00РасходкаГвозди, саморезы, болты, гайки, уголки, герметики, пена монтажная, антисептик и т. д.15 961,00Лестница на второй этаж4 385,29Итого:547 656,52
Описание: Цена материалов нашего каркасного дома включает в себя всё что использовалось для его постройки с чистовой отделкой(под обои или окраску), в отличии от громких предложений которыми насыщен интернет, таких как дом по ключ за 260-340-420 т.
р., ваша мечта за 250т. р. и тд., на деле такие предложения или не полные (не включают: фундамент, утепление крыши и межэтажных перекрытий, без электрики и сантехники) или не включают работу, доставку материалов и проживание рабочих.
В смете см. выше мы использовали на постройку каркасного дома 6х10-102м/кв с мансардой, Проект КД-1 экологичные и качественные строй материалы, немецких, французских и российских производителей. Доска строительной влажности 50х100 и 50*150, OSB 9мм для наружных работ (германия), минеральная базальтовая вата (150мм стены и крыша), ГКЛ (гипрок) (Knauf) для внутренних работ, Ондулин и ондутис (Франция), система канализации и водоснабжения (германия).
Также в смету включена вся проводка начиная от вводных проводов к дому, щитка со счётчиком, автоматами и УЗО, разводкой всех проводов по дому до светильников, розеток и выключателей, включая их стоимость. В смету включена цена сантехники, душевой, бойлера, разводки труб водоснабжения и канализации с выводом труб к колодцу и септику. И естественно окна (металлопластик стеклопакет двойное остекление с энергосбережением) двери, лестница на второй этаж и т.
Каркасные дома возводят по современным совершенным технологиям. Сама структура дома состоит из двух компонентов: каркаса и составляющих, таких как внешняя и внутренняя обшивка, теплоизоляционные наполнители.
Каркас может быть как деревянным, так и металлическим. Такой дом очень прочен, долговечен. При соблюдении технологии строительства, в таком доме будет тепло и уютно.
Расчет материала
Строительство дома с длиной стен в 6 м экономически выгодно. Это связано с тем, что стандартная длина доски равна 6 м, то есть она не требует распила, отходы минимизированы.
Для возведения «каркасника» потребуются следующие виды пиломатериалов:
- брус различного сечения;
- обрезная доска, сечение которой не менее 2–5 мм;
- шпунтованная доска с сечением 2,5 мм.
Как правило, для расчета количества кубов пиломатериала удобнее пользоваться специальными онлайн-калькуляторами, которые предлагают многие крупные строительные магазины.
При расчете кровельных материалов следует учитывать, сколько весит стропильная система, а также применяемый кровельный материал, утеплители, а также розу ветров (то есть ту часть крыши, на которую чаще других приходится ветровая нагрузка).
Для расчета фасадных материалов надо также знать площадь фасада, однако, вести расчеты с учетом обрешетки. Удобнее, если для этого будет составлена отдельная схема, поскольку монтаж обрешетки может увеличить каждую из сторон дома на 7–15 см.
Для расчета фундамента следует сначала определиться с его типом. Самым экономным окажется столбчатый, но подходит он лишь для сезонных дач. Если говорить о свайном варианте, то предпочтение следует отдавать винтовым сваям. Рассчитать их количество можно, узнав, какая нагрузка от дома приходится на 1 кв. м.
Обустройство крыши
Принципиальных различий в монтаже крыши каркасных зданий домов других типов, например, выполненных из кирпича или бетонных блоков, нет. При этом обустройство крыши каркасного дома даже требует меньших финансовых затрат и физических усилий. В первую очередь это обусловлено простотой крепления крыши к стеновым конструкциям.
Несмотря на относительную простоту, монтаж крыши – крайне ответственный и значимый этап строительства дома. Очень часто на него уходит достаточно много времени, особенно в том случае, если подобного опыта у выполняющих работу людей ранее не было. В этой связи браться за обустройство крыши собственными усилиями стоит лишь при условии, что планировка дома не очень сложная, как и конфигурация самой крыши.
Возведение стен
Каркас дома 6х6 собирается из брусьев, и от того, насколько прочно ли они скреплены, будет зависеть долговечность строения. Самыми надёжными считаются крепления типа шип-паз или вырубки. Для уверенности производят дополнительную фиксацию с помощью стальных уголков, держателей, пластин.
Сборка каркаса 6х6 начинается с возведения вертикальных стоек фасада и внутренних перегородок с шагом 40-60 см. Кроме качества соединения, важны и характеристики бруса. Рекомендуется использовать материал заводского производства, а не самостоятельно обработанный. Ведь чем лучше качество обработки, тем точнее будет подгонка элементов будущего дома 6х6.





















































