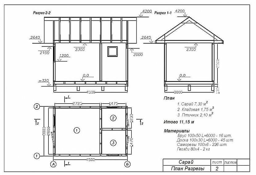
Выбор оптимальной планировки сарая по чертежам

Стандартный вариант – прямоугольная постройкаИсточник domicomfort.ru

Чтобы тепло лучше сохранялось, можно обустроить тамбурИсточник bankfs.ru
Сарай односкатный из бруса часто используется для душевой и туалета, как впрочем и для других целей. Прежде всего, потому что такая конструкция по сравнению с двускатной крышей стоит дешевле и строится проще. Преимуществом односкатной крыши является эффективная вентиляция.

Стропил для постройки односкатной крыши потребуется раза в 2 меньше, чем для двускатнойИсточник yurlkink.ru

Экономичный вариант санузла для дачного участкаИсточник domicomfort.ru
Гараж из пеноблоков для небольшой машины (мотоцикла, мопеда), предусмотрено небольшое подсобное помещение. Надежное строение хорошо защитит не только от осадков, но и от перепада температур, влажности и непрошеных гостей. Простой сарай из пеноблоков для хранения инвентаря и в кчестве мастерской также возможен.

Несмотря на легкость пеноблоков, для такого строения нужен фундаментИсточник plotnikov-pub.ru

Простой функциональный проектИсточник bankfs.ru

Еще один универсальный вариант: для стен можно использовать брус, кирпич, пеноблокиИсточник nemasterok.ru
Просторный сарай 6×3 м без перегородок. Благодаря простоте проекта и удобному для монтажа материалу (ДВП) постройка возводится за 1-2 дня.

Просторная постройка несложной конструкцииИсточник pinterest.ru

Монтаж обшивкиИсточник idn37.ru

Такую конструкцию несложно увеличитьИсточник pinterest.com
Из чего строить?
Какие стройматериалы лучше всего подойдут для сарая? Достаточно прочные, стойкие, недорогие и легкие в работе? Прежде всего – доски. Сарай можно построить из одних только досок, см. далее. Дешевы необрезные доски, причем строение из них может выглядеть вполне аккуратным и даже элегантным в духе рустикального дизайна, поз. 1 на рис.
Сараи из различных материалов
Видео: очистка горбыля от коры
Каркасный сарай, поз. 2 на рис. выше, наиболее распространен, т.к. технология малого каркасного строительства хорошо освоена частными застройщиками. Однако собирать каркас из бруса, как для бытовки или других хотя бы временно обитаемых строений (к ним, между прочим, относятся и дачные туалет с душем), поз. А на рис. справа, не обязательно. Точнее, исходя из требований прочности, обязательно для сараев передвижных. А если строение ставится сразу на своем месте, то и каркас можно собрать из одних лишь досок, поз. Б. Это намного удешевит постройку, если в дело пойдут доски необрезные и б/у.
Каркасы сараев из бруса и досок
Иногда дачный сарай эстетики ради обшивают ОСП, поз. 3, или фанерой. Эти материалы на открытом воздухе повержены расслоению, поэтому перед покраской сарай с обшивкой из ОСП нужно как следует прогрунтовать, а фанерный дважды обработать водно-полимерной эмульсией.
Капитальные сараи, особенно скотные, строят чаще всего из пеноблоков, поз. 4. Меньшая их прочность по сравнению с кирпичом в данном случае роли не играет, но сарай из пеноблоков выходит дешевле, проще в работе, зимой теплее, а летом прохладнее. Если вы выберете себе такой, учтите:
- Сарай из пеноблоков можно строить на столбчатом фундаменте по деревянному венцу, как, напр., баню.
- На цементно-песчаном растворе кладут не более 3-х нижних рядов, а выше нужно переходить на специальный клей для газобетона. Строение легкое, и слабо нагруженные по вертикали верхние цементные швы могут порваться под боковым давлением ветра.
- Выложив стены на треть по высоте, работу прерывают до отвердевания кладочного раствора, чтобы кладка не поплыла по швам. Такой же перерыв делают на 2/3 кладки.
В продаже также имеются комплекты деталей для быстросборных пластиковых сараев, поз. 5. Однако цены, мягко говоря, вызывают недоумение, во-первых. Во-вторых, живность в таких сараях отчего-то не приживается. Возможно, по тем же причинам, каковы бы они ни были, по которым и люди не живут в пластиковых домах.
Как построить хозблок: выбор места для строительства сарая на дачном участке
Определение места расположения хозяйственного блока должно учитывать санитарные и строительные нормы. Поэтому без учета плана земельного участка и составления точного чертежа просто не обойтись.
Перед возведением сарая нужно учесть следующие требования:
- Расстояние от жилого дома до птичника или объекта для содержания скота должно составлять более 12 м.
- Но при этом, если хоз. постройка имеет смежную (примыкающую) к дому стену, то расстояние между их входными дверями должно составлять не менее 7 м.
- Расстояние от забора до сарая с инвентарем должно составлять более 1 м, от забора до птичника, свинарника — не менее 4 метров.
- Сток воды с крыши должен осуществляться на участок владельца, а не на соседский участок или на проход (дорожку) между соседними участками.
На заметку! Обязательно от дома к сараю нужно сделать дорожку, которая обеспечит простоту перемещения. Нелишним будет и хорошее освещения сарая, независимо от особенностей его эксплуатации.
Сравнение цен на различные варианты постройки с учётом их качества
Самый дешевый сегмент подсобных помещений, где цены варьируются в пределах 11000 – 30000 р, представлен каркасными строениями небольшой площади. Так эконом-класс предполагает, как правило, голую коробку размером 1×1 м (2×1,5 или 2×2 м). В качестве обшивки используется вагонка, крыша застилается ондулином или рубероидом.
Каркасные сараи стоимостью от 30000 до 70000 находятся в средней ценовой категории. От недорогих строений они отличаются размерами (например, 3×3 или 6×2 м) и материалом обшивки.
Цена дорогих подсобок каркасного типа может достигать 160000 р. Например, сарай размером 5×4 м стоит в среднем около 85000–95000 р., 4×7 м – 133000 р., с перегородками – 155000р.
Например, цена на хозблок 3×4 м на основе металлического каркаса в базовой комплектации, включающую каркас, стены, кровлю с гидроизоляцией, дверь, составляет 113000 р. Стоимость с монтажом – около 156000 р. Сюда же надо добавить стоимость окна с установкой – 16700 р., утепление – 16500 р., внутреннюю отделку профнастилом – 32400 р., водосток – 7800р.
Такая постройка может служить как подсобным помещением, так и домиком для детейИсточник houzz.de
Выделяют еще категорию «Люкс», к которой относятся дизайнерские модели по индивидуальным заказам. Их стоимость может начинаться от 600000 р.
Контейнерные блоки стоят в пределах 40000 – 65000 р., в зависимости от размеров и комплектации. Типовые габариты: 2,4×2,4×2,4 м, а также 2,4×2,4×4.0 м и 2,4×2,4×5,8 м. Базовая комплектация включает внутреннюю отделку оргалитом, полы ДСП, теплоизоляцию и деревянные окна.
Расценки на постройки из пеноблоков начинаются примерно от 100000 р (4×2 м),150000 (3×4 м), 340000 (6×4 м).
Про выбор материалов и конструкции сарая смотрите на видео:
Этапы строительства
Одними из самых популярных подсобных помещений считаются каркасники. Их возведение занимает минимум времени и производится по стандартной схеме:
Сборка основания
- После того как земля утрамбована, чтобы грунт дал максимальную усадку, подготовлена песчано-щебеночная подушка, размечается периметр постройки.
- По углам и посередине длинных сторон устанавливаются блоки из бетона.
- На блоках собирается деревянная рама или металлический каркас.
- Собираются лаги для пола, укладывается теплоизолирующий слой и напольное покрытие, например, линолеум.
Каркас сарая с односкатной крышейИсточник bankfs.ru
Возведение стен
- На углах выставляются опорные столбы, а по периметру стойки.
- Монтируются дверные и оконные коробки.
- Выполняется наружная и внутренняя обшивка.
Строительство односкатной кровли
- Каркасные стойки соединяют с рамой обвязки.
- Укладывают гидроизолирующий слой, затем крепят обрешетку.
- Обрешетку укрывают рубероидом или мягкой кровлей.
- Монтируют гофролист, как вариант – металлочерепицу.
После выполнения всех монтажных работ переходят к внутренней отделке помещения.
Двускатный каркасник на столбчатом фундаментеИсточник sami-stroim.ru
Как итог – про экономическую целесообразность строительства сарая «под ключ»
Если нет опыта строительных работ или попросту не хватает времени заниматься постройкой сарая, то услуга «под ключ» это то, что вам нужно. При подписании договора вашей задачей будет только выбрать подходящую конструкцию, а все остальное сделают мастера строительной компании. Это значит, что вам не придется ломать голову, где достать инструмент, как и когда приобретать стройматериалы, искать рабочих и следить, чтобы они правильно выполняли свою работу.
Специалисты строительной компании подготовят стандартный или персональный проект и построят дачный сарай. Кроме того, они смогут выполнить полную внутреннюю отделку и оборудовать полками и стеллажами. В результате вы в течение нескольких дней получаете добротную постройку с удобно организованным пространством.
Примеры красивых проектов хозпостроек смотрите на видео:
Разобравшись, сколько стоит построить сарай, можно прийти к выводу, что затраты на качественную постройку для загородного участка сложно назвать копеечными, но если работа выполнена профессионально, вложенные средства с лихвой окупятся. Удобная подсобка послужит не только самому хозяину, но и его внукам.
Первый способ обшивка досками.
Сарай снаружи можно обшить досками по принципу кирпичной кладки, закрывая щель между двумя досками третьей. Шифером стенки оббиваются тем же способом, который применяется при накрывании крыши. Кроме этого сарай можно обшить досками снизу. Повыше ставятся листы шифера, а затем набиваются лесоматериалы.

В процессе работы между стен засыпается утеплитель, который нужно чем то утрамбовать. В качестве утеплителя можно использовать иголки сосны, опавшие листья, опилки. Эти материалы перемешиваются с известью в сочетании один к двадцати пяти. Это позволяет избежать таких проблем, как грызуны между стенами. Потолок тоже нужно подшить, а сверху насыпать тот же состав. Над стропилами набиваются доски и застилаются рубероидом в несколько слоев, который нужно прибить деревянными рейками на расстоянии полметра. Нижнюю часть сарая с двух сторон можно обставить шифером, который защитит помещение от грызунов и хищных зверьков.
Снизу сарай утепляют, подсыпав пол грунтом, на 10см ниже основного пола, а потом уложить и утрамбовать глиняный раствор.
Дверь делают из досок, сбитых по диагонали, положив между ними прослойку из рубероида, чтобы не выпускать тепло.
Необходимость утепления сарая
Любой птицевод знает: домашняя птица несется лишь при положительной температуре. Оптимальным режимом зимнего содержания считается +12 +15оС. Крупные дойные животные: коровы и козы сохраняют продуктивность до +5+7оС, но удои значительно падают, поскольку большую часть энергии животное тратит на собственный обогрев. Это означает, что при наступлении серьезных морозов в продуваемом щелястом дощатом сарае птица может просто замерзнуть, а крупные животные рискуют заболеть.
Заблаговременное утепление сарая позволит сохранить здоровье и продуктивность животных и птицы и, следовательно, их экономическую эффективность круглый год. Кроме того, качественно теплоизолированная постройка сберегает не только тепло зимой, но и прохладу летом, помогая животным перенести периоды летней жары.
Технология строительства сарая
Есть три способа, которые можно использовать при возведении хозяйственного помещения на дачном участке:
- каркасная технология;
- монолитное строительство;
- модульная постройка.
Самым популярным методом при возведении сараев считается каркасное строительство. Главное условие этой технологии — создание надежного каркаса из деревянных брусков или профильной трубы. Так называемый готовый скелет здания потом требуется обшить панелями, деревом или плитами. Каркасная технология чаще всего применяется, если необходимо быстро и дешево построить сарай из досок своими руками. При этом сооружение будет обладать нужной прочностью и надежностью.
Монолитное строительство — это возведение помещения из материалов в виде пенобетона, кирпича, бревенчатого сруба или газобетона. Здание, построенное по этой технологии, будет долговечным и капитальным. Хотите построить на даче сарай из блоков подешевле? Тогда вам необходимо использовать пено- или шлакоблоки.
Хозяйственное помещение, построенное модульным способом, состоит из металлических или пластиковых готовых модулей. Применяются специальные крепежные детали для соединения между собой строительных элементов. Главная особенность — мобильность сооружения, так как в будущем его можно будет разобрать и переместить.

Материалы для утепления сарая
В качестве утеплительного материала для сарая можно использовать буквально то, что лежит под ногами. Это:
— солома с глиной;
Использование подручных средств исключает существенные расходы на создание теплоизоляции. Если возникает желание соорудить более капитальную конструкцию, то больше подойдёт пенополистирол. По стоимости он доступен, а монтаж осуществляется несложно. Но следует помнить, что более эффективно крепить плиты с внешней стороны сарая. Тогда живность, обитаемая в помещении, не повредит хрупкий материал.
В случае выбора утеплителя на этапе строительства, предпочтение отдаётся пеноблокам или арболиту. Таким конструкциям не страшны морозы, да и к фундаменту требования невелики.
Использовать другие материалы для изоляции помещения от морозов нерационально. Стоимость их высока для подсобного помещения. Но по желанию владельца могут применяться: пенополиуретан, базальтовая вата, пеностекло и др. При выборе изолятора следует учитывать назначение подсобки. Если помещение предназначено для содержания животных, рекомендуется применять экологически чистые материалы.
Как я утеплял оконные и дверные проемы
С дверными и оконными проемами тоже есть некоторые сложности
Важно, чтобы оставалось достаточно места для открытия и закрытия что двери, что окна. Тут есть два варианта установки: либо дверь монтируется на одном уровне с утеплителем, то есть его внешним краем (тогда нужен специальный крепеж), либо на уровне со стеной, то есть она будет немного «утопленной»
Тогда пенопласт обязательно нужно подпилить по краю, иначе нормально открыть не получится. Я решил установить дверь на уровне со стеной, поэтому заранее определил, сколько блоков мне потребуется, и подпилил их. Это легко делается обычной ножовкой.
Нужно подпилить часть блокапенопласт
Перед монтажом пенопласта нужно установить раму, если вы ее еще не установили, и обезжирить ее, чтобы плиты не стали отходить.
Далее придется довольно сильно потрудиться. Сначала отмеряем и отрезаем профили для теплоизоляции проемов, учитывая, что те, которые будут примыкать к углам, должны быть срезаны под углом в 45 градусов. Сразу после этого я его и закрепил, проверив, чтобы прилегал от максимально плотно.
Закрепляем профиль
Затем используем стеклосетку – ее нужно нарезать на полосы, толщина которых = толщине слоя утеплителя плюс примерно 10 сантиметров для закрепления. Ее я закрепил с помощью клеевой смеси. Не страшно, если сетка «утонет» в клею. Сверху, кстати, я нанес еще один слой состава.
Теперь можно переходить непосредственно к монтажу пенопласта – то есть тех плит, которые мы заранее обрезали.
Монтаж стеклосетки
С окнами дела обстоят аналогично – их можно установить как на уровне стены, так и на краю утеплителя. Однако хочу заметить, что лучше, если слой пенопласта совсем немного перекроет оконный блок – так будет теплее в доме в холодное время года.
По углам оконного проема не должно быть стыков плит пенопласта – лучше вырезать блоки специально под окно. На фото ниже показано, как это может выглядеть. Такая «мелочь» может сильно повлиять на то, будет ли в доме действительно тепло.
По углам пенопласт должен располагаться таким образом, стыков быть не должностеклосетка
Как отремонтировать старый?
Сарай считается важной хозяйственной постройкой на земельном участке, которая выполняет много функций. Но со временем строение под воздействием внешней среды начинает терять свой первоначальный вид и эксплуатационные характеристики
Чтобы этого не допустить, хозблок нужно регулярно ремонтировать. Реставрация сарая не представляет особой сложности, поэтому ее вполне реально выполнить самостоятельно, главное – иметь желание
Перед тем как отремонтировать хозблок, следует обратить внимание на то, в каком состоянии находится основание, балки и кровельный материал постройки. Кроме этого, нужно проверить целостность напольного покрытия, стен и потолка
Подсчитывается смета работ, а также подготавливаются инструменты. Для реставрации фундамента потребуется кирпич и бетонная смесь, для восстановления крыши следует приобрести кровельный материал, шурупы, гвозди и скобы. Если же сарай деревянный, то его необходимо обшить снаружи новыми досками, и осуществить утепление стен внутри.
Ремонт основания выполняют так: при помощи домкрата подымают угол постройки, используя кирпич и цементный раствор, сооружают тумбу, после чего на нее опускают конструкцию. Что же касается кровли, то во время ее замены нужно предусмотреть укладку гидроизоляции из полиэтиленовой пленки или рубероида, это ее защитит в дальнейшем от протекания. В том случае, если гидроизоляцию при строительстве не укладывали, то придется разбирать кровлю полностью. Далее на изоляционный слой накладывают металлочерепицу или шифер. Для двускатной кровли обязательным является проверка состояния конька, при необходимости его меняют на новый.
Вначале осуществляют демонтаж старого напольного покрытия, и подпорченные доски заменяют новыми. Если входная дверь потеряла свой привлекательный вид, ее также можно поменять. В том случае если изначальный проект не предусматривал наличие окон в сарае, во время ремонта их можно установить. Это позволит работать в помещении, не используя электроэнергию. В современных вариантах построек часто организовали освещение, состоящее из нескольких розеток и ярких ламп.
Стоит также уделить особое внимание ремонту стен и несущих балок. Если несущие элементы и перекрытия сгнили, то не нужно разбирать всю конструкцию, достаточно рядом с испорченными креплениями установить новые
Чтобы восстановить старые стены, следует демонтировать поломанные и сгнившие доски, заменяя их другим материалом
При монтаже новых деревянных элементов важно их предварительно обработать антисептиком. Он защитит древесину от насекомых и влаги
Внутри блока рекомендуется также разместить новые стеллажи и полочки, которые бы позволили более рационально распределять пространство блока. Помимо этого, не помешает и изготовление удобных приспособлений для хранения лыж, велосипеда и прочего инвентаря. В мастерской над рабочим столом рекомендуется установить крепления для инструментов. Чтобы освободить кладовые внутри жилого дома, во время ремонтных работ под сараем можно соорудить компактный погреб для хранения овощей и фруктов.
Материалы и технология
В связи с низкими требованиями, как к технологии, так и к материалам, то строительство сарая можно обеспечить:
- Каркасной технологией.
- Применив бетонные блоки.
Каркасная технология

Этот вид технологии позволяет возвести любое сооружение за считанные дни. Для этого достаточно установить и закрепить каркас на подготовленном основании, если необходимо, то заполнить утеплителем и облагородить отделочными материалами.
Преимущества каркасной технологии:
- Конструкция получается легкой, поэтому не требует мощного фундамента, достаточно обойтись свайным или столбчатым фундаментом.
- Конструкция возводится достаточно быстро, поскольку отсутствуют мокрые работы.
- Облагораживание возможно осуществить любым декоративным материалом.
- Помещение прекрасно сохраняет тепло.
Каркасная конструкция, кроме того, что на ее возведение требуется минимум времени, считается еще и экономичным сооружением. Недостаток такой конструкции, проблемы с пожароопасностью, поскольку основным строительным материалом является дерево.
Как вариант, каркас можно обшить ориентированно-стружечными плитами, поскольку этот тип отделочного материала достаточно практичный и доступный. Плиты изготавливаются из древесной щепы, а также полимерных смол. Такой сарай используется для хранения садово-огородного инвентаря, а также для содержания животных в летний период. Если конструкцию еще и утеплить, то животных можно содержать в любое время года.
Обшивается ОСБ плитами
Хотя плиты ОСБ и считаются влагостойкими, но они не предназначены для непосредственного контакта с влагой. Кроме этого, прямые солнечные лучи разрушают полимерный клей. В связи с этим, плиты требуют дополнительных мер по устранению данных проблем. Как вариант, плиты покрываются водостойкими красками или эмалями.
Применение бетонных блоков
Сарай из шлакоблока
Бюджетное строительство требует применения бюджетных материалов, к которым можно причислить пено-, керамзито- и шлакобетон. Несмотря на дешевизну (относительную) и доступность, такие блоки достаточно прочные и долговечные, при этом характеризуются низкой теплопроводностью. Блоки, толщиной в 20 см, по характеристикам соответствуют кирпичной кладке, толщиной почти в полметра. Помещение, выложенное из подобных блоков, допустимо эксплуатировать и в зимнее время.
В случае применения таких блоков для строительства сарая, потребуется мощный фундамент, по сравнению с каркасным вариантом. Как правило, для такой конструкции подойдет ленточный малозаглубленный фундамент с элементами армирования. Кладка бетонных блоков осуществляется по принципу перевязки швов. Другими словами, технология укладки такая же, как кладка стен из кирпича.
Как выбрать?
Главными составляющими любого дачного участка является жилой дом, гараж, беседка и, конечно же, сарай. Данные сооружения необходимы для комфортного проживания за городом, поэтому их обязательно включают в план-проект территории. Когда площадь участка позволяет, то хозяйственные объекты строят по отдельности, но если место небольшое, то их часто объединяют, сооружая сарай. В таких ситуациях он совмещает одновременно кладовую, душевую и небольшой туалет, возможны также варианты пристроек с дровником. Поэтому планировку и дизайн сарая нужно выбирать еще до начала строительства.
Можно также подобрать оригинальный вид постройки и установить ее вблизи с домом. Размеры и внешний вид сарая выбираются не только учитывая площадь приусадебной территории, но и ее общий дизайн.
Самым простым вариантом для дачи считаются готовые хозблоки, имеющие сборный тип конструкции. Они представляют собой моноблочное строение, состоящее из металлического каркаса. Стены такого сарая обшиваются металлом и дополнительно утепляются. Так как внутри помещения проводится электропроводка, то сооружение можно применять в качестве многофункционального блока, включающего место для отдыха, небольшую кладовку, душевую и туалет. Кроме этого, в некоторых сборных моделях предусмотрен раскладной навес, позволяющий устанавливать веранду.
Готовые сараи считаются выгодными для дачного участка, они быстро собираются, стоят недорого и занимают мало места. Для монтажа контейнерной конструкции не нужно закладывать фундамент, достаточно обойтись моноблоками или столбчатым основанием. Единственное, что нужно учесть – при покупке такой модели придется подключить внутренние коммуникации: электричество и водосборники со шлангами.
Установку сборных сооружений осуществляют с помощью автокрана. Такие сараи внешне выглядят привлекательно и идеально вписываются в любой ландшафтный дизайн. Помимо этого, они также долговечны и надежны в эксплуатации, а благодаря своей мобильности хозблоки можно либо продать после строительства дома, либо перенести в другое удобное место.
Чтобы защитить постройку от влаги, ее размещают на широкие брусья или деревянные поддоны. Что же касается размеров сарая, то его обычно делают 2×3 м с высотой 2.5 м, каркас бюджетного сарая изготавливают из бруса, который обшивают горбылем. Привлекательность таким строениям придает односкатная кровля и высаженные вьющиеся растения.
Если же владельцы дачи хотят видеть на своём участке более современный вариант сарая, то им нужно выбирать каркасные конструкции. Они быстры в установке, но главным условием для их возведения считается изготовление прочного каркаса их качественного бруса. Внешнюю отделку таких блоков можно выполнить сайдингом, который со временем легко заменить на другой материал. Кровлю обычно делают односкатную или двускатную, ее укрывают битумной черепицей. Для каркасной конструкции хорошо подходит столбчатый фундамент.
Конечно же, выбор сарая для дачи является непростым делом, но если предварительно все рассчитать и создать индивидуальный проект, то даже самый невзрачный хозблок станет настоящим украшением участка. Кроме этого, на сегодняшний день существует множество дизайнерских идей, благодаря которым обычная кладовка превратится не только в место для хранения вещей, но и отличную зону для отдыха.
Фундамент
Выбор конструкции основания зависит в первую очередь от нагрузок:
- для тяжелых бетонных стен используются ленточные малозаглубленные фундаменты;
- для легких каркасных построек — свайные или столбчатые;
- фундамент-плита универсален, совмещает основание для строительства здания и полы.
Учитываются также грунтовые условия. На влагоемких пучинистых почвах (глина, суглинки) рекомендуется использовать ленточные конструкции. Столбчатые в результате морозного пучения могут перекоситься и завалиться. На сухих грунтах с низким УГВ ограничений по выбору фундамента нет.
Ленточный фундамент
Основание такого вида можно использовать на всех типах грунтов, включая глину и суглинок. Исключение составляют болотистые почвы или торфяники.
Для монтажа монолитного ленточного фундамента потребуется:
- щебень;
- песок;
- цемент;
- арматура;
- доски для опалубки;
- пленка гидроизоляционная.
Этапы строительства:
- На размеченной площадке по размеру сарая выкопать траншею глубиной 50-60 см шириной 30-40 см.
- Насыпать на дно щебень с песком слоем 10-15 см, утрамбовать.
- Установить опалубку из досок, раскрепить по длине для защиты от деформации.
Уложить внутрь пленку.
Выставить арматурный каркас с таким расчетом, чтобы толщина бетона от металла до поверхности конструкции составляла не менее 50 мм.
Залить равномерно бетоном, уплотняя металлической трубой или прутом.
Сверху накрыть пленкой для сохранения влажности.
Выждать 2-3 дня, периодически поливая фундамент из лейки или шланга.
Ленточное основание может быть не только монолитным, но и сборным. Для его устройства красный кирпич или блоки из тяжелого бетона укладываются в траншею на слой тощего бетона по щебеночно-песчаной подушке. Для сплачивания кладки используется армирование сеткой-мак. Швы нужно плотно заполнять раствором, пустоты не допускаются.
Если сарай будет каркасным, в фундамент при монтаже через каждые 1-1,5 м погружают шпильки, резьбу которых нужно обмотать бумагой или пленкой. Впоследствии на них насаживается и крепится брус нижней обвязки.
Столбчатый
Отдельно стоящие опоры можно изготовить из блоков, кирпича, асбоцементных или пластиковых труб с последующей заливкой их полости бетоном.
Для традиционных столбиков из кирпича или блоков потребуется:
- Выкопать ямы 40х40 см глубиной 50 см в углах сарая, через каждые 1,2-1,5 м по периметру, в местах пересечения стен и установки перегородок.
- Подсыпать песок слоем 10-15 см, утрамбовать. Можно пролить водой.
- Выложить столбики на высоту 50-60 см.
- Обмазать фундамент гидроизоляционной мастикой, уложить сверху «квадратики» из рубероида.
- Засыпать пазухи, уплотнить.
Порядок действий при использовании труб в качестве несъемной опалубки:
- Пробурить скважины на глубину 0,7-1,2 м.
- Подсыпать щебень высотой 10 см, уплотнить.
- Установить трубу вертикально, зафиксировать.
- Внутрь поместить 3-4 стержня арматуры.
- Залить бетоном.
Труба из пластика должна быть морозостойкой, например, канализационная для наружных работ. Минимальный диаметр — 150 мм.
Свайный
Это разновидность столбчатого фундамента, где в качестве опор используются:
- Стальные стержни с заостренным концом и лопастями. Их монтируют путем вкручивания в грунт с помощью ручного рычага или механизированной установки.
- Забивные металлические анкеры. Устанавливаются вдавливанием или забивкой специальным ударным оборудованием.
- Буронабивные сваи — технология очень похожа на устройство столбиков из труб, но пробуренную яму сразу заполняют бетоном. На сухих пористых почвах применяют выстилку скважины гидроизоляцией. Она предохраняет бетон от обезвоживания.
Верхушки свай после окончания монтажа срезаются горизонтально. Сверху крепятся металлические оголовки для укладки балок нижней обвязки.
Как сделать сарай своими руками без фундамента
Совсем небольшое помещение можно построить без капитального фундамента двумя способами:
- В качестве опор используются стойки каркаса, закопанные на глубину не менее 80 см.
- На ровное плотное основание, например, утрамбованную площадку, укладываются бетонные блоки или бордюрные камни.
Сверху устанавливается каркасная коробка. Ее площадь не должна превышать 20 м², а высота — 2,5 м. Такая постройка легкая, при этом обладает небольшой парусностью и вполне может прослужить не один сезон.
























































