Кровать начального уровня
Кровати упрощенной конструкции, в которых спинки входят в силовую схему, а ножки выполнены заодно с ними, для взрослых делают только эконом-класса. И то, ножки отделяют от спинок и ставят сбоку вплотную к ним, чтобы образовался угол, придающий изделию хотя бы минимальную жесткость. Но все равно, где-то приходится ставить и дополнительные подпорки, опирающиеся прямо на пол, что не оптимально, см. далее. Чертежи кровати такого типа, рассчитанной на умеренно интенсивную эксплуатацию в течение 10-12 лет, приведены на рис. Передняя спинка/стенка отличается от задней только отсутствием декоративной надставки. Материал спинок ЛДСП, лежака – фанера; остальное – дерево. Сборка на саморезах по дереву и стальных уголках. А мы пойдем дальше, к кроватям, способным выдержать бабушку со множеством любовников и ее потомство.

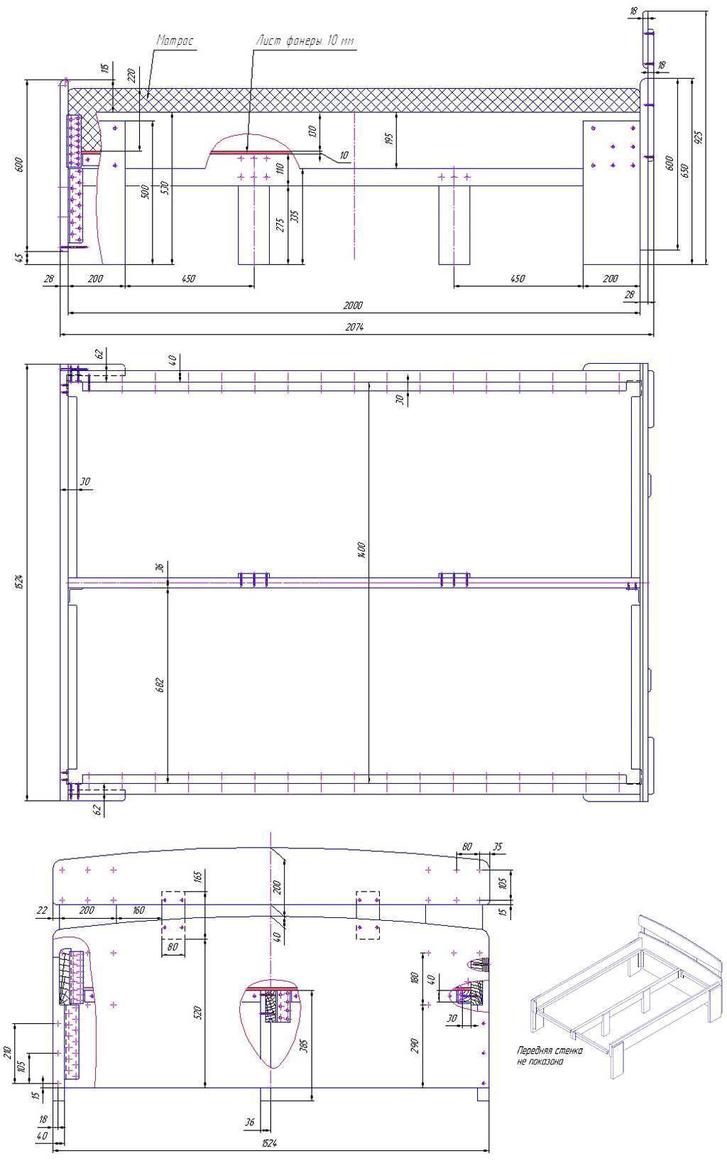
Чертежи самодельной двуспальной кровати
Изменение изголовья
Можно переделать изголовье в панель. Это интересный вариант изменения внешнего вида детали, её преобразование в более модный стиль. Для этого потребуется лист ДСП или фанеры. Его обрезают по размерам кровати или делают чуть пошире. При этом можно регулировать высоту по тем параметрам, которые больше всего нравятся. Этот лист закрепляют, затем декорируют.
Твёрдое изголовье декорируют мягкой отделкой так, чтобы лист поролона обтягивался впритык материалом
Можно использовать любую ткань или кожу, но важно учитывать то, чтобы она не слишком растягивалась и не порвалась при эксплуатации. Поверх располагают буфы, которые крепятся в предварительно намеченных местах под декоративные пуговицы
Совет
Поверхность можно сделать гладкой. Это хороший вариант, если в доме есть ребёнок. Безопасность будет гарантирована. Панель такую закрывают паркетом или декоративной фурнитурой. На ней можно прикрепить светильники или даже соорудить мягкие полочки.
Интересна переделка изголовья превращением его в ширму. Для этого потребуется:
- собрать деревянный каркас ширмы с тремя или больше секциями;
- соседние секции расположить так, чтобы по ширине они оказались равны ширине кровати;
- ширму закрепляют на стене или ставят за кроватью;
- готовое изголовье украшают драпировкой из ткани необходимого размера;
- у пола прикрепляют на стену горизонтальный крепёж открытым или закрытым способом;
- ткань прикрепляют с учётом нужного её размещения по зоне украшения.
Изголовье можно дополнить дополнительными материалами, например, заказать дополнительные конструктивные детали или мобильные конструкции небольшого размера. В них можно расположить полочки, ящички и даже сделать столешницу. Последняя может служить отличной полочкой для светильников и декоративных мелочей, украшающих интерьер комнаты.
Из видео узнаете 5 вариантов оформления изголовья кровати:
оформить стену возле изголовьясделать своими руками спинку кроватиобтянуть
Популярные материалы
Определившись с размерами, каркасом и основанием для матраса, стоит подумать о еще одном очень важном элементе. О материале, из которого все предыдущие элементы будут изготовлены
Конечно, самым экологичным, визуально приятным и эстетически правильным выбором станет дерево, однако его стоимость может отпугнуть многих мастеров.
Если цена – не главное для вас, тогда стоит обратить внимание на то, что для кровати необходимо выбирать только самые качественные породы дерева, вроде дуба, бука, ясеня, красного дерева, березы и других. Материалы должны быть хорошо высушенными и без малейших трещин
Конечно, сучков тоже быть не должно. Это могут быть доски или бруски, скрепленные с помощью специального клея – с целью получения так называемых клееных досок. Когда доски готовы, их покрывают особым лаком на водной основе, который обеспечит сохранение внешнего вида и защиту от влаги на долгие годы.
Конечно, не только суевериями славится эта древесная порода. Даже самые искусные знатоки не могут определиться с тем, в какое время года лучше всего рубить осину для дальнейшей обработки. Кто-то говорит, что это конец весны, другие предпочитают конец лета. В общем – все очень неоднозначно.
МДФ отличается достаточно очевидным минусом. Конечно, речь идет об очень плохом сочетании с водой. Слишком большая влажность для такого материала губительна, поскольку сухие спрессованные волокна набухают, разрушая изначальную структуру плиты, а также лакокрасочного покрытия, что сильно влияет на внешний вид и возможность дальнейшей эксплуатации изделия в целом.
Разновидности конструкций кровати-подиума
Размеры и конфигурация конструкций подиума ограничивается лишь свободным пространством и фантазией дизайнера.
Характеристики подиума зависят от многих факторов.
Основные разновидности:
- Матрас укладывается поверх подиума.
- Кровать задвигается в платформу.
Как сделать выдвижную кровать-подиум
Учимся делать подиум с выдвижной кроватью своими руками пошагово. Сначала рисуем предварительный набросок. На эскизе размечаем местоположение ниши для кровати, дополнительных систем хранения. Затем делаем более подробный чертеж. При расчете высоты платформы стоит учесть не только высоту каркаса кровати, но и высоту колесиков, толщину матраса и постельного белья.
Потребуется сделать подробный чертеж.
Алгоритм действий, пошагово:
Шаг 1. Выбираем материал. Оптимально – брус или доска от 40 мм для короба и МДФ, фанера или OSB для обшивки. Будет меньше хлопот, если материалы раскроят по нужным размерам прямо в магазине. Доска должна быть хорошо высушена и обработана и не иметь видимых дефектов – сучков, трещин.
Брус – подходящий материал для подиума.
Шаг 2. Нам понадобится инструмент:
- Молоток, ножовка, электролобзик.
- Дрель, перфоратор.
- Карандаш строительный (для эскиза, чертежа, разметки).
- Степлер.
- Рулетка, линейка, угольник, уровень.
- Малярный инструмент.
- Наждак (мелкое зерно).
Дополнительно приобретаем гелиевые колесики для выдвижной кровати (4 штуки), реечное дно для матраса (сплошное основание затрудняет циркуляцию воздуха), саморезы для дерева, анкера для крепления в стену, металлический уголок.
Позаботьтесь заранее, чтобы у вас были в наличии все необходимые инструменты.
Шаг 3. Делаем короб из бруса или доски. Перед сборкой, отмечаем на стенах и полу границы каркаса, по ширине и высоте подиума. По проведенным линиям крепим опорные бруски, к которым присоединяем другие элементы короба, горизонтальные и вертикальные. Соединения продольных брусьев с поперечными лучше укреплять металлическим уголком.
Сначала нужно сделать короб.
Шаг 4. Обшиваем короб листовым материалом: МДФ, OSB или фанерой.
Короб надо обшить листовым материалом.
Шаг 5. Делаем каркас для кровати из бруса, заранее приобретенной решетки из ламелей, обшивки. Крепим предварительно купленные колеса на гелиевой основе.
Из бруса делается каркас для кровати.
Несколько советов:
- Войлочные прокладки в соединениях, испытывающих максимальные нагрузки, предупредят скрипы конструкции. Дополнительная звукоизоляция внутренней части каркаса предотвратит появление глухого звука при ходьбе по подиуму.
- На дерево стоит предварительно нанести антигрибковое покрытие.
- Рассчитывая общую высоту конструкции, не забывайте учитывать сечение бруса и толщину обшивки.
- Семь раз отмерь… и не придется переделывать.
Породы дерева
Сделать деревянную кровать можно из разных пород древесины:
- сосны. Этот материал пользуется спросом благодаря презентабельному внешнему виду и высоким техническим характеристикам.
Такое изделие порадует не только красивой текстурой, но и приятным хвойным ароматом. Изделия, которые были хорошо отшлифованы и покрыты лаком, имеют высокую стойкость к образованию грибков и не поддаются гниению;
- дуба. Эта древесина относится к элитной. Она отличается роскошным внешним видом, экологичностью, возможностью создать на изделии узоры и орнаменты;
- бука. Такие кровати отличаются оригинальным орнаментом на срезах, долговечностью и прочностью. Модели из бука смотрятся благородно и подходят под классические мотивы;
- березы. Этот вид древесины легко поддается обработке, отличается высоким уровнем прочности и упругости, является привлекательным.
Внимание: при выборе древесины, стоит отталкиваться оттого, какая именно модель кровати вам необходима.
Чтобы изделие из дерева выглядело эстетично, но обошлось не слишком дорого, следует знать некоторые секреты:
- для декора и рамы стоит взять дорогой материал (дуб);
- для изготовления ножек подойдет древесина подешевле (сосну);
- а для реек, которые будут располагаться внутри изделия, можно выбрать самый простой вариант (березу).
Каркас двуспальной кровати чертеж
Здесь представлены чертежи двуспальной кровати с пошаговой инструкцией, чтобы вы могли сделать это самостоятельно, используя только бруски 2 × 4. Это полноразмерный каркас кровати, который можно собрать за один день. В статье приводятся подробные инструкции, схемы и чертежи с размерами. Убедитесь, что дизайн соответствует стилю остальной мебели в интерьере вашей спальни. Размеры деталей на схеме обозначены буквами, перевод в сантиметры смотрите ниже.
- A – 2 бруска 2 × 4 – длиной 33 дюйма (84 см), 2 штуки длиной 54 1/2 дюйма (139 см) , 1 штука длиной 63 1/2 дюйма (162 см) , 11 штук – длиной изголовья кровати
- Б – 2 бруска 2 × 4 длиной 21 ” (53 см), 2 шт. 54 1/2″ (139 см), 1 шт. 63 1/2 ” (162 см), 11 штук длиной 6″ (15 см) подножки
- C – 5 брусков 2 × 4 длиной 75 1/2 ″ (192 см)
- D – 17 брусков 2 × 4 длиной 54 1/2 дюйма (139 см)14 брусков 2 × 4 длиной 8 ′ (245 см)
- 9 брусков 2 × 4 длиной 10 ′ (305 см)
- морилка
- кронштейны для кроватей
Источник фото: myoutdoorplans.com/bed/2×4-full-size-bed-frame-plans/
Кровать с декоративными спинками
В инструкции, которая включает пошаговые схемы, где показано, как сделать красивую двуспальную кровать с декоративными спинками. Порядок такой. Аккуратно нарисуйте овальный рисунок на доске 1х10, как показано на схеме. Вырежьте рисунок, четко обозначив центры, прежде чем делать какие-либо надрезы на досках (чтобы вы знали, где выровнять овалы). После того, как овалы будут вырезаны и отшлифованы, вы не сможете много шлифовать после сборки, отметьте на досках 1×4 и 1×8 места для размещения овала, как показано на схеме. Вы можете использовать другой тип ножки. Для дополнительной поддержки можно добавить пятую ногу к центру кровати, если это необходимо.
Изголовье сделано так же, как подножка, но с более длинными ногами. Боковые панели крепятся с нижней части подножки. Используйте шурупы с карманным отверстием 1/2 ” и настенные кронштейны или длинные шурупы 80 мм с наружной стороны. Эта кровать предназначена для использования с пружинным матрасом. Прикрепите шипы заподлицо к нижней части боковых направляющих с помощью шурупов и клея.
Полную инструкцию с перечнем материалов и размерами распиловки деталей читайте на сайте, ссылка под галереей.
Источник фото: www.ana-white.com/2011/08/ovals-bed
Кровать с выдвижными ящиками — отличное решение для детской комнаты
По большому счету, конструкция этой кровати ненамного сложнее обычной, где под спальным местом оставляется свободное пространство. Главное — составить качественные чертежи, проставить в них правильные размеры, хорошо обработать все детали, предназначенные для сборки, аккуратно их собрать и найти удобную в эксплуатации фурнитуру. В данном случае выдвижные элементы должны иметь легкий ход, свободно выдвигаться и задвигаться, а для этого можно подобрать специальные боковые направляющие механизмы или закрепить дне ящика небольшие колесики.
Подвесная кровать
Этот оригинальный вариант спального места не так уж и сложен в изготовлении, как может показаться на первый взгляд. Единственное требование, которое должно быть соблюдено для эффективного функционирования данной конструкции — это достаточность свободного места, так как кровать рассчитана на покачивание в определённом амплитудном диапазоне.
Материал и цена
Если же вы не перестали разбираться в том, как сделать кровать своими руками – пора думать о материалах и общем ценнике. Все не так просто, как может показаться на первый взгляд. Лучше всего ограничиться деревом.

Причиной этому послужил процесс обработки материалов и последующей работы с ним. Например, с металлом вам нужны не только особые инструменты, но и навыки работы с ним. Металл хорош в готовых конструкциях, когда детали получаются легкими и прочными.

В домашних условиях такое практически невозможно получить самостоятельно, а потому можно отказаться от металла в качестве основного материала.

Множество чертежей кроватей своими руками, которые можно без проблем найти в интернете, заточены под деревянные конструкции.

Да и работать с деревом намного проще, даже не имея особого опыта или подготовки. При этом вы можете посмотреть на самые простые магазинные конструкции, и попытаться повторить их самостоятельно – в итоге вы заметите, что ваша конструкция выйдет намного дешевле, чем готовый вариант.

Что понадобится
Детская кровать – не самое сложное изделие, поэтому ее можно изготовить и при отсутствии опыта работы с мебелью. В магазинах большой выбор заготовок, из которых легко собрать хорошую мебель.
Выбор материала конструкции
Детские кровати изготавливают из дерева. Это долговечный и безопасный вариант. На первоначальном этапе выбирают матрас, а затем сырье. Спальное место имеет стандартный размер 1200х600 мм, если кровать для малыша, и 1800х800мм, если для подростка.

Популярные виды мебели:
- чердак;
- трансформер;
- двухъярусная;
- качалка;
- формовочная.
Наиболее простая — стандартная односпальная кровать. Для начинающих подойдет и формовочный вариант в виде машинки. При изготовлении понадобятся фигурные боковые стенки (в виде автомобиля, кареты, короны и т.д.).
Массив дерева
Стоимость готового изделия зависит от стоимости дерева. Самые дорогие – дуб и ясень. Но и кровати из них отличаются долговечностью. Обычно применяют сосну. Она обладает бактерицидными свойствами, оздоравливает воздух в помещении и долго остается в хорошем состоянии.

Массив может быть в форме:
- бруса;
- брусков;
- досок;
- плит.
Выбирать материал нужно тщательно. Брус и доски в строительном магазине должны храниться в штабелях, приподнятых над землей. В противном случае дерево гниет. Для кровати оно не подойдет, так как не безопасно, и может вызывать аллергию.

Размеры:
- брус: 5х5 см;
- доски: 2х10 см;
- листы фанеры – по внутреннему размеру каркаса.
Стоит выбирать уже обработанное сырье, с минимальным количеством сучков и неровностей (строганные и обрезанные). В противном случае придется дополнительно тратить время на чистку деталей. Дерево используется для внутренних частей кровати.
Фанера
В работе используются листы и плашки. Плашки крепятся непосредственно на основание, а сверху на них накладываются листы.

Чтобы избежать провисания матраса и сделать отдых более комфортным, необходимо предметы закрепить на рейках. К основанию они крепятся шурупами. Так как листы – не самый стойкий материал, то лучше его использовать для одноярусной кровати либо только в нижней части двухъярусной.
Для детской кровати не применяют ДСП, так как он не упругий и может создавать дискомфорт. Фанера более легкая и удобная.

МДФ
Профессионалы рекомендуют использовать именно МДФ в работе над детской кроваткой. Этот материал не подлежит ламинированию, а значит, его можно приклеить обычным ПВА. Такое предложение наиболее экологично и безопасно для ребенка. МДФ приобретают в мебельном цехе. Это дешевле, чем покупать в магазине с наценкой. Кроме того, работники сразу порежут сырье на детали.

Инструменты и дополнительные материалы
Помимо основных строительных элементов, потребуются:
- станок для шлифовки;
- фрезеровочная машина или долбежный станок;
- глухие шипы;
- саморезы;
- кисти и валики;
- шуруповерт;
- дрель;
- уровень и рулетка.
Обязательно приобретают: клей столярного типа, шпаклевочную смесь, стальные или пластмассовые уголки, детали для декора.
Как самому сделать самый простой вариант?
Чтобы сделать самую простую кровать из дерева своими силами, необходимо:
- подготовить чертеж;
- собрать необходимые инструменты;
- запастись расходными материалами.
Внимание: количество пиломатериалов, фурнитуры и крепежных элементов, рассчитываются согласно нарисованной схеме изделия.
Материалы
Для сооружения самой простой кровати потребуются следующие материалы:
- две доски для боковин (они должны быть на 5 см шире толщины матраса);
- доски для изголовья и изножья. По длине они обязательно должны совпадать с боковинами;
- брус для ножек с сечением 50 на 50 мм или 100 на 100 мм. Как правило, люди делают 4 или 6 ножек для деревянной кровати;
- рейки для крепления изголовья и реечного перекрытия, морилка, лак, кисточки.
Инструменты
Из инструментов вам понадобятся:
- электрический лобзик;
- рубанок;
- дрель или шуруповерт (при их отсутствии подойдут отвертки);
- рулетка и карандаш;
- ножовка.
Ход работ по изготовлению самодельного ложа
Самый простой способ изготовления:
- Сначала изготавливаем ножки. Для этого отпиливаем 4 или 6 кусочков от бруса, высотой от 15 и до 25 см.
- Далее отступаем от верха 5 см и крепим ножки к углам будущих боковин.
- Привинчиваем изнутри боковин опорную стойку для перекрытия.
- С помощью мебельного клея и заранее подготовленных реек прикручиваем изголовье кровати.
- Все детали тщательно обрабатываем морилкой и быстросохнущим лаком в два слоя.
- По всей площади спального места размещаем рейки перекрытия.
- Теперь укрепляем конструкцию для устойчивости посередине или по краям реечного дна.
Все что нам теперь потребуется – уложить матрас и попробовать сделанное изделие на комфорт и удобство.
Интересные идеи
Кроме описанных выше видов кроватей, которые можно создать своими руками, есть и совсем необычные – и очень интересные для использования в интерьере.
Одним из таких нестандартных решений является кровать, сделанная из пластиковых бутылок. Конечно, это не вершина искусства, и удобство такой конструкции весьма сомнительно. Впрочем, если оборудовать такую мебель подсветкой, а бутылки использовать как много ножек под реальным основанием под матрас, то может получиться весьма и весьма неплохо.
Нестандартными, но завоевывающими популярность в современном мире являются кровати, выполненные в стиле лофт. Сам по себе такой стиль подразумевает оформление всего помещения в виде мастерской или фабричного помещения, так что и кровать должна быть соответствующей. Можно, например, подвесить её под потолок, чтобы она держалась там на специальной конструкции до назначенного часа. Ночью же кровать опускается и используется по назначению. Интересное бескаркасное решение, ничего не скажешь.
Последним видом нестандартных кроватей можно назвать спальные места, выполненные в японском стиле. В Стране восходящего солнца во многом используется принцип строгого минимализма. Это относится и к кроватям. Они смотрятся очень интересно, и это замечают многие.
О том, как сделать кровать своими руками, смотрите в следующем видео.
Односпальная кровать из дерева своими руками
Изготовление односпальной кровати своими руками в домашних условиях начинается с определения ее габаритов. Чаще всего конструкция имеет ширину 80-100 см и длину 200 см. Для изготовления каркаса используются доски 25х4 см. Для боковин следует брать элементы длиной 200 см, для торцов – 100 см.

Рекомендуется длину кровати делать на 15-20 см больше роста человека, для которого она изготавливается
Как сделать кровать из дерева своими руками? Составные элементы конструкции могут соединяться несколькими способами. Самым простым методом является фиксирование досок с помощью саморезов. Для создания более прочной конструкции следует использовать металлические уголки.
Второй вариант предполагает соединение элементов с применением проушин и деревянных шипов. Гнезда выполняются с помощью лобзика или долота. Они должны иметь глубину 5 см и ширину 2-3 см. Подготовленные соединения смазываются клеем и собираются.
Следующим этапом изготовления односпальной кровати своими руками является установка ламелей. Для этого к продольным балкам конструкции крепятся поддерживающие планки, которые должны выдерживать вес человека. Они выполняются из деревянных брусьев квадратного сечения размером 4х4 см и крепятся на внутренней стороне боковин посредством саморезов. Далее к этим планкам параллельно друг другу на одинаковом расстоянии фиксируются рейки с помощью металлических уголков.

Специалисты рекомендуют использовать клей для лучшего укрепления соединения деталей и материала
Далее изготавливается изголовье и изножье кровати. Для этого применяют мебельный щит, ДСП, МДФ. Изделия могут иметь различную конфигурацию и высоту. Завершающим этапом является монтаж ножек для кровати. Они обычно выполняются из бревен или брусков. Изделия могут являться продолжением вертикальных стоек изголовья и изножья кровати. Их оптимальная высота составляет 25 см. Они крепятся с помощью металлических уголков и саморезов.
Как смастерить из двухъярусной отдельные?
Чтобы сделать из двухъярусной кровати две отдельные, для начала сооружают основу в виде прямоугольного короба, на который потом будет укладываться матрас подходящего размера. Сначала приготавливают боковые панели. Для этого берут две обработанные доски, распиленные по нужным размерам, и прикрепляются под углом в 90 градусов к ним ещё две доски поменьше. Это будет определённая полочка.
Внимание
К царгам крепят бруски, между которыми укладывается доска под основу, на которой будет располагаться матрас. При этом нужно учитывать ширину досок, чтобы они соответствовали параметрам изделия и гармонично вписывались в конструкцию.. Спинка создаётся по следующим шагам:
Спинка создаётся по следующим шагам:
- Берётся три доски, которые соответствуют ширине кровати. Их крепят к стойкам.
- Пользуются соединительными шкантами, чтобы закрепить конструкцию. Прикладывают их к доскам, намечают карандашом места для отверстий.
- Просверливают отверстия в двух деталях, соединяют их шкантами.
- Боковые спинки присоединяются аналогично. Первый ярус будет полностью собран.
Второй ярус делается точно также с соблюдением основных размеров мебели. Лестницу следует изготавливать по схеме соединения её конструктивных деталей методом «под потай». Её крепят к одной из стоек, закрепляют ограждения на верхней койке. При наличии ящиков лестницу крепят снаружи так, чтобы она плотно соединялась со стойкой. Следом крепятся ящики так, чтобы они не мешали подъёму по лестнице.
Разновидности конструкций односпальных кроватей
Односпальная кровать – это универсальный и компактный вариант спального места. Их обычно используют в небольших помещениях или детских комнатах. Ее основным преимуществом выступает то, что она не занимает много места. Плюс ко всему, кровать может обладать подъемным механизмом или ящиками, которые позволят использовать пространство под ней для вещей.
Также существуют и кровати-трансформеры. Такие конструкции могут складываться, что также освобождает место в комнате. Разновидностей односпальных кроватей великое множество. Например, детские кроватки. Их подбирают в первую очередь исходя из возраста ребенка
Если он только приучается спать один, то лучше обратить внимание на невысокие кроватки, с бортиками по бокам
Кровать с бортиком будет интересно смотреться в комнате.
Такие модели изготавливают из дерева, чтобы малыш не травмировался о металлические рейки или углы. Для детей старшего возраста, уже можно рассмотреть варианты без бортов. Лучше придерживаться все того же исполнения из дерева, так как даже старшие по возрасту, дети очень активны и любят играть в своей комнате, а металлическое изделие будет более травмоопасно.
Металлические кровати достаточно опасны.
Односпальные кровати для взрослого существуют следующих видов:
- Стандартный вариант с изголовьем.
- Диван-Тахта – невысокая кровать, может дополняться подлокотниками или спинкой.
- Трансформер – многофункциональная модель, которая объединяет спальное место со столиком или шкафом).
- Выдвигающаяся. Ее размещают на подиуме, устанавливается только в комнатах с высокими потолками.
- Откидная. Фиксируется в стене.
Сегодня существует множество разновидностей кроватей.
Каждый из видов подбирается с учетом размеров комнаты и стиля помещения. Стандартный вариант или Тахта, можно расположить практически в любом месте, а вот откидной вариант идеально подойдет для узких, но длинных помещений
Если рассматривать стиль помещения, то вид кровати может быть любым, а вот ее оформлению или декорированию нужно уделить особое внимание
Материал
Кровать категории “своими руками” лучше делать из дерева; оно обойдется дешевле ЛДСП при той же сложности работы, но кровать прослужит долгие десятилетия. Мебельный массив выйдет дороже ЛДСП, но можно обойтись строевым лесом без дефектов, если брать с закрытого отапливаемого склада. Пиломатериалы, хранимые под навесом или на открытом воздухе, на мебель годятся только после длительной досушки дома, причем из-за коробления образуется много отходов. Детскую кроватку, тумбочку, комод или журнальный столик из такого леса еще можно выкроить, но на взрослую кровать с ее сильно нагруженными деталями он точно не пойдет.
Кровать на несколько лет, пока не соберется деньжат на качественную мебель, можно делать из ДСП простой шлифованной, не ламинированной. Обойдется она вместе с покраской/лакировкой или обтяжкой самоклейкой под дерево не дороже деревянной. Проблемы усушки и коробления, естественно, отпадают, но срок службы кровати не превысит 20 лет вследствие естественной порчи связующего. Конструкции кроватей из ДСП имеют ряд особенностей, рассматриваемых далее.
А если все-таки массив?
Мебельный массив дерева дорог, но так же как и ДСП, гарантирован от коробления и усушки. И на кровать его пойдет куда меньше, чем на шкаф. Если вам такое престижное удовольствие по карману, то для образца на рис. изделие немецких мастеров: оригинальная двуспальная кровать из конструкционного массива дерева. Брус и прочие пиломатериалы не применяются. Исходный вариант с изголовьем-жалюзи предназначен к установке посреди комнаты. Такое изголовье у стены будет пылиться, но его можно и не делать, или сделать другое, см. далее. На одну только раму массива уйдет немногим более 2 кв. м; по деньгам для сосны это выйдет порядка 10 тыс. руб. Самая дешевая готовая кровать из массива стоит как минимум втрое дороже.

Чертежи деревянной кровати
О соединениях
Деревянная кровать будет наиболее долговечной, если собрать ее на столярных соединениях. Чаще всего используются пазогребневые, закрытые и открытые, и врезка вполдерева или на четверть. Шканты и шпонки применяют реже вследствие меньшей их прочности. Все соединения «дерево по дереву» обязательно проклеиваются.
Столярные соединения набирают расчетную прочность некоторое время, до 2-х недель, требуют достаточно высоких производственных навыков, специнструмента и отдельной мастерской, т.к. дают много опилок и стружки. Поэтому кровать домашнего изготовления собирают на металлических соединителях. Крепеж придется подтягивать по мере усыхания дерева, но кровать «на стали» примет полную нагрузку немедленно по изготовлении.
В кроватях «на время» и, в отдельных случаях, долговечных (см. далее) целесообразно применять универсальные тонкостенные стальные перфорированные пластины. Из них можно выгибать уголки, карманы или то и другое вместе, поз. 1 на рис. Уголки в таком случае лучше брать с выштампованным ребром жесткости, поз. 2.

Металлические соединители деталей кроватей
Кровать «на стали надолго» лучше собирать на болтах с гайками; головки болтов в лицевых поверхностях заделываются так же, как конфирматы: декоративными заглушками или шпаклевкой из ПВА или жидких гвоздей на опилках. Но контрение гаек парами стальная шайба – пружинная шайба, как на поз. 2, на дереве отходит в прошлое. Лучше взять фасонные гайки с рифленой нижней поверхностью (пресс-гайки) в комплекте с тефлоновыми шайбами. Упругий прочный тефлон вечен, гайку от развинчивания удержит не хуже гровера или лепестковой шайбы, а подтягивать соединение, скорее всего, вообще не придется.
О гвоздях
Рифленый гвоздь
О соединениях гвоздями сейчас и говорить-то не принято. Мол, архаика дедовская, а вот шуруповерт с конфирматами – круто. Но сбрасывать гвозди со счетов рано. Помимо дешевизны крепежа, гвозди не требуют подготовительных операций (сверления), специнструмента, изнашивающихся сменных рабочих органов к нему и не дают отходов. Что до шума, то опытный столяр «тюкает» 100-мм гвозди 200-граммовым молотком так, что в соседней комнате слышно, только если прислушаться.
В продаже имеются рифленые гвозди, см. рис., держащие дерево не хуже конфирматов и так же самоподтягивающиеся по мере усыхания древесины. В узлах, где эксплуатационная нагрузка не стремится выдернуть гвоздь, соединения на них вполне надежны, а если нагрузка приходится вдоль гвоздя от шляпки к острию, надежны абсолютно. В кровати таких узлов хватает, хотя бы крепление проставок к царгам, см. ниже.
Как изготовить красивым?
После изготовления и сборки кровати, можно приступить к ее декорации. Кровать из массива можно украсить резьбой. Такой вариант подойдет для классических интерьеров. Ажурная резьба на изголовье и изножье придаст изделию особый шарм. Такая кровать станет роскошным и солидным атрибутом любой спальни.
Как вариант, под классический интерьер, например, ренессанс, барокко или рококо, можно сделать кровать под старину из дерева. Для ее изготовления лучше всего подойдут дуб, бук или обычная сосна. Остановив выбор на изготовлении ложа под старину, вы наполните спальню изысканностью и эксклюзивностью.
Совет: если вы всерьез взялись за мебель в спальню, попробуйте изготовить туалетный, прикроватный или пеленальный столик. Возможно, вас также заинтересуют платяной шкаф или кровати из бруса, массива, поддонов, лдсп, металла и досок.
Размеры
Размеры ложа двуспальной кровати из соображений эргономики рекомендуются 2 м длина и 1,6 м ширина. Они могут быть при желании увеличены до 2,4х2 м; еще больше сделать трудно, используя обычные технологические приемы и конструкционные материалы.
Стандартная односпальная кровать – длиной 1,9-2 м и шириной 0,9 м. На такой при случае люди обычной комплекции помещаются и вдвоем. Ширина при недостатке места может быть уменьшена до таковой вагонной полки – 550 мм. Но при этом обязательно должно быть боковое ограждение даже у кровати для взрослых.
Высота поверхности ложа кровати (по верху матраца) – в пределах 350-500 мм, смотря по росту и телосложению владельца. Верхний предел лучше подойдет тем, у кого голень длиннее бедра, и наоборот. Модные «японские» кровати высотой 220-260 мм – только мода. Толщина слоя наибольшей запыленности воздуха в комнате – 200-300 мм от пола. Поэтому детская и подростковая кровати также должны быть взрослой общей высоты, самым маленьким для удобства нужно сделать приступочку.
Высота кровати распределяется так: 180-300 мм – матрац, 150-200 мм – царги, остальное – подкроватное пространство. Оно может получиться близким к 0. В таком случае нужно делать кровать с ящиками: без вентиляции из-под низу кровать скоро задохнется, начнет источать миазмы, а то и станет липкой на ощупь. Минимальная высота подкроватного пространства – 80 мм.
Из какого материала можно изготовить каркас кровати
Каркас кровати может быть изготовлен из дерева, металла, МДФ, ДСП или ротанга. Дерево по-прежнему пользуется наибольшей популярностью. Это связано с его высокими техническими и эксплуатационными характеристиками. Материал является прочным, экологичным и долговечным. Деревянные изделия имеют презентабельный и роскошный внешний вид.

Кровать из металла не только отличается прочностью и износостойкостью, а также может стать украшением спальни
ДСП или МДФ тоже часто используют для производства кроватей. Это связано с доступной стоимостью материала в сравнении с ценой массива дерева. Плиты прессованной древесины отличаются богатой цветовой палитрой. Поверхность может быть однотонной или имитирующей деревянные оттенки. Недостатком материала является некоторая токсичность, которая возникает вследствие наличия в составе изделий формальдегидов. Также существуют варианты кроватей из фанеры, характеризующиеся прочностью и долговечностью.
Прочно обосновались в современных интерьерах кровати из металла. Материал отличается высокой прочностью, износостойкостью и долговечностью. Металлические конструкции выполняются под позолоту или серебро, имитируют вид состарившегося изделия, могут обтягиваться кожей или тканью. Такие конструкции идеально вписываются в помещения, оформленные в стиле кантри, модерн или хай-тек.
Инструменты, материалы, фурнитура и крепёж
Когда мы примерно выясним, какой продукт нам нужен, мы начнём собирать все необходимые инструменты, подготавливать материалы, подбирать фурнитуру и крепежи, которые понадобятся для работы:

- Инструмент для работы по дереву (лучше взять несколько — циркуляр для резки и ножовку).
- Свёрла и дрели разных диаметров по дереву.
- Отвёртка.
- Ручные инструменты (молотки, плоскогубцы, зубила).
- Уровень, рулетка.
- Зажимы для склеиваемой продукции.
- Клей, карандаш для нанесения разметки.
- Доски, шурупы, болты, детали подъёмного механизма.
Справка
Пригодится верстак или специальные «козлы» для резки. Но оборудование обычно есть только у мастеров, которые делают деревянные кровати профессионально и постоянно. С ними работа будет идти намного быстрее, но их наличие не критично для сборки.
Поскольку вы будете делать двуспальную кровать из деревянных деталей, основные пункты списка покупок будут заняты пиломатериалами. Нужны:
- Брусья сечением 100×100 и 100×50 мм для ног и рамы.
- Доски толщиной 25 мм и шириной 250–300 мм.
- Рейки 30×60 или 25×50 мм для ламелей.
- Деревянная опора состоит из досок толщиной 20–25 мм для изголовья (как самому сделать изголовье кровати?).
Объём покупок определяется размером кровати. При этом материалы следует приобретать с запасом не менее 20%, чтобы не пришлось потом бегать за каждым болтиком и шурупом дважды. Это же касается пиломатериалов. Для новичков существует большой риск, что определённый процент досок вы случайно испортите.
Для таких конструкций сосна — наиболее недорогая порода. Доски для боковых панелей можно взять из дуба, клёна, ореха и т. д.
Ещё вам понадобятся:
- Гвозди и шурупы для крепления дерева.
- Стальные пластины разных размеров (для крепления деталей под углом 90 градусов).
- Плотницкий клей.
- Краска для древесины или лак.



















![[инструкция] как сделать кровать своими руками | 60+ фото](https://nikastroy.ru/wp-content/uploads/d/f/a/dfaa0c0b1a3d4ed1f29f043f59af83c6.jpeg)




















![[инструкция] как сделать кровать своими руками | 60+ фото](https://nikastroy.ru/wp-content/uploads/c/8/b/c8b2548cf66599a0ca7ba724e00e9b36.jpeg)
















