Чертежи с размерами для сварочных столов
Рассмотрим несколько моделей, которые отличаются сложностью, компоновкой и используемыми материалами.
Простейший стол для сварочных работ
Эта модель не отличается солидными размерами или большой нагрузочной способностью, но для сварки некрупных деталей, которые требуют крепления в тисках или с помощью струбцин, подходит очень неплохо.

Основа конструкции – уголок 60х60х670 мм, из которого выполнены ножки. Обвязка, в применении к обычному столу именуемая царгой, изготовлена из полосы толщиной 20 мм и шириной 100 мм. Длина двух фрагментов (по длинной стороне) – 1000 мм, двух других (по короткой стороне) – 620 мм. Полосы приварены к уголку снаружи, причем верхний край полосы выше верхнего края уголка на 20 мм.
Внутрь жесткой рамы (ножки плюс обвязка) уложены и приварены полосы металла толщиной 20 мм, шириной 100…150 мм (не критично) и длиной 580 мм. При желании для усиления рамы можно приварить поперечины по длинным и коротким сторонам стола внизу, на высоте 200…300 мм. Если сделать их из уголка, на них можно будет опереть полку.
Столешница набирается из профильной трубы или полос металла с толщиной 30 мм. Если используется труба, желательно заварить ее торцы пластинами. На схеме не показаны зазоры между полосами, но на практике желательно оставлять промежутки 20…30 мм, чтобы можно было крепить детали к столу в любом месте струбцинами.
Мобильный сварочный столик на колесах
Компактная квадратная модель с дополнительной полкой особенно удобна, если сварочные работы надо выполнять, перемещаясь в пределах помещения или по участку. Стол предназначен для работы стоя, поэтому высота столешницы больше, чем это обычно принято.

Нагрузочная способность в данном случае даже меньше, чем у предыдущей модели, поскольку для столешницы использован лист толщиной всего 3 мм, такую же толщину имеет уголок ножек.
Обратите внимание: при сборке необходимо разместить уголок ножек ВНУТРИ обвязки из уголка, это стабилизирует конструкцию и делает ее более аккуратной. Для перемещения столика используются стандартные поворотные колесики без стопора (можно использовать мебельные, но только металлические). Для перемещения столика используются стандартные поворотные колесики без стопора (можно использовать мебельные, но только металлические)
Для перемещения столика используются стандартные поворотные колесики без стопора (можно использовать мебельные, но только металлические).
Сварочный стол на регулируемых опорах с перфорированной столешницей
Эту модель можно назвать сборочно-сварочным столом, поскольку перфорация столешницы позволяет закрепить на его поверхности множество различных приспособлений, облегчающих монтаж. Такое изделие применимо также для столярных работ, гибки дерева или металла по шаблону, ремонта и так далее.


Модификация модели с немного другими размерами
Опорой для металлической перфорированной столешницы, имеющей толщину 3 мм и более и шаг отверстий по сетке хотя бы 100х100 мм. Диаметр отверстий – 10…25 мм, в зависимости от способа креплений деталей и размера используемых приспособлений (струбцин). В перфорированном листе выполняются пазы шириной 10 мм для установки усиливающих пластин с тыльной стороны и крепления бортиков.
Для этой модели используются стандартные регулируемые ножки, способные выдержать требуемую нагрузку. При выборе мебельных регулируемых ножек необходимо убедиться в достаточном шаге резьбы на регулирующей опоре и прочности изделия в целом.

Примеры использования стола для сварочных работ с перфорированной столешницей
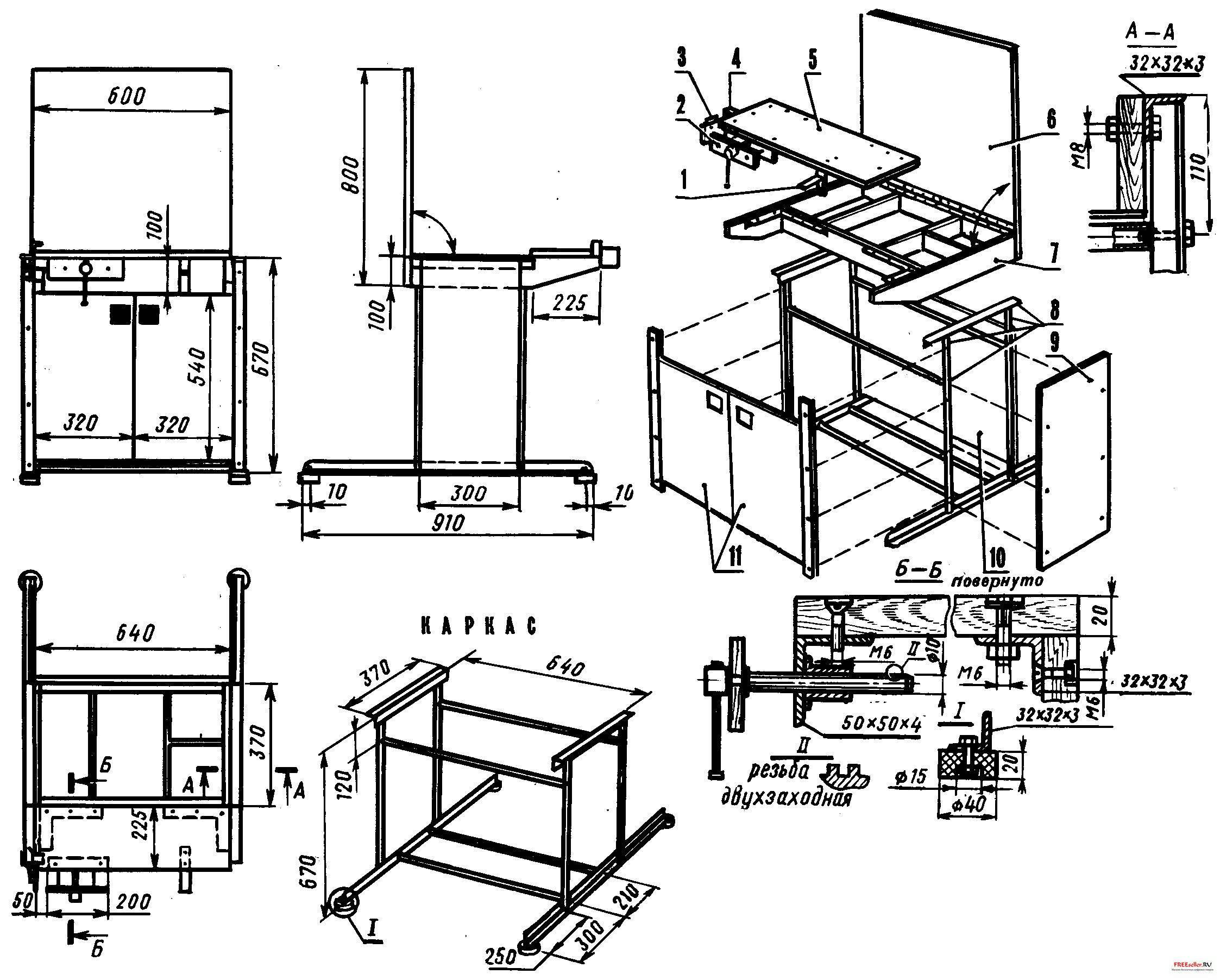
Раскладной сварочный стол с дополнительными деталями
Если предыдущие модели было несложно сделать самостоятельно, эта конструкция потребует хороших навыков сварщика и монтажника, зато и удобства в процессе работы обеспечит гораздо больше, чем стандартные столы для сварки.

Основная часть изделия практически не отличается от представленного первым варианта. Здесь также использованы массивные стойки и обвязка из профилированной трубы, но внизу добавлена нижняя обвязка, служащая опорой для полки. А вот боковые элементы интереснее.
С помощью петель к передней и задней кромке столешницы крепятся откидные детали, собранные из трубы с гораздо большим промежутком между элементами, чем в основной столешнице. В рабочем (поднятом) положении эти панели удерживаются П-образными подставками, закрепленными на стойках стола с помощью вращающейся оси.
Вынесенная справа дополнительная полка, усиленная раскосами, имеет колесики усиленной конструкции. С их помощью стол можно транспортировать, приподняв противоположный край.
Как изготовить такую конструкцию, можно посмотреть на видео.
Ошибки при сборке
Важно хорошо понимать, чего не стоит делать при проектировании и сборке металлического верстака
Первым делом стоит обратить внимание на место, где будет установлен слесарный верстак. Часто при заливке пола в гараже руководствуются правилом «и так сойдет»
Но это приводит к большим перепадам плоскости, что отрицательно сказывается на слесарном верстаке. Например, некоторые мастера, решившие изготовить для себя слесарный верстак на восьми или шести опорах, сталкиваются с тем, что после установки половина опор находится в воздухе, а сам верстак перекидывается из стороны строну.
Работать за таким слесарным верстаком очень неудобно, а мелкие детали постоянно теряются. Выходом из сложившейся ситуации может стать сооружение регулируемых опор. В этом случае в нижнюю часть устанавливаются мощные болты, которые позволят выровнять слесарный верстак в горизонтальном положении. Другим вариантом будет предварительная подготовка поверхности. Для этого убирается часть стяжки, которая уже залита и заливается новая, которая выравнивается четко по горизонту. В этом случае не потребуется изготовление дополнительных деталей для опор слесарного стола.
Другим решением такой ошибки является уменьшение количества опор до 4 штук. В этом случае будет проще добиться правильного положения даже на неровной поверхности. При правильном проектировании и сооружении каркаса не должно возникнуть проблем с устойчивостью всей конструкции. Дополнительно в нижней части слесарного верстака сооружается полочка или несколько полочек для хранения расходников и инструментов. Одна из них должна находиться как можно ближе к поверхности пола. В этом случае тяжелый инструмент, который на ней можно расположить, будет выступать балансиром для всего каркаса.
Это интересно: Встроенный шкаф в спальню с распашными дверями
Полезные советы по обустройству пространства в гараже
Поскольку гараж по своему прямому предназначению является домом для авто, следует внимательно отнестись к тому, чтобы место под инструменты было хорошо организовано. Также в помещении наверняка найдется несколько квадратных метров для того, чтобы вынести часть предметов из квартиры, чтобы не загромождать жилое помещение.
При монтаже различных устройств в помещении важно учитывать, чтобы все доступное оборудование было под рукой. Для этого можно воспользоваться следующими рекомендациями:
Вне зависимости от размеров гаража важно иметь стеллаж с полками, на которые можно положить инструменты, материалы и полезные мелочи.
Если есть желание осуществлять текущий ремонт авто своими руками или совершать другие ремонтные работы, то в гараже обязательно нужно смастерить верстак.
Для капитального ремонта автомобиля следует сделать свой собственный погреб – он не только позволит регулярно осматривать механизм, но и даст дополнительное пространство для хранения.
Наконец, для гаража вполне реально обустроить под собственный небольшой цех, приспособления для которого также можно смастерить своими руками.
Рациональная организация пространства в гараже создает много ощутимых преимуществ:
- появляется возможность самостоятельного осуществления мелкосрочного ремонта деталей авто и других механизмов, за счет чего можно значительно сэкономить средства;
- удобное размещение инструментов значительно ускоряет ход работы и экономит время;
- создание дополнительных мест для хранения инструментов, старых вещей, одежды дает возможность разгрузить квартиру от вещей, которые редко используются в домашнем хозяйстве;
- наконец, продуманная внутренняя логистика помещения позволяет ему сохранить свой привлекательный внешний вид и избежать захламления.
Верстак своими руками: как сделать слесарный и столярный стол. Обзор лучших идей и 80 фото различных моделей

Хороший верстак в гараже позволяет сделать различные виды работ по металлу и дереву за короткий промежуток времени. Здесь хранятся различные инструменты и мелкие детали. Простым языком, он представляет собой специальный стол, на котором можно делать токарные и слесарные изделия.
Помимо столешницы, здесь могут присутствовать многослойные конструкции полок и подвесных емкостей для хранения гвоздей, шурупов и гаек.
Сделать универсальный верстак достаточно просто. Главное в этом деле, подготовить проект и подробные чертежи будущего изделия. В процессе создания необходимо соблюдать очередность каждого действия.
Самостоятельное изготовление подобного сооружения позволит сэкономить приличную сумму. Помимо этого, индивидуальный проект помогает сделать конструкцию исходя из параметров вашего помещения.
Разновидности верстака
Существует несколько видов верстака. Каждый из них имеет некоторые характерные особенности. В свою очередь они делятся на:
Слесарный. Он предназначается для работ по металлу. Столешница такого изделия сделана из высокопрочного металлического сплава. Это необходимо для безопасности. В процессе работы по железу могут присутствовать искры.
Помимо этого, использование смазочных материалов может оставить следы на деревянной поверхности. Железное основание не требует особого ухода.
Универсальный стол имеет в своей конструкции металлическую и деревянную столешницу. На чертеже верстака изображено устройство столярной рабочей зоны.
Что входит в конструкцию верстака?
Если изделие изготовляется самостоятельно, то здесь важно продумать каждую мелочь. Дополнительные полки и вместительные подвесные емкости помогут рационально использовать данное изделие. Стандартная модель содержит в себе множество выдвижных ящиков для хранения крупных инструментов
Стандартная модель содержит в себе множество выдвижных ящиков для хранения крупных инструментов.
Самодельный стол может иметь как металлическую, так и деревянную систему хранения. Дополнительный металлический щит позволяет хранить здесь мелкий подвесной инструмент. Теперь ножовки и молотки будут располагаться в одном месте.
Как сделать верстак своими руками?
Предлагаем вашему вниманию подробную инструкцию как сделать верстак. Изготовление столярного стола проходит в несколько этапов. Первым делом, необходимо подготовить все инструменты и материалы.
Для этого понадобятся:
- ножовка;
- шуруповёрт или набор отверток разного диаметра;
- столярный угольник;
- уровень;
- болты;
- гайки;
- саморезы;
- подробный чертеж изделия;
- гаечный ключ.
Из материалов необходимо подготовить:
бруски для опоры. Размер каждого элемента должен составлять 110 х 110 мм
В процессе выбора, необходимо уделить особое внимание состоянию древесины. Здесь не должны присутствовать трещины и сучки; листы фанеры толщиной 30 мм; доски для каркаса
Когда все необходимые предметы подготовлены, можно переходить к рабочему процессу. Он включает в себя следующие этапы:
Первоначальным действием будет сооружение нижней рамы, в которой будут располагаться инструменты и слесарный станок. Для этого доски отпиливают до нужного уровня. Далее их соединяют между собой при помощи саморезов. В итоге должна получиться прямоугольная форма.
Посередине устанавливают распорную планку. В дальнейшем она сократит сопротивление готового изделия в ходе рабочего процесса понадобится небольшая деревянная доска.
Опорные ножки стола фиксируют при помощи болтов. Для этого в плоскости рамы делают сквозные отверстия. Для надежности рекомендуется сделать от 6 до 8 ножек по всему периметру.
Для придания жесткости изделию необходимо сделать нижнюю полку. В нижней части каждой ножки отмечают по 25 см. Далее здесь крепят длинные деревянные планки. В дальнейшем на их поверхности зафиксируют ДСП панель. Она будет выступать в качестве основания.
Когда основная часть каркаса выполнена приступают к установке верхней столешницы. Здесь понадобится ножовка. Она удаляет лишние части доски.
Защитить поверхность деревянной столешницы поможет оргалит. Это прочный материал, который предназначен для рабочей зоны.
Увеличить систему хранения, можно при помощи дополнительного металлического щита, который крепят к задней части столярного стола. В опорных досках делают сквозные отверстия. После этого болтами фиксируют металлическое основание. На фото верстака своими руками, запечатлена очередность каждого действия.
Расчет высоты
Оптимальная высота верстака в гараже рассчитывается исходя из роста человека и основного направления работ. При стационарных параметрах высоты для удобства использования изготавливают подножки в виде деревянной обрешетки.
Чертеж двухъярусной модели
При расчете чертежей следует учитывать толщину столешницы, расстояния для креплений сваркой, длину перекатных опор, высоту оборудования. Без учета этих моментов расстояние до столешницы от пола увеличивается на 3–4 см.
Гаражный стол с ящиками
Для изготовления столярного верстака оптимальный размер высоты для работы подбирают по формуле:
Рост минус 90 см (интервал нагрузки на скелет в положении стоя) = оптимальная высота.
Параметры подсчетов приведены ниже в таблице.
| Рост, см | Стандартный интервал 100 % нагрузки в положении стоя, см | Высота слесарного верстака, см |
| 165 | 90 | 75 |
| 170 | 90 | 80 |
| 175 | 90 | 85 |
| 180 | 90 | 90 |
| 185 | 90 | 95 |
| 190 | 90 | 100 |
| 195 | 90 | 105 |
| 200 | 90 | 110 |
Параметры изделия с выдвижными ящиками
Для проверки высоты следует стать боком к изделию, опустить на поверхность ладонь. Если рука не сгибается, не напрягается, значит, расстояние подобрано правильно.
Схема гаража
Можно проверить другим способом. Встать лицом к верстаку, положить на него ладони. Если руки не сгибаются, в плечах и спине не чувствуется напряжение, то расчеты верны.
Размеры стандартного вида
Слесарный станок предполагает использование тисков. Расчет высоты стола для работы с тисками производится по формуле:
Рост минус длина головы от макушки до подбородка, минус длина руки от локтя до кончика пальцев, минус высота тисков = оптимальная высота.
Передвижная модель
Полученные данные приведены в таблице ниже.
| Рост, см | Длина головы (до подбородка), см | Длина руки (от локтевого сгиба до кончиков пальцев), см | Высота слесарного верстака, см (с тисками 14 см) | Высота слесарного верстака, см (с тисками 18 см) | Высота слесарного верстака, см (с тисками 22 см) | Высота слесарного верстака, см (с тисками 31 см) |
| 165 | 22 | 42 | 87 | 83 | 79 | 70 |
| 170 | 22 | 43 | 91 | 87 | 83 | 74 |
| 175 | 23 | 44 | 94 | 90 | 86 | 77 |
| 180 | 23 | 45 | 98 | 94 | 90 | 81 |
| 185 | 23 | 46 | 102 | 98 | 94 | 85 |
| 190 | 24 | 47 | 105 | 101 | 97 | 88 |
| 195 | 24 | 48 | 109 | 105 | 101 | 92 |
Чтобы проверить правильность выбора высоты, следует встать лицом к установленным тискам. Затем нужно согнуть преобладающую руку в локте и поставить на центр устройства. Пальцы должны касаться подбородка, спину при этом держат ровно.
Образец дизайна
Если мастер выполняет работу преимущественно сидя, то оптимальный расчет высоты делается по формуле:
Рост минус 110 (стандартный интервал нагрузки сидя) = высота слесарного верстака.
Подвесной вариант
Как установить стеллажи и полки
Стеллажи под потолком
Для максимально комфортного обустройства гаража требуется довольно много места, а это часто бывает проблемой. Хранение рабочих инструментов и оборудования также занимает довольно большое пространство. Поэтому при самостоятельном обустройстве гаража постарайтесь как можно больше пространства приспособить под полки или шкафы, но так, чтобы они не мешали свободному передвижению по помещению. Полки можно навешивать везде, где вы за них не будете цепляться или ударяться, над столами, окнами, стеллажами и так далее.
Расстояние до машины при навешивании полок с каждой стороны должно быть хотя бы 1 метр.
Обустройство гаража в угловой зоне
Довольно часто удобно оборудовать под разнообразные полки и оборудование стену, которая находится дальше всего от ворот. Именно там располагают основные рабочие инструменты, компрессор, верстак и прочее. Все под рукой и не мешает передвигаться по помещению.
Большое количество полок в гараже – это большой плюс, но также стоит подумать и о небольшом шкафчике, куда можно было бы вешать рабочую одежду и складывать некоторую ветошь.
Как сделать слесарный верстак своими руками: советы по изготовлению металлического самодельного оборудования

- Особенности конструкции
- Этап проектирования
- Рекомендации по изготовлению
Если предполагается проводить столярные работы, то можно изготовить своими руками верстак из дерева. В противном случае предпочтение стоит отдать конструкции из металла
Определившись с размерами оборудования, следует обратить внимание на некоторые особенности конструкции:
- Станину верстака лучше всего изготовить из металлического уголка или трубы квадратного сечения. При этом следует брать сталь толщиной от 3 до 5 мм и шириной 30−50 мм.
- Конструкция стационарного верстака должна быть сварной, так как болтовые соединения могут не только мешать, но и снизят жесткость.
- Столешница изготавливается из листа металла и при выборе его толщины необходимо подумать о жесткости, также устранении возможных вибраций.
- Если часть заготовок будет подвергаться ударной обработке, часть столешницы следует изготовить из металла, толщиной от 15 мм.
- Форма столешницы может быть любой, но П-образная менее удобна при работе. Если верстак будет оснащаться дополнительным оборудованием, например, для гибки металла, то такие устройства следует размещать на торцах.
- Ящики, предназначенные для хранения инструмента, заготовок и других предметов, лучше сделать выдвижными, чтобы в них не попадала стружка.
- Тумбочки не должны занимать все свободное пространство под столом.
- Поверхность столешницы должна быть ровной без различных углублений и бортиков. Аналогичные требования предъявляются и к покрытию пола.
- Если на верстаке будет установлено электрическое оборудование, металлические части стола необходимо заземлить. Для создания комфортных условий работы следует подумать о розетках и освещении.
Этап проектирования

Также можно начать изготавливать верстак металлический слесарный своими руками от стены, к которой крепится основной элемент конструкции. Из положительных моментов этого способа стоит отметить возможность быстро вносить изменения конструкцию.
Однако есть и недостаток — отсутствие заранее продуманного плана может стать причиной создания не самой продуманной конструкции.
Второй способ заключается в составлении чертежа будущего верстака и в соответствии с ними осуществляется подбор материалов. В такой ситуации стоимость оборудования может оказаться выше, но при этом конструкция будет хорошо продумана. По какому пути стоит пойти, решает только мастер.

Столешницу стоит изготовить из досок, а сверху накрыть листовым металлом толщиной в 2 мм
Здесь особое внимание необходимо уделить древесине, которая должна быть хорошо высушена, чтобы в будущем поверхность под металлом не начала искривляться
Каркас полок и другие не силовые элементы конструкции можно изготовить из уголка 20х20х3 мм. Силовая полка выполняется из древесины толщиной около 20 мм, после чего может быть обшита стальным листом. Для изготовления остальных полок можно использовать фанеру.
Из уголка нарезаются заготовки необходимой длины и затем с помощью сварки соединяются. Опорные пластины, прикрепленные к ножкам, способны сделать конструкцию достаточно устойчивой.
Однако их можно прикрепить к полу, используя анкерные болты или шурупы с шестигранной головкой.
Выбираются крепежные элементы в зависимости от материала пола. Заключительный этап изготовления станины предполагает ее обработку краской.
Для столешницы потребуются следующие материалы:
- Уголок металлический 20х20 мм.
- Доска толщиной 50 мм.
- Стальной лист толщиной в 2 мм.
Перед началом сборки столешницы, деревянные элементы стоит покрыть огнеупорным составом, который способен защитить доски не только от искр, но и жуков-короедов. Когда доски будут плотно уложены, столешница накрывается листом железа и выравнивается.
После этого по контуру верстака укладывается уголок 20х20 и крепится с помощью болтов к основанию. Для удобства работы на оборудовании стоит использовать крепежные элементы с потайными головками.
Для изготовления ящиков листовой металл раскраивается в соответствии с чертежом, и ему придается необходимая форма. После этого конструкцию остается сварить по углам и вставить в направляющие верстака. Когда все работы по его изготовлению будут завершены, можно начать устанавливать дополнительное навесное оборудование.
Напольное покрытие
Пол в гараже несет огромную нагрузку. Кроме самого автомобиля он должен выдерживать тяжеловесное оборудование. При этом в процессе ремонтных работ пол подвергается серьезному механическому воздействию. Поэтому к покрытию пола предъявляются очень высокие требования.
Самый широко применяемый вариант – заливка бетоном. Для бетонной стяжки используется бетон высокопрочных марок. Нередко стяжка становится основанием для укладки того или иного декоративного материала. Но в техническом гаражном помещении вполне логично смотрится и просто бетонный пол.
Бетонный пол в гараже
Деревянные полы могут быть уложены в гараже в качестве временного экономичного покрытия. Дерево не обладает высокой устойчивостью к истиранию, поэтому быстро теряет первоначальные характеристики. Деревянные доски не только деформируются под тяжестью автомобиля и тяжелого инвентаря, но и впитывают всевозможные автомобильные жидкости, которые нередко проливаются в гараже. Но в малогабаритном гаражном помещении, не предназначенном для ремонтных работ деревянный пол может прослужить достаточно долго – около 5 лет.
Укладка деревянного пола в гараже
Наливной пол
Наливной пол на цементной основе имеет характеристики, схожие с характеристиками бетонной стяжки. Но наливные смеси более влагостойкие, чем бетон, к тому же они не впитывают грязь. Они вообще очень привлекательны по своим техническим показателям. В качестве минуса можно назвать высокую стоимость такого варианта покрытия. Выглядит наливной пол как мокрый бетон, и автовладельцы, которых раздражает глянцевый блеск пола покрывают его дополнительным декоративным материалом.
Гараж с наливным полом
Керамогранит
Пол гаража можно выложить специальной технической керамикой с повышенной прочностью и антискользящей поверхностью. Этот вариант достаточно практичен. При этом он обеспечивает привлекательный дизайн помещению, так как существует в различных цветовых вариантах. Но керамическое покрытие может растрескиваться и раскалываться, а швы между плитками впитывает горюче-смазочные материалы.
Выбор напольного покрытия осуществляется с учетом многих факторов, таких как размер выделенного на обустройство гаража бюджета, объем работ, которые будут выполняться в гараже, эстетические предпочтения автовладельца и т. д. Специалисты же рекомендуют использовать наливные материалы, так как они больше других соответствуют эксплуатационным особенностям гаражного помещения.
Керамогранитный пол в гараже На нашем сайте Вы можете найти контакты строительных компаний, которые предлагают услугу разработки проектов и монтажа гаражей и прочих малых форм под ключ. Напрямую пообщаться с представителями можно посетив выставку домов Малоэтажная Страна
.
Особую функцию в гараже выполняют ворота. Необходимо выбрать оптимальный вариант ворот, который будет полностью соответствовать техническим и эстетическим требованиям хозяина.
Самый простой по конструкции вид гаражных ворот. Распашные полотна изготавливают из прочного металла и укрепляют надежной рамой. В одной из створок обычно делают дверной проем, чтобы можно было зайти в гараж или выйти из него не открывая ворота полностью.
Гараж с распашными воротами
Откатной механизм очень удобен. При нем полотно ворот сдвигается в сторону вдоль забора или стены прилегающего к гаражу здания. Такой вариант обычно применяется при обустройстве гаражных построек, расположенных у въезда на участок.
Гараж с откатными воротами
Представляют собой одностворчатые конструкции, которые поднимаются вверх под потолок гаража. Хороший вариант для небольших гаражных помещений. Но линию подъема таких ворот нужно учитывать, продумывая обустройство гаража внутри, чтобы они не задевали светильники или отделку потолка.
Гараж с подъемными воротами
Секционные
Работают по принципу подъемных, но при открытии делятся по секциям и складываются под потолком. Движутся по направляющим при помощи пружинного механизма.
Секционные ворота гаража
Удобный и недорогой вариант ворот, которые в открытом положении складываются в короб над проемом. Устанавливают роллеты в тех гаражах, которые находятся на охраняемой территории, так как данный вид ворот легко поддается взлому.




































