Характеристики разных типов плит
В зависимости от материала, их которого изготовлена плитка для дорожки, существуют следующие виды этих декоративных элементов:
Цементно-песчаная плитка
Обладает средним показателем морозоустойчивости от 200 до 305 циклов. При этом истираемость покрытия колеблется в пределах 0,15 – 0,55 г/см2. Водостойкость составляет порядка 2-5%. При этом «камни» производятся толщиной 30-80 мм. Если цементно-песчаная плитка была изготовлена методом вибролитья, то срок ее службы составит около 10 лет, вибропрессования – 30 лет.

Такой вид «камней» для дорожек отличается хорошей морозостойкостью до 500 циклов и водостойкостью 0,3%. Стоить такие изделия будут от 260 рулей за «квадрат».
Клинкерная плитка
Такое покрытие для дачного участка не подойдет для холодных регионов, так как морозостойкость таких изделий составляет всего 200 циклов. Влагостойкость у таких элементов высокая (5%), а истираемость превышает 0,7 г/см2. Средний эксплуатационный срок, гарантируемый производителем составляет не более 20 лет, а вот стоит такое покрытие от 1 500 рублей за м2.

Резиновая плитка
Это современный материал для обустройства не только дорожки на даче, но и игровой площадки для детей. Резиновый настил обладает хорошими показателями морозостойкости (более 400 циклов). К тому же это покрытие абсолютно водонепроницаемо и выдерживает от -45 до +60 градусов. Единственный минус – это срок эксплуатации, который составляет не более 10 лет. Обойдется такое декоративное покрытие в 850 рублей за «квадрат».

Помимо материала, из которого состоит плитка тротуарная, учитывается и ее форма.
Вибролитье на домашнем участке
Для производства тротуарной плитки в домашних условиях подходит вибролитье. Для этого необходимо приобрести недорогие оборудование и инструменты. Что касается вибростола, то его соорудить самостоятельно несложно. Чтобы начать делать плитку, необходимо придерживаться таких этапов:
- подготовка пресс-форм;
- замешивание раствора;
- формовка в вибростоле;
- выдержка и сушка в формах;
- распалубка плиток.
Тротуарная плитка, которая была изготовлена по вибротехнологии, отлично подходит для садовых дорожек. Если речь идет об автомобильной стоянке, то лучше всего воспользоваться прессованными изделиями.
Прессованную плитку лучше использовать для укладки в автосалонах
Виды плитки
Существует несколько разновидностей современной тротуарной плитки, которые классифицируются исходя из добавок входящих в состав изделий, форм и других параметров:
- Тротуарная брусчатка с гранитной крошкой. Отличается легкостью, морозостойкостью и устойчивостью к агрессивным препаратам и перепадам температурных режимов. Помимо этого она не будет скользить.
- Плитка с резиновым наполнителем. Обладает хорошими эксплуатационными качествами и легко укладывается на участке. Поверхность таких плит очень мягкая, что исключает риск получения травм при падении, поэтому резиновые плиты чаще всего устанавливают в зонах, где играют дети.
- Плитка тротуарная армированная. Армирующее основание используется для улучшения прочности готовых изделий «на изгиб». Часто вместо стандартной металлической сетки для армирования применяют фибриновую сетку. Такие плитки производят только методом вибролитья.
Также сегодня появилась трехмерная тротуарная плитка. Облако, черепашка, дельфины, как на фото, все это может появиться на вашем участке благодаря нанесению фотопечати.
По форме изделия также существуют разные виды тротуарной плитки:
- Стандартная тротуарная плитка ромб.
- Клеверная. Изготавливается из бетона и щебня, загрязняется очень долго, благодаря чему не требует часто чистки.
- Английский булыжник. Изготавливается методом вибролитья, внешне напоминает натуральный природный камень, чаще всего бывает коричневых и серых оттенков.
- Волна. Отличается долгим сроком эксплуатации благодаря тому, что плиты не смещаются со временем.
- Кирпичик. Прочная и надежная плитка, практически не отличающаяся от обычных кирпичей.
- Галтановая. Отличается закругленными углами.
Обратите внимание на фото и видео, описывающие эти плиты, каждая из них подойдет для определенного дизайн проекта
Вибростол для тротуарной плитки своими руками: правила сборки конструкции
После того как все необходимые материалы будут приобретены, остается лишь собрать конструкцию воедино. Но для того чтобы полученное устройство исправно служило на протяжении многих лет, необходимо придерживаться следующих правил:
Все металлические элементы должны быть вскрыты антикоррозийным составом еще до начала сборки. Это обеспечит им надежную защиту от появления ржавчины. Отлично подойдет для этой цели грунтовка ГФ-021 Лакра, стоимость которой всего 125 руб/кг или краска-эмаль. При этом, если приходится иметь дело с элементами, которые уже подверглись коррозийным процессам, придется приобрести более дорогостоящий материал, например, грунтовку ЭП-0180, стоимостью 188 руб/кг.
Для скрепления составных частей вибростола обязательно нужно использовать сварной шов. Болты для этой цели не используют потому, что со временем в результате воздействия вибрации, они могут расшататься, что приведет к снижению жесткости опоры
Такое решение допускается только для разборных конструкций, но в этом случае необходимо регулярно производить подтяжку болтов.
Очень важно, чтобы мотор, который производит вибрацию, ни в коем случае не соприкасался с землей. Этого не допускает технология производства тротуарной плитки, а потому перед тем, как приступить к изготовлению первой партии, устройство нужно протестировать, запустив, и проверив амплитуду колебаний и жесткость пружин.
Все ножки опоры должны иметь одинаковую длину. Однако для того чтобы стол было удобно использовать, нужно позаботиться еще и о том, чтобы поверхность, на которую он будет установлен, была ровной
Это позволит избежать перекосов и сделать процесс изготовления тротуарной плитки для дачи максимально эффективным. Разумно продумать крепление стола к поверхности. Сделать это можно, используя подходящие анкера или бетонный раствор.Полезный совет! В некоторых случаях идеальное месторасположение двигателя удается определить исключительно опытным путем. Если в работе вибропресса вас что-то не устраивает, можно немного поэкспериментировать, чтобы достигнуть желаемого эффекта и удобства в работе
Однако для того чтобы стол было удобно использовать, нужно позаботиться еще и о том, чтобы поверхность, на которую он будет установлен, была ровной. Это позволит избежать перекосов и сделать процесс изготовления тротуарной плитки для дачи максимально эффективным. Разумно продумать крепление стола к поверхности. Сделать это можно, используя подходящие анкера или бетонный раствор.Полезный совет! В некоторых случаях идеальное месторасположение двигателя удается определить исключительно опытным путем. Если в работе вибропресса вас что-то не устраивает, можно немного поэкспериментировать, чтобы достигнуть желаемого эффекта и удобства в работе.
Методы разбалансировки мотора вибростола
В зависимости от того, где именно установлен двигатель, необходимо провести разбалансировку блока ременной передачи на столешнице или же шкива. Сделать это можно несколькими способами:
- насадить на вал круглый шкив, у которого просверлен или сточен участок окружности;
- экспериментальным путем подобрать подходящую по размеру и весу гайку, и приварить ее на шкив;
- надеть муфту на вал, предварительно приварив на ее торец болт с двумя гайками, размещенный поперек. За счет того, что гайки можно перемещать по резьбе, осуществляется разбалансировка.
Для надежной длительной работы вибростола стоит использовать стальные элементы и варочный аппарат для креплений
Как видно, самостоятельное изготовление тротуарной плитки для дачи – вполне посильная задача, если потратить время и усилия на изучение вопроса и сборку необходимого устройства. Хотя нельзя не отметить, что с помощью такого вибростола можно организовать, например, и небольшое производство полимерпесчаной тротуарной плитки.
Виды форм
Ну и, собственно, сами формы. Как их выбирать, и какие конкретно, можно легко разобраться самостоятельно. Выбор их огромен. Выбирайте исходя из своих личных предпочтений.

При выборе формы для тротуарной плитки нужно понимать, какие виды форм есть на рынке и чем они отличаются:
- Силиконовые формы;
- Пластиковые;
- Полиуретановые;
- Деревянные.
Силиконовые формы
Нужны там, где планируется плитка со сложной формой и различной структурой поверхности. С одной стороны, за счёт силикона форма эластична, с другой – быстро деформируется и выходит из строя. Её функция ограничена только полусотней циклов закладки.

Пластиковые формы
Используются для изготовления сложных узоров. Прочные и долговечные в отличие от силиконовых. Их потенциал уже составляет 800 закладок.

Деревянные формы
Делаются самостоятельно своими руками из различных деревянных и фанерных отходов. Деревянную форму невозможно сделать с точными геометрическими расчётами.

Нужно постараться выбрать вариант формы, подходящий именно под ваши цели и задачи.

А как уложить тротуарную плитку своими руками, можно понять, прочитав соответствующую статью.

Как сделать вибростол для тротуарной плитки
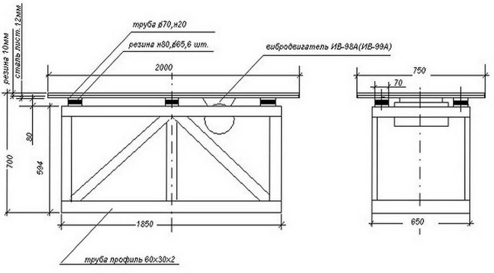
Уважаемые посетители сайта «Самоделкин друг» сегодня мы с вами разберем, как сделать вибростол для изготовления тротуарной плитки, брусчатки и бордюрного камня своими руками.. Конструкция вибростола для изготовления тротуарной плитки довольно проста, первым делом из металлического уголка или проф-трубы сваривается каркас стола, а рама столешницы делается отдельно, поверхность стола покрывается листовым металлом 1-2 мм. Края столешницы обязательно должны иметь борта высотой 2 см, а в углах прорези, чтоб вытекший из формы раствор мог стекать и не оставаться на поверхности. Далее раму стола и столешницу нужно собрать в единое целое, для чего по углам привариваются стальные пружины, они необходимы для создания той самой вибрации, создаваемой при работе электродвигателя с эксцентриком.
Вибродвигатель: он может быть как заводским, так и самодельным, в основном конечно ребята делают сами, здесь особо сложного нечего нет. Берется любой электродвигатель (к примеру от стиральной машинки) на вал надевается толстая пластина металла с приваренным болтом и затягивается гайкой. Далее при работе такой эксцентрик будет создавать вибрацию. Станок для изготовления шлакоблока
Вибрация: для чего она нужна? А необходима она для того, чтобы установив форму с раствором на вибростол, содержимое равномерно растеклось по форме, а самое главное чтоб вышли пузырьки воздуха. Основная задача вибрации-это выпустить воздух из цементного раствора. Чем меньше пор и воздуха, тем выше прочность и качество тротуарной плитки изготовленной на самодельном вибростоле.
Форма для тротуарной плитки: сегодня форму (ы) можно приобрести почти в каждом крупном строительном супер-маркете, или же заказать в интернете любой формы, размера и изображением рисунка. Материал тоже разный: силикон, пластмасса, стекловолокно.
И так, давайте рассмотрим, как самостоятельно сделать вибростол для изготовления тротуарной плитки?
Материалы
- уголок 20х20
- профтруба прямоугольного сечения
- стальная пружина 4 шт
- электродвигатель
- листовой металл 1-2 мм
- краска
Инструменты
- сварочный аппарат
- болгарка (УШМ)
- дрель
- линейка
- уголок
- молоток
Пошаговая инструкция по изготовлению вибростола своими руками.
Так давайте первым делом рассмотрим чертежи вибростолов.






Столешница 



Ну или же купить заводской вибродвигатель с большим запасом ресурса, такого движка надолго хватит.

Формы для изготовления тротуарной плитки.
И так, первым делом вам понадобятся формы для плитки, сегодня их можно купить в любом крупном строительном супер-маркете, или же заказать в интернете любой формы и конфигурации. Кстати материал тоже бывает разный -это в основном пластмасса, силикон, стекловолокно. По обычаю самым длительным ресурсом обладают силиконовые формы, но и цена соответственно будет выше. Так же рисунок на форме разнообразен.




Наполнять формы нужно не полные, чтоб при вибрации стола и растекании раствор не выливался за края

Полки

Большое спасибо за внимание, до новых встреч!
Варианты создания дорожек на даче из бетона
С учетом современных технологий быстрого замеса бетона с пластификаторами и различными наполнителями, можно выделить три основных способа создания твердых и прочных тропинок:
- сплошная заливка. Массовое бетонирование используется на ответственных участках, требует тщательной подготовки площадки, иногда армирования, установки опалубки;
- заливка в формы. Здесь не обязательно так старательно обустраивать площадку, а в роли опалубки выступают формы, промышленного производства или самодельные. Набор прочности идет в два-три раза быстрее, чем при массированном бетонировании;
- формование самодельной тротуарной плитки и последующее мощение. Этот метод можно считать наиболее быстрым, поскольку сформованные плитки за счет малого объема набирают проектную прочность гораздо скорее, чем залитая в опалубку смесь, а само мощение не занимает много времени.
Расход бетона зависит от выбранного метода. При этом для бетонирования больших площадей можно снизить расходы добавлением в смесь увеличенного количества крупнофракционного наполнителя (первичного или вторичного щебня, гальки, гранул пенопласта и так далее). Для заливки в формы – непосредственно на дорожке или с последующей сушкой и мощением – требуется мелкофракционнный наполнитель и бетон более высокой марки. Оптимальным по соотношению расходов и трудоемкости, а также времени на обустройство можно считать заливку бетонной смеси в формы непосредственно на площадке.
№7. Садовый паркет
Садовый паркет, часто именуемы декингом и антислипом, — это покрытие, которое обладает всеми преимуществами дерева, но за счет специальной обработки оно более устойчиво к негативным атмосферным воздействиям. Для производства материала используют древесину твердых пород, которая может дополнительно проходить термообработку. Готовый материал представляет собой квадратные (реже прямоугольные) планки, разделенные на секции. Секции могут образовывать определенный рисунок.
На планках садового паркета обязательно присутствуют вентиляционные щели, размер которых колеблется от 1,5 до 8 мм: чем выше будет уровень влажности во время эксплуатации, тем больше должны быть зазоры. Поверхность материала имеет противоскользящий профиль, поэтому декинг можно использовать для обустройства дорожек около бассейна. Монтаж предполагает использование специальных опор, высота которых регулируется, что позволяет сглаживать перепады уровня высот на участке. От подложки садового пакета зависит тип крепления. Жесткий паркет имеет полностью деревянную подложку, изготовленную из той же породы, что и лицевая часть. Мягкий паркет отличается наличием мягкой решетчатой пластиковой подложки со специальными креплениями, благодаря которым такой материал монтируется очень быстро и просто.
Преимущества:
- долговечность. За счет использования прочных пород древесины и обработки их специальными веществами (иногда применяется термообработка) достигается высокий срок службы материала (до 50 лет);
- высокая прочность;
- экологичность;
- красивый внешний вид, ведь цвет и текстура дерева сохраняются;
- наличие противоскользящего профиля;
- устойчивость к гниению и влаге;
- простота монтажа и ухода;
- теплая поверхность и быстрое высыхание.
Минусов у материала не так уж много. Для более длительного сохранения внешнего вида и эксплуатационных характеристик садовый паркет лучше два раза в год обрабатывать специальным маслом. Если выбор пал на декинг из термообработанной древесины, то материал обойдется в разы дороже, но и прослужит дольше.
Для организации садовых дорожек может также использоваться декинг из древесно-полимерного композита. Он производится из смеси опилок или древесной муки с полимерным связующим, в которую добавляют краситель и формируют материал нужной формы и размеры. Это менее экологичный, но более устойчивый к внешним факторам материал, не нуждающийся в дополнительном уходе.
Как приготовить раствор для тротуарной плитки?
Изготовление раствора для твёрдого дорожного покрытия – ключевой момент всего технологического процесса. Раствор состоит из:
- твёрдого щебня нерудной породы 2-10 мм либо гранитного отсева или гравия;
- очищенного промытого песка;
- портландцемента;
- бетонного пластификатора;
- сухих красителей;
- воды.
Состав раствора для тротуарной плитки варьируется в зависимости от того, какие свойства готового продукта интересуют потребителя.
В приготовлении смеси для тротуарной плитки или брусчатки нет ничего сложного, но требуется тщательная подготовка компонентов и методичное соблюдение всех этапов. Количество каждого ингредиента легко рассчитывается, когда известны требуемые пропорции объёма веществ.
В первую очередь осуществляют подготовку дополнительных составляющих – пластификатора и бетонного красителя. Последний используется для производства цветных тротуарных плит. При изготовлении изделий привычного серого цвета необходимость в нём отпадает.
Пластификатор, как правило, составляет не более процента от общего количества всех частей смеси. Чтобы замесить 80 л бетона нужно 400 г пластификатора. Нужно отметить, что его не добавляют в сухом виде. Мелкими порциями 400 г пластификатора засыпают в 2 литра воды, подогретой до 70 градусов.
На краситель приходится примерно 2% от всех составных частей полимерной смеси. Ориентировочно 700 г красящего вещества добавляют в воду (2,5 л), нагретую до 50 градусов, и тщательно размешивают.
Внутренние стенки бетоносмесителя необходимо увлажнить. С этой целью устройство ополаскивают изнутри, затем сливают воду. Коэффициент соотношения цементной смеси и жидкости определяет насколько прочным окажется бетонное изделие.
Чтобы получилась качественная тротуарная плитка, замешиваемый бетон должен быть наполовину мокрым. Такой эффект достигается путём добавления воды на 25% меньше, чем цемента. Наглядный пример: на шесть вёдер цемента (сюда входит пластификатор и краситель) нужно четыре ведра воды.
В бетономешалку сперва заливают воду, после чего добавляют порцию цемента. В результате перемешивания должна получиться однородная эмульсия. После добавления в образовавшуюся эмульсию отсева, получается раствор, который нужно тщательно перемешать. Далее следует влить заранее разбавленный пластификатор и краситель. Полимерный состав вымешивают, пока не получится однородная масса.
Сделать смесь для тротуарной плитки можно, применяя ручное перемешивание, но для такого способа требуется хорошая физическая подготовка и дополнительное время.
Уход за покрытием
Для долговечности покрытия и сохранения его красивого внешнего вида необходимо соблюдать правила ухода за ним:
- Плиты регулярно очищают от грязи и пыли, используя при этом нежёсткую щётку плюс специальное моющее средство.
- В процессе эксплуатации дорожек из швов может выбиваться песок, его нужно подсыпать.
- Если часть покрытия просядет, перекосившиеся блоки снимают, подсыпают под них цементно-песчаную смесь.
В зимний период дорожки очищаются от снега без применения острых инструментов. Скалывать лёд нельзя, иначе повредится поверхность.
Нельзя посыпать поверхность солью, она разъест лёд, а заодно внешнюю поверхность. Используя специальные реагенты, сначала тестируют их действие на небольшом отдалённом участке.
Повреждённые экземпляры своевременно заменяют, чтобы они не портили внешний вид всей площадки.
На самом деле, это несложный процесс, с которым можно вполне справиться самостоятельно, но при этом не стоит торопиться. Работа требует тщательности, кропотливости, лучше выполнять работу медленно, тщательно соблюдая рекомендации специалистов.
Приобретаем материалы
Чтобы тротуар не нуждался в постоянном ремонте нужно правильно подбирать плитку в зависимости от нагрузок. Например, для строительства пешеходной дорожки используем фибролиту толщиной 25-40 мм. В местах парковки авто используем вибролитую плитку большей толщины (40-60 мм). Дорожки промышленного значения покрывают вибропресованной плиткой толщина, которой 60-80 мм (такую плитку изготавливают только на специализированных предприятиях).
Некоторые рекомендации и особенности
Для того чтобы ориентироваться в видах и размерах плитки, обратите внимание на следующую статистику. Тротуарная плитка для дорожек на даче чаще всего используются прямоугольной формы 20х10 см
Также широкое применение получила плитка квадратной формы самых разных размеров от 10х10 см до 50х50 см. Так как большая плитка тяжелая сама по себе, её используют довольно редко. Тем более, если речь идет о дачном участке в несколько соток, где тропинки по большей части около 70-80 см. Поэтому большинство предпочитает плитку размером 30х30. Но если вам достаточно в каких-то местах проложить тропинку в 0.5 м — это идеальный вариант: плитку в один ряд укладывают между бордюров.
Вариантов брусчатки не счесть, поэтому можно угодить даже самому изысканному вкусу
Кроме традиционных видов, плитки бывают в виде шестигранника, ромба, бабочек, волны, мозаики, веера, и т. д. Толщина такой плитки может быть от 2.5-6 см. Можно делать тротуарные тропинки без бордюра. Но если вы живете в зоне, где выпадение осадков часто и обильно, то это плохой вариант. Бордюр делает дорожку не только эстетично завершенным, но и более крепким.
- При выборе бордюрного камня следует учитывать цвет тротуарной плитки. Иногда для бордюра используют прямоугольную плитку, ставя её на ребро.
- Щебень или гравий выбираем средний или мелкий. Предпочтительнее щебень. С помощью него создаем основу менее текучую и более крепкую.
- Песок нужен чистый, без примесей глины, камней или корней растений.
- Геотекстильный материал послужит хорошей защитой от прорастания травы, укрепит основу и поспособствует отводу скопившейся воды. Одной из основных характеристик её является исключение проседания тротуара.
- Цемент используем М-400 или М-500 для приготовления смеси верхнего слоя основания и затирки швов.
Способы декорирования бетонной дорожки: штампы и трафареты

Влажное бетонное основание – прекрасная основа для нанесения декоративного рельефа. Например, с помощью обычного металлического прута можно создать любой геометрический рисунок.
Но настоящая находка для выполнения декора – это различные приспособления. Штампы и трафареты можно приобрести в строительном магазине или сделать самому.

Штампы из полиуретана – это настоящий прорыв в деле создания ландшафта. С их помощью стало возможным нанесение на бетон варианты узоров с текстурой любой сложности.
У металлических штампов два недостатка: высокая цена и ограниченные возможности. Они не состоянии воспроизвести сложные рисунки. Но зато такая матрица даёт идеальную копию геометрических фигур.

Деревянные формы так же, как и металлические, особым разнообразием не отличаются. Но и с их помощью можно осуществить интересные идеи дизайна. Например, имитацию бетонных плит или кирпичной кладки. К тому же процесс изготовления не отнимает много времени и не отличается сложностью.
Пошаговая инструкция по укладке
Перед тем как начать укладывать тротуарную плитку своими руками необходимо произвести замеры будущей дорожки, разграничить края, натянув прочную веревку по бокам. Следующим этапом идет подготовка почвы. Необходимо выкопать траншею, углубившись на 10 – 40 см, глубина будет зависеть от того какая планируется подушка-основание. Если выбрана тонкая плитка, до 30 мм, достаточна траншея, глубиной 10 см.
В качестве подушки будет использоваться обыкновенный песок. Более глубокое основание необходимо для сложной подушки, состоящей из слоя гравия и песка, иногда для большей прочности можно использовать цементно-песочную смесь.
Инструкция по укладке тротуарной плитке
Для подготовки сложной подушки на дно траншеи необходимо уложить слой мелкофракционного гравия или щебня. На него засыпается песок или цементно-песочная смесь. Этот слой должен быть не менее 10 см, его следует плотно утрамбовать. Для этого используется пресс для трамбовки, его можно заменить самодельным, например, тяжелым деревянным брусом.
Чтобы предотвратить накапливание излишней влаги, которая портит не только основание, но и плитку, лучше использовать геотекстиль. Это волокно, изготавливаемое из полиуретана или полиэтилена. Оно не пропускает влагу и не накапливает ее.
Еще одним плюсом данного волокна является предотвращение прорастанию сорняков. Стоит этот материал недорого (порядка 15 рублей за один квадратный метр), а пользы приносит очень много, помимо перечисленного, геотекстиль фиксирует слой песка, не позволяя ему терять форму.
Следующим слоем подушки будет рыхлый песок, его также достаточно 10 сантиметров. На него уже будет непосредственно укладываться плитка. При подготовке грунта и укладке подушки нужно соблюдать продольный или поперечный уклон, который будет обеспечивать сток воды.
Для удобства ряды брусчатки укладывают в направлении «от себя», так, чтобы продвигаться по уже положенной плитке
Далее, наступает самая ответственная часть работы – укладка плитки своими руками. Начинать первый ряд необходимо вдоль натянутого уровня, веревки. Между соседними сторонами плитки соблюдается интервал – до 3 мм. Чтобы все швы были одного размера, ровными, следует использовать пластмассовые крестики, они затем легко вынимаются и переставляются на новые места.
Плитку вдавливают руками в верхний слой песка, помогая резиновым молотком, нужно соблюдать одинаковую высоту, здесь понадобится строительный уровень. Для удобства ряды брусчатки укладывают в направлении «от себя», так, чтобы продвигаться по уже положенной плитке. Второй ряд делают, начиная с половины кирпича, это обеспечит более плотную кладку, к тому же, это самый простой, классический узор, он всегда выглядит стильно, но используется только для прямоугольной плитки.
Полученные швы по окончании укладки необходимо засыпать цементно-песочной сухой смесью и обильно смочить водой. Излишки смеси убираются жестким веником. Если предполагается установка бордюра, то для него нужно использовать бетонный раствор, это предотвратит его расшатывание. Бетон готовят, смешивая три части песка и одной части цемента, добавляя воду. Пустые места, образованные между бордюром и плиткой заполняются порезанными элементами. Резка осуществляется болгаркой с алмазными дисками.
Пошаговая инструкция по укладке

























































