Особенности конструкции двускатных кровель
Такая кровля состоит из двух наклонных плоскостей, расположенных под определённым углом. По торцевым стенкам устраиваются фронтоны, являющиеся вертикальным продолжением стен. По форме они представляют собой равнобедренные или произвольные треугольники, если скаты устроены под разными углами к горизонтали. В случае устройства двускатной ломаной крыши, фронтоны имеют форму трапеций.
При построении кровли создаётся стропильная система, являющаяся опорным элементом кровельного пирога. Стропильная система может быть выполнена в виде висячих стропил, если внутри коробки здания нет капитальных перегородок. При их наличии устраивается настильный каркас, когда пролёт опирается на три и более точек.
В зависимости от конфигурации здания двухскатная крыша может возводиться по разным схемам
Что такое кукушатник либо скворечник?
«Кукушка» — это архитектурный элемент кровли, который представляет собой маленький выступ, расположенный на мансардном этаже. Данный выступ имеет собственную стропильную систему, сопряженную с основной, и покрывается крышей. Кукушкой такую конструкцию именуют мастера из-за внешнего сходства с ходиками, из которых любой час вылетает эта маленькая птичка. По форме крыши «кукушки» различают на следующие типы:
- Двухскатная. При монтаже двухскатной крыши кукушка будет смотреться как мелкий дом, вправду напоминая старинные ходики.
- Односкатная. Кукушатник с односкатной крышей выглядит несложнее, чет двускатный, но и монтируется существенно проще.
- Вальмовая. Кукушка с вальмовой крышей венчается тремя скатами, один из который напоминает козырек.
- Арочная. Конструкция с арочной крышей довольно часто употребляется при постройке домов в стиле альпийских шале, она выглядит весьма уникально, но для ее создания употребляются лишь гибкие кровельные материалы

Типы крыш с кукушкой по форме

Кукушка с односкатной кровлей
Вариантов форм и размеров множество, но выбрать нужно наиболее оптимальный. Лучшим решением является конструкция, которая органично дополняет дизайн здания, соответствуя его габаритам.
Существуют такие схемы выносных сооружений на кровле:
- вертикально расположенный оконный проем;
- высокий прямоугольный или полукруглый проем в полный рост;
- балкон и выносная площадка на дополнительных опорах.
По своей сути выступы являются аналогом и продолжением крыши. У них такое же устройство — деревянный каркас, кровельное покрытие, утепление и гидроизоляция. Разница состоит только в конфигурации сооружений.
Формы кровли кукушки могут быть такими:
- Односкатная. Представляет собой сооружение в виде параллелепипеда или куба с плоским или наклонным верхом. Наиболее простое в планировке и строительстве. Минус в том, что уклона может оказаться недостаточно для эффективного отвода воды и самопроизвольного схода снега.
- Двускатная. Это классический проект, который применяется при обустройстве крыши с аналогичной формой. Такой выступ и сам смотрится, как маленький домик, создавая ощущение комфорта и уюта. Скаты могут переходить на крышу или в вертикальные стены, образующие большой проем.
- Вальмовая. Строения подразделяются на трехскатные и четырехскатные. Второй вариант представляет собой остроконечную башенку или шатер. Используется реже, так как сложен в проектировании, строительстве и обслуживании.
- Арочная. Такие формы популярны по причине своей оригинальности. Полукруглый выступ отлично смотрится на строениях любого типа и размера. Не возникает проблем со скоплением мусора и схода осадков. В качестве кровельного материала используется рубероид, мягкая плитка или фасонные детали из профлиста.
Виды фасадных оконных систем
Планируя установить фасадное окно на мансарде, застройщики и будущие владельцы дома должны ознакомиться со всеми их разновидностями:
1.Вертикальные. Они имеют самую простую конструкцию и практически ничем не отличаются от обычных окон. Их монтируют в выносных конструкциях («скворечниках»), во фронтонах или в скатах крыш.
2.Наклонные. Эти конструкции способны противостоять природным стихиям, поэтому устанавливаются в один уровень со скатом кровли. Поставив такую фасадную оконную систему, застройщик сможет обеспечить доступ в подкровельную зону солнечного света на 40% больше, нежели при монтаже других типов конструкций.
При изготовлении окон производители используют различные материалы: деревянные рамы, алюминий и профиль ПВХ.
Это интересно: Как сделать вольер для кур своими руками
Преимущества и недостатки наличия «кукушки» в крыше
| Преимущества | Недостатки |
|---|---|
| Увеличение полезного объёма мансардного этажа. Из-за того, что этаж образуют скаты крыши, пространство внутри можно использовать для устройства помещений только при условии, что высота от пола до потолка не менее 1,6 метра. А наличие такой «кукушки» позволяет в этих местах «поднять» потолок. | Увеличение степени трудоёмкости кровельных работ. |
| При условии наличия окон в конструкции, «кукушки» могут стать дополнительным источником освещения, которого в мансардных этажах, как правило, не хватает. К тому же, их устройство может быть полезным для получения солнечного света с более благоприятной стороны. | Повышение требований к уровню профессионализма рабочих. |
| Внешний вид дома, имеющего «кукушку», приятно отличается от остальных. К тому же, и внутреннее пространство становится более оригинальным и интересным. | Увеличение стоимости строительства. |
| Дополнительный расход материала. |
roof-tops.ru
Функции
Перед тем, как сделать кукушку на крыше, необходимо тщательно разобраться в ее устройстве и функциях
Важно понимать, что этот элемент отнюдь не выполняет чисто декоративные задачи. Грамотно спроектированная кровля с кукушкой решает сразу несколько проблем в конструкции:
- Увеличивает полезную площадь мансардного или чердачного помещения. За счет ее монтажа можно значительно увеличить свободное пространство под кровлей, более рационально разместив туалет, кладовку или ванную комнату.
- Помогает организовать естественное освещение. Наличие естественного освещение – основное требование, которое предъявляется к жилым помещениям. Кукушка, которая заменяет собой дополнительный фронтон, помогает использовать более дешевое вертикальное остекление.
- Улучшает внешний вид дома.
Схема устройства слухового окна кукушки
Висячие стропильные системы
Висячая разновидность стропильных систем представляет собой треугольник. Две верхние стороны треугольника сложены парой стропилин, а основанием служит соединяющая нижние пятки затяжка.
Применение затяжки позволяет нейтрализовать действие распора, потому на стены с висячими стропильными конструкциями действует только вес обрешетки, кровли плюс в зависимости от сезона вес осадков.
Характерные черты стропильных конструкций висячего типа:
- Обязательное наличие затяжки, выполненной чаще всего из древесины, реже из металла.
- Возможность отказаться от использования мауэрлата. Раму из бруса с успехом заменит уложенная на двуслойную гидроизоляцию доска.
- Установка на стены готовых замкнутых треугольников – стропильных ферм.
К достоинствам висячей схемы относят свободное от стоек пространство под кровлей, позволяющее организовать мансарду без столбов и перегородок. Есть недостатки.
Первый из них — ограничения по крутизне скатов: угол их уклона может быть минимум 1/6 пролета треугольной фермы, настоятельно рекомендованы более крутые крыши. Второй минус заключается в необходимости доскональных расчетов для грамотного устройства карнизных узлов.

Кроме всего прочего, угол стропильной фермы устанавливать придется с ювелирной точностью, т.к. оси соединяемых компонентов висячей стропильной системы должны пересекаться в точке, проекция которой обязана попадать на центральную ось мауэрлата или заменяющей его подкладочной доски.

Затяжка – самый длинный элемент висячей стропильной конструкции. Со временем она, как свойственно всем пиломатериалам, деформируется и провисает под действием собственной массы.
Владельцев домов с пролетами 3-5 м указанное обстоятельство не слишком беспокоит, а вот хозяевам зданий с пролетами 6 и более метров стоит задуматься об установке дополнительных деталей, исключающих геометрические изменения затяжки.
Чтобы предотвратить провисание в схеме монтажа стропильной системы для большепролетной двускатной крыши имеется весьма значимый компонент. Это подвеска, называемая бабкой.
Чаще всего она представляет собой брусок, прикрепленный деревянными прибоинами к вершине стропильной фермы. Не следует путать бабку со стойками, т.к. ее нижняя часть вообще не должна соприкасаться с затяжкой. И установка стоек в качестве опор в висячих системах не применяется.

Суть заключается в том, что бабка как бы висит на коньковом узле, а уже к ней присоединяется затяжка с помощью болтов или прибитых деревянных накладок. Чтобы корректировать провисающую затяжку используются хомуты резьбового или цангового типа.

Регулировку положения затяжки можно устроить в зоне конькового узла, а бабку с ней соединить жесткой врубкой. Вместо бруска на нежилых чердаках для изготовления описанного стягивающего элемента может быть использована арматура. Бабку или подвес рекомендуется устроить еще и там, где затяжка собирается из двух брусьев, для поддержки участка соединения.
В усовершенствованной висячей системе подобного типа бабку дополняют подкосные балки. Силы напряжения в образовавшемся ромбе гасятся самопроизвольно благодаря грамотной расстановке действующих на систему векторных нагрузок.
В результате стропильная система радует стабильностью при незначительной и не слишком дорогой модернизации.

С целью увеличения полезного пространства затяжка стропильных треугольников для мансарды переносится ближе к коньку. У вполне резонного перемещения есть дополнительные плюсы: оно позволяет использовать затяжки в качестве основы для подшивки потолка.
Присоединяется к стропилам она путем врубки полусковороднем с дублированием болтом. От провисания ее оберегают посредством установки короткой бабки.

Ощутимый недостаток мансардной висячей конструкции заключается в необходимости точных расчетов. Самостоятельно рассчитать ее слишком сложно, лучше воспользоваться готовым проектом.
Технология сооружения скворечника
Итак, разобравшись с кукушкиным домиком, переходим к технологии его сооружения. Начнем с того, что саму конструкцию возводят между стропильными ногами. И чем больше размеры домика, тем большее количество стропил придется с одного ската убирать. А это, как вы понимаете, снижает прочность стропильной системы в целом. Поэтому чаще всего кукушку возводят с небольшими габаритами.
Начнем разбираться со схемой стропильной системы двускатной крыши с кукушкой. Рассмотрим именно этот вариант, как самый простой, потому что врезать скворечник между стропилами двускатной крыши проще. Хотя это относительная простота или сложность. Все познается в сравнении.
Начинать сооружение надо с установки двух поперечных брусков: один на нижнем уровне, он будет формировать нижнюю линию оконного проема, второй на верхнем уровне. Оба уровня определяются удобством пользования кукушкой. А это, как показывает практика сооружения этого элемента, зависит от роста хозяина дома.
Бруски выбирают точно таким же сечением, что и стропильные ноги крыши. Их подрезают по определенной длине, величина которой равна величине межстропильного проема. Их устанавливают по месту назначения, выставляют по горизонтали и крепят к стропильным ногам стальными уголками и саморезами.

Кукушатник, сооруженный от стен дома Источник ipa-eshop.cz
Добавим один момент. Есть архитектурные формы кровельных конструкций с кукушками, где последняя – это сооружение, начинающееся от мауэрлата. В данном случае нижний брус не используют. Его функции будет выполнять мауэрлат стропильной системы здания.
Итак, два горизонтальных бруса установлены. Теперь необходимо сформировать стенки скворечника. Так как это сооружение представляет собой домик, то и строить его надо по всем законам возведения каркасного дома. То есть надо установить вертикальные стойки и обвязать их по верхним краям. А так как опора для домика – это стропильные ноги, которые уложены под углом, то длина стоек будет разной в зависимости от их расположения. То есть чем ближе к верху, тем короче стойка.
Вертикальные стойки и верхняя обвязка – это брус, сечение которого выбирается в зависимости от того, какие нагрузки на скворечник будут действовать. Но это не должно быть меньше 50х50 мм.

Схема сборки кукушатника с разными формами кровли и с обозначением элементов конструкции Источник budsad.in.ua
Что называется кукушкой
Вы наверняка не раз видели дома, выделяющиеся тем, что у них на крыше имеется выступ – небольшая отдельная конструкция с двухскатной крышей. Внешне она несколько напоминает старые часы с кукушкой – отсюда и появление ее названия. Особенно гармонично кукушки смотрятся в двухэтажных домах из бруса, делая их уютными и неповторимыми.
Преимущества и недостатки домов из бруса с кукушками
Основные достоинства проектов жилых домов с кукушками выглядят следующим образом:
- возможность задействовать дополнительный объем мансардного помещения;
- кукушки – еще один эффективный источник естественного освещения;
- их наличие позволяет придать дому оригинальный внешний вид и открыть целый ряд возможностей в дизайне интерьера
Не забудем и про некоторые нюансы:
- наличие в проекте дома из бруса кукушки сказывается на увеличении трудоемкости кровельных работ;
- отсюда повышение требований к квалификации работников, увеличение стоимости дома;
- кукушка при неправильном подходе может стать слабым местом крыши и причиной появления протечек и связанных с ними неприятностями
Кукушка или мансардное окно?
Дополнительное освещение мансарды можно осуществить за счет устройства мансардного окна. По сравнению с кукушкой, такой подход дешевле, но не приведет к увеличению объема помещения, зато он проще в реализации. Еще один нюанс: придется как-то решать вопрос с очисткой такого окна от снега. Часто кукушку в доме из бруса делают над выходом лестницы на второй этаж (мансарду) – чтобы не упираться головой в потолок.
В заключение статьи
Многие делают именно с кукушками – спрос на проекты с таким архитектурным элементом неизменно высок. Вы наверняка встретите их в каталогах других больших и не очень строительных фирм, занимающихся возведением деревянных загородных домов «под ключ». Останется лишь решить для себя: перевешивают ли в вашем случае плюсы устройства кукушки, или минусов все-таки больше, и от нее лучше отказаться в угоду простоте и меньшей стоимости.
Готовитесь к возведению пристройки к дому? Решили надстроить второй этаж? Возможно, старый фундамент дома пугает вас обилием трещин и нехарактерным перекосом? Все это свидетельствует о необходимости усиления фундамента. Мы постарались обобщить данные, которые будут полезными при решении этого вопроса. | |
Проектируя частный дом, можно столкнуться со множеством проблем, важнейшая из которых – устройство крыши. От уклона, количества скатов и строения каркаса конструкции зависит несущая способность, прочность и долговечность кровли.
Ситуация осложняется, если планируется строительство жилой мансарды, ведь в таком случае нужно думать о высоте потолка в подкровельном пространстве, о естественном освещении. Часто выходом из этого трудного положения становится крыша с кукушкой, которая не только помогает оборудовать жилое пространство, но также делает дом более оригинальным и запоминающимся.
«Кукушка» — это архитектурный элемент кровли, который представляет собой небольшой выступ, расположенный на мансардном этаже. Этот выступ имеет свою собственную стропильную систему, сопряженную с главной, а также покрывается крышей. Кукушкой такую конструкцию называют мастера из-за внешнего сходства с ходиками, из которых каждый час вылетает эта маленькая птичка. По форме крыши «кукушки» различают на следующие типы:
- Двухскатная. При кукушка будет выглядеть как маленький дом, действительно напоминая старинные ходики.
- Односкатная. Кукушатник с односкатной крышей выглядит попроще, чет двускатный, зато и монтируется намного проще.
- Вальмовая. Кукушка с вальмовой крышей венчается тремя скатами, один из который напоминает козырек.
- Арочная. Конструкция с часто используется при строительстве домов в стиле альпийских шале, она выглядит очень оригинально, но для ее создания используются только гибкие кровельные материалы
Это интересно: Декоративная штукатурка ceresit
Особенности возведения кровли
Работа начинается с проекта
Важно подобрать оптимальную конфигурацию, которая обеспечит не только желаемый внешний вид здания, но и выдержит массу кровельного материала и осадков, что особенно актуально в зимнее время. Сначала создают чертеж, на нем отображают общий вид, указывают основные размеры, прорисовывают элементы стропильной системы
Проектируя крышу для деревянного дома, нельзя забывать о его особенности: дерево дышит. В зависимости от времени года размеры здания могут существенно меняться, стены садятся. Стоит предусмотреть механизмы компенсации сезонных смещений, дать возможность кровле плавать.
Помимо проекта, стоит набросать план работ, в котором пошагово расписать каждое действие: от создания стропильной системы до укладки кровельного материала и утепления.
Утепление крыши
Мероприятия по утеплению кровли позволят заметно снизить потерю тепла в доме. Благодаря процедуре температура воздуха на чердаке всегда выше, чем снаружи дома, следовательно, потолок будет медленнее остывать. Не стоит забывать о практической стороне, ведь чердак, особенно если это здание с высокой двухскатной или ломаной крышей, можно использовать в качестве мастерской.
Утепление начинают с выбора материала. К нему предъявляются следующие требования:
- полная безопасность для человека;
- низкая теплопроводность;
- невысокая горючесть;
- малый вес;
- хорошие показатели звукоизоляции;
- устойчивость к низким температурам.
Критериям полностью соответствует минеральная вата, плюс ко всему ее просто укладывать. Она гарантированно прослужит не один год, но для этого надо обеспечить гидрозащиту снаружи и пароизоляцию изнутри. В качестве таковой используется рулонный материал с подходящими параметрами.
Будучи одним из сложнейших элементов деревянного дома крыша требует ответственного к себе подхода. Прежде чем браться за дело, надо изучить структуру и составные части стропильной системы. Крышу можно сделать своими руками, но только при наличии знаний и опыта, в противном случае стоит обратиться за помощью к специалистам.
Монтаж кровельного материала
Итак, кукушка сооружена, остается лишь покрыть ее крышу кровельным материалом. Для этого используются изделия, которые применялись для покрытия крыши дома. Монтаж проводят по той же технологии, что и на кровлю двускатной крыши. Например, на фото ниже показано, как ведут подготовку покрытия крыши кукушатника битумной черепицей. А технология такова:
- монтируют сплошную обрешетку;
- поверх нее укладывают подкладочный материал, который крепится к обрешетке битумной мастикой и кровельными гвоздями;
- в местах стыка кровли кукушки со скатом дома делают усиленную гидроизоляцию с использованием рулонного материала на основе полимерно-битумного вяжущего состава;
- после чего проводят монтаж битумной черепицы, то есть рядами с перехлестом и с креплением гвоздями.

Подготовка крыши кукушки под покрытие битумной черепицей Источник t-dom124.ru
Почему следует обратиться в нашу компанию?
У нас собственное производство материалов. Изготавливают их русские мастера по уникальной технологии. Это позволяет удешевить и ускорить строительство под ключ. Вы можете купить недорого каркас стен из нестроганного бруса. Надо лишь выбрать подходящий размер. У нас представлены варианты 100х150 и 150х150 мм. Решите, какой нужен вам, и мы осуществим оперативную доставку в любой уголок России.
Но на этом преимущества обращения к нам не заканчиваются. Наша производственная база находится в Пестово Новгородской области. И первые 500 км пути до нужного места мы не включаем в стоимость доставки. Делайте выбор в пользу качества — купите дом из бруса от производителя по выгодной цене и наслаждайтесь проживанием в нем: круглый год находиться там будет комфортно и уютно.
Какая конструкция более экономически выгодна?
Стоимость – немаловажный аргумент для самостоятельного строителя. Естественно, цена сооружения у обоих типов стропильных систем не может быть одинаковой, потому что:
- В строительстве наслонной конструкции для изготовления стропильных ног используется доска или брус небольшого сечения. Т.к. наслонные стропилины имеют под собой две надежные опоры, требования к их мощности ниже, чем в висячем варианте.
- В строительстве висячей конструкции стропила выполняют из толстого бруса. Для изготовления затяжки требуется аналогичный в сечении материал. Даже с учетом отказа от мауэрлата расход будет ощутимо больше.
Сэкономить на сортности материала не получится. Для несущих элементов обоих систем: стропилин, прогонов, лежней, мауэрлата, бабок, стоек нужен пиломатериал второго сорта.
Для ригелей и затяжек, работающих на растяжение, потребуется первый сорт. В изготовлении менее ответственных деревянных накладок может применяться третий сорт. Без подсчета можно сказать, что в сооружении висячих систем дорогой материал используется в большем объеме.

Висячие фермы собирают на открытой площадке рядом с объектом, затем транспортируют в собранном виде наверх. Для подъема увесистых треугольных арок из бруса потребуется техника, за аренду которой придется платить. Да и проект для сложных узлов висячего варианта тоже чего-то стоит.
Видео-инструктаж по устройству стропильной конструкции висячей категории:
https://youtube.com/watch?v=fOlIW8FXVP8
Методов сооружения стропильных систем для крыш с двумя скатами на самом деле гораздо больше.
Мы описали лишь базовые разновидности, которые в реальности применимы для небольших дачных домиков и построек без архитектурных затей. Однако представленной информации достаточно, чтобы справиться со строительством простой стропильной конструкции.
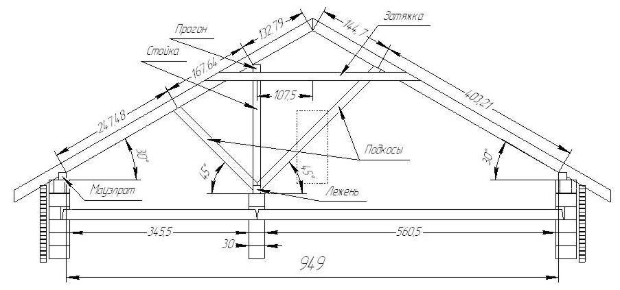
Конструктивные элементы кровли с двумя скатами
Стропильные ноги и мауэрлат
Брус, установленный на основных стенах, крепится при помощи анкеров или резьбовым соединением. Они предварительно туда монтируются. Подобное приспособление — мауэрлат — передает создаваемую нагрузку на нижние стены от «ног»:
- Материал выполняется из хвойных древесных пород. Размер сечения в квадрате может быть либо 100 на 100 либо 150 на 150 миллиметров. Расположение балок должно быть параллельным, тогда длина ножных частей будет равной.
- Нога стропила изготавливается из досочных фрагментов с сечением 50 на 150 и 100 на 150. Их назначение – формировать контур в виде треугольника для кровли. Всю общую нагрузку они ведут к мауэрлату, а он уже на стенную часть.

Коньковый прогон и подкосы
Элемент конька располагается по горизонтали. В точках сверху с его помощью скаты соединяются. Его образующие, соединенные сверху стропильные составляющие, ставятся во время устройства всей кровли.


Несколько применяемых подкосов – детали фермы. Она не только выдерживает определенную нагрузку, но и отдает ее на каждую стену в равной степени.

Затяжки — схватки, ригели
Элементы конструкции висячего типа, образующие геометрическую треугольную фигуру со стропильными составляющими Они определяет их устойчивость по отношению к одному и тому же месту.


Лежень, стойки и балки перекрытия
Внутри на несущей стенке есть брус, который прикрепляется в горизонтальном положении. Это лежень, который обеспечивает передачу нагрузочного момента, от кровельных стоек уже впоследствии во время эксплуатации.


Функции
Перед тем, как сделать кукушку на крыше, необходимо тщательно разобраться в ее устройстве и функциях
Важно понимать, что этот элемент отнюдь не выполняет чисто декоративные задачи. Грамотно спроектированная кровля с кукушкой решает сразу несколько проблем в конструкции:
- Увеличивает полезную площадь мансардного или чердачного помещения. За счет ее монтажа можно значительно увеличить свободное пространство под кровлей, более рационально разместив туалет, кладовку или ванную комнату.
- Помогает организовать естественное освещение. Наличие естественного освещение – основное требование, которое предъявляется к жилым помещениям. Кукушка, которая заменяет собой дополнительный фронтон, помогает использовать более дешевое вертикальное остекление.
- Улучшает внешний вид дома.




































