В чём преимущество печки длительного горения

Любой человек, который принимается за сборку печки долгого горения, ставит перед собой главную задачу: сделать своими руками вещь, которая будет работать эффективно при минимальном расходе материалов и топлива. Стоит отметить, что большинство готовых печей этого типа имеют КПД гораздо ниже, чем самодельные модели.
Обычная заводская печка отличается тем, что топливо в ней сгорает очень быстро, поэтому помещение быстро нагревается, а затем быстро остывает, если в него не добавить ещё топливо. Это крайне неудобно и не рационально.
Также в продаже есть и альтернатива: это печки, работающие на твёрдом виде топлива, которые способны затягивать процесс его сгорания и, соответственно, утеплять помещение на более длительный период. Такие конструкции работают на углях, дровах и всевозможных отходах. Однако такой агрегат в готовом виде стоит недёшево и имеет такие недостатки, как:
- невысокий КПД;
- отсутствие автоматической закладки топлива;
- необходимость регулярной его закладки.
Все перечисленное не относится к печам длительного горения. Так, одна закладка топлива может обеспечить работу конструкции примерно на 18 часов благодаря тому, что в топке со временем горение сменяется на тление, а автоматическая закладка в таком случае уже не нужна. Кроме того, конструкция может быть продумана таким образом, что в качестве топлива можно будет применять опилки или щепки, а не целые дрова.
Что нужно учитывать перед сборкой печи долгого горения
Обратите внимание, что сооружение печки длительного горения своими руками – работа пыльная и шумная, поэтому хорошо продумайте место, где будут выполняться работы. Кроме того, предусмотрите, чтобы на этом месте был источник электроэнергии, поскольку потребуется электросварка
Инструментарий для работы следует приготовить такой:
- Металлическая бочка на 200 л.
- Два стальных отрезка трубы, один больше, второй меньше.
- Металлический швеллер.
- Ножовка, стальной молот, топор, киянка.
- Рулетка или ответ для замеров.
- Красный кирпич высокого качества (порядка 50 штук).
- Отражатель (если есть).
- Набор электродов и сварочный аппарат.
- Листовая сталь.
- Строительная смесь или материалы для приготовления раствора для кладки кирпичей.
Алгоритм действий при сборке самодельной печи длительного горения
Сборка этого агрегата состоит из следующих действий:
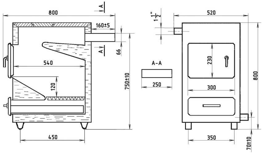
- Приготовьте металлическую бочку: срежьте её верх болгаркой и оставьте на потом. Если бочки нет, можно взять трубный отрезок большого диаметра.
- Приварите к отрезку днище из части стального листа круглой формы.
- Вырезаем ещё круг из стали диаметром чуть менее бочки или трубы, а в нём ещё один для маленькой трубы примерно на 12 см. Отрезок трубы приваривается к стальному кругу.
- К нижней части круга приварите швеллеры, измерив их так, чтобы они могли свободно находиться в трубе. Затем они будут применяться для давления топлива в зависимости от его прогорания.
- Длина привариваемой трубы должна превышать высоту главной части на 10 см.
- Принимаемся за верхнюю часть конструкции: возьмите часть бочки, которая была вначале отрезана, и вырежьте в ней отверстие для трубы небольшого диаметра.
- Вырежьте люк для закладки топлива, к нему затем будет приварена дверца, которую можно приобрести в готовом виде либо сделать самому. К дверце нужно приварить ручку, чтобы её удобно можно было открыть.
- Ниже установите ещё одну дверцу поменьше, чтобы была возможность утилизировать топливные отходы.
Подготовка фундамента и сооружение дымохода для печи

Для установки печи требуется капитальный фундамент, поскольку печной металл будет сильно накаляться во время работы. Категорически нельзя устанавливать её на непрочный или недостаточно огнеупорный материал.
Заглубление делать не стоит, поскольку удельная масса конструкции не сильно большая. Нужно залить плиту, выложенную рядом в один кирпич, специальным раствором или смесью.
Теперь перейдём к вопросу об установке дымохода. Он нужен для того, чтобы продукты сгорания быстро улетучивались из помещения в атмосферу. Для его сооружения можно взять трубу из металла с 15-сантиметровым диаметром. Её следует приварить к верху или бокам печной конструкции.
Затем его сгибают, но не более чем на 40 градусов. Вообще, нужно сделать так, чтобы в нём было как можно меньше колен до выхода из помещения.
Иногда требуется установка отражателя, особенно это касается маленьких помещений. Благодаря им потоки тепла будут перераспределяться, и регулировать равномерный обогрев всего помещения.
Печь нет необходимости обкладывать кирпичами, если она находится в котельной или другом подсобном помещении, куда нет доступа детям. Если же она будет установлена на виду у всех, то облицовку в целях безопасности лучше сделать.
Буржуйки — проверенные и простые конструкции
Буржуйки — хит 20-х годов прошлого столетия. Тогда эти печки конкурировали с кирпичными и стояли везде, даже в квартирах. Позже, с появлением централизованного отопления, они утратили актуальность, но применяются в гаражах, на дачах, для обогрева подсобных или хозяйственных построек.

Из листового металла
Буржуйки из баллона, бочки или трубы
Наиболее подходящий материал для изготовления буржуйки для гаража — пропановые баллоны или труба с толстой стенкой. Подойдут и бочки, но надо искать не очень большого объема и с толстой стенкой. В любом варианте минимальная толщина стенки — 2-3 мм, оптимальная — 5 мм. Такая печка будет служить не один год.
По конструкции они бывают вертикальными и горизонтальными. Дровами удобнее топить горизонтальную — более длинные поленья влезают. Делать проще вытянутую вверх, но топка при этом имеет небольшие размеры, придется дрова пилить мелко.

Буржуйку для гаража можно сделать из баллона или трубы с толстой стенкой
Вертикальные
Сначала о том, как сделать вертикальную печь для гаража из баллона или трубы. Выбранный отрезок делите на две неравные части. Внизу меньшая — для сбора золы, выше — основная для закладки дров. Далее порядок работ такой:
- Вырезаем дверки. Внизу небольшую, вверху — солидных размеров. Отрезанные куски используем как дверки, так что их не выбрасываем.
В выбранном месте привариваем колосники. Обычно это нарезанная на куски нужной длинны стальная арматура толщиной 12-16 мм. Шаг установки арматурин — около 2 см.
Как сделать колосники
- Привариваем дно если его нет.
- В крышке вырезаем отверстие под дымоход, привариваем полосу металла высотой около 7-10 см. Наружный диаметр полученного патрубка лучше сделать под стандартные дымоходы. Тогда с устройством дымовой трубы не будет проблем.
- Крышку с приваренным патрубком привариваем на место.
- К вырезанным кускам-дверкам с помощью сварки крепим запоры, петли и все это устанавливаем на место. Как правило, буржуйки негерметичны, так что уплотнители можно не делать. Но при желании по периметру дверок можно наварить полосу металла шириной в 1,5-2 см. Выступающая ее часть будет закрывать небольшую щель по периметру.
В общем и целом, это все. Осталось собрать дымоход и можно испытывать новую печку для гаража.
Горизонтальные
Если корпус расположен горизонтально, зольный ящик обычно приваривают снизу. Его можно сварить по требуемым размерам из листовой стали или использовать кусок швеллера подходящего размера. В той части корпуса, которая будет направлена вниз, проделывают отверстия. Лучше нарезать что-то типа колосников.

Как сделать буржуйку в гараж из газового баллона
Затем в верхней части корпуса делаем патрубок для дымохода. Для этого можно приварить отрезанный кусок от трубы подходящего диаметра. После того, как кусок трубы установлен и проверен шов, металл внутри кольца вырезают.
Далее можно сделать ножки. Лучше всего подойдут отрезки уголка, к которым снизу приделывают небольшие куски металла, чтобы стояли устойчиво.
Следующий шаг — установка дверок. На поддувало можно вырезать кусок металла, приделать петли и запор. Тут без особых проблем. Зазоры по краям не мешают — через них будет поступать воздух для горения.
Не возникнет сложностей и в том случае, если вы делаете дверку из металла — приварить петли не проблема. Только тут, для того чтобы была возможность хоть немного регулировать горение, дверку надо сделать немного больше — чтобы периметр проема был закрыт.

Как установить печное литье на металлическую печку
Проблематично установить печное литье. Вдруг кому-то захочется иметь не стальную дверку, а чугунную. Тогда надо из стального уголка сварить рамку, к ней болтами прикрепить литье, и всю эту конструкцию приварить к корпусу.
Из двух бочек
Все кто пользовался буржуйкой, знают, что от ее корпуса идет очень жесткое излучение. Часто стенки раскаляются до красного свечения. Тогда рядом с ней находится невозможно. Решается проблема интересной конструкцией: две бочки разного диаметра, вставлены одна в другую. Промежутки между стенками засыпаны галькой, перемешанной с песком глиной (прокалить на огне, засыпать только остывшим). В качестве топки выступает внутренняя бочка, а наружная — это только корпус.
Такая печка будет греться дольше. Она не сразу начнет отдавать тепло, но в гараже будет более комфортно и после того как топливо прогорит, она еще пару часов будет согревать помещение — отдавая накопленное в закладке тепло.
https://youtube.com/watch?v=PEWZxL2ebXE
Как сделать своими руками котел твердотопливный длительного горения: чертежи и схемы конструкций
Перед тем, как начать изготовление котла, необходимо определиться с его конструкцией. Ее выбор зависит от назначения агрегата. Если он предназначен для отопления небольшого хозяйственного помещения, гаража или дачного домика, то делать в нем водяной контур не обязательно. Обогрев такого помещения будет происходить непосредственно от поверхности котла, путем конвекции воздушных масс в помещении, как от печи. Для большей эффективности можно устроить принудительное обдувание агрегата воздухом при помощи вентилятора. При наличии системы жидкостного отопления в помещении, необходимо предусмотреть устройство в котле контура в виде змеевика из трубы или другой аналогичной конструкции.
Котел твердотопливный: фото, особенности, устройство, схема обвязки: (прочитать подробнее)
Схема подключения твердотопливного котла к системе отопления.
Выбор варианта зависит и от типа твердого топлива, которое нужно будет использовать. Для отопления обычными дровами требуется увеличенный объем топки, а для применения мелких топливных гранул можно устроить специальную емкость, из которой гранулированное топливо подается в котел автоматически. Для изготовления котла твердотопливного длительного горения своими руками, чертеж можно взять и универсальный. Он подойдет для любого вида используемого твердого топлива.Схема подключения твердотопливного котла к системе отопления
Чертеж твердотопливного котла длительного горения мощностью 25/30/40 кВт.
Расскажем пошагово, каким образом и из каких деталей можно сделать котел отопления на твердом топливе длительного горения по предложенной схеме:
- подготовим место, где будет установлен будущий агрегат. Основание, на котором он будет стоять, должно быть ровным, прочным, жестким и огнеупорным. Лучше всего для этого подойдет бетонный фундамент или толстая чугунная либо стальная плита. Стены нужно обить тоже огнеупорным материалом, если они деревянные;
- собираем весь необходимый материал и инструменты: из которых нам понадобиться аппарат для электродуговой сварки, болгарка и рулетка. Из материалов: листовая 4-мм сталь; 300 – мм стальная труба со стенками 3 мм, а также другие трубы 60 и 100 мм диаметром;
Строение и принцип работы твердотопливного котла.
- для того, чтобы изготовить котел на твердом топливе длительного горения, нужно из большой 300 – мм трубы вырезать кусок длиной 1 м. Можно и немного меньше, если в этом есть необходимость;
- из стального листа вырезаем дно по диаметру трубы и привариваем его, снабдив ножками из швеллера длиной до 10 см;
- распределитель воздуха выполняем в виде круга из листа стали с диаметром на 20 мм меньшим, чем труба. В нижнюю часть круга приваривается крыльчатка из уголка с размером полки 50 мм. Для этого можно использовать и швеллер аналогичного размера;
- сверху в середину распределителя привариваем 60 – мм трубу, которая должна быть выше котла. В середине диска распределителя прорезаем отверстие по трубе, так, чтобы был сквозной туннель. Он нужен для подачи воздуха. В верхней части трубы врезается заслонка, которая позволит осуществлять регулировку подачи воздуха;
Схематическое изображение устройства котла, работающего на твердом топливе.
- в самой нижней части котла изготавливаем небольшую дверку, снабженную задвижкой и петлями, ведущую в зольник для удобства удаления золы. Сверху в котле прорезаем отверстие для дымохода и привариваем в это место 100 – мм трубу. Вначале она идет под небольшим углом вбок и вверх на 40 см, а потом строго вертикально вверх. Проход дымохода через перекрытие помещения должен быть защищен по правилам противопожарной безопасности;
- заканчиваем сооружение котла отопления на твердом топливе длительного горения изготовлением верхней крышки. В ее центре должно быть отверстие для трубы распределителя потока воздуха. Прилегание к стенкам котла должно быть очень плотным, исключающим попадание воздуха.
Чертеж с размерами для создания твердотопливного котла своими руками.
На заметку! Чтобы разжечь, изготовленный своими руками, котел твердотопливный длительного горения, чертеж которого был представлен выше, необходимо: снять крышку и поднять регулятор, заполнить котел топливом доверху и облить его горючей жидкостью, все поставить на место и бросить горящую лучину в трубу регулятора. Когда топливо разгорится, снизить поток воздуха до минимума, чтобы оно начало только тлеть. После этого произойдет возгорание пиролизного газа и котел запустится.
Котел длительного горения — вид в разрезе.
Какие требования необходимо иметь в виду для обеспечения качественного отопления
Специалисты настаивают, что абсолютно любая по размеру печка, выстроенная своими руками, в гараже из кирпича, должна соответствовать определенным требованиям.
Только тогда можно быть довольным результатами работы:
Кирпичная печь для гаража своими руками непременно должна быть безопасной.
Добиться этого можно придерживаясь всех норм безопасного возведения пользования таким агрегатом
Не стоит экономить чрезмерно при совершении закупки материалов, их качество выступит гарантией нормального функционирования печи;
Чтобы пользоваться конструкцией было комфортно, она должна иметь такие размеры, которые бы подходили конкретному гаражу.
Чрезмерно большая печка будет перегревать помещение, а маленькая – не сможет справиться с его подогревом;
Перед началом работ важно определиться с актуальной формой печи.
Наиболее простой вариант – это прямоугольник. На нем стоит остановить свой выбор, если опыта строительных работ немного.
На заметку! Касательно дизайна будущего изделия нет особых требований. Все зависит от вкусовых предпочтений владельца гаража.
Рекомендуемые разновидности печей для небольших помещений
Печь из кирпича для гаража можно возвести самостоятельно, но прежде чем начать, изучите ее альтернативные варианты. Это позволит окончательно убедиться в актуальности печной конструкции для гаражного помещения.
Виды печей из кирпича.
Для отопления такой площади можно применить следующие варианты источников тепла:
- Инверторный кондиционер.
Это оптимальный вариант для умеренного климата, приобретение, установка которого обойдется около 25 тысяч рублей. Агрегат способен поддерживать оптимальный температурный режим, расходует не более 200-300 ватт электроэнергии. - Газовый конвектор.
Бюджетный вариант, способный работать автономно на магистральном, баллонном газе. Средняя потребность в тепловой мощности 1-1,5 кВатт при стоимости 8 тысяч рублей. - Буржуйки из металла твердотопливные.
Обладают компактными размерами, не работают автономно, функционируют на дровах, угле.
Актуальность установки кирпичной печки станет более ясной, если изучить основные параметры такой конструкции: достоинства и недостатки.
Отметим! Бюджетные инверторы не способны работать при температуре, ниже -25 градусов Цельсия.
Рекомендации по установке
Самостоятельная установка печки в гараже должна выполняться по определенным правилам. Во-первых, нужно обеспечить работоспособность нагревателя, а во-вторых, принять меры по пожарной безопасности. Что касается первого момента, то он касается правильного монтажа дымохода, обязанного создать нормальную тягу. Здесь рекомендации следующие:
- высота трубы – не менее 4 м, считая от колосниковой решетки;
- поворотов – не более 3, при этом избегайте установки колен 90º, старайтесь применять 45 или 30º;
- если есть горизонтальный участок, то его длина – не больше 1 м;
- участок трубы на улице лучше утеплить базальтовой ватой, чтобы не допустить образования конденсата;
- прикрепите дымоход к стене, чтобы он не нагружал тело печи.

Во время монтажа дровяной или масляной печи своими руками соблюдайте противопожарные требования. Вот их перечень:
- на полы под печью уложите лист металла, выступающий со стороны дверцы на 1 м;
- сгораемые конструкции стен около печки надо защитить экранами из металла или кирпича;
- проходя дымоходом деревянное перекрытие, обеспечьте зазор между ним и трубой 250 мм, заполнив его базальтовым волокном;
- дабы защитить газоход от задувания ветром, установите на него дефлектор или специальную насадку;
- в гараже должна функционировать естественная приточно-вытяжная вентиляция.
Основные этапы изготовления буржуйки
Своими руками сделать буржуйку достаточно просто, важно учитывать несколько основных моментов и нюансов:
- Перед началом подготавливается лист металла, который размечается при соответствии с чертежами.
- Ключевым моментом является наличие гильотины, если таковой инструмент имеется, своими руками раскроить металл будет значительно проще, возможно избежать последующей обработки после резки.
- Корпус сваривается под углом 90 градусов, на первом этапе возможно просто приварить стенки для избегания полной переделки при наличии ошибок.
- После сварочные швы зачищаются, изготовление буржуйки продолжается своими руками во внутренней части, где отделяется зольник от топки путем установки уголков.
- Решетка сваривается прутком, подобранным своими руками, шириной минимум 3 см. За основу по бокам устанавливаются прутья с минимальным диаметром 2 см.
- Буржуйка своими руками требует наличия отражателя. Конструкцию желательно делать съемной, так как металл может быстро прийти в негодность из-за повышенных температур.
- Верхняя часть короба закрывается крышкой с заранее подготовленным отверстием для трубы дымоотвода. Привариваются петли, дверцы топника и поддувала.
- Для приготовления еды прорезается отверстие на верхней части. Конфорка может быть изготовлена своими руками или приобретена в строй магазине.
Устройство дымохода
Для равномерного, максимально эффективного теплообмена, конструкция, изготовленная своими руками, требует правильного дымохода. Особая конструкция подразделяется на несколько частей, основная из которых боров. Устройство буржуйки с таким типом дымохода производит до четверти объёма тепла. Устанавливается в вертикальном положении на высоте 1,5 метра. Длина борова составляет не менее трех метров, за это расстояние дым догорает и передаёт все тепло на металл, который нагревает помещение.
Устройство дымохода буржуйки
Правила безопасной установки металлической печи
Температурные показатели при работе буржуйки, изготовленной своими руками держатся на высоком уровне. Печь должна быть расположена вдали от легковоспламеняющихся материалов, ограждена от посторонних и детей. Высота дымоотвода должна быть соответствующей, человек низкого роста имеет риск задеть нагретую сталь, получить серьезные ожоги.
Следует понимать, что во избежание неприятных ситуаций необходимо контролировать процесс работы буржуйки, изготовленной своими руками. При случае, если пол под буржуйкой из дерева, возможна установка только на кирпичи или листовой металл.
Увеличиваем КПД печи
Расход горючих материалов при нагревании буржуйки своими руками достаточно велик. Для экономии следует придерживать основных правил. Дверцы необходимо герметично соединить с корпусом, в противном случае, будет производиться подсос излишнего воздуха. Регулировка освобождения из буржуйки происходит специально заслонкой, изготовленной своими руками. На расстоянии 4-5 см от печи, возможно установить металлический кожух или кирпичи вплотную.
Самодельная буржуйка с высоким КПД может быть изготовлена с дымоходом повышенного количества колен. Для увеличения мощности можно воспользоваться вентилятором, площадь прогрева контролируется металлическим экраном. Для сохранения тепла, изготовленной буржуйки своими руками, конструкция обкладывается кирпичом на один или несколько слоев.
Разновидности гаражных печей
Перед тем как приступить к рассмотрению печи длительного горения, стоит ознакомиться с тем, какие вообще отопительные приборы используются в гаражах. Здесь можно устанавливать агрегаты, работающие на разном топливе – это и газ, и электричество, жидкое или твердое. Необходимо лишь, чтобы печь имела достаточно высокую эффективность и потребляла как можно меньше топлива.
Печь длительного горения
Печь-буржуйка
Один из самых популярных вариантов, знакомый, пожалуй, каждому. Буржуйка компактна, проста, быстро нагревается и «непереборчива» в плане используемого топлива (можно использовать практически все, что горит).
Фото буржуйки с размерами
Раньше с помощью таких печей отапливались жилые помещения, но после появления центрального отопления стали неактуальными. Поэтому сегодня их можно встретить только в гаражах и подсобных помещениях.
Как правило, для самостоятельного изготовления буржуек используют старые газовые баллоны или большие металлические трубы с толстыми стенками
Как бы то ни было, важно, чтобы толщина материала составляла минимум 2 мм, но лучше все же 5 мм. Корпус должен иметь сечение не меньше 30 см
Также заметим, что буржуйка служит в среднем несколько лет.
Буржуйка, если вы ее делаете самостоятельно, а не покупаете уже готовой, должна изготовляться из качественных, долговечных материалов
Таблица №1. Какими бывают печи-буржуйки?
Другой особенностью буржуйки является то, что она при работе сильно нагревается (порой даже раскаляется), потому рядом с ней непросто находиться. Из-за этого появились конструкции с двумя стенками. Самый простой вариант – взять бочки разного диаметра, вставить ту, что поменьше, в большую, а пустоты между ними заполнить песком или галькой. В итоге получится толстостенный агрегат, более удобный в эксплуатации и дольше сохраняющий тепло. С другой стороны, буржуйка с двойными стенками дольше прогревается.
Самодельная буржуйка, сделанная из бочки
Печь из кирпича
Кирпич – это теплоемкий материал, а потому печь из него будет долгое время хранить и отдавать тепло в помещение. Необходимо лишь хорошенько ее прогреть. Оптимальный вариант для автовладельцев, каждый день проводящих в гараже долгое время.
Строительство кирпичной печи в гараж
Кирпичные печи встречаются менее часто, как буржуйки, но все равно они не так пожароопасны и более удобны. Заметим также, что подобную печь нужно ставить на надежный фундамент, т. к. весит она много.
Печь на отработанном масле
Подобные печи характеризуются эффективностью и экономностью, для них не нужно дополнительно закупать топливо. Правильно оборудованная печь не будет дымить и выделять в воздух тяжелые металлы (последние могут присутствовать в отработанном машинном масле).
Печь на отработке
По сути, такая печь представляет собой пару соединенных при помощи перфорированной трубки емкостей. Вес агрегата может достигать 30 кг, в него может помещаться порядка 12 л отработанного масла. Средний расход – 1 л топлива за час работы. Если решили сделать выбор в пользу печи на отработке, то предварительно продумайте, где будете брать топливо – с одного автомобиля масла уж точно не хватит при условии постоянного использования отопительного агрегата. Можете спросить владельцев других гаражей по соседству – может, они согласятся отдавать вам масло.
Печь на отработанном масле
К недостаткам подобной конструкции можно отнести большую длину дымохода (минимум 4 м), который – обязательно – должен располагаться строго вертикально и не иметь никаких изгибов. Кроме того, потребуется регулярная чистка емкости для отработки, что едва ли можно считать приятным занятием.
Печь длительного горения
Приступим непосредственно к теме нашей сегодняшней статьи. Начнем с того, что такая печь (а ее тоже можно изготовить своими руками из баллона) действует по принципу конвертерного сжигания. Агрегаты длительного горения более сложны, чем описанные выше буржуйки, но все же ничего невозможного нет. В качестве топлива можно использовать уголь, древесину, пеллеты и проч., но используется только твердое топливо.
Схема печи длительного горения
Ознакомимся с ключевыми особенностями агрегатов длительного горения.
- Топливо горит дольше. Дрова в обычной топке будут сжигаться быстро, в то время как в подобной печи они тлеют и отдают тепло от 6 до 10 часов; следовательно, гараж будет дольше прогреваться.
- Дрова перед закладкой нужно прессовать – так они не будут сильно разгораться, а время тления увеличится.
- Горение топлива начинается сверху (в традиционных печах – снизу), а потому такие конструкции обычно вертикальные.
Печь для гаража на дровах
Таблица №2. Какими бывают печи длительного горения?
Печь из газового баллона длительного горения

























































