Рекомендации по изготовлению
Проще всего сделать своими руками маленькую переносную печь – ракету «Робинзон», чей чертеж представлен ниже. Потребуются обрезки профильных труб, металл для ножек и подставки, а также навыки проведения сварочных работ. Причем соблюдение точных размеров, указанных на чертеже, не обязательно. Можно взять трубы другого сечения, только надо уменьшать либо увеличивать их пропорционально, дабы детали стыковались друг с другом.
Чертеж усовершенствованной походной печки «Робинзон» с дюзами из профильной трубы, разрезанной вдоль на 2 части
Наиболее распространенные варианты больших ракетных печей делаются из газового баллона или металлической двухсотлитровой бочки. Надо понимать, что эти готовые элементы применяются в качестве наружного колпака, а внутренние детали печки надо делать из труб меньшего диаметра или выкладывать из шамотного кирпича. Причем из баллона можно смастерить как стационарный отопитель с небольшой лежанкой, так и агрегат, который можно перемещать.
Учтите, произвести расчет тепловой мощности печи ракетного типа довольно сложно, единой расчетной методики не существует. Проще опереться на готовые чертежи уже работающих образцов и выполнять сборку по ним. Только нужно сопоставлять размеры будущей печки с габаритами отапливаемого помещения. К примеру, для обогрева небольшой комнаты хватит размеров баллона, в иных случаях лучше брать большую бочку. Подбор внутренних деталей для них показан на схеме:
2 варианта буржуек – из газового баллона и стандартной железной бочки
Печь ракета из баллона
Кроме самого газового баллона, для сборки печки потребуется:
- профильная труба 150 х 150 мм для топливника и загрузочного бункера;
- стальные трубы диаметром 70 и 150 мм пойдут на внутренний вертикальный канал;
- то же диаметром 100 мм на дымоход;
- утеплитель (базальтовое волокно плотностью не менее 100 кг/м³);
- листовой металл толщиной 3 мм.
Для мастера, владеющего сварочным делом, данная работа не представит особой сложности. У баллона следует отрезать верхнюю часть по шву, предварительно вывернув вентиль и наполнив его доверху водой. По бокам с двух сторон вырезаются проемы для установки топливника и врезки дымохода. Профильная труба вставляется соединяется с вертикальным каналом, который выводится сквозь дно баллона. Дальнейшие работы по изготовлению ракетной печи ведутся в соответствии с чертежом:
В конце верхнюю часть надо приварить на место, затем тщательно проверить все швы на проницаемость, чтобы внутрь печи бесконтрольно не поступал воздух. После этого можно присоединять дымоход с водяной рубашкой (при наличии) и приступать к испытаниям.
Кладка отопителя ракетного типа из кирпича
Этот вариант печки потребует расходов на покупку шамотного кирпича, обычный керамический для ракетной печи не подойдет. Кладка выполняется на растворе из шамотной глины, она тоже продается в виде готовой строительной смеси. Как сделать стационарную ракетную печь:
- Предварительно нужно выкопать яму, утрамбовать дно и залить фундамент размерами 1200 х 400 мм и высотой 100 мм, как изображено на фото.
- После застывания фундамент накрывают листом базальтового картона и ведут кладку камеры сгорания, бункера для загрузки дров и вертикального канала. С торца камеры сгорания устанавливают дверцу для прочистки зольника.
- После высыхания глины яма засыпается, а на вертикальный канал надевается заранее подобранная труба или малая бочка диаметром 450 мм. Промежуток между кирпичной кладкой и стенками трубы заполняется огнеупорным утеплителем, например, базальтовой ватой, керамзитом, вермикулитом.
- На последнем этапе на конструкцию надевают колпак из большой металлической бочки диаметром 600 мм. Предварительно в ее верхней части делается вырез и ставится патрубок для подключения дымохода. Когда бочка перевернется, он как раз окажется внизу.
Дальше – дело техники, можно выводить дымоход сразу наружу либо строить еще лежанку с дымооборотами. Для этой цели уже сгодится обычный керамический кирпич и глиняно-песчаный раствор. Порядовка кирпичной кладки ракетной печи с небольшой лежанкой подробно показаны на видео:
Видео описание
Как кладется ракетная печная конструкция из 21 кирпича показано в следующем видеоролике:
Монтаж ракетной печной конструкции с лежанкой
Ракетная печь из кирпича, которая дополнена отапливаемой лежанкой – это один из вариантов практичной конструкции. Хотя для ее создания требуется больше времени. Ведь она представляет собой массивную конструкцию, которая на самом деле является комбинированным вариантом.
Сам процесс изготовления ракетной печной конструкции с лежанкой выполняют следующим образом:
- Создают углубление на 100 мм, чтобы можно было установить топку. В процессе такой работы используют шамотный кирпич. Из него выкладывают основание.
- Устанавливают опалубку строго по периметру печной конструкции. На этом же этапе укладывают арматуру или сетку на основании из кирпича.
- Заливают конструкцию раствором.
- Ждут, пока бетонированное основание высохнет. Его отверждение происходит в течение 24 часов.
- Выкладывают кирпичное основание.

Забетонированное печное основание с углублением под топливный отсек Источник kuhnidizayn.ru
- Формируют стенки путем монтажа нескольких кирпичных рядов.
- Создают нижний ракетный канал.
- Укладывают кирпичи поперек нижнего канала. При этом оставляют не заложенным отсек топки и дымоотводящее отверстие. Кирпичами закрывают только камеру сгорания.
- Берут корпус от старого цилиндрического бойлера, который обрезают с обеих сторон. Это позволяет получить трубу большого диаметра.
- Закрепляют фланец на нижней части старого корпуса. Он нужен для монтажа трубы горизонтально расположенного теплообменника. Все соединения выполняют сваркой.
- Приваривают к бойлерному корпусу выходной патрубок.
- Обрабатывают цилиндрическую конструкцию грунтовкой, а потом наносят на нее несколько слоев термостойкой краски.
- Приваривают сбоку горизонтально расположенного дымохода отводку. Она будет использована при создании зольника.
- Выкладывают строго вертикально кирпичную жаровую трубу. Ее размер составляет 180*180 мм.

Выложенный вертикальный дымоотводящий канал Источник stroyfora.ru
- Одевают кожух на выложенную кирпичную трубу.
- Помещают в пространство между жаровой трубой и кожухом перлитовые шарики.
- Замазывают глиняным раствором нижнюю часть жаровой трубы для предотвращения высыпания теплоизоляционного материала.
- Изготавливают крышку топки из отрезанной бойлерной части.
- Готовят раствор из глиняной смеси и опилок, количество которых может достигать 50%.
- Обмазывают получившейся смесью, ранее созданную конструкцию.
- Формируют внешний контур печки из кирпичей.
- Устанавливают на подготовленное основание 200-литровую бочку, нижний патрубок которой должен быть направлен в сторону лежанки. Она будет наружным корпусом печи.
- Формируют гофрированный канал. Через него будет подаваться уличный воздух. Канал прокладывают к топке. Благодаря его наличию печь будет использовать для сгорения дров воздух с улицы, а не из помещения.

Гофрированная труба для формирования канала, через который к топке будет подаваться уличный воздух Источник sod-98.ru
- Выполняют проверку работоспособности печной конструкции путем ее растопки.
- Соединяют патрубок на кирпичном основании с трубопроводами теплообменника в лежанке.
- Придают форму лежанке точно так же, как и при формировании внешнего вида основного корпуса.

Сформированная печная ракетная конструкция с лежанкой Источник pinimg.com
Ракетная печь для улицы
Печь для улицы может быть заводского производства либо сложена самостоятельно из кирпичей.

Заводская модификация реализуется под наименованием «Робинзон. Печи металлические, но по принципу построения и горения от самодельных ничем не отличаются.

Технически, они представляет собой устройство L- образного типа. Дровоприемник диагональный либо вертикальный, а вот розжиг топлива происходит через вертикальную часть конструкции. В заводском варианте также присутствует небольшое поддувало, контролирующее доступ воздуха, необходимого для тяги.

Из кирпичей реактивную печь для улицы можно сложить буквально за 10 минут. Раствора она не требует, состоит из 5 рядов, по 4 кирпича в каждом Так как нагрев емкости происходит за счет открытого пламени, топлива она много не требует, но при этом способна вскипятить довольно большое количество воды за короткие сроки.
Единственное, необходимо ставить на неерешетку для емкости, если кастрюлька или бочка будут перекрывать полностью вертикальный выход, тяги хорошей в печи не будет.
Относительно топлива, работает печь на дровах, шишках, щепках, листьях и так далее, то есть, это непривередливый к растопке очаг.
Как правильно топить печь
Если для топки мобильных ракетных печей не требуется особой подготовки, то для того, чтобы печь длительного горения работала на пределе своих возможностей, необходимо обязательно произвести предварительный прогрев. Подобное мероприятие также позволяет снизить степень загрязнения дымохода.
Прогревать печь удобнее всего бумажными листами, деревянными щепками и опилками. Степень прогрева оценивается по возникающему гулу в канале. Изначально гул будет сильным, это свидетельствует о высокой тяге и маленькой температуре, по степени снижения шума можно говорить о повышении температуры в топке.
Для прогрева ракетной печи лучше всего использовать мелкие щепки и опилки
Как только шум начал уменьшаться, в топку загружается основное топливо. Минут через 15 заслонка начинает постепенно закрываться. Зазор должен быть отрегулирован таким образом, чтобы из печи доносился еле слышный шелест.
Удачных конструкций ракетных печей в сети предостаточно, при этом авторы часто руководствуются больше интуицией, чем техническими расчётами. Главное — придерживаться «Г-образного» вида конструкции, а дальше всё зависит лишь от вашей фантазии.
Обязательно проверяйте работоспособность печи на предварительном этапе.
Достоинства и недостатки
Печь-ракета длительного горения приобрела особую популярность и востребованность благодаря своим положительным характеристикам:
- Доступная конструкция и легкая сборка. Самый простой вариант печи можно изготовить в домашних условиях из доступных материалов за несколько часов.
- Эффективная теплопередача с использованием различного типа древесного топлива – дров, щепы, веток, коры и стружки.
- Широкий функционал. Возможность использования устройства для обогрева помещений, приготовления пищи и подогрева воды.
- Полное сгорание топлива с возможностью дожига пиролизных газов. Это позволяет повысить КПД и при этом избежать отравления угарным газом.
- Возможность повторной закладки топлива, не прерывая рабочий процесс.
- Отсутствие необходимости в создании принудительной тяги в дымоотводной системе. Высокий уровень саморегуляции рабочих режимов прибора.

Эргономичная печь может быть установлена в любом помещении, а облегченные конструкции не требуют дополнительного обустройства усиленного фундамента.
Несмотря на существенные плюсы, подобный агрегат не лишен некоторых недостатков:
- Отсутствие возможности автоматизации процесса топки. Самодельные печи требуют постоянного контроля над закладкой топливного материала со стороны человека.
- Высокая вероятность получения ожогов при существенном нагреве металлической конструкции.
- Устройство не предназначено для обогрева жилых домов большой площади и стационарных банных комплексов.
- Конструкция печи предусматривает использование хорошо просушенного топлива, поскольку излишек влаги может привести к обратной тяге в дымоходе.
- Неэстетичный внешний вид готового устройства.

Преимущества и недостатки
Ракетные печи длительного сгорания обладают следующими преимуществами:
- высоким коэффициентом полезного действия — не менее 85%;
- большой скоростью нагрева помещения — на 50 м² станет тепло менее чем за 1 час;
- отсутствием сажи — выхлоп при сгорании топлива не образует копоти, а формируется в виде пара и углерода;
- возможностью функционирования на твёрдом топливе любого вида;
- малым расходом — потребление топлива печью ракетой в 4 — 5 раз меньше, чем обычной печкой при равных условиях: временного промежутка горения и температуре нагрева;
- возможностью устройства теплой лежанки;
- продолжительностью сохранения тепла в хорошо разогретой конструкции без добавления топлива — до 12 часов.
Достоинств у такой печи много, но есть и плохие стороны
К недостаткам относится:
- ручной способ управления отопительным устройством — прогорание топлива происходит быстро, и требуется его регулярная докладывать;
- высокая температура нагрева некоторых элементов конструкции грозит ожогом владельцам при случайном соприкосновении;
- скорость нагрева не позволяет применять ракетную печь для бань;
- эстетическая составляющая такого прибора на любителя и подходит не для всякого интерьера;
- опасность проникновения угарного газа в жилые комнаты.
Разнообразие печей-ракет
Ракетная печь длительного горения с лежанкой
Реактивные топки подразделяются на множество модификаций. Печь-ракета может быть разных размеров от компактного, чемоданного типа, до огромного, захватывающего всю стену комнаты.
Различают такие виды котлов:
- Стационарные. Устанавливаются в жилых и подсобных помещениях — гаражах, мастерских, сараях для животных.
- Переносные (туристические). Могут применяться на природе или в качестве мобильного обогревателя для коттеджа, когда оставлять изделие опасно в плане хищения.
- Отопительно-варочные. Используются для нагрева и готовки пищи.
- Каминные. Сочетают в себе зрелищную и обогревательную функцию.
- Банные. Предназначены для создания жара в парилке.
Переносные ракетные печи
Походные варианты отличаются компактными габаритами, безопасностью и вполне приличной производительностью. В сложенном виде легко помещаются в рюкзаке, чемодане, небольшой картонной коробке. Применяются на привале во время путешествий, на пикниках и в качестве резервного очага при возникновении перебоев с газом и электричеством. Изготавливается ракетная печь из профильной трубы квадратного сечения, установленный на срезе рассекатель используется в качестве подставки для кухонной посуды.
Конструкция из газового баллона
Реактивная печь из газового баллона
Наиболее популярное среди домашних умельцев изделие. Баллон имеет идеальную для проекта форму, изготовлен из качественного металла требуемой толщины. Для загрузочного отсека используется сталь толщиной не менее 5 мм, а для регулировки интенсивности пламени устанавливается дверка. Если котел планируется использовать и для готовки, верхняя часть емкости срезается и туда приваривается ровный лист.
Устройство комбинированной печи
Комбинированные сооружения являются стационарными, собираются из кирпича и железа, используется глина. Изделие обладает высокой теплоемкостью при небольшом расходе топлива. Применяется в качестве обогревателя при возможности подключения водяного контура. Устройство занимает много места, что накладывает определенные ограничение на его установку.
Конструкция с лежанкой
Объект состоит из топки, камер первичного и вторичного горения, зольника, поддувала и длинных расположенных горизонтально труб. Поверх канала обустраивается лежак длиной до 300 см. Ложе оборудуется как диван или кровать. Для поступления тепла на поверхность делаются железные радиаторы или перфорирование для выхода теплого воздуха.
Простейший вариант ракетной печи
Простая походная печь ракетного типа отличается легкостью самостоятельного изготовления, экономией времени и ресурсов в процессе использования, компактностью размеров и габаритов. На все работы потребуется затратить 2-3 часа с подготовкой инструментов и материалов, что очень удобно в условиях похода или дачи.
Конструктивная особенность, которую нужно учитывать – нижняя часть агрегата, выполняющая роль дна топливной камеры (колосника) должна быть выполнена подвижной. Делается это для облегчения процесса закладки дров и загрузки их в топочный бункер.
Если используются щепки, то выдвижной элемент конструкции является удобной подставкой в процессе закладки топлива в печь. Дополнительно подвижная часть значительно облегчает процесс очистки агрегата от золы.

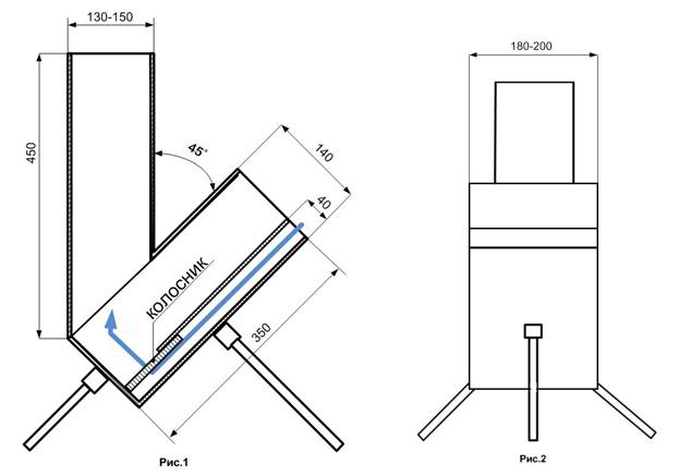
Простая ракетная печь из трубы
Подготовка материалов
Для изготовления ракетной печи потребуется приобрести:
- Трубу с сечением квадрат (15 см×15см×3, 40,5 см) – 1 шт.
- Трубу также квадратной формы (оптимально выбирать 15см×15см×3, 30 см) – 1 шт.
- Стальную полоску (рекомендуемые размеры 30см×5см×3 мм) –таких элементов нужно купить 4 шт.
- Еще вариант стальной полоски ( с параметрами идеальными для работы14см×5см×3 мм) – 2 шт.
- Решетку, выполненную также из хорошего металла (стали) ( выбирать размеры30см×14см) – 1 штука.
Дополнительно потребуется купить стальной прут (3:5 мм) – 2,5 метра, чтобы изготовить решетку самостоятельно при желании. Качественная печь робинзон своими руками – это минимальные затраты финансов, немного внимания и времени.
Инструменты
Для проведения всех необходимых работ потребуются:
- Болгарка.
- Сварка.
- Ножницы по металлу.
Также нужно иметь защитные очки и перчатки.
Проводятся работы по схеме и чертежу, указанному ниже:

Чертеж простейшей ракетной печи из профильной трубы
Инструкция по изготовлению
Все работы по созданию отопительного устройства должны проводиться поэтапно. Руководство к действию состоит из нескольких шагов, которые нужно выполнять последовательно:
- Трубы квадратные нужно разрезать на заготовки необходимого по чертежу размера.
- Сделать на них разметку с учетом того, что один из их краев потребуется срезать (угол среза составляет 45 градусов). Работы выполняются болгаркой.
- Получившиеся трубы потребуется аккуратно сварить – в итоге должна получиться конструкция, по форме напоминающая сапог.
Делая печь робинзон своими руками и, используя чертежи, важно соблюдать рекомендации по размерам деталей, которые там содержатся. Следующие действия будут такими:
- Делаются пропилы (сверху трубы или по ее бокам) – размеры составляют 20 мм в глубину и 3,5 мм в ширину (в них будет установлена подставка для установки емкостей).
- Стальную полоску (которая имеет параметры 30см×5см×3 мм) 1 штуку из приобретенных, нужно разрезать ровно пополам.
- Вторую оставшуюся полоску из стали (также с параметрами 30см×5см×3 мм) разметить точно посередине.
- Приварить к ней для качественного выполнения всех этапов работ, элементы с двух сторон от разрезанной полосы (должна получиться крестообразная форма).
- Стальные полосы (размеры, которые нужно выбрать 30см×5см×3 мм) – оставшиеся 2 штуки и оставшиеся отрезки длинной 14 см сваривается рама, которая будет выдвижной.
- Элементы привариваются не рядом, а внахлест.
Далее проводятся следующие работы, которые являются завершающими.
Сверху уже готовой рамы, используя точечный сварочный аппарат, прикрепляется готовая решетка (приобретенная дополнительно/специально) или нарезанные по нужной длине части прута из хорошей стали. Расстояние, на котором прикрепляются части, составляет 1 см. Затем, сверху трубы устанавливается подставка, решетка задвигается в топочный бункер. Основные работы про производству печи можно считать законченными.
Наступает этап проверки и поведения испытаний. Требуется заложить в топку немного твердого топлива и растопить печь, если не выявлено проблем в ее работе, нужно дождаться полного остывания всех элементов конструкции. В завершении можно провести работы по окраске печи, чтобы защитить части от коррозии. Для этого применяется жаропрочная краска. Повысить комфорт эксплуатации можно, приварив к дверце топочной камеры ручку.
Устройство и принцип работы
Ракетные печи практически не имеют ничего общего с устройством ракетных двигателей или реактивных турбин. Напротив, они предельно просты конструкционно, в отличие от вышеуказанных устройств. Сходство заметно разве что в тихо шумящем пламени и высокой температуре сгорания – все это наблюдается после выхода печки на рабочий режим.
Рассмотрим устройство ракетных печей – они состоят из следующих элементов:
- Топка – вертикальный или горизонтальный участок, в котором горят дрова;
- Камера сгорания (она же жаровая труба, райзер) – здесь происходит процесс сгорания топлива с выделением большого количества тепла;
- Поддувало – необходимо для корректной работы печки и запуска процесса сжигания пиролизных газов;
- Теплоизоляция – окутывает вертикальную часть, образуя вместе с корпусом барабан;
- Лежанка – используется по прямому назначению;
- Дымоход – отводит продукты сгорания в атмосферу, создавая тягу;
- Подставка под посуду – обеспечивает беспрепятственный уход жара.
В зависимости от вида ракетной печи, те или иные элементы могут отсутствовать.
Наибольшей эффективностью и удобством обладают ракетные печи с вертикальными топками (бункерами для топлива) и поддувалами – сюда помещаются большие объемы горючего, что обеспечивает длительное горение.
Самой важной частью ракетной печи является вертикальный барабан. Именно в нем наблюдается самая высокая температура, так как сюда вырываются языки пламени
Для того чтобы он начал работать, его необходимо тщательного прогреть. Без этого процесс горения будет слабым. Для прогрева в топку помещают бумагу, картон, мелкую щепу или тонкие ветки. Как только система прогреется, пламя в барабане начнет сгорать с гудением, что является признаком выхода на рабочий режим.
Ракетная (реактивная) печь без поддувала сжигает дрова прямым способом. Она более проста, но менее эффективна. Модель с поддувалом подает вторичный воздух к основанию райзера, что вызывает интенсивное сгорание горючих пиролизных газов. За счет этого повышается эффективность агрегата.
Топки в ракетных печах располагаются горизонтально или вертикально (под каким-либо углом). Горизонтальные топки не очень удобны, так как дрова в них приходится пододвигать к зоне горения вручную, самостоятельно. Вертикальные топочные камеры более удобны – загружаем в них горючее и занимаемся своими делами. По мере сгорания поленья будут проваливаться вниз, самостоятельно продвигаясь к зоне горения.
Ракетная печи из кирпича своими руками
Чтобы сделать реактивную печь своими руками не нужно иметь особых навыков. Благодаря компактности и простоте строения изготовить ее можно за несколько часов.
Основа конструкции – две вертикальные камеры разного размера, внизу обобщенные между собой общим каналом. Камера меньшего размера называется камерой сгорания. Она используется сначала для розжига, а потом для сгорания дров.
Разжигают печь обычно с помощью легко воспламеняющихся материалов, наподобие деревянной стружки, щепок, бумаги. Также подойдут небольшие сухие веточки. С помощью специальных заслонок в нижнем отсеке топочной камеры, можно регулировать силу тяги.
После того как прогреется вся система, включая дымоход и большую камеру, ракетная печь для дома начнет полноценно выполнять свои функции по обогреву помещения. Определить этот момент можно по тому, как гул, возникший вначале, стихнет.
Помещение нагревается от дымохода, который проходит через всю комнату или по ее периметру. Дым, пройдя по всей протяженности дымохода и отдав тепло в помещение, наружу выходит холодным. То есть все тепло по максимуму сохраняется внутри отапливаемой комнаты.
Что может понадобиться в процессе сооружения печи:
- жаропрочный красный кирпич;
- бочка из металла;
- металлическая дымоходная труба;
- старое металлическое барбекю;
- жаростойкая краска;
- металлическая арматура;
- небольшое количество керамзита, самана и перлита;
- песочно-цементная смесь;
- щётка по металлу;
- строительная лопата и кельма.
Прежде чем приступать к непосредственному сооружению печи ракеты своими руками нужно проделать следующие подготовительные работы:
В полу, вырывают яму глубиной на штык лопаты. Это позволит спрятать горизонтальный дымоход под полом.
В качестве колпака для печного устройства используют металлическую бочку
Вначале проводят обжиг и чистку ёмкости, которую впоследствии покрывают жаростойкой краской.
Важно чтобы краска наносилась после монтажа фланца для соединения основной конструкции с дымоходом.
На следующем этапе сооружается фундамент, для чего выполняются в соответствии с размерами, указанными в чертеже манипуляции в следующем порядке.
Подготавливают опалубку.
В месте установки топки в почву углубляют несколько кирпичей.
На дно кладут арматуру.
По периметру нижней части топки по уровню кладут кирпичи.
Фундамент заливают песочно-цементной смесью.
После полного высыхания строительной смеси можно начинать кладку кирпича. При этом в качестве строительного раствора используется огнеупорная глина.
Первый ярус кладки возводят, вверх оставляя только отверстие для топки.
На 2 ряду начинают формировать нижний канал ракетной печи.
На 3 ряду выполняется перекрытие канала так чтобы получилось 2 отверстия – для топки и канала, располагающегося, вертикально.Перед кладкой вертикального канала в металлическую бочку монтируется фланец для подсоединения дымохода. Также желательно установить тройник для очистки дымоходной трубы
Также желательно установить тройник для очистки дымоходной трубы.
Восходящую часть устройства выкладывают способом «сапожка». При этом её внутреннее сечение, должно быть, 180 мм.
Также понадобится старый водогрей, который надевают на подымающуюся часть, а образовавшиеся пустоты засыпают перлитом.
Основание ракетной печки окружают мешками, наполненными, песком, а основу кожуха замазывают глиной. Свободное пространство заполняют керамзитом.
Присоединяют дымоходную трубу, а на восходящую часть одевают перевёрнутую металлическую бочку.
После пробного запуска печи ракеты бочку красят с помощью жаростойкой краски.
Ну и в завершение выполняют обкладку дымохода.
Трубу дымохода обкладывают мешками, которые предварительно наполняют песком и всё засыпают керамзитом.
Саму конструкцию формируют с помощью огнеупорной глины.
Хочется отметить, что в процессе функционирования ракетной печи требуется много кислорода, поэтому обязательно с улицы проводится воздуховод.
После этого устанавливается внутрь топки старое барбекю, которое закрывается крышкой. Швы качественно заделывают глиной. На этом сооружение кирпичной ракетной печи с металлической бочкой можно считать завершённой.
Как работает печка ракетного типа
Устройство простейшее – два принципа горения топлива, позаимствованных у других печей:
- Естественная циркуляция горячих газов и дыма по каналам печки – стандартное решение, как в буржуйке.
- Дожигание несгоревших газов (пиролиз) при ограниченном доступе кислорода к камере горения.
Схема самой простейшей реактивной печки, которая предназначена только для приготовления пищи, использует именно естественное горение дров – в открытой камере невозможно создать условия для поддержания реакции пиролиза и дожигания недогоревших газов.
Рассмотрим простую конструкцию реактивной печи-ракеты прямого горения, которая традиционно устанавливается во дворе на открытой площадке. На ней можно быстро нагреть воду или приготовить обед для семьи на отдыхе. Из рисунка ниже становится понятно, что для такого образца потребуется два отрезка цилиндрической или прямоугольной железной трубы, которые соединены между собой сваркой под углом 900.
Простейшее устройство ракеты
В качестве топочной камеры выступает горизонтальный отрезок металлического короба – туда закладывают дрова. Также загрузку топлива можно организовать и вертикально – добавить сверху горизонтальной трубы вертикальный железный цилиндр для загрузки дров. Таким образом, получится конструкция из трех труб или коробов, самый нижний из которых (горизонтальный) будет работать как топка. В стационарной схеме простейшая конструкция печки часто использует красный кирпич, который кладется на глиняный раствор.
КПД конструкции нельзя назвать удовлетворительным, поэтому умельцы придумали, как повысить эффективность ее работы. Добавочный элемент – еще одна труба большего диаметра (как видите, все материалы доступны и дешевы), в которую устанавливается основная труба печки райзер (первичный дымоход). Так повышается общий нагрев и продолжительность удержания тепла.
Печь с утепленным райзером
На схеме:
- Наружный корпус.
- Труба, которая служит топкой.
- Канал для выхода воздуха в камеру сгорания.
- Утепленная область между корпусом и райзером. Утеплителем может служить та же зола.
Разновидности ракетных печей
В этом разделе мы рассмотрим самые распространенные виды ракетных печей, использующихся в походных и стационарных условиях.
Простые печи из металла
Самая простая реактивная печка на дровах изготавливается из Г-образного отрезка металлической трубы большого диаметра. Горизонтальная часть короткая, она представляет собой топку. Камера сгорания располагается в вертикальной части трубы, здесь активно горят дрова. В горизонтальный участок нередко вваривается небольшая металлическая пластина, образующая поддувало. После прогрева ракетная печь выходит на рабочий режим, из ее вертикального участка (жаровой трубы) вырывается пламя.
Такие ракетные печи используются для приготовления еды в походных или уличных условиях – за счет маленькой площади они отличаются небольшим тепловыделением, а подавляющая часть тепловой энергии уходит через жаровую трубу. На эту трубу ставятся чайники, сковороды и кастрюли, чтобы бушующее пламя обеспечивало их прогрев. Для поддержания тяги в верхней части трубы располагаются подставки, на которые и ставится посуда – продукты сгорания смогут беспрепятственно выходить наружу.
Для того чтобы металлическая ракетная печь из Г-образного отрезка трубы получилась более эффективной, ее оснащают металлическим кожухом из старой бочки. В нижней части бочки виднеется поддувало, а из верхней выглядывает жаровая труба. При необходимости, внутренний объем засыпается утеплителем, например, золой – она не горит и хорошо удерживает тепло.
Наибольшим удобством отличаются металлические ракетные печи с вертикальными топками, расположенными под углом к жаровой трубе. Нередко топочные отверстия закрываются крышками, забор воздуха в этом случае осуществляется через поддувало. Иногда топка делается по диаметру больше жаровой трубы, чтобы обеспечить длительное горение.
Простые печи из кирпича
Малогабаритная печь ракета из кирпича – это еще один самый простой вариант постройки ракетной печи своими руками. Для ее сборки не требуется цементный раствор, достаточно уложить кирпичи друг на друга, чтобы получить в свое распоряжение удобный кирпичный уличный агрегат для приготовления пищи. В разделе по самостоятельной сборке ракетных печей мы предложим вам ознакомиться с самой простой порядовкой для самостоятельной сборки.
Печь ракета, сделанная своими руками из кирпича, может быть использована для обогрева домовладений. В этом случае простой порядовкой не обойтись – придется сооружать стационарный вариант с применением специального цементного раствора. Порядовок для этого много, вам останется лишь выбрать подходящий вариант. Кстати, отдельные варианты таких печей предусматривают наличие водяного контура.
Преимущество кирпичных ракетных печей:
- Простая конструкция;
- Длительное сохранение тепла;
- Возможность создания удобной теплой лежанки.
Отдельные модели делаются комбинированными, в них используются как сталь, так и кирпичи.
Сложные ракетные печи
Реактивная печь для отопления домовладений или для бани отличается повышенной сложностью. Главным звеном здесь по-прежнему является райзер (жаровая труба), заключенный в металлический корпус. Верхняя его часть может использоваться для приготовления еды, образуя своеобразную варочную поверхность. Топка делается большой, чтобы вместить увеличенное количество твердого топлива. В качестве исходных материалов выступают металл, кирпичи и глина.
На основе глиняной обмазки изготавливаются обтекаемые ракетные печи неправильной формы, что хорошо воспринимается человеческим зрением.
Существуют проекты дровяных ракетных печей, предусматривающие наличие дополнительных модулей. Схемы их постройки включаются в себя небольшие бойлеры для подготовки горячей воды, варочные поверхности, водяные рубашки и даже небольшие духовые шкафы. Такие печки помогут обогреть домовладения и создадут комфортные условия для проживания человека.
Ракетный котел с водяной рубашкой, созданный на основе дровяной печи, поможет прогреть многокомнатную постройку. Он оснащается водяным контуром для подогрева теплоносителя. Дополнительное удобство создают образцы с лежанками – эти лежанки создаются на основе тепловых каналов между жаровой и дымоходной трубами.
Тонкости эксплуатации реактивной печи
При работе этого агрегата следует обязательно придерживаться некоторых правил.
| Основное топливо закладывается только после прогрева конструкции. | Всегда помните об этом, тогда печь будет служить эффективнее и дольше. |
| При топке нужно постоянно реагировать на приглушенный звук печки закладкой очередной порцией дров, которая самостоятельно разгорится от предыдущих остатков топлива. | При этом надо полностью открыть топочную дверцу. |
| По мере необходимости заслонку всё больше прикрывают. | Иначе топка станет заполняться избыточным объёмом воздуха, который охладит первичную газовую смесь. При этом усилится звук, так как устойчивый вихрь в райзере сбивается в беспорядочный комок. Пиролиз в газовой фазе прерывается, никаких древесных газов не образуется, печь потребляет слишком много топлива, а в райзере оседает нагар из сажи. |




































