Проекты домов из бруса 6 х 6 с мансардой: чертежи и внутренняя планировка
Когда встает вопрос о планировке дома с площадью 6 на 6, следует учитывать, для каких целей он строится. Если это домик для летнего загородного отдыха, то основную часть дома отводят для комнат жилого назначения, а для отдыха оставляют минимальное количество места. Как правило, зону отдыха в дачных домах обустраивают на террасе или рядом с домом на специальной площадке.

Правильное расположение комнат с террасой для отдыхаИсточник Skpomestie.ru
А вот если дом предназначен для проживания в нем круглый год, то площадь для жилых комнат остается небольшая. Ведь нужно место для общих помещений, таких как кладовая или гардеробная, которые помогут содержать дом в чистоте и порядке.

Рациональное расположение комнат с площадью для технического помещения или гардеробнойИсточник Domostroev.com
При планировании двухэтажного дома с такой площадью есть один существенный недостаток. Места для лестницы на второй этаж или мансарду остается очень мало. Как итог – она будет очень крутой, что значительно затруднит по ней подъем пожилых людей и детей.
Для одноэтажного дома
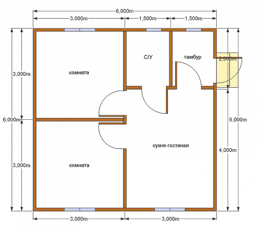
Одноэтажный дом площадью 6х6 имеет не так много вариантов планировки, как двухэтажные дома. Ведь на одной площади необходимо расположить все необходимые помещения и разделить их тонкими перегородками.
Если в доме будет проживать семья из двух человек, то можно сделать просторную кухню, спальню и санузел. Тогда каждое из помещений будет иметь достаточную площадь для комфортного проживания.

Планировка дома для семьи из двух человекИсточник Ooo-skp.ru
Когда строительство планирует семья с ребенком, то необходимо будет оборудовать детскую комнату. Для нее следует отнимать площадь от кухни и родительской спальни.

Планировка дома площадью 6х6 с двумя изолированными комнатами для родителей и ребенкаИсточник Dobrodom75.ru
Не стоит забывать и об обогреве дома. При планировании одноэтажного проекта предусматривается установка печи посередине дома. Такое расположение позволит одинаково обогревать все помещения, а так же разделит кухню и помещения для отдыха.
Для двухэтажного дома
Если предусматривается планировка дома 6х6 с мансардой, то жилая площадь будет уже не 36 кв.м, а 40-44 кв.м. При выборе крыши стоит заранее определиться с количеством спален на чердаке. Если будет одна большая спальня, то крышу можно сделать двухскатную.

Правильное расположение комнат в доме с мансардой и одной комнатойИсточник Daromdoma.ru
А когда в плане указывается две или три небольших комнаты, то стоит остановить выбор на вальмовой крыше. Под такой крышей можно сделать дополнительные помещения, например, гардеробную.

Расположение комнат на первом и втором этаже с отведением места для гардеробнойИсточник Domikbani.ru
На первом этаже здания располагаются кухня, гостиная, санузел и прихожая. А так же уделяется место и для лестницы. А в мансарде уже обустраиваются спальные комнаты.
Планировка такого дома имеет значительные преимущества. Спальные комнаты закрыты от посторонних людей, так как располагаются этажом выше. К тому же расширение жилой площади за счет строительства мансарды позволяет поставить дом для небольшой семьи в ограниченном пространстве.
Чтобы получить дополнительное пространство для отдыха, то следует на втором этаже сделать небольшой балкон или лоджию. Там можно поставить пару кресел и стол, и таким образом получить дополнительное помещение.

Рациональное расположение комнат дома с мансардой и отведением места для оборудования балконаИсточник Banivsem.ru
Специалисты рекомендуют проводить строительство домов такой площади именно с мансардой. Тогда само строение будет выглядеть пропорциональным, а на несущую конструкцию не будет создаваться большая нагрузка, а это защитит от сильной усадки.
При планировании места установки лестницы стоит помнить, что ее минимальная ширина составляет 1 метр. Тогда по ней можно будет безопасно передвигаться и избежать травм.
Для санузла отводится небольшое помещение, в нем лучше располагать не ванную, а душевую кабину: тогда места понадобится меньше.

Рациональная планировка санузла на первом этаже дома с мансардойИсточник Autogear.ru
Если один из членов семьи имеет надомную работу, то на первом этаже можно расположить изолированный кабинет в дальнем углу дома.
Правила планировки дачного дома 6 на 8 м
Что следует продумать и на что обратить внимание, если предстоит планировка дачного дома 6 на 8 в 2 этажа?
1. Необходимое количество помещений.
Определитесь, какие комнаты и в каком количестве нужны, чтобы наилучшим образом распределить их по этажам. Учтите, что второй этаж более тихий и спокойный. Постарайтесь разместить все комнаты для отдыха или работы именно там, если дом не одноэтажный.
2. Расположение лестницы.
В двухэтажных срубах обязательно присутствует лестница, это необходимо учесть при планировке помещений. Следует обустроить пространство таким образом, чтобы лестница в него органично вписалась и чтобы к ней был открыт доступ. Постарайтесь экономично использовать и подлестничную часть – разместите там полки или диван.

Рационально используйте подлестничное пространство
3. Освещение.
Самостоятельно определяя расположение комнат в доме, не забудьте о важности естественного освещения. Желательно обеспечить каждую комнату окном, чтобы туда проникал дневной свет
4. Внутренние коммуникации.
На них тоже важно ориентироваться при планировке. Представьте, сколько лишних средств уйдёт на те же трубы, если сделать ванну с туалетом слишком далеко
Решение вопроса с устройством точек установки санузлов
Отдельно отрабатывается вопрос устройства помещений санузлов. Естественно, что многие привыкшие отдыхать на дачах только в тёплый период времени, покупают отдельные туалеты, характеризующиеся как пристройки, устанавливаемые в отдалении от основного сооружения.


В малогабаритных домах каждая единица площади очень важна. Планировка дома 6 на 9 м. предусматривает очень внимательный выбор точки под устройство отдельного помещения для установки унитаза и проводки инженерной системы под внутреннюю и наружную канализацию.

Необходимо, чтобы само помещение было удобным и одновременно не сильно влияло на уменьшение габаритов основных комнат.

Какой проект дома выбрать: один или два этажа
Возможности современного проектирования жилых домов делают условным название «одноэтажный дом». План постройки дома может предусматривать оборудование цокольного этажа, строительство мансарды. Коттедж с такими пристройками получится трехуровневым в проекте одноэтажного дома. Мансарду и цокольный этаж нельзя назвать этажами, но такие помещения сделают жилье более удобным и увеличивают полезную площадь дома.
На цокольном этаже обычно оборудуют хозяйственный сектор, устанавливают спортивные тренажеры, выводят коммуникации. Здесь можно оборудовать котельную, сделать гараж. Мансарда может быть оборудована спальнями и детскими комнатами.
Пример планировки дома с цокольным и мансардным этажамиИсточник medicroslavl.ru
Если вас не привлекает дом с дополнительными уровнями, планировать комнаты следует с учетом эффективного использования площади. В доме необходимо обеспечить помещения для всех членов семьи, а кухню и столовую совместить. Также поступают с туалетом и ванной. Разграничить зоны поможет строительство невысоких перегородок, колонн.
Двухэтажный дом строят для большой семьи. На втором этаже планируют жилые комнаты для домочадцев. На первом – обустраивают гостиную, кухню, спальню для гостей. При совместном проживании нескольких поколений, старшим членам семьи отводят комнаты внизу. Санузлы на этажах размещают друг над другом. Это облегчает подвод коммуникаций.
Если есть желание оборудовать автономное отопление, котельную устраивают возле кухни, в цокольном помещении или гараже.
Выбирать, какой дом построить, двухэтажный или с одним этажом, следует исходя из размера участка. Если у вас большая семья, а участок маленький, отдать предпочтение лучше двухэтажной конструкции. В таком доме можно выделить личную комнату каждому члену семьи и при этом сэкономить территорию на участке.
Пример планировки двухэтажного домаИсточник centermira.ru
Если семья небольшая, то одноэтажного дома, даже на маленьком участке будет вполне достаточно, ведь двухэтажная конструкция обойдется гораздо дороже.
Коротко о главном
Проекты размером 8х10 отличаются удобством и продуманностью с функциональной точки зрения. Они разнообразны по внешнему исполнению и планировочным решениям, а, благодаря компактности, вписываются в небольшие участки и оставляют достаточно места для рационального использования земли.
Популярностью пользуются проекты всех типов: одноэтажные, с мансардой или полноценным вторым этажом. Существуют общие принципы планировки, которые применяются во всех проектах 8 на 10. Вместе с тем, планировочные решения каждого типа имеют свои особенности, которые надо учитывать при выборе.
Стеновые материалы
При выборе стенового материала для строительства дома 6х9 необходимо ориентироваться на такие критерии:
- цена и затраты на возведение;
- теплоизоляционные качества;
- устойчивость к внешним погодным факторам;
- восприимчивость к грибку, плесени, насекомым и грызунам;
- прочность;
- срок эксплуатации;
- вес.
Следует помнить, что данные показатели нужно учитывать в процессе разработки плана строительства.
Пено-, газо- или керамзитоблоки
Пористые блоки становятся все более популярными в малоэтажном жилом строительстве.
К числу достоинств материала относится:
- небольшой удельный вес;
- простота укладки благодаря ровным граням;
- экологическая чистота;
- низкая теплопроводность;
- доступная цена;
- долговечность.
Минусами газобетонных блоков являются их недостаточная прочность и необходимость обустройства гидроизоляционных слоев для защиты от сырости.

Кирпич
Строительство двухэтажного дома 6 на 9 из кирпича является проверенной столетиями технологией.
Пятистенок из этого материала отличается следующими преимуществами:
- высокая прочность стен;
- отличная теплоизоляция;
- полное поглощение шумов;
- презентабельный внешний вид;
- экологическая чистота;
- водонепроницаемость;
- долговечность;
- отсутствие необходимости в дополнительной отделке.
Недостатками кирпичных зданий являются тяжелый вес, требующий мощного фундамента, большие затраты на приобретение материала и возведение кладки.
Монолитный дом
Возведение монолитных домов из железобетона является новым направлением в жилищном строительстве.
Преимущества таких зданий состоят в следующем:
- высокая прочность;
- сейсмическая устойчивость;
- отсутствие усадки;
- водонепроницаемость;
- экологическая безопасность;
- длительный срок службы;
- равномерное распределение давления на грунт.

Бревно или брус
В строениях из натуральной древесины поддерживается комфортная для людей влажность и температура, дома из бруса 6х9 отлично вписываются в любой ландшафт.
Преимущества материала:
- экологическая чистота;
- приятный внешний вид;
- простота обработки и строительства;
- низкая теплопроводность;
- поглощение внешних шумов.
При проектировании строительства следует отдавать предпочтению клееному профилированному брусу. В отличие от бревна этот материал образует герметичные стыки, не дает усадку и не трескается.
Каркасная технология
Строительство зданий из каркасов становится все популярнее благодаря постоянному усовершенствованию технологии сборки и качества используемых наполнителей.
Основные особенности каркасных строений:
- презентабельность;
- быстрота и простота строительства;
- легкость материала;
- низкая теплопроводность;
- звукопоглощение;
- небольшой вес;
- возможность сборки в любое время года;
- долговечность.
Существуют сложности в обслуживании каркасов. Их необходимо регулярно обрабатывать антисептиками и гидрофобными средствами
Планировка домов с размерами 9 на 9 метров
Планировка дач с размерами 9 на 9 м мало чем отличается от предыдущего варианта, но увеличение площади дает гораздо большие возможностей для архитектора и грамотного планирования комнат.
В одноэтажном загородном доме при размерах 9х9 м уже получается полноценных четыре комнаты с прихожей и тамбуром, при двухэтажном варианте получается 7 жилых комнат.
Если дом с размерами 9х9 м одноэтажный, в нем обычно размещают:
- коридор;
- гостиная;
- спальня;
- небольшая детская;
- кухня;
- и раздельный санузел с ванной.
При проектировании двухэтажной дачи 9х9 м есть возможность расширить кухню и сделать большую кухню-столовую, продумать расстановку оборудования, чтобы поместить большой обеденный стол для семейного застолья.
Или спроектировать отдельную столовую, а кухню по планировке оставить небольшую, но хорошо продумать расстановку оборудования для приготовления и хранения продуктов.
Проектируя дачный дом с размерами 9х9 на первом этаже допускается спланировать широкий коридор со встроенными шкафами, а также сделать дополнительное подсобное помещение для хранения продуктов или техническое помещение для котла, бойлера и прочего оборудования.
Можно также распланировать небольшую комнату для гостей, а детскую разместить рядом со спальней родителей на втором этаже.
Ванную и санузел желательно разделить, увеличить площадь ванной или запроектировать небольшую сауну. На втором этаже также логично разместить:
- кабинет;
- спальню;
- детскую;
- и небольшой коридор.
Конечно, второй этаж значительно увеличивает площадь и количество помещений в частном доме, но следует также учесть, что для второго этажа необходима лестница, а она занимает приличную площадь.
По планировке ее можно разместить как в центральной части дачи, так и возле одной из наружных стен с естественным освещением. Лестница может быть с двумя или тремя маршами, винтовая, может быть открытая для обозрения или находится в отдельном помещении.
Делаем план дома с мансардой
Планировка дома 6 на 9 с мансардой относится к эконом — классу жилого пространства. Габариты помещения позволяют расположить просторную гостиную, санузел, ванную и уютную кухню.
Мансарда в данном случае будет выступать в качестве крыльца. Здесь можно обустроить пространство при помощи плетеной садовой мебели.
После крыльца можно расположить просторную кухню гостиную. Площадь данного помещения будет составлять около 25 кв.м.
Рядом с ней можно обустроить небольшой совмещенный санузел. Данная мера позволит сохранить максимальное количество свободного места.
Оставшуюся площадь можно использовать для обустройства спальной зоны. Как правило, здесь будет располагаться просторная двуспальная кровать и вместительная система хранения.
Стеновые материалы
При выборе стенового материала для строительства дома 6х9 необходимо ориентироваться на такие критерии:
- цена и затраты на возведение;
- теплоизоляционные качества;
- устойчивость к внешним погодным факторам;
- восприимчивость к грибку, плесени, насекомым и грызунам;
- прочность;
- срок эксплуатации;
- вес.
Следует помнить, что данные показатели нужно учитывать в процессе разработки плана строительства.
Пено-, газо- или керамзитоблоки
Пористые блоки становятся все более популярными в малоэтажном жилом строительстве.
К числу достоинств материала относится:
- небольшой удельный вес;
- простота укладки благодаря ровным граням;
- экологическая чистота;
- низкая теплопроводность;
- доступная цена;
- долговечность.
Минусами газобетонных блоков являются их недостаточная прочность и необходимость обустройства гидроизоляционных слоев для защиты от сырости.
Кирпич
Строительство двухэтажного дома 6 на 9 из кирпича является проверенной столетиями технологией.
Пятистенок из этого материала отличается следующими преимуществами:
- высокая прочность стен;
- отличная теплоизоляция;
- полное поглощение шумов;
- презентабельный внешний вид;
- экологическая чистота;
- водонепроницаемость;
- долговечность;
- отсутствие необходимости в дополнительной отделке.
Недостатками кирпичных зданий являются тяжелый вес, требующий мощного фундамента, большие затраты на приобретение материала и возведение кладки.
Монолитный дом
Возведение монолитных домов из железобетона является новым направлением в жилищном строительстве.
Преимущества таких зданий состоят в следующем:
- высокая прочность;
- сейсмическая устойчивость;
- отсутствие усадки;
- водонепроницаемость;
- экологическая безопасность;
- длительный срок службы;
- равномерное распределение давления на грунт.
Бревно или брус
В строениях из натуральной древесины поддерживается комфортная для людей влажность и температура, дома из бруса 6х9 отлично вписываются в любой ландшафт.
Преимущества материала:
- экологическая чистота;
- приятный внешний вид;
- простота обработки и строительства;
- низкая теплопроводность;
- поглощение внешних шумов.
При проектировании строительства следует отдавать предпочтению клееному профилированному брусу. В отличие от бревна этот материал образует герметичные стыки, не дает усадку и не трескается.
Каркасная технология
Строительство зданий из каркасов становится все популярнее благодаря постоянному усовершенствованию технологии сборки и качества используемых наполнителей.
Основные особенности каркасных строений:
- презентабельность;
- быстрота и простота строительства;
- легкость материала;
- низкая теплопроводность;
- звукопоглощение;
- небольшой вес;
- возможность сборки в любое время года;
- долговечность.
Существуют сложности в обслуживании каркасов. Их необходимо регулярно обрабатывать антисептиками и гидрофобными средствами
Планировка второго этажа
Классическая планировка двухэтажного дома презентует верхнюю часть постройки как зону семейного отдыха. Традиционно здесь располагаются спальные комнаты, детские, общий большой санузел с ванной, и небольшой отдельный санузел в спальне родителей. Если размеры дома позволяют, то на втором этаже может расположиться семейная комната – аналог гостиной, но только для домашних. Здесь же обустраивают гардеробную комнату.
Если дом с гаражом, то над этим помещением лучше не располагать спальни и детские комнаты. Проект лучше составить таким образом, чтобы над гаражом расположилась лестничное пространство, зона хранения вещей или гардеробная.
Варианты сочетания помещений
Коридоров на втором этаже также лучше избегать. Самый частый вариант – это небольшой свободный пяточек перед лестницей, на который выходят двери всех комнат.
Вариант планировки второго этажа коттеджа 10х10
Реже – это общая проходная комната, из которой можно уже попасть в спальню или детскую. Воплощать такой вариант имеет смысл, если площадь дома откровенно немаленькая.
Небольшие двухэтажные дома могут иметь только один санузел на первом этаже, в этом случае все пространство второго этажа занимают спальные комнаты домочадцев.
Комната родителей может быть смежной с небольшой соседней комнатой. Этот вариант актуален тогда, когда в доме есть маленький ребенок. Смежная комната превращается в детскую. Ее удобно использовать с рождения и до 3-4 лет. Затем ребенка переводят в собственную детскую.
Смежные комнаты могут присутствовать и в каждой спальне.
Планировка мансардного этажа дома 6х9
В этом случае в них оборудуются отдельные гардеробные для каждого члена семьи. Если потребности в таком количестве места для хранения вещей нет, или иметь отдельную гардеробную каждому члену семьи не позволяет площадь дома, то можно ограничиться одной общей комнатой, разделенной на сектора по количеству домочадцев.
Занимаясь планировкой двухэтажного дома нужно понимать, что большую часть времени вы будете проводить на первом этаже. Гостиная превратится в общую комнату, залу, детскую и рабочий кабинет одновременно. Подниматься на второй этаж все члены семьи будут только для сна. Поэтому общие общее пространство нужно постараться сделать максимально комфортным и просторным, чтобы удобно было всем членам семьи, а для спален можно выделить небольшие комнаты, превратив их в уютное личное пространство каждого члена семьи.
Пятистенка и ее особенности
На сегодняшний день многие специалисты считают это одним из оптимальных решений во время строительства небольшого дома, коттеджа или дачи. Речь идет о стандартном четырехугольнике, который разрезан дополнительной пятой стеной, откуда и походит название.
К преимуществам строения можно отнести следующее:
- В первую очередь благодаря дополнительной несущей стене прочность конструкции увеличивается, что положительно влияет на срок эксплуатации. Для проекта дома из бревна площадью 6х9 м подходит вариант с полуторным этажом и мансардой.
- Еще в давнее время пятистенки считались одними из самых теплых, и это не изменилось. Увеличить энергосберегающие характеристики конструкции позволяет печь, которая размещается в «перерубе».
- Если говорить о стоимости, лучше меньше заплатить за короткие бревна, из которых монтируется пятая стена, чем заказывать материал нестандартных размеров.
Конечно, нельзя не сказать о недостатках такого типа конструкции:
Пятая стена является дополнительным соединением, поэтому необходимо будет уделить особое внимание заделыванию щелей, применять герметики и утеплители.
Если говорить о двухэтажном доме, либо строении с мансардой, то с установкой лестницы могут возникнуть определенные проблемы. Но, если вы обратились за помощью к квалифицированным специалистам, все эти трудности легко решаются.
Заключение
Жилье из бруса 6 на 9 – это хороший вариант для владельцев загородных участков. Там вы отдохнете от городской суеты, уйдете с головой в мир природы, тишины, покоя, гармонии с собой.
Одним из самых популярных вариантов в загородном домостроении это одноэтажный дом с мансардой или двухэтажный 6 на 9 из оцилиндрованных бревен или бруса. Древесина для бруса используется недорогая сосна или северная ель. Материал считается теплозащитным, он обеспечивает надежность и устойчивость несущих стен. С его помощью улучшается внутренняя отделка, создается благоприятный микроклимат и улучшается воздухообмен в помещении.
Монтаж бруса отличается простотой и проводится на специально подготовленном фундаменте (чаще всего на опорно-столбчатом). Деревянный брус позволяет использовать все проекты от типовых до сугубо индивидуальных. Материал делает такие дома настоящими произведениями искусства. Именно поэтому большое количество владельцев небольших загородных участков, выбирают проекты домов из бруса 6х9 для постоянного проживания. Кроме того, такие строения позволяют сэкономить на материалах.























































