Проекты и планировка дома 4х6

Деревянный дом 4х6 с мансардным этажом и балкономИсточник dom-steny.ru

Форменная крыша дома позволит увеличить пространство верхней комнатыИсточник dom-steny.ru

Планировка дачного дома 6х4 с мансардой и верандойИсточник dom-steny.ru

С виду однотипные дома можно слегка преобразитьИсточник dan-stroi.ru

Терраса с колоннами и не стандартная крыша делают маленький дом презентабельнымИсточник dom-steny.ru

Планировка комнат: зал студия на первом этаже и спальня на второмИсточник vizada.ru

Домик на даче может быть и таким: один этаж и 2-3 небольшие комнатыИсточник domnomore.com
Что необходимо учитывать при составлении схемы дома
Уже на этапе составления эскиза нужно четко определиться с количеством этажей, типом кровли, внешним видом фасада и фронтальных частей дома, вплоть до количества окон, балконов, наличия террасы или мансарды. Эскизный проект также предполагает наброски вида здания в продольном и поперечном разрезах, где указываются особенности конструкции и материалы, из которых предполагается возводить дом.
Пример чертежа одноэтажного дома из кирпича с мансардным этажом.На заметку! Опытные проектировщики не советуют делать очень просторными спальные комнаты, так как большие помещения могут способствовать формированию чувства тревоги у их обитателей. Поэтому спальни должны быть компактными и уютными.
Перед тем как нарисовать план дома, необходимо определиться с расположением участка и изучить ориентацию относительно сторон света. Исходя из этих данных, определяется месторасположение комнат. Их количество зависит от того, сколько людей будет жить в здании и как часто будут приезжать гости на длительное время. Размещение помещений и функциональное предназначение каждого из них также является важным элементом.
Проекты дачных домов: описание конструктивных особенностей (прочитать подробнее)
Далее требуется определить, какие конкретно комнаты будут отведены членам семьи, а какие – гостям и работникам, если предполагается формирование определенного штата. Не следует забывать о планировке помещений, в которых будет собираться вся семья, – это столовая, зал или гостиная.
Важно учесть предпочтения и увлечения обитателей дома, чтобы выяснить необходимость включения в планировку тренажерного зала, бассейна или сауны, зимнего сада либо оранжереи, библиотеки с кабинетом или просторной мастерской. При составление эскизного проекта дома нужно учитывать все пожелания будущих жильцов
При составление эскизного проекта дома нужно учитывать все пожелания будущих жильцов.
Дома 6х8 по каркасной технологии
Каркасные дома 6х8 возводятся довольно быстро, обычно срок не превышает 1,5-2 месяца. Могут использоваться как для временного проживания, так и на постоянной основе.
Постройка каркасных домов имеет некоторые особенности, которые учитываются в процессе работы. Основой дома является легкий деревянный каркас, в большинстве случаев материалом отделки выступает сайдинг или вагонка.
Строительство выполняется в несколько этапов:
- разработка проекта;
- выбор строительных материалов, покупка и транспортировка;
- заливка фундамента;
- строительство стен, перекрытий, чернового пола;
- выполнение кровельных работ;
- вставка окон и дверей;
- отделка.
Видео описание
Как выглядит каркасный дом, выстроенный «под ключ» – смотрите на видео:
https://youtube.com/watch?v=4V_cw04KfH0
Каркасные дома считаются не только теплыми, но и надежными, функциональными и долговечными. Единственным явным недостатком является необходимость отделки, но большое разнообразие облицовочных материалов позволит превратить дом в красивую и современную постройку.

Строительство каркасного домаИсточник giropark.ru
Варианты наружного оформления дома 6х8
Для каркасных и деревянных домов 6х8 можно применять любой вид наружной отделки. Чаще всего используются следующие материалы:
- вагонка;
- облицовочный кирпич;
- виниловый сайдинг;
- декоративные штукатурки.
Также в качестве облицовки подойдет блок-хаус, имитация бруса, термопанели, искусственный камень и ЦСП, покрытая крошкой. Фасадные работы стоит проводить не только с эстетической точки зрения, но и для сохранения и увеличения срока службы строений.

Отделка стен дома вагонкой
Заключение
При правильной планировке дом 6х8 м может быть очень удобным и вместительным, а грамотно реализованные идеи оформления мансарды сделают его гораздо уютнее. Стандартный план дома 6 на 8 включает в себя гостиную, кухню и санузел – на первом этаже, и две спальни – на втором или в мансарде. Такой дом станет отличным вариантом для комфортного проживания семьи из 2-5 человек.
Рациональная организация пространства дома 10х12
Так как дом 10х12 предназначен для жизни людей, необходимо приложить все усилия для того, чтобы организация пространства была удобной и комфортной. Человек не должен, при выполнении повседневных дел, тратить много времени на переход из одного помещения в другое. Так, например, спуск в подвал, а именно в погреб, лучше всего организовать из помещения кухни или в непосредственной близости к нему, а вход в санузел лучше всего делать из коридора или холла на первом этаже. Если планировка дома 10 на 12 в двухэтажном варианте подразумевает большое количество комнат на верхнем этаже, то санузел следует устроить и там.

Пример зонирования площади дома 10х12Источник bankfs.ru
Очень простая, но при этом очень удобная планировка одноэтажного дома 10х12. Просторная гостиная позволит удобно разместить не только всех членов семьи, но и гостей приходящих в дом. Рядом с гостиной расположена кухня-столовая и холл, образуя совместно дневную зону. Личная зона, состоящая из двух спален, находится в уединенном месте в непосредственной близости к санузлу. Данный пример подразумевает расположение всех хозяйственных и бытовых помещений на цокольном этаже вдали от жилых комнат.
Видео описание
Обзор дома из бруса в финском стиле 10 на 12 смотрите в видео:
Новые решения в планировании пространства
Одним из новых решений при планировке помещений является их совмещение в зависимости от назначения. Так чаще всего совмещают кухню, столовую и гостиную, а так же санузел с ванной комнатой. Это позволяет расширить площадь помещения, избежать стесненности условий и при этом сделать быт более комфортным и удобным. Так для того чтобы приготовить есть, хозяйке не нужно находиться одной на кухне, так как члены семьи смогут быть с ней рядом в гостиной. Уборка в совмещенном санузле будет выполнена намного быстрее и проще так все сантехнические приборы, которые нуждаются в постоянной тщательной очистке, находятся рядом друг с другом.

Современная планировка – общие помещения на первом этаже, а на второй выносятся спальни и дополнительные санузлыИсточник josri.ru
Советы для поддержания гармонии и стиля в интерьере
Правильное зонирование и планировка помещений хоть и является очень важным моментом, но не единственным влияющим на комфорт проживания в доме. Так же существенную роль играет интерьер всех помещений, который разрабатывается в дизайн проекте с учетом всех пожеланий хозяев. Все, что наполняет частный дом, должно гармонично сочетаться между собой и не вызывать чувства дискомфорта. Для того чтобы добиться этого, следует придерживаться нескольких правил, а именно:
- внутренняя отделка всех помещение должна быть выполнена в едином стиле, с использованием различных цветов и элементов декора. Значительные площади помещений позволяют использовать и яркие и темные цвета, которые зрительно могут сделать помещения меньше. Не допустить этого помогут современные способы и отделочные материалы, к числу которых относится глянцевые натяжные потолки, наливные полы и многое другое, создающее в помещении зеркальный блеск, визуально расширяющий пространство;
- возможность использования различных архитектурных элементов, таких как колоны, лепнина или камин. Каждый из этих элементов можно расположить в разных помещениях но сделать в едином стиле, что сделает внутреннюю обстановку гармоничной, уютной и красивой;
- использование мебели из одной коллекции;
- устройство многоуровневого освещения.
Видео описание
Несколько архитектурных проектов одноэтажных домов смотрите в видео:

Двухэтажный дом 10х12 с балконом и открытой террасойИсточник catalog-plans.ru

Дом 10х12 с мансардным этажомИсточник sitysun.ru

Одноэтажный дом 10х12Источник kreddo.ru

Дом 10х12 с мансардой, балконом и гаражом в цокольном этажеИсточник pinterest.ie

Увеличение площади дома 10х12 за счет устройства односкатной кровлиИсточник houzz.com

Устройство дополнительный помещений в доме 10х12 с плоской кровлейИсточник en.decorexpro.com

Устройство открытой площадки на плоской крыше дома 10х12Источник cistudents.org

Одноэтажный дом 10х12 с гаражомИсточник pinterest.com

Дом 10х12 с мансардным этажом, балконом и верандойИсточник bankfs.ru

Одноэтажный дом 10х12 с эркерамиИсточник yandex.uz
Заключение
Планировки домов 10х12 достаточно просторные, чтобы в таком доме комфортно себя чувствовали не только все члены семьи, но и гости, для которых всегда найдется место, как для отдыха, так и для развлечений. Если по каким-либо причинам требуется выбрать проект чуть меньшего размера, например, план дома 10 на 10. то основные принципы планировки остаются неизменными.
Планировка квадратного двухэтажного дома 6 на 6
Классическая планировка первого этажа
На первом этаже расположена активная зона. Сразу из прихожей есть доступ к санузлу и лестнице на второй уровень. Кухня, столовая и гостиная расположены в одном помещении, перегородок между ними нет, что позволило создать ощущение большего пространства, чем есть на самом деле. Разделение же зон друг от друга сделано посредством мебели, на плане четко видны границы каждой из функциональных зон. Кухня расположена наиболее близко к прихожей и санузлу
Это позволило обеспечить быстрый доступ к кухне с входа, что очень важно, поскольку пройти на кухню, расположенную на другом конце дома, с пакетами занятие не из приятных
план первого этажа дома 6х6
Кроме того, соседство с санузлом позволило уменьшить число мокрых точек в доме до минимума, для кухни и санузла используются те же коммуникации. Лестница в подвал отделена от гостиной и находится в зоне прихожей.
У такого решения как свои плюсы, так и минусы. Плюсы в том, что в гостиной создается уединенная атмосфера, которой не мешает движение по лестнице, минус же в том, что лестница может стать основой для организации интерьера, или же сильным акцентом.
Правильно распределяем площадь первого этажа
Теперь вторая фаза – планировка первого этажа. Это значительно сложнее, так как вместить сюда нужно значительно больше помещений. Обычно это кухня, гостиная, санузел, тамбур и небольшая спальня. В некоторых случаях приходится выделить ещё небольшое помещение, чтобы расположить котельную, если ваш дом имеет автономную систему отопления, а не подключен к теплоцентрали.

План первого этажа двухэтажного дома 6х6 с мансардой
Санузел рекомендуется делать небольшой, лучше совмещенный – таким образом, вы выиграете дополнительную свободную площадь. Площадь санузла обычно колеблется от 2,5 до 3 квадратных метров. Этого вполне достаточно, чтобы разместить здесь унитаз раковину и ванную или же душевую кабину. Также не стоит выделять большую площадь под тамбур – достаточно 1-1,5 квадратного метра. Площадь прихожей должна быть не больше 2-2,5 квадратного метра. Этого хватит, чтобы с комфортом снять или надеть верхнюю одежду и обувь, но в то же время не придется тратить слишком много полезной площади на не самые важные помещения.
А вот на плане кухне экономить не следует. Желательно выделить под неё не меньше 8-10 квадратных метров. Тогда вы сможете использовать помещение не только как кухню, но и как столовую. В результате у вас остается около 19-22 квадратных метров. Обычно эту площадь делят на два помещения – просторную гостиную и небольшую спальню, которая также может выполнять функции комнаты для гостей или же детской.

Планировка первого этажа с объединенными помещениями
Желательно, чтобы окна этой комнаты выходили на солнечную сторону: если со временем здесь поселятся дети, то очень важно, чтобы комната получала достаточно естественного освещения
Примеры домов 10х12 на фото и видео
Видео описание
Несколько архитектурных проектов одноэтажных домов смотрите в видео:

Двухэтажный дом 10х12 с балконом и открытой террасойИсточник catalog-plans.ru

Дом 10х12 с мансардным этажомИсточник sitysun.ru

Одноэтажный дом 10х12Источник kreddo.ru

Дом 10х12 с мансардой, балконом и гаражом в цокольном этажеИсточник pinterest.ie

Увеличение площади дома 10х12 за счет устройства односкатной кровлиИсточник houzz.com

Устройство дополнительный помещений в доме 10х12 с плоской кровлейИсточник en.decorexpro.com

Устройство открытой площадки на плоской крыше дома 10х12Источник cistudents.org

Одноэтажный дом 10х12 с гаражомИсточник pinterest.com

Дом 10х12 с мансардным этажом, балконом и верандойИсточник bankfs.ru

Одноэтажный дом 10х12 с эркерамиИсточник yandex.uz
Заключение
Планировки домов 10х12 достаточно просторные, чтобы в таком доме комфортно себя чувствовали не только все члены семьи, но и гости, для которых всегда найдется место, как для отдыха, так и для развлечений. Если по каким-либо причинам требуется выбрать проект чуть меньшего размера, например, план дома 10 на 10. то основные принципы планировки остаются неизменными.
Коротко о главном
Проекты размером 8х10 отличаются удобством и продуманностью с функциональной точки зрения. Они разнообразны по внешнему исполнению и планировочным решениям, а, благодаря компактности, вписываются в небольшие участки и оставляют достаточно места для рационального использования земли.
Популярностью пользуются проекты всех типов: одноэтажные, с мансардой или полноценным вторым этажом. Существуют общие принципы планировки, которые применяются во всех проектах 8 на 10. Вместе с тем, планировочные решения каждого типа имеют свои особенности, которые надо учитывать при выборе.
Идеи планировки двухэтажного дома
Определить конструкторские решения будущего коттеджа с первого раза удаётся не всегда. В большинстве случаев на это уходит много времени, так как разработка планировки двухэтажного дома имеет много особенностей, которые должны учитываться с предпочтениями каждого проживающего. Сделать это можно самостоятельно или обратиться к услугам специалистов. В качестве примера представляем несколько оригинальных идей.
Проект № 1
- Общая площадь: 170,7 м2.
- Жилая площадь: 70 м2.
- Площадь первого этажа: 92 м».
- Площадь второго этажа: 17,7 м2.
- Размер дома: 9,9*15,5 м.

Проект двухэтажного дома площадью более 150 м2Источник innstroy.ru
Лаконичный коттедж эконом-класса, укомплектованный всем необходимым для комфортного проживания семьи из четырёх человек. Планировка первого этажа показывает наличие просторной гостиной, расположенной в заднем крыле дома. Помещение объединено с кухонной рабочей зоной и столовой. Строгая прямоугольная форма станет причиной зонирования большого зала на несколько частей. Делать это придётся внутренними элементами отделки (обоями, кафелем, мебелью). Небольшое пространство совмещённого санузла (4,4 м2) станет проблемой для монтажа ванной. Владелец будет вынужден решать между душевой кабинкой или уголком.
Проблема первого этажа решается благодаря увеличившемуся санузлу на втором. На 5,8 м2 уже удастся разместить небольшую ванную и остальную сантехнику. Оригинальным может показаться решение второго кабинета с аналогичными характеристиками. Вы скажете, – «Для чего на втором этаже 2 туалета!». Ответ очевиден – дети. Они растут по одному принципу: захотел один, побежал и второй. Поэтому на данном примере планировки эта проблема устранена.
3 спальни могут использоваться для членов семьи, оставшаяся внизу – в качестве гостевой. Бросающимся в глаза недостатком является отсутствие кладовой или гардеробной.
Проект № 2

Проект двухэтажного дома площадью более 150 м2Источник www.faulaconstruction.com

Проект первого этажа дома площадью более 200 м2Источник drevkostroy.ru
- Общая площадь: 236,38 м2.
- Жилая площадь:212,69 м2.
- Площадь первого этажа: 141,4 м2.
- Площадь второго этажа: 95,3 м2.
Оригинальный, а самое главное – стильный и современный дом, относящийся к стилю хай-тек. Огромные, во всю стену, панорамные окна, зал для занятия тяжёлой атлетикой или фитнесом на первом этаже. Преимущества планировки двухэтажного дома в следующем:
- Наличие просторной общей зоны, образованной объединением гостиной, столовой и кухни.
- Дополнение первого этажа спортзалом.
- Классная веранда на втором.
- Сближающие с природой панорамные окна, через которые отлично просматривается ухоженный ландшафт участка.
- Отдельный вход в санузел из главной спальной второго этажа.
Такая планировка нацелена на людей, предпочитающих современный стиль, спортивный образ жизни и не принимающих старую добрую классику.
Проект № 3

Проект двухэтажного дома площадью более 250 м2Источник demo2.sbsite.ru
- Общая площадь: 287,8 м2.
- Жилая площадь: 95 м2.
- Площадь первого этажа: 118,7 м2.
- Площадь второго этажа: 111 м2.
Дом в классическом стиле с отдельной котельной, поделённой кухней, раздельным санузлом, большой террасой и спальней на первом этаже. Последнюю, при необходимости, можно использовать как гостевую. Благодаря наличию всего этого, планировка предстаёт в индивидуальном стиле и подойдёт для утончённых, любящих оригинальность людей.
Уникальность и отличие заканчиваются после подъёма по лестнице. Второй этаж коттеджа предстаёт в стандартном виде:
- Несколько спален.
- Санузел.
- Гардеробная.
Проект № 4

Проект двухэтажного дома площадью 182 м2Источник myhome.nifty.com
- Общая площадь: 182,1 м2.
- Жилая площадь: 53 м2.
- Площадь первого этажа: 95,9 м2.
- Площадь второго этажа: 87,2 м2.
Дом со вторым этажом мансардного типа, построенный в стиле шале. Планировка просторного первого этажа полностью отдана под так называемые нежилые помещения и гостиную, площадью 26,78 м2. На входе гостей встречает небольшая прихожая с дверью в кладовую, чуть дальше санузел и рабочий кабинет главы семейства. В отсутствии необходимости такого помещения допускается перепланировка под другие цели, например, детская игровая комната, просторная гардеробная или что-то иное.
Хотя кухня и гостиная размещены в одном большом зале, разделение происходит благодаря зонированию внутренней отделкой и небольшому «притоплению» в заднее крыло дома. Здесь же выход на террасу.
Второй этаж дома спроектирован по классическому принципу: 3 спальни, коридор с лестницей в центре и просторный санузел.
Оптимальные размеры двухэтажного дома
Оптимальным минимальным пятном застройки считается прямоугольник 7х8 метров или квадрат 8х8.

Проект двухэтажного коттеджа 8х8 с террасой и балконом
Именно такие размеры позволяют построить небольшой дачный дом, где будут рационально расположены комнаты, удобно встанет полноценная лестница, а не чердачка, а также останется место не только для кухни, гостиной и хозяйских спален наверху, но и гостям будет, где разместиться.
При меньшем основании строение также может существовать, но тогда планировка двухэтажного дома будет неудобной и нефункциональной. Гостиная превратится в проходную комнату, большую часть полезной площади съест лестница, а наверху, при условии, что строиться будет не полноценный этаж, а мансардный, поместится только одна спальня.

площади дома до 200 квадратных метров
Особенности самостоятельного проектирования
Проектирование и расчёт лестницы второго этажа загородного дом своими руками – сложная, на всё же выполнимая процедура. Для этого достаточно иметь базовые школьные знания геометрии или уметь работать со специальными программами.
Грамотная планировка начинается с учёта особенностей расположения комнат прилегающих этажей. Это условие оказывает основное влияние на выбор места, где она будет установлена
Обратите внимание, что важен не только нижний этаж, но и верхний
В обоих местах важно создать максимально удобные условия для последующей эксплуатации
Занимаясь самостоятельными расчётами и планировкой лестницы, обратите внимание на:
- Высоту от первого до второго этажа.
- Общую площадь обоих этажей.
- Расположение несущих стен и перегородок.
- Расположение окон и дверей.
Таким образом вы получите свободную площадь, которую можно использовать для расположения лестницы. Выполнив все действия и получив искомые результаты, можно приступать к выбору конкретной модели и определятьсяс её габаритами.
Лестница частного дома – это не только главный составляющий элемент с важным функциональным значением, но и фрагмент интерьера помещения. Разнообразие вариантов исполнения, облицовки, материалов, используемых для обустройства – всё это играет важную роль во внутреннем убранстве. Своим видом оказывает влияние на уют и удобство. Процесс самостоятельного проектирования займёт много времени, в результате чего вы создадите качественную и надёжную конструкцию.
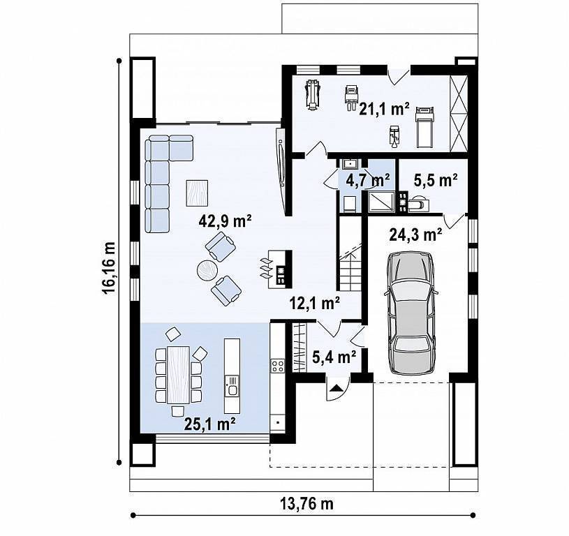
Планировка первого этажа
Чертежи первого этажа двухэтажного дома должны содержать все необходимые помещения для жизни. Среди обязательных:
- Кухня;
- Гостиная;
- Прихожая, она же холл;
- Гостевой санузел;
- Бойлерная;
- Тамбур.
Если позволяет площадь первого этажа, то также здесь могут присутствовать:
- Рабочий кабинет;
- Столовая;
- Гостевая комната.
В том случае, если двухэтажный дом проектируется с гаражом, то гараж. Он входит в общий план первого этажа, располагается под одной крышей и имеет отдельный вход в дом. Как правило, попасть в гараж можно двумя способами: непосредственно из дома и из прихожей, и через главную входную дверь, если заходить через ворота.
Внутренняя планировка может считаться удачной в том случае, если получилось объединить все помещения и избежать появления длинных и узких коридоров. В частном доме коридоры – это неэффективное и бесполезное пространство.

Планировка первого этажа дома из бруса
Редкие проекты с большими коридорными площадями бывают удачными.
Варианты сочетания помещений
Если площадь первого этажа небольшая, то лучше отказаться от множества перегородок и сохранить максимум свободного пространства. Этого можно добиться с помощью студийной планировки. В этом случае кухня, столовая, гостиная и холл представляют собой единое помещение, разделенное на функциональные зоны лишь визуально.
Именно это общее пространство будет выполнять функцию коридора. Именно отсюда можно будет попасть в санузел, гостевую комнату или кабинет, если чертежи их предусматривают их наличие, и конечно на второй этаж. Расположение лестницы в интерьере – незаменимый атрибут двухэтажного дома. Ее можно использовать как естественный разграничитель пространства. Намного реже в качестве проходного помещения используют кухню.

3D планировка и дизайн этажа с совмещенной кухней и столовой
В этом варианте планировки используется островной вариант организации рабочего пространства с обязательной барной стойкой. В зависимости от формы помещения, барная стойка может быть выполнена в форме полукруга, треугольника или быть произвольных очертаний. Но все же это больше западная модель, чем привычная для нас.
Классическую планировку, когда каждая комната имеет свои четкие границы, имеет смысл воплощать тогда, когда площадь комнат немаленькая. И в случае монтажа внутренних перегородок не создастся впечатление замкнутого пространства и клетки. В этом случае кухню можно сделать просторнее и совместить со столовой. Гостиная остается самостоятельным помещением, а прихожая превращается в просторный холл, дополненный лестничным проемом и двумя входными дверями, позволяющими спокойно перемещаться между домом и гаражом, домом и улицей.

Вариант планировки двухэтажного дома 6х6

























































