Провести в дом воду – с чего начать?
Подключение воды в частный дом от рядом идущего магистрального водопровода процедура достаточно не быстрая и не простая. Перед тем как вода потечет из вашего крана потребуется провести целый ряд изысканий, составить план и получить его одобрение в соответствующих инстанциях. Однако именно подключение дома к общему магистральному водопроводу является отличной альтернативой различным автономным источникам воды. Хотя перед началом процедуры согласования все же необходимо выяснить состояние системы и напор воды в ней, ведь может статься, что затратив много денег и усилий для подключения к центральному водопроводу, потом все равно придется бурить скважину. А это совсем другая история.
Итак, подключение воды в дом происходит в несколько этапов. Все эти этапы необходимо проходить последовательно, иначе придется начинать все с самого начала. Ниже вы найдете подробную инструкцию о каждом из них и узнаете как провести в дом воду, затратив минимум усилий и финансов.
Что нужно знать о коллекторах?
Подобная конструкция обеспечивает равномерную подачу жидкости к нескольким одновременно включенным водоразборным приборам с соблюдением требуемого давления. При подборе оборудования следует помнить, что существуют коллекторы для распределения холодной и горячей воды.
Для изготовления корпуса устройства используется латунь или нержавеющая сталь, встречаются устройства из ударопрочного пластика, выдерживающего нагрев до температур более 100°С. Металлические изделия крепятся к трубопроводам при помощи резьбовых втулок. Для подсоединения пластиковых трубопроводов применяются коллекторы с компрессионными переходными элементами или со специальными втулками (фитингами), позволяющими припаивать пластмассовые трубы.
При подборе коллектора следует учитывать количество выходов, предназначенных для коммутации внешнего оборудования. В стандартных изделиях предусмотрено до 6 каналов, но производители допускают последовательное соединение 2-3 коллекторных модулей. Для сопряжения на узлах предусмотрены муфты, способ соединения зависит от конструктивных особенностей коллектора. Если коммутация дополнительного блока не требуется, то коллектор закрывается торцевой заглушкой.
Рекомендации покупателю
Основные рекомендации по подбору коллектора:
- Перед покупкой коллектора следует определиться с типом материала водопроводных труб. Рекомендуется использовать изделия из полимеров (например, из сшитого полиэтилена), которые не разрушаются под воздействием воды и не имеют резьбовых соединений.
- В процессе монтажа необходимо предусмотреть установку крана для боковых магистралей. Существуют коллекторные блоки с интегрированными вентилями, монтажнику требуется подключить трубы и сам коллектор к центральному стояку. Следует учитывать, что в случае повреждения механизма запорного устройства потребуется заменить весь коллекторный блок. При использовании изделия из латуни или нержавеющей стали краны устанавливаются отдельно.
- Блок дополнительных приборов устанавливается перед коллектором (например, счетчики, фильтры или обратный клапан).
Важность правильного проектирования
- Схема водопровода в квартире состоит из центральных стояков холодного и горячего водоснабжения и магистралей, ведущих к водоразборным установкам. Дополнительно предусматривается отвод жидкости к бачку для смыва на унитазе. Количество точек раздачи воды зависит от планировки квартиры, в части помещений используется только холодное водоснабжение. В этом случае предусматривается установка газового или электрического нагревателя, от которого отходит магистраль горячего водоснабжения.
- Схема разводки труб водоснабжения в квартире предусматривает подключение стиральной машины, которая устанавливается в ванной комнате, в коридоре или встраивается в кухонный гарнитур. В части помещений предусматривается установка посудомоечной машины, которая располагается на кухне (например, под столешницей гарнитура). Если в ванной комнате предполагается установка душевой кабины, то необходимо провести водопроводные трубы к точке подключения установки.
- В 2-уровневых жилых помещениях или в квартирах с увеличенной площадью могут использоваться несколько санузлов, а в самих помещениях помимо унитаза монтируется биде или малогабаритная раковина для мытья рук. Увеличение числа точек разбора усложняет схему водоснабжения квартиры и повышает нагрузки на магистрали. Часть приборов требует стабильного напора воды, поэтому от грамотного проектирования системы зависит надежность работы водопровода.
- Для изготовления магистралей используются трубы из полипропилена, которые соединяются прямыми и угловыми муфтами. Материал не разрушается под воздействием высоких температур и не ржавеет, что позволяет эксплуатировать водопроводы на протяжении 30-50 лет без ремонта. Проект необходимо начертить на плане квартиры, что позволит точно определить точки вывода труб и рассчитать количество материалов. Одновременно необходимо определиться с материалом трубопроводов, от которого зависит номенклатура соединительных муфт.
Причины замены водопровода
Замена водопровода в доме или квартире — ответственный шаг. Её проводят по разным причинам. Рассмотрим основные из них:
Забивка. Старые коммуникации, как правило, включают в себя стальные трубы, стенки которых не отличаются гладкостью и предрасположены к накапливанию солевых отложений, окалин, песка и т. д. В результате этого, в трубах образуются непроходимые пробки, которые уменьшают пропускную способность системы или полностью закупоривают просвет трубы.
Протечки. К такой проблеме особенно предрасположены трубы шовного типа. Протечку в системе можно устранить, вызвав сварщика, но, как и в предыдущем случае, это решит проблему лишь на время, до появления течи в другом месте.
Неэстетичность. Старые водопроводы из стали обладают довольно неприятным внешним видом: следы ржавления, облупившаяся краска и т. д. Современные металлопластиковые и пластиковые конструкции гораздо более презентабельны и могут вписываться в интерьер помещений, не портя его.

Старые трубы демонтируют не только потому, что они перестают выполнять свои функции, а еще и из-за непривлекательного внешнего вида
Зачем нужно проектирование водоснабжения
Чтобы правильно рассчитать количество материалов, поворотных фитингов и других элементов, необходим подробный проект
Иногда разводку водопровода в квартире выполняют самостоятельно, без предварительных расчетов и чертежей. Однако такой вариант приводит к перерасходу материалов, использованию гораздо больших площадей для установки всех элементов и проблемам в эксплуатации сантехнического и иного оборудования. Ошибки монтажа в дальнейшем требуют частичной либо полной перестройки коммуникаций.
Продуманный проект поможет определиться с типом системы водоснабжения, схемой прокладки коммуникаций. Детальный чертеж позволить рассчитать точное число и стоимость расходных материалов. Заранее производится подбор необходимых инструментов, подготовка помещений и отдельных стен, изучаются особенности и основные правила сборочного процесса.
В зависимости от материала изготовления водопроводных труб происходит подбор специалистов для их монтирования. При установке элементов системы водоснабжения внутри стены требуется большее мастерство и качество монтажных работ.
Ключевые факторы проектирования
Грамотное проектирование и профессиональная реализация технической идеи каждому дают возможность, проживая на лоне природы, пользоваться благами цивилизации.
Одно из ключевых мест среди прочих коммуникационных систем занимает водопровод частного дома. И обустраивать его нужно особенно внимательно.
Залог успеха в достижении данной цели – грамотный проект водоснабжения и канализации частного дома.
Тому, кто не занят в сфере сантехнических работ и практически не имеет дела с сантехникой, проект водоснабжения частного дома может показаться невероятно сложным документом.
Но тому, у кого о проектировании сложились хоть какие-то представления, разобраться в проекте не так уж трудно, хотя и лишь теоретически.
В действительности проектирование загородного водоснабжения процесс трудоемкий.
И в каждом случае он требует соблюдения различных условий, индивидуальных для конкретного участка, жилища, бюджета, требует учета самых разных тонкостей, которые непосредственно влияют на результат работ.
При проектировании водоснабжения загородного дома необходимо:
- правильно выбрать место водоподачи в водопровод;
- исследовать грунт на территории и составить ее топографический план;
- верно рассчитать глубину, на которой залегают грунтовые воды;
- точно рассчитать объем подаваемой и отводимой воды;
- подобрать оборудование, которое подходит по мощности и иным характеристикам.
Не всегда в доме есть возможность обустроить водоснабжение, используя центральную водопроводную и канализационную системы, что в особенности касается загородной местности.
Когда это невозможно или затруднено, следует устанавливать автономную водоснабжающую систему. В ней источником водозабора служит скважина или колодец.
Устанавливать скважину дороже, но ее удобнее эксплуатировать. Да и вода из скважины намного качественнее, чище.
Чтобы организовать такую систему водоснабжения, потребуются трубы для монтажа по всей водоснабжающей, водоотводной системе, насосное оборудование и коллектор, предназначенный для очистки сточных вод.
Вопрос правильного выбора труб нуждается в отдельном рассмотрении.
Ключевые факторы в данном случае – их общая протяженность и зависящий от длины трубопровода диаметр труб.
К использованию рекомендуются изделия диаметром:
- 25 мм, если трубопровод до 30 м в длину;
- 32 мм, если трубопровод по длине более 30 м;
- 22 мм, если длина трубопровода не превышает 10 м.
Проект водоснабжения частного дома от центрального водопровода – особенности
Домовое водоснабжение обустраивается несколькими способами в зависимости от источников воды. Централизованное налаживается лишь при наличии магистрали поблизости от постройки.
К водопроводу дом подключает контрольная организация, в которую домовладелец обращается через соответствующее районное управление.
Здесь ему предоставляется схема водоснабжения строения, включающая в себя данные о месте подсоединения к центральному водопроводу, канализации, о технических характеристиках этого места, о глубине залегания водопроводной системы и диаметре ее составляющих. Также указывается гарантированный водонапор.
У подобной схемы водоснабжения, как показывает практика домовладельцев, есть свои недостатки.
Например, при эксплуатации может скачками падать давление воды или с самого начала быть ниже нормы, не позволяющим системе нормально функционировать.
Жильцы оплачивают водоснабжение и водоотведение каждый месяц, ориентируясь на показания счетчика. Но централизованная система удобна тем, то в случае отключения электричества в строение вода все равно поступает.
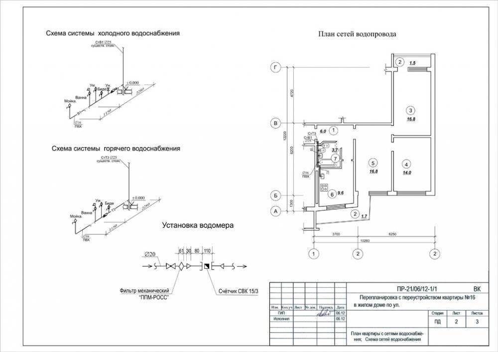
Составление схемы разводки водопровода: что учитывать
Схема прокладки — это проект поступления горячей и холодной воды от центрального стояка к точкам разбора. Количество потребителей у каждого домовладельца разное. Упрощенный вариант включает раковину, умывальник, ванну и унитаз в туалете.
Схема разводки водопровода.
Планировки помещений последних лет предусматривают наличие 2 санузлов, что создает дополнительную нагрузку на систему водоснабжения. Кухня все чаще оборудуется посудомоечной и стиральной машиной, ванная — душевой кабиной с различным уровнем комфорта.
Прокладка может выполняться 2 способами: открытым и закрытым. В случае протечки или поломки прибора найти дефектный участок при скрытой проводке можно по наличию мокрого пятна на поверхности стен, а устранить без схемы разводки будет проблематично. Это одна из ключевых причин, по которой не стоит отказываться от составления исполнительной карты сантехнических работ.
Что для этого нужно знать:
- Материал трубопровода (сталь, пластик, медь, металлопластик).
- Размеры входного патрубка.
- Тип разводки и способы подключения (фитинговый, сварка, пайка и др.).
- Величина рабочего напора на входе в квартиру (понадобится при выборе материала).
- Для полимерных систем — количество соединений.
- Наличие мест пересечения с электропроводкой и возможные способы обхода.
- Точное место установки и тип бытового прибора.
Что сантехники называют точкой
Монтаж водопровода оценивают количеством точек подключения. Причем мнения о значении этого термина у заказчика и сантехника разные.
В широком понимании — это число бытовых приборов плюс запорная арматура. По мнению слесаря, к этому нужно добавить подвод холодной и горячей воды, а также врезку канализации, т. е., чтобы установить умывальник в сметном расчете, необходимо предусмотреть подсоединение 3 точек. Причем сборка самого прибора (корпус) оплачивается отдельно.
Типы трубных разводок
Разводка водопровода в квартире в зависимости от количества приборов может быть выполнена несколькими способами:
- коллекторным;
- тройниковым, или последовательным;
- комбинированным (совмещенным).
Коллекторная схема предусматривает подачу воды через специально оборудованный распределитель. К нему через запорную арматуру подключают каждый из установленных приборов.
Коллекторная схема обеспечивает подачу воды с помощью специального распределителя.
Последовательная проводка осуществляется с помощью общей трубы, проложенной внизу по периметру помещения, а от нее через тройник отдельными сегментами подсоединяют сантехнику.
Комбинированный способ — это когда унитаз и умывальник в туалете подключают последовательно, а ванну, душ, стиральную машину — через коллектор.
Коллекторная разводка
По своей конструкции коллектор — это отрезок трубы, один конец которой подсоединен к стояку, а другой заканчивается шаровым краном для стравливания воздуха. По всей длине прибора установлены запорные краны, которыми в процессе эксплуатации можно выборочно начинать или прекращать поступление воды.
Применение коллекторной разводки позволяет получить следующие преимущества:
- Компактное расположение системы управления подачей.
- Постоянное давление в сети.
- В случае аварийной ситуации возможность отключения только одного прибора.
Тройниковая разводка
Тройниковый способ используют при малом количестве потребителей и открытой схеме прокладки. От стояка через коренной кран подключают трубу, от которой последовательно через отводы подсоединяют сантехническое оборудование.
Тройниковый способ применяется при небольшом количестве потребителей и открытой схеме прокладки.
Преимущества:
- низкая себестоимость;
- простота монтажа и возможность сборки конструкции своими руками;
- компактность в сравнении с коллекторной системой.
Что еще нужно учесть
Помимо схемы и типа разводки, при прокладке водоснабжения необходимо определиться с трубами, из которых будет собрана магистраль. В зависимости от материального потенциала заказчика выбор материала можно осуществить в пользу металлопластиковых или полипропиленовых конструкций.
Оборудование домашнего водопровода из полимерных компонентов позволит избежать высокой трудоемкости и большого количества инструмента, необходимого при работе с металлическими профилями.
Если остановились на пластике, то помимо труб нужно рассчитать и приобрести необходимое количество соединений. Каждый из материалов предусматривает свой способ стыковки секций. Наиболее доступный метод для самостоятельной сборки — это соединение профилей и подключение приборов с помощью фитингов.
Песчаная скважина
Песчаная скважина – это более сложный и трудоемкий по устройству источник водоснабжения. Средств на решение этой задачи потребуется больше, чем при устройстве колодца. Однако воды из песчаной или фильтровой скважины может хватить на нужды потребления воды нескольких домов или других построек. Обычно песчаная скважина бурится на глубину 35 метров и глубже, а добываемый объем воды примерно равен не меньше 1м3/ч. Песчаная скважина бурится по довольно-таки простой технологии и, как правило, не приносит больших затрат владельцу будущего дома.
Качество воды у песчаной скважины выше, чем у воды, добываемой из колодца. Однако это не означает, что вам не придется пользоваться специальными фильтрами. Они понадобятся вам для очистки воды от загрязнения поверхностными водами. Кроме того, не исключено, что вам также потребуются специальные фильтры для обезжелезивания воды. В этом случае о высоком содержании железа будет свидетельствовать характерный рыжеватый цвет воды, получаемой из песочной скважины.
Глубина бурения песочной скважины будет зависеть от:
- глубины расположения водоносного слоя;
- уровня грунтовых вод.
Тройниковый или последовательный способ
Последовательная схема водоснабжения в квартире – это наиболее простой в реализации способ создания системы. Она состоит из общей трубы, к которой последовательно подсоединяют потребителей холодной воды. Аналогично ей параллельно прокладывают трубопровод с горячей водой.
Диаметр основной трубы должен быть больше, чем у остальных частей водопровода, поскольку ей в последовательной схеме отведена функция коллектора. Чтобы подсоединить к ней сантехнику, пользуются тройниками.
Принцип, на котором основано обустройство такой системы, прост, как в плане проектирования, так и в отношении реализации. Данной схемой подключения водопровода в квартире пользуются многие потребители холодной и горячей воды, проживающие в типовых домах, возведенных еще в советские годы.
Проблемы в тройниковой разводке водопровода в квартире появляются при поломке бачка унитаза или крана. Чтобы отремонтировать или выполнить замену сантехники, приходится полностью перекрывать водоподачу от снабжающего стояка. В небольших по площади квартирах их два – отдельно для ХВС и ГВС.
В итоге при возникновении протечки обнаружить проблемное место бывает достаточно сложно. Нередко, чтобы выполнить ремонт водопровода, приходится производить демонтаж фальш-панелей, ломать капитальные стены и т.д. После завершения ремонта водопровода в квартире может потребоваться повторная облицовка помещений.
Несмотря на вышеописанные недостатки последовательной системы водоподачи она по-прежнему остается востребованной и в настоящее время. Тройниковая схема считается оптимальным решением при необходимости спроектировать инженерные коммуникации в небольшой квартире.
Поскольку такое жилье имеет бюджетную стоимость, последовательный монтаж водопровода в квартире позволяет минимизировать затраты на его обустройство. Следует заметить, что в системе небольшой протяженности давление будет достаточно высоким.
Чтобы снизить расходы, как на ее обустройство, так и на эксплуатацию, следует заранее обдумать схему прокладки труб и монтажа тройников, обеспечив свободный доступ к ним. Специалисты рекомендуют не экономить на монтаже водоснабжения в квартире и не использовать дешевые и низкого качества материалы. Работы нужно выполнять максимально правильно, чтобы минимизировать возникновение протечек и вероятность поломки.





































