Что значит купе?
В простонародных частях старинных европейских городов улочки были очень тесными, а тротуары до того узкими, что распахнуть дверцу кареты иногда невозможно было. Из-за этого где-то в XVII в. появились кареты-купе с раздвижными дверцами. Легенда приписывает изобретение купе придворному каретному мастеру Франции Жанто. Но, скорее всего, это только легенда – Жанто славен тем, что изобрел рулевую трапецию, позволившую делать резкие повороты без риска опрокинуться.
Карета-купе – понятие довольно-таки игривое: удаленные от благоустроенных кварталов части города посещали в основном для тайных свиданий. Самое слово «coupe» некоторые лингвисты выводят от «couple» – пара, внебрачная связь; брак – «marriage», отсюда – известный картежникам марьяж, дама с королем одной масти.
Затем раздвижные двери пришлись впору железнодорожникам для вагонов 1-го класса и спальных. А в мебельном деле шкафом-купе считается любой с раздвижными дверями. Так что шкаф-купе – не обязательно встроенный. А встроенный шкаф может быть и не купе.
Этапы создания чертежа шкафа-купе своими руками
Процесс создания будущего рабочего чертежа любой мебели можно условно разделить на четыре части:
- Замер помещения, непосредственного места (ниши, стены, угла), где планируется поставить шкаф-купе.
- Составление примерного эскиза от руки.
- Редактирование эскиза с учетом всех пожеланий к наполнению и технологических моментов.
- Прорисовка подробных чертежей в масштабе для дальнейших расчетов (деталей мебели и комплектующих).
Замеры
Этап определяющий как габариты будущего шкафа-купе, так и его внутреннего наполнения. И это не оспаривается: функционал шкафов прихожих, спален, гостиных, детских, кабинетов и гардеробных в чем-то может и схож, но в основном все-таки различается.
При замерах учитываются все нюансы: наличие подоконников и плинтусов, розеток и выступов – всего того, что так или иначе может помешать установке мебели или ее затруднить.
При встроенных конструкциях в ниши учитывается отклонения стен от вертикали, уклон пола или потолка.
Замеры должны быть предельно точные и качественно проведенные. Если ошибиться в замерах, то самый хороший и грамотный с технической точки зрения проект можно выбросить в мусор.
Составление эскиза
Есть такое понятие, как беспредметный разговор. Когда обсуждается все и сразу, иногда даже серьезно, но сказанное не имеет под собой никакой основы и никуда не прикладывается. Эскиз – это начало работы, это черновой вариант будущего чертежа. Он может быть самым примитивным – не нужно бояться этого.

Но какой эскиз не будет на начальном этапе, он является предметом обсуждения и всех последующих корректировок. На его основе моделируется дизайн внутреннего наполнения, оценивается техническая сторона и возможность реализации.
Редактирование эскиза

Достаточно ли будет полок? А удобно ли вам именно такая глубина и длина полок, расстояние между ними? Замерьте те, чем вы пользуйтесь в данное время. Возможно раскладывать вещи так, как вы привыкли, будет удобней в секциях определенной ширины и высоты.
Достаточно ли места под плечики? Когда вам будут проектировать шкаф-купе в фирме-изготовителе, то обязательно отведут львиную долю внутреннего пространства под вешала с короткой и длинной одеждой. И это логично – пустые ниши уменьшают расходы на реализацию. И мебель будет дешевле, а значит, привлекательней для заказа. В реальности же многие люди мало пользуются плечиками. Например, мужчины, которые не носят наглаженные рубашки и брюки, а отдают предпочтение джинсам и трикотажу. Им явно нужно больше полок, а не вешалок.
Добавим больше ящиков? Выдвижные ящики – это удобно. Все, что невозможно аккуратно разложить по полкам, хорошо хранить именно в выдвижных ящиках. Нижние ниши шкафа-купе также хорошо оснастить выдвижными сетками, полками или корзинами – так они будут функциональнее и удобнее. Но будьте осторожны – раздвижные двери не должны мешать выдвигаться ящику.
Есть ли какие крупногабаритные вещи, которым место именно в этом шкафу? В прихожей замечательно убирается в шкаф-купе коляска-трость, стремянка, лыжи или самокат. А в спальне – гладильная доска и сушилка. При необходимости внутри шкафа можно отвести нишу под хозинвентарь (швабру, пылесос и т.д.), новогоднюю елку и многое другое.
Этапы реставрации
Обновление полированного шкафа проходит по такой схеме: план восстановления, разбор на комплектующие и непосредственный ремонт. Рассмотрим каждый этап.
- Планировка
Прежде чем начать реставрацию, подумайте, какое место в вашем интерьере займёт новый шкаф. Он может сохранить размер и форму, а может стать креативной мебельной стенкой. Любой шкаф можно перепланировать. Когда вы будете оценивать роль шкафа, учтите его прочность, наличие дефектов и способы их устранения. В план работы входит подбор инструментов и порядок разборки. Итак, для восстановления шкафа нужны такие материалы:
- Отвёртки разных видов.
- Молоточек.
- Степлер и канцелярский нож.
Чтобы заменить дефектные составляющие вам пригодится дрель и тонкое сверло. Прочие инструменты подбираются в зависимости от выбранного типа отделки. Обязательно понадобятся заготовки для удаления старых покрытий
- Разбор на комплектующие элементы.
- Реставрация каждой детали.
Тщательно очистите каждый элемент шкафа от старого покрытия и обработайте его грунтовкой. Это нужно для лучшей сцепки частей изделия с краской или клеем. Также шпатлевание поможет устранить сколы и мелкие дефекты поверхности составляющих. Для больших повреждений изготавливается смесь из клея и грунтовки. Всё это зачищается мелкой шлифовальной бумагой, чтобы поверхность была ровной.
На каждом шаге нужно дожидаться завершения предыдущего (высыхание клея, шпатлёвки, краски). Параллельно подготавливают и шлифуют фурнитуру.
- Сборка шкафа
После этих работ можно собирать восстановленный своими руками шкаф. Сборка должна проходить довольно аккуратно, чтобы плод ваших трудов не пошёл насмарку. Не стоит часто использовать молоток, лучше крепить детали степлером или саморезами, где это возможно. В крайнем случае, можно изготовить клеевую смесь.
Прежде чем начать работу, требуется визуально оценить ее. Осмотрев старый шкаф, сразу станет ясно, какие детали требуют реставрации, а что можно оставить в первозданном виде.
Теперь приступают к очистке деталей. Данный этап включает:
- очистку от пыли и грязи;
- обезжиривание;
- снятие лака и краски;
- ошкуривание.
При необходимости детали шлифуют. После очистки детали оставляют на несколько часов для полного просушивания.
Следующий этап работ — предварительная обработка поверхностей. Необходимо покрыть дерево инсектицидом. Фасадные детали изучают на предмет царапин. Если они есть, используют шпатлевку. Сколы на ламинате замазывают специальным мебельным воском, подобрав по цвету.
Подготовив все инструменты и материалы, можно приступать к работе – пошаговый план поможет вам понять, как отреставрировать старый шкаф и придать ему совершенно новый вид.
1. Разбираем. При помощи отвертки открутите ручки, снимите полки и дверцы. Оцените – будете ли вы использовать старую фурнитуру и крепеж, либо захотите использовать новые элементы, декорировать их отдельно.
2. Очищаем. Тщательно очистите мебель от пыли и грязи, а затем – от старого покрытия. Снимите специальной жидкостью краску, лак со всех поверхностей и фурнитуры. Обезжирьте поверхности и оставьте до полного высыхания.
3. Подготавливаем. Обработайте поверхность инсектицидом, чтобы надолго защитить
шкаф от насекомых и грибков. С помощью шлифовальной машинки придайте поверхностям гладкость. При наличии царапин, сколов используйте шпатлевку, чтобы скрыть их. После этого тщательно загрунтуйте все поверхности шкафа. Когда грунтовка высохнет, хорошенько отполируйте внешние и внутренние поверхности наждачкой №0.
4. Перекрашиваем. Начиная с самых дальних внутренних поверхностей, постепенно нанесите новую краску. В зависимости от выбранного дизайна можно окрасить шкаф в один универсальный тон а затем нанести рисунки, узоры, добавить декоративные элементы, либо сделать его разноцветным. После высыхания слоя краски покройте мебель прозрачным лаком.
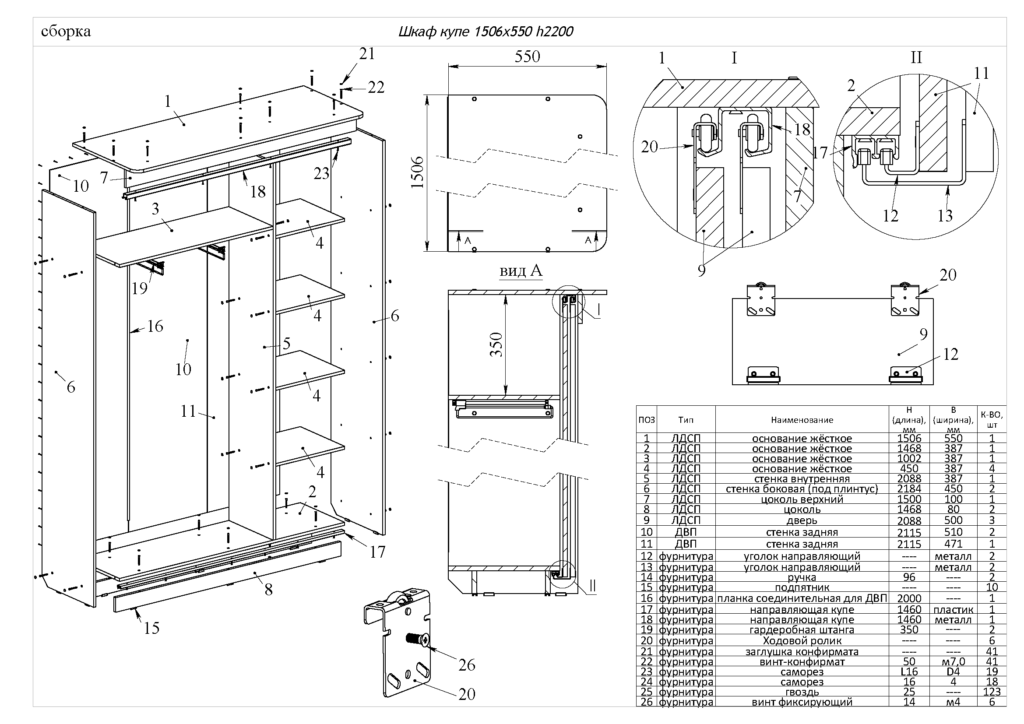
Как спроектировать шкаф-купе: готовые чертежи и инструкции
Детальная схема будущего изделия — первый этап его изготовления. Не так сложно собрать своими руками шкаф-купе, как правильно подготовить все элементы. Их размеры должны в точности соответствовать требуемым.

Чтобы сделать качественный чертеж необходимо:
- замерить площадь помещения, где будет располагаться мебель;
- отразить все недостатки комнаты (разницу в высоте стен, разноуровневый потолок, кривой пол);
- отметить на рисунке места установки фурнитуры;
- продумать детали систем хранения.

Для проведения замеров подходит рулетка или лазер. Линейки и сантиметровые ленты не дадут точные данные. Перед внесением значения в чертеж, стоит еще раз его перепроверить. Несколько фото готовых чертежей помогут разобраться в тонкостях их составления.

Изготовление деталей шкафа в мастерской
Следующий шаг – изготовление деталей шкафа в мастерской. Чтобы в мастерской не пришлось объяснять «на пальцах», что же Вам нужно, достаточно заранее распечатать спецификацию всех элементов и их чертежи и отдать мастерам. Кроме того, Базис может сделать еще и карту раскроя, за которую в мастерской требуют отдельную плату.
Для этого нужно просто воспользоваться модулем Базис-Раскрой, задав размеры исходных листов ДСП. Эта карта представляет собой выкройку, по которой из листа определенного размера будут вырезаться конструктивные элементы с учетом отступов, толщины режущих материалов и других тонкостей. Правда, некоторые нюансы все равно нужно согласовывать с мебельщиками, так что карту раскроя лучше доверить им – они лучше разбираются в этих вопросах, а при раскрое будут учитывать имеющийся у них инструмент.
В качестве примера рассмотрим изготовление шкафа-купе высотой 2,5 м, шириной 1,2 м, глубиной 0,4 м. По расчетам выходит, что для его изготовления понадобятся два листа ДСП площадью по 4,08 м2 и лист ДВП площадью 4,67 м2.
На что следует обратить внимание при изготовлении шкафа-купе?
При выборе цвета не стоит ориентироваться на названия вроде «Орех миланский» и т.д. У каждого производителя свое понимание того, как выглядит этот самый орех, а единых стандартов не существует. Так что лучше всего пойти и самостоятельно выбрать цвет материала, ориентируясь по его виду, а не по названию.
После того, как в мебельном цеху будут вырезаны все элементы шкафа, Вам могут предложить забрать с собой обрезки листов, из которых они вырезались, ведь лист Вы покупали целый, значит и обрезки Ваши.
Если они Вам не нужны, мебельщики оставят их у себя, сделав Вам небольшую скидку. Такое решение многим кажется более привлекательным. Вроде и от мусора избавились, еще и деньги сэкономили. Но это не совсем так. В процессе сборки могут повредиться какие-то элементы, и Вы сможете из обрезков сделать им замену.
Если же отдельную деталь заказывать в мастерской не из своего материала, можно переплатить до 25% стоимости.
Еще один нюанс. Оплачивать нужно не изготовление каждой отдельной детали, а распил листа. На первый взгляд кажется, что это одно и то же, на самом же деле это не совсем так. Поэтому при расчете количества исходного материала нужно четко определить количество листов и уже их отдавать на распил.
Программы типа Базиса помогут определиться с вопросом расхода материалов быстро и безошибочно. Подсчеты вручную же часто дают неточные результаты, особенно, если деталей много.
Отдельная статья расходов – изготовление фигурных элементов, например, боковых полок с округленным углом или плинтусов. Стоимость таких распилов выше, чем распилов простой прямоугольной формы, что нужно учитывать и согласовывать заранее, чтобы потом не было недоразумений при оплате.
Подведем итоги. Расходы на изготовление деталей в мастерской состоят из:
- составления карты раскроя (все же лучше это доверить мастерам);
- распила листов ЛДСП и ЛДВП;
- изготовления плинтуса;
- изготовления закругленных элементов.
Как сделать шкаф-купе своими руками: чертежи и этапы устройства
Можно сделать гарнитур самостоятельно, но для этого потребуются знания об особенностях проектирования. Шкафы-купе не так легко изготовить своими руками даже если есть описание, чертежи и пошаговая инструкция. Но не спешите расстраиваться. Рассмотрим все тонкости рабочего процесса.
Замеры помещения и расчёт размеров встроенного шкафа-купе своими руками
Особенно важно выполнить точные замеры. Сначала эскиз лучше набросать на бумаге, а на нем отметить все размеры
Выполнить проектирование и расчет дверей-купе поможет программа «Аристо».
Варианты размещения и размеров мебельной конструкции
Необходимо выполнить следующие измерения:
выполняются замеры на расстоянии 15÷20 см от задней стены;
на расстоянии 30 см от первых замеров выполняются вторые;
нужно измерить расстояния до выступов, дверных проемов и розеток;
важно измерить расстояние от пола и до потолка;
выполняются расчеты габаритов шкафа;
из всех полученных значений стоит выбрать наименьшее. Это позволит вычислить ширину будущей конструкции;
необходимо учитывать и значение погрешности, на которую оказывает влияние кривизна стен, количество точек замеров и устройство шкафа.. Варианты встроенных моделей
Варианты встроенных моделей
Чтобы рассчитать глубину шкафа необходимо вычислить полезное пространство, а также учесть максимально допустимые размеры. 100 мм нужно учитывать при планировании раздвижной системы для шкафов купе. Высота мебели должна быть на 100 мм меньше, чем расстояние от пола до потолка.
Чертеж встроенного гарнитура
Распил и фурнитура
Перед тем, как самому сделать шкаф-купе, сначала нужно написать перечень всех деталей на листке. Со списком можно обратиться в цех, где сделают раскрой и порежут материал. Сделать распил можно и самостоятельно, но это более сложный вариант. Необходимо разложить детали и рассчитать количество листов ЛДСП.
Важно подобрать качественную фурнитуру, от этого зависит правильная регулировка дверей шкафа-купе. Двери не должны заклинивать и съезжать
Системы скольжения состоят из профиля и скользящей опоры. Роликовые механизмы могут быть осевыми или на подшипниках.
Комплектующие для шкафа-купе
Выбор наполнения шкафа
Внутреннее наполнение помогает решить и какой будет компоновка. Не стоит секцию для верхней одежды размещать по центру, так как влага от нее может распространиться в стороны. Лучше расположить этот отсек сбоку. Ящики для постельного белья не рекомендуется размещать сразу над полом.
Вариант наполнения конструкции
Как правильно скомпоновать элементы и как собрать шкаф-купе своими руками можно посмотреть в видео ниже:
Watch this video on YouTube
Количество и размеры дверей, направляющие, ролики для шкафа-купе
Выбирая направляющие для шкафа-купе, особое внимание уделите материалу их изготовления. Самую низкую стоимость имеет пластиковый профиль, но он отличается небольшой надежностью и малым сроком службы
Лучшим решением будет использование комбинированных рельсовых направляющих, в которых опорная поверхность для роликов из металла.
Самодельные ролики
Стальной профиль для дверей-купе обладает повышенной надежностью. Из алюминия делаются рельсовые опоры для мебели известных брендов.
При планировании дверей нужно рассчитать ширину створок. При этом в закрытом состоянии должна быть видна одна ручка, но она не должна закрывать дверное полотно.
Варианты профилей
Ролики делают из металла, так как пластик не отличается прочностью. Ролик содержит шарикоподшипниковый внутренний механизм, позволяющий свободно перемещать двери в горизонтальном направлении.
Сборка шкафа и двери купе своими руками
Предлагаем вам ознакомиться с процессом сборки шкафа-купе своими руками в таблице ниже:
| Фото | Описание работ |
![]() | Чтобы выполнить сборку шкафа-купе необходимо нанести разметку. Нужно отметить габариты шкафа по ширине и место расположения вертикальной стойки. Отмечаются высоты, на которых будут фиксироваться полки. |
![]() | Сверлим отверстия для дюбелей. |
![]() | Профиль надевается перед монтажом. |
![]() | Устанавливаем вертикальную стойку. |
![]() | Наносим разметку для антресольной полки и устанавливаем её. |
![]() | Устанавливается боковая стенка. |
![]() | Выполняется разметка под полки и их установка. |
![]() | Размечается по размеру и устанавливается штанга для одежды. |
![]() | Устанавливаются фальш-панели. |
![]() | Одна панель фиксируется в нижней части. |
![]() | Крепится опорная верхняя часть. |
![]() | С помощью шурупа фиксируется нижняя направляющая. |
![]() | Аналогично крепится и верхняя направляющая. |
![]() | Монтируются двери. |
Более наглядно процесс представлен в этом видеоролике:
Watch this video on YouTube
Устанавливаем направляющие
Одним из ответственных моментов в процессе сборки, является установка рельсов для дверей. Нижняя часть оснащена двумя желобами, обеспечивающими плавное движение роликов. В верхней части детали имеется также два отделения. Первым делом нужно просверлить отсеки под шурупы, которые будут служить крепежом к основанию.
Сверлить отверстия в направляющих нужно самостоятельно, так как производители этим не занимаются.
Обязательно при создании таких отверстий делается фаска, предназначенная для завинчивания шурупа. Вполне хватит четыре дыры в каждой планке. Дальнейшие действия включают:
- фиксация нижнего рельса с предварительной разметкой мест крепежа;
- оставляем два с половиной сантиметра от края пьедестала до переднего рельса;
- во избежание заклинивания дверей и равномерного их хода, шкаф стоит разместить горизонтально;
- верхний рельс монтируется идентично. Единственное, отверстия делаются шахматным способом.
Элементами фиксации выступают шурупы, идущие в комплекте к мебельному изделию.
Направляющие крепятся к корпусу с помощью саморезов. Необходимо сделать отступ 15 мм нижней направляющей от края нижней части конструкции.
Размеры и чертеж
Чертеж шкафа-купе в прихожую
Полки и перегородки при таком способе изготовления, разумеется, придется вырезать по месту. Для этого придется вычертить вид шкафа с фасада, примерно так, как показано на рисунке. Затем на потолке, для любого способа подвески, отбить линию по месту установки направляющей. Потом от ее концов по отвесам отбить вертикали на стенах, и от этой воображаемой плоскости вымерить конфигурацию каждой полки и перегородки по месту. От получившейся глубины полок/перегородок нужно С ФРОНТА вычесть ширину опорного профиля + 20 мм.
В чем тут смысл? Особенность отделочных работ такова, что слой штукатурки/грунтовки к внутренним углам получается толще. Происходит это оттого, что посередине стены или у наружного угла свобода движений инструментом больше. Разность ширины комнаты посередине и между углами редко превышает 10 мм и глазом не заметна, но для мебели и 2 мм – слишком.
Конфигурация ниши – в общем-то низкая усеченная прямоугольная пирамида, опрокинутая на бок. Соответственно, форма полок с перегородками в плане окажется близкой к трапеции. Но возможно ли вырезать их с нужной точностью? В наше время – вполне возможно, и столярку дома устраивать не придется. И лобзик с циркуляркой не нужны. Шаблоны и лекала – тоже.
Установка и регулировка дверей
Вот наша сборка шкафа и подходит к концу, это заключающий этап. Сначала нужно установить внутреннюю дверь. Даже при установке двери есть своя инструкция, нужно завести верхний край двери в задний отступ и верхней рельсы, а снизу зажать колесики и помести в нижнюю часть рельсы. Точно такие же махинации делает и со внешней дверью.
Для ближнего контакта дверей к боковым стенкам, на нижних колесах присутствует специальный винт регулировки.

Если требует опустить угол двери, то винт нужно прокрутить против часовой стрелки. Для этого нужно использовать шестигранник подходящего размера, обычно это 4 миллиметра.
Для обратной операции нужно провести все действия выше в обратном виде.
После регулировки дверей, когда данные винты больше не нужны, нужно приклеить буферную ленту на край дверей, что-бы избежать сильного стука двери при закрытии или же что хуже, разбитого стекла на двери.

В самую последнюю очередь нужно снять пленку со стекла на двери. На этом весь процесс сборки шкафа-купе подошел концу, и он полностью готов к использованию.
Некоторые же шкафы могут иметь некоторые дополнительные комплектующие. Такие, как внутренняя или внешняя подцветка. Обычно ею является обычная светодиодная лента, которая приклеивается самостоятельно благодаря клейкой обратной стороны. Ее подключение осуществляется строго по инструкции.
Пожалуйста, сделайте репост

Нестандартные решения
Иногда тип помещения предполагает нестандартное решение для установки шкафа. К примеру, для прихожей тупиковой или узкой формы лучше использовать встроенную конструкцию. Этот вариант экономичнее. Роль боковых и задней стенок в ней играют стены комнаты. Составляющие также закрепляются на них. В таких модулях отсутствует самостоятельный потолок и пол. Для изготовления встроенного шкафа-купе необходимы только двери, направляющие для них, прочная фурнитура, дополнительные конструкции, крепления.
Высота такого шкафа-купе, так же как и ширина, зависит от размера ниши. Двери проектируются под расстояние от пола до потолка. Глубину делают по желанию. Планировка натяжного потолка во встроенной конструкции не рекомендуется.
Такая модель шкафа-купе поможет использовать каждый сантиметр пространства с пользой. Но придется нарушить отделку стен.
Еще одним нестандартным вариантом считают шкафы-купе с встроенной техникой или мебелью (телевизором, кроватью, компьютерным столом).
При установке системы с TV технику либо прячут за раздвижными дверями, либо делают часть системы открытой.
С помощью новейших технологий стало возможно монтировать телевизор в дверь шкафа-купе. Для ее изготовления применяется специальный, более прочный материал, что значительно увеличивает стоимость изделия.
С помощью шкафа-купе в детской комнате можно грамотно разделить ее на уголок для сна и рабочую зону.
Обустройство углового шкафа купе
Угловая модель занимает нестандартную площадь помещения. Ее интересный дизайн оригинально обыгрывает интерьер. Она отлично подходят для маленьких комнат, емкая и вместительная.
По форме угловой шкаф-купе может быть:
- Г-образный. Занимает стены и угол между ними.
- Трапециевидный. Асимметричный вариант.
- Диагональный. Внутри имеет треугольный вид. Устанавливается обычно между окон или дверей на прилегающих стенах.
- Пятистенный. Самый массивный вариант.
Большая глубина углового шкафа-купе может быть не только плюсом, но и минусом. Поэтому его внутренняя планировка продумывается до мелочей.
Место в углу лучше отвести под крутящуюся стойку или двухуровневый кронштейн с плечиками. В самой глубокой части повесить сезонную одежду или ту, которая одевается редко.
Крайние пространства оборудуются полками и ящиками. Если шкаф стоит в прихожей, то внизу стоит расположить полки для обуви.
Часто для угловых моделей требуется дополнительное освещение внутри.
Создание сборочного чертежа
Когда готовы схемы относительно основных частей будущего шкафа, формируется непосредственный сборочный чертеж, из которого можно получить информацию:
- габариты, внешний вид и параметры самого каркаса;
- разновидность и особенности устройства раздвижной системы;
- количество полок и других предметов наполнения шкафа;
- материалы, используемые для производства конструкции;
- примерная смета расходов на процесс.
Желательно разрабатывать такой проект с помощью соответствующей компьютерной программы, для чего вносятся только основные параметры будущей конструкции и автоматически производятся расчеты, делается чертеж. При наличии опыта и умений можно сделать чертеж или схему на бумаге своими руками, для чего используется карандаш и другие канцелярские принадлежности.



Нанесение кромки на детали шкафа
После того, как все детали будут вырезаны, можно приступать к кромлению. Обычно это тоже делается в мебельном цехе, где изготавливаются детали, так как для этого нужно специальное оборудование. Для кромления используются кромки, выполненные из ПВХ разной толщины в зависимости от положения ребер. Скрытые ребра (нижние или задние) кромятся более тонкими кромками, толщина которых 0,4 мм. Для видимых ребер используются более толстые кромки, выполненные из ПВХ 2 мм. Ребра соседних деталей, которые соединяются между собой встык, кромить не нужно.
Чтобы было понятнее, приведем несколько примеров:
- ребра внутренней полки кромятся только с передней стороны с использованием кромки 2 мм. Остальные ребра прилегают встык к внутренним стенкам шкафа;
- ребра крышки шкафа являются наружными со всех сторон и поэтому должны кромится с четырех сторон, при этом задняя невидимая сторона имеет кромку толщиной 0,4 мм, а остальные – толщиной 2 мм;
- ребра фасада ящика со всех четырех сторон имеют кромку толщиной 2 мм.
Эти тонкости на первый взгляд кажутся запутанными, но, используя Базис, можно не волноваться и особо не задумываться, потому что программа выбирает и расставляет кромки нужной толщины и в нужных местах самостоятельно.
Как и изготовление, кромление деталей сложной геометрической формы оплачивается отдельно по более высокой цене.
Таким образом, стоимость кромления, включая материалы, состоит из следующих пунктов:
- кромление кромками из ПВХ толщиной 0,4 мм;
- кромление кромками из ПВХ толщиной 2 мм;
- кромление закругленных деталей.
По времени на изготовление деталей шкафа и их кромление в среднем уходит до 5 рабочих дней, но за дополнительную плату «за срочность» все эти операции могут выполниться и за один день. Некоторые мастерские в стоимость работы включают также и доставку изделий на дом.
Разработка дизайна и чертежа
Работа над дизайном будущего шкафа начинается с планировки наполнения. После определения места, где будут располагаться секции, можно приступать к расчетам и отображению замеров на чертеже.
План внутреннего размещения
При проектировании принято придерживаться следующих правил:
- секцию с верхней одеждой лучше размещать сбоку, чтобы влага не распространялась по периметру;
- для мелких аксессуаров нужно выделить видное место, чтобы они всегда находились под рукой;
- хранить одежду, постельное белье, полотенца рекомендуется сверху, поскольку в пределах полуметра от пола собирается влага, поднимается пыль;
- для хранения ценных предметов необходимо предусмотреть несколько ящиков.
Пример внутреннего пространства
По итогам планирования необходимо определить минимальную ширину полок. Этот параметр пригодится на этапе расчета створок.
Замеры и оформление чертежа
Чтобы сделать замеры правильно, нужно учесть несколько рекомендаций. Стены в нише редко бывают ровными. Погрешности при неравномерной отделке углов обычно незаметны, но разница даже в 2 мм бросается в глаза.
Измерять ширину рекомендуется минимум в трех точках. Замер задней стенки производят сверху, посередине, снизу. Затем, по аналогичному принципу, определяются размеры фасада. Замеры высоты также снимаются в трех местах, отдельно для передней и задней стенки.
При отображении замеров на чертеже нужно суммировать толщину материала с кромочной лентой, прибавить 10 см для раздвижного дверного механизма.
Основные этапы сборки
Перед началом сборки нужно внимательно осмотреть все приготовленные детали и инструменты, чтобы убедиться, что ничего не забыто. Следует подготовить место, начертить схему, узнать, как правильно выполнять работы.
Цоколь
Любая инструкция о том, как собрать шкафы-купе самому, вычислить расположение деталей, начинается с подготовки прочного ровного основания, то есть дна будущего шкафа. Эту составную часть часто называют цоколем, закрепляют с помощью специальных крепежных элементов — конфирматов или еврошурупов.
Инструкция по сборке цоколя:
- Сделать разметку (так как сборка шкафа должна осуществляться на специально отведенное место на полу).
- По отметкам просверлить четыре или больше отверстий.
- Перевернув днище в удобное положение, установить планки, прикрутить их саморезами.
Кстати, чтобы узнать, как грамотно самостоятельно собрать шкаф-купе и понять, правильные ли места были выбраны для карандашных обозначений для креплений, нужно измерить диагонали между ними — они должны быть одинаковыми. При использовании специальных ножек после вкручивания нужно отрегулировать их высоту, уровень.
Если шкаф-купе — стационарный, для плотного прилегания к стене помещения понадобится разборка части плинтуса. Возможно, проще вообще демонтировать его.
Корпус
Схема сборки шкафов-купе на втором этапе предполагает:
- Сверление отверстий для установки боковых стенок (так как они будут удерживать полочки и верхнюю часть мебели, выполнять тем самым роль ребер жесткости). Следует просверлить достаточное количество отверстий в дне.
- Затем нужно вставить в отверстия анкера.
- Проверить крепость деталей в собранном состоянии.
Обзор современных шкафов-купе, классификация моделей, советы по выбору
В зависимости от используемых для корпуса шкафа-купе материалов следует применить необходимое, но и не избыточное количество креплений. Это могут быть еврошурупы. Частота установки крепления для корпуса купе-конструкции может быть рекомендована в прилагающейся инструкции. Обычно она зависит от характеристик используемого для дверей такого шкафа материала. Также немалую роль для дальнейшей эксплуатации играет покрытие, которое может быть шпонированным или ламинированным.
Установка задней стенки
Согласно инструкции по сборке шкафа-купе, присоединение задней стенки производится разными креплениями. Выбор среди вбиваемых или вкручиваемых крепежей не может быть принят без четкого анализа толщины и других характеристик задней стенки.
При осуществлении выбора закрепляющих расходных материалов для стенки шкафа нужно помнить, что неопрятный вид или недостаточно сильные крепления недопустимы. Если установка полок в шкаф-купе будет стационарной, это послужит дополнительным укреплением основы капитальной мебели для хранения вещей.
Для съемных полок в купе-шкафах делают лишь пазы или другие некапитальные крепления, что помогает держаться аккуратным небольшим полочкам, сделанным по внутренней форме собираемого изделия (в противном случае крепежей будет слишком много).
Крепление полок и направляющих
Правильно собрать шкаф купе — значит, не только позаботиться о его внешнем виде, но и удобно установить полочки в выдвижные элементы.
Виды, размеры и дизайн радиусных шкафов-купе, советы по размещению
Инструкция:
- Взять измерительные приборы (линейку и карандаш).
- Отмерить центр полки сначала на переборках с внутренней стороны шкафа.
- Полученные измерения в виде отметок перенести на место сверления посредством тех же приспособлений (линейки, ручки, маркера, карандаш и т.д.)
Сборка своими руками шкафа купе — процесс трудоемкий. Важны все детали. Если речь идет о направляющих пазах для выдвижных ящичков, они обязательно должны соответствовать аналогичным креплениям на ящиках и двигающихся полках. Для правильной установки полок следует придерживаться простого правила: чтобы обеспечить сохранность всех частей шкафа, нужно сделать точный замер места прикручивания полок. Тогда сборка удастся.
Монтаж дверей
Створки шкафа могут крепиться как на верхние, так и на нижние колесики (ролики). Действовать нужно аккуратно, учитывая правила скрытого метода монтажа. При этом всегда следует контролировать толщину просверливаемой для крепления стенки шкафа.
Умение разобрать и собрать шкафы купе, получаемое в результате самостоятельной сборки, позволяет не ошибаться при установке самой важной детали — раздвижных створок. Опытного и аккуратного сборщика мебели отличает способность правильно отмерить нужные расстояния при монтаже мебели
Это в свою очередь определяет внешний вид, а также пользовательские характеристики важного элемента интерьера.
Двери для шкафа купе: рекомендованные размеры
Если говорить о жестких ограничениях по размерам дверей для шкафа-купе, то их нет. Сделать можно любые по длине и ширине. Но есть рекомендуемые параметры, определенные на основе опыта эксплуатации:
Минимальная ширина — 50 см. Ничто не мешает вам сделать полотно уже, но при движении оно будет перекашиваться, в результате может даже выскочить из направляющих.
Максимальная ширина створки — 110 см. При этом приходится прилагать значительные усилия для того, чтобы ее двигать.
Оптимальная ширина 60-90 см.
С завода профили приходят высотой 5,5 м, а в магазинах их обычно режут пополам. Так что есть реальная возможность сделать двери для шкафа купе требуемой высоты
При большой высоте вам только надо будет обратить внимание на жесткость профиля-ручки.
Количество створок дверей-купе выбирается исходя из оптимальной ширины. Выбирайте их так, чтобы они не блокировали доступ к наполнению шкафа.
Подведение итогов
Как видно из описанного процесса сборки шкафа-купе, процесс не сложный. Для решения этого вопроса понадобится желание, элементарный набор отверток, инструмента и рулетки. Далее уже соблюдая поэтапно инструкцию, даже новичок в этом деле справится на все сто процентов.
Любая модель шкафа-купе комплектуется всегда схемой для сборки, которая понятна даже новичку.
Первыми шагами при сборке шкафа станет подготовка деталей после распаковки
Здесь важно разложить все по местам, мелким элементам лучше сразу выделить коробку. Затем можно начинать мастерить каркас
На нем будут размещены затем полки, внутренние перегородки, фурнитура и направляющие.
Старайтесь все крепить ровно без перекосов. Особенно это касается дверей.
Если есть сомнения по поводу правильности выполнения всех этапов, можно периодически сверяться с чертежом, что поможет должным образом все сделать. Помимо этого, есть множество видео уроков в сети.
Важно осторожно и внимательно подойти к этапам монтажа, проверять расчеты и работать аккуратно







































































