Монтаж разжелобков верха окна
На первый взгляд, кажется, что конструкционное решение и способ монтажа слухового треугольного окна аналогичен созданию многощипцовой крыши, но в действительности имеется существенная разница.
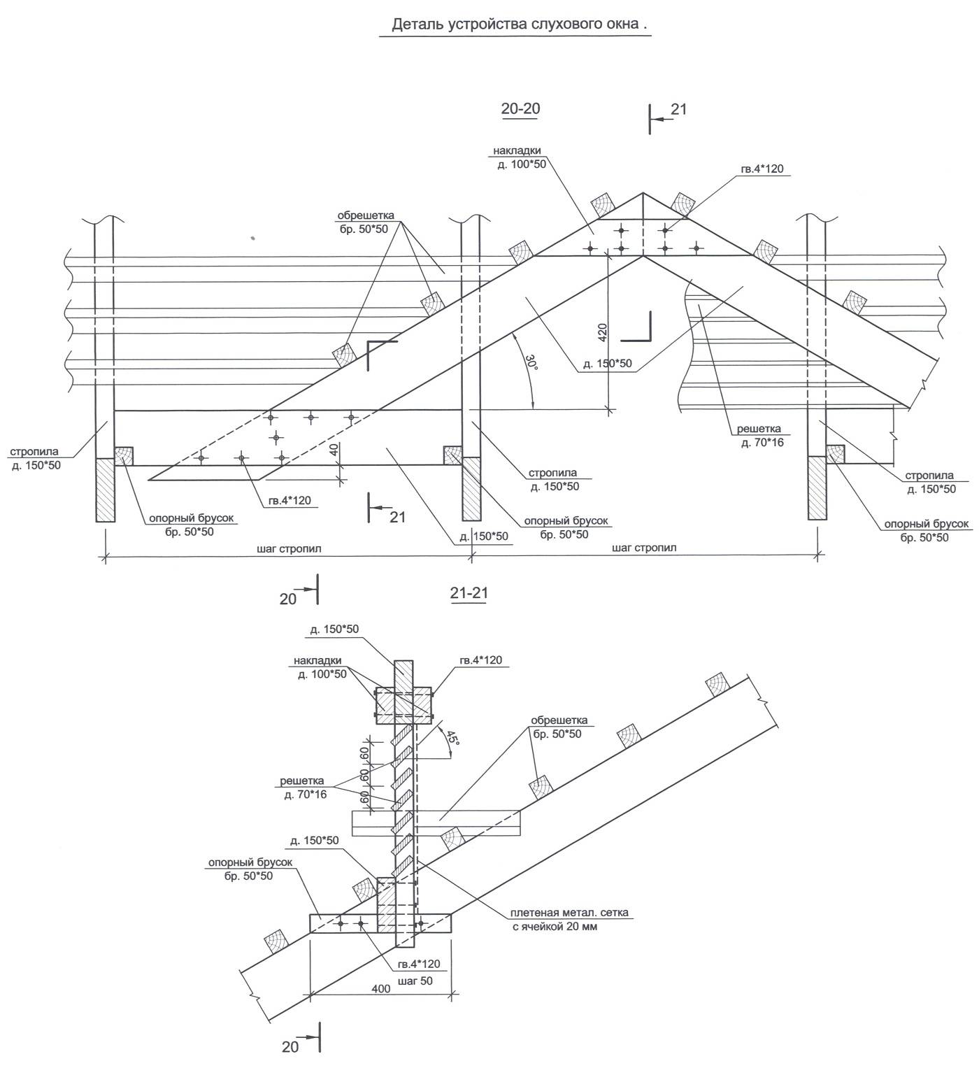
Так скаты на многощипцовой кровле имеют стандартный уклон. Что касается слуховых треугольного типа окон, то скаты крыши над ними, имеющие уклон 64 градуса, соединяются со скатами кровли всего дома, у которых этот угол составляет 40 градусов.
В этом случае разжелобки получаются нестандартными: нижняя и верхняя части изготавливаются по-разному.
В верхней части крыши для окна (со стороны чердака она смотрится как свод собора) применяют конструкцию с накосными стропилами – на них приходится упор нарожников (укороченных стропил), располагающихся под углом 64 градуса.
Для проведения монтажа необходимо знать параметры разжелобковой стропильной балки и углы соприкосновения с коньковым брусом и боковой стеной.
Дальше работа относительно того, как самому сделать слуховое окно, производится в следующем порядке:
- Используя длинный уровень или отвес, на пол переносят положение центра, где пересекается разжелобок с брусом конька окна на крыше.
- При помощи линейки прочерчивают линию от получившейся точки в угол боковой стены.
- Дальше проводят линию конькового бруса. Оба эти отрезка представляют собой не что иное как проекцию разжелобка и балки стропил конькового бруса на горизонтально расположенную плоскость.
- На полу при помощи угольника измеряют образовавшийся угол. Используя полученные данные, запиливают нижний конец балки стропил разжелобка, обеспечивая тем самым точность соединения с боковой стеной проема.
- Между углом боковой стенки и коньковым брусом натягивают шнур и угольником измеряют угол среза верхнего торца балки стропил. Между этими точками замеряют расстояние и таким образом, определяют длину стропильной балки разжелобка.
- Далее на верхний брус (он находится на боковой стене) переносят проекционную линию балки и измеряют размер ее нижнего опорного среза.
- Затем выполняют разметку заготовки – ее разрезают по длине и делают запилы торцевых кромок, соблюдая углы в 18 и 72 градуса – и устанавливают на место.
Для каждого окна необходимо изготовить по 2 точно такие же зеркально симметричные балки. Нужное количество заготовок укороченных стропил можно сделать по универсальному шаблону, выполненному самостоятельно.
Окно на двускатной крыше
Традиционным жилищем нашей страны является одноэтажный дом, крытый простой двускатной крышей, под которой имеется холодный чердак. Как правило, фронтоны в таких домах оставляют открытыми.
Это было нужно для проветривания чердака и защиты стропильной системы крыши от гниения. Но со временем владельцы таких домов поняли, что с открытыми фронтонами невозможно жить там, где на улице зимой очень низкая температура.
Тем более что в открытый фронтон ветер наносит такое количество снега, что он нередко проваливал перекрытие чердака, и обрушивал потолок дома.
И хозяева домов стали зашивать фронтоны, для проветривания используя щели между досками. Со временем был найден выход, позволяющий и проветривать чердак, и не допустить наносов снега.
Это слуховое окно, которое врезается во фронтон. Площадь такого окна зависит от того, каков объем чердачного помещения. Если вместо холодного чердака устроена жилая мансарда, то не требуется постоянный ток воздуха.
До самого конька мансардное помещение не утепляют. Это делается специально, чтобы под крышей собирались водяные пары и нормально функционировала система «свесы — воздух — слуховое окно». И вся влага, которая скапливается под кровлей, удаляется через зазор на коньке.
Основной плюс такого окна — это отсутствие дефлекторов или труб, выступающих над крышей
Особенно это важно в тех районах, где постоянная ветровая нагрузка или снеговой покров отличается большой мощностью. Подобные окна устраивают в обоих фронтонах
Решетку на слуховом окне делают редкой, чтобы поток воздуха свободно проходил через окно. Решетка на окне по внешнему виду напоминает жалюзи, и имеет наклон наружу, чтобы в помещение извне не попадали осадки
Подобные окна устраивают в обоих фронтонах. Решетку на слуховом окне делают редкой, чтобы поток воздуха свободно проходил через окно. Решетка на окне по внешнему виду напоминает жалюзи, и имеет наклон наружу, чтобы в помещение извне не попадали осадки.
На вальмовой крыше большинство владельцев домов устраивают слуховые окна также с вальмовой крышей. Чтобы не нарушался внешний вид здания. Все-таки ансамбль смотрится намного лучше. Дело в том, что в вальмовой крыше можно построить окно любого типа.
Оно в любом случае будет смотреться красиво. Одним из самых популярных видов слуховых окон, которые делают на вальмовых крышах, является люкарни. Это надстройка на скате, имеющая на фасаде окно. Такие окна были очень популярны в эпоху Ренессанса.
Сейчас люкарни устанавливают, если хотят максимально расширить жилое пространство чердака. Если вы хотите своему дому с вальмовой крышей, который и так смотрится как дворец, придать помпезности, то следует выбрать вертикальные окна. Которые, кстати, прекрасно вписываются в любой архитектурный стиль.
Если же вам требуется сделать выход на террасу или балкон из мансарды, то лучше устроить люкарни утопленного типа. Однако дополнительного освещения от таких слуховых окон будет мало. Если вы имеете строительный опыт, то можно попытаться самостоятельно на крыше возвести слуховые окна.
Однако следует знать, что необходимо предварительно сделать проект, где до миллиметра указать все размеры. И все работы выполнять очень аккуратно, не спеша.
Слуховое окно на крыше конструкция, чертеж, особенности проектирования
Как при самостоятельном проектировании любых других кровельных конструкций, проектирование окон в крыше дома требует выполнения СНиП, других строительных правил и норм, утвержденными различными органами госвласти и с учетом всех технологических особенностей обустройства некоторых частей частных домостроений. С учетом таких нормативов слуховые окна будут надежными и износоустойчивыми, а также не будут снижать общие эксплуатационные характеристики строения.

Специалисты предъявляют следующие основные требования к проектированию оконных кровельных проемов этого типа:
- Уклон кровли должен быть более 35 градусов.
- Надстройка над кровельным проемом должна быть удалена от внешних стен индивидуального домостроения на обусловленном расстоянии.
- Створки оконного кровельного проема также должны быть определенных размеров:
- минимум – 60×80 сантиметров;
- максимум – 120×80 сантиметров.
- Четырехугольный проем с вальмовой кровлей не должен быть продолжением стенки подкровельного (чердачного) пространства.
Также к этим требованиям относятся советы по выбору стройматериалов для облицовки, которые используются для обустройства кровельных слуховых окон. Для этих целей наилучше подходят:
- Медные листы.
- Листовая сталь.
- Черепичины.
Важно помнить, что в ходе составления проекта при любых условиях делается чертеж каждого планируемого элемента кровли возводимого строения. Когда самостоятельно не начертить такой проект сложно, нужно обратиться к специалистам с высокой квалификацией за помощью
Создание оконного проема в существующей крыше
В индивидуальных домах иногда возникает необходимость обустройства в кровле оконного проема и установки в него окна. Переделывать полностью кровлю – достаточно дорогой, трудоемкой и сложный процесс, потому существуют возможности в несколько приемов сделать оконный проем для слухового окна.
Окна на крыше домостроения должны забирать не более 10% площади кровли под ними.
Проёмы значительных размеров на кровле приводят к высоким теплопотерям. Кроме этого, у больших окон стекла менее прочные и менее устойчивые к природным и механическим воздействиям извне, чем у окон небольших размеров. Оптимальный монтаж – размещение оконной рамы точно по центру кровли в промежутке между обеими несущими кровельными балками.
Треугольное слуховое окно
Если планируется выполнить слуховое окно своими руками, чаще всего монтируется проем треугольной формы с крутыми кровельными скатами. Эта распространенная конструкция характеризуется тем, что фронтонная стенка проема устанавливается без заглубления в крышу – она должна располагаться в одной плоскости с соответствующей наружной стеной.
Треугольные проемы в крыше следует располагать по одной линии с окнами, расположенными ниже в стенах здания, чтобы не нарушить архитектурные пропорции сооружения.
Кровельные скаты треугольных проемов расположены под большим углом (60-70 градусов), поэтому увеличения полезной площади мансарды практически не происходит. Преимуществом треугольных окошек является эстетическая привлекательность, возможность выполнить оригинальную планировку мансардного помещения.

Если предполагается установить треугольное слуховое окно своими руками, следует принять во внимание, что его крыша примыкает к кровле здания, спускаясь до места формирования разжелобка. Таким образом, при обустройстве не требуется выполнять гидроизоляцию стыков боковых стенок и крыши, что значительно упрощает и ускоряет герметизацию и отделку проёма и основного кровельного покрытия здания
Каркас конструкции
Перед тем, как приступать к возведению каркаса, необходимо выполнить каркас крыши дома – возвести фронтоны, смонтировать стропильную систему. Между стропильными ногами, в местах установки окон, необходимо предусмотреть проемы. Стропильная система слухового окна имеет свои особенности: стропильные ноги, обрамляющие такие проемы, необходимо делать двойными или тройными, так как они в дальнейшем будут нести повышенную нагрузку.
Согласно СНиП, фронтоны проемов, устроенных в крыше, должны поддерживаться боковыми стенами, которые устанавливаются перпендикулярно внешней стене вглубь здания и имеют высоту 1,5 метра. Каркасы боковых стен опираются на балки потолочного перекрытия.
Каркас боковых стен монтируется после сборки стропильной системы крыши здания. После чего следует выполнить привязку горизонтальных перекладин и стоек фронтонных каркасов проёмов.
Дальнейшие работы выполняются в несколько этапов:

- Так как фронтоны треугольного окошка располагаются в одной плоскости со стенами строения, нижние концы стропильных ног, прилегающих к стенам, следует обрезать вровень с обшивкой стены.
- Балки-перемычки монтируются между сдвоенными стропилами каркаса проёма. Рекомендуется применять металлические накладные кронштейны.
Не допускается использование врубок и врезок, ослабляющих стропильные балки.
Устройство ендов
Устройство слухового окна на крыше, имеющего треугольную форму, внешне может быть похоже на обустройство многощипцовой кровли. Но существует заметная разница в технологии монтажа. Скаты многощипцовой крыши чаще всего имеют одинаковый уклон, в то время как треугольный проём, снабжен крышей со скатами, угол наклона которых 60-70 градусов. Таким образом, соединение скатов крыши окна со скатами кровли здания выполняется с образованием нестандартных ендов (разжелобков).
Для обустройства слухового окна используются накосные стропила, в которые упираются (под углом 60-70 градусов) нарожники – укороченные стропильные ноги. Для монтажа данной конструкции требуется рассчитать длину и сечение разжелобковой стропильной балки, углы сопряжения боковых стенок и конькового бруса. Для каждого треугольного стропильного проема требуется пара зеркально симметричных балок такого типа.
Укороченные стропила рекомендуется выполнять, используя универсальный шаблон, это существенно ускоряет работу.

Нижняя часть слухового окна
Рассматривая, как сделать слуховое окно, необходимо внимательно отнестись к особенностям монтажа его нижней части. Она должна быть устроена таким образом, чтобы внутренняя часть мягкой кровли скрывалась в ней посредством боковых стенок, и не была видна изнутри. Для этого применяется упрощенный метод монтажа разжелобка.
Балка разжелобка устанавливается поверх кровельной обшивки дома. В эту балку упираются нижние концы стропильных ног двускатной крыши окошка. На заключительном этапе конструкция обшивается листами фанеры, поверх которой крепится кровельный материал. Обшивка фанерой начинается от конька слухового окошка, монтаж кровельного покрытия выполняется по направлению снизу вверх.
Разновидности, конструктивные особенности, применение слуховых окон
Такие оконные конструкции в основном предусмотрены для скатных кровельных конструкций. Мансардные (наклонные) изделия, кроме вентиляционного обеспечения, предназначены для создания в жилом помещении, обустроенном непосредственно под крышей дома, естественного освещения.
Первые оконные конструкции, монтируемые на крыше, предназначались исключительно для проветривания чердака. Сегодня, когда чердаки стали переделывать под жилые комнаты, слуховые окна выполняют дополнительные функции:
- Предоставляют возможность выбраться на поверхность скатных крыш.
- Служат для проветривания чердачного, мансардного помещения, обеспечивают в них естественное освещение.
- На небольших чердаках с низким расположением крыши слуховые окна дают возможность увеличить пространство. Если стены начинаются от пола, одновременно к оконным проемам облегчается подход.
- Мансардные варианты придают кровле особой привлекательности, необычности, и также позволяют сделать оригинальную планировку жилого помещения под кровлей.
Разновидности конструкций слуховых окон
Тип слухового окна подбирается в зависимости от конструктивных особенностей самой крыши:
- стандартные для плоской кровли;
- треугольные, односкатные четырехугольные;
- четырехугольные для двускатных крыш;
- для вальмовой крыши;
- панорамные для трапециевидной кровельной конструкции;
- мансардные;
- круглые, полукруглые;
- выполненные полностью из стекла;
- прочие варианты.
Применение
- Основная функция слуховых окон – проветривание нежилых чердачных помещений, чтобы предотвратить гниение деревянных элементов кровельной конструкции.
- Они также применяются как аварийный выход, для проведения ремонтных работ на крыше.
- Если чердак переоборудован под жилую комнату, тогда окна слуховые используются для естественного дневного освещения. По утверждениям специалистов такие проемы меньше пропускают света в отличие от мансардных окон (проникновению солнечных лучей внутрь помещения мешают боковые стенки).
Варианты кровельных окон
Смотровые окна можно монтировать практически на любые тип крыш: одно-, двускатные, ломаные и пр. Существует множество вариантов сочетания кровельных конструкций с оконными проемами разных размеров, геометрических параметров. Размещать их можно и на самой поверхности кровли и на фронтоне.
- При подборе слухового окна для плоской крыши, в конструкции на чертеже стоит учитывать необходимость обустройства водостока дополнительными желобами. Скат крыши в данном случае должен быть под уклоном порядка 5-15º.
- Оконные конструкции четырехугольной формы для одно-, двускатных кровель конструктивно аналогичны изделиям для плоской крыши, но кровельные скаты должен быть под уклоном 15º и более.
- Треугольные варианты часто используют для кровель дач, загородных домов. Здесь скаты заменяют боковые стенки. В такой ситуации при установке получается меньше стыков, соответственно меньше поступает света в чердачное (мансардное) помещение.
- Достаточно привлекательными являются окна круглой формы, придают общему внешнему виду сооружения необычности.
- Интересный вариант – зенитный фонарь. Отличается внешним видом, собственными эксплуатационными характеристиками. Здание в результате становится визуально гораздо легче, воздушнее, в комнату проникает большое количество естественного света.
- Мансардные варианты могут крепиться между стропилами. Они применяются при уклоне ската 15-20º. Но они создают преграду для водного потока, поэтому их устройство характеризуется достаточной сложностью. Самостоятельно сделать такую оконную конструкцию практически нереально, поэтому лучше заказать специалистам.
Особенности установка и устройства своими руками
Слуховое окно с двускатной крышей может быть закруглённым или островерхим.
Это не самая простая конструкция, но такое окно вполне можно сделать своими руками. Каркас делаем во время возведения стропильной системы. В чертеже вы предварительно должны обозначить месторасположение и точные размеры окна. Вы оставляете проём между стропил и начинаете возводить каркас.
Стропила, которые будут держать окно, нужно усилить и сделать дополнительные опорные стойки. Разметив стропила, монтируем на них балки (брус, сечением от 15 см) нужного размера. Располагаться они будут поперёк стропильных ног. Обычно нижнюю поперечную балку устанавливают вровень со стеной дома и на неё монтируют опорные стойки нужного размера (делая временные распорки).
Стойки нужно выставить строго вертикально и на одном расстоянии от карниза. Затем обе стойки жёстко скрепляем между собой верхним поперечным брусом. У нас получилась рама, в которую и будет устанавливаться окно. Монтируем продольные брусья, связывая раму со стропильной системой.
Ещё раз убеждаемся, что все запланированные размеры соблюдены и стойки стоят вертикально.
После этого устраиваем стропильную систему для крыши самого слухового окна. Затем мы занимаемся устройством «кровельного пирога», делаем обрешетку, возводим стенки слухового окна, надёжно герметизируем примыкания, настилаем кровельный ковёр и только после этого устанавливаем окно и доборные элементы.

При сооружении четырёхскатной вальмовой крыши лучшим вариантом будет устройство треугольных слуховых окон. Для них не надо возводить отдельного каркаса, их можно органично встроить в кровельную конструкцию, немного изменив стропильную систему для торцевого треугольного вальма (или двух).
Вам понадобятся две дополнительные мощные опорные стойки, в верхней части вальма вы просто делаете нишу с помощью двух поперечных брусов и треугольную раму, в которую затем вставляете окно. Это, конечно, только один вариант – в вальмовой крыше вы можете устроить слуховое окно любой формы. Встречаются конструкции таких кровель с окнами на всех четырёх вальмах.
На односкатной кровле лучшим вариантом будет монтаж обычного прямоугольного слухового окна с плоской крышей. Оборудовать такое окно можно даже ничего не меняя в стропильной системе – устанавливаем две стойки, прикрепив их к соседним стропилам. Затем соединяем их верхним поперечным брусом, и оборудуем плоскую односкатную крышу с помощью продольных брусьев. Уклон крыши над слуховым окном будет значительно меньше уклона ската и в этом случае нам потребуется тщательно уплотнить все стыки и сделать дополнительные водосточные желоба.

Чертеж и устройство узлов
Мансардные окна. Обычно такие окна крепятся между соседними стропилами. Любое из окон этого типа является преградой для водного потока и оборудовать такие окна можно только на достаточно «крутых кровлях» – с углом наклона больше 20 градусов.
Самому пытаться сделать такое окно не стоит – стоят они не слишком дорого, а современные технологии надёжно защищают фирменные окна от протеканий и от промерзания. Монтаж готового окна не представляет сложности – опорные пластины крепятся прямо к кровле. Фрикционные петли позволяют открывать окна даже во время дождя.
Основные требования, предъявляемые к слуховым окнам
Уклон крыши, на которой устанавливается слуховое окно (люкарна), должен быть не менее 35 градусов.
Потолочные балки, которые служат опорой для кровли, устраивают сразу над окном.
Врубки и врезки в стропила при устройстве каркаса слухового окна делать нельзя, все крепления производятся с помощью металлических кронштейнов, резьбовых соединений и скоб.
Стропила, на которые устанавливаются стойки, обязательно должны быть усилены.
Пои устройстве слуховых окон обязательно нужно посоветоваться со специалистами, чтобы подобрать конструкцию, наиболее подходящую для вашей кровли. Обязательно составьте предварительный чертёж и поинтересуйтесь, какие стандартные размеры есть у производителей окон. При работе на кровле соблюдайте необходимые правила безопасности, страхуйтесь и не работайте в одиночку. Любое слуховое окно можно сделать своими руками, главное не торопиться и тщательно продумать план работ.
Устройство слухового окна

Вначале определяются с каркасом окна. Какой бы ни была форма проема и конструкция надоконного домика, строение несущего остова люкарны не должно нарушать целостность стропильной системы или ослаблять ее прочность.
Основные элементы устройства:
- лобовые балки между стропилами;
- вертикальные стойки на стропильных ногах;
- прогоны поверх подпорок;
- дополнительные стропила от ригелей до конька;
- оконная рама;
- обрешетка, уложенная на стропилах по форме крыши над оконным проемом;
- кровельное покрытие по типу основного настила.
Слуховое окно — мифы и реальноость
Вряд ли кто не знает, что есть такие особенные окна — слуховые. Но, мало кому известно, почему они так называются. В своем словарном фолианте Владимир Даль дал толкованию слуховому окну, как «слух в кровле» и рядом пояснил, что сам не очень понимает этот термин: «Что можно слушать на чердаке?» Но, интересно и то, что в этой же работе Даль приводит словосочетание — «слухи ветром носит». В старину маленькие открытые окна были в помещениях для прислуги, и хозяева могли подслушивать, о чем разговаривает простой люд. Обрывки фраз доносил ветер.
Другая легенда говорит, что на строительстве московского Манежа, возводимого в 1817 году в честь ознаменования победы над армией Наполеона, работала артель крепостного по фамилии Слухов. Талантливый мастеровой возводил добротные крыши. Его кровельные работы были известны повсеместно.
Первоначально на крыше Манежа и фронтонах не было окон, чердаки не проветривались. В знойный летний день помещение сильно нагревалось, и горячий воздух деформировал деревянные потолочные перекрытия и крышу. Узнав о проблеме, император Александр I повелел в кратчайший срок переделать крышу. Тут и пригодились уникальные способности Слухова. Он нашел выход, проделав на скате несколько окон для поступления на чердак прохладного воздуха. В дальнейшем такие окна в крыше стали называть по фамилии крепостного мастера — слуховыми.
Но, проветривание это не единственная функция слуховых окон. Они влияют на уменьшение давления на потолочные перекрытия. Балки с трудом выдерживают тяжесть пролета, особенно, если он большой, и могут прогнуться или обрушиться. Сильный сквозняк формирует над перекрытием зону с пониженным давлением. В результате нагрузка на балки уменьшается, что позволяет избежать весьма опасных ситуаций.
Еще одно французское название у слухового окна — «люкарна», что значит мансардное окно. Раньше мансарды были излюбленным недорогим жильем студентов, поэтов и художников. В романе «Три мушкетера» Дюма своего главного героя д’Артаньяна поселил в Париже тоже в мансарду. В последние время отделка чердачных помещений под жилые комнаты набирает все большую популярность.
При возведении скатных крыш современные строители тоже устанавливают слуховые окна. Они выполняют три функции: проветривание, выход на кровлю, и освещение мансарды. Существуют четыре основных вида слуховых окон: с двускатной крышей, с трехскатной и плоской крышей, и циркульные. Применяются те же кровельные материалы, что и для крыши. Окна могут быть любой формы, безрамные или с частыми переплётами, с выходом на балкон, так как фронтон здания нередко украшает небольшая лоджия или балкон.
Для улучшения тепловых характеристик и созданию необходимого светового режима в мансарде устанавливают рольставни Они монтируются чаще на прямоугольные, дуговые, овальные или треугольные оконные проемы. Это могут быть модели с автоматическим или ручным управлением. Цветовое разнообразие изделий позволяет использовать рольставни как для классического оформления дома, так и для создания авангардных идей. Более того для большего комфорта, рольставни с автоматическим приводом можно подключить к системе «умный дом».
Существует особый стиль отделки мансард — «лофт», который пришел в Европу из США в середине двадцатого века. В это время центральную часть Нью-Йорка стали освобождать от складов и промышленных предприятий. Пустые здания переделывались под недорогие квартиры или магазины. Просторные помещения высоко под крышей начали переделывать под студии и галереи, в которых охотно селились художники и другие представители творческой богемы. В переводе с английского «loft» значит «чердак». Так появился особый стиль очень схожий со стилем французских мансард.
Все меняется, в том числе и терминология. Не удивительно, что сочетание «слуховое окно» выходит из обихода и скоро останется только в романах о событиях прошлого века или в старинных книгах.





































