С-3
На фото – принцип работы установки С-3. Принципиальное отличие С-3 от прочих моделей – в способности качать стоки высокой температуры. Агрегат работает при температуре воды 75°С. В течение 30 минут может транспортировать воду, температура которой 90°С. Режущего механизма в комплектации нет. Такое оборудование подключают к посудомоечной и стиральной техние, к раковинам. Нельзя подключать более 3-х точек забора воды в одно время.
Туалет на даче — своими руками: Схемы чертежи, фото и видео
 На фото – пример подключения С-3.
 На фото – пример подключения С-3.
Устройство имеет поплавковый выключатель магнитного типа. Уровень установки поплавка можно варьировать. При техническом обслуживании он удаляется. Насос оснащен аварийным сигналом.
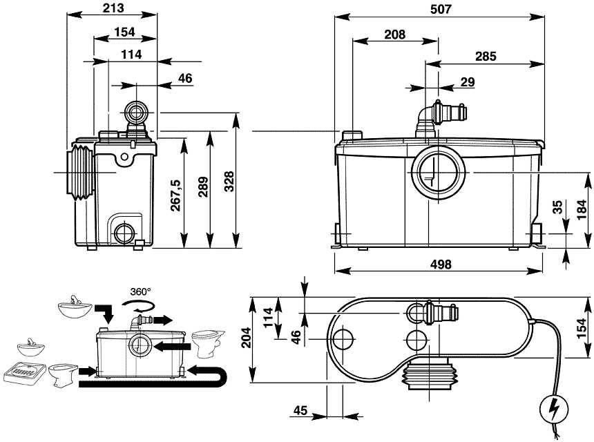
Основные параметры С-3 таковы:
- масса – 6 кг 600 г;
- габариты -158 мм х493 мм х 341 мм;
- емкость резервуара – 5, 7л.
Ориентировочная стоимость изделия – 20 000 рублей.
Ремонт и техобслуживание насоса Сололифт
Для проведения техобслуживания необходимо своевременно менять угольный фильтр и очищать установку с применением специального средства в жидкой форме. Пошаговый процесс следующий.
- Отключить установку от сети.
- Снять верхнюю крышку.
- В резервуар налить средство согласно инструкции производителя.
- Через положенное время подключить станцию и выполнить слив жидкости.
- Закрыть крышку.
При обнаружении в системе неисправностей в первую очередь следует отключить её от сети. Затем вынуть и прочистить фильтр, после чего установить его на место. Аналогичным образом можно выполнить любой ремонт станции либо обратиться за помощью в сервисную службу.
При необходимости следует демонтировать станцию
Проектирование и монтаж инженерных систем: (8412) 98-18-88 Розничные продажи: (8412) 99-92-82
Мы в контакте (товар акции):https://vk.com/gazteplovoda58
Мы в контакте (монтаж, проектирование):https://vk.com/vechtruba
Однокласники:https://ok.ru/profile/571721297882
Однокласники группа:https://ok.ru/group/62212410638436
Особенности установки
При монтаже крайне важно обеспечить правильный угол наклона насосного оборудования, в противном случае передвижение отходов будет затруднено. Установку можно выполнить самостоятельно, техника оснащается инструкцией
Для работы потребуется несколько прямых отверток (на 8 и 2,5 мм), щипцы с раскрытием на 5 см, торцевой и гаечный ключ. Чтобы система смогла работать без перебоев, требуется выполнить установку в нужной последовательности. Алгоритм действий:
Подобрать элементы трубопровода, уплотнительные детали, герметик, иные расходные материалы.
 Зафиксировать насос «Сололифт» на виброизоляционном материале, соблюдая минимальное расстояние до стенки либо подключаемого потребителя в 10 мм.
 Подключить требуемые устройства (унитаз, раковина, ванна, биде и пр.) к выходным патрубкам.
 Обработать точки соединения и стыки герметиком
 Важно выбрать вещество с водостойкими свойствами, в противном случае быстро появятся протечки.
 Зафиксировать выходную трубу клещами и подсоединить насос к электросети.
Как работает система отвода стоков
Канализационные насосные станции Sololift2 Grundfos оснащены электродвигателем и датчиком уровня жидкости. Кроме этого, конструкция выполнена из композитных резервуаров, накопительный резервуар имеет сферические стенки, угол наклона дна в направлении насоса.
Такой вариант исполнения и компоновки сводит к минимуму вероятность образования на дне и стенках резервуара осадков. Датчик обеспечивает включение двигателя только при необходимости, что позволяет экономить электроэнергию.
Принцип действия насосных станций заключается в следующем: сточные воды стекают в резервуар, и достигают уровня контрольной отметки. Датчик даёт двигателю команду запуска, жидкость откачивается в общедомовую канализацию. Когда уровень падает до установленных значений, двигатель отключается, и насос перестаёт работать.
Установка оборудования
Инструкция Сололифта, прилагаемая к оборудованию, содержит все рекомендации по его установке. К наиболее распространенным требованиям относятся:
- необходимость наличия зазора минимум в 10 мм между оборудованием и стенами или иными приборами;
- установка Сололифта исключительно на виброизолирующий материал, в качестве которого можно использовать, например, вибротон;
В качестве виброизолирующего материала можно использовать Вибротон
отсутствие необходимости в дополнительных крепежных элементах. Все крепления прилагаются к устройству;
Использование саморезов по металлу и иных крепежных элементов, не предусмотренных конструкцией прибора, приведут к неработоспособности насосной установки.
- подсоединение установки к душу или раковине предусматривает монтаж дополнительного фильтра, защищающего оборудование от попадания в него волос и иных мелких частиц;
- нельзя производить монтаж Сололифта без обратного клапана. Это устройство предотвращает прохождение стоков в обратном направлении;
- подключение к унитазу должно производиться максимально коротким отрезком трубы;
- все стыки трубопровода, соединяющего оборудование с сантехническими изделиями и центральным канализационным стояком должны быть герметичны.
Монтаж Сололифта осуществляется по следующей схеме:
устройство устанавливается и закрепляется на виброизолирующий материал в выбранном месте
При подключении установки к электричеству нельзя забывать об устройстве защитного отключения.
- проверяется работоспособность насосной установки;
- герметизируются стыки труб.
Инструкция к устройству Сололифт – подключение к приборам
Монтаж насоса принудительной канализации Сололифт
Несмотря на простоту выполнения монтажных работ по установке насосов Сололифт, следует руководствоваться некоторыми правилами, чтобы избежать ошибок. Сливной трубопровод не должен иметь изгибов, поскольку это затруднит выталкивание сливных вод. Если планируется установка насосной станции для отвода жидкости из душевых кабин (ванных комнат), рекомендуется подключать оборудование в нижних точках. Помимо этого, слив необходимо оснастить системой фильтрации, чтобы волосы и прочие мелкие предметы не попадали внутрь оборудования.
  Вариант установки насосной станции в туалете
Вариант установки насосной станции в туалете
Перед проведением монтажных работ необходимо проверить комплектацию установки и убедиться в наличии обратного клапана (при его отсутствии грязная вода будет поступать обратно в систему). Также нужно на пол под агрегат установить материал, который будет поглощать вибрации насоса. Трубы между собой должны быть соединены плотно с применением герметика и уплотнителей. Как правило, производители прилагают все необходимые для монтажа комплектующие, поэтому не нужно приобретать саморезы и прочие крепёжные элементы.
  Подключение патрубков насоса
Подключение патрубков насоса
По окончании монтажных работ выполняется проверка системы на предмет качества подключения. При появлении протечек необходимо устранить дефекты в местах соединений.
Ремонт и техобслуживание насоса Сололифт
Для проведения техобслуживания необходимо своевременно менять угольный фильтр и очищать установку с применением специального средства в жидкой форме. Пошаговый процесс следующий.
- Отключить установку от сети.
- Снять верхнюю крышку.
- В резервуар налить средство согласно инструкции производителя.
- Через положенное время подключить станцию и выполнить слив жидкости.
- Закрыть крышку.
При обнаружении в системе неисправностей в первую очередь следует отключить её от сети. Затем вынуть и прочистить фильтр, после чего установить его на место. Аналогичным образом можно выполнить любой ремонт станции либо обратиться за помощью в сервисную службу.
  При необходимости следует демонтировать станцию
При необходимости следует демонтировать станцию
Классификация и виды
Единой классификации установок принудительной канализации нет, но разделить их можно по нескольким параметрам:
- Наличие измельчителя. Он нужен, если канализационный насос будет подключен к унитазу.
- Производительность. Это объем стоков, который может откачиваться в единицу времени. Есть установки с небольшой производительностью и с очень даже солидной. Выбор зависит от количества и вида подключаемых устройств.
- Температура откачиваемой среды — от 40 °С до 90 °С. Тут все понятно — стоки от посудомоечной и стиральной машины, ванны требуют наличия канализационных насосных станций, способных перекачивать стоки с высокими температурами.
- Длительность работы. Есть установки которые могут включаться только кратковременно (ставят на одно-два устройства), а есть более «долгоиграющие» (могут использоваться для отведения стоков целого дома). Обычно это указывается в характеристиках как длительность работы. Стоять может процент — 50%. Это значит, что 30 секунд установка работает, 30 секунд «отдыхает». Может быть прописан интервал работа/остывание с секундах или минутах.
Канализационный насос может стоять на кухне — для отвода стоков от раковины и/или посудомоечной машины
При выборе насоса для принудительной канализации стоит помнить, что на подключение ванны они не рассчитаны. В ванных содержится слишком большой объем воды, откачивая который насос перегреется и заблокируется. В результате спускать воду из ванной придется долго. Есть только несколько моделей принудительной канализации, которые справятся с этой задачей — SFA Saniplus Silence и Sololift C3. Эти канализационные насосы отлично справляются с большим количеством спускаемой теплой воды.
Другие фирмы предлагают для принудительной откачки стока из ванной сделать промежуточный приямок, в который сливать воду. Из него уже насосом качать в канализацию любым подходящим устройством. С учетом того, что приямок должен находиться ниже уровня стока, такой способ далеко не всегда приемлем. И, несмотря на высокую стоимость SFA Saniplus Silence и Sololift C3, выгоднее бывает установить его, чем проводить огромный объем земляных работ.
Для предотвращения переполнения резервуара есть дополнительное устройство сигнализации. В одних фирмах оно просто подает звуковой сигнал о переполнении емкости, в других еще и отключает подключенное через него устройство (стиральную или посудомоечную машину).
Производители и модели
Индивидуальные канализационные установки производит не так много фирм. Тем не менее, диапазон цен довольно широкий. Традиционно, европейские производители отличаются хорошим качеством, но высокими ценами. Никто не удивится, если сказать, что китайские канализационные насосы стоят меньше, но и качество у них хуже. В общем, выбор, как обычно — дорого и качественно, или дешевле и…
Установки принудительной канализации Grundfos (Грюндфос) — Sololift (Сололифт)
Известный производитель сантехники Grundfos (Грюндфос) выпускает насосы для принудительной канализации Sololift (Сололифт). На данный момент запущена модифицированная линейка Sololift2. В ней нет подвижных частей, имеющих контакт со стоками. Исключение — измельчитель, но его привод тоже «сухой». Это делает ремонт не таким неприятным занятием. Есть несколько моделей Сололифт для разных случаев:
 
Насосы для канализации Сололифт — не самое дешевое оборудование, но они работают надежно, соответствуют заявленным характеристикам. Фирма также поддерживает гарантийный ремонт.
Насосы для туалетов, ванных комнат, кухонь и технических помещений SFA
Эта фирма специализируется на производстве сантехнических насосов. Есть несколько линеек для решения разных задач, подключения различных устройств:
 
Продукция фирмы SFA работает надежно, стоит она немного меньше Грюндфуса. Можно подобрать модель под любую комбинацию сантехники. В общем канализационный насос SFA — хороший вариант. Установка оборудования стандартна — поставить в любом удобном месте. Есть только одно ограничение — лучше, чтобы отводной трубопровод начинался с вертикального участка, если таковой имеется на вашей трассе. Если такое невозможно, длина горизонтального участка должна быть не более 30 см.
Высоту вертикального участка рассчитывается с учетом того, что горизонтальный должен иметь уклон в сторону входного отверстия не менее чем 1% (1 см на 1 метр трубы).
Фекальные насосы CompactLift фирмы Aquatik
Насосы для унитаза Компакт Лифт производит китайская фирма Акватик. Это более бюджетный вариант индивидуальных канализационных установок. Отличаются низким уровнем шумов.
На данный момент есть только три модификации:
 
Фирма Aquatik предоставляет гарантию на свои насосы для ванных комнат и туалеты — 1 год с момента продажи. Нарушение эксплуатации (наличие волокнистых включений в стоках) может стать причиной отказа в гарантийном ремонте.
Канализационные насосы Willo
Немецкая фирма Вилло (Willo) известна тем, что выпускает надежные устройства. Не исключение и насосы для унитазов. Хорошее качество пластика, толстые стенки резервуара, надежный насос. Есть следующие модели:
 
Ассортимент канализационных насосных установок Willo позволяет решить любые задачи при необходимости оборудования ванных и туалетных комнат в частных домах. Для коммерческого или более интенсивного использования у Вилло существуют другие решения.
Напорные канализационные насосы STP (Jemix)
Эти индивидуальные канализационные установки производятся в Китае. Ценовая категория — средняя. Отзывы, как водится, разные — кого-то полностью устраивает, ком-то категорически не нравится.
Итак, вот какие насосы для канализации предлагает Jemix:
 
От описанных выше отличается повышенной мощностью — некоторые модели поднимают стоки на 9 метров. Большинство описанных выше канализационных напорных насосов могут поднимать вверх стоки на 4-5 метров. Так что в этом Джемиксы выигрывают. По этому параметру у них есть только один конкурент — Sololift Grundfos с его высотой подъема 8 метров. Но ценовая категория у него совсем другая (как и качество, впрочем).
Устройство и назначение
Насос с измельчителем — поверхностная канализационная насосная установка, позволяющая организовать отвод стоков там, где сделать это при помощи самотечной системы нет возможности. Это небольшая пластиковая емкость с мощным встроенным насосом, который перекачивает стоки в канализацию. Перемещение стоков может быть как по вертикали, так и по горизонтали. Есть установки с измельчителем, которые могут подключаться к унитазам, есть без измельчителя — для «серых» стоков от раковин, душа, биде и т.д.
Канализационный насос для унитаза и другой сантехники имеет небольшие размеры
Область применения
Применяется канализационный насос в тех случаях, когда невозможно сделать самотечную канализационную систему. В большинстве случаев когда сантехнический прибор, стиральная или посудомоечная машинка установлены ниже входа в канализацию. Для этого и придуманы насосы принудительной канализации. Это решение позволяет переносить санузлы и технические помещения в подвальные или полуподвальные помещения.
 
Подключать санитарные насосы можно в ванной, туалете, кухне, прачечной. В любом помещении, где требуется слив воды, а канализационный сток находится далеко
Еще насос с измельчителем ставится если санузел решено сделать после окончания ремонта и канализация к месту предполагаемой установки сантехники не подведена. В этом случае устанавливаемая техника подключается к компактному канализационному насосу, а он подключается к канализации. В чем отличие? В следующем:
- диаметр отводных труб для канализационного насос намного меньше, чем для самотечной системы (28-40 мм);
- стоки могут подниматься вверх на высоту до 9 метров;
- горизонтальное отведение сточных вод возможно до 100 метров (требует наличия минимального уклона 1-4%).
Все это позволяет с минимальными затратами организовать подключение к существующей канализации практически в любом месте.
Устройство и принцип работы
Состоит канализационный насос из накопительной пластиковой емкости и насоса. Некоторые модели, которые могут подключаться к унитазу, имеют измельчитель. Уровень заполнения контролируется датчиком. Когда он срабатывает, включается измельчитель и насос, стоки выкачиваются в канализационную систему. Отключение контролирует второй датчик — он отключает питание, когда уровень стоков падает ниже определенной отметки. Это — упрощенный алгоритм действия напорной канализации.
 
Канализационный насос с измельчителем: устройство
Есть канализационные насосные станции рассчитанные на подключение устройств разного типа и количества. Самый простой предназначен для подключения одного или двух устройств, самый производительный — имеет три дополнительных патрубка (и один основной). Соответственно, в емкости есть одно или несколько входных отверстий (зависит от модели) и одно выходное отверстие. Ко входным отверстиям подключаются трубы, идущие от сантехники, а выход подключается к канализации.
Для откачки высокотемпературных стоков от стиральных и посудомоечных машин, ванных есть специальные модели, выполненные из термостойких материалов. Обычный канализационный насос с такой нагрузкой не справляется. Потому для подключения такого оборудования нужно искать определенные модели.
Источник
Техобслуживание и ремонт насоса Сололифт
Таблица 3. Основные виды неисправностей и способы их решения
| Тип поломки | Описание неисправности | Решение | 
| Заклинивание, перегрев электродвигателя | Двигатель заклинивает, либо он сильно перегревается из-за попадания внутрь агрегата твёрдых предметов. | Очистка сливной станции. Замена двигателя. | 
| Нарушение температурного режима | Двигатель перегревается и выходит из строя. Это происходит по причине неверного подбора установки, которая не в состоянии обеспечить слив горячей жидкости. | Замена насосной станции на установку с подходящими параметрами. | 
| Постоянный нагрев электродвигателя | Мотор греется из-за несвоевременной очистки конструктивных узлов системы. | Ремонт мотора. Замена трубопровода магистралью большего диаметра. | 
| Выход из строя насоса из-за промерзания | Насос перемерзает в зимнее время в неотапливаемых помещениях, в результате чего конструкция деформируется. | Ремонт либо замена насоса. | 
| Перегорание двигателя | Поломка образуется в результате попадания воды в мотор. | Диагностика агрегата. Устранение причин попадания влаги в двигатель. | 
| Залипание, сгорание электромотора | При сливе густых или липких жидкостей происходит залипание его вращающихся частей. | Замена электродвигателя. | 
 Извлечённый силовой агрегат насосной установки Принцип техобслуживания принудительных сливных систем для канализации Сололифт Grundfos заключается в соблюдении указанной производителем температуры жидкости и периодическом осмотре. Также нужно исключить попадание внутрь агрегата всевозможных предметов и агрессивных химических соединений.
 Извлечённый силовой агрегат насосной установки Принцип техобслуживания принудительных сливных систем для канализации Сололифт Grundfos заключается в соблюдении указанной производителем температуры жидкости и периодическом осмотре. Также нужно исключить попадание внутрь агрегата всевозможных предметов и агрессивных химических соединений.
 Профилактика загрязнённого насоса
 Профилактика загрязнённого насоса
Подключение Сололифта к канализации
Подключить насосную систему Sololift к канализации весьма просто, но для этого нужны хотя бы общие знания об устройстве самой системы, а также соблюдение всех инструкций.
Благодаря компактности станции Сололифт, ее можно разместить за унитаз, раковину, ванну или же рядом с бытовой техникой, таким образом, чтобы их не было видно. Но при этом все ж необходимо учесть такие нюансы:
- отдаленность сливного отверстия и отверстия резервуара не должна быть больше чем 40 см;
- установка должна быть отдалена от стены как минимум на 10 мм.
Sololift работает от розетки с напряжением 220 вольт
Очень важно чтобы электропитание насосной установки было без перебоев. Иначе высок риск переполнения резервуара
Не забудьте сопоставить диаметр патрубка Сололифта и диаметр впускной канализационной трубы, необходимо чтобы они были одинаковыми. Лучше сделайте это перед покупкой системы, чтобы по ошибке не приобрести Sololift, который не совместим с вашей канализацией.
Для подключения Сололифта вам понадобятся такие инструменты:
- дрель или перфоратор;
- ножовка для металла;
- разводной ключ;
- зубило;
- молоток;
- отвертки;
- рулетка;
- строительный уровень;
- маркер или карандаш.
Сололифт не шумная система, но если вы очень чувствительны к звукам, то при установке используйте виброизолирующие прокладки.
Тонкости проведения подключения
Если вы собираетесь подключать к Сололифту унитаз, то желательно насосную систему дополнительно оборудовать специальным размельчителем. Это устройство облегчит слив фекалий и способно справится даже с предметами гигиены, если они каким-то образом попали в канализационную систему. Но вот тряпку измельчителю не одолеть и вряд ли удастся сохранить бесперебойную работу.
Если планируется присоединение к Сололифту ванной или душевой кабины, то желательно сливное отверстие оснащать специальным фильтром. Его задача – препятствовать проникновению в канализацию волос, шерсти животных, волокон мочалок или полотенец.
Насосная система Сололифт идет в комплекте со всеми нужными деталями для крепления. Если заменить их какими-то другими или же применять еще дополнительные, то это может закончиться затруднениями при установке и при последующем использовании устройства.
Готовя устройство к монтажу, внимательно следите за тем, чтобы все вышеперечисленные требования были выполнены. Только тогда можно приступать к установке
Крайне важно, чтобы каждый стык был плотно и герметично соединен
Финальная стадия подключения Сололифта к канализации – контрольная проверка качества выполненных работ. Для этого нужно:
Присоединить насосную систему к электропитанию. Заполнить резервуар чистой водой. Запустить насос. Посмотреть, насколько устойчива система во время перекачивания жидкости
Обратить внимание, нет ли чрезмерной вибрации, шума, протечки
При обнаружении каких-либо неполадок, необходимо их исправить и снова все перепроверить.
Преимущества сололифтов
Главное достоинство устройства – высокое качество работы, несмотря на узкие трубы. Но есть и другие плюсы:
- компактность насоса и труб;
- быстрая и легкая установка;
- отсутствие сложных работ при монтаже;
- удобство в применении;
- экономическая выгодность;
- мобильное размещение санузла.
После установки такого приспособления можно не оглядываться на размещение канализационного стояка. Сантехнику можно ставить где угодно. Дополнительное достоинство – неприметность тонких труб, которые совершенно не вредят интерьеру любого помещения. Их можно спрятать за плинтус или карниз и забыть об их существовании.
Разновидности системы
Характеристики канализационного насоса «Сололифт» отличаются в зависимости от конкретной модели. Производитель выпускает линейку из 5 устройств, для монтажа в санузле подходят следующие виды:
- Sololift2 WC-1. Установка предназначена для подключения раковины и унитаза, мощность составляет 620 Вт, объем бака – 9 литров. В комплекте поставляется измельчитель, дробящий крупные отходы. Пропускная способность системы – 149 литров в минуту.
- Sololift2 WC-3. Модель используется для создания канализации принудительного типа в коттеджах и дачных домах, отличается увеличенной мощностью и позволяет подключить три дополнительных потребителя, помимо унитаза. Владелец может поставить такой насос для работы раковины, душевой кабины, ванны, биде или иной сантехники.
- Sololift2 CWC-3. Устройство оснащено встроенным режущим механизмом, мощность составляет 620 Вт, а пропускная способность – 137 литров. Это приспособление подходит для установки настенного унитаза либо писсуара и трех дополнительных устройств на выбор.
Производитель выпускает модели для серых стоков, отличающиеся характеристиками и габаритами:
- Sololift2 C-3. Мощность составляет 640 Вт, в минуту система обрабатывает до 204 литров стоков. Модель не оснащена измельчителем, но позволяет подключить расширенный спектр потребителей. Она подходит для водоотведения жидкости с температурой до 90 градусов.
- Sololift2 D-2. Эта модель наиболее компактная и легкая, мощность составляет 280 Вт, а пропускной предел – 119 литров.
Что представляет собой система Sololift
Система Sololift представляет собой небольшую канализационную насосную установку, которая облегчает слив стоковых вод с любых сантехнических устройств вне зависимости от того, где они находятся. Современный дизайн и компактность устройства позволяют применять Сололифт в квартире без нарушения гармоничности и красоты интерьера.
Подобные установки необходимы для сбора стоковых вод через нагнетательный трубопровод в автоматическом режиме с последующим измельчением всех крупных вхождений. Далее, полученная смесь откачивается в переливную трубу, ведущую к канализации (на высоту до 7 метров если труба вертикальная или на расстояние до 100 метров, когда труба горизонтальная).
Как выбрать канализационный насос Сололифт для унитаза и раковины − рекомендации нашей редакции
Прежде чем купить Сололифт для канализации, следует предварительно изучить технические параметры устройства, а также определиться с назначением использования. Если предстоят ремонтные работы в доме с последующей перепланировкой и переносом приборов, следует отдать предпочтение насосным станциям с несколькими входными отверстиями.
Типы приборов, совместимых с насосными станциями Grundfos
Крайне важно учитывать показатель максимальной температуры воды, при которой допускается нормальная работа оборудования. Также при выборе насосной станции нужно учитывать способ её установки, поскольку, чем выше она располагается, тем большей будет потребляемая мощность. Если неправильно подобрать установку (по мощности и производительности), существует большая вероятность того, что насос не выдержит нагрузки и перегорит
По этой причине следует подбирать систему с небольшим запасом основных технических параметров. Предлагаем к просмотру видеоролик, который позволит быстро разобраться с критериями выбора насосных систем Сололифт
Если неправильно подобрать установку (по мощности и производительности), существует большая вероятность того, что насос не выдержит нагрузки и перегорит. По этой причине следует подбирать систему с небольшим запасом основных технических параметров. Предлагаем к просмотру видеоролик, который позволит быстро разобраться с критериями выбора насосных систем Сололифт.
Видео «Критерии выбора насосных станций Sololift»:





































