Содержание:
Если у вас всё совпало наклейте по две полоски двухстороннего скотча или монтажной ленты на картонные боковины и приклейте их на нужной высоте к кондиционеру, после чего вставьте сам экран в прорези. Имеет идеальное соотношение цены, качества и приятного взгляду облика. Защитный козырёк представляет из себя металлическую защиту, которая крепится к стене над кондиционером, обычно козырёк имеет неьольшой уклон в сторону от стены, чтобы падающий снег или лёд сваливался с него на землю. Естественно работы по демонтажу и последующей установке войдут в ваш счёт за ремонт кондиционера. Навес Для Кондиционера Своими Руками
Преимущества дефлектора для кондиционера из поликарбоната Основной недостаток установки защитных конструкций — это ограничение доступа для обслуживания кондиционера. Поскольку комнаты обычно имеют небольшие размеры с большой вероятностью поток прохладного воздуха будет попадать на человека, что небезопасно для здоровья. Экран для кондиционера из поликарбоната Экран для кондиционера металлический нержавейка, хромированная сталь.
Contents
Подготовительные работы Принципы работы Полезные подсказки Преимущества и недостатки Тонкости монтажа Сгорела лампа Поломка датчиков Сгорел предохранитель Технические показатели
Экран для кондиционера своими руками
Воздухораспределительное устройство под кондиционер стоит недорого, отзывы о нем в основном положительные. Чтобы избежать лишних трат, многие пытаются сделать экран для кондиционера своими руками.

Защитный экран для кондиционера своими средствами сделать достаточно просто. Понадобятся стандартный набор инструментов, материал для устройства: оргстекло, гофрокартон, поликарбонат и т.д. Защитный экран для кондиционера своими силами выкраивается по специальному чертежу (на фото) с предварительно снятыми размерами сплит-блока (настенный, кассетный, потолочный).
Сконструированный таким образом защитный экран для кондиционера своими средствами монтируется к стене или потолку саморезами, другими крепежными механизмами. Главное, обеспечить безопасное функционирование, легкий доступ для технического обслуживания.
Как смонтировать экран для климатической техники
Вся процедура установки защитного экрана для кондиционера сводится к банальной фиксации изделия к стеновой полости. Для чего в комплект поставки входят крепежные элементы и дюбеля. То есть вначале определяется наиболее оптимальное расположение экрана (определяется опытным путем), а после этого осуществляется процедура крепежа.

При этом для того чтобы защитный экран для кондиционера полностью выполнял возлагаемые на него задачи и не вызывал повреждения климатического оборудования желательно выполняя монтаж устройства придерживаться определенных рекомендаций:
- Приобретать отражатели соответствующих размеров (исходя из габаритов внутреннего блока);
- Располагать экран под наиболее оптимальным углом к линии горизонта;
- Размещать изделие на удалении от самого кондиционера на 300 – 400 мм.
Как сделать своими руками?
В качестве материала для изготовления экрана в домашних условиях подойдет пластик, оргстекло или картон (толщиной около 4 мм). Более тонкий лист во время вибрации создает шумы, а слишком плотный – утяжеляет изделие. Прежде чем выкраивать экран, лучше сделать шаблон из бумаги. Далее стоит придерживаться пошаговой инструкции.
Шаблон прикладывают к пластику или оргстеклу и производят разметку. Намечают также места сгибов и нахождения саморезов. Затем с помощью ножа или стеклореза убирают лишние части. Аккуратно по разметке сгибают стороны экрана. Для этого оргстекло укладывают на стол так, чтобы его края оставались на весу
С помощью прогревания строительным феном смягчают материал и осторожно сгибают пластину, стараясь выдерживать угол в 40–65 градусов
Примеряв изделие и сделав отметки на стене, конструкцию к ней крепят саморезами Важно, чтобы экран располагался в 30–40 см от блока кондиционера, тогда он не помешает работе оборудования, а воздуху будет достаточно места для выхода. Гораздо проще дома изготовить дефлектор из картона
Внешний вид будет уступать пластику или оргстеклу, но зато не понадобятся строительный фен и саморезы. Картонное изделие можно монтировать на двусторонний скотч. Улучшить внешний вид поможет оклеивание экрана любой понравившейся картинкой
Гораздо проще дома изготовить дефлектор из картона. Внешний вид будет уступать пластику или оргстеклу, но зато не понадобятся строительный фен и саморезы. Картонное изделие можно монтировать на двусторонний скотч. Улучшить внешний вид поможет оклеивание экрана любой понравившейся картинкой.
Мастер-класс по изготовлению защитного экрана смотрите далее.
Типы и виды защитных экранов для кондиционера
Классификация, разновидности и варианты устройства
1. в зависимости от вида кондиционера:
Экран для настенного кондиционера
Поскольку сплит-системы являются наиболее распространенными системами, которые применяются и дома, и в офисных помещениях, то и отражатели данного вида встречаются наиболее часто.
Несмотря на то, что многие производители изготавливают экраны только под заказ, экран для сплит-системы стандартного размера можно приобрести уже в готовом виде.
Экран для потолочного кондиционера
Файнколы или потолочные кассетные кондиционеры также не идеально распределяют охлажденный воздух, а поэтому нуждаются в установке экранов.
Экран для кассетного кондиционера
Действует аналогично экрану для сплит-системы, направляя воздух в потолок, благодаря бортикам, загнутым кверху.
Отражатель для блоков при централизованном кондиционировании.
Материал подготовлен для сайта www.moydomik.net
2. по материалу:
Из гофрокартона (наиболее дешевый вариант экрана, выполненный из картона и подручных средств в домашних условиях) и пластика (из-за непрозрачности не всегда вписывается (сочетается) в дизайн интерьера помещения)
Из оргстекла и акрила (самый популярный материал для изготовления экранов)
Из поликарбоната и металла
- поворотный;
- стандартный (фиксированный);
- с направляющими.
Материал, из которого изготавливается экран
Чаще всего материалом для изготовления отражателя для кондиционера выступает органическое стекло или акрил. Прозрачный экран выглядит довольно стильно и практически невиден на фоне стены и внутреннего блока кондиционера. Его легко можно задекорировать под определенный цвет или, например, искусственной зеленью.
В интернете появилось большое количество вариантов отражателей из гофрокартона. Естественная влажность воздуха в помещении довольно быстро может разрушить это приспособление, поэтому стоит выбирать отражатель из таких материалов, на которые не воздействует влага. Не стоит забывать и о необходимости периодической влажной чистке экранов для кондиционера.
Отражатель для «кассетника»
Несмотря на то что кассетный кондиционер крепится, как правило, по центру комнаты и может раздавать охлажденный воздух по всем четырем сторонам, холодные массы воздуха слишком быстро опускаются, а не движутся вдоль потолка. В таком случае находиться непосредственно под блоком такого климатического устройства невозможно без вреда для здоровья.
И если в холле гостиницы или в большом помещении магазина, человек не постоянно находится в непосредственной близости от холодного потока воздуха, то рабочее место в офисе или место зрителя в кинотеатре передвинуть невозможно. В этом случае также придут на помощь экраны для потолочных кондиционеров.
Он представляет собой лист оргстекла, с несколько подогнутыми кверху краями, который крепиться к потолку регулируемыми или стационарными стойками. Некоторые производители делают быстросъемные крепления, специально для подвесных потолков. Это наиболее удобный вариант, для возможности периодического технического обслуживания оборудования.
Как сделать отражатель своими руками
Многие компании-производители климатической техники, экран для кондиционера предлагают уже в «базовой комплектации». Покупая сплит-системы некоторых брендов, экран прилагается в качестве бесплатной опции или уже входит в ее стоимость. Но на многие модели кондиционеров экраны продаются как дополнительный девайс, который, несмотря на простоту конструкции, имеет довольно внушительную стоимость.
Если вам не повезло и в качестве бесплатного приложения к вашему климатическому устройству не предложили защитный экран-отражатель, то у вас есть два варианта:
- Не расстраиваться и купить его, потратив из собственного кошелька от 2000 до 4000 рублей.
- Не расстраиваться и сделать его своими руками, потратив на это максимум 1000 рублей и два часа свободного времени.
Несмотря на кажущуюся сложность, изготовить замечательный отражатель для кондиционера не составит никакого труда для любого домашнего мастера. Делать его мы предлагаем из органического стекла, как, впрочем, и экран заводского изготовления.
Для этого вам потребуется материал: квадратный кусок оргстекла, с размерами сторон большими вашего внутреннего блока на 20 см, дрель и сверло диаметром 4-5 мм, две хромированные шайбы с внутренним диаметром 4-5 мм, два самореза, фигурная отвертка, линейка или ровная деревянная рейка и обычный фен (можно строительный).
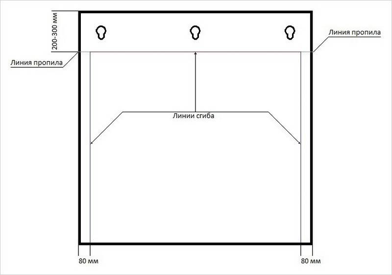
- Делаем выкройку. С одной стороны листа отмеряем 25-30 см и проводим полосу. Это будет крепление экрана, которое будет непосредственно прикручиваться к стене.
- Со стороны, прилегающей к произведенной разметке отложить 8 см и провести полосу до пересечения с уже отмеренной полосой крепления.
- Тоже сделать и с противоположной стороны. В итоге должен получиться лист оргстекла с отметкой в 25-30 см вдоль одной стороны, и двумя отметками на прилегающих к нему сторонах по 8 см, проведенных до пересечения с линией крепления.
- Теперь, с помощью пилки по металлу произвести распилы по линиям от края листа до пересечения с линиями сгибов. Распил будет длиной 8 см.
- После этого начинаем сгибать выкройку экрана. Для этого положите выкройку на край стола так, чтобы линия сгиба, отложенная вами 25-30 см. находилась вровень с краем стола, а остаток свободно свисал.
- Начинаем греть линию сгиба феном. Следите за тем, чтобы под струей горячего воздуха оргстекло не плавилось. При достаточном прогреве заготовка под собственным весом начнет сгибаться.
- Положите на ее край линейку, и слегка придавливая, продолжайте прогрев до ровно сгиба в 45-50°
После чего у вас должна получиться согнутая заготовка, на лини сгиба которой произведены разрезы по 8 см.
Положите заготовку на край стола так, чтобы полоса крепления смотрела вверх, а отмеченная полоса в 8 см свисала с края стола. Произведите прогрев феном по линии сгиба. Полоса должна быть согнута не менее чем по 45°. Поле произведите ту же процедуру с другой стороны заготовки. Теперь осталось просверлить в креплении готового экрана отверстия и закрепить всю конструкцию на стену.
Как видите, ничего сложного и страшного в изготовлении экрана для кондиционера нет, а если все сделано аккуратно, то он ничем не будет отличаться от его дорогостоящих покупных собратьев. Экран для потолочного кондиционера сделать еще проще, прикрутив по краям листа из органического стекла стойки и закрепив конструкцию на потолке.
Экран для кондиционера своими руками
Воздухораспределительное устройство под кондиционер стоит недорого, отзывы о нем в основном положительные. Чтобы избежать лишних трат, многие пытаются сделать экран для кондиционера своими руками.

Защитный экран для кондиционера своими средствами сделать достаточно просто. Понадобятся стандартный набор инструментов, материал для устройства: оргстекло, гофрокартон, поликарбонат и т.д. Защитный экран для кондиционера своими силами выкраивается по специальному чертежу (на фото) с предварительно снятыми размерами сплит-блока (настенный, кассетный, потолочный).
Сконструированный таким образом защитный экран для кондиционера своими средствами монтируется к стене или потолку саморезами, другими крепежными механизмами. Главное, обеспечить безопасное функционирование, легкий доступ для технического обслуживания.
Отражатель-радиатор конической формы для сверхяркого светодиода

Улучшая предыдущую конструкцию отражателя-радиатора хотелось больше сфокусировать световой поток светодиода к центру. Коническая форма отражателя сама напрашивалась, поскольку она почти полностью соответствует форме параболического зеркала. После некоторых расчетов и экспериментов имеем следующую конструкцию
Для изготовления такой красоты понадобятся: -алюминиевая (можно медная или жестяная) без царапин пластина толщиной до 1мм и размером 40х35мм -однослойно фольгированная текстолитная пластина размером 20х15 мм -сверхяркий светодиод, паяльник, два контактных провода, одна-две канцелярские скрепки -немного термопасты -плоскогубцы (круглогубцы), ножовка (ножницы) по металлу, надфили, циркуль, маленькая дрель -прямые руки для получения правильных кривых поверхностей
Теория все та же. Для того чтобы получить параллельный пучок света, необходимо установить кристалл светодиода точно в фокус параболического зеркала. Вот рисунок из прошлой статьи

Она оказалась даже проще предыдущей, единственная сложность – придать ей правильную форму, поскольку от этого зависит точность фокусировки светового пучка.
Вот пример разметки заготовки на листе алюминия:

В разметке нет ничего сложного. Не нужно высчитывать градусы, длины дуг и т.п. Вначале наносятся все прямые линии, а потом проводятся две дуги радиусом 28мм до пересечения с прямыми и разметка готова.
Материалом для отражателя-радиатора может служить алюминий, медь, или жесть от консервной банки. Медь и жесть даже более предпочтительны, поскольку они могут спаиваться. Толщина материала должна обеспечивать достаточную прочность конструкции. Для алюминия это не меньше 0,5мм. Теперь заготовка вырезается и сгибается. Вырезать желательно ножовкой, но если очень лень, можно и ножницами по металлу, как показано ниже. Тогда края придется выравнивать надфилем.
Выгибать отражатель нужно аккуратно, чтобы не царапать инструментом отражающую поверхность. После всех этих процедур получаем следующее:
Понятное дело, что контакты светодиода не должны касаться корпуса радиатора.
Ну вот собственно и все. Последний штрих – это закрепить между собой две половины конуса. Если материалом радиатора была медь или жесть, половинки просто спаиваются. Если же, как в данном случае, радиатор был сделан из алюминия, половинки склеиваются нанесением клея с внешней стороны отражателя. Эта, казалось бы, мелочь очень важна, поскольку прочность корпуса теперь увеличится в разы.
Теперь подключаем (соблюдая полярность) и наслаждаемся результатом. Сфера применения данной конструкции самая разнообразная, от настольных минисветильников и подсветок до самодельных фонариков
Источник
Самостоятельное изготовление короба
Полностью закрывающий отопительный прибор щит является одной из самых популярных моделей у домашних мастеров. Его можно изготавливать из самых разнообразных материалов и с разными вариантами исполнения.
В первую очередь необходимо подготовить:
- панели МДФ или ДСП подходящего цвета;
- металлическую сетку;
- задний отражатель из металла или фольги;
- крепежи;
- ножовку;
- дрель;
- клей;
- наждачную бумагу.
Создание эскиза
Работа начинается с замеров батареи и создания эскиза и чертежей будущего щита. Необходимо отмерить длину и ширину радиатора. Для короба эти значения увеличивают на 5 см для высоты и на 10 см для ширины. Нужно также измерить глубину батареи и добавить 2,5 см к решетке. Размеры крышки будут равны ширине фасадной панели плюс 1-2 см.
Далее полученные выкройки нужно перерисовать на металлическую сетку и вырезать по размеру. Один элемент нужен для фасада, два для торцов и один для крышки. Также на боковых частях нужно предусмотреть места для вывода отопительной системы.
Из плит выпиливают элементы для оформления решетки. В случае цельной крышки ее тоже нужно вырезать из МДФ. Концы полученных реек спиливают под углом 45°, чтобы потом удобнее было соединять раму. Спилы шлифуются наждачной бумагой.
Сборка частей
После подготовки всех деталей можно собирать решетку. Четыре рейки нужно зафиксировать друг с другом с помощью клея и гвоздей. Аналогичным образом соединяются торцевые детали и крышка. С обратной стороны крепится металлическая сетка на степлер.
Типы и виды защитных экранов для кондиционера
Классификация, разновидности и варианты устройства
1. в зависимости от вида кондиционера:
Экран для настенного кондиционераЭкран для настенного кондиционера (для внутреннего блока)
Поскольку сплит-системы являются наиболее распространенными системами, которые применяются и дома, и в офисных помещениях, то и отражатели данного вида встречаются наиболее часто.
Несмотря на то, что многие производители изготавливают экраны только под заказ, экран для сплит-системы стандартного размера можно приобрести уже в готовом виде.
Экран для потолочного кондиционераЭкран для потолочного кондиционера.
Файнколы или потолочные кассетные кондиционеры также не идеально распределяют охлажденный воздух, а поэтому нуждаются в установке экранов.
Экран для кассетного кондиционераЭкран для кассетного кондиционера
Действует аналогично экрану для сплит-системы, направляя воздух в потолок, благодаря бортикам, загнутым кверху.
Отражатель для блоков при централизованном кондиционировании.
Материал подготовлен для сайта www.moydomik.net
2. по материалу:
Из гофрокартона (наиболее дешевый вариант экрана, выполненный из картона и подручных средств в домашних условиях) и пластика (из-за непрозрачности не всегда вписывается (сочетается) в дизайн интерьера помещения)
Экран для кондиционера из кортона
Экран для кондиционера из пластика
Из оргстекла и акрила (самый популярный материал для изготовления экранов)
Экран для кондиционера из листового органического стекла (слева) и акриловый (справа)
Из поликарбоната и металла
Экран для кондиционера из поликарбоната
Экран для кондиционера металлический (нержавейка, хромированная сталь)
Варианты устройства экранов для кондиционера
- поворотный;
- стандартный (фиксированный);
- с направляющими.
Как сделать экран для перенаправления холодного воздуха
Из инструментов при изготовлении в домашних условиях могут пригодится:
- отвертка;
- линейка длиной 1 м;
- карандаш или маркер;
- шуруповерт, дрель для сверления отверстий;
- саморезы от 3 до 6 штук;
- ножницы или нож;
- строительный фен для разогрева пластика, оргстекла или акрила;
- стеклорез, если материалом для экрана будет стекло;
- строительный уровень.
Защитный экран из оргстекла своими руками – этапы работы
Подготовьте материал, ширина которого должна равняться ширине кондиционера плюс 15 – 20 см запаса по бокам для организации крыльев. Можно использовать оргстекло, толщина которого не менее 3 мм, чтобы не было вибраций от исходящего воздушного потока.
Этапы работы:
- Сделайте «выкройку». Отметьте по бокам 15 — 20 см и проведите линию под линейку. Это будущие боковые крылья. Они не дают расходиться холодному воздуху по комнате, поэтому делаются достаточно высокими.
- С одной стороны отмерьте 20 см – это будет крепление. Наметьте точки сверления для саморезов. Пропилите по линиям сгиба в месте предполагаемого крепления к стене.
- По линиям согните оргстекло, положив на край стола по предполагаемому сгибу. Нагрейте строительным феном и аккуратно загните вниз до угла в 45 градусов боковые части. Место крепления к стене – на 90 градусов.
- Просверлите отверстия для саморезов дрелью.
- Перед монтажом на стену желательно точно знать, где проходит электропроводка, чтобы не повредить ее. Приложите экран к стене и маркером наметьте места для саморезов. Чтобы произвести монтаж строго горизонтально, используйте строительный уровень. Просверлите в стене отверстия и вставьте пластмассовые дюбеля.
- Прикрутите шуруповертом экран к стене.
Потолочный дефлектор отличается выкройкой и способом крепления. Размеры кондиционера отмечаются на выкройке. По краям оставляют место для загибов. Для эстетики они должны быть одинаковой ширины. Оргстекло загибается при помощи строительного фена с четырех сторон. Крепить приспособление можно двумя способами:
- К потолку. Для этого используют скобу, одна сторона которой крепится к экрану, другая – к потолку.
- Скобами за решетку кондиционера. В таком случае только одна сторона скобы прикручивается к оргстеклу. Вторая сторона одевается на край решетки.
Дефлектор кондиционера из картона
Если возникла необходимость в срочном порядке организовать защитный экран для бытовой сплит системы, можно использовать плотный картон и скотч для присоединения к корпусу внутреннего блока. Такое сооружение смотрится не очень презентабельно, но при отсутствии материалов и инструментов спасает людей от простуды в жаркое время года.
Выкройка для картонного защитного экрана отличается более высокими боковыми крыльями. Они должны равняться высоте внутреннего блока, чтобы их можно было приклеить скотчем к корпусу. Загнуть их нужно на 90 градусов. Для надежности передний край защитного экрана также приклеивается к корпусу, чтобы приспособление дольше продержалось.
Принцип действия экрана-отражателя
Согласно законам физики, теплый воздух легче, поэтому находится вверху. Холодный стремится вниз. Все кондиционеры работают по принципу движения охлажденного потока вниз, где находятся люди. Это и создает проблемы со здоровьем. Если поток направить сначала вверх, то пройдя через слой теплого воздуха, он охладит сначала его, затем, слегка нагретый, опустится вниз. Таким образом можно снизить мощность оборудования и потребление электроэнергии, хоть и незначительно.
Отражатель для кондиционера представляет собой панель из плотного материала, который устанавливается на пути следования холодных масс и перенаправляет их вверх – к потолку. Панель должна быть укреплена надежно к стенам или к самому кондиционеру. В зависимости от выбранного материала и его веса применяют простые шурупы или дюбеля.
В домашних условиях, при изготовлении экрана из легкого материала, например, картона, можно обойтись двусторонним строительным скотчем. Более тяжелые материалы не следует крепить на скотч, потому что они могут отвалиться.
Промышленность предлагает несколько разновидностей устройств, которые отличаются:
- дизайном;
- конфигурациями, в зависимости от типа кондиционера (настенный, потолочный, кассетный);
- материалами.
Наиболее часто встречаются в продаже экраны для настенных бытовых сплит систем. Исходя из ширины внутреннего блока подбирается подходящий рассекатель и крепится на стену. Чтобы сплит работал в обычном режиме, при установке нужно соблюдать некоторые правила.
Как настроить кондиционер на холодный воздух
Кондиционер способен охлаждать помещение до 16 – 18 С°, но такая температура требуется крайне редко. Производители сплит-систем рекомендуют соблюдать разницу в 5 градусов между уличной температурой и устанавливаемой. В этом случае исключается резкий перепад, который может вызвать проблемы с сердечно-сосудистой системой.
Настройка на холод состоит из 6 этапов:
- Нажать кнопку ON на корпусе внутреннего блока (обычно она находится справа). Должен раздаться звуковой сигнал.
- Затем нужно включить кондиционер путем нажатия «ON» на пульте. После этого откроются жалюзи.
- Нажимая «Mode», выбираем нужный режим, то есть охлаждение. Ждем появления на дисплее пульта снежинки или слова «Cool».
- С помощью «Temp»» ( «+», «-») выставляет необходимую температуру.
- Используя «Fan», подбираем оптимальную скорость потока. Если изначальная скорость устраивает, можно пропустить этот шаг.
- Кнопкой «Swing» направляем поток в нужную сторону.
Кондиционеру потребуется некоторое время, чтобы нагнать установленную температуру. Как только прибор достигнет нужных параметров, он выключится. Если у вас стоит инверторная модель, она просто сбавит обороты не выключаясь.
Необязательно отключать кондиционер на ночь. Просто поставьте значения на 1-2 градуса выше, и вам будет комфортно.





































