Водопровод и канализация
Система водоснабжения дома запитана от центрального водопровода поселка. Так как падение давления воды в водопроводной сети в жаркие дни не редкость, то в центральную водопроводную сеть врезался трубой диаметром 40 мм, а не 32 мм.
На входной магистрали водопровода в доме установлен насос, повышающий давление в домашней сети. На входе установлены два фильтра грубой очистки. Вся разводка водоснабжения выполнена ПВХ-трубами диаметром 22 мм в теплоизолирующих рукавах (чтобы теплый пол не грел холодную воду для ванной и наоборот).
В качестве канализационного резервуара выступает металлическая бочка на 7 тонн. Для удобства откачки сточных вод она закопана в углу участка, ближе к улице. Дренирующие рукава от канализационного резервуара не раскладывались из соображения экологии. Чтобы бочка «не всплыла» при подъеме грунтовых и паводковых вод, по ее бокам наварены «распорные крылья».
Старый сруб или дорогие блоки?
По материалу для стен стоял выбор между газосиликатными блоками и деревянным брусом из старого деревенского дома (на realt.tut.by как раз статья есть на эту тему, и я полностью поддерживаю и разделяю выводы автора). Дело в том, что в то время (2010 год — время возведения стен) газосиликат стоил почему-то крайне дорого, поэтому я искал решение, как сэкономить. Но произошел «плановый обвал» рубля, и блоки стали более доступными. В итоге закупил ГСБ Березовского завода, размером 60*30*30, посчитав толщину в 30 см вполне достаточной для нашей широты с будущей перспективой утепления. Блоки пришли идеального качества, поэтому укладка велась легко и просто. Укладывал блоки мой приятель, по ценам ниже рыночных на тот момент, подсобником у него был я. Принять непосредственное участие в стройке мне пришлось по нескольким причинам. Я сразу запланировал залить теплый (скрытый) армопояс по периметру стен, а U-блоков тогда не было в продаже. Поэтому я вырезал их сам из стандартных блоков с помощью дрели с длинным буром и болгарки. Кроме меня, эта операция ни у кого из тестируемых наемных подсобников не получалась.
Мауэрлат опирается на «теплый» монолитный пояс
В конечном итоге сэкономил на подсобнике, на U-блоках и заодно проконтролировал качество работы приятеля при укладке. Да, присутствие заказчика на месте позволяет поднять качество выполняемых работ и избежать непоправимых ошибок строителей, особенно если проект сложный.
Стекло, из которого можно построить дом
Названия известны всем – это триплекс, или безопасное стекло, или ламинированное, или многослойное. Характеристики, возможные при различных технологиях производства безопасных стекол:
- Защита от УФ-излучения
- Теплосбережение
- Звукоизоляция и шумозащита
- Взрывобезопасность и пулестойкость
- Многофунциональность
Качества триплекса (название не совсем корректно, слоев может быть намного больше) зависят от возможностей технологии фирмы-производителя, теоретически можно изготовить многослойное стекло со всеми этими свойствами.

Определение многослойного стекла по ГОСТ 30826-2001: плоское изделие, составленное из стеклянных листов, склеенных слоями жидкого полимера или силиката. Конструкция – стеклянный «слоеный пирог», имеющий промежуточные слои из полимерной (или двухкомпонентной) самоотверждаемой смолы, или геля. Внутренние и внешние слои могут быть также из PVB-пленки (поливинилбутиральной пленки толщиной одного слоя 0,38 мм). Эта пленка может использоваться сразу несколькими слоями, и в маркировке стекол она указывается не толщиной в мм, в эквиваленте количества пленок к одному слою.

Задачи и применение многослойного стекла огромны. Главная их функция – защитная. И конечно, само стекло должно быть безопасным. Один из испытательных тестов – удары топором по стеклу, три раза с размахом.
Антивандальные стекла одновременно безопасны и для хозяев. Если все же стекло умудрились разрушить, то травмироваться об него не так просто. Стекло потрескается, но пленка будет держать слои. Острых концов не будет. Ограждения балконов, лоджий и балюстрад многослойными стеклами не позволят человеку разбить стекло и выпасть. Стеклянный пол, лестница и потолок в доме уже давно не диковина, они функциональны, удобны в эксплуатации и очень эстетичны, буквально заставляют интерьер играть.

Один из архитектурных и дизайнерских изысков – дома с деревьями. Или правильнее будет – дом для дерева?

Свойства многослойных стекол
Перечисли еще несколько свойств многослойный стекл:
- Чрезвычайная стойкость к истиранию, стойкость цвета и неизменность внешнего вида в процессе эксплуатации. Деламинация (процессы расслоения и заворачивания слоев) для качественного многослойного стекла невозможна.
- Долговечность данного материала дает возможности для интересных архитектурных и дизайнерских решений. Эстетичность, возможность создания любых цветов и оттенков, применяя пленки и полимеры обширной цветовой гаммы.
- Создание комфорта в доме – пропускает свет, но отлично защищает от шума. Возможности энергетического контроля – залог энергоэффективности дома. Минимизация затрат на освещение и обогрев в течении всего года. Защита от УФ-излучения.
Стекло как строительный материал
Кроме сказочной красоты, строительство такого дома – это экономия времени. Так как стеклянные формы изготавливаются на производстве фантастически быстро. Стены из такого материала обладают идеальной звукоизоляцией и сохранением тепла, мягки и бесшумны в эксплуатации, их технологии без проблем выдерживают температурные режимы от -40 до +50 градусов. При строительстве они идеально стыкуются, безопасно перемещаются. Они прочны, а значит долговечны. Уход за этими стенами, как за обычными стеклянными окнами. Фурнитура данного строительного материала имеется очень разнообразная. Стекло может быть прозрачным либо цветным, матовым, зеркальным, рельефным и т.д. выбор зависит от дизайнерского решения. Стекло пропускает ультрафиолетовый свет, что обеспечивает своеобразную дезинфекцию воздуха и предметов в доме.
Дома в стиле фахверк: преимущества и недостатки
Немцы к любому делу подходят с особой скрупулезностью, что касается и строительства домов. При возведении зданий используются рациональный подход и практичность. В Германии можно увидеть дома старше 200-300 лет, которые до сих пор сохранили привлекательный внешний вид. Это происходит потому, что при строительстве четко продумываются проекты и подбираются качественные материалы, которые и продлевают срок эксплуатации сооружения. Помимо этого, строители не экономят на обработке комплектующих деталей.
Строить здания в стиле фахверк финансовые выгодно и при этом быстро.
Другие достоинства созданных в немецком стиле домов:
- Внешняя привлекательность. Как в реальной жизни, так и на фото, дома фахверк выделяются среди других зданий: они выглядят необычно и эстетично.
- Короткий срок строительства. Обычно фахверк дома под ключ возводят за 3-4 месяца.
- Экономичность. Удешевление строительства происходит благодаря экономии на возведении фундамента.
- Небольшая усадка. Каркасная основа и деревянный фасад дома, выполненный из клееного бруса, не отличаются большим весом и дают минимальную усадку. Это позволяет проводить внутреннюю отделку дома сразу после возведения основы.
- Много солнечного света в помещениях. Характерные черты конструкции позволяют размещать большие панорамные окна, вследствие чего все комнаты освещаются солнечными лучами.
- Удобное размещение коммуникаций. Особенности возведения позволяют легко спрятать электрокабели и водопроводные шланги в ниши, образованные при сооружении дома.
Кроме этого, существует возможность любой планировки. Благодаря тому, что каркас выполняет основную несущую функцию, планировать расположение комнат можно в любом исполнении. Проекты фахверк домов могут предполагать большие по площади помещения – 65-75 м², при этом нет необходимости продумывать дополнительные опоры. Особенности постройки позволяют эксплуатировать дом в любых климатических условиях.
Для каркасного дома могут потребоваться дополнительные утепление и гидроизоляция.
Главный недостаток дома в стиле фахверк – его высокая стоимость. Разработать и воплотить дизайн здания фахверк будет дороже, чем соорудить просто каркасный дом такой же площади. Цена готового дома меняется в зависимости от внешней отделки фасада, количества и качества окон, а также от выбранных материалов.
Другие минусы немецких домов:
- Необходимость постоянной обработки деревянных конструкций. Чтобы дом дольше служил, следует постоянно дезинфицировать дерево от паразитов, грибка, а также пропитывать его огнеупорными смесями.
- Если дом строится в сложных климатических условиях (повышенная влажность или низкая среднегодовая температура), требуются дополнительное утепление и гидроизоляция. В таких зданиях, особенно на первом этаже, рекомендуют продумать наличие теплого пола.
- Большая площадь остекления. Чтобы обеспечить зданию высокую прочность, лучше применять бронированные окна либо триплекс.
В каркасных домах возможно организовать любую планировку, т. к. отсутствуют несущие стены.
Дом из стекла и стали – внешний и внутренний вид

Рассмотрим отличный пример дома из стекла и стали, который расположен на вершине холма, с южной стороны дома открывается вид на бескрайнее море, с северной стороны виден чудесный лес. Комфортный интерьер поддерживает баланс между современным и деревенским.

Во внутренней отделке стеклянного дома использованы натуральные материалы – мебель, полы и обшивка выполнены из дерева. Дизайн комнат аскетичен, но выглядит все очень стильно – отделка почти полностью устранена, использована нейтральная цветовая палитра.

Вы когда-нибудь видели стеклянный дом
? Если да, то вряд ли забудете это впечатляющее зрелище, если нет, то было бы неплохо взглянуть на одно из таких строений для того, чтобы поднабраться положительных эмоций. Стеклянные дома, фото
которых представлены в Интернете, действительно поражают великолепием своих фасадов, разнообразием форм и архитектурных решений и своей необычностью.
Возможно, кому-то покажется, что стеклянный загородный дом
не очень удобен для проживания из-за своей прозрачности и кажущейся хрупкости стекла, однако те, кому выпал шанс пожить в таком архитектурном чуде, придерживаются абсолютно другого мнения и мечтают о том, чтобы построить такой же дом для себя. А уж как в нём светло!
Алюминиевые стеклянные перегородки в офисе
Конструкции из профиля и стекла используют для обустройства офисного пространства. Выполняя проект и изготовление таких перегородок из алюминия, сотрудники нашей компании продумали всё до мелочей, включая возможность прокладки провода или кабеля для офисной техники.
Офисные перегородки помимо основной функции имеют следующие достоинства:
- использование в качестве элемента декора. Применение технологий фотопечати и пескоструйной обработки позволяет создавать оригинальный стиль интерьера. Перегородка как разделяет пространство, так и украшает помещение;
- прочность и безопасность. Для заполнения секций офисных перегородок используют стекло со специальным покрытием, не позволяющее осколкам разлетаться, что исключает травмы при повреждении конструкции;
- пожаробезопасность. Перегородки из алюминия устанавливают как в офисах, так и на складах и торговых павильонах, ведь они герметичны и соответствуют требованиям к теплоизоляции;
- влагостойкость. Алюминиевые перегородки используют в сантехнических помещениях, включая офисные.
Стеклянный дом R-128 от Вернера Зобек
Уже построенное здание находится в городе Штутгарт (Германия). Минималистичная модульная конструкция спроектирована немецким архитектором (Werner Sobek), который сам в ней и живёт. Дом получил звание архитектурной иконы ХХ века.
В качестве стен дома использованы тройные стеклопакеты высокого качества. Приватность проявляется только в двух туалетах и душе, которые закрыты алюминиевыми каркасами.
В доме есть солнечные батареи мощностью 6,77 кВт. Дом оснащён геотермальной энергией и охлаждением. Все строительные материалы на 100% безвредны для окружающей среды и могут быть подвергнуты вторичной переработке. Управляется дом при помощи датчиков движения и с помощью голосовых команд.
Важно отметить, что дом был построен всего за 11 недель
Остекление входной группы коттеджа
Входную группу загородного коттеджа изготавливают из пластика, алюминия, металла и дерева.
Металлическая конструкция обладает устойчивостью к механическим воздействиям, не подвергается коррозии и гниению. Алюминиевый профиль применяется для устройства входной группы различной конструкции и дизайна.
Алюминиевые раздвижные системы
Преимущества пластика в его стоимости и многообразие расцветок. Он хорошо переносит изменение температурных режимов.
Ламинированный пластиковый профиль под дерево
По конструкции входные группы разделяют на теплые и холодные. В первом случае тепло сохраняется внутри помещения. При изготовлении теплой входной группы используют двух-, и трехкамерный стеклопакет, термостат и устанавливают дополнительные двери.

Для остекления входной группы используют стеклопакеты, закаленное стекло, триплекс. Само стекло имеет энергосберегающее, солнцезащитное, акриловое или матовое покрытие.

В работе используют также витражные стекла и стекла с повышенной светопроницаемостью.

Закаленное стекло имеет явное преимущество в том, что при механическом повреждении распадается на мелкие гранулы, которые не опасны для здоровья человека.
Стеклопакеты с закаленным стеклом
Триплекс это стекло с повышенной прочностью. Оно защищает дом от шума, ветра и холода.

Инновационным вариантом остекления входной группы загородного дома является устройство мягких окон. Они состоят из поливинилхлоридной пленки, которая имеет плотную структуру. Летом пленка защити дом от дождя, ветра и прямых солнечных лучей.

Перечень обязательных архитектурных чертежей дома с размерами
Архитектурно-строительные чертежи предполагают указание точных габаритов, содержат характеристики общих параметров дома, отдельных сооружений, конструкций и их частей. Здесь включены детальные планы каждого из этажей, предусматривающие размещение жилых комнат и хозяйственных помещений. Указывается площадь всех элементов, высота потолков, месторасположение проемов для окон и дверей.
Например, чертежи для двухэтажного дома с мансардой в архитектурно-строительном разделе располагаются в таком порядке:
- план подвала;
- план первого этажа;
- план второго этажа;
- план мансарды.
Также в этом разделе должен быть размещен план стропильной конструкции крыши. Чтобы начертить чертеж, необходимо изобразить полную систему элементов конструкции перекрытий в сечении. В таблице, которая прилагается к чертежу, указываются спецификация частей стропильной конструкции крыши, полный список ассортимента материалов и их количество. План кровли составляется отдельно, в нем указаны форма, габариты, скатность крыши и углы наклонов, а также месторасположение вентиляционных выходов, слуховых окон, люкарн, окон мансарды.
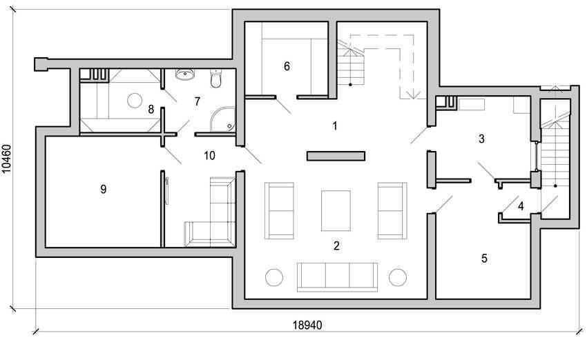
План подвального этажа, где 1 – холл, 2 – комната отдыха, 3 – топочно-постирочная, 4 – тамбур, 5 – кладовая, 6 – кладовая, 7 – санузел, 8 – сауна, 9 – спортзал, 10 – терраса.
Чертежи частных домов в обязательном порядке включают несколько разрезов с указанием всех элементов строения вдоль или поперек. Их выполняют последовательно от крыши к фундаменту. Таким образом, в сечении видны размеры и расположение пола, всех перекрытий и крыши. Подобных разрезов, сделанных с разных сторон, должно быть пять.
Защита от перегрева
Жарким летом комната под стеклянной кровлей может превратиться в весьма некомфортное место, если заранее не позаботиться о методах борьбы с перегревом. Существует несколько проверенных способов сохранения комфортного микроклимата. Важнейшим приемом защиты комнаты от перегрева служит вентиляция, поэтому не рекомендуется экономить и отказываться от организации открывающихся створок.
Можно использовать поперечный и диагональный способ вентилирования. В первом случае воздух идет через форточки, расположенные на одном уровне. Во втором случае нагретый воздух, как более легкий, выходит через форточки в кровле, а свежий наружный попадает внутрь через вентиляционные каналы в нижней части стен. Уменьшить перегрев можно, ограничив светопропускание кровельных элементов; этого можно добиться несколькими способами:
Выбор солнцезащитного стекла. Крупные производители предлагают широкий ассортимент стекол с разным механизмом действия. Стекло может отражать или поглощать ультрафиолет; для этого оно окрашивается в массе или выполняется со специальным покрытием.

Стеклянные крыши подходят для любого климатаИсточник sargorstroy.ru
- Использование солнцезащитных пленок. Тонировка пленками проводится по завершению монтажа; она гасит солнечные блики и отражает 70-80% солнечного света. Комната избежит перегрева, а вы сэкономите на кондиционировании. Предлагаемые на рынке пленки разнообразны по цвету и уровню затемнения или зеркальности. Недостаток — пленочное покрытие боится чистки абразивными пастами и жесткими щетками.
- Внешние защитные экраны. Подобная система защищает не только от ультрафиолета, но и от случайных повреждений камнем или сосулькой. Вместе с тем, экранам необходима автоматическая система управления, они должны быть рассчитаны на сильные ветровые нагрузки.
- Маркизы. Тканевые маркизы устанавливаются как внутри, так и снаружи помещения, кровля с таким украшением приобретает элегантный вид. Их с успехом используют в обустройстве зимнего сада, когда площадь крыши небольшая. При монтаже внутри жилой комнаты следует помнить, что защита от перегрева будет минимальной.

Крыша в форме пирамидыИсточник flauminc.com
Рольставни (ролеты). Разновидность жалюзи, устанавливаются с внешней стороны и служат надежной защитой от солнечных лучей, осадков, пыли и шума. Современные технологии позволяют изготовить ролеты разнообразных форм и размеров, способные вписаться в экстерьер любой постройки.
Теплое остекление коттеджа
Трехкамерный стеклопакет с ассиметричной компоновкой
Основное назначение оконных и дверных конструкций – снижение теплопотерь дома. Теплое остекление загородного дома позволит сделать его теплым, уютным и комфортным для проживания в нем.
Преимущества теплого остекления:
- теплоизоляция помещений;
- защита от уличного шума;
- создание в доме дополнительного теплого пространства;
Работы по утеплению проводятся с применением трех типов оконных конструкций.
- Оконные блоки из ПВХ. Их делают распашными с одно или двухкамерными стеклопакетами. Преимущества таких окон в их доступной стоимости, высоких теплотехнических характеристиках, отличной звукоизоляцией и простотой в обслуживании.
- Деревянные окна. Они изготавливаются по новой технологии – из клееного бруса из натуральной древесины. Окна долговечны, экологически безопасны в использовании, имеют способность естественной вентиляции.
- Алюминиевые окна. С их помощью создают конструкции нестандартных форм и размеров, в том числе и для увеличенных проемов. Профиль из алюминия с пластиковыми вставками под стеклопакеты имеет отличные теплосберегающие параметры.

При проведении теплого остекления загородного коттеджа следует учитывать некоторые особенности проведения работ:
- размеры окон всегда будут отличаться от стандартных;
- откосы в частных домах немного шире;
- демонтаж и установка новых окон займет больше времени.
Чтобы обезопасить себя, на нижних этажах следует устанавливать окна с особо прочными стеклопакетами и фурнитурой против взломов.

Дорого ли будет стоить постройка стеклянной стены / перегородки в доме?
В среднем, компании, предлагающие возведение перегородок из стекла, обозначают на своих сайтах следующие цены:
- цельностеклянные перегородки и стены — от 2.500 руб / м2;
- шумоизоляционные стеклянные перегородки — от 3.100 руб / м2;
- алюминиевые межкомнатные перегородки — от 2.700 руб / м2;
- дизайнерские перегородки из стекла — от 3.000 руб / м2;
- раздвижные стеклянные конструкции — от 4.000 руб / м2;
Все это выглядит относительно недорого. Однако надо учитывать, что это во-первых: цены «От», во-вторых: указанные цены — это самое простое, самое тонкое (и хрупкое) стекло. Чтобы понять окончательную стоимость таких стеклянных стен и перегородок, нужно ответить на следующие вопросы:
- Какая толщина и марка стекла вам нужны? (вы можете выбрать стандартное решение — безопасное закаленное стекло, либо выбрать ударопрочное стекло, либо художественное цветное стекло с повышенной тепло- или звукоизоляцией);
- Будет ли это конструкция из цельного стекла или на профилях?;
- Из какого материала вам нужны профили и планки?;
- Нужны ли вам узоры, принты, изображения на стекле?;
- Нужен ли вам механизм сдвигания перегородок?;
- Стеклянную стену какой площади (в квадратных метрах) вы планируете заказать?;
- Будете ли вы делать монтаж своими силами или рабочими подрядчика?
Это, разумеется, далеко не все, а только базовые вопросы, которые непосредственно влияют на стоимость. За более подробной информацией лучше обращаться в профильные компании.
Особенности составления проектов домов: чертежи и план как основная часть планирования
Определившись с планировкой дома, нужно мысленно представить жизнь семьи в здании, продумать все элементы, чтобы ничего не упустить. Поэтому не стоит спешить с созданием окончательного варианта планировки дома. Готовые чертежи и планы дома должны быть максимально совершенны, чтобы конечный результат удовлетворял всех домочадцев, а построенное жилище прослужило максимальное количество лет без реконструкции и переделок. Конечный вариант эскиза стоит обсудить на семейном совете, учитывая при этом все детали, вплоть до мелочей.
В первую очередь в схеме дома указывают желаемое количество этажей. Это может быть просторный одноэтажный дом, компактный двухэтажный коттедж или роскошный особняк в два яруса с мансардой.
Внутренняя планировка, изображаемая на чертежах зданий, должна включать такие зоны:
- жилые комнаты;
- хозяйственные помещения;
- зоны общего пользования;
- дополнительные пристройки.
Одноэтажный дом разграничивают на зоны с помощью перегородок, а также размещая помещения однотипной функциональности в одном крыле. В двухэтажных коттеджах спальни, гостевые и детские комнаты традиционно располагаются на втором этаже, а на первом находятся хозяйственные и служебные помещения общего пользования.
А-образный дом
Дом шалаш или А-образный дом стал известен в 1955 году, когда архитектор Эндрю Геллер построил каркасный дом на пляже в Лонг-Айленде, Нью-Йорк (Дом Риз). Фотографии этого дома были опубликованы в Нью-Йорк Таймс 5 мая 1957 года и разошлись по всему миру, после чего были построены тысячи копий этого дома. В СССР дом шалаш стал популярным в 1970-80-е годы. Особенно эти дома были распространены в Прибалтике. Сейчас этот стиль применяется для дачных построек, горных и лесных домиков, кемпингов и мотелей. Дом А-образный является одним из самых простых и надежных конструктивных решений для постройки загородного дома для отдыха. Его треугольные формы позволяют отлично вписать такой дом в природное окружение с преобладанием вертикального движения: среди деревьев, близ скал и гор. При выборе пропорций дома шалаша близких к составной форме из двух правильных треугольников (углы треугольника 30-60-90 градусов) потери площади внутри дома шалаша из-за крутого наклона кровли весьма незначительны. Например, при угле ската кровли в 28 градусов стоять в полный рост (180-190 см) можно уже в метре от наклонной стены. Дом шалаш испытывает небольшую снеговую нагрузку при использовании профнастила, так как снег прекрасно съезжает по крутым скатам кровли. С другой стороны большая боковая “парусность” высокой кровли дома шалаша определяет значительную ветровую нагрузку на фундамент. Поэтому нужно устраивать качественные фундаменты с прочной конструктивной связью между фундаментом и нижней обвязкой каркаса дома шалаша. Этот дом требует минимального ухода: стены дома одновременно являются и кровлей, не требующей регулярной покраски. Стены представляют из себя сборную конструкцию, выполняются по месту на готовом каркасе. Каркас, имеющий деревянные прогоны, обшиваются снаружи профнастилом, потом в «окна» образованные прогонами закладывается утеплитель, в один или несколько слоев, далее все закладывается пароизоляцией (например, ПЭ пленкой) и обшивается обрезной доской. Расчет потребности затрат на обеспечение теплом проекта в Московском регионе: 1.ISOVER Скатная кровля, толщина δ1=0.2м, коэффициент теплопроводности λБ1=0.043Вт/(м°С) 2.Сосна и ель поперек волокон (ГОСТ 8486, ГОСТ 9463), толщина δ2=0.05м, коэффициент теплопроводности λБ2=0.18Вт/(м°С) R0пр=5.09•0.92=4.68м2•°С/Вт Величина приведённого сопротивления теплопередаче R0пр больше требуемого R0норм(4.68>4.48) следовательно представленная ограждающая конструкция соответствует требованиям по теплопередаче. Все дома включают совмещенную кухню-столовую с общей гостиной, сан-узел, содержащий душевую, постирочную и туалет. Дома можно делать и одноэтажными, и двухэтажными, поскольку это позволяет его высота. Предложены 4 комбинации модулей площадью: 67,61 м²; 78,56 м²; 90,73 м²; 95,26 м². Солнечные батареи можно установить на крыше, что обеспечит экологически чистую энергию.
Характерные черты и особенности проектов фахверковых домов
Прямой перевод слова «фахверк» – «строительство секциями», что и отражает суть стиля. Построенные дома по технологии фахверк можно отличить по таким признакам:
- Каркасная конструкция из балок и стропил образует разнообразные формы на фасаде.
- Комбинации цвета, где главный принцип – контраст. Часто сочетаются разные цвета отдельных элементов фасада.
- Большое количество окон. Это обеспечивает проникновение солнечного света во все помещения.
- Обязательное присутствие домашнего очага.
С помощью балок и стропил образуются разнообразные формы на фасаде здания.
Рекомендуется отделку дома в стиле фахверк проводить на фасаде с большой площадью, потому что раскрыть суть и достоинство дизайна, применяя его на маленьком доме, практически невозможно. Сейчас технологии строительства находятся на более высоком уровне, чем во время появления первых таких домов. Ускорить процесс возведения здания можно с помощью сборных панелей, плит из полипропилена.
Обратите внимание! Все материалы, которые будут использоваться в строительстве, должны проходить обработку от грибка, пропитываться противопожарной смесью и вскрываться лаком.
Современный дизайн стеклянных домов
Дом, выполненный из стекла – это жилье современного и прогрессивного человека, не имеющего страха перед открытостью. Собственник жилья всегда сможет насладиться окружающим ландшафтом, восходом и закатом солнца. Стеклянный дом – это новые ощущения, чувства, покоряющие разум. Подобная постройка подарит ощущение воздушности и сказочности, ведь скучно здесь никогда не будет. Многим может казаться, что здание хрупкое и нежное, но на самом деле все далеко не так, ведь для строительства используется многослойное прессованное или закаленное стекло, имеющее высокую прочность и надежность.
На данный момент стеклянный дом – это редкость, позволить которую могут себе не все, да и многие еще бояться этой идеи. Однако мода на подобные постройки активно набирает обороты в странах Америки, где есть уже целый ряд стеклянных домов. Самый известный архитектор, который занимается их строительством и созданием дизайна – Филипп Джонсон.
При создании постройки из стекла можно выполнять не только стены, но и ступеньки, перегородки, лестницы или ворота. Более смелые люди решаются на куда серьезные шаги, используя стеклянный пол и крышу. При всем этом нужно помнить, что подобная постройка будет не только шикарно выглядеть, но и дорого стоять, ведь реализовать такой проект смогут лишь избранные профессионалы, которых пока что очень мало.









Комнаты стеклянного дома наполняются светом, благодаря чему кажутся более просторными и воздушными. А усевшись в кресло можно наслаждаться шепотом листвы за окном, проплывающими мимо облаками или окружающим ландшафтом.
Первая идея стеклянной постройки появилась у англичанина Джозефа Пакстона, построившего в 1851 году стеклянный павильон. Эта идея тогда казалась безумной, но уже спустя 80 лет появился стеклянный дом, конструкция которого была создана французскими архитекторами. Именно этот дом сделал это направление известным и популярным, ведь в скорее самые отважные ценители прекрасного начали возводить подобные постройки для постоянного проживания в них.
В основе строительства стеклянного дома лежит каркасная технология, которая применяется в немецком фахверке. Фахверк в переводе с немецкого языка – ячейка, жесткий деревянный каркас, включающий в себя раскосы и балки, образующие большие секторы. Фахверковая конструкция имеет не только привлекательный внешний вид, но и повышает надежность и устойчивость постройки.



































































