Откатные ворота удобно снабжать электроприводом
Преимущества консольных откатных ворот
Откатные ворота консольного типа имеют ряд преимуществ:
- Такие ворота не имеют отрывающихся створок и поэтому не уменьшают полезную площадь территории, и при случайном открытии ворот нет никакой опасности повредить транспортное средство, стоящее перед ними.
- Проем ворот не имеет нижних и верхних ограничений по габаритам.
- Обильные снегопады не нарушают работу консольных ворот, так как полотно вывешено на расстоянии около 10 см над поверхностью земли.
- Все элементы качения, обеспечивающие работу ворот, находятся внутри балки, поэтому не подвержены влиянию погодных факторов. В движение ворота может привести даже ребенок, благодаря продуманной конструкции и низкому трению.
- Мощный фундамент консоли и продуманная система удержания полотна ворот в вертикальном положении позволяет выдерживать таким воротам большие ветровые нагрузки.
- Откатные ворота проще всего оборудовать электроприводом и элементами безопасности.
Недостатки все же у откатных ворот есть, но их немного:
- Консольные откатные ворота – одни из самых сложных по конструкции, поэтому и установка их непроста.
- Для их установки необходимо иметь свободный участок забора в полтора раза больший, чем величина проема, что не всегда достижимо.
Определение возможности установки откатных ворот
Даже при огромном желании и недюжинных финансовых возможностях владельца участка установить откатные ворота, могут сложиться такие ситуации, когда установка либо невозможна, либо сильно затруднена. Какие это ситуации?
Пространство, куда будут откатываться ворота вдоль забора должно быть свободно не менее чем на полторы ширины воротного проема. Это объясняется тем, что на полотне ворот помимо части, закрывающей проем, есть еще и технологическая часть, которая по длине занимает не менее половины от ширины проема – так лучше будут распределяться нагрузки от ворот на консольный блок.

Чертежи и расчеты
Главное условие долгой и надежной работы ворот — соответствие системе крепления, действующим нагрузкам и соблюдение технологии монтажа. Чтобы составить чертеж, производят замеры. Само полотно обычно изготавливают по ширине проема плюс несколько см на боковые притворы. Высота определяется индивидуально с учетом размеров ограждения и материала, которым предстоит обшивать каркас. Обычно она составляет 1,9-2,2 м.
При расчете консольных ворот нужно учитывать, что они состоят из рабочей части, которая перекрывает проем, и технической. Их общая длина должна быть больше ширины проема на 40-50%. При такой пропорции обеспечивается прочное крепление и правильная работа всех элементов конструкции.
Каркас для обшивки компонуется из усиленного контура, промежуточных стоек, раскосов и перемычек. Их размеры просто рассчитать по правилам геометрии или по чертежу, если он составлен в масштабе. По результатам заполняют таблицу (спецификацию), где указывают количество материалов и комплектующих.Теперь можно приступать к закупкам.
Примерно так должен выглядеть чертеж откатных ворот специалиста
Все элементы конструкции — опоры, фундаменты, каркас полотна, ролики, держатели, закладные и т.д.— работают совместно. Поэтому самостоятельно рассчитать и подобрать характеристики довольно сложно. Оптимально будет воспользоваться готовыми решениями, представленными в альбомах производителей или помощью онлайн калькуляторов.
Как залить ленточный фундамент под откатные ворота
Для того чтобы правильно залить фундамент, требуется изначально подготовить необходимые для работы инструменты и материалы:
- песок, щебень и цемент для бетонирования;
- консольные металлические блоки;
- продольные металлические швеллеры;
- арматурные прутья и вязальная проволока. Из них собирается каркас;
- необрезные доски для устройства опалубки;
- бетономешалку;
- электро- или газосварку;
- уровень строительный;
- рулетку;
- штыковые и совковые лопаты;
- лом;
- опорный швеллер;
- молоток, ножовку по железу, а также топор и уголок для устройства опалубки.
Лучше не экономить на исходных материалах, так как это может отрицательно сказаться на качестве конструкции, её прочности и соответственно снизить срок эксплуатации откатных ворот.
Приступаем к изготовлению фундамента:
Выкапываем траншею с соответствующими размерами, которые были правильно рассчитаны в чертеже. Её глубина должна быть на 35 см больше точки промерзания грунта.
Устанавливаем опалубку. Расход раствора уменьшится, если сделать подушку из песка и гравия толщиной 100 мм.
Из арматуры делаем основу для будущего фундамента. Прутья между собой закрепляем проволокой или с помощью сварки. Расстояние между ними должно быть около 30 см.
- Устанавливаем подготовленный арматурный пояс горизонтально. Выступающую часть углубляем на 12 см ниже поверхности почвы. К краю проёма смещаем его фронтальную часть. Расстояние от пояса до опалубки — минимум 2 см во всех плоскостях.
К поясу привариваем продольный швеллер, полка которого должна находиться на нулевой отметке.
- В основу помещаем швеллер и связываем его с каркасом. Он необходим для крепления механизма привода откатной конструкции.
Управляющий и силовой шнуры устанавливаем через трубы, расположенные в каркасе. Они должны быть диаметром минимум 25 мм, иначе провод будет провести затруднительно.
- Замешиваем раствор в таких пропорциях: 6 вёдер речного песка, 2 ведра цемента, 2 ведра щебня и необходимое количество воды, чтобы смесь не получилась очень густой. Щебень добавляет бетону прочности. Если планируется использовать готовую бетонную смесь, то она должна быть марки не ниже М200. Для приготовления раствора берём цемент М500.
Заливаем яму приготовленным бетоном так, чтобы пояс не сместился, поскольку от этого зависит возможность эксплуатации ворот. Используем сразу не весь бетон, а только на 1/3 от объёма траншеи. Такой метод заливки фундамента гарантирует отличную фиксацию пояса. В арматурный каркас надо будет установить 3 поперечных швеллера.
Выравниваем швеллеры с соблюдением вертикали и горизонтали. Затем привариваем их к арматурному поясу и заливаем раствором бетона. Для застывания раствора необходимо будет около двух недель или больше в зависимости от времени года и условий погоды.
При устройстве любого типа фундамента сразу закладывается электропроводка.
В итоге мы получаем фундамент, имеющий три поперечных швеллера, расположенных на 7 см ниже проезжей части.
Следует обратить внимание на следующие моменты:
- при расчёте фундамента необходимо учитывать крепость столбов и массу конструкции, так как нагрузка всех частей ворот на основание может отличаться;
- бетон нужно заливать как под саму конструкцию, так и под опорные столбы;
- арматуру для пояса надо приварить или плотно обвязать специальной проволокой;
- после монтажа закладных, часть траншеи требуется залить бетоном так, чтобы он целиком их не закрывал. Это необходимо для того, чтобы в будущем можно было правильно установить остальную конструкцию;
- изначально необходимо установить столбы, служащие опорой для ворот.
Обязательно соблюдайте технологию и вышеприведённые правила, поскольку неверно сделанный каркас или фундамент не дадут возможности автоматике откатных ворот нормально работать, что может привести к разрушению некоторых важных частей конструкции ворот.
Видео: заливка фундамента под откатные ворота
Правильно изготовленное опорное основание определяет возможность безотказной эксплуатации и долговечность откатных ворот. На фундамент действуют существенные нагрузки в разных плоскостях (на сжатие, кручение или изгиб). Его можно изготовить и самостоятельно, но при наличии технических характеристик откатной конструкции, правильно составленных чертежей и при некотором строительном опыте.
Особенности распашных ворот и тонкости их выполнения
Привычным для всех вариантом являются распашные изделия. Они используются на дачах, в частных домах и при строительстве гаражей. Рядом с такими вариантами может быть расположена и калитка. Конструкция предполагает установку двух опорных элементов по краям полотна. На сегодняшний день достаточно просто выполнить распашные ворота своими руками. Чертежи, фото и видео помогут изучить все тонкости работы.
Распашные ворота
Устройство опорных элементов
На первом этапе строительства необходимо установить опоры. Чаще всего это металлические столбы подходящего диаметра, которые бетонируются в грунт. Очень часто заборы делают с кирпичными столбиками. В таком случае они также могут быть опорой для изделия. Но не стоит забывать при кладке кирпича, сделать металлические закладные, к которым будут привариваться петли.
Устройство столбов-опор
Подготовка створок
От того с какой стороны такие петли будут приварены, зависит в какую сторону они будут открываться. Именно поэтому, делая ворота своими руками: чертежи, фото и видео нужно просмотреть в обязательном порядке. Для выполнения створок чаще всего используется металлический каркас, ка который крепиться листовой материал. Если ограждение деревянное, то и ворота целесообразнее делать с древесины
Каркас в таком случае можно сделать как с металлических уголков, так и с бруса. Важно чтобы створки были не слишком тяжелые, в противном случае они будут оказывать большую нагрузку на столбы и петли. Через время это может привести к деформации и створки будут плохо закрываться
Створки распашных ворот
Поэтому стоит изучить некоторую информацию, перед тем как распашные ворота делать своими руками. Чертежи фото и видео помогут ознакомиться со всеми тонкостями в работе и предотвратить всевозможные дефекты. На завершающем этапе на створки необходимо установить замочную систему. Самым простым вариантом может стать простой засов.
Конструкция распашных моделей
Электрический привод своими руками
Он имеет сложное устройство. Прежде чем начать самостоятельное изготовление электропривода, нужно знать из каких узлов он состоит:
- двигателя;
- редуктора;
- узла управления.
Процесс передачи тяги осуществляется двумя способами:
- в паре: звездочка–цепь;
- прижимным роликом.
При подборе двигателя учитываются следующие факторы:
- Мощность аппарата зависит от габаритов и веса полотна ворот.
- Частота использования конструкции. Двигатель небольшой мощности обеспечивает открытие ворот до 5–6 раз в 1 час.
- Учитывается материал, из которого сделаны шестерни редуктора. Пластмасса быстро стирается.
- Количество оборотов в минуту подбирается в пределах 500–1000.
Во время подбора редуктора важно помнить, что на выходе он должен обеспечивать 80–100 об/мин. При самостоятельном изготовлении приводного устройства хорошим вариантом является использование двигателя от стиральной машины
Чтобы присоединить концы обмоток, необходимо воспользоваться мультиметром. При этом прибор выставляется в режим измерения сопротивления
При самостоятельном изготовлении приводного устройства хорошим вариантом является использование двигателя от стиральной машины. Чтобы присоединить концы обмоток, необходимо воспользоваться мультиметром. При этом прибор выставляется в режим измерения сопротивления.
Если имеется в наличии редуктор, то он соединяется с двигателем при помощи муфты. При этом необходимо сделать вычисление передаточного числа.
Оптимальным вариантом передачи тяги считаются:
- реечная передача;
- приводным роликом.
Реечная передача
Для этого следует воспользоваться звёздочкой от велосипеда или мотоцикла. Такая деталь крепится сваркой к валу редуктора.
Весь узел фиксируется на металлической опоре толщиной от 5 см с помощью болтов. Предусматривается система регулировки. Для этого в металле изготавливаются овальные пазы, чтобы была возможность перемещать двигатель с редуктором.
Подбирается цепь с таким же шагом звеньев, как и на звёздочке. Перед её монтажом проводятся подготовительные работы на каркасе ворот:
- На расстоянии 600–1000 мм от земли к полотну крепится дополнительная балка.
- Снизу с помощью саморезов устанавливается цепь. Её ещё можно заменить рейкой с зубьями.
Самостоятельное изготовление рейки невозможно ввиду сложной технологии. Её придётся покупать. При этом конструкция будет работать надёжнее. Кроме того, цепь со временем растягивается.

Приводным роликом
В данном случае к электроприводу подсоединяется ролик. Конструкция более сложная в монтаже, но обладает некоторыми преимуществами. Например, она не загрязняется, а в зимнее время на ней не формируется ледяной нарост. Занимает меньше места.
Принцип действия и монтажа:
- Рядом с воротами устанавливается кронштейн с закреплённым в нём роликом. С поверхности он обтянут резиной.
- К кронштейну крепится толкатель с установленной на нём пружиной.
- За счёт давления ролика на швеллер полотна створка перемещается под воздействием силы трения.
- Для компенсации усилия с обратной стороны ворот устанавливаются такие же два вращающихся элемента.
К ролику предъявляются следующие требования:
- установка их ведётся на подшипниках закрытого типа, чтобы внутрь не попадала грязь;
- величина давления не должна превышать 300–360 кг;
- максимальное усилие толкателя составляет 3,5–4 кН.
От двигателя на ролик передача вращения осуществляется 2 видами:
- при помощи клиноремённой передачи;
- вращающийся элемент фиксируется непосредственно на валу редуктора.
Подшипник подбирается такой, чтобы он выдерживал большую нагрузку.
Изготовление и монтаж откатных ворот требует основательного подхода
Важное значение имеет точность выполняемых работ, потому что отклонение от заданных параметров может привести к перекосу конструкции и заклиниванию во время движения. Базой системы является фундамент
При его формировании не допускаются ошибки.
Советы по отделке и эксплуатации
Обычно откатные ворота предпочитают отделывать материалами из древесины. При этом используют только строительное сырьё, качество которого сомнений не вызывает. Деревянное покрытие ворот должно быть устойчивым к механическим воздействиям, иначе оно быстро покроется трещинами и потеряет форму.

Дерево, используемое для облицовки ворот, должно быть устойчивым к механическим воздействиям
Если нет возможности вложить в сооружение откатных ворот немалые средства, то стоит задуматься об их отделке пластизолом. Правда, с использованием этого материала дверная конструкция на территории частного дома будет смотреться не респектабельно. Всё-таки пластизол выглядит как гладкий или гофрированный лист, покрытый полиэфиром. Зато это строительное сырьё отличается прочностью и поэтому часто применяется при строительстве автостоянок.

Ворота из пластизола отличаются прочностью и практичностью
Когда по вкусу не приходится ни дерево, ни пластизол, можно попробовать отделать откатные ворота сэндвич-панелями или профнастилом. А оригинальной облицовкой дверной конструкции будет обшивка вагонкой. Благодаря этому материалу ворота станут надёжными и прослужат долгий срок.
Установив откатные ворота, следует позаботиться о безопасности их использования. Эксплуатация такой дверной конструкции требует придерживаться следующих правил:
- не создавать препятствий для движения ворот;
- визуально контролировать открытие и закрытие конструкции;
- не стоять в зоне движения створки;
- отказываться от использования ворот при повреждении управляющих устройств;
- не пытаться самостоятельно переделать конструкцию ворот;
- не использовать ворота как средство для перемещения каких-либо объектов.
Соорудить откатные ворота не так проблематично, как может показаться. Чтобы ввести в эксплуатацию сложную дверную конструкцию, надо досконально её изучить и выполнить все пункты инструкции по изготовлению объекта.
Как сделать консольные откатные ворота
Эта конструкция хороша тем, что над проездом нет балок. Но она — самая дорогая в устройстве. Дело не столько в системе роликов, сколько в необходимости устройства фундамента с металлическими закладными, к которым затем будет крепиться консольная балка. Если столбы уже есть, фундамент заливается перед ним и вдоль забора на длину технического выноса, который необходим для компенсации нагрузки, создаваемой полотном.
Комплектация консольных ворот
Даже если делают консольные откатные ворота своими руками, комплект, состоящий из направляющей балки, роликов, концевых роликов и уловителей покупают обычно в фирме. Все запчасти рассчитываются исходя из размеров полотна, материала каркаса и типа обшивки: вес имеет существенное значение. Потому желательно со всеми этими параметрами определиться заранее.
Зная длину несущей балки, вы сможете рассчитать необходимый размер фундамента. По типу — это ленточный фундамент, котлован под него копают ниже глубины промерзания грунта (для каждого региона она своя), в который закладывают армированные опоры под пластины с роликами, а также устанавливают стойки. К этим стойкам затем крепится комплект верхних роликов, удерживающих полотно и не дающих ему раскачиваться.
Как рассчитать фундамент под крепление для консольной балки
Сложного при расчете ничего нет. Фундамент по длине равен почти половине длины пролета. Если пролет 4 метра (ширина проезда или расстоянием между столбами), то фундамент должен быть 1,8-2 м. Ширина его 40-50 см, глубина — ниже глубины промерзания грунта для региона.
Фундамент под консольную балку при строительстве откатных ворот
Котлован выкапывают еще на 10-15 см глубже — под гравийно-песчаную подушку. Этот фундамент армируют (по типу ленточного), в верхней его части к арматуре приваривается швеллер (18 или 20) и все это заливают бетоном. Швеллер выставляется в «нулевой» уровень, то есть он должен стоять на одном уровне с уровнем грунта или материалом, которым отделан двор.
Подготовленное армирование и закладной швеллер
Есть более дешевый и быстрый вариант, но по надежности он уступает описанному выше. В грунт вкручивают три винтовых металлических сваи, к ним приваривают швеллер.
Установка роликовых опор
К закладному швеллеру привариваются шпильки, к ним потом на болтовых соединениях крепятся платформы с роликами. Иногда можно встретить варианты, когда платформы приварены сразу к закладной. Это неправильно. Существует довольно большая вероятность того, что фундамент или столб забора даст усадку. Даже небольшое смещение — и ваши ворота работать не будут. Если ролики со шпилек можно снять, шпильки переварить и все собрать на место, то как корректировать если платформа приварена? Срезать? Сложно, долго, без гарантий. Так что лучше в этом случае делать все по правилам.
Пример крепления роликовых площадок
При покупке обратите внимание на роликовые каретки и на сами ролики. Это обязательно закрытые подшипники качения
Они обычно располагаются в два ряда по 4 штуки в каждом. Смазка в них должна быть морозостойкой — нижний предел температур -60°C. Осмотрите платформу, на которой они крепятся. Она должна быть стальной, литой, хорошего металла с оцинкованной поверхностью, покрыта защитной смазкой.
На ролики накатывается опорная балка, потому основную нагрузку несут они
Покатайте ролики. Все должны кататься без усилий, и не должны иметь люфта (не должны шататься из стороны в сторону). Тогда можно быть уверенным, что ворота будут ездить легко и откатной механизм будет работать продолжительное время (некоторые фирмы дают гарантию 10 лет). Ведь большая часть нагрузки приходится именно на ролики, потому их качество ключевой момент, как и сбалансированная конструкция полотна.
Остальные этапы монтажа более понятно будут описаны в фото-отчете: ворота собраны самостоятельно, без привлечения специалистов.
Установка распашных ворот
Если распашные ворота планируется изготавливать из профлиста, понадобится установить достаточно крепкие столбы. Для опор лучше выбрать трубы диаметром от 80 мм. Также отлично справится с нагрузками и квадратная труба.
Створки сваривают из труб квадратного сечения. Лучше выбирать изделия с габаритами 10х25х3000 мм. Для их соединения потребуется использовать сварку. Каркас необходимо усилить диагональными натяжителями. Также обязательно предусматривается место для запора, замка и ограничителей.
Начинаются работы с монтажа опор. Этот этап требует определенной подготовки
Также важно пользоваться готовыми чертежами вороти фото. Из видео, на которых поэтапно выполняется монтаж распашных ворот, также можно получить немало информации
Полезная информация по теме находится в этом материале:
Этапы монтажа конструкции
Сделать функциональные конструкции помогут чертежи, фото и видео откатных ворот. Своими руками можно сделать любую выбранную модель. Для этого потребуется подготовить специальные инструменты и материалы.

Перед монтажными работами тщательно вымеряются все размеры
Необходимый набор инструментов
Для установки откатных конструкций необходимо подготовить следующие специализированные инструменты:

Для использования сварочного агрегата необходимы профессиональные навыки

Воздушный компрессор помогает очень быстро произвести покраску

Подобный инструмент требует очень осторожного обращения
Также потребуется дрель, пассатижи и рулетка.
Устройство фундамента
Как возвести фундамент можно посмотреть на видео. Откатные ворота своими руками следует начинать с разметки места. Ширина траншеи должна быть около полуметра. В качестве опор используются столбы для забора. При монтаже автоматической конструкции нужно предусмотреть место под укладку электрического кабеля. При монтаже основы под забор используется швеллер с арматурой. Бетонная смесь должна застывать в течение шести суток.

Монтаж швеллера требует точных расчетов и аккуратности
Возвести фундамент можно следующими способами:
- при монтаже свайного монолитного фундамента в почву устанавливаются два столба, которые соединяются швеллером. Для выемки почвы применяется садовый бур. Ямки должны располагаться близко к ограждению и соединяться траншеей;
- для установки свайной винтовой основы нужно сваи вкручивать в землю.

На фундамент приходится вся основная нагрузка
Установка конструкции
Разметка выполняется перед тем, как производится сборка откатных ворот своими руками. Чертежи, схемы, эскизы, конструкция проекта помогут поставить отметки правильно. По отметке проема протягивается шнур, который обозначает траекторию передвижения створок. Также следует произвести фиксацию участков регулировки. Затем определяется расстановка опор с роликами.

На схеме показаны все основные элементы сборки
Монтаж подобного забора состоит из следующих этапов:
- предварительная заготовка роликовых тележек;
- сборка системы;
- регулировка положения роликовых опор;
- монтаж закрывающего ролика и заглушки основного профиля;
- крепление направляющих кронштейнов;
- установка опоры и обшивание полотна;
- крепеж механизма ловителей и автоматики;
- регулировка с помощью гаечного ключа.
После регулировки движения полотна выполняется установка кольцевого ролика. Его нужно разместить внутри основной конструкции и зафиксировать крепежными болтами. Далее устанавливается верхний элемент с роликами, которые должны захватывать верх полотна. Установка уловителя позволяет уменьшить вес на роликовые тележки. Элемент собирается при закрытых створках.

Для сборки конструкции понадобятся специальные инструменты и дополнительные материалы
Покраска
После установки конструкции полотна можно окрасить в разнообразные цвета. Используется только стойкая и качественная краска. Чтобы покрытие сохранилось долгое время, поверхность тщательно зачищается с применением шкурки, а затем обезжиривается ее ацетоном. После очистки конструкция грунтуется. Для этого можно использовать валик, кисть или окрасочный пистолет. Затем выполняется окрашивание в несколько слоев. В зависимости от вида краски на высыхание уходит от нескольких часов до дней.

Раздвижные ограждения можно покрасить оригинально. Всех удивит 3D изображение
Монтажные работы
Сооружение каркаса
Трубы при помощи электроинструмента нарезают в соответствии с размерами, отмеченными в проекте. Далее собирается рама: методом сварки скрепляют все угловые соединения, приваривают стыковочные места. Сварные швы шлифуют, каркас проходят грунтовкой с антикоррозионными добавками и окрашивают алкидной эмалью.
Створку полотна зашивают с одной или с двух сторон. В первом варианте каркас приваривают вровень с лицевой частью рамы. Второй вариант предусматривает сварку посередине: в раму закладывают готовый каркас и проваривают небольшими участками. К раме, а точнее, к нижней ее части приваривают направляющие.
Обустройство фундамента

Для начала необходимо выполнить разметку для будущего фундамента. Далее выполняется установка ответного столба, чтобы не уменьшить проем, его располагают со стороны участка. Оставляют место под электрические кабели для подведения автоматики в дом.
Следующий этап – подготовка котлована, его глубина обычно не превышает 2 м. Далее по ширине рва закладывают швеллер. К швеллеру приваривают арматуру диаметром 12 мм. Закладка элемента выполняется арматурой вниз, швеллер устанавливают по уровню, параллельно открытию ворот. Бетонные работы выполняют только после укладки закладного элемента.
Установка ворот на участке
После полного застывания бетона можно приступать к установке ворот. Первоначально делают разметку. Далее две каретки размещают на некотором расстоянии друг от друга, а полотно ворот вставляют в направляющую рельсу. Систему необходимо отрегулировать, чтобы ворота не доезжали до края одной каретки примерно на 10 см.
После заваривания стыковочных участков каретки и закладной полости, выполняют установку оставшихся деталей: верхних роликов и металлической пластины на анкерных болтах. К столбу необходимо прикрепить отрезок трубы, на ней впоследствии будут установлены верхний и нижний ловители. По окончанию монтажных работ устанавливаются резиновые заглушки.
Об установке откатных ворот своими руками смотрите видео:
Достоинства распашного типа
Независимо от того, какую модель вы подберете, следует подобрать наружный или внутренний метод открывания створок. При этом сложностей во время работы не должно возникнуть.
При правильном выполнении всех основных этапов ваша конструкция будет служить продолжительный период времени. Стоит рассмотреть основные достоинства такого выбора:
- комфорт при использовании;
- широкая вариация материалов, Все зависит от личных предпочтений, подбор в зависимости от интерьера;
- высокий показатель функциональности;
- компактная конструкция;
- отсутствуют ограничения касательно размера.
Распашной тип известен простыми монтажными работами. Изделие не требует к себе дополнительных мер ухода, они прочные, дополнят ваш интерьер. При желании можно оборудовать ворота с помощью автоматической системы.
Комплектация раздвижных ворот
Раздвижные (в стороны) разновидности, безусловно, надежны, удобны и практичны в применении
Когда самостоятельно делаем откатные автоматические ворота, важно иметь представление о полной комплектации и выборе необходимой фурнитуры






Помимо автоматики на электроприводе предполагается наличие:
- направляющего рельса;
- концевых заглушек;
- кареток (роликовых тележек);
- верхнего и нижнего улавливателя;
- накатных и поддерживающих роликов.

Нужны сами ворота, опорные столбы, установленные на фундамент. Если предполагается автоматическое управление, потребуется провести электропроводку.

Полезные советы
Поскольку сделать раздвижные ворота своими руками непросто стоит прислушаться к рекомендациям профессионалов:
- Если нужно врезать в ворота калитку ее нужно монтировать ближе к фундаменту со швеллером, чтобы снизить нагрузку на ролики.
- Чтобы не ошибиться с определением ширины проема нужно предварительно в места установки столбов вбить колышки и попробовать проехать.
- Продавец может предложить тележки с пластиковыми роликами. Они издают меньше шума, чем металлические, но служат недолго. Поэтому предпочтение следует отдавать подшипникам качения из прочной стали.
- Если для сварных откатных ворот противовес сделать прямоугольным, его длину можно уменьшить до 1/3 ширины створки. Это актуально когда недостаточно места для открытия.
Самостоятельно сваренные откатные ворота обойдутся значительно дешевле, нежели заказанные в фирме производящей их. При этом качество выполнения работ зависит только от себя. В итоге получается надежная и удобная в эксплуатации конструкция, обеспечивающая комфортный проезд с помощью дистанционного управления.
Откатные ворота своими руками: фотоотчет с пояснениями
Эти ворота сделаны на основе готового комплекта, раму делали сами, также самостоятельно монтировали
Ворота ставились в Москве, соответственно цены — столичные. Ставили их в 2010 году, с тех пор комплекты сильно подешевели. Например, «свежая» цена привода для полотна весом не более 400 кг (есть до 1,2 т) — около 100$, но это — бюджетный вариант. Во времена строительства приобретены комплектующие фирмы Rolling Center (лучшие тогда на рынке) с ведущей балкой длиной 6 метров. Были также заказаны отдельно верхний ловитель и кронштейн. Все с доставкой обошлось около 600$.
Также были куплены следующие материалы:
- профильная труба 80*60 мм — 6 м, 60*40 мм — 18 м, 40*20 мм — 36 м;
- швеллер — 180 мм — 3 метра, 200 мм — 2,4 метра;
- арматура 12 мм — 6 м;
- электроды — 2 кг;
- краска — 3 банки, кисти, заклепки;
- цемент М-400 — 5 мешков;
- профнастил покупался при изготовления забора.
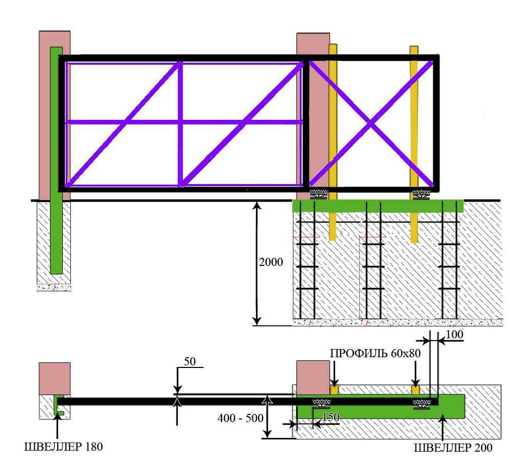
Схема откатных ворот с размерами
Первым делом сварили каркас для ворот с противовесом. Раму (черным цветом) делали из профильной трубы 60*40 мм, перемычки и внутренний каркас (сиреневый) из трубы 40*20 мм. Внизу приварена направляющая балка разрезом вниз.
Как варилалсь рама
Внутренний каркас варили с отступом от края — по 20 мм с каждой стороны. Так удобнее потом крепить профлист, при желании можно и изнутри обшить.
Как приваривать профильную трубу 40*20 мм
Сначала залили фундамент. В него установили арматуру, сверху швеллер спинкой вверх. Вплотную к швеллеру две стойки из профилированной трубы 80*60 мм. Одна стойка примыкает к столбу, вторая выставлена вертикально на расстоянии 120 см. На них потом навешиваются ролики, которые придерживают полотно сверху. С другой стороны, вдоль ответного столба установили швеллер 180 мм.
Швеллер на 180 мм прикрепили к ответному столбу
Примерка на месте
На ответной части к швеллеру вверху и внизу закреплены уловители, которые не дадут воротам болтаться при ветре.
Установленные на приемном столбе упоры
Верхний и нижний уловители
Следующий шаг — установка пластин с роликами. Они крепятся к закладным. В данном случае это швеллер, потому пространство получилось большое. Когда делали фундамент, его сделали слишком высоким, потому пластины приваривались непосредственно к закладной. Это непрактично: если поломается ролик, поменять его будет проблематично. Обычно приваривают площадку, к которой потом на болтах крепят площадку с роликами.
Приварены роликовые площадки и на них «наехали» роликами
Готовый каркас ворот просто накатывают на закрепленные ролики.
Фото створки на роликах с разных ракурсов
После установки на опорную балку с обоих концов надевают заглушки. С дальней стороны устанавливается еще упорное колесо, которое в закрытом положении заезжает в нижний уловитель, приподнимая ворота и снимая нагрузку с роликов.
Установка заглушки и упорного ролика (балка на фото перевернута)
Теперь, чтобы ворота не «гуляли» в верхней части (они сейчас ничем не закреплены), к стойкам (80*60 мм) крепят комплекты верхних роликов — по одному на стойку. Их практически надевают на раму. Теперь имеющиеся внутри ролики будут придерживать ее вверху.
Верхние ролики крепят на стойки, захватывая верхнюю кромку ворот
Так выглядят установленные верхние ролики
Все, откатные ворота своими руками собраны и готовы к эксплуатации.
Как выглядят откатные ворота со двора
Если остались вопросы, посмотрите видео. В нем собирают готовый комплект, весь процесс станет понятнее.
Создание «скелета» конструкции
По схематическим наброскам понять как сделать откатные ворота своими руками проще. Готовый проект также поможет сэкономить на материалах. По эскизам легко просчитать все, что требуется для предстоящих манипуляций.

Для установки базовой части ворот понадобятся трубы из металла. Для несущей основы используют более крупные экземпляры (60×40), для внутреннего малого блока — вдвое меньше. Нужен материал с прямоугольным или квадратным сечением. Перед началом монтажа трубы очищают от ржавчины, обезжиривают, грунтуют.

Сборка стартует с направляющего рельса. Элемент заранее готовят: укрепляют с помощью приваривания по бокам «подставки» из квадратных труб. Аналогично, но не прямым швом присоединяют нижнюю границу несущего каркаса. Здесь лучше использовать шахматную схему фиксации.


К основному каркасу приваривают трубы внутреннего контура. Они должны располагаться строго посреди. К ним впоследствии закрепляют саморезами профнастил. По завершении сварки швы зачищают, детали грунтуют, красят.

На этом выполнение ворот откатных механических на роликах своими руками не заканчивается. Из металлических труб собирают нащельники. Элементы монтируют на заранее подготовленное для этих деталей место. Осталось заняться фурнитурой.

Конструкция откатных ворот
Конструктивно откатные ворота подразделяются на консольные, подвесные, рельсовые типы. Самый простой в изготовлении последний вариант. В этой конструкции створка с закрепленными снизу роликами перемещается по рельсу, уложенному в землю. Из-за того, что приходится постоянно очищать рельс от снега, грязи, посторонних предметов они используются редко.
В подвесных конструкциях полотно с помощью роликов движется по балке, установленной вверху на опоры по бокам ворот. Система надежная и долговечная, не требующая постоянного ухода, но въезжающие автомобили ограничены по высоте. Однако разновидности со съемными балками решают эту проблему.
Несмотря на сложность изготовления и более высокую стоимость чаще всего выбирается конструкция сварных откатных ворот консольного типа. Их основой является балка с установленным полотном, которая сдвигается по роликам, размещенных сбоку от проема. Для установки со стороны открытия необходимо свободное место в 1,5 раза превышающее ширину створки.
Консольные откатные ворота, самый распространенный вид
Итоги
Устанавливать ворота любого типа лучше согласно чертежам. Распашные конструкции чаще используются в индивидуальном строительстве, раздвижные – как для закрытия въездов на частные территории, так и при ограждении промышленных объектов. Подъемно- поворотные конструкции идеально подходят для оборудования въезда в гараж.
Каждый тип ворот обладает определенными преимуществами. Также у них имеются и определенные недостатки. Самый простой и доступный вариант – распашные ворота с двумя створками
В процессе монтажа таких конструкций особое внимание следует уделить установке опорных столбов

























































