Алгоритм расчета сайдинга
Для того чтобы выполнить правильный расчет нужное для работы количество материала, нужно знать следующие параметры: общая площадь поверхности отделки, длина и ширина панели сайдинга.
Чтобы результат был как можно более точным, расчеты следует проводить, только после того как проведена обрешетка, и известны ее основные показатели габаритов.
Когда известны высота и длина поверхности отделки, можно приступить расчету площади при помощи простых математических вычислений:
- отделки =Lстены *Hстены
Расчет данного параметра нужно выполнять по каждой стене в отдельности. В итоге результаты суммируются в единое числовое значение. Для более точного показателя, из общей площади отделки нужно вычесть площадь поверхности оконных и дверных проемов.

Следующим этапом является определение площади панели конкретного вида сайдинга, который выбран для работы. Площадь панели можно вычислить по следующей формуле:
S панели = B панели × L панели
Вычисляем нужное количество материала:
Количество панелей = S отделки / S панели
Алгоритм расчета сайдинга на фронтон аналогичный, с той лишь разницей, что при расчете общей площади поверхности дома, стоит применять соответствующую формулу для определения площади треугольника.

Преимущества применения панелей для отделки фасадов
Отделка сайдинговыми панелями зданий, по сравнению с другими материалами, обладает следующими преимуществами:
Высокая устойчивость к воздействию негативных внешних факторов: атмосферных осадков, резких перепадов температур, некоторых химических соединений и ультрафиолетового излучения. Материал сохраняет свои прочностные и декоративные свойства на протяжении всего периода эксплуатации, заявленного производителем.
Внешний вид дома, обшитого сайдингом
- Конструкция обшивки и обрешётки имеет минимальный вес, что позволяет выполнять отделку объектов с незаглублёнными фундаментами без дополнительного усиления несущей конструкции.
- Отсутствие необходимости выравнивания фасадных стен благодаря монтажу на обрешётку. Это существенно сокращает сроки работ, а также позволяет укладывать тепло- и гидроизолирующие слои в пространство между стеной и сайдингом.
- Нетребовательность облицовки к уходу или какому-либо обслуживанию.
- Высокий уровень пожаробезопасности и устойчивости к незначительным механическим воздействиям.
- Наличие широкой гаммы декоративных расцветок позволит подобрать без проблем необходимую и сделать уникальный дизайн дома, не затрачивая финансов на приобретение и покраску в нужный цвет. Причём доступны также и уникальные текстурированные изображения с имитацией натуральных материалов, отличающихся чётким и насыщенным рисунком.
- Простая технология монтажа доступная для освоения людям, ранее не сталкивавшихся с проведением строительных работ.
Расчет дополнительных материалов
Но кроме фронтонной части есть еще и конек, обычно он не превышает 45 см. длина каждого метров, на крыше их всегда 4. 0, 45 х 6 х 4 = 10, 8 м 2 . Прибавляем и получается общая площадь 129 м 2 .
Для расчета количества панелей необходимы их размеры, стандартные показатели 3 метра на 205 мм. С одной штуки 3 х 0, 205 = 0, 615 м 2 . Общее количество считаем по схеме: 129:0,615=209,756., можно округлить до 210 – такое количество нужно для обшивки.
Но для целостности нужно купить стартовые панели, уголки для внешних стен, окон и дверей.
Начальные, стартовые панели, высчитываются в метрах:
нужно сложить всю длину и ширину строения: 8х2+9х2 = 34 метра. Обычно они имеют стандартную длину в 3 метра, количество = 34:3 примерно 12 штук. Завершающих конструкцию обшивки, финишные панели, покупаем такое же количество. Для стыка нужны уголки, углов в доме всегда 4, если учитывать обычное, а не разноплановое строение. Примерная длина около 3 метров, придется купить 4 штуки.
Кроме этого, нужно купить специальные профильные панели для прочности соединений.
Ее укладывают только по вертикали, исходя из предыдущих расчетов площади дома и длины панели, нужно будет купить 8 штук. Окна и двери также нужно обшивать отдельным профилем, длиной 3, 66 м. Если в доме 5 оконных поемов, то придется купить 9 штук. Для двери + 3 штуки. Округляем, и получается всего 12 профилей для отделки.
Технология монтажа
Обшивка панелями потребует обустройство каркаса. Его монтируют поперек длины полотен. Если планки будут крепиться по горизонтали, то каркас монтируется по вертикали. Часто под сайдинг прокладывают утеплитель.

Монтаж и подгонка винилового сайдинга
Максимальный «пирог» под облицовку будет состоять из следующих слоев:
- Пароизоляция. Крепится на дистанционные планки, которые создают дополнительную воздушную подушку между фасадом и гидроизоляцией.
- Утеплитель. Чаще всего применяется пенопласт или минвата. Укладку производят в два слоя со смещением пластов. Это обеспечивает максимальный уровень изоляции.
- Ветроизоляция. Часто используется пленка.
- Каркас. Для его обустройства используют либо металлический профиль, либо рейку.
- Сайдинг. Монтируется на каркас по уровню.
Обшивка панелями дома не требуется особых серьезных навыков и вполне под силу даже начинающему строителю.
Расчет количества панелей сайдинга
Прежде всего, какой бы метод не был выбран, получите точные исходные данные. Для этого следует вооружиться измерительными приборами – рулеткой и линейкой, – и провести точные замеры всех участков стен дома, которые необходимо отделать сайдингом. Наименьшей погрешности в подсчете материала и правильности измерений можно достичь, следуя простым правилам:
Для каждого облицовываемого участка следует делать индивидуальные замеры высоты и ширины, чтобы потом можно было высчитать общий размер, состоящий из суммы площадей каждой отдельной поверхности;
После этого важно произвести подсчет всех внешних и внутренних закрываемых углов, а также длину каждого из них;
Точно так же, как и в случае со стенами, производится измерение и подсчет площадей всех дверных и оконных проемов. Дополнительно рассчитывается периметр каждого из них, для чего высоту и длину каждого проема умножают на 2;
После этого измеряют параметры фронтонов. В большинстве случаев это площади треугольной или трапециевидной формы
Для их вычисления используют классические геометрические формулы — в зависимости от каждого конкретного случая. Суммируя получившиеся данные, получают общую цифру, которая будет точной отсчета в дальнейших вычислениях;
Из суммарного размера стен и фронтонов вычитают общую площадь поверхности окон и дверей;
Производятся замеры фронтонных свесов и размеров карнизов для расчета софитов;
Измеряется расстояние, на которое карниз выступает от кирпичной кладки, и считается общий размер выступов карниза;
Также вычисляется ширина фронтонных свесов.
В большинстве случаев это площади треугольной или трапециевидной формы. Для их вычисления используют классические геометрические формулы — в зависимости от каждого конкретного случая. Суммируя получившиеся данные, получают общую цифру, которая будет точной отсчета в дальнейших вычислениях;
Из суммарного размера стен и фронтонов вычитают общую площадь поверхности окон и дверей;
Производятся замеры фронтонных свесов и размеров карнизов для расчета софитов;
Измеряется расстояние, на которое карниз выступает от кирпичной кладки, и считается общий размер выступов карниза;
Также вычисляется ширина фронтонных свесов.
После общих расчетов определяется объем материалов с коэффициентом запаса 1,1. Он нужен для учета потерь на обрезанные части панелей, потому что их будет невозможно использовать в дальнейшем.
Длина верхних и нижних полос равна периметру нижней линии дома. Точное число самих планок вычисляется из деления всей длины на размер одного элемента отделки.Количество угловых панелей, нужных для закрытия стыков в проемах, считается конкретно для каждого угла на основании имеющихся длин.
Периметр окон дверей является величиной, определяющей количество L- профиля.
В случае утопленных в стены окон, а утоплены они могут быть на глубину от 2 до 18 см, вычисляется отдельное поштучное количество специальных оконных профилей.
Таким образом, выполнив достаточно легкий расчет по наиболее подходящей методике, не требующей много знаний и времени, можно прилично сэкономить на расходе материала. Сайдинг используется и для внутренних работ, но такой сайдинг производится из ПВХ или МДФ, а для его крепления применяется другой профиль.
Источник prosajding.ru/vybor/kak_rasschitat_sajding_na_dom.html
Загрузка …
Проведение расчетов
Прежде чем вычислять количество необходимого материала для обивки дома, необходимо замерить общую площадь поверхности дома. Если же дом еще не построен, но планируется делать обивку фасада сайдингом, то у мастера должен подробный план, на котором отмечены все участки, подлежащие покрытию сайдингом.
Если подобный план уже имеется (с соответствующими разметками окон, дверных проемов, стен), то нет необходимости проводить повторные замеры. Если же такого плана нет, то после проведения замеров его необходимо составить и сохранить на будущее.
Замеры фасада здания проводятся по следующим правилам:
- Несмотря на конструктивную схожесть фронтона или стен дома, замеры всех площадей должны проводиться независимо друг от друга. Некоторые части здания из-за особенностей расположения могут иметь незначительные отличия
- Замеры проводятся по боковому периметру здания — таким образом определяется покрываемая сайдингом площадь поверхности
- Площадь поверхности треугольной формы определяется по следующей формуле: произведение основания делится на два и умножается на высоту треугольника. После проведения вычислений и замеров треугольные и прямоугольные площади суммируются и определяется общая площадь поверхности
- Ширина всех стен определяется с помощью замеров у нижнего основания и карниза. Есть на выходе получаются неравные значения, необходимо использовать больший результат (для того, чтобы запастись большим количеством сайдинга)
Рекомендация: Все вычисляемые параметры должны сопровождаться схематическими изображениями. Наличие рисунка, на котором изображены части здания, позволит наглядно представить особенности расположения будущей конструкции обшивки.
После того, как габариты здания были замерены, можно приступать к расчету количества сайдинга, а также утеплителя под сайдинг. Ведь прежде, чем монтировать обивку дома, нужно произвести утепление под сайдинг.
Размеры дверей на торцевой шкаф скошенной формы
Нередко ряд кухни или гардеробных шкафов заканчивают торцевым модулем со скошенной дверцей. Рассчитывают ее ширину по аналогии с предыдущим вариантом с единственным отличием.
Изначально также требуется вычислить ширину проема. Тут надо быть готовым, что в основе не будет лежать правильный треугольник с равными катетами.

К полученной ширине проема прибавляют 8-10 мм, в зависимости от толщины боковин. Это нужно, чтобы фасад прикрывал торец и он не «проглядывал» на общем фоне единой фасадной части.

- https://ohrana-truda-kurs.ru/kak-raschitat-ploschad-fasada-zdanija-znaja-poloschad-i-stroitelnyj-obem-26432/
- https://sdelay-mebel.ru/kak-rasschitat-fasadi/
- https://shkaf-info.ru/kak-rasschitat-razmery-dverey-shkafa-i-vydvizhnyh-yaschikov/
- https://expertfasada.ru/fasad/fasadnye-paneli/onlajn-kalkulyator-fasadnyh-panelej/
- https://kitchendecorium.ru/mebel/front/razmery-fasadov-kuhni.html
Работа в программе Krovlya Profy
Рассмотрим графическую программу, которая называется Krovlya Profy 8.2. Ее можно скачать в Интернете с официального сайта, установить на свой компьютер и пользоваться целый месяц бесплатно с полным функционалом.
Эта программа позволяет рассчитать точное количество любого обшивочного материала:
- все виды винилового и металлического сайдинга (блок хаус, корабельная доска и т.д.);
- все виды фасадных панелей;
- профнастил и любой листовой материал.
В качестве примера, подробно по шагам, рассчитаем сайдинг, необходимый для обшивки одной стены с окнами (рис. 1).
Рис. 1. Фасад с окнами
Порядок расчета количества сайдинга для обшивки дома
После установки и запуска программы у вас будет вот такое окно (рис. 2), где для начала нужно открыть меню «Файл» и выбрать строку «Новый».
Рис. 2. Первое окно программы Krovlya Profy 8.2
Появится дополнительное окно, где в нашем случае нужно выбрать «Сайдинг» (рис. 3).
Рис. 3. Окно выбора материала
Появится окно (рис. 4).
Рис. 4. Выбор, редактирование, создание нового вида сайдинга
Для того, чтобы программа правильно рассчитала количество сайдинга нужно создать новый вид или выбрать подходящий из списка (рис. 4).
Создадим новый, нажав соответствую кнопку, после чего появится окно (рис. 5.), в котором заполняем нужные поля:
- название «Корабельная доска»;
- нахлест вдоль длины листа 0 м;
- полная ширина листа 0,26 м;
- полезная ширина 0,23 м;
- максимально возможная длина листа Lmax = 6 м;
- минимальная длина Lmin = 0,5 м;
- величина округления 0,01 м.
Другие параметры не так важны. По вашему желанию вы можете заполнить остальные значения и поэкспериментировать с результатом.
Рис. 5. Ввод параметров нового вида сайдинга
Нажмите кнопку «Ок», все параметры сохранятся. Появится кнопка «Далее», нажав которую вы переходите к выбору шаблона фасада. В данном случае нас интересует фасад прямоугольной формы (рис. 6).
Рис. 6. Окно выбора формы фасада
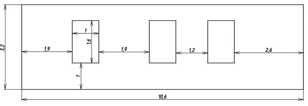
Поэтому выбираем его и указываем длину фасада а = 10,6 м и высоту b = 3,2 м (рис. 7). Жмем «ОК»
Рис. 7. Размеры фасада
Чтобы вычесть оконные проемы переходим в режим «Вырезы» (рис. 8).
Рис. 8
Нажимаем кнопку «Добавить вырез» (рис. 9).
Рис. 9
Наши окна прямоугольной формы, поэтому выбираем соответствующий шаблон выреза (рис.10).
Рис.10
Все окна у нас одинаковые. Указываем ширину а = 1,0 м, высоту b = 1,6 м. Задаем положение первого окна относительно левого края стены Х = 1,9 м, отступ снизу Y = 1,0 м (рис. 11). Жмем «ОК».
Рис. 11
Чтобы добавить остальные окна, надо снова нажать кнопку «Добавить вырез», и правильно заполнить поля. Положение каждого окна задается относительно нижнего, левого угла стены.
Когда все окна будут добавлены, нужно выйти из режима «Вырезы» (рис.12).
Рис. 12
Затем нажать кнопку «Расчет» (рис. 13).
Рис. 13
Чтобы сместить место соединения листов влево, нажмите несколько раз кнопку, указанную на рисунке 14.
Рис. 14
Таким образом можно добиться любого положения зоны стыковки листов, но нас интересует случай, когда левый и правый листы будут одинакового размера, а соединение ровно по центру среднего окна (рис. 15).
Рис. 15. Схема укладки листов
Чтобы получить список с размерами и количеством всех листов сайдинга, нажмите кнопку «Спецификация».
Благодаря проделанной работе у вас получится точное количество материала, необходимое для обшивки стены.
В данной программе можно рассчитать обшивочный материал для любого здания со стенами разной формы и размеров.
Расчёт основных элементов
Если у вас простой дом в виде коробки, то рассчитать основные элементы сайдинга довольно просто, сложнее, если ваш дом состоит из множества дополнительных архитектурных элементов
Под основными элементами здесь подразумевается фасадный сайдинг, и сайдинг на фронтон. Рассчитать их проще всего, но конечно, всё зависит от конфигурации вашего дома.
Сложные архитектурные формы рассчитать сложнее, поэтому мы не сможем дать вам универсальной формулы, но рассмотрим технологию на примере простого дома с шириной фасада 6 метров, высотой 2.5 и двускатной крышей с фронтоном высотой 2 метра. Так же в нашем фасаде располагаются два окна симметрично форме дома и одна входная дверь с правого края. Итак, приступим.
Расчёт фасада
Высчитать количество сайдинга на фасад дома не сложно, не забывайте учитывать дверные и оконные проёмы, вычитая их из получившегося количества материала
За основу мы берём длину панели 3 метра и высотой 30 сантиметров. Тут всё просто.
Существует простая формула:
- Вычисляем общую площадь стены. В нашем случае она составляет 6 * 2.5 = 15 квадратных метров, или 13.5 панелей сайдинга.
- Теперь, вычисляем площадь окон и двери. Возьмём стандартные размеры окна 1.4 * 1.4 метра, и двери 0.8 * 2000.
- Получаем результат – 5.52 метра, и вычитаем этот результат из общей площади фасада.
- Получаем 9.48 квадратных метра или 10.5 панелей.
При таких параметрах дома, эта формула подойдёт идеально, но измените ширину фасада всего на 50 сантиметров, и эта формула уже не работает, поэтому для упрощения нашей задачи, делаем чертёж дома на бумаге в реальных пропорциях.
Если вы хотите обшить дом сайдингом разных цветов, то каждый из них нужно считать отдельно
Теперь, вычислить нужное количество гораздо проще, но при ширине фасада более 6 метров, необходимо симметрично расположить Н-профили. Лучший вариант в такой ситуации, это разделить дом ровно пополам, и от этой метки отступить в каждую сторону по 1.5 метра. Так у нас ляжет центральная панель, далее встанет соединительный профиль, и снова сайдинг.
Ещё одна трудность будет заключаться, если ширина дома более 7.5 метров, здесь уже не обойтись без обрезков, которые вряд ли удастся где-то использовать, но тут уж ничего не поделаешь. Итак, с фасадом мы разобрались, можно начинать расчёт сайдинга на фронтон.
Сайдинг на фронтон
Высчитать количество сайдинга на фронтон сложнее, так как для него понадобятся материалы разных размеров, в зависимости от уклона
Расчёт этого элемента фасада произвести сложнее, да и без обрезков тут не обойтись. Исходя из нашего чертежа, который мы взяли за основу, целесообразно поставить ровно посередине фронтона соединительный вертикальный профиль. Первый ряд у нас ложится без обрезков, а далее, каждая панель будет уменьшаться примерно на 20 сантиметров.
Наш фронтон имеет форму равнобедренного треугольника с общей площадью 6 квадратных метров или 6.6 панели. Но это не совсем верно, так как более правильно будет вычислить, сколько рядов панелей нам понадобится.
Результат – 6 рядов, в каждом ряду три панели итого 12 панелей, но примерно с четвёртого ряда, остатки, достигнут такой длины, что их можно использовать в следующем ряду.
Мы видим пример обшивки дома и фронтона металлическим сайдингом
Снова нам на выручку приходит чертёж в реальном масштабе. С его помощью, рассчитать количество необходимых нам панелей гораздо проще, к тому же вы сможете визуально представить, на каком ряду, обрезки сайдинга достигнут размера, когда их можно использовать.
Как видно, инструкция по вычислению имеет определённые сложности, и для наглядности, предлагаем вам посмотреть видео в этой статье, на котором специалисты производят расчет виниловый сайдинг на реальном объекте. А мы тем временем движемся дальше, и переходим к расчёту доборных элементов.
Разновидности сайдинга
Как правило, на практике применяется три основных вида сайдинга, отличающихся между собой по форме и размерам:
- панели с профилем «елочка»;
- «блок-хаус»;
- панели с профилем « корабельная доска».
Производители выпускают сайдинг следующей ширины: 205мм, 230мм, 255мм.
Для того чтобы задекорировать внутреннюю поверхность карнизов, свесов, козырьков используют специальный вид винилового сайдинга – софит. Различают двуполостный и трехполосный вариант. Также в зависимости от наличия перфорации выделяют; софит перфорированный частично, софит сплошной, и софит, перфорированный по всей поверхности листа.


























































