Планировка 3-комнатной квартиры П-3
Здания серии П-3 признаны самыми лучшими в плане эксплуатации и планировки. «Трешки» этой серии начали строить в 80-е годы. Со временем данную серию усовершенствовали, и появились проекты П-3М, П-3МК Флагман, П-3/16.
Дома П-3 оснащены трехслойными навесными панелями, характеризуются хорошей тепло- и звукоизоляцией. Трехкомнатные квартиры отличаются удобным расположением помещений. Есть балконы, вместительная кухня и изолированные комнаты. Присутствует система дымоудаления. С 2002 года в таких квартирах устанавливают двухкамерные стеклопакеты. Дома сдают с отделкой. Почти все внутренние перегородки являются несущими.
Высота потолков в квартирах – 2,64 м. Общая площадь 3-комнатного жилья – 74-86 кв. м, кухня – 10 кв. м.
Планировка смарт-квартиры
Помните, как лет 10-15 назад стали появляться первые квартиры-студии. До этого этот термин был не так распространен на постсоветском пространстве. Студии отлично подходят для одного человека (максимум двух людей) и являются довольно бюджетным приобретением.
Сегодня же появились еще более уменьшенные версии однокомнатных квартир – речь идет о смарт-квартирах. Их площадь составляет от 18 до 25 метров. Ввиду того, что обустроить такое небольшое пространство всем необходимым довольно трудно, многие застройщики предлагают не только готовую планировку. Они также осуществляют меблировку квартиры, так что вы заезжаете уже в готовое и обставленное помещение.
Если же вы хотите заняться дизайном смарт-квартир самостоятельно, приготовьтесь к тому, что мебель обойдется гораздо дороже, чем если бы вы выбирали ее для обычной комнаты. Небольшая площадь диктует свои условия и заставляет покупать столы, диваны и комоды, сделанные по личному заказу с учетом параметров комнаты. Здесь важен каждый миллиметр, поэтому для расчета обязательно пригласите профессионала.
Для таких помещений чаще всего используется смарт-мебель, которая в свою очередь состоит из многофункциональных предметов. То есть, например, диван может превращаться в комфортную двуспальную кровать, а комод иметь встроенную гладильную доску.
Зрительно увеличить пространство помогут:
- светлая отделка стен и потолка;
- белые фасады мебели;
- легкий текстиль на окнах (тюль, жалюзи и т.д.).
Что представляют собой хрущевки
В пятидесятых годах прошлого века в стране, немного оправившейся от последствий страшной войны, остро встал вопрос обеспечения жильем ее населения. Основная задача заключалась в предоставлении отдельных квартир семьям, ютившимся в бараках и коммуналках. А таких в государстве, строящим коммунизм, было огромное количество. Ситуация многократно осложнилась из-за значительного разрушения жилого фонда в военные годы.
Планировка хрущевки 2 комнаты — варианты
Необходимо было построить за короткий срок большое количество многоквартирных домов, причем с минимальными финансовыми вложениями. При этом делался упор на функционализм, простоту и строгость форм архитектурных объектов.
Одно из самых неоспоримых достижений Советской власти – это массовое строительство бесплатного жилья, начатого вскоре после окончания ВОВ
Новые жилые здания резко контрастировали со сталинской архитектурой, отличавшейся монументальностью и пышностью. Хрущевки получили свое народное название в честь Никиты Сергеевича Хрущева, в период его нахождения у власти, как правило, и возводилось такое жилье.
Хрущевки — основные плюсы и минусы домов
Стиль строившихся по типовым проектам многоквартирных строений относится к функционализму. Возводились как панельные и блочные здания, так и дома из кирпича. Основная масса народного жилья была построены из железобетонных панелей. Такие постройки строились очень быстро, зачастую в ущерб качеству. Они отличались легкостью конструкций, плохой теплоизоляцией и высоким уровнем слышимости в квартирах. Однако по качеству, функциональности и комфортности для проживающих их нельзя было сравнить с двухэтажными деревянными зданиями, строительство которых было популярно при И. В. Сталине. Эксплуатационный ресурс панельных домов был определен в 25 и 50 лет, однако большинство из них до сих пор находятся в жилом фонде.
Хрущевки
При отсутствии в населенных пунктах собственного ДСК предпочтение отдавалось возведению кирпичных зданий. В качестве строительного материала чаще всего использовался дешевый силикатный кирпич и стандартные железобетонные изделия, к которым относятся плиты перекрытия, перемычки, пролеты лестниц и т. д. Кирпичные постройки приписывались к несносимым сериям (срок эксплуатации был определен в полторы сотни лет).
Кирпичная хрущевка
В основном, здания имеют четыре или пять этажей (редко, как правило, в небольших населенных пунктах, строились и строения меньшей этажности). Выше возводить дома без лифта нельзя по существующим нормам. От лифта и мусоропровода отказались опять-таки из-за экономических соображений.
Также снижение себестоимости строительства было достигнуто при помощи рационализации планировок. Нормы жилой площади и габариты квартир были пересмотрены в сторону уменьшений. Высота потолков была ограничена 2,5 метрами (позднее появились серии с более высокими потолками), размер кухни варьировался в пределах 5…6 кв. м. (отдельные модификации серий могли похвастаться и большим метражом этого помещения). Санузлы стали устраивать совмещенными. Комнаты в двухкомнатных квартирах были также не изолированными. Однако для удобства жильцов в квартирах предусматривались небольшая кладовая комната и балконы.
Маленькая кладовка в хрущевке
Все необходимые удобства для проживания были в наличии: центральное отопление, водоснабжение (горячее могло быть как центральным, так и от газовых колонок), системы канализации и вентиляции были при проектировании предусмотрены.
В результате акцент на типовое малогабаритное жилье позволил снизить его себестоимость почти на треть. При этом следует отметить, что для подавляющего количества граждан переселение даже в маленькие квартиры в то время было большим шагом в сторону создания комфортных условий жизни, так как люди получили возможность переехать из коммунальных квартир, бараков и общежитий в отдельное жилье. Тогда собственная квартира, пусть и небольшой площади, представлялась воплощением мечты.
Довоенные проекты построек
Дизайнерские приемы
Владельцам квартир в новостройках с большой площадью и отсутствием перегородок проще воплотить любые фантазии. Однако, принципы описанные ниже, применимы для любых помещений. Дизайнеры не могут физически изменить размеры комнат. Поэтому они используют некоторые хитрости, которые способны делать чудеса.
Дизайнерские хитрости при планировке квартиры
Прежде всего, это цвет:
Для приверженцев египетского стиля обязательно вводить в интерьер насыщенный синий цвет. Если вы хотите засыпать без снотворного, закажите синие натяжные потолки с точечными светильниками для спальной комнаты.
Египетский стиль в интерьере выглядит довольно необычно
Зеленый цвет в чистом виде и все его интерпретации помогают расслабиться. Если необходимо создать респектабельный интерьер с историческими нотками – используйте серо-зеленые оттенки. Дворцовый шарм обеспечен.
Серо-зеленый в интерьере спальни
Белый является хорошим фоном для антикварной, темной и эксклюзивной яркой мебели (это тренд последнего сезона).
Белые стены в интерьере квартиры
Теплые цвета (красный, желтый) уместны в комнатах, выходящих на северо-запад, холодные: синий, фиолетовый, зеленый — для помещений выходящих на юг.
Холодные цвета в гостиной
А дальше более подробно об изменении размеров помещений.
Как поднять потолок
Казалось бы, вы не можете переместиться к соседям сверху или снизу. Однако на протяжении истории архитекторы использовали простые приемы для этого. Декор должен иметь вертикальное направление. Подчеркиваю: не обязательно это должны быть полосы, применимы арабески и тому подобное.
«Поднять» потолок можно вертикальными линиями
Замечательный вариант: многоуровневые потолки, при которых центральная часть самая высокая и имеет направленную вверх подсветку. Тренд последних лет — натяжные потолки. С их помощью достигается идеально ровная поверхность. Для тех, кто хочет увеличить высоту – глянцевые полотна. Для создания уюта – матовые, с имитацией текстиля.
Матовый натяжной потолок для создания уюта
Расширьте стены
Аркообразные проходы дают эффект расширения пространства. В маленьких помещениях применяйте диагональную укладку кафельной плитки, ламината, паркетной плиты, теряются настоящие размеры комнаты.
Декоративные межкомнатные арки в интерьере
В узких коридорах достаточно фронтонные стены выкрасить или подобрать обои на два тона темнее, чем боковые и они «раздвинутся» на глазах. Подобное ощущение дает декорирование пилястрами, вертикальными тягами, длинными картинами, светильниками, размещенными на одинаковом расстоянии.
Пилястры — роскошная индивидуальность
Используйте колоны, пилоны, пилястры с капителями, оформление углов комнат более темным декором: окраска, обои, натуральный либо декоративный камень.
Модные направления дизайна (стили), тенденции
Мрамор в разных интерпретациях применяется для декорирования пола, стен. Однако это не должна быть банальная плитка. Лучше применять плиты, в том числе, которые имитируют этот материал. Дополнением становятся покрывала, декоративные подушки с мраморным рисунком. Материалами с этим рисунком оформляют столешницы кухонных зон, журнальные столики.
Мраморные плиты в декорировании стен
Для декорирования ведущие дизайнеры рекомендуют выбрать цвета и оттенки: коричнево-красный, фиолетовый, голубой (цвет неба), терракотовый, синий, горчичный, беж, красный (фрагментарно). Как видите диапазон довольно обширный, может удовлетворить любые предпочтения. Но все же королем цвета в этом году назван Greenery – цвет молодой зелени, который олицетворяет слияние с природой, энергию.
Greenery — трендовый цвет этого года
Этому направлению вторят коллекции керамической плитки. Цветовая гамма однородная, с естественным рисунком: различные оттенки охры, меди соединяются с более темными оттенками. Возврат к природе требует большого количества живых растений. При желании комнату можно превратить в оранжерею.
Оттенки природы в интерьере квартиры
Беспроигрышным вариантом являются все натуральные цвета, оттенки. Возврат к природе – девиз дизайнеров.
Планировка 3х комнатных апартаментов в новых домах
Как правило, сегодня в новых домах санузел расположен по соседству с небольшой комнаткой. Именно поэтому целесообразно сделать из этого небольшого помещения спальню.
Главное решить, какой элемент в спальне станет акцентным. Это может быть и шкаф, и спальное место.
Однако если шкаф можно разместить в гостиной, то центром комнаты безусловно станет кровать.
Все жилище в новостройках имеют довольно большую площадь, поэтому планировка 3х комнатной квартиры с размерами довольно большими это, прежде всего, свободное обустройство пространства.
В спальных комнатах больших квартир можно разместить не только необходимую кровать и систему хранения, но еще много предметов функциональной мебели. Здесь можно творить и воплощать в жизнь все дизайнерские задумки.
Такое ложе выглядит очень стильно и модно. Завершить необычный интерьер можно необычным освещением или гипсокартонной овальной конструкцией на потолке.
Разработка дизайн-проекта для 3х комнатной квартиры начинается с пожеланий владельцев. Планировка 3 комнатной квартиры и ее оформление осуществляется в светлых оттенках с некоторыми акцентами цветов.
Такой интерьер имеет очень спокойную и уютную атмосферу. Детские комнаты необходимо обустраивать, исходя из возрастных потребностей каждого ребенка.
Как грамотно обустроить?
Специалисты отмечают, что в идеале окно должно быть в каждой комнате, за исключением туалета и ванной. Раз пространство достаточно велико, нужно максимально обыгрывать это преимущество, подчеркивать его за счет естественной освещенности. Даже если выбрана открытая планировочная схема, без тщательного зонирования не обойтись. Его делают так, чтобы четко разделять части пространства и гарантировать достаточный уют во всех частях квартиры.
Зону отдыха и зону обеда разделяют чаще всего коврами и осветительными приборами. Второй вариант более перспективен, потому что лучше соответствует современному духу. Рабочее место внутри спальни обособляют ширмами и стеллажами различных видов. В двухуровневых квартирах на нижнем ярусе обычно оставляют кухню и гостиную зону. Личные комнаты для большего уединения поднимают на второй уровень.
Нестандартные решения проектов
Продумывая план трехкомнатной квартиры с большой кухней, многие профессиональные дизайнеры предпочитают использовать варианты с овалом. Благодаря гнутому фасаду гарнитур будет выглядеть изящнее. Обычно по умолчанию комбинируют прямые и радиусные элементы. Какой-то один вариант из них используется крайне редко, потому что это противоречит основным стилистическим правилам. Немного иначе можно подойти к делу в улучшенной 3-комнатной «распашонке» с размерами до 90 кв. м. Суть такой планировки состоит в том, что квартира выходит окнами одновременно на две стороны дома.
Квартира типа «распашонка» может быть и обычного формата, и в виде студии. Обе разновидности широко используются современными застройщиками в оформлении новостроек. Отмечается, что это одна из лучших нестандартных схем для больших семей. Стоит также указать, что встречающееся в некоторых источниках название «бабочка» относится к точно таким же квартирам — это, по сути, полные синонимы. Трехкомнатная распашонка в виде буквы Г строится таким образом, чтобы коридор сразу вел в санузел. После изгиба он сообщается с проходной комнатой с одной стороны и с кухней — с другой стороны. Через транзитное помещение проходят в комнаты, которые уже изолированы. Но может встречаться и планировочное решение типа «квадратик». Тогда из коридора есть проходы:
в жилую зону;
в обособленный закуток, откуда можно выйти к санузлу и на кухню;
в жилые обособленные комнаты.
Преимущества подобного варианта — оптимальный обзор из окон. Также «распашонки» ценят за персонализированный характер. Жильцы одной квартиры, занимающие разные комнаты, минимально зависят друг от друга и не создают взаимных проблем. Но конкретный подход зависит не только от взаимной конфигурации помещений.
Так, в квартире величиной 50 кв. м. или 55 кв. м. такой вопрос, как пользоваться слиянием жилого пространства с лоджией, обычно не стоит. Этот шаг будет совершенно закономерен и неизбежен. Даже если учесть трудности согласования и возможные проблемы технического плана, получаемая польза однозначно перевешивает. Дизайнеры рекомендуют также использовать стилистику минимализма.
Закрытые шкафы ценят за то, что они визуально расширяют сравнительно скромные комнаты. Дизайнеры советуют подготовить узкий коридор, откуда будут отдельные выходы в каждую жилую комнату. Да, это противоречит интуитивному стремлению расширить пространство. Зато обеспечивается полная изоляция двух помещений друг от друга.
При площади 60-62 кв. м. уже можно постараться выделить 3 автономных комнаты. Правда, каждая из них по отдельности окажется невелика. Чтобы сэкономить полезное место в детской комнате, можно поставить там выкатную кровать. Дополнительное спальное место вечером будет выдвигаться снизу, и потому потребность в дополнительном диване или кровати отпадает.
Куда больше интересного можно сделать в квартирах площадью 80 или 81 кв. метр. Нет уже специального смысла доводить общее пространство до совершенства различными ухищрениями, сносом перегородок и так далее. На такой большой площади вполне уместно будет смотреться самое разное стилистическое решение. Будут удовлетворены даже любители бескомпромиссного шикарного барокко. В гостиной можно поставить декоративную имитацию камина, модным решением в конце 2010-х годов стало сочетание классического и этнического стилей.
Планировка в современных строениях
Современные планировки в монолитных новостройках существенно отличаются от расположения в брежневках или хрущевках. Стремительное развитие строительства оказало влияние на качество возводимой недвижимости. Проходные комнаты встречаются редко, а угловые квартиры имеют хорошее внешнее утепление. Свободного пространства достаточно для создания различных функциональных зон во многих сериях домов, как пример, 515/9ш, 504, 511, 464, 467, ii-18/12.
Особенности планировки зависят от типа самого строения. Современная квартира серии 100, 135, 103, 119, 1605, 602, 121, 137, ii-49 может выглядеть как студия, частичная студия с одной перегородкой, «распашонка». К достоинствам такого расположения можно отнести следующие факторы:
- Высокий уровень комфорта. Во многих квартирах жилые комнаты не граничат с лифтами, мусоропроводами;
- Свободная планировка в новостройках позволяет распределять пространство на усмотрение жильцов;
- Удобное расположение кухни. Нет обязательной привязки к месту бытовых приборов и газовых плит;
- Простоя процедура перепланировки. Из трехкомнатной можно легко сделать двухкомнатную без согласования с БТИ;
- Возможна двухуровневая планировка, панорамные окна, балкон-терраса.
Как обустроить квартиру-студию
Основной недостаток планировки 65.4 в современных домах – неудобная геометрия. Часто встречаются комнаты в виде трапеции, с углами, круглыми стенами с одной стороны, колонами и прочими особенностями. К минусам также можно отнести нефункциональную и неудобную прихожую. Из-за большого количества дверей в разные комнаты ее сложно использовать и обставлять мебелью.
Современными постройками можно считать дома, возводимые с 1992 года. Площадь трешек увеличена до 60м2. Появились просторные балконы, захватывающие несколько комнат, утепленные лоджии. Если расположение квартиры угловое, одну из комнат делают проходной, что увеличивает ее квадратуру. Чешки, литовский проект или польки более практичны. Из-за удачного расположения кладовки появляется возможность расширить коридор. Если есть необходимость, из простой трешки можно сделать хорошо продуманную четырехкомнатную квартиру.
Планировка новостроек в микрорайоне Левенцовка очень разнообразна. Лучшими считаются свободные студии. Они позволяют проявить фантазию при обустройстве, создать настоящий уют в просторных комнатах. Дизайн квартир бизнес-класса в Бобруйск предусматривает выгодное соотношение общей площади и размера всех комнат.
Расположение комнат в башне Вулыха и схожих с ними из серии ii-68 ама или «корабль» предполагает полную изоляцию помещений. Из-за отсутствия несущих стен возможна полная перепланировка. Проблемой таких построек считают расхождение потолочных швов.
Трехкомнатная квартира в новостройке или по чешскому проекту – отдельный, полноценный тип жилья для проживания одной семьи. Стандартная площадь от 56,2 м2 до 68 м2. Иногда встречаются квартиры 75 м2. Такие квартиры встречаются в жилом районе Братска Падун, на набережной Ростова. Помещения с малой площадью имеют особую электропроводку, цепь, щиток. Однофазный электрощиток вынесен в подъезд.
Площадь трешек зависит от типа и материала постройки, а также этажности здания. Во всех проектах предусмотрен балкон, или балкон и лоджия. Исключение могут составлять первые этажи. Некоторые современные постройки оснащены большой кухней в 14 метров квадратных и двумя санузлами, например, как в загородном комплексе Власов или микрорайоне Левенцовка.
Серия П-3.
Этажность домов серии П-3: 16-17 этажей
Высота жилых помещений: 2,64м. (П-3), 2,66м. (П3-М)
Строительные конструкции:
наружные стены: навесные керамзитобетонные панели ,толщ. 320 мм. (для П-3)
навесные трёхслойные панели с эффективным утеплителем, толщ.320 мм. (для П-3М)
внутренние стены: несущие поперечные бетонные стеновые панели с шагом 3.0 и 3.6 м. толщ. 180 и 140 мм.
фасады: окраска, цоколь-облицовка цветной глазурованной плиткой типа «кабанчик».
перегородки: гипсобетонные панели толщиной 80 мм.
Лоджии и балконы: из ж/бетонных плит толщ. 220мм, с опиранием на наружные керамзитобетонные стены консольные — выпуск плит перекрытий. Боковая поверхность стенок лоджий, а также нижние поверхности плит лоджий окрашены перхлорвиниловыми красками. Ограждение — металлическое с глухим экраном (асбестоцементные листы в обвязке из алюминиевых профилей).
Перекрытия: железобетонные плоские панели толщиной 140 мм, размером на «комнату» с каналами для электропроводки и с замоноличенной электропроводкой.
Вентблоки: железобетонные не несущие с прямыми каналами и двумя сборными.
Лестницы внутренние: 2-х маршевые из сборных железобетонных ступеней и площадок толщиной 200 мм, ограждение из готовых металлических элементов.
В блоке-секции имеются 2 лифта грузопассажирский и пассажирский, мусоропровод с приемными клапанами на 2-17 этажах в лестнично-лифтовом холле. Выгрузка мусора осуществляется из мусорокамеры, расположенной на 1-ом этаже. Санитарные узлы решены в виде объемных разобщенных санитарно-технических кабин.
Планировка
Рассказ про планы и проекты трехкомнатной квартиры 60 кв. м стоит начать с того, что они весьма разнообразны. Помимо основных типовых программ, стоит учесть, что ту же самую площадь может иметь и двухкомнатная, и даже однокомнатная квартира. Встречается она и в самых разных типах зданий — в кирпичном доме современного образца, в «сталинках», в панельном доме 60-70-х годов прошлого века. Потому универсальных описаний планировок 3-комнатной квартиры величиной 60 м2, не говоря уже о перепланировках и изменении характеристик комнат, просто нет.
В «сталинском» доме наиболее перспективно:
слияние ванной и туалетной зон;
расширение границ кухни за счет сокращения санузла;
разделение кухонной и гостевой зон при помощи сдвижной двери;
размещение части верхней одежды и сезонных вещей в холле.
Попадать в ванную можно из спальни. Такое решение часто приводит к необходимости обустраивать смежные изолированные комнаты. Но для одиноких жильцов, а в какой-то мере и для семейных пар, это не слишком страшно. Если в квартире есть кладовка или хозяйственная комната, ее убирают, наращивая кухню.
Авторская планировка часто приводит к появлению совершенно уникального жилья. Даже опытным специалистам трудно определить, 2 или 3 комнаты все же в квартире. Чаще всего такие помещения отделывают в разных лаконичных стилях. Стараются создать максимально светлое теплое пространство с многофункциональными возможностями.
Трехкомнатная квартира может быть оформлена и вовсе оригинально. К примеру, часто ставится цель:
оставить возможность попадать во все помещения из прихожей;
оформить все с прямыми линиями;
оформить монохромную ванную комнату;
создать сбалансированный интерьер.
В панельных домах
Одной из распространенных планировок для панельного дома является трехкомнатная квартира проходного типа. Также старые типовые планировки в панельных домах при помощи опытных дизайнеров всегда можно превратить в нечто новое и современное, кардинально поменяв облик квартиры.
Что касательно квартир в пятиэтажных «хрущевках», то для них сейчас стараются выбрать более комфортную перепланировку. Например, кладовку в такой квартире превращают в гардеробную для хозяйки. Другой вариант – сделать из «хрущевки» квартиру-студию.


Один из интересных вариантов – перепланировка стандартной типовой трехкомнатной «распашонки» в девятиэтажках в квартиру с объединенной кухней-гостиной и двумя изолированными комнатами. В одной из комнат при этом площадь позволяет соорудить мини-гардеробную, а в тупике образовавшегося коридора можно отгородить небольшую кладовую.
Необходимо отметить, что трехкомнатные квартиры в пятиэтажках проектировались не совсем удачными. Смежные комнаты и небольшие площади помещений были не очень удобны. Поэтому в настоящее время для улучшения условий проживания применяют кардинальную перепланировку квартиры.
Открытая планировка
Современные дома часто строятся с квартирами без межкомнатных перегородок. Вновь приобретенную жилую площадь можно спланировать соответственно с предпочтениями владельца.
Открытая планировка дает возможность совмещения разных по функциональному назначению зон. Столовая гармонично объединяется с кухней. Спальня легко превратится в гостиную, если кровать можно поднять и закрыть в шкафу.

Такая планировка имеет несколько неприятных характеристик:
- Если вместе живут хотя бы два человека с разным суточным ритмом, то выспаться скорее всего не удастся никому из них. «Жаворонки» и «совы» — это не вымысел.
- Шум на кухне понижает работоспособность человека, которому, например, срочно нужно сосредоточиться на поиске информации в интернете.
- Запах котлет приятен во время еды, но вряд ли кому-то понравится, если пищей будет пахнуть вся мягкая мебель.
- Если одному из членов семьи нужна тишина, то другому придется наслаждаться любимой музыкой в наушниках. Дорогостоящая аудиоаппаратура будет простаивать бесполезной мебелью.
- Каждому человеку иногда хочется побыть одному, наедине со своими мыслями. В однокомнатной квартире это возможно, только если человек живет один.
- С уменьшением количества стен острее становится проблема размещения вещей: негде поставить достаточное количество шкафов, полок, других систем хранения.

При всех недостатках популярность квартир с минимальным количеством перегородок нисколько не уменьшается. Наоборот, все больше дизайнеров создают новые образцы интерьеров, достойных воплощения в жизнь.
Причиной служат весомые выгоды обладателя квартиры-студии:
- Вместо нескольких крохотных комнат, подавляющих своей теснотой, получается одно просторное помещение. Появляется возможность применить фантазию для обустройства функционального интерьера.
- Для типовых планов советской эпохи достаточно сложно выбрать оригинальный дизайн. Открытая планировка позволяет изобрести множество нестандартных решений.
- Отсутствие перегородок дает больше естественного освещения от окон, что делает помещение еще просторнее.
- Когда в доме гости, то общение не прерывается ни на минуту, даже если хозяева находятся у кухонной плиты, а остальные смотрят телевизор.

Особенности квартирных планировок
Несмотря на то, что большинство внутриквартирных стен серии П-3 являются несущими, что затрудняет перепланировки, такое жилье пользуется повышенным спросом на рынке недвижимости. Это отчасти объясняется тем, что комнаты там изначально просторные, а планировка хорошая и без переделок. Наиболее часто при ремонтах квартир П-3 увеличивают площадь санузла за счет «заимствования» квадратных метров у коридора. Площадь кухонь во всех квартирах серии от 8 до 10 м2.
Пожалуй, единственным недостатком серии П-3 считаются маленькие жилые комнаты в «однушках», но сегодня это может стать даже «плюсом», учитывая современную моду на небольшие «смарт-квартиры». Кроме того, в однокомнатных квартирах серии не предусмотрены балконы.

Освещение
Искусственное освещение должно дополнять естественное при его дефиците.
Позаботьтесь о максимальном естественном освещении.
Если квартира позволяет установить французские окна, сделав их максимально большими, сделайте это. Если окна выходят на теневую сторону, ни в коем случае нельзя делать комнату в темных тонах. Нужно использовать светлую раму для окон, белые занавески.
Что касается искусственного освещения, можно установить дополнительные светодиодные дампы, вставив их в панели на кухне, ванне, прихожей, в мебельные конструкции.
Выходом может послужить и многоуровневая световая система, которая разделяет освещение на основное и дополнительное. В основное входит большая люстра, способная охватить светом всю площадь. А зональное освещение выхватывает и выделяет несколько зон, наиболее предпочтительных для жильцов.
Осветительные приборы должны сочетаться с общей концепцией дизайна. Лампы лучше устанавливать на стенках (например, в зоне сна) для экономии горизонтального пространства.
Искусственное освещение лучше устанавливать в местах, которое смогут визуально расширить пространство. Ярким решением может стать светодиодный шнур, который эффектно отделит одну зону от другой.
В помещении лучше не использовать один тип освещения, это грозит сделать интерьер скучным. При выборе освещения следует учитывать род занятий тех, кто проживает в квартире, и наличие детей.
Если потолок низкий, можно использовать осветительные приборы с отражателями, прибавив некоторую высоту, а если потолки слишком высокие, возможно использовать приборы с плафонами, направленными к полу. Это сможет сгладить диспропорции.
В квартире площадью 30 кв.м. следует отказаться от темных штор, тяжелых портьер, которые будут «съедать» пространство.
Варианты перепланировки и зонирования в трешке
Перепланировка трехкомнатной квартиры может оказаться довольно сложным делом; некоторые типовые планировки практически не подлежат изменениям из-за расположения несущих стен или длинных коридоров, а также колонн или просто маленькой площади. Тем не менее мы собрали для вас актуальные и удачные планировки с практичными идеями, которые могут вам понравиться.
Планировка трехкомнатной квартиры с совмещенными кухней и гостиной

В этом варианте перепланировки, кухню (8 кв. метров), гостиную (20 кв. метров) и прихожую (7,6 кв. метра) объединили в одну комнату, которая получилась очень просторной и с двумя окнами. В детской и спальне лоджии присоединены, там образовались кабинет и игровая комната. Ванная комната расширена за счет одной из спален, теперь здесь есть и ванная чаша, и душевая кабина. Кухонный гарнитур поставлен таким образом, чтобы раковина находилась напротив окна, что очень удобно, а зона для ТВ встроена в нишу.
Планировка трехкомнатной квартиры с двумя ванными и открытой кухней-гостиной

Эта практичная планировка трехкомнатной квартиры площадью 110 квадратных метров имеет две спальни, в каждой из которых есть ванная комната и гардеробная. Кухня не имеет окна, но спроектирована в американском стиле – с островом и столовой на четыре персоны. В гостиной двери на балкон решены в формате дверей-слайдеров со стеклами от пола до потолка.
Планировка трехкомнатной квартиры с постирочной

Еще один вариант перепланировки трехкомнатной квартиры реализован в интересном формате. На месте, где раньше была кухня, теперь расположились гостевой дополнительный туалет и прачечная, на месте прихожей – кухонный гарнитур. Кухня и столовая объединены. На плане в правой части квартиры расположены две спальни, каждая с ванной комнатой и встроенными шкафами-купе. А при гостиной большая лоджия оформлена в стиле патио с диванчиком и летней столовой.
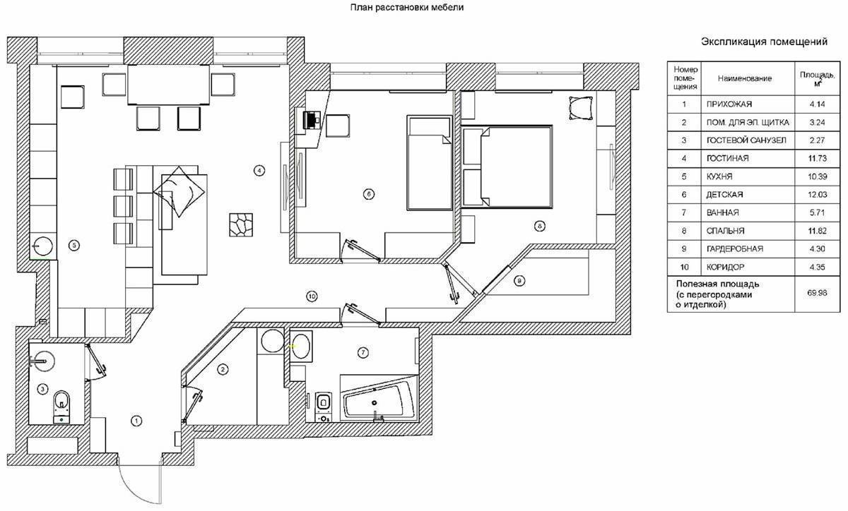
План расстановки мебели в трехкомнатной квартире площадью 70 квадратных метров

Эта планировка трехкомнатной квартиры вполне типична для новостроек Москвы. Гостиная и кухня были объединены, на месте прихожей расположилось помещение для электрощитка, по совместительству – гардеробная. Также есть гардеробная при главной спальне и гостевой туалет.
Трешка с открытой планировкой

Еще одна удачная планировка трехкомнатной квартиры имеет по гардеробной в каждой из спален и две ванные комнаты. Столь расширенный формат стал возможен благодаря размещению кухни в зоне прихожей и устранению коридора как такового. Теперь здесь есть лишь проходная зона между кухней и гостиной, с обеих сторон острова.
Планировка трехкомнатной квартиры с длинным коридором

Проблема квартир с длинными коридорами в том, что в них зачастую очень сложно сделать перепланировку, так как вариантов расположения комнат не так уж и много. Но в данном варианте, обе спальни получили встроенные гардеробы, хозяйка – отдельную прачечную и кухню-гостиную открытой планировки, а в прихожей теперь есть встроенный шкаф для одежды.
Планировка трешки в хрущевке площадью 54 квадратных метра

В данном случае трехкомнатная квартира в хрущевке стала двухкомнатной. Спальню в 6 квадратных метров, которая в некоторых случаях в пятиэтажках также является кладовой, сделали частью главной спальни, которая теперь располагает площадью в 15,6 квадратных метров.

























































