Комплект Alcaplast 5 в 1
Инсталляция Alcaplast – это бюджетная, лёгкая и компактная модель, которую можно приобрести вместе с унитазом.
В комплекте от производителя присутствуют следующие элементы:
- система инсталляции;
- гипсокартонные плиты для звукоизоляции;
- изящный и гигиеничный консольный унитаз без ободка;
- сиденья с лифтовым устройством, обеспечивающим плавное опускание;
- белая кнопка.
Система дополнена двухэтапным режимом слива (большим и малым). На продукцию действует гарантия до 5 лет использования.
Другие продукты Alca, например, A100/1000 Alcamodul, выпускаются с полным отсутствием креплений к полу. В таких вариантах вся нагрузка – как конструкции, так и человека – приходится на стену, поэтому предпочтительнее кирпичная кладка или перегородка толщиной не менее 200 мм.
Варианты дизайна
Классическим цветом унитаза, безусловно, является белый цвет без каких-либо узоров.
Одним из наиболее популярных нестандартных решений считается подвесной унитаз в черном цвете, который выглядит крайне стильно и вписывается в большинство современных интерьеров. Большая часть таких конструкций выполняется в стиле минимализм. У таких унитазов чаша обладает прямоугольной или же овальной формой, а основными оттенками являются черный и белый.
Какой-либо декор или выступы на нем отсутствуют, так как сам по себе минимализм стремится к лаконичности и отсутствию перегруженности. Кнопка слива выполнена максимально нейтрально, и чтобы не привлекать к себе внимания, монтируется прямо над унитазом.

Классические решения характеризуются наличием округлых форм и аккуратных закругленных выступов. Для более «шикарных» интерьеров применяется также бронза или фурнитура с позолотой. Цвет унитаза в классическом интерьере, как правило, белоснежный – он прекрасно сочетается с главенствующими пастельными оттенками.


Для таких стилей, как хай-тек или футуризм, принято выбирать яйцеобразную форму чаши, отсутствие выступов и современную систему с различными вспомогательными функциями. Цвет сантехники может быть как нейтральным, сливающимся с общим интерьером, так и контрастным, позволяющим унитазу стать ярким акцентом.
Монтажный комплект
Еще одна фраза, которая пугает любителей всего консервативного, – это «инсталляции под унитаз». Ничего страшного в ней нет: инсталляция – это всего лишь крепежная конструкция, предназначенная для дальнейшего монтажа сантехники. Следует знать, как выбрать инсталляцию для подвесного унитаза. Прежде чем решить, какое изделие лучше устанавливать в санузел, необходимо изучить размеры подвесного унитаза и выбрать оптимальный вариант.
При покупке в комплекте конструкции будут находиться:
- Мощная стальная рама с устройством, на котором регулируется высота унитаза.
- Штыри, которые предназначены для крепления конструкции унитаза.
- Пластиковый смывной бачок, изолированный специальным материалом от конденсата и снабженный вырезом для монтажа устройства спуска воды.
- Кнопка для дозированного слива воды.
- Элементы крепежа.

Разновидности
Предприимчивые производители стали постепенно заполнять рынок самыми необычными моделями. Иногда создается такое впечатление, будто они старались сделать совершенно новое сантехническое изделие, которое даже отдаленно не будет напоминать надоевшие человеческому взгляду напольные конструкции. И речь здесь идет не только об унитазах, но и о способах его крепления к стене. Конечно, практическая и функциональная стороны также поддались тщательному анализу и качественному оформлению.
Инсталляции для подвесных унитазов бывают двух типов:
- блочные;
- рамочные.
Блочные конструкции – это пластиковые бачки, обрамленные прочной металлической рамкой. Могут использоваться как для напольных, так и для подвесных устройств
Важно понимать, что такая система подходит только в том случае, если стена, в которую инсталляция будет вмонтирована, достаточно прочная, чтобы выдержать нагрузку на стену санузла
Рамочные инсталляции – это монолитная устойчивая конструкция из металлопрофилей, которая может существовать совершенно автономно. Все «закулисье» обрамлено своеобразной рамой, что позволяет монтировать инсталляцию даже в гипсокартонную нишу.
Чтобы выбрать достойную конструкцию, обратите внимание на некоторые важные моменты
- Перед поездкой в магазин обязательно измерьте место, где будет установлена инсталляция. Если же в продаже не оказалось необходимого вам размера, можно приобрести конструкцию с подвижными рамными элементами, чтобы уже на месте довести ее до нужного состояния.
- Остановив свой выбор на определенной модели инсталляции, внимательно рассмотрите все комплектующие. Иногда возникают проблемы с недостачей каких-либо запчастей. Этот факт портит настрой на работу и заставляет вас тратить драгоценное время на поиски недостающих предметов.
Обратите внимание на способ крепления инсталляции к стене. Возможно, понадобится приобретение дополнительных деталей.
Кнопку для смыва иногда позволяют выбрать из ассортимента того или иного поставщика
Стоит поинтересоваться об этой возможности у продавца. Сегодня очень удобными стали двойные клавиши, которые позволяют регулировать напор смыва воды. А значит, происходит и экономия жидкости.
Ну и самой последней рекомендацией будет, пожалуй, приобретение инсталляции сразу с унитазом. Это необходимо для того, чтобы на месте оценить возможность крепления одного к другому.
Базовая комплектация любой инсталляции выглядит примерно так:
- основная рама;
- все необходимые крепежные материалы;
- пластиковый сливной бачок;
- клавиша смыва;
- переходник для смывного колена;
- звукоизоляционные материалы.
Многие производители, заботясь о драгоценном времени своих покупателей, представляют на выбор целый ряд инсталляций с уже готовыми решениями в виде подвесных унитазов.
Подбирая модель унитаза для своего санузла, определитесь, в первую очередь, какие дополнительные функции и комплектующие вы бы хотели видеть в нем. Например, комплект с функцией биде и встроенным феном имеет высокую стоимость, но полностью оправдывает ее, так как за эту цену вы практически приобретаете два устройства в одном.
Модели подвесных конструкций с клавишей позволяют выбрать необходимый для смыва напор воды, как указывалось ранее. Однако, как показывает практика, такие кнопки ломаются и выходят из строя не реже стандартных. Поэтому выбор остается за вами.
Плюсы и минусы
Прежде чем установить подвесную сантехнику, необходимо принять объективное решение. Для этого необходимо знать все особенности данного оборудования, начнем с преимуществ:
- Значительно упрощается процесс уборки в санузле, в частности, не возникает проблем с доступом за унитаз, это же касается биде и умывальника.
- Более рационально используется пространство помещения, поскольку часть оборудования оказывается встроенным в стену.
- Визуально увеличивается пространство санузла.
- Помещение приобретает более эстетичный вид.
Безусловно, такое решение имеет и свои отрицательные стороны, а именно:
- Перекрывается доступ к коммуникациям. Даже при наличии фальш панелей оперативно перекрыть краны в случае возникновения протечки не получится, на это потребуется определенное время или, как вариант, перекрытие ввода.
- При поломке сливной арматуры бачка, возникнут проблемы с ее заменой. В большинстве случаев самостоятельно решить возникшую проблему не удастся, потребуется помощь специалиста, что ведет за собой дополнительные расходы. Выбор качественного оборудования известных брендов, таких, как Grohe, Jacob, Vitra или Belbagno существенно уменьшает риск возникновения такой проблемы.
- Возникают проблемы при замене сантехнического оборудования, в первую очередь это связано с поиском унитаза или раковины того же производителя или с подходящим креплением и подключением ввода и отвода воды. Замена же инсталляции равносильна капитальному ремонту в помещении.
- Чтобы рама выдерживала необходимую нагрузку, она должна быть установлена на крепкое основание, стены-перегородки для этой цели не подходят, а это снижает выбор мест установки.
Система инсталляции, что это такое
Это специальная металлическая рама, на которую крепятся все подвесные элементы. С ее помощью удается сделать невидимыми коммуникационные системы. После монтажа, площадь помещения визуально увеличивается в размерах.
В систему инсталляции входят самые разные детали:
- Жесткая стальная рама, имеющая выдвижные штанги. С их помощью регулируется высота установки, а также проводится крепление унитаза к полу;
- Пластиковый бачок, который может иметь самую разную конструкцию. Он предназначен для организации слива воды. Устанавливается на верхней части рамы, изолируется стирополом. Благодаря такому изолятору, предотвращается образование конденсата;
- На лицевой стороне бачка сделан специальный вырез, чтобы можно было подключить кнопочное управление сливной системой. Вырез позволяет проводить ремонтные и профилактические работы с бачком;
- Сливная система подключается к водопроводу, для чего сделано отверстие, которое может быть расположено сверху или на боковой стороне бачка.
В комплект бачка входит:
- Вентиль, перекрывающий воду;
- Подводка;
- Поплавок;
- Дозирующая система;
- Предохранитель перелива воды.
Главные достоинства
Инсталляция Grohe имеет много достоинств. Это
- Гигиеничность;
- Бесшумность;
- Универсальность;
- Компактность;
- Экономичность;
- Простой монтаж;
- Безопасность;
- Надежность.
Когда эксплуатируется система инсталляции Grohe, проводить техническое обслуживание практически не требуется. Она работает безотказно многие годы.
Применение современной технологии EcoJoy, позволило серьезно экономить расход воды при смывании. С помощью системы Whisper, инсталляция Grohe, работает очень тихо, во время эксплуатации.
Недостатки
Пожалуй, самым главным недостатком можно назвать высокую стоимость инсталляции Grohe. Это изделие высшего качества оценивается в несколько тысяч рублей. Максимальная цена достигает 10 000 рублей. Все зависит от вида модели. Но высокая надежность и отличное качество оправдывает такие затраты.
Разновидности навесных унитазов
Вниманию потребителя предлагается достаточно разнообразный модельный ряд от ведущих производителей Grohe, Jika, Kludi, Geberit, Cersanit и других. Они отличаются формой, материалом, способом крепления, а также ценой.
Любителям нестандартных решений придется по вкусу унитаз подвесной квадратный: строгие формы, уникальный дизайн.
Выбор в пользу унитаза совмещенного с внутренней полочкой оправдан, если не хочется устанавливать специальные системы для снижения уровня брызг — антивсплеск. Отчасти такое решение помогает избежать попадания в сливное отверстие предметов (например, телефона или туалетной бумаги): они остаются на полке.
Подвесной унитаз, совмещенный с гигиеническим душем, по достоинству оценят дамы: по отзывам, такое устройство значительнее комфортнее, чем биде.

Круглый унитаз подвесной конструкции со специальным решением смыва создает не сплошной поток воды (как в обычных решениях), а двигающийся по спирали, что, в свою очередь, повышает эффективность и оставляет меньше загрязнений на стенках.
Тем более хорош унитаз подвесной безободковый с антивсплеском: вода при смывании распределяется строго по стенкам изделия, не создавая дискомфорта во время пользования. В таких моделях из-за отсутствия стандартного ободка не скапливаются бактерии — не нужно регулярно выполнять очистку с применением агрессивных химических препаратов.
Если существующие компактные габариты санузла (тем более, когда он является совмещенным) не позволяют разместить в нем квадратный подвесной унитаз, отличной альтернативой ему может стать угловой прибор.
Прямоугольный унитаз подвесной конструкции олицетворяет собой стремление хозяина к совершенству: такие модели выбирают не часто, зато они надежны и имеют достаточно серьезные габариты. Для большого санузла лучшего решения не найти.
Унитазы приставные со скрытой инсталляцией занимают промежуточное положение между классическими вариантами (с креплением к полу) и настенными: они опираются на основание, но при этом бачок скрыт за фальшпанелью.
Что следует знать перед монтажом
В процессе покупки желательно выбирать только высококачественную сантехнику. Однако даже это не всегда предотвратит поломку. Главным недостатком скрытых коммуникаций является то, что всегда существует вероятность разгерметизации соединения труб, что подразумевает необходимость ремонта.
Смотреть видео
Если это произойдет, владелец квартиры не сразу заметит поломку, а к тому времени, когда протечка будет обнаружена, вода сможет залить соседскую квартиру. Если свободный доступ к внутреннему содержимому отсутствует, отремонтировать систему без демонтажа элементов будет очень затруднительно.
Чтобы свести вероятность подобной проблемы к минимуму, рекомендуется приобретать сантехнические приборы и крепежи только у проверенных производителей. Однако за качество потребуется платить, стоимость моделей от всемирно известных производителей достаточно высокая.
Профессионалы также рекомендуют использовать трубопровод без разъемных стыков, которые способны разгерметизироваться. Лучшим выбором являются трубы из полипропилена, части которых нагреваются и соединяются в единую не разборную конструкцию.
Подобный подход позволит минимизировать риск протечки. Если все-таки необходимо применять металлопластиковый водопровод, желательно устанавливать пресс-фитинги. Они считаются наиболее надежными из всех разновидностей фитингов.
Также рекомендуется уделить время выбору сливной кнопки. На рынке представлены многочисленные варианты, подходящие под любой дизайн интерьера. Если поискать, можно найти деталь, которая идеально соответствует стилю помещения. Помимо обыкновенных кнопок механического вида, продаются модели с пневматическим механизмом.
Их отличие от механических состоит в том, что действие на сливной клапан осуществляется не с помощью металлической тяги, а посредством смены воздушного давления. Преимущество пневматического механизма – допускается установка подобной кнопки в любое место.
Также существуют кнопки для слива, которые позволяют экономить воду при смывании. Они бывают таких видов:
- двудольные – состоят из двух компонентов. При нажатии на одну половину смывается только половина воды, на вторую – сливается вся вода в бачке;
- механизм «старт/стоп». При клике на кнопку «старт» начинается слив, а при нажатии на «стоп» – он прекращается. Этот подход помогает использующему туалет самостоятельно решать, какой объем воды будет вылит.
Таким образом, установка инсталляции может осуществляться своими руками. Процедура не слишком сложная, ее выполнит даже новичок в строительстве
Однако важно тщательно следовать инструкции и рекомендациям
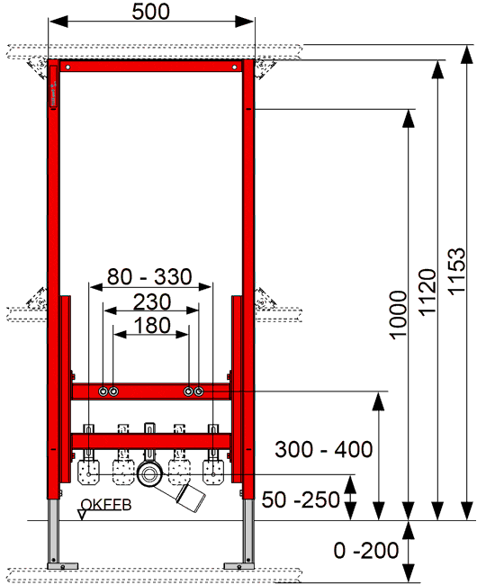
Перед началом монтажа желательно знать высоту и другие размеры подвесного унитаза с инсталляцией, чтобы правильно подобрать место для установки.
Смотреть видео
Инструкция по установке инсталляции подвесного унитаза
В процессе установки понадобятся такие инструменты, как уровень, строительный нож, ключи накидные и для резьбового соединения, измерительная лента.
Также для работы должны быть подготовлены элементы сооружения:
- рамная инсталляция;
- унитаз;
- патрубки разной величины;
- двойная смывная клавиша;
- монтажные шпильки.
Все работы проводятся по установленной схеме.
Сначала необходимо сформировать нишу, в которую будет помещена рама. Она делается в несущей стене и предусматривает нагрузку до 400 кг. Размеры ниши – 1000х600 мм, глубина её может варьироваться от 150 до 200 мм.
На втором этапе к месту расположения скрытой системы подводят канализацию. Трубу диаметром 100 мм укладывают как можно ближе к полу под правильным уклоном. На её горизонтальную часть надевают стальной косой отвод. Точка подключения должна располагаться на расстоянии 250 мм от центра ниши.
Далее монтируют раму, закрепляя её ножки на полу, к стене она фиксируется с использованием кронштейнов
Чрезвычайно важно проверить ровность расположения конструкции уровнем, поскольку перекосы могут отразиться на работе внутреннего устройства, а это приведёт к сбоям в работе системы и поломкам.


- Желательно произвести стяжку ножек цементным раствором слоем в 15-20 см для устойчивости. Для того чтобы навесить сантехнику, в нижнем отделе конструкции предусмотрены специальные отверстия. Между ними и поверхностью пола выдерживают расстояние 400 мм. Через эту перфорацию вставляются монтажные спицы и закрепляются в стене гайками – на них в дальнейшем и навешивается чаша унитаза.
- В последнюю очередь происходит подсоединение к канализационным трубам. Специальный отвод в системе инсталляции подключают к коммуникации одной стороной, а другой – плотно закрепляют к раме, для чего используют резьбовое соединение и уплотняющие прокладки во избежание протечки. К бачку также рекомендуется подводить полипропиленовые или медные трубы, которые гораздо практичнее и долговечнее, чем гибкие шланги.


После этого проводят испытания на работоспособность системы и возможные протечки. Необходимо открыть кран, находящийся внутри бочка, и по мере его наполнения выявить наличие или отсутствие проблем. Если погрешностей не обнаружено, устанавливается кнопка для инсталляции: пневматическая или механическая. Пневматическую клавишу присоединяют с помощью специальных трубок. Модель механического типа устанавливается после монтажа штифтов и настройки их положения. Обе операции не вызывают особых сложностей, так как налицо отверстие и соответствующие соединения.




О том, как установить инсталляцию для подвесного унитаза, смотрите в следующем видео.
Как выбрать унитаз с инсталляцией
Сперва нужно подобрать комплект, который будет полностью соответствовать параметрам установки либо отдельно унитаз и инсталляцию, подходящие друг другу по характеристикам. Рама, выполненная из металла, должна быть надежной, иметь покрытие в виде краски и дополняться крепежом
Однако особое внимание следует уделить той части, которая будет выступать наружу, т.е. непосредственно унитазу
Выбирая этот сантехнический прибор, следует учитывать такие характеристики:
- материал. Сегодня помимо керамики предлагаются пластиковые, стеклянные и металлические изделия. Однако лучше выбирать фаянс или фарфор;
- размеры сиденья. Этот параметр может быть в пределах 54-70 см;
- форма. Наиболее распространенная форма – овальная, но можно встретить круглую, прямоугольную и другие вариации;
- строение чаши. Рекомендуется отдавать предпочтение комфортным моделям, оснащенным антивсплеском либо пологим скатом;
- цвет. Классический вариант – белый. Однако сегодня предлагаются унитазы разных цветовых оттенков, а также с рисунками и узорами;
- механизм смыва. Наиболее эффективной считается круговая система, чем прямой смыв.
Помимо стандартных характеристик унитаз можно дооснастить крышкой с микролифтом, а также двойной кнопкой слива.

Сами кнопки также отличаются по форме и цвету. Если эта деталь не присутствует в комплекте с инсталляцией, ее можно подобрать по цветовому оттенку к стенам: можно сделать ее в один тон либо более контрастной.
Модели унитазов высокого ценового диапазона имеют отличие не только по материалу, из которого они изготавливаются. Дополнительно такие изделия оснащаются функциями сушки, обдува, аэрации, подогрева, дистанционного управления. Есть комбинированные модели, объединяющие в себе биде и унитаз
При выборе производителя стоит уделять внимание отзывам о том или ином приборе, возможности ремонта. Из наиболее популярных производителей можно выделить Сersanit, Roca, Geberit, Laufen

Как подобрать?
Какой-либо строго определенной нормы габаритов инсталляционных каркасов не существует. В каждом конкретном случае выбор делается с учетом габаритов и конструктивных особенностей туалетной комнаты. При достаточном свободном пространстве можно задуматься об установке более крупных конструкций, включая даже биде.
При наличии в помещении капитальной стены стоит рассмотреть блочные модели инсталляционных каркасов. Часто требуется оборудовать нестандартное помещение в условиях ограниченного пространства. В таких случаях специалисты рекомендуют изучить размеры угловых конструкций.
Получается, что выбирать короб для последующего монтажа сантехники необходимо с учетом не только личных предпочтений. Речь в данном случае также идет об особенностях установки и подключения всех изделий. Так, к примеру, габариты инсталляции для встроенного унитаза подбирают с учетом расстояния от чаши до стены или предметов мебели. Данная величина должна составлять не менее 60 см, в противном случае использование унитаза будет некомфортным, поскольку ноги будут упираться в упомянутые препятствия.
Стандартные системы подходят для оснащения более просторных помещений. Чаша в таких случаях устанавливается в 18-20 см от короба. А упомянутое выше расстояние рекомендуется выдерживать со всех сторон сантехнического устройства.
Перед покупкой и началом монтажа следует тщательно изучить план туалетной или ванной комнаты. Это позволит выбрать самое удобное и наиболее подходящее место для сантехники и ее габариты
Стоит уделить особое внимание следующим моментам
- При стандартном монтаже каркаса возле стен туалетной комнаты можно выбирать как блочные, так и рамные модели. Их размеры подбираются с учетом габаритов сантехники и помещения.
- Если требуется установка сантехнической системы в небольшой комнате, на мансарде или же под окном, то следует рассматривать малогабаритные модели. Их высота не должна превышать 85 см.
- Для установки сантехники по двум сторонам от короба предназначены инсталляции с соответствующими креплениями (двусторонними) и размерами.
- При оборудовании помещений, в которых необходимо установить сразу несколько подвесных унитазов, выбирают специальные инсталляции. Речь идет о линейных конструкциях высотой от 115 см.
Подавляющее большинство каркасов имеют прямоугольную форму. При этом выбирать их следует с учетом соизмеримости параметров самого изделия и ниши. В тех случаях, когда короб оказывается больше, пустоты, как правило, заполняют материалами, имеющими звукоизоляционные свойства.
Стандартные габариты встроенных моделей унитазов имеют следующий вид:
- высота – от 35 до 45 см;
- глубина – от 50 до 60 см;
- ширина – от 30 до 40 см.
Невзирая на то, что приведенные параметры являются стандартными, они могут варьироваться.
Следует помнить, что сейчас компании-производители предлагают более чем широкий ассортимент моделей. Речь может идти о специальных детских унитазах, а также изделиях с увеличенными чашами. Помимо этого, выпускается сантехника для людей с ограниченными возможностями и большим весом. Естественно, все эти факторы будут определять выбор инсталляционных конструкций и их габариты.
Помимо всего перечисленного, следует принимать во внимание размеры сливного бачка. В подавляющем большинстве случаев толщина подвесных пластиковых устройств составляет 9,5 см, а их ширина – 0,5 м
Высота таких бачков, как правило, немного больше аналогичных параметров обычных моделей. Данный размер варьируется в пределах от 55 до 60 см.
Выбирая каркас для монтажа встроенной сантехники, необходимо помнить о конструктивных особенностях различных типов систем. Так, рамные варианты имеют глубину в пределах 15-30 см (чаще речь идет о минимальном параметре). По высоте подобные модели могут быть от 85 до 140 см, а их предельная ширина – 60 см.
Также необходимо учитывать следующие габариты:
- центр канализационной трубы располагается в 22 см от уровня напольного покрытия;
- расстояние между монтажными отверстиями составляет от 18 до 23 см.
Минимальные габариты блочных инсталляций, как правило, идентичны аналогичным параметрам рамных конструкций. Их глубина может составлять от 10 до 15 см, а высота – до 1 метра. Также необходимо учитывать возможность раздельного монтажа встроенного бачка и чаши унитаза. Последняя в таких случаях крепится не в нише, а непосредственно к стене.
Подробнее об инсталляции для унитаза смотрите далее в видео.
ТОП производителей унитазов — у кого купить сантехнику
Надежный маяк при выборе – производитель. Добросовестный бренд следит за имиджем, поэтому в продажу поступают только тщательно проработанные и тестированные экземпляры. В СНГ есть следующие изготовители, которых можно покупать.

Gustavsberg. Шведский производитель сантехники, известный во всей Восточной и Северо-восточной Европе. Эталон надежности, что подтверждается гарантией на 25 лет, в случае повреждений. Дизайн выглядит просто, универсален и подход к любому дизайну интерьера. При изготовлении используется фарфор с дополнительным покрытием из глазури, которая запекается при 12 тысячах градусов Цельсия. Это придает сантехнике прочность и износостойкость.

Roca. Испанский бренд, направленный на общее применение. Выпускают полный комплект сантехники: ванные, биде, писсуары. Ее можно использовать, как дома, так и в общественных местах. Дизайнерская линейка выполнена в классическом стиле, преимущественно в белых цветах.

IFO. Шведский производитель, считающийся инновационным в этой сфере. Столетняя история – это нововведения в виде фурнитуры и конструкцией унитазов. Представительства и производства ИФО расположены во всех странах Евразии, в том числе и СНГ. Фурнитура производителя выпускает модели с контролем спуска воды, бесшовные модели унитазов, режим экономии воды и прочее. Все это создается, чтобы вы комфортно пользовались сантехникой.

Jika. Чешский гигант, входящий в состав холдинга «РОСА». Заводы производителя расположены по всему СНГ, что делает «Чика» доступной. Каталог обширен – есть напольные модели, настенные, приставные, подвесные. Упор делается на простой и понятный дизайн.

Vitra. Турецкая компания, фишка которой состоит в автоматизированном производстве и разнообразии. Роботизированный процесс практически исключает человека на линии. В каталоге товаров есть унитазы для дома в классическом дизайне и оригинальном исполнении. Их сантехизделия часто популярны в мед.учреждениях и общественных туалетах. Есть модели для инвалидов с регулировкой высоты.

Santec. Российская часть холдинга «РОСА» — испанского производителя сантехники. Производство расположено на немецкой линии, по европейскому стандарту. Основной упор делается на универсальность. Их можно установить в квартире или общественных туалетах. Высокое качество дает использовать в местах с большой проходимостью. В каталоге есть, как серии в классическом дизайне, так и оригинальные товары.

Достоинства и недостатки
Любопытной особенностью подвесных унитазов, является системное различие между их достоинствами и недостатками. В частности, плюсы касаются внешнего вида, а минусы находятся в плоскости эксплуатации.

К достоинствам подвесных унитазов относят:
- Свободный пол. Да, это действительно так, на полу ничего не находится. Кроме облегчения уборки, объективного плюса, это качество делает возможным создать цельный узор из кафельной плитки. Но лучше всего это качество проявляется в зрительном увеличении пространства. Эта особенность восприятия объёма человеческим зрением. Человек оценивает объём комнаты, по свободной площади пола и потолка;
- Скрытые сантехнические коммуникации. Это качество тоже визуально увеличивает объём помещения.
- Минимализм конструкции. В этом пункте есть изрядная доля лукавства от маркетологов. Ведь бачок и коммуникации не видно, они просто спрятаны. А наружи осталась только чаша.
- Нестандартный вид. Да, с этим спорить трудно. Оригинальность на общем фоне бросается в глаза. Особенно, если ничем другим владелец такого унитаза выделиться не может.
Все приведённые достоинства, касаются всех подвесных унитазов, без деления на ценовые категории. Это их онтологическая составляющая.
С недостатками подвесных унитазов разобраться будет проще, а понять и принять их оказывается сложнее.
- Ликвидируется главное правило сантехники: «Свободный доступ к коммуникациям». Не существует техники, которая бы не ломалась. И чем она сложнее, тем труднее предугадать место поломки. Поэтому сливная система подвесного унитаза тоже может выйти из строя. А вот доступ к ней серьёзно затруднён. Ведь она в лучшем случае, закрывается перегородками, а чаще просто замуровывается в стене. В подобном состоянии находятся и трубы подвода воды и слива.
- Фактическое уменьшение объёма помещения. Звучит странно, но по факту так оно и есть. Ведь замурованная в стену инсталляция, явно уменьшает объём всей комнаты. А размеры у неё довольно большие. Минимальная глубина 15 см.
- Сложный монтаж и невозможность демонтажа. Если простой унитаз может установить любой человек, то вот с подвесным аналогом, придётся изрядно повозиться. А демонтаж, по сути, вообще невозможен. Ибо замена подвесного унитаза с инсталляцией, потребует нового ремонта в туалете.

При объективной оценке, становится очевидным, что подвесной унитаз выглядит хорошо, а вот в обслуживании архисложен. Но приятности достаются потребителю, а сложности – обслуживающему персоналу.
Зачем появился и как устроен подвесной унитаз
Подвесной унитаз, это на 100% продукт общества потребления вошедшего в эпоху минимализма. Появились они в 80-х годах прошлого века, как новое и более качественное сантехническое изделие. Если поднять и обобщить методику продвижения этого продукта на потребительский рынок, то можно смело утверждать, что основана она была на следующем утверждении: «Если у тебя дома нет подвесного унитаза, то ты ничего не достиг в жизни».

Но кроме подобного утверждения, необходимо было обосновать и убедить потребителя в нужности подвесного унитаза. Для этого были внедрены следующие тезисы:
- Свободный пол;
- Скрытые сантехнические коммуникации;
- Нестандартный вид.
Вот система набора и слива воды подверглась основательным нововведениям. Декларируемый производителями минимализм, потребовал скрыть всё, кроме самой чаши. Для этого, сливной бачок предусмотрительно замуровывался в стену. Снаружи оставалась только кнопка смыва воды.
Особенности унитаза
Подвесная модель способна выдерживать вес до 400 кг. Производители предлагают компактную технику для малогабаритных помещений, оборудование средних и больших размеров.
Первый вариант – это чаша шириной до 55 см, что оправдывает ее эргономичность, особенно в угловых установках. Наибольшей популярностью пользуются унитазы с шириной от 55 до 60 см.
Крупные чаши выбирают для просторных площадей, людей с физическими недостатками, это изделия длиной до 75 см.
Как правило, форма оборудования стандартная – со скошенными углами и плавными линиями, изготовленная из фаянса или фарфора.
Для дизайнерских приемов лучше заказать технику в разнообразной цветовой гамме, сделанную из следующих материалов:
По форме подвесные унитазы бывают:
Проще всего ухаживать за стандартным оборудованием, имеющим склон в сторону слива.
Сток может быть 2 видов:
В первом случае струя подается с задней панели, омывает в сторону ближней части. Неудобством считается большое количество брызг во время работы.
Более комфортно пользоваться конструкцией с отверстиями по периметру, поэтому лучше выбрать именно такой тип прибора. Вода движется по спирали, благодаря мощному напору увеличивается качество очистки.
В целях экономии можно установить двойной слив, представляющий собой 2 кнопки. При активации первой происходит полный сток, вторая предназначена для половинного использования жидкости, процесс смывания при этом, можно прервать в любой момент.
Современные конструкции оснащают сенсорной системой. Датчик реагирует на поднятие крышки и присутствие рядом человека. Устройство включает слив автоматически.

























































