Фото детских качелей для дачи своими руками и особенности их изготовления
Даже если вы совершенно не дружите с рубанком и сварочным аппаратом, это вовсе не значит, что качели на дачном участке так и останутся для вас роскошью. Существует масса простейших конструкций, с изготовлением которых вы сможете справиться. Причем большая часть из них не требует закупки каких-то дорогостоящих материалов. Вы всегда можете вооружиться подручными средствами.
Простые детские качели для дачи, подвешенные на веревках к ветке дерева
Качели из подручных материалов: поддоны
Поддоны – очень популярный вид материала, из которого изготавливается мебель для дома и сада. Благодаря своей универсальности они могут быть использованы и для организации качелей на загородном участке. Для этого следует иметь под рукой один поддон, веревку и дерево, где будет подвешиваться конструкция.
Полезный совет! В качестве замены дереву можно установить крепкие опорные столбы.
Поддоны – превосходный материал для создания оригинальной садовой мебели
Даже изделие, созданное на основе одного поддона, может иметь несколько модификаций. Цельный элемент можно зафиксировать в подвешенном состоянии за четыре угла с помощью веревок. Этого достаточно, чтобы качели выполняли свою функцию. Чтобы создать уют, поверх поддона достаточно положить небольшой матрас и застелить его пледом или простыней. Несколько подушек сверху станут своеобразным решением проблемы отсутствия спинки.
Уютные детские качели из паллет с мягким матрасом и подушками
Конструкции подобного типа можно эксплуатировать не только для чтения книг на открытом воздухе, но и для элементарного отдыха от полуденного зноя в тени. Их можно использовать даже для сна.
Для создания своими руками детской качели с полноценной спинкой потребуется два поддона. Как и в случае с деревянными конструкциями из досок и бруса, здесь также следует обработать поверхность шкуркой, чтобы избавиться от заусенцев. Изделие нужно хорошо очистить и окрасить с помощью красителя, предназначенного для древесины и уличных условий эксплуатации. Достаточно воспользоваться и влагостойким лаком, который не испортит красоту дерева.
Подвесные качели для дачи, устроенные из поддонов
Другие виды детских качелей своими руками
Самым простым вариантом качелей считается сиденье в виде доски, подвешенное с помощью веревок. Чтобы не допустить быстрого перетирания веревки, по бокам доски можно прибить еще две детали. После этого выполняется 4 отверстия, через которые продеваются веревки. Для фиксации на концах завязываются крепкие и тугие узлы. Сама конструкция может крепиться как на дерево, так и на опорное основание П-образной формы.
Красивые подвесные качели станут украшением приусадебного участка
Качели, подвешиваемые на веревки, могут изготавливаться и другим способом. Вместо отверстий в доске формируются пазы: пара в торцовой части и пара по краям в угловой зоне. Сиденью (доске) можно придать форму полукруга или оставить его прямым. За счет силы натяжения веревка не будет выскакивать из пазов, несмотря на то, что они открыты.
Безопасные детские качели из текстиля и дерева можно создать своими руками
Полезный совет! Если у вас имеется непригодный скейтборд или доска для катания по снегу, ее можно использовать вместо сиденья, придав качелям оригинальный внешний вид.
Для создания качелей на дачном участке можно использовать большое количество различных материалов вплоть до автомобильных покрышек. Достаточно подвесить шину на ветку дерева с помощью веревки. Если вы заботитесь о природе, не стоит использовать цепь – она слишком сильно травмирует кору.
Подвесные качели из плетеного стула, украшенные яркими лентами
Некоторые умельцы придают качелям из шины затейливые резные формы. Для получения оригинального дизайна достаточно обзавестись острым режущим инструментом и готовыми схемами. Раскрой шины можно делать с помощью строительного ножа. Предварительно нанесите на ее поверхность разметку для надрезов, используя мел или темный маркер. Готовое изделие можно окрасить в яркий цвет или покрыть рисунками.
Качели из двух бревен небольшого размера, связанных между собой веревкой, очень популярны среди дачников. Главное, чтобы древесина была очищенной, выровненной и крепко связанной.
Схема создания качелей в виде лошадки из старой покрышки
Качели из дерева для домашнего мастера
Классическая форма садовых качелей известна всем. Это две наклонные стойки, соединенные поперечной балкой, к которой подвешена скамейка. Для создания «всепогодного» варианта над сооружением делают навес. Далее открывается широкое поле для творчества и фантазии.
Деревянные уличные качели можно сделать из очищенных от коры стволов и веток деревьев. Это придаст им очарование популярного стиля «рустик».

Вместо двух наклонных стоек, в качестве основания можно использовать деревянную раму, состоящую из перекладины и двух вертикальных столбов. Для обеспечения устойчивости ее ставят на широкие опоры, усиленные раскосами. На фото ниже мы видим подобную инсталляцию.

В этом примере привлекает внимание необычный способ крепления скамейки, собранной из толстых досок и веток. Она подвешена не к верхней перекладине, а к двум круглым брускам, врезанным в стойки
Еще один интересный вариант – качели без навеса, сделанные из оцилиндрованного бревна. Они отлично смотрятся благодаря своей простоте и эстетичности. В добавок такая конструкция оснащена лестницей, которая станет дополнительным развлечением для детей.

Тот, кто находит красоту в строгой геометрии форм, работает с брусом и доской. На фото ниже представлена опорная конструкция, напоминающая «козлик» для резки дров. Ее удачно дополняет оригинальная скамейка на цепях.

Для того, чтобы создать что-то красивое и необычное не обязательно делать это за счет усложнения конструкции. Достаточно немного изменить и доработать типовой проект, в итоге получив вот такую замечательную вещь, которая прекрасно разместится как на террасе так и на открытом воздухе.

Взглянув на другое решение, вы согласитесь с тем, что навес над качелями – элемент практичный и красивый. Он сделан из досок, уложенных внахлест.

Для сборки скамейки можно обойтись без использования сложных деталей. Она может быть очень простой и при этом удобной и красивой.
Взяв для работы пару обрезков горбыля и аккуратно обработав его, вы получите отличный результат. Добавив в конструкцию декоративные боковые затяжки и закруглив свесы крыши, вы значительно улучшите ее внешний вид.

Детям нравятся качели не с одним, а с двумя сиденьями-стульчиками. На них можно кататься в любом ритме, не мешая своему соседу.

Для деревянных поддонов найдено множество интересных применений. Одно из них – удобная скамейка с высокой спинкой для качельной инсталляции. Такую сидушку с успехом можно пристроить куда угодно: и на веранду, и в беседку, и даже на ствол большого дерева.

Поклонники стиля кантри могут реализовать его в конструкции самодельных качелей. Для этого достаточно накрыть бревенчатый каркас легким навесом из тростника или соломы.

Красивый навес можно соорудить из сотового поликарбоната или ондулина. Эти материалы просты в работе и легко сгибаются по заданному радиусу.

В качестве украшения подойдут ажурные решетки из тонких реек, закрепленные на боковых стойках. Гнутые элементы из древесины придадут конструкции особый шарм и очарование.

Достойна внимания конструкция, в которой для защиты от солнца используется тент из плотной ткани. Твердое сиденье и спинка здесь накрыты большим мягким матрацем.

Сделав такие качели самостоятельно и не желая возиться с крышей, вы можете купить или пошить на заказ тент на любой вкус и цвет.
Классическая инсталляция из двух пар наклонных балок с перекладиной – не единственное возможное решение. Есть более комфортный вариант. Это беседка с качелью.

Она отлично выглядит и хорошо защищает от дождя. Ее можно использовать не только летом, но и в период зимних оттепелей.

Любителей понежиться на свежем воздухе не устраивает узкая скамейка. Они предпочитают широкую удобную «кровать», которая плавно раскачивается на цепях. На фото ниже мы видим пример такой конструкции.

Это легкий навес без крыши (пергола). К деревянным балкам перекрытия в четырех точках подвешена широкая кровать.
Качели-скамейка: пошаговая инструкция
Качаться одному, безусловно, скучно, поэтому представляем вариант для веселой компании – качели в виде широкой лавочки, на которой могут поместиться несколько человек.
Предлагаемые параметры можно изменять – например, сделать сидение шире или уже, высоту спинки чуть больше или меньше. Главное, чтобы можно было комфортно расположиться и расслабиться. Эти качели предназначены для сада или зоны отдыха, пользоваться ими могут как дети, так и взрослые.
Взяв за основу сиденье-скамейку, можно изобретать различные варианты оформления качелей в целом
Качели-диван подойдут как для отдыха с книгой, так и для веселой беседы с друзьями
Дачные качели можно подвесить к большой горизонтальной ветке, но лучше специально для них установить два столба с поперечной балкой.
Если на даче недавно велось строительство, в поиске материалов не возникнет вопросов – ведь все необходимое уже под рукой. Для изготовления лучше всего подходит древесина – мягкий и податливый в обработке материал, но достаточно прочный, чтобы выдержать вес нескольких людей. Береза, ель или сосна отлично подойдут и по характеристикам, и по стоимости.
Доски – подходящий и недорогой материал для строительства качелей
Итак, список материалов:
- доски сосновые (100 мм х 25 мм) 2500 мм длиной – 15 штук;
- доска (150 мм х 50 мм) 2500 мм – 1 штука;
- саморезы (80 х 4,5) – 30-40 штук;
- саморезы (51х3,5) – 180-200 штук;
- карабины – 6 штук;
- цепь сварная (5 мм) – по высоте качели;
- оцинкованные винты с кольцами – 4 штуки (пара 12х100 и пара 12х80).
Металлические детали и саморезы могут сочетаться по цвету с древесиной или, наоборот, быть контрастными (например, черными).
Для строительства садовых качелей из дерева подойдут традиционные инструменты для обработки этого материала: дрель с различными сверлами, циркулярная пила, молоток, лобзик или ножовка, рубанок. Угольник, рулетка и карандаш пригодятся для измерения заготовок.
От досок следует отпилить куски длиной полтора метра. Углы заготовок должны быть прямыми.
Благодаря точной разметке качели будут ровными и красивыми
Толщина готовых планок не должна быть менее 20 мм. Нагрузка на спинку будет гораздо меньше, поэтому достаточно толщины 12-13 мм. Примерное количество планок для сиденья (500 мм) – 17 штук, для спинки (450 мм) – 15 штук.
Для защиты древесины от растрескивания отверстия для саморезов просверливают дрелью, выбрав тонкое сверло. Глубина отверстия под саморез – 2-2,5 мм.
Отверстия для саморезов помогут сберечь древесину
Чтобы сидение и спинка были удобными, детали основы, на которую крепятся планки, лучше сделать не прямыми, а фигурными. Для их изготовления потребуется самая толстая доска (150 мм х 50 мм). Таким образом, получится шесть фигурных деталей для каркаса.
Свежие записи
5 работающих способов использования дегтя в огороде7 комнатных растений, которые помогают выйти замуж даже в зрелом возрастеКомнатные растения, которые могут расцвести к беде
Контуры будущей детали, нанесенные на заготовку карандашом или маркером, помогут точно ее вырезать
Выбрав необходимый угол соединения спинки и сидения, следует объединить детали в раму и поочередно зафиксировать планки, делая одинаковые интервалы между ними. Сначала крепятся концы деталей, затем – середина.
Прибив в первую очередь центральную планку, легче выровнять остальные элементы
Подлокотники делают из двух брусьев произвольной ширины, затем фиксируют одним концом – на сидении, другим – на раме спинки.
Готовые качели необходимо покрыть лаком или краской
Самое удачное место для крепления винта с кольцом – нижняя часть стойки подлокотника.
Место крепления кольца для цепи
Чтобы гайки полностью не вошли в древесину, необходимо использовать шайбы. Аналогичные кольца прикручивают к верхней балке, на которой будут висеть качели. Цепь к кольцам присоединяется с помощью карабинов – место отдыха и развлечений готово!
Выбор места расположения
При выборе типового варианта конструкции – тарзанки на тросах (качели – доска) нужно иметь лишь рядом расположенное подходящее по прочности дерево. Остальные типы требуют учета следующих нюансов.
- Качели должны размещаться вдали от заборов, стен построек, деревьев, колющих предметов и проводов.
- При постоянном попадании на конструкцию солнца дерево не отсыреет.
- Площадка должна быть ровная, либо придется разравнивать ее искусственным образом.
- Нужно выбирать безветренное место, чтобы не простудиться.
Весьма правильно ставить качели на газон или следует насыпать слой песка для мягкого падения.
Изготовление качели из металла для дачи

Чтобы сделать качели из металла своими руками для дачи, берут уголок, круглые трубы или тавры. Мастера предпочитают профильную трубу, как прочный и надежный материал.


Применяют:
- профиль квадратный или прямоугольный для стоек, распорок;
- овальный для гнутых элементов;
- плоский – для вспомогательных деталей.
По фиксации различают стационарные и переносные изделия. В первом случае устройства ставят на бетонированные стойки, во втором – опоры крепят к раме, заглубленной в грунт. Переносные железные качели удобны, если на зиму их убирают в дом.
Конструкцию выбирают в виде букв «А», «П», для переносных изделий применяют Л-образные опоры. Сиденья подвешивают на хомуты, анкерные болты или шариковые подшипники. Детали для навешивания проверяют на прочность, смазывают.
Необходимый инструмент и расходные материалы
Чтобы соорудить металлические уличные качели для дачи своими руками, пригодятся:
- сварочный аппарат;
- электроды 2,6 мм;
- профильные трубы шириной стенки 40-70 мм, толщиной 1-2 мм для сооружения стоек, перекладины;
- брус деревянный для лавочки 30х30 мм (сечение может быть больше или меньше);
- тросы, цепи;
- 6 рым-болтов с шайбами, гайками для фиксации;
- краска, лак.
Чертежи качелей из металла
Продумывая, как сделать сварные качели, исходят из параметров ширины одного посадочного места – не менее 0,5 м на человека. Высота на выбор хозяина, а между опорами и скамейкой оставляют расстояние в 35 см для веревочного крепления, 25 см для цепного.
Простой чертеж выглядит так:

Пошаговая инструкция по сборке
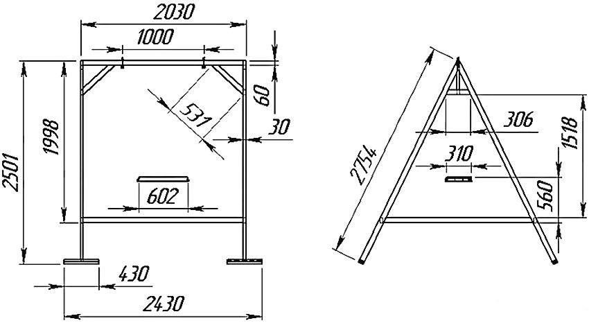
Как сделать сварную конструкцию А-образной формы:
- Нарезают 4 трубы по 2,5 м для стоек. Перекладины делают по 2,1 м.
- Обрезают края трубы под углом в 30 градусов, сваривают попарно в форме равнобедренного треугольника.
- Откладывают от вершины 2 м, приваривают горизонтальную перемычку длиной в 1,038 м.
- К вершинам стоек, разведенных на 2 м, приваривают горизонтальную перекладину так, чтобы концы выступали с обеих сторон на 5 см.
- Нарезают брус для скамейки, ошкуривают, лакируют, сушат.
- Деревянный брус крепят к каркасу сиденья. Фиксация на болты с шагом от 2 см.
- Сиденье навешивают на перекладину. Крепят на рым-болты, предварительно просверлив в перекладине отверстия.

Чтобы поставить взрослые или детские качели для дачи своими руками, делают так:
- роют 4 ямы глубиной до 50 см;
- делают бетонную смесь из готового порошка или цемента, воды, песка (1:2:3);
- на дно ям насыпают песок слоем до 10 см;
- ставят опоры;
- пространство между опорами и грунтом засыпают камнями и заливают бетоном;
- дают бетону высохнуть минимум 3-4 дня.
После просушки раствора конструкцию тестируют, окрашивают.
Изготовление навеса для летней качели
Полог или навес защитит от солнца, дождя. Самый простой вариант – натянуть на конструкцию тканый материал в виде маркизы. Такие применяют, устанавливая диван качели для дачи. Рейки держат плотную ткань, не давая ей сместиться.
Второй вариант – лист поликарбоната с фиксацией на металлопрофиль. Форму определяют боковые части навеса – классическая в виде пирамиды или полукруглая. Для второго вариант профиль гнут трубогибом.
Для сооружения навеса поперечные планки профиля фиксируют к основным балкам сваркой или болтами. Затем на деревянную раму натягивают полотно, фиксируют лист поликарбоната (на прессшайбы, болты). В конструкции верху качелей делают отверстия, фиксируют навес.
Что это?
В первую очередь надо понимать, что брус – это не бревно. Брус – это квадратный пиломатериал, который имеет 100 мм (10 см) по каждой стороне. Изготавливается данный материал либо из круглых бревен, либо клеится из досок. Наиболее оптимальный брус для изготовления дачных качелей – обычный строительный. Он обеспечивает легкую подгонку деталей и соединение их по углам, обладает привлекательной стоимостью.

Из бруса легко сделать садовые качели для детей и взрослых самых разных конструкций. Основная конструкция дачных качелей – перекладина с А-образной стойкой, на которой при помощи двух веревок крепится сидение из доски. При наличии хороших чертежей, небольшого количества свободного времени и приспособленных к работе с деревом рук, можно собрать замысловатые оригинальные качели-скамейку или даже качели со сложной системой раскачивания.
Особенности создания деревянных качелей для дачи: характеристики и виды конструкций
Для создания садовых качелей чаще всего используются три основных материала. В этот список включена древесина, пластик и металл. Несомненно, каждый из данных материалов обладает собственными достоинствами и недостатками. Но когда речь заходит о чертежах садовых качелей своими руками, более практичного и удобного сырья, чем древесина вы не найдете.
У деревянных качелей имеется всего один недостаток, который касается эксплуатации любых изделий, изготовленных из древесины. Подобные конструкции без применения соответствующих защитных мер могут сильно пострадать от влияния отрицательных факторов окружающей среды.

Оригинальные садовые качели круглой формы с мягким матрацем
К таким факторам относится воздействие:
- дождя;
- снега;
- прямых солнечных лучей;
- грибков и плесени;
- насекомых;
- резких температурных перепадов;
- процессов гниения.
Своими руками можно сделать самые разные качели и воплотить в реальность собственные идеи
Полезный совет! Чтобы предотвратить преждевременную порчу древесины, достаточно установить конструкцию под навес или натянуть над ней тент. Благодаря этому вы обеспечите защиту качели от вредного влияния осадков и солнца. Специальные защитные средства и антисептические составы решают проблему с паразитами, грибками, процессами гниения и влажностью.
Преимущества создания деревянных садовых качелей своими руками
Древесина обладает отличными техническими и эксплуатационными характеристиками. Благодаря свойствам данного материала, можно создать по-настоящему удобную и красивую конструкцию
Плетеные качели в виде сфер достаточно вместительны и удобны
Особенности создаваемых своими руками садовых качелей из дерева:
- экологичность. Так как древесина относится к материалам натурального природного происхождения, изделия, изготовленные из нее, совершенно безопасны для здоровья человека;
- внешняя эстетичность. Конструкции способны вписаться в любой ландшафт и дизайн сада, поскольку основную часть окружения составляют природные материалы (камень, дерево) и растительность. По сравнению с металлическими изделиями, сооружения из дерева значительно выигрывают в эстетическом плане и могут поддержать экстерьер любого загородного дома;
Подушки и пледы сделают качели мягче и уютнее
- безопасность. За счет своей мягкости, древесина удобна в работе и эксплуатации, она способна снизить количество травм. Наиболее выгодно это преимущество проявляется в том случае, если вы намерены выполнить конструкцию детских качелей;
- простая система монтажа. Заняться возведением качелей может любой человек, обладающий простейшими навыками в строительстве и в обращении с древесиной;
Навес над качелями защитит от палящих лучей солнца в летнее время
универсальность. Данный вид материала достаточно легко поддается различным видам обработки (шлифовка, нарезка, вырезание). Благодаря чему любая из садовых качелей своими руками из дерева, фото которой вам больше всего приглянется, может быть выполнена вами собственноручно без привлечения к этому процессу специалистов. Древесина позволяет выполнять конструкции одноместного типа или качели с большой вместительностью, изготовленные в виде диванчиков
Взрослые тоже не против расслабиться и отдохнуть, вальяжно покачиваясь на качелях
Обратите внимание! Затраты на закупку материала не высоки. Вдобавок к этому, создавая изделия самостоятельно, вы экономите на услугах мастеров
Качели из профильных труб
Виды материала
До того, как сделать качели садовые своими руками из профильной трубы, нужно проанализировать типы материала и определить, для каких именно частей их можно использовать:
- Овальные (круглые). Нужны для создания выгнутых частей (подлокотников, арочных элементов, сидушек).
- Прямоугольного сечения. Отличаются высокой несущей способностью, из них создаются раскосы, вертикальные элементы.
- Плоские. Применяются для устройства вспомогательных элементов, например, горизонтальных раскосов.

Виды трубИсточник pbs.twimg.com
Качели-скамьи
Перед тем как сделать садовые качели своими руками нужно разобраться со спецификой будущей конструкции:
- качели сооружаются как для постоянной установки, так и мобильными;
- для переносных моделей не нужен фундамент – основание само является крепкой опорой;
- для недвижимых качелей рекомендуется устройство столбчатого основания;
- часто конструкция прикрывается поликарбонатным козырьком либо натянутым тентом – для укрытия от лучей солнца, мелкого дождя.

Сварные качелиИсточник pinterest.it
Сооружение качели-скамьи из профилированной трубы разбивается на несколько стадий.
Сначала нарезаются требуемые элементы. Для торцевых опор нужны 4 отреза по 2,5 м, для поперечины – отрез 2,1 м.

Нарезка деталейИсточник montazh-saidinga.ru
Верхние края опор срезаются под 30°. Опоры сопрягаются сваркой так, чтобы образовался равносторонний треугольник.

Сваривание боковых стоекИсточник nealstroy.ru
- От верхней точки каждой стойки откладывается по 2000 мм и приваривается горизонтальная поперечина длиной 1035 мм, предназначенная для повышения жёсткости рамы.
- К окончаниям вертикальных опор подваривается горизонтальная трубка, к которой впоследствии будет закреплено сиденье. Между ножками в форме литеры «А» следует выдержать расстояние 2000 мм, выступ поперечины с любой стороны – по 50 мм.

Приваривание горизонтальной перекладиныИсточник tvoidvor.com
Для скамьи используются стандартные бруски. Например, 30х30х6000 мм, укороченные до 1500 мм, понадобится 24 шт. Бруски зачищаются на станке либо наждачкой вручную.

Изготовление скамьиИсточник tvoidvor.com
Для предупреждения гниения древесины на поверхность брусков наносится лакокрасочное покрытие.

Окрашивание брусковИсточник tvoidvor.com
- Далее собирается каркас скамьи из трубы 15 мм. Отрезки свариваются, к ним посредством болтов прикрепляются бруски на удалении 20-25 мм. Для закрепления цепочки по краям каркаса привариваются рым-гайки.
- Сиденье крепится к вертикальным опорам. В поперечной балке устраиваются сквозные отверстия для вставки болтов с рым-гайками. Болты пропускаются и затягиваются, цепь прикрепляется через карабины.

Крепление цепиИсточник tvoidvor.com
Изготовление качели-скамьи не вызовет сложностей у опытных мастеров, умеющих обращаться не только со сваркой, но и со столярными станками. В бытовых условиях, на даче справиться с задачей будет посложнее. Качели такого типа легко можно увидеть в гипермаркетах либо на рынке – изготовлением занимается множество производителей, стоимость их относительно невысока. Потому перед тем как сделать качели на даче своими руками, можно осмотреть огромное количество готовых и уже собранных.
Как сделать садовые качели своими руками?
Разного вида садовые качели устанавливаются на даче или в загородном доме, они становятся частью решения дизайнеров по ландшафту. Имея собственный участок, всегда возникает вопрос: купить или сделать качели своими руками? Без них отдых на природе становится неполным, а для детей это масса удовольствия и восторга.
Они бывают разного вида, в интернете много фото качелей по разным идеям и из разного материала. Мы предлагаем рассмотреть оборудование участка бревенчатыми устройствами качания, они подойдут к любому экстерьеру загородного дома. Садовые качели, фото которых можно выбрать на страницах разных буклетов, продаются, но и стоимость у них не меньше 20 000 рублей. Для семьи всегда будет экономней, если их сделать своими руками, и на них будут безопасно качаться детвора и взрослые.
Подготовка к строительству
Первое что рекомендуется специалистами, это выбрать удобное место для устройства качения. Это может быть подходящая площадка в саду, или пространство перед домом. Организовываем пространство для его монтажа и складирования материала. Хорошо, когда есть свой материал, или переходим к его подборке, нам понадобится:
- Для основания необходимо 4 бревна длиной 2,5 метра и толщиной не меньше 120 миллиметров.
- Два бревна для распорок длиной 2,1 метра и толщиной не меньше 90 миллиметров.
- Для коневки берем бревно длиной 2,8 метра толщиной не меньше 140 миллиметров.
- Для укосин понадобится 4 бревна длиной 1,1 метра и толщиной 90 миллиметров.
- Готовим 8 досок для крыши, длина каждой 3 метра и ширина 30 миллиметров.
- Еще 6 досок для изготовления скамейки с параметрами: 1.8х 0,14х0,04 метра.
- Для основания скамейки берем 4 бруска с параметрами: 0,06х0,06 длиною 0,7 метра.
- Для подлокотников скамейки можно использовать бревно толщиной 80 миллиметров и длиною 100 сантиметров, 2 штуки.
- Для стропил понадобятся: 3 бруска длиной 900 миллиметров 60х60, и 6 брусков 60х60 длиною 500 миллиметров.
После подготовки материала делаем подборку элементов креплений для садовой качели.
Крепление и инструмент для монтажа своими руками
Нельзя выполнить работу голыми руками, и обеспечить надежность соединений в устройстве качения (каталки), если заранее не подготовиться. Для нашей схемы садовой каталки необходимо:
- Нам понадобятся болты: 12*150-четыре штуки, 12*250- шесть штук, 12*200- четыре штуки, 12*400- четыре штуки.
- Анкера, два штуки, длина 180 миллиметров.
- Два карабина, крепление цепей.
- Шайбы для болтов 50 штук.
- Цепи: длина 1,4 метра- 2 штуки, длина 0,9 метра- 2 штуки.
Для проведения работ понадобится инструмент:
- Электрическая дрель и сверло диаметром 12 миллиметров.
- Инструменты плотника: ножовка, стамеска, топор.
- Ножовка, для работы по металлу или болгарка.
- Гаечные ключи.
- Молоток.






















![[мастер-класс] качели садовые своими руками | фото](https://nikastroy.ru/wp-content/uploads/5/7/c/57c1fde77c91a00f9f25e3e41661008e.jpg)



























![[мастер-класс] качели садовые своими руками | фото](https://nikastroy.ru/wp-content/uploads/6/7/8/678ce931fd9c1cb33f895b9f19d2603e.jpeg)







