Поэтапная работа по укладке труб
Монтаж водоснабжения и канализации начинают с формирования штроб. Такие углубления делают с помощью перфоратора. При этом нужно учитывать параметры канавок по глубине. Как правило, трубы для воды проходят сверху, а канализационные снизу.
Когда на поверхности будут прорублены штробы, можно переходить непосредственно к установке. Начинать работу лучше с укладки водопровода. Это более сложный этап монтажа. Для работы потребуется сварочный аппарат.
Монтаж труб холодной и горячей воды
Специалисты советуют применять такой метод. Сначала все сегменты труб следует собрать на поверхности пола в соответствии с подготовленным чертежом. После можно монтировать изделия в штробы, скрепляя места их соединения между собой. Для фиксации применяют хомуты, которые вставляют в штробу.
Если водопроводные трубы и канализацию монтируют по граничащей с улицей стене, коммуникации нужно обернуть теплоизоляционными материалами.
В процессе укладки канализационных труб следует корректно рассчитать угол наклона. На один метр длины этот показатель составляет от двух до трех миллиметров. Устанавливаемая система является самотечной. Об этом аспекте нужно помнить еще на этапе просверливания углублений.
Монтаж систем отопления, водоснабжения, канализации предусматривает соединение сточных труб при помощи раструбной конструкции с уплотнителями из резины. Это необходимо для надежной герметизации швов. Такой принцип монтажа предельно простой и легко выполняется. К тому же он не требует применения специального оборудования.
Схема соединения канализационных труб
Водоснабжение
Водопровод и канализация в частном доме начинаются
с подачи воды. Требования к автономному водопроводу:
- обеспечение напора воды, позволяющего эксплуатировать сантехнику;
- систему надо защитить от внешних воздействий;
- качество воды должно соответствовать санитарным нормам.
Комплекс водоснабжения состоит из следующих элементов:
- источник воды;
- оборудование для подъема, подачи воды к приборам потребления;
- система трубопроводов.

При создании проекта надо учесть
глубину залегания водоносного горизонта. Кроме этого, надо определить
потребность жителей дома или коттеджа
в воде. Современные методы и технологии позволяют бурить глубокие, надежные
скважины. Они намного превосходят колодцы — не требуют частой очистки, не
подвергаются внешним воздействиям, загрязнениям. Бурят два вида скважин:
- песчаные. Это сравнительно неглубокие стволы. Их используют, если качество воды соответствует санитарным требованиям;
- артезианские. Это глубокие скважины, поднимающие воду с нижних слоев грунта.
Как правило, в первом случае делают
забор воды со второго слоя, а для артезианских скважин — из глубоких
горизонтов. Второй вариант выбирают чаще, так как качество или состав воды,
взятой с глубины, значительно лучше. Поскольку водоснабжение и канализация в доме тесно связаны
друг с другом, глубинный забор воды обеспечивает безопасность скважины в случае
аварии на системе водоотведения.
Почему стоит работать с инженерным центром «Волмакс»:
- значительный опыт работы в данной сфере;
- заключение договора на все виды работ;
- независимый строительный надзор;
- высочайшее качество работ, оборудования и материалов.
Предлагаем разные варианты монтажа отопления и водоснабжения:
- «Эконом»;
- «Стандарт»;
- «Премиум».
Пакет «Эконом» – это возможность сделать отопление, водопровод и канализацию с минимально возможным бюджетом При монтаже системы отопления дома и водоснабжения по пакету «Стандарт» используются качественные полипропиленовые трубы и фитинги РТП («РосТурПласт») со сроком службы до 50 лет! В пакете «Премиум» — трубы из полипропилена элитных серий с утолщенной стенкой для повышения долговечности и снижения уровня шума, системы автоматики с элементами «умного дома» и т.п.
Кроме того, вы можете обратиться к нам при необходимости установить котел, смонтировать котельную, провести обвязку скважин или выполнить другую подобную работу.

Цены на монтаж водоснабжения и отопления и программа рассрочки
Цена реализации проектов будет отличаться при прочих равных в зависимости от используемых материалов и оборудования.
Ориентировочные цены на отдельные работы по установке и монтажу:
- Обвязка электрокотла (монтаж котла, гидравлическая обвязка и установка отсечной запорной арматуры) — от 5,5 тыс. рублей за единицу.
- Обвязка газового одноконтурного настенного котла (монтаж котла, гидравлическая обвязка и установка отсечной запорной арматуры) — от 6,0 рублей за единицу.
- Обвязка твердотопливного котла (монтаж котла, гидравлическая обвязка и установка отсечной запорной арматуры) — от 10 тысяч рублей за единицу.
- Монтаж точки водоснабжения (вывод под холодную или горячую воду: установка водорозетки) — 1,2 тыс. рублей за штуку.
- Сборка и монтаж радиатора отопления (навес радиатора, установка регулирующего и запорного вентиля, подключение к трубопроводам отопления) — 2,5 тысяч рублей штука.
- Прокладка магистральных труб систем отопления (полипропилен) диам.до 40 мм (монтаж полипропиленового трубопровода)— 200 рублей за 1 метр.
- Монтаж погружного скважинного насоса (глубина до 60м) — 7,0 тыс.рублей за кв. метр.
Получить консультацию от профессионала по проектированию и монтажу: montaz@volmax.ru
Для наших клиентов доступна выгодная и удобная программа поэтапной оплаты и рассрочки на срок до 24-х месяцев (без уплаты дополнительных процентов)!

Гарантии
Предоставляться гарантия не только на материалы и оборудование, а также на выполненные работы, что является редкостью для российского рынка монтажных услуг.
Вам достаточно оставить заявку и мы бесплатно рассчитаем приблизительную стоимость работ по монтажу систем отопления в частном доме, в том числе, теплого водяного пола, водоснабжения и канализации. Кроме того, вы можете обратиться к нам при необходимости установить котел, смонтировать котельную, провести обвязку скважин или выполнить другую подобную работу. Нужно отопление в Коломне? Обращайтесь в центры Волмакс!
Получить еще больше информации
Профессиональная консультация эксперта по проектированию и монтажу: montaz@volmax.ru
Заказ или создание проекта
Соблюдать данное условие нужно обязательно, так как, понадеявшись на «авось», можно не выводить сточные воды из помещения, а, наоборот, вводить их в него.
Прежде всего, это касается учета уклонов, по которым проводится укладка или замена фановых труб и углов поворотов.
В том случае, если уклон будет маленьким, то в трубе образуется засор. В том случае, если не просчитать уклон заранее, можно добиться того, что величина станет отрицательной и вода потечет обратно. Конечно, не в дом, но получиться запор, который постепенно засорится отложениями и полностью перекроет трубу.

Проект системы канализации и водоснабжения
Также важно правильно рассчитать углы поворотов. Большие воды, такие как фекальные, нельзя удалять под углами, градус которых больше 90
Если вы хотите сделать монтаж идеально, то делайте пологие повороты.
Иногда бывает так, что углы укладки оказываются критично маленькими или же вертикальная часть фановый трубы очень высока. В таком случае лучше сделать соединение из двух отводов, расположенных под углами в 45 градусов, а не один прямой отвод.
Материалы
Какими материалами предлагают монтировать торговые компании системы водоснабжения — канализации?
Вот список наиболее популярных решений:
| Изображение | Описание |
Водопровод из оцинковки на резьбах | Оцинкованная стальная труба (как и черная стальная, она производится по ГОСТ 3262-75). Оцинковка отличается от полимерных труб прочностью, но сложна в монтаже: водопроводы собираются только на резьбах, потому что при сварке выгорает цинковое покрытие. |
Разводка воды медью на фитингах под пайку | Медная труба собирается в водопровод на компрессионных, пресс-фитингах или паяных соединениях. Преимущество материала — практически неограниченный срок службы, недостаток — дороговизна (300 и более рублей за погонный метр). |
Гофрированные подводки ХВС и ГВС | Гофрированная нержавейка тоже может похвастаться неограниченным сроком службы; при этом она стоит вдвое дешевле медной и гораздо проще монтируется на затягиваемых парой разводных ключей компрессионных фитингах. Недостатки — ограниченный 30-ю годами срок службы силиконовых уплотнителей фитингов и большие потери напора из-за специфической формы стенок трубопровода. |
Полипропилен — с армированием и без | Полипропиленовая напорная труба выгодно отличается от конкурентов невысокой стоимостью (от 20 рублей за метр). Материал монтируется на столь же недорогих (от 3-5 рублей) фитингах под раструбную сварку. На ГВС принято использовать трубы с армированием фиброй или фольгой: они прочнее на разрыв и меньше удлиняются при нагреве. |
Разводка воды трубами PEX | Сшитый и термостойкий полиэтилен (PEX и PERT) применяются преимущественно для коллекторной скрытой разводки воды. Несмотря на родство, материалы различаются способами монтажа: на PEX используются преимущественно штуцеры с надвижными гильзами, а на PERT — фитинги под раструбную сварку. |
Сверху вниз — пресс-, пуш- и компрессионный фитинг на металлопластике | Металлопластиковые водопроводные трубы имеют внутренние и внешние оболочки из того же модифицированного полиэтилена, однако между ними вклеен увеличивающий прочность на разрыв алюминиевый сердечник. Для монтажа соединений применяются пуш-, пресс- и компрессионные фитинги. |
Чугунные трубы | Чугунная канализационная труба и фасонина сейчас практически вытеснена пластиком, и вполне заслуженно. Она дорога, имеет большой вес и неудобна в монтаже: соединения чеканятся каболкой (просмоленной пенькой) и заделываются цементом. |
Раструбы ПВХ канализации | ПВХ-канализация, напротив, может порадовать покупателя скромным ценником, предельно простой резкой и легким монтажом на раструбных соединениях с резиновыми кольцами. Единственный недостаток пластиковой канализации — шумность: стояк из ПВХ заставит вас быть в курсе графика посещения туалета соседями. |
Трубы и фасонина для канализации из полипропилена | Полипропиленовая труба отличается от поливинилхлоридной лишь несколько большей термостойкостью (95 градусов против 80). |

Бесшумная канализация производства Rehau
Водоснабжение для холодной и горячей воды, сантехника
Система водоснабжения — совокупность строительных конструкций, которые производят забор, очистку, снабжение воды жителям населённых пунктов. Система централизованного водоснабжения включает: источник воды, насосные сооружения, фильтры, трубопроводные магистрали, резервуары.

Водоснабжение в жилище состоит из:
- обратного клапана;
- вентилей (сливные, запорные);
- фильтров;
- гидроаккумулятора, гибкой подводки к нему;
- труб;
- реле давления;
- манометра;
- коллектора;
- санузла;
- тройника (раковина, ванная, унитаз);
- смесителей;
- предохранителей;
- водонагревателей.
Важно! Схему системы водоснабжения составляет проектировщик. От планировки строения, способа добывания (централизованное, автономное) будут отличаться её элементы
Жители частных секторов проектируют макет независимого водоснабжения, состоящего из:
скважины;
- насоса;
- обратного клапана;
- гидроаккумулятора;
- автоматического устройства управления насосом;
- фильтров;
- водонагревателя;
- смесителей;
- санузла.
В ванной комнате необходимо проложить водопроводные магистрали. Не имеет значения — это централизованный источник или автономный, трубопроводы укладывают одинаковым образом.

Фото 1. Процесс прокладывания водопроводной магистрали для ванной комнаты. В стене делаются специальные каналы для труб.
Жильцы квартир пользуются централизованной системой водоснабжения. В частных домах проводят внутренние, внешние работы. Здесь придётся вложить средства, чтоб пробурить скважину, приобрести насосную установку. Трубы проходят под землёй, позаботьтесь об их утеплении или увеличьте глубину проложения. Это убережёт от замерзания воды зимой.
Автономное водоснабжение включает фильтры. После выполнения внешних работ, переходят к подведению воды в дом. Суть установочных работ такая же, как с централизованной, за исключением установки автоматики для управления насосной станцией. Насос работает на электроэнергии. Подумайте о резервуарах для запаса воды на случай отсутствия электричества.
Справка. Для удобства при проведении ремонта необходимо установить отдельные водозапорные вентили для санузла, кухни. Слив в таком случае производят не из всей сети.
Основу водопроводной конструкции составляют трубы. Определитесь с материалом, который будете использовать. Металл подходит для внутренних, внешних работ. Он долговечен, сравнительно недорогой. Единственный минус — коррозия.
Медные стройматериалы — легче, не поддаются ржавчине, выдерживаю сверхнизкие и сверхвысокие температуры, убивают микробы; минус — дороговизна. Срок службы — свыше семидесяти лет.

Фото 2. Водопроводная разводка с использованием медных труб. Конструкция из этого материала прослужит очень долго.
Полибутилен используется для частного дома. Он не подвергается ржавчине, переносит низкие, высокие температуры.
Полипропиленовые изделия подойдут для холодного, горячего водоснабжения.
Металлопластиковые стройматериалы применяют для внутренних установок в квартирах, домах. Они монтируются в стены, чтоб избежать повреждения.
Гибкую сантехническую проводку устанавливают для раковин, стиральной машины.
Пластиковые изделия при бережной эксплуатации прослужат до 50 лет.
Внимание! Водопроводные магистрали кладут ниже систем газовых, электрических коммуникаций. Трубу с горячей водой устанавливают над холодной
Для подведения горячей воды учитывайте отдалённость смесителя от прибора для нагрева (водонагреватель, двухконтурный котёл). К обогревательному устройству подводят трубу с холодной водой, в смесителях устанавливают две трубы, идущие параллельно, для холодной и горячей подачи воды. Если точка потребления расположена очень далеко от бойлера/котла, прокладывают третью трубу для циркуляции воды в системе.
Правила устройства канализации
Помните про уклон канализационных труб, который является самой важной составляющей, от которой будет зависеть четкость и долгота работы вашей канализации.
Начинайте вести монтаж от точек, которые четко фиксированы. Обычно монтаж канализации и водоснабжения начинается с точки выпуска и постепенно продвигается к точкам ливневого и сантехнического водозабора.
В результате монтажа на трубы не должно оказываться никакое дополнительное воздействие
Особенно важен этот пункт для пластиковых труб, которые изготовлены из пластика, который может треснуть в любом месте, особенно в местах соединений.
Все участки труб нужно фиксировать и следить за тем, чтобы они не провисали на ванных или раковинах, а также в тех местах, где труба имеет большую длину.
Для труб из чугуна перечень рекомендаций намного превышает предоставленный, но мы не будем о них, так как системы водоснабжения и канализации из чугуна уже не актуальны.
Они очень дороги, неудобны в монтаже, также для них нужен специальный навык и тяжелый отрезной инструмент.
Правда, есть у таких труб и плюс: чугун способен заглушить звук, сливающийся воды, с чем не справиться пластик, поэтому для пластиковых труб нужна звукоизоляция. Это нужно учесть еще при проектировании канализации. В противном случае, вам придется слышать не очень приятные звуки в своей квартире.
Монтаж труб нужно начинать от нижней жесткой точки. Если это квартира, то такой точкой является магистральный фановый стояк.
Если устраивается канализация в частном доме, то такой точкой будет пересечение фундамента. Здесь та часть канализации, которая располагается на улице может быть и не смонтирована, так как длина прямого участка позволяет сделать временный изгиб, необходимый для раструбов.
Далее следуйте проекту и расчертите линии канализации. Делайте уклон около двух сантиметров. После этого засверлите и установите крепежные хомуты. Соберите систему последовательно и зафиксируйте трубы хомутами.
Установите всю сантехнику, заводя ее в фановые отводы, зафиксированные по месту.
Проект автономной системы водоснабжения и канализации
Автономная система водоснабжения — ваша собственность. Вложив средства один раз, вы расходуете воду по своему усмотрению и никому ничего не платите (кроме оплаты электроэнергии, потребляемой насосом). Вода может подаваться из скважины, колодца либо из ближайшего водоема (обычно для технических нужд). Помимо исходных данных, используемых в проектировании систем ВК при подключении к магистральным трубопроводам, в этом случае необходимо получить сведения об источниках снабжения водой, о размещении отвода стоков и способе их утилизации.
Проект автономной системы водоснабжения для коттеджа учитывает глубину залегания водоносных пластов, так как она влияет, прежде всего, на мощность и производительность насосного оборудования. Рассчитываются также минимальный и максимальный объемы будущего потребления воды, и эти параметры зависят как от количества проживающих, так и от специфики самого частного домовладения (количество санузлов, наличие сауны, бассейна, необходимость в поливе и т.п.). При необходимости в состав водопроводной системы добавляется узел фильтрации и химической очистки. Решение о внесении его в проект зависит от качества воды в источнике и принимается на основании заключения экспертизы, проведенной в лаборатории СЭС или в одной из многочисленных платных лабораторий аналогичного профиля.
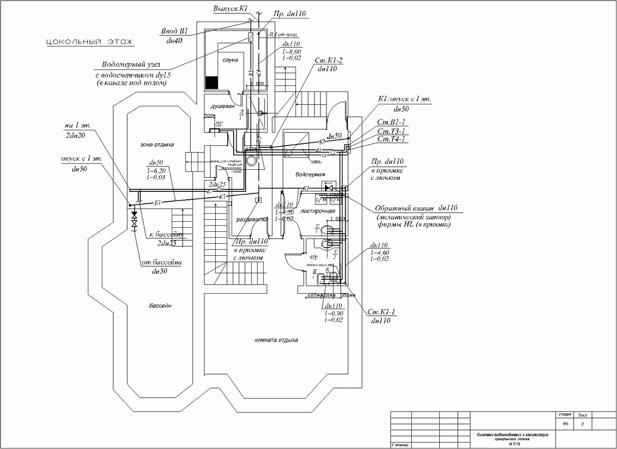
Проектирование систем водоснабжения и канализации (нецентрализованный вариант) ведется в соответствии с ГОСТ 21.704-2011. В состав основного комплекта документации проекта ВК включают:
- начальные сведения;
- расчет водопотребления и объема отведения сточных вод;
- поэтажный план дома со схемами подведения воды и отвода стоков;
- чертеж коммуникаций в аксонометрии;
- чертеж дренажной канализации (если необходимо);
- спецификации (необходимое оборудование, материалы);
- схема водомерного узла;
- наличие очистных сооружений и схема подведения к ним стоков.
В зависимости от расположения участка под застройку и характера грунтов на нем проект ВК для загородного дома может включать в себя септик, поля фильтрации, а также дренажную и/или ливневую канализацию.
Другие работы по инженерным системам:
- Водоснабжение и канализация в деревянных домах
- Монтаж канализации дома
- Монтаж водоснабжения дома
- Монтаж отопления дома
Водопровод
Водопровод
Водопроводная система обеспечивает подачу воды к потребителям – сантехническим приборам.
О его необходимости в доме, думаю, даже не стоит и упоминать.
Водопровод можно классифицировать по способу исполнения:
- с наружной разводкой, когда все трубы и соединения расположены вдоль стен;
- внутристенные, когда трубы прокладываются в пробитых в стенах штробах, а затем прячутся под штукатуркой.
А также по используемым при его прокладке материалам:
- из стальных труб (сейчас практически не используется);
- металлопластиковый;
- пластиковый.
Водопровод служит для подачи к сантехническим приборам как холодной, так и горячей воды. (См. монтаж водопровода из полипропиленовых труб)
Разновидности оборудования
Канализация

Обустроенная система канализации в загородном доме
На данное время практически все системы канализации и отопления, а также водопровода, предпочитают отделывать пластиком – и обходится дешевле, и сохраняется дольше. Что касается сточных труб, то их диаметр для помещения, как правило, составляет от 32 мм до 100 мм.

Разводка канализации со стороны подвала
Сечение полипропиленовых труб подбирается по назначению санитарного узла и его загруженности. Так, для общего слива и унитаза нужен диаметр 100 мм, а вот для стиральной машинки-автомата вполне достаточно 32 мм. Все остальные сантехнические точки оборудуются трубами 50 мм, даже моечную машину рекомендуется снабжать стоком такого диаметра, не менее, потому что есть опасность засора.
ППР трубы сточные. 200 мм и 400 мм
На улице, для городской канализации или совместных (с соседями) стоков используются трубы от 200 мм и больше – всё зависит от загруженности системы. Также такой диаметр используется в дренажных системах на частных усадьбах. Несмотря на то, что водопровод, отопление и канализация делается в основном из полипропилена, можно также столкнуться и с металлическими контурами, но из-за своей высокой стоимости (по сравнению с пластиком) сталь, медь и чугун используются всё реже и реже.
Водопровод

Отопление и водопровод выполнен медью
В помещении водопровод разводят медными (фото вверху), стальными, металлопластовыми и полипропиленовыми трубами. Если говорить о меди, то, пожалуй, единственным её существенным недостатком для таких конструкций является их высокая цена.

Металлопластиковая труба
Для улицы, а точнее, под землёй, так же используют полиэтиленовые трубы, которые отличаются небольшой ценой и почти неограниченным сроком эксплуатации. Также, в частном секторе, для прокладки под землёй, например, для подачи воды из дома в летнюю кухню, может быть использован металлопласт – инструкция этого не запрещает, хотя обходится проект несколько дороже.

Экопдаст PN20, армированный стекловолокном
Конечно, если вы делаете водопровод в частном доме своими руками, то, скорее всего, ваш выбор падёт на металлопласт либо полипропилен. Причина здесь очевидна – во-первых, сам процесс монтажа такими материалами менее трудоёмкий, во-вторых, это обойдётся дешевле стальных или медных труб, а в-третьих, у пластика более продолжительный эксплуатационный ресурс.

Экопласт PN25, армированный алюминиевой фольгой
Если говорить о полипропилене, то для водопровода используют два вида труб – PN10 и PN20, хотя не будет каким-то нарушением, если вы используете PN25, просто обойдётся чуть дороже. Здесь следует внести некоторые уточнения, так как для холодной воды подойдёт любая маркировка, а вот для ГВС – только PN20 (до 80⁰C) либо PN25 (до 95⁰C).
Отопление

Монтаж водопровода канализации и отопления в загородном доме
Если говорить о водяных контурах, то водопровод, канализация и отопление тесно переплетаются друг с другом. Из систем отопления, в которых в качестве теплоносителя выступает вода, можно отметить два основных направления – батареи отопления и отопление теплыми полами. Для разводки батарей можно использовать либо металл, либо полипропилен PN25 (иногда металлопласт), а для напольного обогрева – полиэтилен или металлопласт.

Одноконтурный газовый котёл с бойлером косвенного нагрева
В качестве отопителей для загородных домов используют газовые, жидкотопливные, электрические и твердотопливные котлы разных модификаций. Безусловно, самым популярным видом топлива является газ, но он не доступен во всех районах РФ и поэтому иногда прибегают к другим видам топлива или, имея надежду на скорую газификацию, устанавливают универсальные агрегаты, типа газ-дизель или газ-дизель-дрова-электричество.
Монтаж инфракрасного плёночного отопления (ИПО)
В настоящее время появились новые способы обогрева зданий, например, электрический «тёплый пол» (половое отопление), где вместо водяной трубы монтируются маты с обогревающим кабелем, либо ИПО. Примечательно, что инфракрасную плёнку можно устанавливать не только на пол, но также на стены и потолок. К тому же плёнка хорошо гнётся, что позволяет укладывать её на фигурные плоскости, типа стен с выступами или нишами.
Особенности сборки

Монтаж водопровода, отопления,
канализации частных или многоквартирных домов является этапом первичного
строительства. Однако, работы могут выполняться в рамках ремонта или
реконструкции зданий. В первом случае работы ведутся по общему плану
строительства. Второй вариант требует составления отдельного проекта,
учитывающего особенности ведения земляных работ, другие параметры системы. Приходится
разрушать благоустроенные участки придомовой территории, работать в более
сложных условиях
Сборка трубопроводов в действующих, отделанных помещениях
требует аккуратности, осторожности. Кроме этого, есть заметная разница в
монтаже общественных и автономных систем:
Монтаж автономных систем
В виде автономных комплексов обычно строятся канализация и отопление загородного дома или дачи. Методика монтажных работ зависит от конструкции систем. Подключение к общественным линиям не выполняется. Источник (или конечный участок сброса отходов) находится на участке, или в доме. Поэтому, основная часть работ приходится на установку, подключение основных узлов сети. Для канализации это приемный резервуар (септик, выгребная яма и т.д.), для обогрева — котел (газовый, электрический твердо- или жидкотопливный). Автономное водоснабжение производится из скважин или колодцев. Внутридомовые участки практически ничем не отличаются от альтернативных видов, собираются по обычной методике.
Монтаж общественных сетей
При сборке общественных сетей необходимо только организовать соединение внутренних частей систем с магистралями. Отдельных разрешений требуют действия с напорными трубами, в число которых входят водопровод и отопление. Канализационные сети, как правило, самотечные, поэтому получить разрешение на подключение к ним проще. Необходимо учитывать, что самовольное присоединение коммуникаций может стать причиной аварий или серьезных разрушений. Поэтому, перед подключением отводов к дому надо получить все необходимые разрешения. Сама процедура подключения, приемки абонента проходит официальным образом. Создается приемная комиссия, которая обследует узел и составляет акт приемки. Если обнаруживаются ошибки или недочеты, ввод участка в эксплуатацию откладывают до устранения недостатков.
Инженерные сети и коммуникации

Что же такое “инженерные сети” и зачем они нужны нашему дому? Понятие “инженерные сети” или “инженерные коммуникации” объединяет под собой все системы в вашем доме, которые обеспечивают комфортные условия проживания, поддерживают жизнедеятельность его обитателей, населения. Инженерные сети (коммуникации) это: водопровод, канализация, электричество, газопровод, системы теплоснабжения и кондиционирования воздуха, микроклимата – все это необходимо для комфортного обитания человека.
Инженерным сетям необходимо уделить особое внимание ещё на стадии проектирования дома, так как от этого будут зависеть комфортные условия проживания. В зависимости от их расположения к зданию, инженерные сети делятся на внутренние или внешние. Внешние (наружные) инженерные сети значительно более масштабные сооружения, чем внутренние сети
Внешние (наружные) инженерные сети значительно более масштабные сооружения, чем внутренние сети.
Рассмотрим инженерные сети по подробнее:
1. Водоснабжение
Система водоснабжения дома предназначена для подачи воды на питьевые, хозяйственно-бытовые, противопожарные нужды.
Система водоснабжения проектируется с учетом всех потребностей и нагрузок по водопотреблению участка, а также с учетом особенностей района: имеется ли возможность подключения к центральному водопроводу, если нет – то возникает необходимость в создании автономного водоснабжения, бурения скважин. Особые требования предъявляются также к качеству воды.
2. Канализация
Канализационные сети – это целый комплекс оборудования, сооружений и сетей, предназначенный для приема, отвода, удаления, очистки и обеззараживания загрязненных сточных вод
Проектируя канализационные коммуникации необходимо уделить внимание требованиям экологичности, удобства, безопасности и простоты эксплуатации
Инженеры-проектанты решают ряд задач по : выбору места расположения очистительной системы, расчету количества проживающих, количеству санузлов, раковин и бытовой техники, нуждающейся в отводе воды. Кроме того для надежной работы канализации необходимо исследовать рельеф и определить гидрогеологические особенности местности.
3. Электричество
Среди инженерных сетей частного дома важнейшей является электроснабжение. Без электричества невозможно вести строительные работы, если его нет, дом может остаться без воды, тепла, освещения, кондиционирования, интернета, телевидения. Поэтому электроснабжение – это обязательная инженерная система в вашем доме.
Особенно остро стоит проблема электроснабжения в коттеджах и загородных домах, там от электроснабжения напрямую зависит функционирование остальных инженерных систем: водоснабжения, отопления, канализации.
Перед тем как приступать к монтажу систем электроснабжения необходимо провести множество расчётов и продумать электросхему, включающую все необходимые элементы, нагрузки и потребители (от электросчётчика до элекрочайника и т.д.)
4. Газоснабжение
Система газоснабжения даёт возможность подключения и использования газовой плиты, газового камина, тёплого пола.
В ряде случаев система газоснабжения позволяет получить полный цикл жизнеобеспечения для загородного дома, ведь газовое топливо используется не только для отопления и пищеприготовления, но и для горячего водоснабжения, топливоснабжения современных бытовых приборов, необходимых для комфортного проживания.
Если в доме или на даче нет электроснабжения, то в качестве электропитания, возможно подключить газогенератор, что обеспечит ваш дом электричеством. Природный сетевой газ (метан) является относительно дешевым и универсальным видом топлива.
5. Отопление
При проектировании отопления необходимо произвести тепловой расчет с учетом средней температуры зимнего периода, мощности отопительного оборудования, вида топлива и теплопотерь здания. Теплопотери здания напрямую зависят от: площади, планировки, высоты потолков, толщины стен и выбора строительных материалов, утеплителей.
6. Вентиляция и кондиционирование
Системы вентиляции и кондиционирования позволяют создать в помещении комфортную среду обитания человека.
Проектировщики осуществляют расчет воздухообмена в помещениях с учетом разности температур снаружи и внутри здания, с учетом тепловыделений жителей и оборудования, с учетом теплопотерь здания, затем производят расчет мощности кондиционеров, сечений воздуховодов, определяют вид вентиляционной системы.
Нормы и требования
Необходимо учитывать, что водоснабжение и канализация в
частном доме строятся в строгом соответствии с действующими нормативами.
Основными документами, регулирующими процесс сборки обоих комплектов, являются
СНиП и СанПиН. Выполнение этих требований обязательно для всех, иначе возможны
судебные споры с соседями, предписания от контролирующих организаций. Нарушения,
допущенные при постройке систем, могут привести к локальной экологической
катастрофе. Это будет иметь серьезные последствия.
Помимо требований, СанПиН и СНиП
оказывают существенную помощь в процессе монтажа. В них детально описаны требования к
постройке систем
водоснабжения и канализации в частном доме. К наиболее строгим нормативам
следует отнести:
- допустимые расстояния от источников воды до фильтрационных сооружений канализации;
- глубина, уклон труб системы водоотведения;
- расстояния до построек, растений, границ участка.
Устройство систем водоснабжения и канализации
требует соответствия параметров обеих систем. Величина канализационных
резервуаров должна соответствовать количеству стоков. Слишком большие емкости
займут много места, а недостаток объема вызовет необходимость частой откачки. Параметры
водоснабжения должны обеспечить нормальную работу сантехники. Многие приборы
обладают потребностью в определенном давлении, что надо учесть при расчете
параметров водопровода.


































































