Виды принудительных насосов фекального назначения

- Оборудование для перекачивания серых стоков высоких температур без включения фекального мусора
. В этом случае насос не имеет измельчителя и способен транспортировать горячую, более или менее чистую вод от стиральной или посудомоечной машины, а также от кухонной мойки. Габариты установки достаточно компактны, что позволяет монтировать сололифт непосредственно в кухонной тумбе под мойкой или даже на стене. Насос работает с водой, температура которой не превышает 90 градусов. Такое оборудование актуально для установки в том случае, если кухня или прачечная находятся далеко от центрального стояка. - Модель насоса для горячих стоков с измельчителем
. Это устройство предназначено для перекачивания стоков, температура которых может достигать 95 градусов. Благодаря мощному ножу, встроенному в механизм, сололифт перерабатывает весь фекальный и гигиенический мусор, включая мелкие предметы. Таким образом, установка такой системы принудительной канализации актуальна практически в любом из сантехнических или подсобных помещений частного дома или квартиры. Но и стоимость подобного сололифта в разы выше, чем у предыдущей модели. - Насос с измельчителем для холодных стоков в доме
. Чаще всего именно этот агрегат используют для монтажа за унитазом. Острые ножи измельчителя отлично справляются с любым фекальным мусором. Таким образом, оборудование может работать бесперебойно при условии, что температура стоков не будет превышать 40 градусов. В комплекте к такому насосу идет специальная муфта для качественного соединения системы принудительной канализации с унитазом.
Правила подключения
Монтаж устройства начинается с определения длины трубопровода и высоты подъема. Обе эти характеристики должны соответствовать показателям агрегата, указанным в инструкции. Такие параметры как, угол подъема, применяемый материал и конфигурация магистрали, значения не имеют
При установке есть одно ограничение: нужно постараться избегать острых углов поворота трубы. Они создадут дополнительную нагрузку. Не стоит использовать для подключения агрегатов и трубы большего диаметра. Нормальное давление и измельчение отходов предотвратит возникновение засоров и в трубе, диаметром 45 мм.
Соединение с унитазом
подключается к унитазу следующим образом:
- Прокладываем канализационную трубу;
- Вставляем во входные отверстия оборудования соединительные колена и подключаем трубу к самотечной системе;
- Агрегат устанавливаем за унитазом и закрепляем его к полу при помощи шурупов;
- Подключаем его к трубе;
- Подключаем систему к унитазу. Измельчитель с унитазом соединяем с помощью гофры;
- Подключаем насос к электросети через автомат. Если прибор поставляется с готовой вилкой, то его подключение возможно только в персональную розетку, кабель к которой проведен от щитка;
- Каждое соединение должно быть зафиксировано пайкой или сваркой.
Сточные воды из унитаза будут перетекать в измельчитель самотеком, поэтому выпуск унитаза должен обустраиваться выше входного отверстия измельчителя.
Гофрированная труба не должна иметь большого угла поворота и иметь плавные переходы. Все трубы, подводимые к насосу должны иметь уклон 3 см на 1 м, чтобы обеспечить нормальное продвижение сточных вод самотеком.
Установка на кухне
В кухне оборудование можно установить в любом удобном месте – под мойкой или около стены
Важно правильно сделать расчеты, чтобы трубы имели достаточный уклон, а сама магистраль не было слишком длинной. В противном случае придется устанавливать несколько устройств, качающих воду
У насосов для откачки канализации в квартире практически нет ограничений по установке. Главное — следовать инструкции и не нарушать правила эксплуатации. Тогда они станут хорошим помощником при перепланировке квартиры и помогут предотвратить засоры в трубах.
Производители и модели
Индивидуальные канализационные установки производит не так много фирм. Тем не менее, диапазон цен довольно широкий. Традиционно, европейские производители отличаются хорошим качеством, но высокими ценами. Никто не удивится, если сказать, что китайские канализационные насосы стоят меньше, но и качество у них хуже. В общем, выбор, как обычно — дорого и качественно, или дешевле и…
Установки принудительной канализации Grundfos (Грюндфос) — Sololift (Сололифт)
Известный производитель сантехники Grundfos (Грюндфос) выпускает насосы для принудительной канализации Sololift (Сололифт). На данный момент запущена модифицированная линейка Sololift2. В ней нет подвижных частей, имеющих контакт со стоками. Исключение — измельчитель, но его привод тоже «сухой». Это делает ремонт не таким неприятным занятием. Есть несколько моделей Сололифт для разных случаев:

Насосы для канализации Сололифт — не самое дешевое оборудование, но они работают надежно, соответствуют заявленным характеристикам. Фирма также поддерживает гарантийный ремонт.
Насосы для туалетов, ванных комнат, кухонь и технических помещений SFA
Эта фирма специализируется на производстве сантехнических насосов. Есть несколько линеек для решения разных задач, подключения различных устройств:

Продукция фирмы SFA работает надежно, стоит она немного меньше Грюндфуса. Можно подобрать модель под любую комбинацию сантехники. В общем канализационный насос SFA — хороший вариант. Установка оборудования стандартна — поставить в любом удобном месте. Есть только одно ограничение — лучше, чтобы отводной трубопровод начинался с вертикального участка, если таковой имеется на вашей трассе. Если такое невозможно, длина горизонтального участка должна быть не более 30 см.
Высоту вертикального участка рассчитывается с учетом того, что горизонтальный должен иметь уклон в сторону входного отверстия не менее чем 1% (1 см на 1 метр трубы).
Фекальные насосы CompactLift фирмы Aquatik
Насосы для унитаза Компакт Лифт производит китайская фирма Акватик. Это более бюджетный вариант индивидуальных канализационных установок. Отличаются низким уровнем шумов.
На данный момент есть только три модификации:

Фирма Aquatik предоставляет гарантию на свои насосы для ванных комнат и туалеты — 1 год с момента продажи. Нарушение эксплуатации (наличие волокнистых включений в стоках) может стать причиной отказа в гарантийном ремонте.
Канализационные насосы Willo
Немецкая фирма Вилло (Willo) известна тем, что выпускает надежные устройства. Не исключение и насосы для унитазов. Хорошее качество пластика, толстые стенки резервуара, надежный насос. Есть следующие модели:

Ассортимент канализационных насосных установок Willo позволяет решить любые задачи при необходимости оборудования ванных и туалетных комнат в частных домах. Для коммерческого или более интенсивного использования у Вилло существуют другие решения.
Напорные канализационные насосы STP (Jemix)
Эти индивидуальные канализационные установки производятся в Китае. Ценовая категория — средняя. Отзывы, как водится, разные — кого-то полностью устраивает, ком-то категорически не нравится.
Итак, вот какие насосы для канализации предлагает Jemix:

От описанных выше отличается повышенной мощностью — некоторые модели поднимают стоки на 9 метров. Большинство описанных выше канализационных напорных насосов могут поднимать вверх стоки на 4-5 метров. Так что в этом Джемиксы выигрывают. По этому параметру у них есть только один конкурент — Sololift Grundfos с его высотой подъема 8 метров. Но ценовая категория у него совсем другая (как и качество, впрочем).
Принцип работы принудительной канализации
Конструкция принудительной канализации в квартире представляет собой насос, который можно оборудовать дополнительно измельчителем. Насос имеет небольшие габариты – это дает возможность скрыть его от взоров за приборами сантехники или вмонтировать его внутри них (например, в сливном бачке унитаза).
Лопастями режущего механизма откаченные сточные воды измельчаются и по трубам канализации небольшого сечения (16-45 миллиметров) переправляются в канализацию или септик. Принудительный насос с измельчительной системой канализации обладает высокой производительностью. Он дает возможность делать вывод фекальных масс и иных бытовых отходов на дистанцию до 7 метров вертикально и до 100 метров горизонтально. Подъем сточных вод на заданную высоту производят, когда санузел располагается ниже, чем установленная канализационная система.
Основное достоинство принудительной канализации состоит в ее качественной работе, невзирая на то, что установлены трубы небольшого диаметра. Именно за счёт этого установка системы в квартире не вызывает больших сложностей, и в проведении трудоемких ремонтных работ никакой необходимости нет. Тонкие трубы канализации совершенно не испортят дизайн помещения, их можно уложить за карнизом или плинтусом.
Принудительная канализация позволяет размещать приборы сантехники в том месте квартиры, коттеджа или частного дома, в котором вы захотите независимо от места нахождения вертикального стояка канализации. В случае, когда вам не нравится то, что кухня, туалет и ванная комната находятся по соседству друг с другом, то можно при помощи принудительной канализации смело сделать перепланировку санузла.
Использование принудительной канализации системы (сололифта)
Все современные бытовые автоматические машины (стиральные и посудомоечные) для вывода грязной использованной сточной воды обязаны быть подсоединены к канализационной системе. Но в малогабаритных городских квартирах нечасто есть место для их размещения в месте прохождения канализационных труб (это особенно характерно для ванной и кухни). Зачастую и в частных домах появляется необходимость спрятать машинки-автоматы в цокольные этажи, служащие для хозяйственных потребностей.
И в обоих случаях есть оптимальное решение – можно установить принудительную канализационную систему. Нужно только разместить канализационную систему, которая будет оснащена емкостью для сбора воды и встроенным насосом.
Сточные воды будут потихоньку наполнять резервуар, в котором находится поплавочный выключатель. Затем, когда количество воды достигает заданного значения, включается насос, который транспортирует в канализацию сточные воды.
Основные преимущества установки сололифта:
- Установка происходит в непосредственной близости к насосу, который выводит стоки.
- Имеет малые габариты.
- Надежная и эффективная система не требует проведения специальных мероприятий по эксплуатации оборудования. Нужно только периодически очищать и промывать резервуар.
Принудительная канализационная система обязана иметь в наличии угольный фильтр, он предотвращает образование неприятных запахов сточных вод в квартире. Насосная станция для стиральной или посудомоечной машины, кроме угольного фильтра, обязана иметь специальный резервуар.
Перепланировка санузла
Перенос сантехнического узла в более удобное для вас помещение можно выполнить несколькими способами:
- Установить принудительные насосы для напорной канализации.
- Выполнить перепланировку квартиры (естественно, она будет сопровождаться ремонтом квартиры).
Как вы уже поняли, первый способ гораздо доступней и более быстрый. Выполняя задачу перемещения или реконструкции санузла, нужно выбирать санитарный насос, он отвечает специальным требованиям, так как работать ему нужно будет постоянно с агрессивной средой.
Выбирая принудительную систему канализации, нужно обращать внимание на то, что различные устройства используются для определенных приборов сантехники, то есть, насос выбирается:
- отдельно для душевой кабины;
- отдельно для мойки;
- отдельно для унитаза;
- отдельно для ванны;
- отдельно для стиральной машины и так далее.
Единой классификации канализационной принудительной системы не существует, но оборудование условно делится по ряду признаков:
- по продолжительности работы агрегата;
- по отсутствию или наличию режущего механизма (измельчителя);
- по производительности;
- по температуре передачи канализационных вод (горячие – до 90 градусов, холодные – до 40 градусов).
Правильная эксплуатация и уход за насосом

К любой технике нужно относиться с аккуратностью. Перекачивающие канализационные насосы в этом вопросе не являются исключением. Эти устройства тоже нужно ремонтировать и прилагать усилия для того, чтобы они функционировали в надлежащем состоянии.
Многие устройства сегодня автоматизированы, однако участие в ходе эксплуатации человека считается незаменимым. Каждый канализационный насос нужно время от времени внимательно осматривать на предмет всевозможных протечек. Это касается даже новых устройств, которые в течение гарантийного периода могут не соответствовать заявленным эксплуатационным характеристикам.
Проведение профилактических осмотров требуется для предотвращения возникновения аварийных ситуаций. Когда насос выходит из строя, его приходится ремонтировать или менять. Следовательно, могут возникнуть перебои с водоснабжением или проблемы с водоотведением. Условия проживания на дачном участке при этом могут значительно ухудшиться.
При отсутствии соответствующих навыков и знаний нежелательно предпринимать попытки самостоятельного вскрытия канализационных насосов с целью проведения ремонта. Без надлежащего опыта трудно будет правильно собрать насос. Неподготовленный пользователь без проблем сможет справиться только с проблемой протечки в месте, где насос соединяется с трубой. Ремонт самого насоса желательно доверять только квалифицированным специалистам.
Смазочные системы насосов желательно промывать новым маслом. Пользоваться отработанными продуктами для таких целей крайне нежелательно. Устройство всегда должно содержаться в чистоте. Любые загрязнения ухудшают эксплуатационные характеристики. Некоторые насосы имеют ограничения по времени непрерывной эксплуатации. Чтобы определить направление вращения правильно, нужно найти стрелку на корпусе.
Если при работе устройства слышны постукивания, придется заменить подшипники, вращающиеся детали или элементы корпуса. Если трудности возникают с подачей масла, придется продуть капельницу и надежнее зафиксировать соединительные крепежи.
Если пропускная способность насоса со временем снижается, придется выполнить замену некоторых комплектующих. Если корпус насоса перегревается, нужно промыть насос при помощи смазочных материалов и прочистить трубопровод.
Сололифт ремонт
- Для проведения техобслуживания необходимо своевременно менять угольный фильтр и очищать установку с применением специального средства в жидкой форме. Пошаговый процесс следующий:
- Отключить установку от сети.
- Снять верхнюю крышку.
- В резервуар налить средство согласно инструкции производителя.
- Через положенное время подключить станцию и выполнить слив жидкости.
- Закрыть крышку.
При обнаружении в системе неисправностей в первую очередь следует отключить её от сети. Затем вынуть и прочистить фильтр, после чего установить его на место. Аналогичным образом можно выполнить любой ремонт станции либо обратиться за помощью в сервисную службу.

Насосные станции Сололифт довольно надёжные — благодаря крепкой конструкции поломки происходят редко. Тем не менее в случае неправильной эксплуатации могут возникать ситуации, требующие ремонта, очистки насоса или замены каких-либо частей системы. Если устройство было куплено у официального представителя — обслуживание и ремонт системы будут предоставлены в должном порядке бесплатно.
Ремонт системы производится специалистами на месте, в том случае, если неисправность мелкая, например, засор. Более серьёзные проблемы типа поломки двигателя могут потребовать отключения Сололифта и отправки его в сервисный центр компании.
Основные причины поломок с вариантом решения возникающих впоследствии проблем:
- Перегрев и заклинивание двигателя, с последующим его сгоранием. Такое происходит в результате попадания в него полиэтиленовых пакетов, стекла, скрепок, средств личной гигиены. Может потребоваться замена мотора.
- Несоблюдение температурного режима из-за неверного подбора насоса. Такое приводит к перегреву и поломке двигателя. Случается подобное, когда к посудомоечной машине или раковине подключается насосная станция, неспособная выдержать слива воды с высокой температурой. Требуется замена модели станции на более подходящую.
- Слив в установку густых и липких жидкостей. Подобные действия приводят к «залипанию» и сгоранию двигателя. В такой ситуации необходима замена мотора.
- Несвоевременная очистка деталей системы. Это приводит к перегреву и перегоранию мотора. Может потребоваться ремонт мотора и замена труб на варианты с более широким диаметром.
- Заморозка и разморозка деталей насоса (такое бывает в зимнее время в неотапливаемых частных домах). Приводит к деформации насоса и его поломке. После такого требуется замена или ремонт насоса.
- Попадание воды в двигатель насоса с последующим перегоранием двигателя и других элементов системы. Потребуется обследование всех частей установки и выявление причин попадания влаги в мотор.
Предлагаем ознакомиться Как разобрать стиральную машину Самсунг своими руками видео
Для того чтобы система Сололифт служила долго, нужно соблюдать следующие правила эксплуатации:
- Не допускать попадания крупных предметов в насос системы (например: полотенец, одежды, стекла, металлических предметов), даже если присутствует механизм измельчения отходов.
- Не допускать попадания в сливную воду разъедающих химических веществ и бензина.
- Соблюдать температурный режим стоковых вод для выбранной модели.
- Иногда проводить сервисный осмотр системы.
Выбирая систему принудительной канализации для дома, нужно учитывать ряд нюансов: к какому сантехническому устройству планируется её подключать, сколько сантехнических устройств нужно будет обслуживать, возможное колебание температуры стоковых вод и др. Прислушиваться к мнению специалистов при покупке изделия тоже необходимо. Правильно выбранная модель Сололифта позволит избежать проблем с эксплуатацией устройства и продлить его срок службы. Желаем удачи!
Фекальный насос для канализации – принцип действия, устройство и технические характеристики
Это небольшое по размеру приспособление, позволяющее накапливать, измельчать и перемещать загрязненные массы повышенной вязкости.
Как устроено оборудования для откачки фекалий
Такие агрегаты имеют довольно сложную конструкцию, состоящую из следующих элементов:
- Корпус. Он может быть изготовлен из прочного пластика, чугуна или нержавеющей стали. Учитывая условия применения в агрессивной среде, лучшим является последний вариант. Корпус повышенной прочности применяется на погружных насосах для откачки.
- Статор и ротор – детали, формирующие двигательную установку, размещаются соосно.
- Вал, связанный с ротором, передает вращение от электродвигателя к рабочему органу устройства.
- Система уплотнений, изолирующая внутренности механизма от агрессивной среды.
- Рабочее колесо, непосредственно воздействующее на перекачиваемую субстанцию и приводящее ее в движение от всасывающего патрубка к выходному.
- Крышка, закрывающая внутреннее устройство аппарата.
- Масляная – камера предохраняет механизм от перегрева в процессе работы.
Кроме того, приспособление оснащается кронштейнами для крепления троса и шлангов.

Принцип действия агрегата
Невзирая на кажущуюся сложность конструкции, работа устройства довольно проста. При вращении рабочее колесо увлекает фекальные стоки в сторону входного патрубка, попутно измельчая ее твердые фракции.
Под давлением масса подается в сторону выходного патрубка, на котором устанавливается шланг.
Технические характеристики устройства для принудительной канализации в частном доме
Это, как правило, определяется конструктивными особенностями самого здания, если образующие сантехнические приборы расположены в полуподвалах или подвалах.
Здесь имеют значение следующие технические характеристики:
- Производительность помпы – какой объем слива может быть откачано за час работы (например 150-400 литров).
- Потребляемая мощность – для частного дома достаточно использование агрегатов низкой мощности – до 400 вт/час.
- Глубина погружения или высота подъема столба – для фекальных насосов достаточно величины этого показателя в размере 15 метров.
- Питание – в канализационных станциях для частного дома используется оборудование с рабочим напряжением 220 Вольт.
Это основные характеристики для домашней фекальной станции. Параметры оборудования очень многообразны, но всегда найдется их оптимальная комбинация для конкретного случая.
Правила установки и подключения
Установка и подключение насосов для унитазов и принудительной откачки стоков разных производителей происходит по очень схожим правилам. Но перед монтажом стоит прочесть инструкцию к конкретному изделию — могут быть особенности.

Канализационный насос может стоять на кухне — для отвода стоков от раковины и/или посудомоечной машины
Подключение
Место установки надо выбирать с таким условием, чтобы к насосу можно было добраться. Особого обслуживания он не требует, но периодически возникает необходимость в очистке. Если к насосу подключены посудомойка и стиральная машина, лучше регулярно проверять не забита ли канализационная установка жиром, грязью, отложениями солей. При необходимости возможна очистка мягкими средствами. Агрессивные химические составы лучше не применять, так как они могут повредить пластиковые и резиновые части установки.

Если канализационный вход находится выше чем надо
Итак, вот общие правила:
- Индивидуальная канализационная установка должна быть заземлена. Потому розетка должна быть трехпроводной с работающим заземлением. (Про устройство контура заземления в частном доме читаем тут).
- Для безопасности на линии электропитания должен стоять защитный автомат и УЗО.
- При монтаже блок фиксируется к полу. Для уменьшения уровня шумов желательна установка на виброгасящее основание (резиновая прокладка). К стене прижимать корпус нежелательно — чтобы не передавалась вибрация от насоса. Эти меры нужны для снижения уровня шумов.
Канализационный насос может стоять на кухне — для отвода стоков от раковины и/или посудомоечной машины
- Выпускной трубопровод выполняют из жестких сантехнических труб. Есть два рекомендуемых варианта — пластиковые канализационные и медные трубы. Фитинги рекомендованы жесткие, неразъемные.
- Трубопроводы должны быть неподвижно зафиксированы (к стенам, полу и т.д.).
Вообще, установка и подключение канализационного насоса для кухни или туалета — не очень сложно мероприятие. Но при условии, что вы уже имеете какое-то представление о работе с сантехникой. В этом случае можно сделать все самостоятельно.
Особенности отводящего трубопровода
Компактные сантехнические насосы для туалета могут перекачивать стоки не только по вертикали, но и могут их поднимать вверх. При наличии вертикального участка в нижней его части желательно предусмотреть возможность слива — если придется прочищать трубопровод от засора, лучше, если стоки будут слиты в определенном месте, а не начнут выливаться во время работ.
Высота вертикального участка отводящего трубопровода определяется с учетом минимального уклона горизонтального участка. У каждого производителя (иногда у каждой модели) минимальный уклон свой, но в большинстве случаев он составляет 1-4% ( 1-4 см на 1 метр).

Правила установки канализационного насоса
Будьте внимательны. В описании канализационных насосов указана максимальная высота подъема стоков и максимальная дальность транспортировки по горизонтали. Например: 8 м вверх, и 80 м по горизонтали. Но это не значит, что подняв трубу на 4 метра вверх, можно будет транспортировать еще по горизонтали 80 метров. В данном случае — после четырехметрового подъема — протяженность горизонтального участка будет не более 40 метров. Просто подъем на 1 метр вверх «отбирает» около 10 метров транспортировки по горизонтали
Это важно и это стоит помнить
https://www.youtube.com/watch?v=00_XXfQYxso?ecver=1
Установка своими руками
Монтаж Сололифта достаточно прост и не требует специальных знаний
Главный момент, на которой стоит обратить внимание при монтаже Сололифта для канализации — это наличие свободного доступа к трубе. Чтобы устройство работало нормально, перед монтажом нужно соблюсти ряд обязательных условий:
- Расстояние между насосом и другой сантехникой (или до стены), должно быть не меньше 10 мм.
- Sololift для унитаза устанавливается на расстоянии не более 40 см от его отводящей трубы.
- Расстояние до канализации, должно быть, не более 50 метров. Если расстояние увеличить, это приведёт к нарушению работы станции.
- Если труба, ведущая от станции Sololift к канализации, находится в вертикальном положении, необходимо, чтобы у неё был правильный уклон после подъёма. От этого зависит правильная работа канализации.
- Недалеко от места установки насоса должна присутствовать розетка на 220 w.
- Нельзя использовать саморезы по металлу во время установки.
- Необходимо следить за наличием наклона трубопровода. У напорного трубопровода должен присутствовать уклон 1 градус, а у безнапорного 3 градуса.
Если все условия соблюдены, то далее нужно ознакомиться с печатными инструкциями и руководством по монтажу устройства от производителя. Руководство обычно вложено в коробку с устройством
Особое внимание необходимо обращать на указанные в инструкциях радиусы сочленения вертикальных и горизонтальных участков трубопровода. В дополнение можно посмотреть тематические ролики на видеохостингах по монтажу Сололифта. После того как все подготовительные этапы выполнены, выбирается место для крепления системы
Если куплен Сололифт для унитаза, то он устанавливается непосредственно за унитазом, Сололифт для кухни или душевой кабины — в любом удобном месте. При установке нужно соблюдать минимальный необходимый угол уклона трубопровода между сантехникой и насосной станцией (1 градус)
После того как все подготовительные этапы выполнены, выбирается место для крепления системы. Если куплен Сололифт для унитаза, то он устанавливается непосредственно за унитазом, Сололифт для кухни или душевой кабины — в любом удобном месте. При установке нужно соблюдать минимальный необходимый угол уклона трубопровода между сантехникой и насосной станцией (1 градус).
Далее, под насосную станцию подкладывается виброизолирующий материал. Затем станция крепится к полу или другому месту с помощью дюбелей, винтов или опор.
Подключение системы Сололифт к сантехнике производится при помощи переходников, которые входят в комплектацию устройства. Трубы нужно состыковать достаточно плотно и место соединения хорошо обработать герметиком. После этого прибор включается в сеть и проверяется его работа.
ВАЖНО! Если насос Sololift подключается к душу, то он должен быть снабжён специальным фильтром для задержки волос и прочего мелкого мусора
Виды
Условно эти устройства делятся на две категории:
- Бытовые;
- Промышленные.
Бытовые приборы используются для перекачки сточных вод и могут устанавливаться не только в загородных домах, но и квартирах. Промышленные — используются в многоквартирных домах и на подстанциях, которые подключены к канализационному коллектору.
Бытовые агрегаты различаются по месту установки и предназначению. Различаются они и по типу конструкции. Есть устройства, которые устанавливаются для использования одним потребителем, а есть насосы, используемые для принудительной канализации целого дома.
Насосы для канализации в квартире производятся в следующих вариантах:
- Для унитаза с измельчителем;
- Для кухни без измельчителя.
Туалетные
коробку, размеры которой соответствуют размерам сливного бочкаунитаз
Цвет корпуса прибора выбирается под цвет унитаза. Во время слива, заполняемое водой устройство, при помощи лопастей начинает измельчать сточные воды и туалетную бумагу. С более крупным мусором, например, средствами личной гигиены, оно справиться не может.
Такой агрегат может перекачивать сточные воды, температура которых составляет от +35 до + 50 градусов. Многие модели имеют дополнительные отверстия для подключения душа или биде.
Поэтому при выборе агрегата, температура воды играет не последнюю роль. Если она будет выше указанных показателей, то оборудование может испортиться. В некоторых моделях устанавливается реле, выключающее прибор, через полчаса, после перекачки горячей воды.
Кроме таких фекальных насосов, существуют и встраиваемые устройства с измельчителями, которые используются для подвесных унитазов. Их отличают компактные размеры, что позволяет прятать их за перегородкой из гипсокартона.
Существуют модели, в которых совмещены унитаз и насос. В такой конструкции отсутствует сливной бачок. Она подключается к водопроводу напрямую и занимает мало места.
Кухонные
Модели для установки на кухне называются санитарными. Их предназначение состоит в том, чтобы перекачивать грязную воду. В конструкции санитарных насосов отсутствуют измельчители, потому в воде не должно содержаться крупных фракций.
Кухонные канализационные насосыимеют несколько входов для подключения нескольких сливов из:
- Раковины;
- Ванной;
- Душевой;
- Умывальника.
При выборе агрегата для кухни, нужно обратить внимание на температуру сточных вод. Максимальная температура некоторых моделей составляет +90 градусов, что позволяет подключить к ним стиральную и посудомоечную машины
Важно: оборудование для кухни изнутри покрывается слоем жира, поэтому важно уделять время их периодической очистке.
Обзор канализационных станций
каждый вид имеет свои технические характеристики
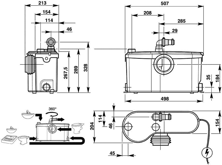
Задаваясь вопросом о сололифте и что это такое, заметим, что устройство выполнено в виде герметичного корпуса из пластика высокой прочности. К нему крепится насос, откачивающий жидкость. Прибор активируется самостоятельно, отталкиваясь от заданного уровня жидкости.
Установка применима как для раковины, так и для унитаза. К ней легко подключается также стиральная или посудомоечная машина. Сололифт для канализации имеет вспомогательные преимущества:
- предусматривается защита от перегрева;
- благодаря шнуру длиной 120 см можно определиться с зоной установки;
- встроенный угольный фильтр отвечает за дополнительную очистку стоков.
Более подробно остановимся на моделях насоса Сололифт, предназначенных для раковины и унитаза.
WC-1. Благодаря компактным размерам установки не нужно искать много свободного пространства. Оборудование серии Сололифт+ дополнительно имеет измельчитель и мощный мотор. Эти детали благоприятно сказываются на бесперебойности работы.
Измельчители способы устранить засоры, вызванные туалетной бумагой, гигиеническими предметами, фекальными массами и так далее
Важно отметить, что все детали устройства расположены максимально доступно, так что не нужно отключать все соединяющие цепочки, чтобы осуществить техническое обслуживание насоса для унитаза
Агрегат весит 7.3 кг, а его накопительная емкость имеет объем 9 литров. Монтаж сололифта осуществляется при помощи винтов или дюбелей (для этого предусматриваются специальные отверстия). Оборудование к канализации подключается посредством патрубков и переходников. Что касается переходника в нагнетательной магистрали, он устанавливается как в вертикальном, так и горизонтальном положении. Специалисты советуют устанавливать агрегат непосредственно за унитазом.
WC-3. Отличие этой модели от предыдущей в том, что имеется 3 дополнительных патрубка. Это позволяет использовать сололифт не только для унитаза, но и для раковины, биде и душевой кабины.
CWC-3. Эта модификация значительно компактнее предыдущих и дополнительно оборудована измельчителем засоров. Агрегат способен обслуживать раковину, унитаз или биде. Благодаря оптимальным размерам насос устанавливается в нишу в стене (если нет свободного пространства). Дно прибора имеет округлую форму, благодаря чему на нем не застаиваются отложения.
D-3. Данный насос не способен откачивать жидкость с содержанием крупных элементов. Также не предусматривается режущая крыльчатка, так что монтаж Сололифта этой модели не осуществляется к унитазу. Конструкция весит 4.3 кг, объем резервуара – 2 литра.
C-3. Главная особенность модели в том, что она способна перекачивать жидкости высокой температуры. Пределом является +90 градусов по Цельсию, и то в течение получаса. Масса – 6.6 кг. Это оптимальная модель, которую подключают к стиральным и посудомоечным машинам.
Выбирая насосную установку, следует отталкиваться от того, к какой технике она будет подключаться, так как каждая модель имеет свои особенности
Главное требование – важно, чтобы вода свободно проходила от станции к канализационной трубе. Несмотря на то, что насос легко подключается, следует придерживаться следующих особенностей:
- Насос должен располагаться не ближе чем в 10 мм от стены или сантехнического оборудования.
- Слив для душевых кабин подключается в нижней точке. Кроме того, на нем должен быть фильтр (чтобы волосы не попали в насос).
- Чтобы не было обратного оттока воды, необходимо учесть клапан на выходе насоса.
- Под установку необходимо подложить виброизолирующий материал, что снизит уровень шума.
- Подключать трубы следует с обеспечением должной герметичности.
- Все детали, требуемые для монтажа, имеются в комплекте.
Установка
Простота оборудования позволяет устанавливать его самостоятельно, без помощи специалистов. В этом случае необходимо предварительно ознакомиться с прилагаемой инструкцией к агрегату, деталями его подключения к сети, рекомендациями относительно прокладки труб, их длине и соотношению.
Установка предполагает такие этапы:
- Сливной патрубок вставляется в специальный приемник.
- Другая сторона насоса придвигается ближе к стояку.
- Осуществляется установка защитного реле.
- Насос подключается к электросети.
В идеале сначала трубопровод должен располагаться вертикально, после чего он меняет направление на горизонтальное
Важно помнить о необходимости сохранения небольшого уклона относительно стояка. В инструкции, которая идет в комплект с любым насосом, отражаются оптимальные характеристики для всех его участков
Благодаря современному внешнему виду и небольшим габаритам, разместить санитарный агрегат можно по-разному, в том числе:
- за душевой кабиной;
- под ванной;
- за биде;
- под раковиной;
- за унитазом.
Солофит может располагаться за унитазом
Допустимы и иные варианты, так как оборудование работает автоматически.
Для помещений небольшой площади, подойдут насосы, встраиваемые в унитаз. Нередко их скрывает плитка или декоративный короб. Их подключают к водопроводной системе, организуя и дополнительный сток для жидкости умывальника.

























































