Внутреннее насыщение тумбы
Планируя разместить на своей кухне комбинированное изделие – тумбу с мойкой, любая хозяйка рассчитывает использовать пространство под раковиной с максимальной отдачей. Обычно в пенале размещают контейнер для мусора и чистяще-моющие средства и аксессуары. Однако даже стандартную тумбу можно переоборудовав, оснастив ее внутренности дополнительными полками или установить выдвижные ящики. Эти простейшие меры позволят значительно увеличить полезный объем мебельного изделия и одновременно освободить пространство кухни от излишних вещей. На полках можно расположить крупногабаритные посудные изделия, не требующиеся для каждодневного использования: противни, крупногабаритные кастрюли, тазики.

На заметку!
Наиболее распространенным способом полезного использования свободного пространства под раковиной является установка посудомоечной машины.
Сегодня российская мебельная промышленность переняла у зарубежных производителей крепление мусорного ведра на дверной створке. При открытии дверки крышка ведра приподнимается, предоставляя хозяйке свободный доступ к его внутренностям. Не менее удобно крепление мусорного контейнера на салазках. При этом он может выдвигаться при открывании дверной створки.
Самым простым способом расширения функциональных возможностей корпуса тумбы является крепление к внутренним поверхностям стенок различных рейлингов, или мини-полочек, которые могут использоваться для расстановки на них кухонных мелочей, которые должны быть всегда под рукой.
Многие хозяева дорабатывают магазинные изделия, оклеивая их внутренние полки пластиком или обивая тонкой «нержавейкой». Эти меры предохраняют внутренности, изготовленные из древесностружечной плиты от размокания и позволяют разместить внутри корпуса сушилку, куда можно устанавливать вымытую, влажную посуду.

Этап 5. Собираем остальные элементы кухонного гарнитура
После того, как угловая тумба будет собрана и установлена, можно будет сделать и остальные элементы, используя заранее выполненные чертежи. Последовательность действий в данном случае такова:
- Для сборки основного короба и боковых тумб отсортировываются нужные детали и в них намечаются места под крепежи.

- Панели скрепляются между собой, устанавливаются ножки и рельсы для выдвижных систем. Чтобы сделать легкой сборку элементов с выдвижными направляющими, нужно вначале собрать три стенки ящика, вставить в дно ДВП, а после этого закрепить фасад через эксцентриковую стяжку – так, чтобы втулка в боковой стенке захватывала шляпку шурупа с фасадной панели. Ролики на направляющих должны находиться сзади – это обязательно предусматривает чертеж. Уже собранный ящик помещают в шкаф, вставляя его туда под небольшим углом.

Советы:
- Деревянные дюбели, использующиеся в качестве крепежа в несквозных отверстиях, рекомендуется сажать на клей;
- Стыки стенок ящиков можно обработать силиконом, чтобы ДСП не разбухало и не крошилось от влаги.

- Кромкование можно заказать у специализирующихся компаний вместе с распилом, а можно сделать самому. К видимым торцам ДСП приклейте кромку подходящего цвета, проглаживая ее утюгом в режиме глажки шелка, то есть на 2ке. Излишки кромки по краям обрежьте канцелярским ножом.

- Размечают плиту столешницы и обрезают ее. Стыки обязательно обрабатывают герметиком, а торцы – закрывают прочной металлической планкой.

- Навесные шкафы можно закреплять с помощью монтажной планки – одна ее часть закрепляется на стене, а вторая – с задней стенки шкафа. Однако чертежи могут предусматривать и привычные петли.

- Затем нужно установить фасады.

- Осталось врезать мойку и встроить технику в ниши.

- Завершающий этап сборки – это установка декоративных заглушек для крепежей и пластикового плинтуса, скрывающего зазор между стеной и столешницей.
- Как спланировать идеальную угловую кухню
- Угловая кухонная мойка – выбор и установка
- Угловая кухня с барной стойкой
- Собираем кухонный гарнитур своими руками как конструктор
- Самодельные полки для кухни – стильно, удобно, легко
- Гид по выбору и планированию кухонного гарнитура
Угловая мойка для кухни: разновидности по материалу изготовления
Раковины углового типа, используемые для мытья посуды, производятся из разных материалов. Каждый из них имеет свои технические характеристики и, соответственно, плюсы и минусы. Чаще всего для изготовления моек применяются следующие материалы:
- нержавеющая сталь;
- керамика;
- камень (искусственный и натуральный).
Нержавеющая сталь. Изделия, которые выполняются из данного материала, являются наиболее распространенными. Это связано с тем, что они отличаются демократичной стоимостью. Угловые мойки для кухни из нержавеющей стали могут иметь матовую фактуру или же глянцевую поверхность. Изделия второго типа более просты в уходе, поэтому именно их рекомендуют приобретать многие специалисты.
Еще одним преимуществом раковин из нержавейки является их универсальность. Они имеют простой дизайн и сочетаются с любыми вариантами интерьера кухонного помещения. Нержавеющая сталь имеет устойчивость к возникновению коррозии. Из недостатков таких раковин стоит отметить их шумность. Угловые мойки на кухню из нержавейки отличаются также простотой монтажа, в связи с чем установить их самостоятельно не составит труда.

Мойки из металлов особенно хорошо смотрятся в классических и традиционных кухонных интерьерах
Керамика. Раковины такого типа отличаются презентабельным внешним видом. Чаще всего встречаются классические изделия из керамики белого цвета, однако бывают и цветные модели. Основным преимуществом подобных моек является их резистентность к воздействию влаги и активных химических веществ, используемых для мытья посуды. Минусом таких изделий считается их большая масса, которая усложняет транспортировку и монтаж. А также стоит отметить, что на керамической поверхности с течением времени могут возникнуть сколы.
Искусственный и натуральный камень. Такие модели принадлежат к верхней ценовой категории. Преимуществами данных раковин являются их элегантный внешний вид и длительный эксплуатационный срок. Угловые мойки для кухонь из искусственного камня резистентны к агрессивным химическим веществам и высоким температурам. Разнообразие вариантов изделий, выполненных из этого материала, очень широко.
Натуральный камень стоит дороже, чем искусственный, однако считается более надежным материалом. Мойки такого типа поглощают шум воды, вытекающей из крана, что также является большим плюсом.

Сегодня кухонные мойки изготавливают из различных материалов, обладающих хорошими качественными характеристиками
Требования, выдвигаемые к угловым моделям раковин
Выбор сантехнических приборов чаще всего производится с учетом индивидуальных особенностей кухонного помещения и личных вкусовых предпочтений хозяев
Однако все же существует несколько важных моментов, на которые стоит обратить внимание перед покупкой раковины
Перед приобретением угловой кухонной мойки необходимо рассчитать ее объем. Этот показатель подбирается в зависимости от личных потребностей владельцев кухни. Необходимо, чтобы мойка вмещала в себя определенное количество посуды, используемой во время приема пищи всех членов семьи.
Чаши должны обладать хорошей резистентностью к воздействию повышенной температуры. В противном случае эксплуатационный срок сантехники уменьшается в несколько раз
А также очень важно, чтобы раковина была устойчива к механическим воздействиям (ударам)
Специалисты советуют серьезно подойти к подбору мебели под угловую раковину. Шкафы под мойку для кухни могут отличаться по габаритам, материалу изготовления и дизайну.

Универсальным размером чаш для любых моек, в том числе, угловых, является глубина, равная 16-20 см
Не только угловые модели, но и любые другие варианты моек должны обладать хорошей сопротивляемостью к агрессивным химическим соединениям, которые содержатся в моющих средствах.
И, наконец, перед покупкой этой сантехники нужно заранее определить место, в котором она будет располагаться, и провести соответствующие замеры. Дизайны кухонь с угловыми мойками можно изучить в интернете. Это позволит подобрать необходимое изделие.
Выполнить монтаж кухонной мойки такого типа можно двумя способами – с помощью специалистов и самостоятельно. Во втором случае рекомендуется изучить установочную инструкцию и четко придерживаться последовательности действий, которая в ней описывается.

Руководством к действию при выборе моек должны стать габариты кухонной мебели
Варианты размещения рабочей и обеденной зоны
В большинстве случаев кухня является не только комнатой для приготовления пищи, но и столовой. Поэтому данное помещение желательно условно разделить на зоны принятия и приготовления пищи.
В зависимости от расстановки мебели, все угловые кухни делят на несколько категорий:
- Г-образная. Кухни типовой застройки больше всего подходят для Г-образной планировки. В этом случае рабочая зона получается весьма обширной, а достаточное количество шкафчиков и ящиков позволяют удобно расположить всю кухонную утварь и бытовые приборы. При этом остается большое количество свободного пространства для обустройства обеденной зоны. Помимо этого, есть ряд «хитростей», повышающих комфорт кухни с минимальной площадью:
- подоконник можно сделать частью столешницы — это поможет увеличить площадь рабочей зоны, не растрачивая полезные метры. Если кухня планируется для небольшой семьи, то подоконник может успешно заменить собой обеденную зону;
- технику лучше разместить по правилу эргономического треугольника: холодильник — мойка — печка. При такой планировке сократится количество передвижений в процессе приготовления пищи;
- при недостаточной ширине комнаты, одну из сторон Г-образного гарнитура можно сделать уже на 15–25 см. В этом случае, узкая часть подойдет для хранения компактных бытовых приборов и посуды, а со стороны широкой части удобно разместится крупная кухонная техника;
- если обилие мебели на маленькой кухне создает давящее ощущение, часть подвесных шкафчиков можно заменить открытыми полками. Этот трюк поможет визуально облегчить верхнюю часть комнаты, создав тем самым эффект расширенного пространства.
- мебель, расположенная возле входа должна иметь скошенные, либо закругленные углы.
- П-образная. Такая планировка предполагает наличие довольно большой площади, так как центр комнаты при такой расстановке мебели, в большинстве случаев, выделяется под обеденную зону. С учетом того, что для комфортного перемещения по кухне расстояние между обеденной зоной и столешницей должно быть не менее 60 см, путем нехитрых вычислений, можно выяснить, что площадь П-образной кухни должна быть более 12 м2. Если подобный проект нужно реализовать в кухне меньшей площади, то, путем воплощения вышеописанных «хитростей», можно сократить необходимый минимум до 10 м2, но это предельно маленькая площадь для такой планировки.
С островом, либо полуостровом. Подобные проекты требуют еще большей площади. В зависимости от предпочтений (и расположения коммуникаций), в центре комнаты может размещаться как рабочая, так и обеденная зона. Либо островная часть может выполнять совмещенные функции.
- С барной стойкой. Этим элементом можно дополнить любой из вариантов планировки. В зависимости от квадратуры комнаты, есть несколько способов размещения:
- при достаточном количестве свободного пространства, барная стойка выполняется в виде самостоятельного элемента кухонного гарнитура;
- если кухня не столь велика, как хотелось бы, барная стойка может совмещать сразу несколько функций: заменять собой обеденную зону, быть частью подоконника, либо служить «разделителем» в квартирах-студиях.
Каждый день дизайнеры разрабатывают все новые варианты угловых кухонь, независимо от имеющейся в наличии площади, каждый может подобрать для себя подходящий проект, который будет учитывать все индивидуальные требования.
Стандартные габариты кухонной мебели
Стандарты играют на пользу не только фабрикам (так они сокращают издержки), но и покупателям. Для последних стандартные размеры – некий ориентир, помогающий спроектировать кухню по всем правилам эргономики, сделать ее удобной и практичной. Неудачно подобранная высота навесных шкафов, слишком низкое сиденье стульев, отсутствие выдвижных ящиков – всё это способно испортить настроение любой хозяйке.

Стандарты вырабатывались исходя из роста и других физических особенностей среднестатистического человека. Посмотрим, какие же размеры шкафов, столешницы и фартука являются самыми гармоничными.
Нижний ярус
В определении стандартных параметров напольных тумб играют роль не только размеры каркасов, но и высота цоколя, а также толщина столешницы. Значения приведены в таблице.
| Параметр | Высота, мм | Ширина, мм | Глубина, мм |
| Каркас | 720 | от 150 до 1200 | 550-570 |
| Цоколь | 100-150 | 240 | — |
| Столешница | толщина столешницы — 28,38,40 мм | от 750 до 3500 (в зависимости от материала) | 600 |
Примеры стандартных модульных напольных шкафов в Леруа Мерлен
Верхний ярус
Верхние шкафы имеют несколько вариантов высоты, глубины и ширины. Посмотрим все значения в таблице.
| Высота, мм | Ширина, мм | Глубина, мм |
| 350 (горизонтальные), 700 и 920 (у разных производителей могут быть другие варианты) | От 150 до 1200 | 350 |
Шкафы под посуду с встроенной сушкой у большинства производителей имеют стандарты — 400 мм, 450 мм, 600 мм, 800 мм.
Варианты стандартных навесных шкафов в Леруа Мерлен
Бывает, что даже при стандартной глубине верхних шкафов (350 мм), может быть неудобно находиться у столешницы ‑ головой задеваешь верхний ярус. Одно из решений проблемы ‑ увеличение глубины столешницы. Добавьте к стандартным 600 мм хотя бы еще 50 мм. Некоторые производители предлагают уже готовые столешницы глубиной чуть больше стандартной. Например, столешницы ИКЕА – 635 мм. Подобные проблемы также могут возникнуть, если неправильно рассчитана высота, на которой должны быть навешаны верхние шкафы.
В таблице ниже мы привели оптимальный уровень для навесных шкафов в зависимости от роста человека.
| Рост, см | Оптимальная высота кухонных шкафов от пола, мм |
| 165-175 | 1550 |
| 175-185 | 1600 |
| 185-200 | 1750 |

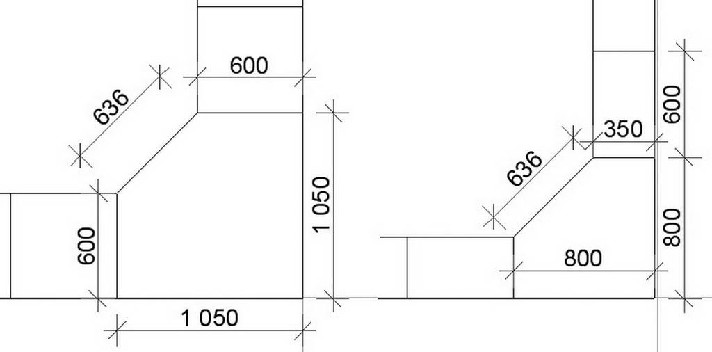
Размеры угловых шкафов
Угловые навесные и напольные модули могут иметь различную конфигурацию. Стандарты для угловых тумб с прямым и скошенным углом приведены на схемах ниже.
Со скошенным углом: слева – напольный; справа – навесной
Угловой напольный модуль с прямым углом
Навесной модуль с прямым углом
Выдвижные ящики
Общие габариты модуля с выдвижными ящиками мы уже описали выше под заголовком «Нижний ярус». Теперь подробнее поговорим о их высоте и количестве, так как данные параметры имеют принципиальное значение в плане удобства.
Производители, как правило, предлагают несколько готовых вариантов.

Минимальная высота выдвижного ящика составляет 170 мм. В высоких ящиках можно хранить крупную посуду и кухонные гаджеты, в этом случае их может быть меньше, но высота будет достигать уже 360 мм.

Размеры для встраиваемой бытовой техники
Перед покупкой обязательно выясните, подходит ли встраиваемая техника (холодильник, духовка, СВЧ, посудомойка) под габариты ниши (шкафа для встраивания). Эту информацию о конкретной модели можно найти в инструкции. А можно проверить размеры с рулеткой прямо в магазине.
Варианты ширины встроенной духовки

При покупке встраиваемого холодильника, СВЧ и другой техники заранее необходимо вычислить габариты ниши.
В таблице ниже представлены стандартные размеры мебели под встроенный холодильник, СВЧ, посудомойку и стиральную машину.
| Техника | Стандартные габариты ниши шкафа шириной 60 см для встраивания | ||
| Высота, мм | Ширина, мм | Глубина, мм | |
| Холодильник | 1770, 2150 | 568 | 550-570 |
| Микроволновая печь | 380 | 568 | |
| Посудомоечная машина | 850-910 | 600 | |
| Стиральная машина | 850-910 | 600 |
На фото ниже приведены схемы встраивания техники, ее размеры и габариты ниши.




Как встроить отдельностоящую полногабаритную стиральную машину под столешницу? Для того чтобы техника вошла по высоте, как правило, снимают верхнюю крышку машинки. По ширине большинство стандартных моделей подходят под нижние тумбы шириной 600 мм. В продаже также можно найти миниатюрные модели высотой 70 см, которые могут быть спрятаны даже в модуль под раковину.
Стандартные размеры пеналов, тумб и шкафов прямой планировки
Пеналы и шкафы-колонны имеют следующие стандартные размеры:
- высота: 1550 или 2150 мм;
- ширина: 600 мм;
- глубина: 550-570 мм.


Угловая кухня с барной стойкой
Современные тенденции диктуют моду на большие кухни. В малогабаритных квартирах решением будет оформление студии. В дизайн которой выигрышно впишется барная стойка с системой вращающихся элементов. Которая будет разграничивать кухонную и обеденную зоны. Если вы являетесь счастливым обладателем крупногабаритной кухни наличие стойки придаст интерьеру креативность и непринужденность, добавив атмосферу праздника. Все большую популярность для квартир студии приобретают угловые кухни на заказ с барной стойкой. Исходя из ваших пожеланий, дизайнеры создадут неповторимый функциональный дизайн, подчеркивающий вашу индивидуальность.

Как сделать тумбу под мойку своими руками
Процесс изготовления шкафа под мойку мало чем отличается от производства любой корпусной мебели. Главное определиться с материалом, рассчитать все детали, закупить материалы и комплектующие, проверить в наличии весь необходимый ручной инструмент и можно начинать!
Выбор материала
Сделать тумбу под мойку своими руками можно из двух видов материала, выбирая более дешевый для корпуса и дорогой, презентабельный – для фасадной части (дверей). Каким будет фасад – решать вам и выбор тут огромен. Фасад может быть выполнен и из того же материала, что и корпус, это будет дешевле.
Самый бюджетный и простой в обработке материал для изготовления корпуса тумбы под мойку своими руками – это ламинированное ДСП
Чтобы стол-мойка из ДСП прослужил долго важно тщательно оклеить торцы и обработать герметиком, чтобы защитить от разбухания. МДФ гораздо более устойчивее к влаге, но и дороже
Чаще всего МДФ выбирают, чтобы сделать тумбу под мойку в ванную комнату, поскольку влажность там больше, чем на кухне. Умеющие работать с деревом, предпочтут использовать мебельные щиты из массива, брус и фанеру для изготовления стола-мойки. Тут набор инструмента будет несколько другой, рассчитанный на строгание, шлифовку, грунтовку и покраску массива.
В первых двух случаях можно обойтись минимальным набором простого рабочего инструмента.
Ручной инструмент
Чтобы сделать тумбу под мойку своими руками, понадобится крепеж, ручной инструмент и подручные материалы – в общем все то, что имеется у любого домашнего мастера. Набор может меняться, в зависимости от выбранного материала и работ, которые вы готовы сделать сами или делегировать ребятам из мебельного цеха.
- Чтобы напилить детали в размер и сошлифовать края, понадобится лобзик, наждачка и шлифмашинка. А можно заказать готовый распил ДСП или МДФ деталей в размер.
- Чтобы оклеить торцы кромкой, понадобится утюг, канцелярский нож, наждачка и меламиновая лента. А можно также заказать распил вместе с оклейкой торцов кромкой ПВХ.
- Для разметки и присадки (засверловки сборочных отверстий) понадобится угольник, рулетка, карандаш, шило и электродрель с конфирматным сверлом, а также сверлами 5мм и 8мм.
- Для сборки тумбы под мойку своими руками нужен шуруповерт, «трещетка» с битами под шестигранник и крестовую отвертку.
- В случае врезной мойки также понадобится лобзик и дрель с толстым сверлом.
Расчет деталей
Залог правильного расчета деталей стола-тумбы под мойку – это грамотно составленный чертеж. При расчете учитывается толщина материала (в случае ДСП 16мм, МДФ 18мм). Обязательно проверяйте себя – сумма длин внутренних деталей и толщин торцов должна быть равна внешнему габариту.
Также по чертежу тумбы под мойку можно составить список необходимой для сборки фурнитуры. В него войдут кухонные регулируемые ножки, мебельные петли, конфирматы, саморезы 4х16 для крепления петель и ножек, ручки с винтами, силиконовый герметик и т.д.
Как собрать тумбу под мойку своими руками
Если вы имели дело со сборкой любой корпусной мебели, собрать тумбу под мойку своими руками у вас получится. Для соединения корпуса используются мебельные конфирматы и эксцентрики (редко). Ножки вкручиваются на саморезы в донышко шкафа. Фасады устанавливаются на мебельные петли, которые после регулируются.
Установка мойки на тумбу своими руками различается от типа самой раковины:
- Если мойка – врезная. Столешница крепится изнутри тумбы на обычные металлические уголки. Но прежде нужно врезать в нее мойку. Сначала определите место вреза таким образом, чтобы чаша «вошла» внутрь корпуса шкафа полностью, не задевая боковины и планки. Затем очертите по шаблону отверстие для вреза. Наметьте толстым сверлом границы вреза и пройдите лобзиком. Врез аккуратно сошлифуйте, обработайте герметиком или прокрасьте для влагоустойчивости. Далее мойка притягивается на прижимы с уплотнителем по периметру (идут в комплекте) или «садится» на силикон.
- Если мойка – накладная. Установка мойки на тумбу своими руками в этом случае гораздо проще. Примыкающие торцы боковин обрабатываются силиконом или прокрашиваются. На них изнутри ставится крепеж, к нему притягивается мойка.
Конфигурации дверей
Внешнее оформление и дизайн шкафа с мойкой зависит от того, какие дверцы установлены в конструкции. Выделяют такие конфигурации:
- Двухдверные – такой вариант используется, если ширина одной секции шкафчика составляет более 60 см. Удобство заключается в более свободном доступе – можно без проблем взять предметы, которые хранятся в глубине шкафа.
- Однодверные – применяются, если ширина секции менее 50 см. Не всегда удобны, так как дверь открывается в одну сторону, что может создавать дискомфорт при использовании соседних шкафов. Гарнитуры с такими дверцами считаются классическими.
- Раздвижные – такую конфигурацию оценят по достоинству владельцы компактных кухонь. Для открытия двери не требуется место, так как створка ездит по специальному рельсу. Раздвижные двери открываются от центра в разные стороны шкафа.
- Двойные двери на шарнирах – такой тип используется в угловых шкафчиках. Чтобы обеспечить максимальный доступ внутрь, изготавливается 2 двери, которые соединены между собой. Они монтируются на шарниры и открываются с помощью ручки, расположенной на одной из дверей.
- Выдвижные ящики – в качестве фасада можно использовать не дверцы, а ящики. Тогда верхние элементы будут иметь п-образное дно, чтобы обогнуть сифон раковины. Нижние ящики выполняются по стандартной схеме в зависимости от размеров.
- Комбинированные – такая конфигурация предусматривает наличие ящиков и створок. Это удобно, когда нужно разместить в верхнем отделе предметы для быстрого использования, например, столовые приборы.
Размеры кухонных шкафов, стандарты в зависимости от типа конструкции
Неизменной классикой остаются откидные двери. Такой вариант выбирает большинство владельцев кухонных гарнитуров за удобство применения и быстроту ремонта в случае поломки механизмов.

Двухдверные

Однодверные

Раздвижные

Двойные двери на шарнирах

Выдвижные ящики

Комбинированные

Откидные двери
2 Как собрать мойку на кухне монтируем тумбу
Врезные и накладные мойки устанавливаются в тумбочки и тумбы, с открывающимися (реже раздвижными) дверцами спереди и пустым проемом сзади. Сборка этих элементов кухонного гарнитура имеет свои характерные особенности. Дело в том, что внутренних переборок в них не предусмотрено, они могут помешать подключению канализации и водопроводных труб. Значит, внутри тумбы не будет дополнительных ребер жесткости. Если устанавливается накладная раковина, отсутствует даже столешница, ее заменяет стальная панель мойки.
Сборка тумбы под раковину должна быть гораздо надежнее и прочнее, чем других частей кухонного гарнитура. Ее нужно установить на специальные подкладки, т.к. при самой лучшей герметичности возможны протечки воды. Сам материал не помешает обработать водоотталкивающими составами. Внутри тумбочки необходимо предусмотреть крепления для стягивающих перемычек – их устанавливают после подключения раковины к коммуникациям для прочности всей конструкции. Сами перемычки можно сделать из плоских и толстых планок, которые послужат дополнительными мини-полочками внутри тумбы.

























































