Комплектующие для котлов ТГМП
К комплектующему оборудованию котлов ТГМП относятся 2 регенеративных воздухоподогревателя РВП-98 вращающихся на вертикальной оси. Они служат для нагрева первичного воздуха перед подачей в топку для повышения КПД котла.
Тягодутьевой режим в котлоагрегате поддерживается двумя дымососами модели ДОД-31.5/ФГМ, двумя вентиляторами ВДН-25х2, и двумя рециркуляционными дымососами ГД-20-500-У.
Подпитка котла водой выполняется турбонасосом производительностью по воде 1100 т/ч и давлением 360 кг/см2 и пусковым электрическим питательным насосом производительностью 600 т/ч и давлением 320 кг/см2.
Как сделать своими руками котел твердотопливный длительного горения: чертежи и схемы
Перед тем, как начать изготовление котла, необходимо определиться с его конструкцией. Ее выбор зависит от назначения агрегата. Если он предназначен для отопления небольшого хозяйственного помещения, гаража или дачного домика, то делать в нем водяной контур не обязательно. Обогрев такого помещения будет происходить непосредственно от поверхности котла, путем конвекции воздушных масс в помещении, как от печи. Для большей эффективности можно устроить принудительное обдувание агрегата воздухом при помощи вентилятора. При наличии системы жидкостного отопления в помещении, необходимо предусмотреть устройство в котле контура в виде змеевика из трубы или другой аналогичной конструкции.

Схема подключения твердотопливного котла к системе отопления
Выбор варианта зависит и от типа твердого топлива, которое нужно будет использовать. Для отопления обычными дровами требуется увеличенный объем топки, а для применения мелких топливных гранул можно устроить специальную емкость, из которой гранулированное топливо подается в котел автоматически. Для изготовления котла твердотопливного длительного горения своими руками, чертеж можно взять и универсальный. Он подойдет для любого вида используемого твердого топлива.

Чертеж твердотопливного котла длительного горения мощностью 25/30/40 кВт
Расскажем пошагово, каким образом и из каких деталей можно сделать котел отопления на твердом топливе длительного горения по предложенной схеме:
- подготовим место, где будет установлен будущий агрегат. Основание, на котором он будет стоять, должно быть ровным, прочным, жестким и огнеупорным. Лучше всего для этого подойдет бетонный фундамент или толстая чугунная либо стальная плита. Стены нужно обить тоже огнеупорным материалом, если они деревянные;
- собираем весь необходимый материал и инструменты: из которых нам понадобиться аппарат для электродуговой сварки, болгарка и рулетка. Из материалов: листовая 4-мм сталь; 300 – мм стальная труба со стенками 3 мм, а также другие трубы 60 и 100 мм диаметром;

Строение и принцип работы твердотопливного котла
- для того, чтобы изготовить котел на твердом топливе длительного горения, нужно из большой 300 – мм трубы вырезать кусок длиной 1 м. Можно и немного меньше, если в этом есть необходимость;
- из стального листа вырезаем дно по диаметру трубы и привариваем его, снабдив ножками из швеллера длиной до 10 см;
- распределитель воздуха выполняем в виде круга из листа стали с диаметром на 20 мм меньшим, чем труба. В нижнюю часть круга приваривается крыльчатка из уголка с размером полки 50 мм. Для этого можно использовать и швеллер аналогичного размера;
- сверху в середину распределителя привариваем 60 – мм трубу, которая должна быть выше котла. В середине диска распределителя прорезаем отверстие по трубе, так, чтобы был сквозной туннель. Он нужен для подачи воздуха. В верхней части трубы врезается заслонка, которая позволит осуществлять регулировку подачи воздуха;

Схематическое изображение устройства котла, работающего на твердом топливе
- в самой нижней части котла изготавливаем небольшую дверку, снабженную задвижкой и петлями, ведущую в зольник для удобства удаления золы. Сверху в котле прорезаем отверстие для дымохода и привариваем в это место 100 – мм трубу. Вначале она идет под небольшим углом вбок и вверх на 40 см, а потом строго вертикально вверх. Проход дымохода через перекрытие помещения должен быть защищен по правилам противопожарной безопасности;
- заканчиваем сооружение котла отопления на твердом топливе длительного горения изготовлением верхней крышки. В ее центре должно быть отверстие для трубы распределителя потока воздуха. Прилегание к стенкам котла должно быть очень плотным, исключающим попадание воздуха.

Чертеж с размерами для создания твердотопливного котла своими руками

Котел длительного горения — вид в разрезе
Конструкция котла Холмова
Различия по мощности
Котлы Холмова различаются по тому, какую мощность могут выдать. Таких разновидностей существует три: на десять, двенадцать и двадцать пять киловатт. К примеру, прибор на двенадцать киловатт весит около двухсот пятидесяти пяти килограмм. При этом его высота составляет сто двадцать четыре сантиметра, ширина сорок восемь с половиной, а длина шестьдесят шесть сантиметров. Однако котёл на десять киловатт не сильно отличается от своего более мощного товарища внешне, однако устройство внутри него совсем другое.
Дверца сверху котла двойная, между ними находится теплоизолятор, из-за чего они не нагреваются выше восьмидесяти градусов по Цельсию. Края дверцы обклеены асбестовым шнуром, а покрашены краской с устойчивостью к теплу. Внизу же дверца не так хорошо защищена, но её температура редко превышает девяносто градусов благодаря тому, что её постоянно обдувает ветер.
Энергозависимые и энергонезависимые
Котлы Холмова также различаются на энергозависимые и энергонезависимые. Как понятно из названия, энергозависимые зависят от электричества. Они оснащаются дымососом и вентилятором для лучшего отвода дыма, а также позволяют непосредственно контролировать процесс горения. Но чаще всего покупатели выбирают энергонезависимые, контроль за горением в котором осуществляется при помощи старых-добрых терморегуляторов.
Поддувало в приборе используется для поддержания горения топлива внутри. Конечно, можно будет его закрыть, но конструкцией всё равно будет предусмотрен зазор для минимального поступления кислорода к котлу.
Сзади котла находится патрубок, к которому подсоединяется труба для отведения дыма. Именно благодаря этому и создаётся естественная тяга кислорода: воздух идёт через поддувало и выходит через трубу, при этом попадая в котёл. Именно благодаря этому огонь может достигать высоких температур.
Безопасность в конструкции
Для безопасности в конструкции котла Холмова также предусмотрены компенсаторы расширения. Дело в том, что из-за сильного жара прибор может начать набухать, и вскоре сварные швы разойдутся. Благодаря компенсаторам шанс этого значительно сокращается. Они имеются практически во всём приборе кроме непосредственно котла, ведь его размеры помогают ему удерживать свою форму без риска.
Сталь против чугуна – такие разные котлы
Неважно, делаете ли вы твердотопливный котел своими руками или собираетесь приобрести готовый – вы должны стремиться к получению агрегата с оптимальными характеристиками. Какие именно показатели должны быть у хорошего агрегата?
Начнем с того, какой теплообменник лучше – стальной или чугунный
Чугунный в домашних условиях не изготовить – потребуются не только навыки, но и литейное оборудование, которое так просто в магазине не купишь. Большинство готовых моделей для дома представлены секционными конструкциями, которые отделяются друг от друга при транспортировке и снова собираются при монтаже. В процессе эксплуатации чугун покрываются так называемой сухой ржавчиной, которая, как правило, не прогрессирует и служит своего рода защитной пленкой. Значительно медленнее протекает и влажная коррозия, чем обусловлена долговечность изделий из чугуна – некоторые производители дают гарантию на 10 лет эксплуатации, а в целом такой котел отопления для дома может прослужить 25 лет. Плюс чугунных теплообменников в более простом обслуживании – чистить их нужно нечасто, поскольку даже существенный нагар не уменьшает КПД котла. Ремонт котла или увеличение его мощности осуществляется также очень просто – путем замены секций или добавления их количества. Среди главных недостатков числятся:
Начнем с того, какой теплообменник лучше – стальной или чугунный. Чугунный в домашних условиях не изготовить – потребуются не только навыки, но и литейное оборудование, которое так просто в магазине не купишь. Большинство готовых моделей для дома представлены секционными конструкциями, которые отделяются друг от друга при транспортировке и снова собираются при монтаже. В процессе эксплуатации чугун покрываются так называемой сухой ржавчиной, которая, как правило, не прогрессирует и служит своего рода защитной пленкой. Значительно медленнее протекает и влажная коррозия, чем обусловлена долговечность изделий из чугуна – некоторые производители дают гарантию на 10 лет эксплуатации, а в целом такой котел отопления для дома может прослужить 25 лет. Плюс чугунных теплообменников в более простом обслуживании – чистить их нужно нечасто, поскольку даже существенный нагар не уменьшает КПД котла. Ремонт котла или увеличение его мощности осуществляется также очень просто – путем замены секций или добавления их количества. Среди главных недостатков числятся:
- большой вес котла, из-за чего ему даже бывает нужен отдельный фундамент,
- большие затраты при транспортировке и неудобство в процессе монтажа,
- боязнь термического удара – нельзя загружать в топочную холодные дрова, подавать в разгоряченную систему холодную воду и т. п.,
- высокая тепловая инерционность – долго нагреваются, но и долго остывают.
Сталь намного эластичнее чугуна, а потому разница температур ей не страшна, даже если по обратной линии будет поступать холодная вода. Благодаря этой способности в твердотопливных котлах из стали допустимо использовать чувствительную автоматику. К тому же благодаря меньшей инерционности такие котлы быстрее нагреваются и быстрее остывают, что позволяет оперативно регулировать температуру в помещениях.
Стальные котлы представляют собой монолитную сварную конструкцию, из-за чего перевозка агрегата усложняется, хотя в целом вес котла намного меньше и он не так боится механических повреждений, как чугунный. Что касается ремонтопригодности, то мнения специалистов тут разделяются – кто-то считает, что после появления течи котел лучше выбросить, поскольку в домашних условиях невозможно создать сварной шов такого же качества, как на заводе, а кто-то утверждает обратное. Видимо, все зависит от индивидуального мастерства обращения со сваркой. Однако в любом случае ремонт чугунного агрегата выглядит проще – нужно лишь заменить прохудившуюся секцию.
Большинство чугунных агрегатов независимы от источников электропитания, да и среди стальных много таких – они и стоят дешевле, и не требуют установки циркуляционных насосов. Правда, при установке радиаторов отопления следует придерживаться специальной системы, чтобы теплоноситель под естественным давлением, возникающим внутри котла при нагревании, перемещался по трубам. Вследствие дешевизны такие котлы рекомендуется приобретать даже если в доме уже есть отопительный агрегат – он будет выручать вас в моменты отключения электричества.
Как сварить котел отопления своими руками

Схема изготовления котла длительного горения с теплообменником
До того как самому сварить котел отопления, нужно определиться с его конструкцией. Предпочтительно, чтобы она соответствовала современным требованиям к безопасности и эффективности работы. Поэтому в качестве примера будет рассмотрен котел пиролизного типа, изготовленный самостоятельно.
Как правильно сварить котел отопления подобного типа? Помимо сварочного аппарата для этого потребуются следующие материалы и инструменты:
- Листовая сталь, марки которой подбираются из данных таблицы, показанной выше. Для камеры сгорания толщина металла должна составлять 3-4 мм. Корпус можно сделать из стали меньшей толщины – 2-2,5 мм;
- Трубы для изготовления теплообменника. Их оптимальный диаметр 40 мм. Такой размер позволит быстро нагреть теплоноситель. Количество регистров — от 3 до 6;
- Как сварить котел отопления без режущего инструмента? Лучше всего для разрезания листов стали использовать «болгарку» со специальными дисками по металлу;
- Дверцы для топочной камеры и поддувала. Также нужно приобрести чугунные колосники. Это необходимо сделать заранее, так как по размерам комплектующих будут изготавливаться проемы и крепежные части котла;
- Уровень, рулетка и карандаш (маркер) для нанесения разметки;
- Защитный инвентарь – перчатки, маска сварщика, прозрачные рабочие очки и одежда из плотного материала с длинными рукавами.
Для наглядности можно посмотреть, как сварить отопление в частном доме. Видео или фотоматериалы помогут в работе, так как в них наглядно показаны все этапы и особенности их выполнения. Однако это нужно сделать только после составления чертежа и подготовки всех инструментов и комплектующих. Это относится ко всем этапам изготовления комплектующих, так как сварить отопление своими руками, включая котлы, регистры, гребенки, невозможно без правильной схемы.
Важно также подготовить место работы до того как сварить отопление в гараже. Чаще всего процесс изготовления проходит именно в нем. Для начала нужно обеспечить максимальное свободное пространство, убрав лишние предметы
Для начала нужно обеспечить максимальное свободное пространство, убрав лишние предметы.
В целях безопасности также из гаража следует вынести легковоспламеняющиеся жидкости – бензин, масло и т.д. И только после этого можно приступать к работе — сваривать отопление в гараже. Правильная сварка котла отопления заключается в изготовлении двух составляющих – непосредственно корпуса котла и теплообменника.
Теплообменник

Теплообменник для котла отопления
Этот элемент изготавливается до того, как сваривается котел отопления. Впоследствии он будет установлен в конструкцию, которая будет напрямую зависеть от его фактических габаритов.
Конструктивно он представляет собой 2 прямоугольных бака, соединенных между собой трубопроводами. Оптимальная толщина материала должна составлять 3-3,5 мм. Это связано с высокими температурами, которые будут воздействовать на поверхность. Специфику его изготовления можно посмотреть на видео — как сварить отопление в частном доме.
На листах стали делается разметка конструкции согласно чертежам. Сначала вырезается задняя панель и к ней приваривается перегородка для отведения дровяных (угольных) газов. На этом этапе нужно быть очень осторожным, так как сварной шов не всегда может обеспечить должное крепление. Затем к перегородке и задней стенке приваривается боковая и нижняя.
Нужно отметить, что самому сварить котел отопления довольно проблематично. Поэтому эту работу рекомендуется выполнять вдвоем. В особенности это касается этапа установки готового теплообменника. Его патрубки помещаются в заранее подготовленные отверстия, а трубы точечно привариваются к внутренним стенкам котла.
Нередко стоит вопрос — как сварить отопление внутри гаража без принудительной вентиляции. Для этого работы должны проводиться только с открытыми воротами, чтобы обеспечить нормальный приток свежего воздуха.
Основной проблемой самодельных конструкций является низкая эффективность работы. Для увеличения КПД рекомендуется делать двойные стенки, между которыми устанавливается базальтовый огнеупорный теплоизолятор. Сварить подобный котел своими руками для водяного отопления можно, но для этого нужно предусмотреть дополнительный расход материала. Сначала изготавливаются двойные стенки, которые заполняются утеплителем. Затем дальнейшая технология сварки конструкции полностью соответствует вышеописанной.
Принципы работы
В котле на твёрдом топливе одной закладки может хватить на семь часов горения. Если вовремя не подкинуть дрова, то температура в комнате начнёт быстро снижаться. Это происходит из-за принципа свободного движения газа: горячие потоки воздуха поднимаются и затем выходят наружу. Устройство длительного горения может поддерживать тепло в помещении один-два дня, самые дорогие модели выдерживают до семи суток.
По чертежам твердотопливного котла своими руками можно понять то, что эффективность его работы заключается в правильном строении. В обычном агрегате внизу располагается топливо, пламя от него поднимается к распределителям воздуха. Затем горячий кислород попадает в камеру подогрева, из которой выходит по трубам к радиаторам отопления. Вентилятор обеспечивает своевременную подачу воздуха к пламени.
В этом видео вы узнаете, как сделать котел отопления своими руками:
В твердотопливном котле находятся сразу две камеры сгорания, а сама топка расположена в верхней части. В неё закладывают дрова или уголь, а воздух поступает с помощью специальных вентиляторов. Когда прогорает верхний слой топлива, подаются новые потоки кислорода. Это позволяет дровам гореть очень медленно, отдавая большее количество тепла помещению.
Это интересно: дрова для камина какие лучше.
Приобрести можно несколько моделей такого оборудования. К бюджетным агрегатам относятся дровяные котлы — в них нельзя закладывать ничего, кроме поленьев. Остальные устройства топят углем, опилками, бытовым мусором, брикетами.
На инженерных чертежах твердотопливные котлы своими руками изображают с месторасположением основных элементов:
- дверца топки находится сверху;
- в этой же части дымовой патрубок соединяется с дымоходом;
- внизу встраивают зольник, через который очищают котёл;
- с помощью заслонки в верхнюю часть воздушной камеры поступает кислород.
Читать подробнее: дымоход своими руками.
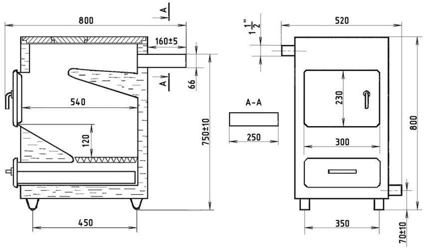
Как сделать своими руками котел твердотопливный длительного горения чертежи и схемы
Перед тем, как начать изготовление котла, необходимо определиться с его конструкцией. Ее выбор зависит от назначения агрегата. Если он предназначен для отопления небольшого хозяйственного помещения, гаража или дачного домика, то делать в нем водяной контур не обязательно. Обогрев такого помещения будет происходить непосредственно от поверхности котла, путем конвекции воздушных масс в помещении, как от печи. Для большей эффективности можно устроить принудительное обдувание агрегата воздухом при помощи вентилятора. При наличии системы жидкостного отопления в помещении, необходимо предусмотреть устройство в котле контура в виде змеевика из трубы или другой аналогичной конструкции.
Схема подключения твердотопливного котла к системе отопления
Выбор варианта зависит и от типа твердого топлива, которое нужно будет использовать. Для отопления обычными дровами требуется увеличенный объем топки, а для применения мелких топливных гранул можно устроить специальную емкость, из которой гранулированное топливо подается в котел автоматически. Для изготовления котла твердотопливного длительного горения своими руками, чертеж можно взять и универсальный. Он подойдет для любого вида используемого твердого топлива.
Чертеж твердотопливного котла длительного горения мощностью 25/30/40 кВт
Расскажем пошагово, каким образом и из каких деталей можно сделать котел отопления на твердом топливе длительного горения по предложенной схеме:
- подготовим место, где будет установлен будущий агрегат. Основание, на котором он будет стоять, должно быть ровным, прочным, жестким и огнеупорным. Лучше всего для этого подойдет бетонный фундамент или толстая чугунная либо стальная плита. Стены нужно обить тоже огнеупорным материалом, если они деревянные;
- собираем весь необходимый материал и инструменты: из которых нам понадобиться аппарат для электродуговой сварки, болгарка и рулетка. Из материалов: листовая 4-мм сталь; 300 – мм стальная труба со стенками 3 мм, а также другие трубы 60 и 100 мм диаметром;
- для того, чтобы изготовить котел на твердом топливе длительного горения, нужно из большой 300 – мм трубы вырезать кусок длиной 1 м. Можно и немного меньше, если в этом есть необходимость;
- из стального листа вырезаем дно по диаметру трубы и привариваем его, снабдив ножками из швеллера длиной до 10 см;
- распределитель воздуха выполняем в виде круга из листа стали с диаметром на 20 мм меньшим, чем труба. В нижнюю часть круга приваривается крыльчатка из уголка с размером полки 50 мм. Для этого можно использовать и швеллер аналогичного размера;
- сверху в середину распределителя привариваем 60 – мм трубу, которая должна быть выше котла. В середине диска распределителя прорезаем отверстие по трубе, так, чтобы был сквозной туннель. Он нужен для подачи воздуха. В верхней части трубы врезается заслонка, которая позволит осуществлять регулировку подачи воздуха;
Схематическое изображение устройства котла, работающего на твердом топливе
- в самой нижней части котла изготавливаем небольшую дверку, снабженную задвижкой и петлями, ведущую в зольник для удобства удаления золы. Сверху в котле прорезаем отверстие для дымохода и привариваем в это место 100 – мм трубу. Вначале она идет под небольшим углом вбок и вверх на 40 см, а потом строго вертикально вверх. Проход дымохода через перекрытие помещения должен быть защищен по правилам противопожарной безопасности;
- заканчиваем сооружение котла отопления на твердом топливе длительного горения изготовлением верхней крышки. В ее центре должно быть отверстие для трубы распределителя потока воздуха. Прилегание к стенкам котла должно быть очень плотным, исключающим попадание воздуха.
Чертеж с размерами для создания твердотопливного котла своими руками
Полезный совет!Чтобы разжечь, изготовленный своими руками, котел твердотопливный длительного горения, чертеж которого был представлен выше, необходимо: снять крышку и поднять регулятор, заполнить котел топливом доверху и облить его горючей жидкостью, все поставить на место и бросить горящую лучину в трубу регулятора. Когда топливо разгорится, снизить поток воздуха до минимума, чтобы оно начало только тлеть. После этого произойдет возгорание пиролизного газа и котел запустится.
Котлы длительного горения – закладка дров два раза в сутки!
Эта конструкция понравится тем, кто нечасто бывает дома или не хочет постоянно загружать топливо. Агрегаты длительного горения представляют собой разновидность твердотопливного котла, в котором процесс горения (тления) происходит в верхней части топливного слоя, соответственно, и воздух подается сверху. По всему диаметру корпуса идет встроенный водяной контур, благодаря чему теплоноситель прогревается хорошо независимо от того, на какой глубине происходит горение. За счет горения только верхнего слоя длительность работы котла на одной загрузке дров составляет до 30 часов, а некоторые модели, которые подходят для любого вида топлива, могут работать на угле почти неделю! В большинстве котлов нет никакого энергозависимого оборудования, к тому же стоят они относительно недорого, и их можно сконструировать самостоятельно.
Правда, у таких конструкций есть и минусы, в частности, подкидывать топливо в процессе горения котла невозможно. Влажные дрова для топки не подходят, они должны быть хорошо просушены как минимум до 20 % влажности и распилены на короткие бруски. Если отапливать углем, то только высококачественным, с низким содержанием шлаков. Еще один существенный минус – ограниченные мощности агрегатов. Большинство самых популярных моделей работают в рамках 40 кВт.
Упомянем также и о пеллетных котлах – это разновидность твердотопливных, с той лишь разницей, что вместо дров или угля используются топливные гранулы из отходов деревообрабатывающей промышленности. Большинство агрегатов оборудованы специальным бункером, откуда топливо попадает в топочную в автоматическом режиме.
Котел на жидком топливе
В принципе, котел на жидком топливе (или несколько спаренных котлов) может быть использован в качестве котельной станции, но тогда его выгоднее топить мазутом, потому, что при одинаковом расходе мазута и газа удельная выделяющаяся теплота у газообразного топлива гораздо меньше. Есть, правда, один грешок у таких нагревательных приборов, который не то, чтобы портит общую картину, но заставляет задуматься о принципиальной установке. Мы сейчас говорим о розжиге (начале эксплуатации), который является основой работы котла и началом отопительного сезона. Не секрет, что любой углеводород является в итоге горючим материалом (для некоторых нужна соответствующая переработка), но, в отличие от бензина, масло и дизельное топливо начинают процесс горения с более высоких температур (это можно увидеть, если попробовать от спички зажечь несколько капель бензина и мазута).
Конструкция котла на жидком топливе
То есть, при всех прочих равных условиях более тяжелые углеводороды имеют температуру возгорания выше, из чего можно сделать вывод о том, что конструкция котла на жидком топливе должна иметь серьезный по продолжительности горения запальник и жаропрочные элементы теплообменника. Дизельное топливо, мазут и масло обеспечивают стабильное и длительное горение при условии систематического добавления топлива в камеру сгорания.
Простейшее устройство котла на жидком топливе
Наиболее простой для понимания и описания свойств таких видов котлов вариант – сделанная своими руками печь с капельницей. Стандартная для печей топка имеет дверцу для растопки обычными дровами, а вверху – стальную капельницу, через которую горючее попадает непосредственно в камеру сгорания. Для розжига агрегата необходимо затопить его, как обычную печь, дать нагреться, после чего открыть капельницу на минимум. Регулировка дозирования жидкого топлива автоматически увеличивает или уменьшает температуру горения, а силу горения (интенсивность) регулируют поддувалом (приточной вентиляцией). Чем меньше объем приходящего воздуха, тем слабее горение, сохраннее топливо и стабильнее температура нагрева.
Отопление на жидком топливе может быть организовано только при бесперебойной подаче топлива, поэтому котлы на жидком горючем не рекомендуется гасить на короткое время (только на летний период). Создание условий для правильной подачи горючей жидкости и своевременное пополнение запаса в баке создает еще один нюанс – характерный запах.
Плюсы и минусы
Среди качественных и технических показателей нет однозначных минусов или плюсов, поскольку некоторые, на первый взгляд, отрицательные черты могут быть в угоду расширению списка положительных моментов. В статье все уже оговорено, однако не лишним будет напомнить и классифицировать все нюансы.
Итак, плюсы:
- автономность (в данном случае следует говорить об обособленности от инженерных систем и электричества);
- смотря какое горючее можно применять: если только какой-то один вид – это минус, а если котел представлен комбинированной системой – это плюс;
- стабильное горение и поддержание ровной температуры (при условии одинаковой дозировки поддержание горения, даже при ветре или осадках, не составляет труда).
В качестве 100% минусов отметим:
- тяжелый разогрев горючего для достижения температуры воспламенения;
- отсутствие пауз в работе отопителя (неоправданный расход топлива);
- регламентированная минимальная температура в системе (у каждой она своя и зависит от объема теплоносителя, величины камеры горения и плотности гидрообвязки).
Котел на отработанном масле своими руками (видео)
https://youtube.com/watch?v=E22zPchFpzk
Требования, предъявляемые к помещению для газовых котлов
Газовые котлы могут быть установлены в чулане, кухонном или подвальном помещении, специальном пристрое. К помещению, в котором выполняется установка газовых котлов в частном доме, предъявляются определенные требования. Они одинаковы для любого помещения и заключаются в следующем:
- Помещение должно быть хорошо вентилируемым, с обязательным оснащением вытяжкой.
- В окнах должны быть предусмотрены форточки, в нижней части двери – небольшой зазор.
- Высота потолка – от 250 см. объем помещения – от 15 м2. Каждая единица мощности газового котла требует дополнительного объема (0,2 м2), чтобы можно было свободно подойти к котлу для обслуживания.
- Стены. отделяющие помещение с установленным котлом от других, необходимо выполнить из огнестойких материалов, не поддерживающих горения.
- В подвальном или цокольном помещении должен быть предусмотрен отдельный выход на улицу.
- Пристрой должен размещаться только у глухой стены жилого дома. Минимальное расстояние до ближайшего окна – 4 м. высота от перекрытия до окна – 8 м.
Тестирование и подключение к системе
Твердотопливный котел для отопления дома готов. Теперь необходимо его проверить. Для этого на один из сгонов накручивается заглушка, а во второй заливается вода. Если через сварные швы вода не проходит, то сварка была проведена на высоком уровне.
Опасаться, что во время работы отопительный агрегат потечет, не стоит. Готовый агрегат подключается к системе отопления загородного дома. То есть, соединяются сгоны с патрубками подачи и обратки теплоносителя.
Монтаж дымохода
Проводится монтаж дымохода
Обратите внимание, что этот элемент прибора должен выходить вертикально вверх. Если так расположить его не удается, то отводов должно быть минимальное количество
В неотапливаемом чердаке его придется утеплить.
Первая растопка
Очень важно правильно провести первую топку. При этом нельзя использовать большое количество топлива
Небольшая закладка должна протопить сам агрегат, особенно это касается дымохода. При резком повышении температуры на его стенках может образоваться конденсат, который превратится в деготь, сужая диаметр. А это понижение тяги, которая отвечает за корректную работу отопительного прибора.
Регулировка зазора
В процессе топки регулируется зазор в поддувало. Надо найти оптимальный размер, который обеспечит топочную камеру необходимым количеством свежего воздуха (кислорода).
Обязательно обращайте внимание на высоту закладки. Ее верхний край должен располагаться на расстоянии 20 см от внутреннего блина
Это расстояние обеспечит оптимальное сжигание дров или угля. При этом дым и угарные газы беспрепятственно будут выводиться через дымоходную трубу.
Изготовление пиролизного котла
Эффективность этого вида установок на дровах стала причиной их популярности у мастеров, которые могут изготавливать твердотопливные котлы пиролизного типа собственными силами из имеющихся материалов. Процесс этот достаточно трудоемкий и требующий навыков выполнения слесарных и сварочных работ, некоторого минимума инструментов и оборудования:
- аппарат для электросварки;
- угловая шлифовальная машина;
- дрель электрическая;
- набор слесарных инструментов.
Если имеются навыки, инструменты и большое желание, то можно изготовить агрегат, используя следующий чертеж пиролизного котла на естественной тяге:

1 – воздушный канал; 2 – дверца для загрузки топлива; 3 – дверца вторичной камеры; 4 – заслонка прямой тяги; 5 – первичная камера; 6 – верхняя крышка; 7 – входной канал для подачи воздуха; 8 – воздушная заслонка; 9 – патрубок для группы безопасности; 10 – вторичная камера дожигания; 11 – патрубок присоединения дымохода; 12 – форсунка; 13 – жаротрубный теплообменник.
Материалом для изготовления камер может служить жаропрочная легированная сталь, но это дорогой материал, поэтому мастера берут простую углеродистую сталь толщиной 5 мм. Для защиты ее от высокой температуры в нижней части топки выполняется футеровка пиролизного котла огнеупорным кирпичом. Им же нужно защитить днище вторичной камеры, куда направлен факел пламени. Для обшивки водяной рубашки применяется листовой металл толщиной 3 мм, его приваривают к ребрам жесткости из полосовой стали. Из такого же металла изготавливают дверцы, крышку и обрамление проемов.

Передачу тепла от дымовых газов устройство котла предусматривает через жаротрубный теплообменник, находящийся внутри водяной рубашки. Для его изготовления подойдут бесшовные стальные трубы из углеродистой стали наружным диаметров 48 или 57 мм. Количество труб следует подобрать по необходимой площади поверхности теплообмена, для чего выполняется расчет пиролизного котла.
Учитывая, что топливо в пиролизных агрегатах горит долго (до 12 часов) и продуктивно, некоторые владельцы классических установок прямого горения задумываются о том, можно ли их модернизировать. Такая переделка твердотопливного котла в пиролизный возможна, но при условии, что топка агрегата сделана из металла, а не чугуна. Колосниковая решетка убирается и с помощью электросварки на ее месте закрепляется перегородка, разделяющая главную топку и зольник, который будет выполнять роль вторичной камеры. Между ними устанавливается форсунка. Кроме этого, понадобится организовать подачу воздуха в обе камеры, надо изготовить воздушные каналы и установить их, как показано на чертеже.
Как правило, переделка котла в пиролизный происходит не на заводских агрегатах, а на самодельных, это расширяет возможности для усовершенствования конструкции. Можно менять проходное сечение форсунки, размеры обеих камер или площади поверхностного теплообмена, добиваясь наилучших показателей длительности горения и повышения КПД установки.
Работа над корпусом чертежи
Пустой пропановый баллон оснащается разметкой, согласно чертежам твердотопливного котла длительного горения своими руками. Изготовляется прямоугольное отверстие для дверцы зольника, предназначенное для удаления пепла. Сверху баллона по окружности проводится ровная линия под срез шляпки: обрезка осуществляется с помощью болгарки.
В центральной части выполняется разметка ниши для вывода дымохода: размеры этого отверстия должны превосходить сечение трубы. В крышке проделывается отверстие и наваривается металлическое кольцо, плотно обхватывающее дымоотводный канал. Кольцо из металла толщиной 4-5 мм используется для обваривания баллона изнутри и снаружи. На него впоследствии будет одеваться крышка.
Дымоход внизу оснащается металлическим кругом, выполняющим функцию распределителя воздуха. Крепежные элементы навариваются по линии среза баллона поверх предварительно проложенного асбестового шнура
При креплении срезанной верхушки важно, чтобы она свободно снималась. Для удобства ее можно оснастить металлической ручкой

























































